Museo Religioso

Page 1

MUSEO RELIGIOSO CARTAGO ENCARGO CONCEPTO

Es importante un tercer espacio como conector entre la Basílica y el museo. Este tercer espacio es una plaza de acceso que funciones para recibir a las personas y que se extienda hasta la salida posterior de la Iglesia, ya que está salida coincide con el final del recorrido del actual monumento de la Iglesia, por lo que el museo puede ser la continuación de este recorrido. Esta plaza es una plaza abierta que recibe a los visitantes y funciona para diferentes actividades a lo largo del día.

Ubicación:Cartago, CostaRica.Contiguoa laBasílicadelos Ángeles

La configuración volumétrica consta de tres prismas en forma de “c”. Esta decisión es para lograr un proyecto con formas limpias y que no compita estéticamente con la Basílica, a pesar del contraste temporal que se da, hay una armonía en escala entre los edificios.

hacia Basílica

Este proyecto va de la mano con tres ámbitos: Dado que este museo es para la exhibición de arte religioso, el contexto en que se encuentra lleva una arraigada tradición hacia la Virgen de los Ángeles y el proyecto funciona como potenciador de la cultura y el arte deCartago.

religión, arte y tradición.

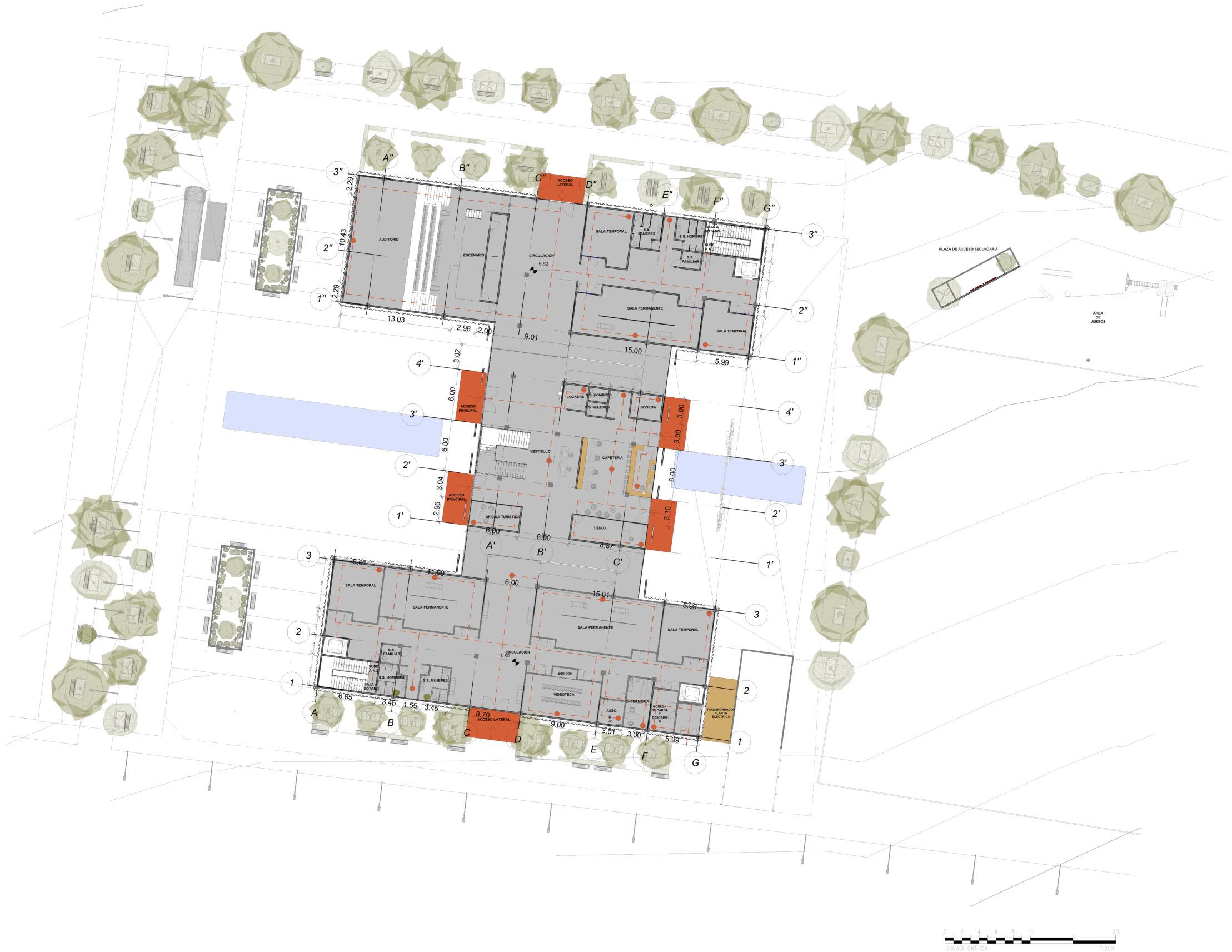
En cuanto al programa se plantea un sótano para parqueo y cuartos de servicio, en el primer nivel la plaza de acceso que dirige al espacio público del museo (vestíbulo, cafetería, oficina turística y tienda) y también se encuentran las salas temporales y permanentes y el auditorio. En el segundo nivel se pueden encontrar las salas y un mirador hacia los lados este y oeste del sitio.

LaboratoriodeArquitecturaIX S2021 Profesores
IX MelanyBolañosBonilla 2017116048 Museo Religioso Cartago
Arq.SergioÁlvarez Arq.TomásMartínez
Basílica
de Los Ángeles
NPT N-1 N2 MUSEO MUSEO VESTÍBULO MUSEO PLAZA
PARQUEO
Visual
PLAZA DE INGRESO

PROPUESTA EMPLAZAMIENTO

Propuesta de ruta vehicular

Boulevard en las vías del tren Vías del tren

Nuevos pasos peatonales

Aprovechamiento de parqueos existentes y quitar los parqueos de la calle principal

El desvío de la vía vehicular se plantea ya que en la zona este hay una percepción de lugar solitario y peligroso, por lo que el mayor tránsito de vehículos puede generar más ojos a la calle. Además, al dejar la vía solo para autobuses genera un tráfico más lento en el bulevar y más seguro para el peatón.

Aprovechar para parqueos

NORTE

Basílica de los Ángeles

Para tren

Boulevard con la Basílica

Museo

Supermercado para activar la zona “ojos en la calle” Actividades para los niños

Equipamiento Escuela

Fomento de actividades al aire libre

Basílica

Implementar restaurantes con espacios al aire libre

Mantener el uso residencial

PLANTADECONJUNTO

Elementos informativos y artístico a lo largo del recorrido y en jardín

Parada de buses actual

Pequeña plaza de acceso del lado de la parada del tren

Juegos al aire libre. Que se pueda extender la actividad a la cancha existente

Diseño de boulevard, como extensión de la plaza de acceso

Exposición al aire libre

Jardín sur para extender actividades comerciales como las comidas

Pacificación vial, para garantizar el fácil acceso de

Equipamiento con restaurantes, que se pueda diafrutar de la comida al aire libre

CONJUNTOURBANO

Baldosas antideslizantes, tonalidades gris Espejo de agua con fuente de chorros de agua Maceteros con losa de concreto Detalle

BOULEVARES

ESPACIOS DE ESTAR Y ESPERA

Estos boulevares son espacios de estancia y para esperar el transporte público o encontrarse con alguien

Por ello el mobilieario está resgiardado con sombra natural e iluminació artificial para dar confort y seguridad.

PERMANENCIA Y PASO

Para crear espacios más lúdicos se propone emplazar una serie de banners informativos que roten con cada exposición del museo. En ellos puede haber información turística, histórica o de las expocisiones del momento en el museo.

También se hizo un ensanche de acera desde la parada del tren para que haya un buen flujo de personas

BOULEVAR LÍNEADELTREN-MUSEO

OBRASEXTERIORES

ACCESO SECUNDARIO

Para generar una mejor conexión con la colindancia del Noroeste se generó una pequeña plaza de acceso, esta dirige a la parte posterior del museo donde hay una plaza con esposiciones al aire libre pública. Esta plaza posterior sirve para poder ver actividades en la cancha pública o de paso sentido Norte-Sur

ACTIVIDADES

Con el emplazamiento de un restaurante al costado sur se pueden generar espacios de alimentación informales en los jardínes, ya que actualmente el espacio que existe las familias almuerzan los domingos después de misa en este lugar

SÓTANON.P.T.-3 PLANTAARQUITECTÓNICA

60 Espacios vehículares

Zonas seguras Recorridos Punto de partida

6 Espacios 7600

Aprovechamiento para los espacios de servicios

Espacio para carga y descarga en bodega

ESPACIO

Bodega 34.3

Cuarto de basura 7.11

Cuarto eléctrico 15.7

2 Cuartos de bombas 32

Cuarto de TI 16

Cuarto de seguridad 35

Cuarto de mantenimiento 46.8

Cuarto de aseo 18.5

54 espacios de parqueos 670

6 espacios 7600

Circulación vertical

Circulación

90 66.2 2 092 3 124

TOTAL
NFPA

N.P.T.0 PLANTAARQUITECTÓNICA

Entradas laterales para generar aperturas desde todas las vías públicas

Núcleo central con actividades públicas, para enriquecer las actividades de la plaza

Remata con una sala al aire libre, donde se puede aprovechar para generar conexión visual con la parada del tren

NFPA Zonas seguras Recorridos

Punto de partida

Acceso vehicular para carga y descarga

ESPACIO ESPACIO

m² m²

Vestíbulo 71.5

Cuarto de aseo 8.1

Enfermería 16.6

Cafetería 78.7

Lavado de manos 10.8 Bodega de carga y descarga 28

Lockers 8.5 Video teca 47

2 S.S. cafetería 7.3 4 Salas temporales 160

Bodega cafetería 10 3 Salas Permanentes 286

Tienda 27

Oficina Turística 18

Sala al aire libre 260

Auditorio 235.5

24 2 S.S. Hombres

2 S.S. Familiares 10

101 Circulación vertical

2 S.S. Mujeres 26.8 Circulación 686 2 141

NIVEL1
TOTAL
Camerinos 20.5
NIVEL2 N.P.T.5PLANTAARQUITECTÓNICA Área total: 5 649 m² 70% Cobertura 40% Cobertura 30% Libre Cobertura: 2 141 m² Libre: 3 508m² 60% Libre ESPACIO ESPACIO TOTAL m² m²
43.4 4 Salas
160 3 Salas
286 Exposición libre 337 Auditorio 235.5
2
2
NFPA Zonas seguras Recorridos Punto de partida
Cuarto de aseo 8.41 Oficina director 17 Oficinas
temporales
Permanentes
Cuarto de equipos 20.5 Sala de lactancia 9.5
S.S. Mujeres 26.8 Circulación 686
S.S. Familiares 10 1 881 101 Circulación vertical 24 2 S.S. Hombres Secretaría 50

VISTASINTERNA

VESTÍBULO

CAFETERÍA

FRONTALOeste Áreas de comida al aire libre y de espera Paneles Single Skin Panelex Ideales para exteriores Aluminio compuesto como recubrimeinto para exteriores Distribuidor: Hunter Douglas Distribuidor: Siscon
FACHADA

FACHADA LATERALNorte

Plaza secundaria de acceso desde la parada del tren

La fachada Norte es un espacio para contemplación y espera información turística, histórica y artística, segun las exposiciones

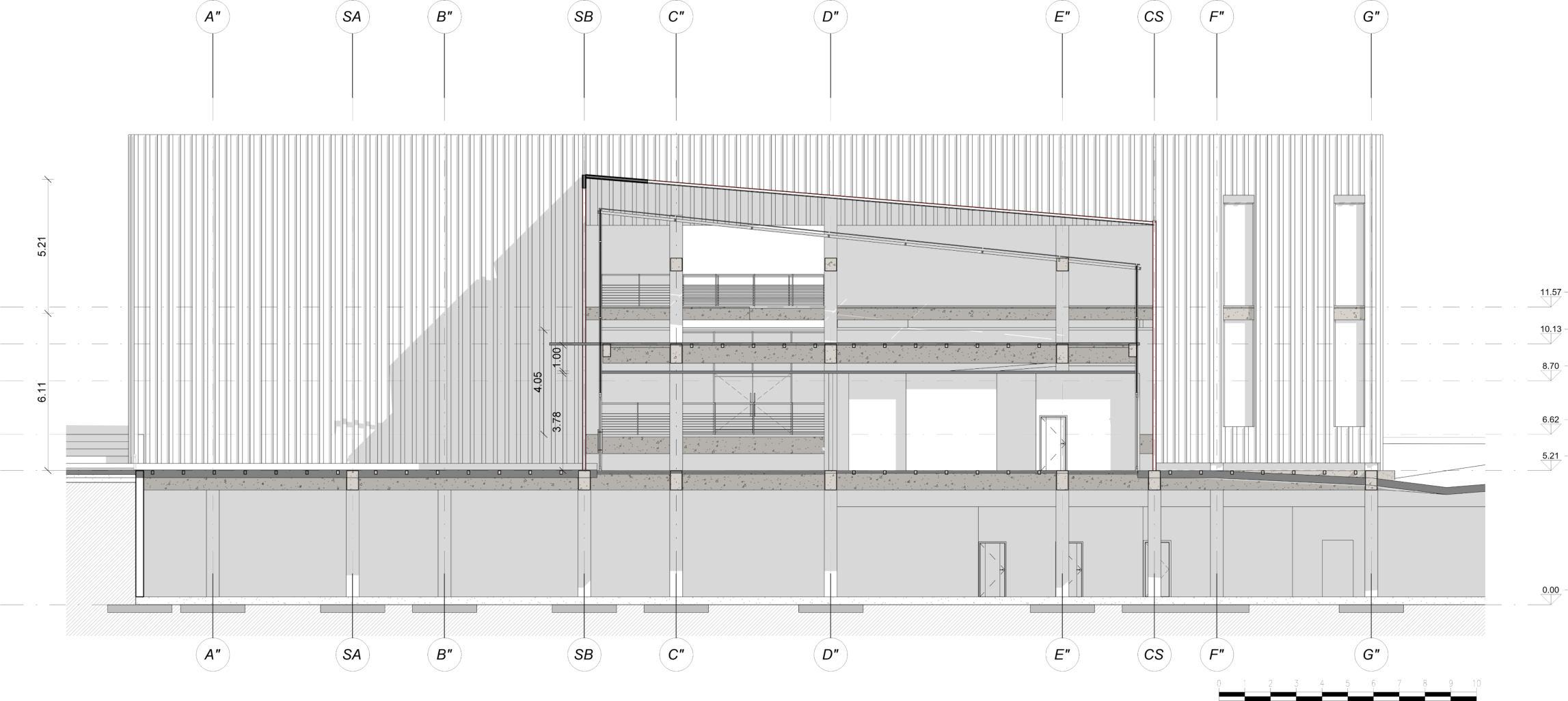
ESTRUCTURA

SIMBOLOGÍA

Muros de retención

Muros de corte

Columnas de sótano a entrepiso

Columnas de sótano último nivel

Placas de cimentación

Vigas prefabricadas: 75x50cm

Columnas prefabricadas: 50x50cm

Entrepisos tubalres

Vigas cercha: Para auditorio

Cimientos: 2.5x2.5m placas aisladas

Lámina corta 30cm antes de canoa interna

Canoa

PREDIMENSIONAMIENTO

PREDIMENSIONAMIENTO

Armadura acero: 11x17cm Recubrimiento: Panelex

ESTRUCTURA ARCOS

Columnas y vigas dan soporte, no hace falta arriostre

Vigas pasan la carga del arco al sótano

Canoas interna

DETALLE

Lámina single skin Canoa Cubierta

TROPICALIZACIÓN

Volúmenes Vegetación

Gracias a que los volúmenes rodean la plaza central, la protegen del sol

Cerramientos

De acuerdo a su función, es necesario mantener herméticos los espacios de exposición, contrarrestando con los públicos que son más abiertos

Se incorpora la vegetación en las zonas más expuestas como lo son los laterales y se juega con la escala de las especies para mayor protección

Turn static files into dynamic content formats.

Create a flipbook
Issuu converts static files into: digital portfolios, online yearbooks, online catalogs, digital photo albums and more. Sign up and create your flipbook.
Museo Religioso by Melany Bolaños - Issuu