Se obliga a los promotores a ceder al Ayuntamiento, de manera anticipada, suelo dotacional y equipamiento que pueden destinarse a diferentes usos: sanitario, parking público,educativo,deportivo,cultural,etc.
Cesión al Ayuntamiento de dos parcelas edificables al norte delsector(destinoviviendapúblicapropia)
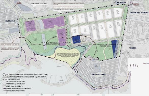
La propuesta mejora todo el frente marítimo-costero de la PlayadeLasGalletas.
Ampliación de los m² del DPMT, protección ambiental de la playadeLasGalletasydelasgraveras
Creación de dos grandes parques públicos de más de 100.000m2.
Reordenación de la movilidad, creando una rambla entre El Fraile y Garañaña, con acceso a Las Galletas y eliminación de la carretera TF‐66 de la Playa de Las Galletas a cuenta del Sector,entrelarotondadeElFraileylaMarinaSur.
Los suelos con destino a usos públicos, serán el 69,9%, de la totalidad del ámbito (459072,3 m²) Es decir, 321151 m², se destinarán a usos de parques públicos, jardines, plazas, dotaciones,ramblasyviarios.
El 30,4%, es decir, unos 137.920 m², se destinarían a Usos
Residencial(VPylibre)yEquipamientos.
Eliminación de suelo de reserva turística prevista en el PIOT y que actualmente se puede desarrollar frente a la Playa de Las Galletasporsuelodeequipamientoprivado.
Incorporar a través de los Espacio Público los Objetivos (ODS) de la Agenda 2030 para el Desarrollo Sostenible y la Calidad Urbana ObligacionesacargodelPromotor



Tlf. 624313086
Email masporarona@gmailcom
Dirección
TF28,186Local1


Elurbanismoresponsablenopuedeserunproblema paralaspersonas
IniciativaLosPozos-LasGalletas
¿Qué ha planteado Más por Arona en el Ayuntamiento?
Mas por Arona ha presentado, el 27 de febrero, una moción de urgencia para tener el apoyo de todos los grupos políticos e instar al Gobierno de Canarias a iniciar el trámite administrativo previsto en el art 168, de la Ley 4/2017, del Suelo y los Espacios Naturales de Canarias
¿Quién apoya esta iniciativa a día de hoy?¿Tiene ya respaldo la propuesta?
Además, de Más por Arona, esta iniciativa ya cuenta con el apoyo del Gobierno de Canarias y el Cabildo Insular de Tenerife, las cuales han demostrado el enorme interés general y público de la iniciativa y la nueva ordenación urbanística propuesta
¿Qué pretende Más por Arona apoyando esta iniciativa? ¿Qué estamos defendiendo?
Defendemos la oportunidad que se le presenta al municipio proponiendo iniciar el trámite (la propuesta está en el Ayuntamiento desde Octubre de 2024) que permita trabajar ya en una nueva ordenación urbanística tan necesaria para el SE de la costa de Arona (El Fraile, Las Galletas y TenBel-Costa del Silencio). Las prioridades en Arona son máximas en materia de vivienda pública, suelos dotacionales y equipamientos, reordenación tráfico, zonas verdes, mejora de todo el frente de playa, etc.
Quién ha apoyado: Más por Arona
Quién no han apoyado: Partido Popular, Coalición Canaria, Partido Socialista y Vox.
Modern Style
Furniture
Booklets are printed materials with four or more pages, containing details about a business, event, product, promotion, etc
¿A qué obliga la tramitación del art. 168 de la Ley?. Seguridad jurídica y transparencia
Esta iniciativa estará sujeta a toda la tramitación obligatoria prevista, no sólo, en la Ley 4/2017 del suelo de Canarias sino a la normativa ambiental, a las obligatorias consultas públicas y ciudadanas así como toda la normativa sectorial de aplicación
¿Qué le aporta esta propuesta de nueva ordenación a Los Pozos Las Galletas?
La propuesta que defiende Mas por Arona aporta a este ámbito, entre otras cuestiones, lo siguiente:
Minimalist Style
Furniture
Será la primera ordenación, con el visto bueno de todas las Administraciones públicas con competencias, tras muchos años en Arona. Seguridad jurídica y transparencia.
Fomenta la colaboración público-privada. Inversión a coste cero para el Ayuntamiento, financiación 100% privada.
Dotará a Las Galletas de un sistema viario que integrará los tres núcleos de manera racional y eficiente (El Fraile, Las Galletas y TenBel-Costa del Silencio.)
Está prevista la construcción de 1.400 viviendas, de las cuales el 50%, serán en régimen de protección pública (VPO). En Arona, el Plan Canario de Vivienda, NO prevé vivienda pública para este año en Arona.