PORTFOLIO - ATAAM

Page 1

PORTFOLIO

collection éditée de travaux réalisés à travers mon parcours universitaire et professionnel; reflétant mon style et mes intentions architecturales

MARIYA ATANASOVA

architecte OAQ

projets séléctionnés 2008-2018

PORTFOLIO

Le projet est situé dans le village rural de Montgiscard, 20 km au sud de Toulouse. Le site choisi est localisé à proximité de la place publique et de l’église, le point central du village pivotant autour duquel sont distribués des poches résidentiels.

Le but principal du design est la connexion de l’école avec le paysage environnant. D’un cote la connexion est visuelle, les enfants peuvent observer les collines et vallées du paysage et de l’autre l’espace vert devient un terrain de jeu.

Montgiscard, Toulouse, France_projet de troisième année, en équipe A. Pechberty KINDERGARTEN
_ SITE
plan RDC
Schéma oganisation volumétries principale
Entrée

_IMPLANTATION

Suite à l’analyse du contexte urbain, on remarque une tension entre les flux de personnes provenant de la rue principale en avant et la rue arrière. Dans cet axe de tension, le bâtiment s’implantesen suivant la logique d’un accès double reliant les deux flux.

_PROGRAMME

L’école est dédiée aux enfants de 2 à 6 ans et il était important de concevoir toutes les espaces sur un seul plan horizontal. Le programme a été subdivisé et groupé en 3 volumes distinct : un qui abrite la direction, l’autre la cafétéria et le dernier les salles de classes/ ateliers. Les 3 volumes sont connectés par la salle polyvalente. L’application d’un matériau chalereux (revêtement en bois) renforce l’importance de cet espace dédié à l’encontre et au jeu.

Élévation Est Élévation Nord
Cour intérieure/Entrée secondaire

_SITE

Le bassin Peel : un endroit unique à Montréal qui nous interpelle avec son détachement et sa propulsion vers l’étendue de l’eau. Les bruits ambiants habitent le site et le ravivent moment après moment, on entend l’autoroute, les passages du train, les usines, le vent.

Présentement deux empreinte parallèles existent de chaque côté du quai, et s’étalent d’un bout à l’autre.

L’idée du projet est de concevoir un endroit dans la ville où on échappe à notre quotidien soit par le biais du silence soit par le biais du bruit. Le projet relie deux programmes : celui d’un centre de méditation et des espaces de performances musicales; un espace d’introversion juxtaposé à un espace de rencontre et d’échange.

D I VERT_silence
PLAN CONCEPTUEL régularité vs. déplacement
et sonorité
_PROGRAMME
Usage mixe, Espace urbain de méditation et de création musicale, Montréal Projet final, individuel M. Arch

_COUPE CONCEPTUELLE

simple, renfermé, contenu, statique, limité, précis, filtré vs.

ouvert, dispersé, exposé, déplacé, dynamique, déconnecté, instable

_TRAME VS. IRRÉGULARITÉ

La trame régulière gère l’ensemble de la partie dédié au silence, un rythme régulier s’installe dans les espaces. Le programme consacré au repos de l’esprit inclut des salles de yoga, des espaces méditatifs, une bibliothèque et un salon de thé et des cellules de méditation.

Ces espaces évoquent par leur qualité architecturale la simplicité, l’isolement, le détachement.

Quelques vides programmatiques marquent le passage entre les

seuils d’intimité. Ces vides évoquent la qualité sensorielle du silence.

En occurrence les espaces musicaux brisent la trame régulière, les éléments structuraux se décalent les uns aux autres en créant une irrégularité dans la séquence structurale. Les planchers sont des plates-formes en flottement, décalés les uns aux autres avec des hauteurs variables qui propulsent une sensation ludique.

Formellement le projet est composé de deux entités de forme régulière qui se rencontrent avec un décalage. Leur jonction génère la distinction entre les deux parties et l’entrée de la partie silence. Pour la souligner le quai est scindé à l’endroit de la rencontre, l’eau constitue aussi un des vides programmatiques qui soude les deux entités.

ÉLÉVATION OUEST ÉLÉVATION NORD
ÉLÉVATION EST PLAN D’IMPLANTATION

SCHÉMA PASSERELLE - ÉLÉMENT CONNECTEUR

MAQUETTE CONCEPTUELLE

JONCTION BRUIT ET SILENCE
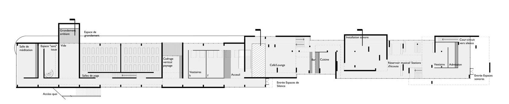
PLAN DEUXIÈME ÉTAGE PLAN REZ-DE-CHAUSSÉE 1 1 2 2 3 3 4 4 5 6 7 8 9 13 10 11 12
1
3
4 Salle
5 Vide 3 -
6 Vestiaire 7 Accueil 8 Vide 4 -
9 Café 10 Resto/bar 11
12
13
2
4
6
7
5 6 6 7
1 Salle de méditation 2 Vide
- lumière
Vide 2 - son
de yoga
vue
eau
Espace installation
Réservoir musical
Accueil 1 Salon de thé
Terrasse 3 Salle de lecture
Cellule de méditation 5 DJ lounge
Atelier de musique
Salle de spéctacle

1 Terrasse avec quai flottant

2 Vide de méditation - lumière

3 Salon de thé

4 Vide de méditation - son

5 Terrasse extérieure

6 Vide de méditation - vue

7 Espace de lecture

8 Vestiaire

9 Cellule de méditation

10 Entrée secondaire

11 Café

12 Soundscape 13 Atelier de musique
14 Réservoir musical 15 Entrée principale /1
16 Espace de performance
TERRASSE ET QUAI FLOTTANT 1 3 7 9 2 8 11 14 15 12 13 16 6 4
COUPE LONGITUDINALE DE BÂTIMENT

COUPE TRANSVERSALE - VIDE 3

COUPE TRANSVERSALE - JONCTION

COUPE TRANSVERSALE - BRUIT

CELLULE DE MÉDITATION

fournir dessins d'atelier pour méthode d'installation, solinage et encadrement de la tôle ondulée pour approbation par l'architecte

1'-1 1 8 8'-5 1 8 1'-8" 8'-5" 4'-11 1 4 23'-5 1 2 ±110-1" PLANCHER DEUXIÈME ÉTAGE 100'-0" PLANCHER RDC ±121'-0" DESSUS BRIQUE ±123'-5" DESSUS PARAPET 4658 Hotel de ville 4654 Hotel de ville ±108'-5" DESSOUS PLAFOND ±118'-6 1/8" DESSUS PLAFOND B A D C B.2 22'-7" 7'-8" DESSUS PARAPET PLANCHER RDC 103 balcon arrière 1'-2" 1'-10 1 2 5'-5 1 2 3 4 nouvelle fênetre nouvelles porte solin métallique sortie hotte de cuisine balcon existant 203 3'-33 8 O.B. 3'-2" 74'-78 soffite en vynil à remplacer par planches enboufftés en cèdre revêtement en tôle métallique galvanisé 02 A.301 1'-8 3 8 DESSOUS PLAFOND HAUT ±118'-6 1/8" DESSUS PLAFOND ±110'-6 3/8" PLANCHER SOUFFLÉ 2ÈME A13-459 POUR CONSTRUCTION 4654 rue Hôtel-de-ville Renée Mailloux L'ENTREPRENEUR EST TENU DE VÉRIFIER TOUTES LES TOUTES ERREURS OU OMISSIONS DEVRONT ÊTRE SIGNALÉS PROFESSIONNEL CONCERNÉ AVANT DE PROCÉDER AUX AUCUNE DIMENSION NE DEVRA ÊTRE MESURÉE DIRECTEMENT CE DESSIN NE POURRA ÊTRE UTILISÉ POUR FINS DE CONSTRUCTION QU'APRÈS AVOIR ÉTÉ DÛMENT APPROUVÉ PAR LE PROFESSIONNEL TOUS LES PLANS, DESSINS ET DEVIS DEMEURENT LA SMITH VIGEANT ARCHITECTES ET NE SAURAIENT ÊTRE TOUS LES TRAVAUX ET AMÉNAGEMENTS DOIVENT ÊTRE AUX CODES EN VIGUEUR, ENTRE AUTRES, LE CODE NATIONAL BÂTIMENT 2005 ET TOUS LES RÉGLEMENTS ET DÉROGATIONS *LES DIMENSIONS MONTRÉES SUR LES PLANS SONT D'INFORMATION SEULEMENT ET DOIVENT ÊTRE VÉRIFIÉES *POUR L'EMPLACEMENT EXACTE DE TOUS LES ÉLÉMENTS ET ÉLECTRIQUES SE RÉFÉRER AUX PLANS DES INGÉNIEURS. INGÉNIEURS ARCHITECTES TITRE DU PROJET: CLIENT: TITRE DU DESSIN: ÉCHELLE NO PROJET DESSINÉ PAR VÉRIFIÉ PAR DATE NO SMITH VIGEANT architectes 5605 av. de Gaspé, bureau 601, Montréal (Qc) t: 514 844 7414 f: 514 844 7222 e: info@smithvigeant.com Ian Huxtable 2014-11-07 MA AM NB SV faconstruction@hotmail.ca 1/4" = 1'-0" Élévations extérieures A.200 Élévation avant 1/4' = 1'-0" A.200 01 Élévation arrère latérale 1/4' = 1'-0" A.200 03 note:
22'-7" 1'-8 3 8 passage mitoyen 4658 Hotel de ville 4654 Hotel de ville 6'-10 1 2 2'-11 5 8 2'-2 1 2 4'-2 5 8 3'-5 1 4 B D A C B.2 1'-2 1 8 22'-7" 7'-8" ±122'-7" DESSUS PARAPET 100'-0" PLANCHER RDC 103 balcon arrière 1'-2" 1'-10 1 2 5'-5 1 2 3 4 nouvelle fênetre nouvelles porte solin métallique sortie hotte de cuisine balcon existant 203 3'-33 8 O.B. 3'-2" 74'-78 soffite en vynil remplacer par planches enboufftés en cèdre revêtement en tôle métallique galvanisé 02 A.301 1'-8 3 8 ±108'-10" DESSOUS PLAFOND HAUT ±118'-6 1/8" DESSUS PLAFOND ±110'-6 3/8" PLANCHER SOUFFLÉ 2ÈME Élévation arrère 1/4' = 1'-0" A.200 02 Élévation arrère latérale 1/4' = 1'-0" A.200 03 2 2 RÉSIDENCE HÔTEL DE
sva Rénovation Duplex, Montréal ,Québec | projet individuel, supervision
Vigeant Schémas démo Élévation arrière Élévation avant Plan RDC 46'-4 1 2 4'-8" 14'-4 1 2 " 3'-0 1 4 1'-6" 58'-0 8 36'-2"4 O.B. 3'-2" 35'-10 1 4 39'-11 4 16'-11 8 " 3'-3 3 8 O.B. A 121'-3 8 14'-4 8 13'-0 2 " 5'-3 3 8 11'-5 7 8 23'-9 7 8 12'-0" 16'-11" 75 8 " 57'-11 8 16'-2 4 33'-0 4 12'-10 4 74 8 53'-3 8 O.B. 7" = = 36'-0"4 O.B. 310 8 48'-3 1 4 5" 6 1 2 3'-2" E.H. B 2 C 1 3 4 C A B 1'-5 7 8 1'-9" 2'-1" 33'-0 4 type hydrofuge en bois 1 1/2'' x 3 1/2'' @ 24'' c/c type hydrofuge HYDROFUGE DOUCHE époxy béton léger 5/8'' en bois 1 1/2'' x 3 1/2'' @ 24'' c/c type hydrofuge 5" 4 1/2" BAIN époxy béton léger 5/8'' en bois 1 1/2'' x 3 1/2'' @ 24'' c/c 5" HYDROFUGE SOUFFLÉ type hydrofuge en bois 1 1/2'' x 3 1/2'' @ 24'' c/c en bois 1 1/2'' x 3 1/2'' @ 24'' c/c 8" 36'-1 1 4 D 1'-8 12'-5" 14 8
VILLE
S.
Coupe transversale Coupe longitudinale /1 Coupe longitudinale /2 L-V M-O D M-O A13-459 TEL QUE CONSTRUIT 4654 rue Hôtel-de-ville Renée Mailloux L'ENTREPRENEUR EST TENU DE VÉRIFIER TOUTES LES COTES ET DIMENSIONS. TOUTES ERREURS OU OMISSIONS DEVRONT ÊTRE SIGNALÉS AU PROFESSIONNEL CONCERNÉ AVANT DE PROCÉDER AUX TRAVAUX. AUCUNE DIMENSION NE DEVRA ÊTRE MESURÉE DIRECTEMENT SUR CE DESSIN. CE DESSIN NE POURRA ÊTRE UTILISÉ POUR FINS DE CONSTRUCTION QU'APRÈS AVOIR ÉTÉ DÛMENT APPROUVÉ PAR LE PROFESSIONNEL CONCERNÉ. TOUS LES PLANS, DESSINS ET DEVIS DEMEURENT LA PROPRIÉTÉ DE SMITH VIGEANT ARCHITECTES ET NE SAURAIENT ÊTRE UTILISÉS POUR TOUT AUTRE PROJET. TOUS LES TRAVAUX ET AMÉNAGEMENTS DOIVENT ÊTRE CONFORMES AUX CODES EN VIGUEUR, ENTRE AUTRES, LE CODE NATIONAL DU BÂTIMENT 2005 ET TOUS LES RÉGLEMENTS ET DÉROGATIONS ÉMIS PAR LA VILLE CONCERNÉE *LES DIMENSIONS MONTRÉES SUR LES PLANS SONT TITRE D'INFORMATION SEULEMENT ET DOIVENT ÊTRE VÉRIFIÉES SUR PLACE *POUR L'EMPLACEMENT EXACTE DE TOUS LES ÉLÉMENTS MÉCANIQUES ET ÉLECTRIQUES SE RÉFÉRER AUX PLANS DES INGÉNIEURS. NOTES GÉNÉRALES ARCHITECTES TITRE DU PROJET: CLIENT: TITRE DU DESSIN: ÉCHELLE NO PROJET DESSINÉ PAR VÉRIFIÉ PAR DATE NO FEUILLE NO PAR SMITH VIGEANT architectes 5605 av. de Gaspé, bureau 601, Montréal (Qc) H2T 2A4 t: 514 844 7414 f: 514 844 7222 e: info@smithvigeant.com Ian Huxtable 2015-11-12 MA AM NB SV 01 29.08.2014 pour coordination SV 02 22.09.2014 pour construction SV 03 10.10.2014 pour construction- revision 1 SV 04 07.11.2014 pour construction- revision 2 SV 05 23.11.2015 tel que construit SV ENTREPRENEURS FA CONSTRUCTION INC 2 L-V M-O A D M-O A13-459 TEL QUE CONSTRUIT 4654 rue Hôtel-de-ville Renée Mailloux L'ENTREPRENEUR EST TENU DE VÉRIFIER TOUTES LES COTES ET DIMENSIONS. TOUTES ERREURS OU OMISSIONS DEVRONT ÊTRE SIGNALÉS AU PROFESSIONNEL CONCERNÉ AVANT DE PROCÉDER AUX TRAVAUX. AUCUNE DIMENSION NE DEVRA ÊTRE MESURÉE DIRECTEMENT SUR CE DESSIN. CE DESSIN NE POURRA ÊTRE UTILISÉ POUR FINS DE CONSTRUCTION QU'APRÈS AVOIR ÉTÉ DÛMENT APPROUVÉ PAR LE PROFESSIONNEL CONCERNÉ. TOUS LES PLANS, DESSINS ET DEVIS DEMEURENT LA PROPRIÉTÉ DE SMITH VIGEANT ARCHITECTES ET NE SAURAIENT ÊTRE UTILISÉS POUR TOUT AUTRE PROJET. TOUS LES TRAVAUX ET AMÉNAGEMENTS DOIVENT ÊTRE CONFORMES AUX CODES EN VIGUEUR, ENTRE AUTRES, LE CODE NATIONAL DU BÂTIMENT 2005 ET TOUS LES RÉGLEMENTS ET DÉROGATIONS ÉMIS PAR LA VILLE CONCERNÉE *LES DIMENSIONS MONTRÉES SUR LES PLANS SONT À TITRE D'INFORMATION SEULEMENT ET DOIVENT ÊTRE VÉRIFIÉES SUR PLACE *POUR L'EMPLACEMENT EXACTE DE TOUS LES ÉLÉMENTS MÉCANIQUES ET ÉLECTRIQUES SE RÉFÉRER AUX PLANS DES INGÉNIEURS. NOTES GÉNÉRALES ARCHITECTES TITRE DU PROJET: CLIENT: TITRE DU DESSIN: ÉCHELLE NO PROJET DESSINÉ PAR VÉRIFIÉ PAR DATE NO FEUILLE NO PAR SMITH VIGEANT architectes 5605 av. de Gaspé, bureau 601, Montréal (Qc) H2T 2A4 t: 514 844 7414 f: 514 844 7222 e: info@smithvigeant.com Ian Huxtable 2015-11-12 MA AM NB SV 01 29.08.2014 pour coordination SV 02 22.09.2014 pour construction SV 03 10.10.2014 pour construction- revision SV 04 07.11.2014 pour construction- revision SV 05 23.11.2015 tel que construit SV ENTREPRENEURS FA CONSTRUCTION INC 2 D M-O 2

acier hot rolled \mur \mobilier sur mesure

contreplaqué russe \mobilier sur mesure

ardoise de brésil \entrée

noyer naturel \planchers de bois

béton \sdb planchers \mobilier sur mesure

béton époxy \sdb murs

Coupe longitudinale Matérialité Plan 2E 3'-0 1 4 36'-2 4 O.B. 3'-2" 39'-11 4 16'-11 8 3'-3 3 8 " O.B. A 121'-3 8 23'-9 7 8 " 12'-0" 16'-11" 75 8 74 7" 36'-0 4 O.B. 310 8 6 1 2 " 3'-2" E.H. B C 3 4 C A B 1'-5 7 8 1'-9" 2'-1" 33'-0 4 4 1/2" 5" 4 1/2" 8" E.B. 4'-7" 17'-10 8 2'-9 3 4 310'-5 8 " 9'-10" 19'-4" 15'-1 1 4 " 4'-5 7 8 10'-2 3 4 6'-9 5 8 36'-1 1 4 721'-4 8 46'-4 1 4 " 8'-5" 11'-11 1 4 11'-11 5 8 A 1 4 D eq eq eq 11'-8 4 112'-3 8 79'-11 8 9'-5" 310'-5 8 " 2'-6 1 8 2'-11" 3'-2 1 8 39 8 32'-10 4 " 56'-3 8 12'-5" 1'-1" 1'-1" 48'-6 1 4 13'-3 2 O.B. 2'-10" 13'-8 4 14 8 " 75 8 " 722'-2 8 39'-1 4 O.B. B 2 B.2 5'-5 3 8 710'-7 8 " 19'-7 2 4'-7 1 4 2'-11" 3 12'-5 2 E.H. E.H. PLANCHER ,fini époxy à séchage uv Sikafloor Duo Vfs bois franc tel que collection tendance, naturel bois franc existant, et huilé brésil, format 8''x24'' montauk black charbon

Ubisoft

_développeur de jeux vidéo

_2600 employés à Montréal _dispersés sur plusieurs sites: volonté de se ressembler

_une grande famille

_studios de production - élément clé pour la survie de la compagnie

_syndrome “Assassin”

Programme

_espace de travail 450 employés

_60 000 pi2

_salle polyvalente 300 personnes

_espace “offsite”

_salles de rencontre _espaces informels

_war rooms

_studio de son _lounge, bistro, café

Critères de design

_rayonnement de la marque Ubisoft _se décloisonner _ludique, univers des jeux _stimuler l’effervescence créative _espaces adaptables _intégrer la végétation _thérapie de la couleur

entrée

AMÉNAGEMENT UBISOFT
Aménagement de bureau, Montréal ,Quèbec | en équipe avec K.Y. et collaboration Ubisoft
sva
connexion verticale entre les aires de bureaux
14 15 16 17 18 19 20 21 22 24' 0" 24' 0" 24' 0" 24' 0" 24' 0" 24' 0" 24' 0" 24' 0" B C D E F G A 14 15 16 17 18 19 20 21 22 1016 SALLE PRÉSENTATION 1, 250 PERS. 1017RANGEMENT 1018ZONE INFORMELLE 1020CONFÉRENCE @ PERS. 1021CONFÉRENCE @ PERS. 1022 CONFÉRENCE @ PERS. CL.0 00 23 9'-0" F.1 Dessiné Vérifié GSP GSP PHASE U SO M 5445 de Gaspé, 10e Montréal, QC H2T 3B2 moins d'indications contraire, sont pas émis pour construction. de ces documents toute utilisation que ceux mentionnés ci-dessus pour dans cartouche sont interdites. L'entrepreneur général seul sera responsable 09/09/2016Pour Construction JUIN 2016 A-110 1/8" 1'-0" ?.?. ?.?. 10E ÉTAGE PLAN D'AMÉNAGEMENT PLAN AMÉNAGEMENT 10e ÉTAGE 1/8" = 1'-0" A-110 A-022 A-022 2 802 14 15 16 17 18 19 20 21 22 23 25 26 27 C D G 24 14 15 16 17 18 19 20 21 22 23 25 26 27 24 B C D E F G A E.H. A-700 A-701 A-701 2 A-1500 ESCALIER A-800 A-020 2 A-024 2 A-801 espace informel et salle de réunion circulation aire de bureau

café/lounge - espace de rencontre espace informel et salle de réunion

sva Développement Résidentiel, Montréal ,Québec | en équipe avec A. Malderis D.Thériault MUR VÉGÉTAL
Vue d’ensemble Plan d’implantation
Perspective rue Henri-Julien
Élévation rue Saint-Viateur Étude des vues vers le Monastère des Carmélites Coupe d’ensemble 1(2 LE JARDIN DES CARMÉLITES ÉTUDE DES VUES _ ALLÉE TEURAVI-TSAIN _ BÂTIMENT A_SECTION eA3_2 étage B A1 A2 A3 x ueV possible vers le jardin ne tenant pas compte de l’obst -uc tion possible des arbres existants à l’intérieur du jardin LÉGENDE: Zone obst uée par le mur de rerpie vis-à-vis le bâtiment projeté (Ne tient pas compte des arbres et de la végétation en place dans le jardin) venueA Henri Julien A venue du Ca r mel Allée SaintViateur étages supérieures en retrait étages supérieures en retrait Mur vert Allée Alma Rue Henri-Julien Zone protégée Restriction de vues 4.2 m

Coupe A1

rdc___maisonette

2e - 3e___logement sur 2 niveaux, traversant

Coupe A2

rdc - 1e___maisonette sur 2 niveaux

2e - 3e___logement traversant sur 2 niveau

Coupe B1

rdc___maisonette

2e____logement (loft + 1cc)

3e____logement (loft + 1cc)

4e____logement (loft + 1cc)

Coupe B2

rdc - 1e___maisonette sur 2 niveaux

2e - 3e___logement 2cc

3e - 4e___logement traversant sur 2 niveau

SMITH VIGEANT architectes t. 514 844 7414 514 844 7222 no. date échelle 5605 avenue de Gaspé, bureau 601, Mtl.Qué. H2T 2A4 info@smithvigeant.com A12-407 Développement résidentiel Henri-Julien 1:200 2015.12.15 avis préliminaire pour discussion Typologies Volume A
SMITH VIGEANT architectes t. 514 844 7414 514 844 7222 no. date échelle 5605 avenue de Gaspé, bureau 601, Mtl.Qué. H2T 2A4 info@smithvigeant.com A12-407 Développement résidentiel Henri-Julien 1:200 2015.12.15 avis préliminaire pour discussion Typologies N 7160 5630 6120 6680 5040 5040 6340 8175 5660 6500 5330 6500 6340 6570 7485 7160 5630 6120 8880 7500 7500 7500 7500 7500 7500 7500 7500 7500 6500 5330 6500 5040 5040 5040 5040 5040 5040 5040 5040 RUE HENRI-JULIEN NIVEAU RDC 30 unités de 90 unités ALLÉE ALMA E.H E.H E.H E.H E.H E.H E.H E.H terrasse terrasse terrasse terrasse terrasse terrasse E.H E.H terrasse E.H terrasse E.H E.H terrasse E.H. E.H. E.H. E.H. E.H. 1500 41740 15000 SMITH VIGEANT architectes 514 844 7414 514 844 7222 no. date échelle 5605 avenue de Gaspé, bureau 601, Mtl.Qué. H2T 2A4 info@smithvigeant.com A12-407 Développement résidentiel Henri-Julien 1:300 2015.12.15 pour discussion plan rdc option 2 LÉGENDE ARBRES GROS CALIBRE SURFACE VÉGÉTALE SENTIER PIÉTONNIER ARBRES CALIBRE MOYEN PLANTATION FUTURE SUR TERRAIN DE LA VILLE 25 unités de 90 unités N 7160 5630 6120 6680 5040 5040 6340 8175 5660 6500 5330 6500 6340 6570 7485 7160 5630 6120 8880 7500 7500 7500 7500 7500 7500 7500 7500 7500 6500 5330 6500 5040 5040 5040 5040 5040 5040 5040 5040 E.B. chute 6610 1500 41240 15500 SMITH VIGEANT architectes 514 844 7414 514 844 7222 no. date échelle 5605 avenue de Gaspé, bureau 601, Mtl.Qué. H2T 2A4 info@smithvigeant.com A12-407 Développement résidentiel Henri-Julien 1:300 2015.12.15 avis préliminaire pour discussion plan 3e - - option 2 N 7160 5630 6120 6680 5040 5040 6340 8175 5660 6500 5330 6500 6340 6570 7485 7160 5630 6120 8880 7500 7500 7500 7500 7500 7500 7500 7500 7500 6500 5330 6500 5040 5040 5040 5040 5040 5040 5040 5040 NIVEAU 2 29 unités de 90 unités terrasse terrasse terrasse terrasse terrasse terrasse terrasse terrasse terrasse terrasse E.H chute 1500 41240 15500 610 SMITH VIGEANT architectes 514 844 7414 514 844 7222 no. date échelle 5605 avenue de Gaspé, bureau 601, Mtl.Qué. H2T 2A4 info@smithvigeant.com A12-407 Développement résidentiel Henri-Julien 1:300 2015.12.15 avis préliminaire pour discussion plan 2e - option 2 plan
plan rdc
Volume B
2e
plan 3e

unité A - rez-de-chaussée

unité B - deuxième étage

unité B - troisième étage

chambre 3 sdb 3 w-in sdb 2 chambre 1 chambre 2 e.b. sdb cuisine terrasse séjour w-in e.h. e.b. terrasse chambre 1 sdb chambre 2 entree cuisine sejour e.h. e.h.

mont-royal

rue

axe peel

. Axe traversant . Consolidation de l’Axe Peel . Lieu collectif où cohabitent

AXE MONTAGNE - FLEUVE agit comme trait d’union entre le fleuve et la montagne consolide l’aboutissement d’un axe iconique à montréal, la rue Peel TOIT-TERRASSES VOIE FERRÉE PROPOSITION D’ÉTENDRE LA PROMENADE SMITH
ÎLOT 10 rue PEEL
rue WELLINGTON rueSMITH
bassins PEEL rue SHANNON
TOIT VERT + BASILAIRE JARDIN SUSPENDU ENTRÉE RÉSIDENTIELLE
développement résidentiel,
Peel, Montréal MARYROBERTîlotII condominium de luxe
projet condos MaryRoberts bassin Peel

En plein cœur du développement, la cour interne devient une oasis de fraicheur, qui permet aux résidents de vivre et de contempler cet espace verdoyant.

JARDIN SUSPENDU Situé au coeur du niveau 2
A1 B1 C1 D1 E1 F1 G1 H1 1 4 5 6 7 8 9 10 11 B C D E F J 1A 2A 3A 4A 3 2 H C2 G 5A 6A K A COURSIVE 1.5m COURSIVE 1.5m 631 SB5 758 SA2 754 SB3 752 SB2 701 PB1 702 PB2 704 PA1 705 PB3 707 PA3 712 PA1 709 PA5.1 710 PA1 708 PS1 703 PA5 620 SB1 622 SA1 757 SA1 626 SA1 628 SS2 632 SB4 625 SS1 G.5 G.7 J.9 C16 C17 B.3 4.2 2.7 706 PA2 711 PB4 714 PA4 753 SA1 Devimco District Griffin MARYROBERT 08/31/17 N 0 1:500 510 20 40m A1 B1 C1 D1 E1 F1 G1 H1 1 4 5 6 7 8 9 10 11 B C D E F 1A 2A 3A 4A 3 2 H C2 G 5A 6A K A G.5 G.7 J.9 222 SPA 212 GYM JARDIN COMMUN C16 C17 B.3 4.2 2.7 SPA EXT. 225 BB3.1 223 BA2.4 221 BA2.5 219 BA2.4 217 BB5 215 BA6.1 213 BA3.1 211 BB4 227 BA8 229 BB6 231 SA5.6 228 BA1.3 230 BA11 232 BA1 233 BB3 234 BA1 236 BB2.1 235 BS2 237 BA3.2 239 BC1 241 BA2.1 243 BA2 245 BA10 247 BA9 249 BA10 251 BB7 201 BB1 203 BA3 205 BA4 209 BA6 208 BA1.2 206 BA1.1 202 BB2 207 BA5 Devimco District Griffin | MARYROBERT 24 août 2017 N 0 1:500 510 20 40m A1 B1 C1 D1 E1 F1 G1 H1 1 4 5 6 7 8 9 10 11 B C D E F 1A 2A 3A 4A 3 2 H C2 G 5A 6A K A 11 ZONE BBQ 10 ZONE FOYER UNITÉS DE REFROIDISSEMENT BASSIN 12 PISCINE 13 PISCINE 14 BASSIN ZONE FOYER G.5 G.7 J.9 C16 C17 B.3 4.2 2.7 N 0 1:500 510 PLAN 2ZONE FOYER Non fermée 3BASSIN 191 ft² 6UNITÉS DE REFROIDISSEMENT 3561 ft² 10ZONE FOYER Non fermée 11ZONE BBQ Non fermée 12PISCINE Non fermée 13PISCINE Non fermée 14BASSIN 76 ft² 253DOUCHES EXT. Non fermée 254DOUCHES EXT. Non fermée 256BAIN FROID 75 ft² 1126ZONE BBQ Non fermée
2
plan niveau
plan d’étage type plan toit-terrasse commun

spécifications techniques réelles des et/ou des unités, veuillez vous à un représentant des ventes floor plan is provided for information purposes only. For detailed plans of the floors outlined and to obtain the technical specifications of the various floors please refer to a sales representative.

Les dimensions, superficies, caractéristiques, détails et matériaux des aires et des pièces sont approximatifs et sujets à des modifications sans préavis afin de respecter les conditions applicables à l’édifice ou au site et les exigences municipales, structurales et/ou architecturales ainsi que celles du vendeur. La superficie et l’emplacement des terrasses peuvent varier d’un étage à l’autre. Le mobilier montré l’est à titre ndicatif seulement. La superficie brute est calculée en incluant la moitié des murs mitoyens, le mur extérieur et le mur du corridor. L’illustration est un concept artistique qui peut-être sujet à erreurs et omissions. Les prix énoncés sont sujets à changements sans préavis. / All areas and room dimensions, specifications, details and materials are approximate and subject to change without notice in order to comply with building or site conditions and municipal, structural and/or architectural requirements as well as the seller’s conditions. Areas and locations of the terraces may vary from level to level. The furniture is shown as an example only. The gross area indicated includes half the common walls, the exterior wall and the corridor wall. Plan illustration is an artist concept that might be subject to error and omissions Condo prices may vary without notice.

APPROCHE CONCEPTUELLE

Vise à mettre en relief le paysage montréalais où cohabitent centre ville et montagne. La tectonique se résume en deux jeux de surfaces ; le lisse et le poreux.

LE LISSE

Faces extérieures de l’îlot, renvoient à la matérialité et à l’image de la ville, aluminium peint et verre «flush».

LE POREUX

et sujets à des exigences municipales, rasses peuvent varier d’un e en incluant la moitié des murs être sujet à erreurs et omissions. ns, details and materials site conditions and municipal, structural ces may vary from level to lls, the exterior wall and Condo prices may vary

Faces intérieures de l’îlot, renvoie à l’image de la montagne, garde-corps sérigraphiés à motif organique.

LA LOGGIA vs. COURSIVE

La loggia est un dispositif attribué aux faces lisses de l’ilôt. Espace extérieur encaissé, la loggia s’adresse à la ville.

La coursive s’inscrit sur toutes les faces intérieures de l’ilôt. Ellese déploie à l’horizontale et supporte le jardin suspendu avec ses balustrades de verre sérigraphié avec un motif végétal.

7' - 9" 8' - 8" 11' - 5" 16' - 0" 7' - 8" Cuisine / Kitchen Salle de bain / Bathroom Balcon Balcony ximatifs
LA LOGGIA vs. COURSIVE
X 9' - 8" 11' - 5" X 8' - 9" 5' - 9" X 11' - 1" 9' - 4" X 13' - 0" 11' - 5" X 22' - 1" 4' - 10" Chambre Bedroom Séjour et salle à manger Living room and dining area Cuisine / Kitchen Salle de bain Bathroom Balcon / Balcony plan d'étage est fourni à titre informatif seulement. Pour consulter plans détaillés des étages mentionnées ci-joint et obtenir les
LISSE vs. POREUX
N Ilot 11 RUE PEEL 08/04/17 5 À 7 11 À 14 15 À 20 3 À 4 8 À 10 aménagement
aménagement
condo 1 chambre
condo 3 chambres
L’OBJET SIGNAL VOLUME HAUT LA LENTILLE PAROIS CINÉTIQUE L’HORIZON LE SOCLE ASSISE
schéma conceptuel - l’objet la lentille
maquette- intégration urbaine - socle et objet intégration paysagère - topographie intégration urbaine - signal urban Laval, 11 000m2, statut: en construction L’APPEL station de gendarmerie
l’appel - signal sur la rue Curée Labelle

ESCALIER DE COMMUNICATION

JARDIN SUSPENDU

façade cinétique - mouvement sur la rue Curée Labelle

FUTUR AGRANDISSEMENT

plan d’implantation

Situé au coeur du niveau 2
coupe longitudinale

animation - circulation verticale

1 B 4 C E F G J K M O Q S 3 5 1.1 3.1 2.1 R 4000 7375 7375 7375 7375 6975 11525 8500 8500 8500 8500 8500 8500 8500 8500 8500 13347 4425 2575 7115 1585 5300 7000 137847 3726 1200 1200 1615 2524                                         766 1000 vue intérieure - entrée principale transparence et mur accents
plan aménagement rdc - acceuil public vers la rue; circulation axiale et latérale; salle de tir au fond

plan 2e_cafétéria / salles de rencontre plan 3e_centrale 911 plan4e_direction

1 B 4 C D E F G 2 3 5 A 1.1 3.1 2.1 7000 7115 6885 7000 NIV. 2 4000 7375 7375 7375 7375 33500                     1690 1 B C D E G 2 3 5 A 1.1 4000 7375 7375 7375 7375 7000 7115 6885 7000 28000 33500 2880 402 285 2740 2740 2740                             B C D F A 4000 7375 7375 7375 7375 33500 3190 1554                     12251 vue intérieure - axe de circulation / murs accénts

la nature _prime _au coeur du quartier

concept- verdissement radical

la topographie espace tampon

le verger

carrefour principalintersection nature et urbanité

le carrefour urbain

la rue et son parvis

la forêt le pré fleuri agriculture urbaine

la forêt

le parc riverrain

MOTEURS DE CONCEPTION - POROSITÉ ET CIRCULATIONS MASTERPLAN stratégies de verdissement
AFFINITI masterplan
Mont Saitn Bruno, planning, éco-quartier

carrefour principalintersection nature et urbanité

CHAMP FORÊT URBAIN

schéma conceptuel - l’objet

VERDISSEMENT RADICAL TYPOLOGIES ET ÉCHELLE URBAINE
pré-fleuri -
de divertissement et agriculture urbaine
- promenade en nature COUPE TRANSVERSALE - EST-OUEST - PRINCIPES DE RÉSILIENCE
Le
axe
Le verger
CONCEPT - ARCHITECTURAL
La rue - promenade urbaine et artère commerciale
CONCEPT ARCHITECTURAL

GESTE URBAIN

le plan incliné se déploie pour joindre le Champs de Mars celui-ci vêtu d’un pré-fleuri amène un parcours haptique à travers la place

COMPOSANTES CONCEPTUELLES compétition design urbain,
, Montréal PLACE
LE CHAMPS FLEURI à travers les saisons expérience haptique de la place
Vieux-Port
DES MONTRÉALAISES

LE PARTI - seuils végétales et minérales

C’est ici que le paysage, l’architecture et l’art s’unissent dans un même geste réparateur. La place des Montréalaises transforme un paysage urbain longtemps marqué par une voie rapide en tranchée pour en faire un pré fleuri suspendu, reliant des quartiers déconnectés et leurs légendaires monuments. Disposée sur un plan incliné, le pré est constitué de 21 bouquets de plantations indigènes à explorer à pied, chacun étant aménagé pour représenter une Montréalaise d’influence. Ces bouquets fleuriront au fil de l’année, de façon séquentielle, pour offrir à chaque femme son moment de gloire.

VUE D’ENSEMBLE
GESTE ARCHITECTURAL - itérations optimisation et plasticité une structure porteuse avec langage plastique MIROIR COMMÉMORATIF FORÊT SUD STATION CHAMPS DE MARS FORÊT NORD LE PRÉ FLEURI OEUVRE D’ART concept de commémoration par Angela Silver OEUVRE D’ART intégration dans la place urbaine reflète à la fois la ville et les noms des montréalaise qui ont contribué à son développement LE PRÉ FLEURI parcours haptique

Turn static files into dynamic content formats.

Create a flipbook
Issuu converts static files into: digital portfolios, online yearbooks, online catalogs, digital photo albums and more. Sign up and create your flipbook.
PORTFOLIO - ATAAM by Mariya Atanasova - Issuu