

REDISEÑO DE LA CAFETERIA
MARINAVELASCO
ARQUITECTURA DE INTERIORES

CALIDAD
premisas de diseño

ESTÉTICA

EFICIENCIA
Seplanteadiferentetexturaenelpisoamodo deunrecorridomásdinámicoqueenvuelva todaeláreadeexposición
seplanteamobiliario deacuerdoaldiseño establecido,queesorgánicoporloquese vuelveintegralalrecorrido.
Lasestructurasselasutilizademanera funcionalyvisualyaqueseenvolveráenforma deárboldondecolgaránlospaneles
esquema de partido

REFERENCIAS A LA S CURVAS CONCABAS CONVEXA PARA ROMPER LOS EJES DE SIMETRIA Y DARLE MAS DINAMISMO

A. MAQUETERIA
A. EXPOSICIÓN
CONEXIÓN DIRECTA FABLAB
A. EXPOSICIÓN
A. ESTUDIO

CIRCULAC ÓN
CERRAR ENTRADAS
CIRCULACIÓN
CERRAR ENTRADAS


ACTIVIDADES Y RECORRIDDO EN BASE A LA CIRCULACIÓN ORGÁNICA DADA
ENTRADA JERARQUIZADA

PLANTATÉCNICA/ DETALLESMATERIAL
ESC.1.100


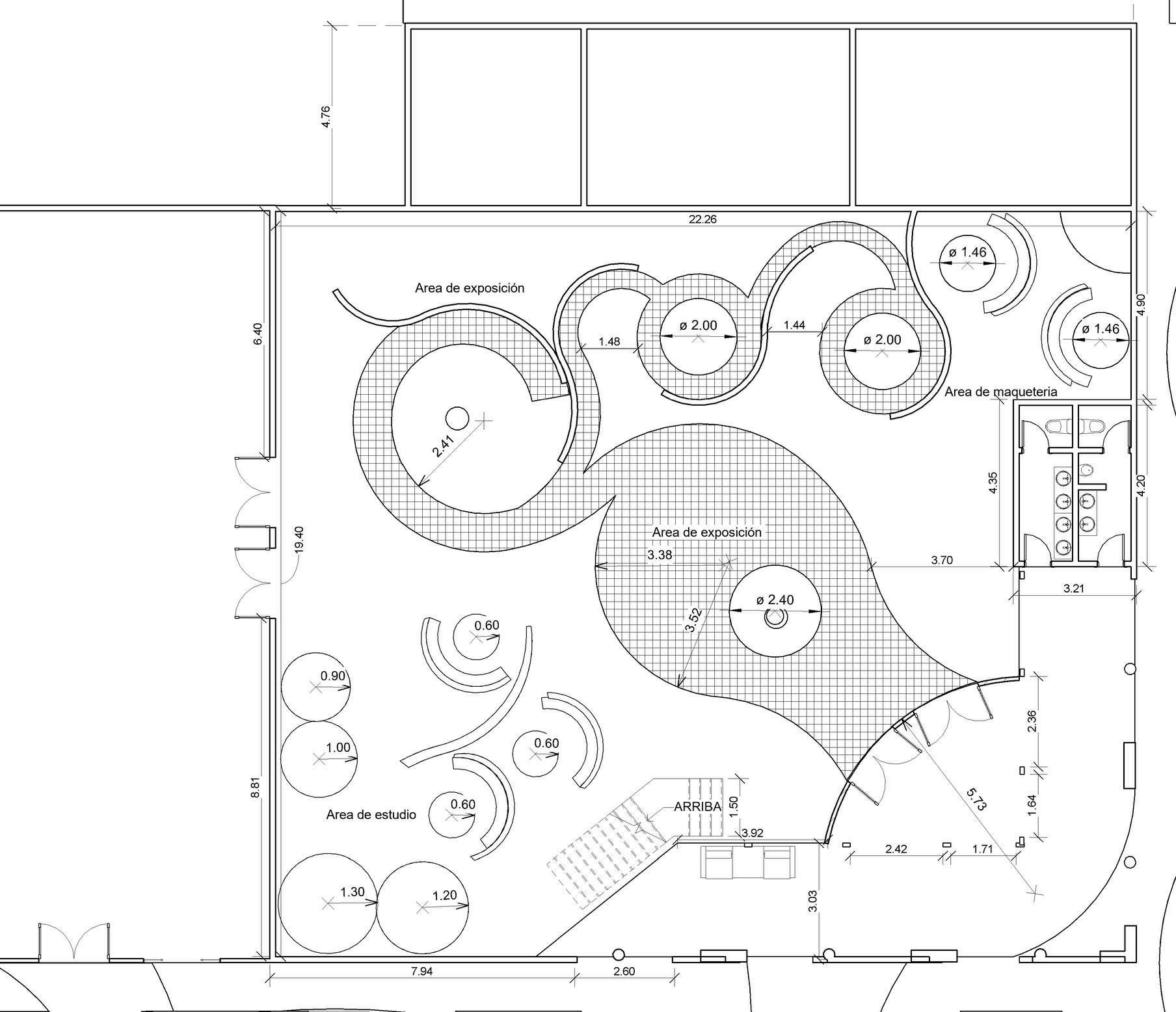
ESPACIO MAQUETERIA
MOBLIARIO MESAS
JERARQUIZACIÓN
GALERIA DE ENTRADA









PLANTATÉCNICA/ DETALLESMATERIAL
ESC.1.100
10/11/23

DESCANSO
ESPACIO CIRCULAR INDIVIDUAL DE DESCANSO
PLANTA DEL MEZZAN NE CON UNA FORMA ORGANICA EN CONECCIÑON AL D SEÑO
ESPACIO DE EXPOSICIÓN EN PLANTA BAJA
MOBILIARIO TIPO ESTANTES
CUBIERTA EN EL RECORRIDO
DETALLE
PLANTAAMBIENTADA/ DETALLESMATERIAL
ESC.1.100
CONECCIÓN AL ACTUAL FABLAB
ESPACIO DE ESTUDIO
MOBILIARIO TIPO CABINA INGRESO ACTUAL AL FABLAB
EN EL RECORRIDO
CUBIERTA EN EL RECORRIDO
CUBIERTA EN EL RECORRIDO

FOCO DE COLOR EN EL PISO QUE GUIA EL RECORRIDO
INGRESO JERARQUIZADO MEDIANTE UN SEMICIRCULO
GALERIA EXTERIOR CUBIERTA
CUBIERTA
MISMA ESTRUCTURA DE ESCALERA
PLANTAAMBIENTADA/ ESC.1.100
AMPLIACIÓN DEL MEZZANINE
APLICACIÓN DE ONDAS

MEZZANINE
GALERIA EXTERIOR CUBIERTA
MOBILIARIO EXPENSAS
VISTA DIRECTA AL AL ÁREA DE EXPOSCIÓN
FOCODECOLOR
ESC.1.100

FACHADASPRINCIPAL
GALERIAEN LAENTRADA
INGRESOFABLAB
ESPACIO DESCANSO
MEZZANINESIN GRANIMPACTO SOLAR
ESPACIO DESCANSO MEZZANNE
ESPACIO DESCANSO
PIELCONTINUA ENLACARA OESTE

PIELCUBRELA CARANORTE
GALERIA
FOCODECOLOR
ÁREA EXPOSICIÓN CON PANELES DE MADERA LAMINADA

ALTA LLEGA HASTA EL CIELO FALSO

MEZZANINNE - ESPACIO DESCANSO
MOBILIARIO TIPO CABINA
ESTRUCTURA
ESTRUCTURA TIPO ÁRBOL DONDE CUELGAN LOS PANELES


MOBILIARIO TIPO CABINA
MEZZANINNE - ESPACIO DESCANSO ESCALERA
ESTRUCTURA






REFERENCIAS
CODIGO






TIPO DE LUZ
LUMINARIA LED EMPOTRADO DIRECTA TABLEROS DE YESO
LUZ LED LINEAL INDIRECTA









MOBILIARIO ESTUDIO
MOBILIARIO REPISAS












DETALLE
PREMISASDEDISEÑO
DISEÑOEXTERIOR CAFETERIA



INTERVENCIONES LIGERAS MOBILIARIO URBANO INTEGRADO

FOCO DE COLOR CONEXIONES
URBANISMO TÁCTICO RECORRIDO
DETALLE
PLANTATÉCNICA/ DETALLESMATERIAL
ESC.1.100
DISEÑOEXTERIOR CAFETERIA

ZONA RECREACIÓN
ZONA RECREACIÓN
RECORRIDO
ZONAEXPOSICIÓN
ZONAEXPOSICIÓN
ZONA RECREACIÓN
CAFETERIA
GIMANSIO
MECATRÓNICA
MOBILIARIO EXPOSICIÓN
MOBILIARIO RECREACIÓN
DETALLE
PLANTAAMBIENTADA/ DETALLESMATERIAL
ESC.1.100
DISEÑOEXTERIOR CAFETERIA

RECORRIDO MOBILIARIODESCANSO
MOBILIARIODESCANSO
MOBILIARIOUSO MÚLTIPLE

DETALLE
PLANTAACTIVIDASDES/ ESC.1.100
DISEÑOEXTERIOR CAFETERIA











GIMNASIO
CAFETERIA
FABLAB
PLANTAPISO ESC.1.100
DISEÑOEXTERIOR CAFETERIA




DETALLEMOBILIARIO
ESC.1.100
DISEÑOEXTERIOR CAFETERIA
CARACTERISTICAS


MOBILIARIODE EXPOSICIÓN
MATERIAL FIERROCON UNACABADOEN PINTURANARANJA



EXISTENDIFERENTESTIPOSDEMOBILIARIOENBASEALASACTIVIDADES, ENELMOBILIARIODE EXPOSICIONESTÁMÁSENFOCADOPARAMOSTRARTODASLASPRESENTACIONESDELOS ESTUDIANTES,SINEMBARGOIGUALCUENTACONESPACIOPARADESCANSAR. ELMOBILIARIODERECREACIÓNESTAENFOCADOENBANCASYALAVEZMESASUNIDASENUNA SOLA.
ELOTROTIPODEMOBILIARIODERECREACIÓNESSOLOBANCAS YALFINALCUENTACONUNRECORRIDOQUECONDUCEDEBLOQUEABLOQUEATRAVESDEUN ESPACIO DEEXPOSICIÓNALAIRELIBRE,CONUNAESTRUCTURAQUEAYUDAALAPROTECCIÓN DELSOL.
SEUTILIZARONLOSCOLORESNARANJAYAZULCONUNPOCODEAMARILLOCOMO REPRESENTACIÓNDELOSCOLORESDELAUNIVERSIDADYCOMOCONSECUENCIADEL URBANISMOTÁCTICOEMPLEADOPARASEPARAESPACIOS.

MOBILIARIODE RECREACIÓN
MATERIAL:FIERROCON UNACABADOEN
PINTURABLANCAAMARILLA



MOBILIARIODE RECREACIÓN-BANCAS




MATERIAL:BLOQUESIN SITUDEHORMIGON ACABADO ENPINTURA BLANCA-AMARILLA


MOBILIARIODERECREACIÓNBANCAS
MATERIAL:BLOQUESINSITU DEHORMIGONACABADO EN PINTURABLANCA




ESTRUCTURADECUBIERTA ONDULADADEHORMIGÓN ARMADOYESTRUCTURADE FIERROACABADOEN NARANJAYAZUL

TIPO4
TIPO2
TIPO3
TIPO5



