PORTAFOLIO

Page 1


MARINA

PROYECTO DE GRADO ❝CASA DE LAS CULTURAS AMAZÓNICAS❞ rIBERALTA, BENI

Roboré, SANTA CRUZ

Samaipata SANTA CRUZ

San José de chiquitos, SANTA CRUZ

zona central, SANTA CRUZ DE LA SIERRA

BOMBEROS FORESTALES

HOSPITAL MATERNO INFANTIL

CENTRO DE INVESTIGACIÓN E INTERPRETACIÓN AGRO-AMBIENTAL

TORRE ALTA DENSIDAD

Concepto

Hace referencia la filosofía, de los pueblos originarios creando un espacio que no solo respete y conserve la cosmovisión de estos pueblos originarios, sino que también promueva una integración profunda y fluida con el paisaje natural, imitando la dinámica del río y la sabiduría ancestral de las malocas que son las viviendas comunales indigenas

Sinónimodevivirenarmoníacon lanaturaleza

Los pueblos

parte de un todo

La naturaleza.

Conexión

Fachada oeste
Fachada este
Fachada norte
Fachada sur

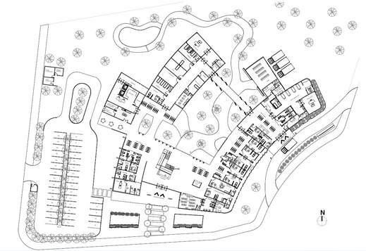
Memoria descriptiva

El proyecto nace ante la necesidad de un equipamiento cultural que se encargue de la preservervación, difusión de las diferentes pubelos amazónicas.

Se resuelve alrededor de 3 puntos clave:

RECORRIDO ELEVACIONES NÚCLEO CENTRAL

EXPERIENCIAS

SENSACIONES

ESPACIOEXTEREIOR

CLIMA/IDENTIDAD

BLOQUESELEVADOS

RAMPA/CUBIERTA

RESPONDE AL ENTORNO

CENTROSAGRAD

ANALOGIADELOS PUEBLOS

ANALOGIADELA MALOCA

CUBIERTAS ELEVEDAS CON ABERTURAS

MAXIMIZACIÓN DE CORRIENTES DE AIRE

SENDEROS INTERPRETATIVOS 9metrosdealtura Recorridoatravésdevisuales

Memoria descriptiva

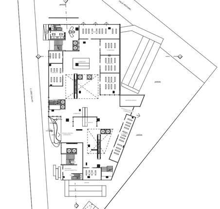
Planta

Se plantea en una planta de un solo nivel, la cual se divide por diferentes áreas: El bloque de exhibición cerrado se encuentra elevada sobre un talud, creando así un recorrido el cuál se convierte en un mirador, gracias a la rampa que llega a su punto más alto en la entrada, lo que permite poder jerarquizarla

Detalle constructivo

El proyecto busca integrar materiales locales, con sistemas constructivos contemporáneos, para poder lograr el equilibrio perfecto, es así que se utiliza madera del lugar con anclajes metálicos que permiten las uniones entre si, de igual manera los muros de tapial con sus respectivos aditivos, para un resultado más perdurable

Corte longitudinal

El proyecto surge ante los grandes focos de incendios que se han presentado los últimos años

responde con una planta que alberga 2 bloques: el área de operaciones y vivienda en la planta superior, el área de difusión y recreación, finalmente remata con una torre de monitoreo que además jerarquiza el ingreso principal

Emplazamiento

La fluidez del agua como extintor del fuego se convierte en la metáfora central que refleja la rapidez requerida y eficiencia que actúan en situaciones de emergencia

Planta baja
Primer piso

Concepto

Hace referencia a las curvas predominantes del lugar que se mimetizan entre la vista de los valles entre la cubierta ondulada, conectándose entre sí.

Fachada oeste
Fachada este
Fachada sur

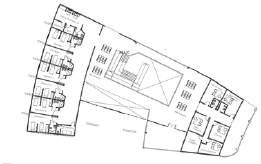
Memoria descriptiva

El proyecto nace ante la necesidad de un equipamiento de salud de primer nivel en el municipio de Samaipata. Se resuelve mediante una planta que alberga toda las áreas necesarias, como ser: consulta externa, emergencias, maternidad y rayos x

Planimetría

Corte longitudinal
Corte transversal
Planta alta
Planta baja

Concepto

Corte longitudinal

Las bóvedas de doble curvatura son el resultado de una búsqueda que pretende integrar: entorno, forma y materia

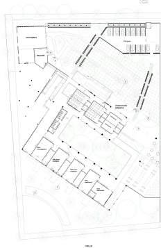
Planta baja
Planta alta
Corte transversal

Memoriadescriptiva

Tiene como objetivo contribuir al proceso de desarrollo sostenible mediante la aplicación y difusión social ante las problemáticas socioculturales - ambientales Por lo que se propone espacios de educación, prácticas e investigación

Planimetria

Concepto

Generar a través del Movimiento una morfología la cual permita integrarse y relacionarse con el entorno

Memoria descriptiva

El proyecto nace como una respuesta a la revitalización integral del entorno urbano del centro de Santa Cruz de la Sierra. por lo que se propone densificar el mismo a través comercio y vivienda Es por eso que cuenta con un basamento comercial, una torre de oficinas y otra de viviendas

Planta tipo oficinas

Planta tipo vivienda

Piso 4 Área social

Planta baja
Planimetría
MARINA VELASCO

Turn static files into dynamic content formats.

Create a flipbook
Issuu converts static files into: digital portfolios, online yearbooks, online catalogs, digital photo albums and more. Sign up and create your flipbook.