PRELUDIO

Page 1

Accademia di Belle Arti Beni culturalli A.A. 2022-2023 Nuove Tecnologie dell’Arte Maranatha Elisabetta Bassani

PRELUDIO

Il complesso rappresenta un significativo esempio di villa veneta, composta dall'edificio padronale, dalle barchesse, dalla torretta e dal piccolo oratorio.

VILLA SGARAVATTI

Villa Sgaravatti a Giarre di Abano Terme è una grandiosa, ma purtroppo da tempo abbandonata (a causa di tre incendi che a partire dalla seconda metà del ‘900 la distrussero quasi completamente), villa veneta. La data probabile di costruzione della villa è molto probabilmente il 1552, data che appare anche sulla facciata della villa. Già

proprietà dei Dondi dell’Orologio e poi dei Wollemborg . Fu in seguito acquistata dalla famiglia Sgaravatti di Padova, che utilizzò parte del terreno antistante la villa come vivaio.

La torretta costituisce un elemento caratteristico della composizione architettonica del bene. Era adibita all'osservazione delle stelle.

La torretta si presume sia stata costruita in epoche diverse: la parte contenente la scala termina con un cornicione che riproduce esattamente quello della edificazione settecentesca, mentre quella superiore per tipologia delle scale esterne, le ringhiere ed il belvedere, la si può inquadrare nell’ottocento romanico.

L’interno della villa ha subito rilevanti rimaneggiamenti fino ai primi del ‘900 (inseriti i bagni, i locali di servizio) è stata edificata la scala ad est e sono state tamponate alcune finestre. La facciata a nord è priva di intonaco perché è stata rimossa un’edera che in passato copriva completamente la muratura.

Nel XVII e XVIII secolo, la villa appartiene alla

famiglia Dondi. Nel 1783 il marchese

Franscesco Antonio Carlo Dondi fa edificare l’oratorio in onore della Beata Vergine Maria e fa costruire la seconda parte della villa.

Nel 1846, dal catasto austriaco e austro-italiano, si evince che la villa, di proprietà di Scipione Rinaldo

Dondi e amministrata dal figlio Francesco, è composta dalla colombaia di stile neogotico

veneziano, dalla casetta di fianco all'edificio padronale e di un altro corpo vicino alla colombaia

ora non più esistente ma visibile nelle foto storiche.

Nel 1900, la “casa di villeggiatura e l’oratorio privato” è di Maurizio Wollemburg. Il 10 novembre 1920 Vittorio Sgaravatti acquista la proprietà, adibendola a vivaio attivo fino alla fine degli anni '80.

IDEA DI PROGETTO

PRELUDIO RESORT

Riqualifica del sito e del territorio circostante

Introduzione alle famose terme di Abano e Montegrotto

Luogo d’venti

Immersione nella natura grazie al paesaggio

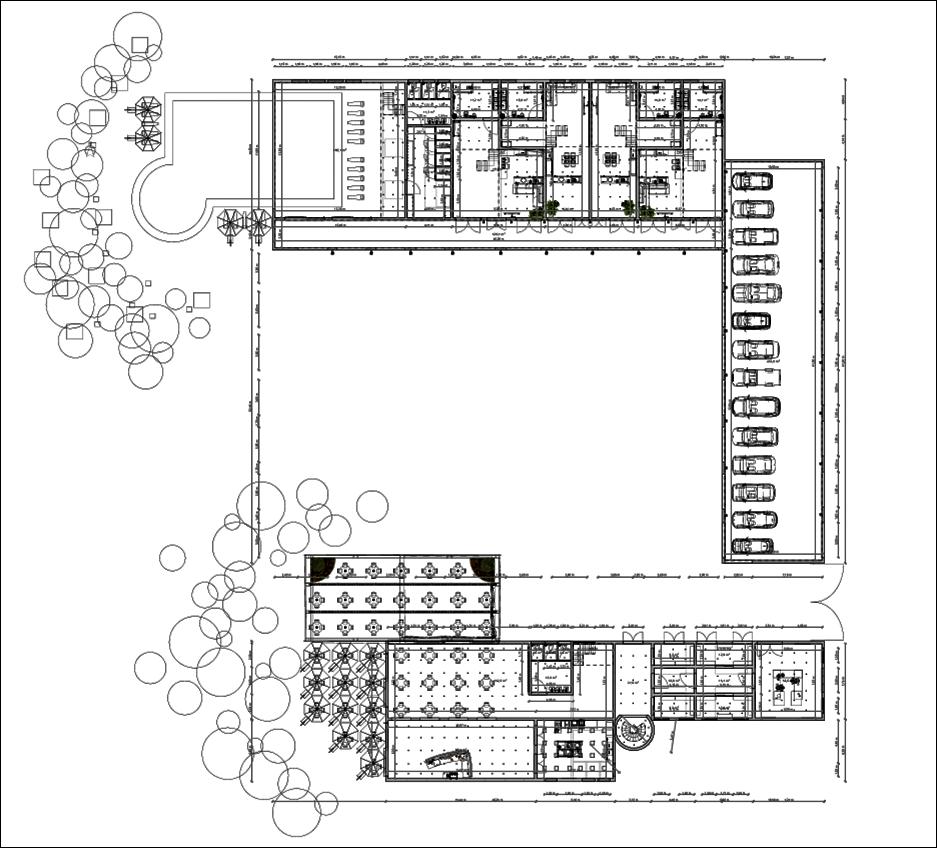
PIANO TERRA

PIANO PRIMO

COPERTURA

NORD SUD EST OVEST

APPARTAMENTI

APPARTAMENTO

APPARTAMENTO

APPARTAMENTO

PISCINA

PISCINA E SPA

RISTORANTE

RISTORANTE

EVENTI

EVENTI

ENOTECA

ENOTECA

Turn static files into dynamic content formats.

Create a flipbook
Issuu converts static files into: digital portfolios, online yearbooks, online catalogs, digital photo albums and more. Sign up and create your flipbook.