Portfolio Manuel Sordo

Page 1

Barcelona · España. Manuel Sordo Ruiz Portfolio profesional 2023.

CURRICULUM EDUCACIÓN EXPERIENCIA

1996 · 2016

2016 · 2017

México

Educación primaria, secundaria y media superior.

Canada

Educación media superior y post-secundaria. Inicio de estudios en delineación. Vancouver BC.

Barcelona

2017 · 2023

2021

2020

Grado en estudios de arquitectura y urbanismo. ETSAV UPC.

Master universitario habilitante en arquitectura. ETSAV UPC.

Proyecto CCCB + ETSAV

Participación en taller internacional para una propuesta artística efímera.

Arta cerámica

Participación en proyectos de escultura y producción cerámica. Mx.

ARQUITECTO

URBANISTA · INTERIORISTA MANUEL SORDO RUIZ

2020 · 2023

Corada · Figueras Arquitectes

Colaborador en proyectos de arquitectura, urbanismo e interiorismo.

Hotel Neri, Bcn. · 2020 Proyecto de piscina y terraza en cubierta. Colaboración en el proyecto, dirección de obra de piscina y terraza en la cubierta de un edificio patrimonial en el núcleo histórico de Barcelona.

Vivienda Port de la selva 2021 · 2023 Proyecto de reforma interior y separación de propiedad. Redacción de proyecto ejecutivo, dirección de obra y división de la propiedad.

PMU09 Marina Zona Franca 2021 · 2022 Proyecto de urbanización Bcn. Ejecución del proyecto de modificación urbana con aprobación definitiva. Propuesta de urbanización de 2 parcelas en curso.

Vivienda Madame Butterfly y Viviendas Sabadell · 2022 Propuestas de viviendas de nueva construcción. Ejecución de anteproyectos, proyecto básicos y estudios de viabilidad económica para desarrollador.

Hotel Sant Cugat y Hotel Neri. 2022 · 2023 Proyecto de arquitectura interior para hoteles. Reformas de habitaciones y espacios comunes para hoteles. Ejecuccion de proyectos y dirección de obra. Libro de estilo.

Vivivenda Colomers. · 2023

Proyecto en curso de reforma integral de una casa. Redacción, ejecución de proyecto ejecutivo. En curso.

Vivivenda Tamarit. · 2023

Proyecto en curso de reforma integral de un piso. Redacción, ejecución y dirección de obra. En curso.

Paquete Office · Paquete Adobe · Microstation · AutoCAD · Revit · Rhino/Grasshopper · Sketch-up Castellano · Ingles · Catalán

Barcelona · España.
manuel.sordoruiz@gmail.com
Certificado de primer respondiente de la cruz roja. Ganador de la beca de diseño en GWSA 2017. 0034 658917712
Habilidades técnicas

ÍNDICE PROYECTOS

Hotel Neri Nuevo solárium y piscina en cubierta.

Vivienda Port de la Selva Proyecto d reforma y división de propiedad.

Hotel el Sant Cugat

Proyecto de reforma de espacios interiores.

.1 Reforma interior de habitaciones.

.2 Reforma de recepción y zonas comúnes.

Vivienda Colomers Reforma de vivienda antigua.

Vivienda Tamarit Reforma de piso en Barcelona.

Proyecto final de master

Implantación de una oficina técnica en Malgrat de mar.

Proyecto de grado

Proyecto de taller de vivienda colectiva.

Mobiliario Diseño de librería.

Iluminación Diseño de lámpara colgante.

01. 02. 03. 04. 05. 06. 07. 08. 09.

01.

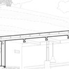
Hotel Neri. Nuevo solarium y piscina en cubierta.

Creación de un nuevo espacio exterior para solárium y piscina en el hotel Neri. Intervención sobre un edificio con protección patrimonial en el centro histórico de Barcelona. Diseño de espacios, selección de mobiliario y cálculo de instalaciones y refuerzo estructural para la piscina.

Colaboración en levantamientos, diseño y supervisión de obras. Colaborador de Corada · Figueras Arq.

Vivienda Port de la selva. Proyecto de reforma y división de propiedad.

Proyecto de reforma integral y subdivisión de una vivienda en Port de la Selva, enfocado en optimizar la distribución interior y los espacios exteriores. El diseño incluirá mobiliario fijo y trabajos de reparación, además de la creación de un nuevo tramo de camino de ronda. También nos encargaremos de gestionar las reformas en viviendas situadas dentro del límite del ámbito marítimo terrestre.

Colaboración con la delineación y proyección de planos, garantizando un diseño eficiente y funcional. Nuestro trabajo incluirá el diseño de espacios, la selección cuidadosa de mobiliario y materiales, y la supervisión de toda la obra para asegurar su correcta ejecución.

Colaborador de Corada · Figueras Arq.

02.
despensa oberturafins terra ACCES PRINCIPAL ACCES ALTERNATIU CASA A S.I 2.8 m² H 2.50 m VESTÍBUL 1 S.U 8.0 m² S.U 17.7 m² V 44.2 m³ S.I 3.7 m² H 2.50 m S.U 3.5 m² 9.0 m³ S.I 0.7 m² 4.5 m³ VESTÍBUL 1 S.U 7.2 m² S.U 13.5 m² S.U 9.3 m² S.U 5.4 m² V 23.7 m³ V 34.4 m³ V 8.4 m³ CASA M CASA A S.U 6.7 m² CUINA EXT. VELA PER PORXO DORMITORI 3 CUINA VESTÍBUL 2 fancoil DORMITORI 3 S.U 8.4 m² VESTÍBUL 3 DUTXA S.U 1.4 m² V 3.5 m³ S.I 0.6 m² MENJADOR 2.50 m WC S.U 1.1 m² 2.7 m³ TERRASSA fancoil VELA PER EXTERIOR

Hotel el sant cugat. Reforma interior de habitaciones.

Dirección de la nueva imagen del hotel “El sant cugat”. Proyecto de reforma interior de las habitaciones.

Creación de libro de estilo y directrices estéticas, reutilización de mobiliario y diseño de mobiliario nuevo para el hotel.

El proyecto forma parte de la reforma integral interior del Hotel, y está dividido en fases de intervención. Esta es la Fase 02 de 06.

Colaboración en el levantamiento, registro y diseño del proyecto. Ejecución y supervisión de obras.

Colaborador de Corada · Figueras Arq.

03.1
Ilustración realizada por artista local posterior al proyecto. - @sgcamps.

Hotel el sant cugat. Reforma de recepción y zonas comunes

Proyecto de redistribución de la zona de recepción del hotel y la zona de desayunos y servicios de cafetería. Diseño de un nuevo estilo para el hotel. Creación de piezas de mobiliario a medida para los usos definidos. Reutilización y adaptación de mobiliario e iluminación nueva y existente. Creación de un nuevo espacio interior-exterior para aumentar la superficie utilizable.

Colaboración en la delineación del proyecto, la selección y diseño de mobiliario, y la supervisión de la obra y la calidad final.

Colaborador de Corada · Figueras Arq.

03.2
Ilustración realizada por artista local posterior al proyecto. - @sgcamps.

Vivienda Colomers.

Proyecto de reforma de vivienda histórica de 1820 en el pueblo de Colomers. Proyecto integral de rehabilitación y diseño de vivienda de segunda ocupación con jardín y piscina. Diseño de espacios interiores y cálculo de refuerzos estructurales.

Colaboración en la delineación y tramitación de la licencia para el proyecto. Proyecto en ejecución.

Colaborador de Corada · Figueras Arq.

04.
S.U 3,1m2 90,19m2 S.U 5,1 m2 S.U 1,7m2 S.U 12,9 m2 V. 35,1 m3 S.I 1,60 m2 2,70 m S.U 12 m2 32,4 m3 3,80 m2 H. 2,70 m S.U 15,6 m2 V. 42,1 m3 2,75 m2 H. 2,70 m S.U 13,5 m2 V. 37,8 m3 1,50 m2 2,80 m S.U V. 86,3 m3 S.I 6,72 m2 H. 2,90 m S.U 29,60 m2 85,84 m3 3,7 m2 H. 2,90 m S.U 1,8 m2 S.U 3,15 m2 ENTRADA 6 2 REBEDOR SAFAREIG TERRASSA HEB120 PISCINA DORMITORI 2 BANY 3 ESTAR JARDÍ PASSADÍS 2 MAGATZEM SALETA PASSADÍS 4 Armari PASSADIS 1 PÈRGOLA PÈRGOLA CUINA-MENJADOR Llar de foc S.U 7,17 m2 V. 20.80 m3 S.I - m2 H. 2,90 m S.U 1,6 m2 PASSADÍS 3 BANY 1 S.U 20,5 m2 V. 58,8 m3 S.I 4,95 m2 2,80 m2 Armari DISTRIBUIDOR VESTIDOR 5,45 m2 V. 16,8 m3 S.I 0,50 m2 H. 2,80 m2 S.U 6,70 m2 V. 17,75 m3 S.I 0,90 m2 H. 2,50 m 4,80 m2 S.U 2,36 m2 Armari Armari 12 11 10 9 8 7 6 5 4 3 2 1

Reforma de piso en el centro de Barcelona. Cambio de distribución y modificación puntual en la estructura. Diseño de mobiliario y nueva materialidad. Arquitecto encargado y asociado en el proyecto. Proyecto en ejecución.

05.
H.Cajón:1.20M H.Cajón:1.20M H.Cajón:0.50M Habitación 02 SU. 11.48 m HL 3.10 m V. 35.59 3 Cámara higiénica 02 SU. 4.77 2 HL. 2.50 m V. 11.93 m Habitación 01 SU. 15.00 2 HL. 3.10 m V. 46.50 m SI. 3.25 m Salón SU. 12.54 m2 HL. 3.10 m V. 38.87 m3 SI. 3.25 m2 Cocina comedor SU. 31.26 HL. 3.10 m V. 96.90 m SI. 6.50 m Almacén SU. 4.42 m HL. 3.10 m V. 13.70 m Recibidor SU. 2.72 HL. 3.10 m V. 8.43 m Cámara higiénica 01 SU. 5.67 m HL. 2.50 m V. 14.17m3 Cuarto de maquinas SU. 00.97 m

Proyecto final de master.

Implantación de una oficina técnica en Malgrat de mar.

El proyecto tiene como objetivo abordar la problemática en la toma de decisiones al comprar alimentos y el sistema de alimentación en la Baja Tordera. Se busca reivindicar un modelo de producción local con menor consumo de recursos naturales. El rápido desarrollo turístico ha amenazado la sostenibilidad agrícola y llevó a la creación del consorcio agrario “Espai Agrari de la Baixa Tordera” (EABT) para coordinar mejoras y gestionar el sector agrícola de manera integral. La propuesta se centra en conservar el tejido parcelario, promover un modelo agroecológico, actualizar las infraestructuras, atraer jóvenes agricultores, mejorar el control y gestión, y distribuir equitativamente los costos. Se propone la colaboración entre propietarios y el apoyo del consorcio para reducir la carga económica y atraer a los jóvenes agricultores.

Los resultados esperados incluyen una mayor competitividad del producto local, aumento de la producción, revertir el abandono agrario y atraer talento e inversión.

La implementación de una oficina técnica es esencial para el éxito del proyecto. Se ubicará en una edificación agrícola abandonada, adaptándola a la estructura preexistente. La propuesta incluye un núcleo colectivo con la oficina del consorcio agrario y un centro de desarrollo empresarial para futuras propuestas relacionadas con el sector agrícola. La meta es satisfacer las necesidades actuales y habilitar una plataforma para el crecimiento futuro.

06.

Proyecto de grado Proyecto de taller de vivienda colectiva.

El proyecto busca establecer una convivencia armoniosa entre espacios públicos, equipamientos y viviendas colectivas, ubicadas en una cota elevada sobre el suelo en Glorias, Barcelona. Se aprovecha el desnivel existente para crear una conexión en tres niveles: subterráneo, nivel del suelo y a una altura de +9 metros. La intención es preservar las instalaciones industriales existentes y fomentar el uso común y la flexibilidad de los espacios mediante un sistema constructivo comparable a grandes infraestructuras como aeropuertos. La idea es promover un ambiente donde estos diferentes espacios se complementen y coexistan de manera integrada y funcional, generando una experiencia urbana única y promoviendo la interacción social, el intercambio cultural y la vida comunitaria en la ciudad.

07.

Mobiliario Diseño de librería.

Diseño de estantería por encargo para cliente. Ejecución de planos y selección de materiales.

08.

Iluminacíon Diseño de lámpara colgante.

Diseño de una lámpara colgante como parte integral del trabajo realizado durante la universidad. Elemento adaptable de papiro plegado.

09.

Turn static files into dynamic content formats.

Create a flipbook
Issuu converts static files into: digital portfolios, online yearbooks, online catalogs, digital photo albums and more. Sign up and create your flipbook.
Portfolio Manuel Sordo by Manuel Sordo - Issuu