Manali Londhe_Thesis

Page 1


ARCHITECTURAL PROJECT Titled

INSTITUTE OF DESIGN, GOA

AN ARCHITECTURAL PROJECT REPORT SUBMITTED IN PARTIAL FULFILLMENT

OF THE REQUIREMENTFOR DEGREE OF BACHELOR OF ARCHITECTURE UNDER SAVITRIBAI PHULE PUNE UNIVERSITY

AN ARCHITECTURAL PROJECTBY MANALI PRAKASH LONDHE

UNDER THE SUPERVISIONOF AR. PREETI DHANWAT

SINHGAD TECHNICAL EDUCATION SOCIETY’S SINHGAD COLLEGE OF ARCHITECTURE

S. NO. 44/1, VADGAON (BK), OFF SINHGAD ROAD, PUNE-411041

2019-2020

Prof.M. N.Navale M.E.(Elect.)MIE., MBA Founder President

Crafting Dimensions that Speak the Language of the New Millennium

SINHGAD TECHNICALEDUCATION SOCIETY’S SINHGAD COLLEGE OF ARCHITECTURE

(Affiliated to University of Pune & Approved by AICTE) (ID No. PU/PN/Engg./151/2000)

S.No. 44/1, Vadgaon (Bk), Off Sinhgad Road, Pune –411041

Tel. :020 – 24350465/0468/0541/2723/3527/5038/5889 Ext. – 729

Website:www.sinhgad.edu

Dr.Mrs. Sunanda M. Navale

B.A., M.P.M.,Ph.D. Secretary

Rohit N.Navale Vice President

Tel. Fax : 020 –24351439

E-mail:scoa@sinhgad.edu

Rachana NavaleAshtekar Vice President

Candidate’s Declaration

Dr.Banani Banerjee

B.Arch. ,M.C.P.,Ph.D. Principal

I here by certify that the work which is being presented entitled “INSTITUTE OF DESIGN“ in the subject of Architectural Project II and Technical Communication, in fulfillment of the partial requirements for the award of degree of Bachelor of Architecture submitted in the Sinhgad Technical Society’s Sinhgad College of Architecture,

Pune, is an authentic record of my own work carried out during a period from October 2019 to April 2020.

The matter embodied in this report has not been submitted by me for the award of any other degree.

MANALI PRAKASH LONDHE (Candidate)

This is to certify that the above statement made by the candidate is correct to the best of the knowledge of undersigned.

This Candidate has appeared at viva voce examination held on at the Sinhgad Technical Education Society’s Sinhgad College of Architecture, Pune. University of Pune.

Ar.Trishna Mahadkar (CoordinatorArchitectural Project II )

Ar.Preeti Dhanwat (GuideArchitectural Project II )

External examiner forArchitectural Project II

Dr.Banani Banerjee Principal

SAVITRIBAI PHULE PUNE UNIVERSITY

ACKNOWLEDGEMENT

I express my deep sense of gratitude towards my guide Ar. Preeti Dhanwat ma’am for her constant guidance, encouragement, valuable criticism and kind support. In such a tough time it would not have been possible to complete this project without her help, patience and virtual support in helping me overcome the challenges I faced. I would like to thank to Ar. Trishna Mahadkar ma’am (Thesis Coordinator) for approving my topic and completing the official formalities of the project work. I would also like to thank my institute for giving me such a platform where I was able to learn many things throughout the academic year.

I sincerely thank my parents and my sister for their kind help, constant encouragement, love and affection and lots of adjustment without whom it would not have been possible to achieve this goal and for making me what I am today.

Last but not least, I would like to thank my college friends to be there for me whenever I needed them for any doubts and our architectural discussions and pushing me supporting me to do better.

- Manali Londhe

ABSTRACT

The project entails the construction of many structures along with Academic Block and intervention centre which are the main focus of the design. Design education is a somewhat neglected field of education India. It offers tremendous scope for growth in the current state of economic growth. The institutes established have been successful and are rated amongst the top design schools world-over. Design has however failed to secure a strong foothold in the eyes of the average Indian as a viable career choice. This is reflected in the scant dispersal of such institutes, especially when viewed in comparison to other fields of education. Even from the point of view of the country, the design industry contributes in a great way to the overall output of the nation. It also improves the efficiency in overall functioning of the society. Other services by the design industry provides an equal platform to all entrepreneurs so that they can create products and services that will benefit all sections of the society. An advanced design industry has come to become an identity of a successful economy, and has driven businesses and improved lives for people. Despite the immense contributions by design practices, they often go unnoticed. This project aims to address this problem and propose an institute providing not just quality education, but also important design and community services.

1.1. DESIGN

The word design is indicative of its purpose “to satisfy” , “ to contractive” , to formulate and is concerned with the environment of the man It is when all that surrounds man, works for him physically, socially and emotionally, being pleasing visually, with the best quality obtainable materials, techniques and funds available and satisfies the human in him.

The international seminar on design (Belgium 1964) worked out the following definition of design – Design is creative work whose goal is to determine the formal properties of manufactured goods, including both the external characteristics and most important, the function and structural interrelation which turn the article into a single whole both from the point of view of the producer and the consumer.

1.1.1 Designer

A designer is a person with aesthetical appreciation and knowledge of design equipped to make a decision and judge competently from many view points. He is the one who identifies the need or a problem, gathers information directly or indirectly analyses the findings , synthesises the information and create a satisfactory solution. The designer must meet the need of the society as it develops the new demands and expectation with respect to manufacturing resources available.

1.1.2 Institute of design

Design is being recognised as an integrating force and strategic tool for addressing the complex needs of the constantly changing environment and the desire of the people for better

quality of living apart from being accepted as a value adding force capable of solving problems and creating new opportunities It should be a space which is creative or flexible enough to suit to the user’s perception Due to liberalization and information revolution the common man is more aware of his choices, so the design and package of a product including the marketing has a vital role to play. Therefore encouraging the young designers is necessary. Hence it is important to design a space filled with creative energies leading to various innovative activities .

In India very few institute offer the opportunities study and learn careful process of analysis and synthesis . Although the interest in the subject is numerous the provisions for it is very less. So the need for a multidisciplinary institution in Indian industry, commerce and development sector, to make several initiatives to meet the challenges of the emerging knowledge economy .

In the world of challenging economics, social and technological changes , there is an ever increasing need for effective communication between the producer and the consumer. A design institute trains designer to tackle creatively the communication problem by adopting new skills and new approaches in their understanding and reasoning to bring about the wealth, industrialize nation Thus professional training becomes mandatory consisting of a carefully structured academic program sensitive to real life need as also that of the society.

Fig 1 Design thinking process chart
Fig 2 components of design
Fig 3 Ongoing design studio
Fig 4 Design thinking

1.2.1 Importance of design in India

Make in India : making it happen by design

•Make in India initiative was launched globally in September 2014 as a part of government of India's renewed focus on stimulating the countries manufacturing sector.

•The campaign has been concentrated to fulfil the purpose of job creation enforcement to secondary and tertiary sector , boosting national economy , converting India to a self – self reliant country and to give the Indian economy global recognition.

•Use of advance technologies right from concept design, analysis to manufacturing plays important role in achieving manufacturing excellence and developing innovative products

•Design is integral part of manufacturing : make in India is not just manufacturing in India but also designing in India.

1.2.3 Need for a design institute :

•Product design, interior design, visual communication designing , automobile designing has a vital role to play in national development of our country with its varied cultural heritage.

•It deals with the discipline such as corporate identity, communication design and graphic design.

•Demand for services of professional graphic designers has grown over a recent years

•Due to growing apart and evolving individually with little or no dynamic and productive interaction with other branches, there by limiting the impact and the reach of each branch.

1.2.4 Design as a strategy for a developing economy

•Design can stimulate developing countries from “technology stagnation”.

•Design talents within the country are essential to absorb the continuous flow of new technologies from developed countries and adapt them to local conditions of manufacture.

•Design can help in bringing out products to satisfy cultural and social needs of population .

•Design can play a vital role in searching for alternatives and innovating usable products (eco-friendly) making use of new energy sources.

•Information and communication design can play a significant role in social, cultural and scientific education of the masses.

1.2.5 Reason for selection of topic :

•With the booming increase in population the demands of mankind has also increased thus the role of designer is now also to improve the living standards and solve the issues faced by the city. But design isn't valued in public level, because people don’t know what design is and how important role it plays in everyone's life. Hence this project will promote design as a continuously evolving subject, which it explores through exhibitions, design gallery, events and activities.

•Learning environment is the need of an design institute where student can venture into the inner as well as the outer world. Hence the aim is to design an environment where students can grow out, explore and experiment ideas, can interact, exchange ideas, and also connect with inner selves

•As a student of architecture, I feel that the institute where a student spends the most productive years of his life has a direct influence on shaping the mind set from within and thereby shaping the carrier of the student.

•Qualities like intelligence, creativity, sensitivity can be inculcated in a designer by providing a proper atmosphere and ambience and so we can rightfully say that it plays a vital role in establishing his or her attitude towards life.

INSTITUTE OF DESIGN

MANALI LONDHE SINHGAD COLLEGE OF ARCHITECTURE
Fig 5 Make in India logo
Fig 6 BRICS nation GDP

1.3.1 Characteristics of design education :

•Studio as a mode of learning : working in shared place in which students develop skills through a sequence of projects in which ongoing work and critiques are visible to a large community of students and teachers .

•Culture of critiquing: There is a particular culture of learning arts and many design disciplines which is based on frequent frank evaluation of the students work by experienced practitioners and teachers

•Learning representation: Students in design learn a collection of different representation that serve to facilitate different aspects of design work. The medium they work in is often one or more of these representations.

•Holistic vs. focused on one aspect: One thing that differentiate design learning from technical and artistic area is its need to integrate across concern of human values and design material and technique.

1.3.3Challenges for a design institute :

• When it comes to users requirements, too many service points leave patrons confused about where to look for help. Design institute provide away better in service and aesthetics considering user experience, making better use of underperforming spaces.

• User experience design is the process of enhancing user satisfaction by improving the usability, accessibility and pleasure provided in interaction between user and the product.

1.3.2Challenges in a design institute

:

• Firstly students should develop more effective communication and interpersonal skills, so that they are better able to appreciate, understand, engage with and respond to the needs of clients and users.

• Secondly, students should acquire a foundation in team working in order to prepare them for cross disciplinary working relationships that characters professional life

• Thirdly , there is the challenge of preparing students for changing society where knowledge is growing at a rapid rate and the needs of the society and the construction industry are continuously evolving for their students will need to acquire skills and altitudes that are transferrable across context and unable continuous life long learning . They need to learn in order to manage their ongoing learning in relation to their future goals.

• Lastly, learning environments in school of design and art should be realign to encourage a more collaborative and supportive culture so that students develop sensitivity to others and a sense of commuting as well as independence of thought.

1.3.3 courses offered :

1. Industrial design

• Product design

• Automobile design

• Interior & Furniture design

• Ceramic and glass design

2. Communication design

• Graphic design

• Animation design

• Film and video communication

• Photography design

• Exhibition design

3. Textile design

• Textile design

• Apparel design

• Lifestyle accessory design

4. IT integrated design

• Design for digital experience

• Information and interface design

• New media design

• Digital game design

• Universal design

5. Interdisciplinary design :

• Design for retail experience

• Strategic design management

1.4.1 Design users:

•The use of design by Indian firms is spread across many sectors.

1. FMCG companies, 2. automobile, 3. retail, 4. IT/communication, 5. Fashion industries

• These have a particularly large use of design.

•The typical buyers of design services include appliance manufacturers, machine tool manufacturers, automotive industry, furniture manufacturers, retail industry, hospitality industry, Telecom and IT industry, FMCG companies, banking and insurance companies, publishing companies, apparel and footwear companies, pharmaceutical industry etc.

•Domains such as education, NGOs, institutions, real estate, government, etc. sporadically use design services

•Overall design utility is viewed in a very limited perspective by Indian industry. expense item reserved for large companies thus keeping small and medium sized Design is an underused activity in most Indian businesses. Design is often seen as an companies out of the design users list.

•Design is evolving to become more strategic in nature. It means that businesses use design across the length of their development process as also they use design to find new areas of business.

•Companies use design in different ways. Some use it as strategic tool and some relegate it to be used at the end of the development process for styling purposes. A handful of Indian companies use design strategically.

1.4.2 Design Intervention Centre :

•The Design Intervention Centre will offers support services in Design, as well as conducts workshops for commoners and craftsmen.

•There are many traditional crafts and industries in India , which are facing issues of survival due to lack of access to better product designs.

•Inability to constantly innovate hinders these industries from competing with other companies.

•The Design Intervention Centre tries to bridge this gap by offering following services to Industry:

1. DesignAwareness Seminars

2. Skill Development Workshops in Design

3. Consultancy in Product Design & Development.

4. Design thinking workshops for general public and craftsmen.

• These interactions with the industry helps the students to better grasp the design basics by working on live, real-time projects.

• This exposure helps the students to be professional in their approach and also provide them with more employment opportunities.

INSTITUTE OF DESIGN

1.5.Aim :

To undertake micro and macro level design intervention for a design institute by offering creative courses which directly deal with market need and provide community education to promote design and help with economical needs of Goa.

1.9. Methodology :

Selection of topic. Collecting primary data of the topic.

Identifying case studies.

1.6. Objectives :

•To study and analyse the spaces in case studies.

•To study various spaces and their functional requirement pattern making labs, library and collect data .

•To understand and study the Indian market and the impact of design education in the process of nation building

•To design an open and free learning environment which inspires creative thinking.

1.7. Scope :

•Studying and experiencing the working of an institute.

•Understanding the modulation of campus design w.r.t. site planning.

•Finding best solutions in terms of site and context responsive architecture.

1.8. Limitations :

•The project in no way is challenging the education system of India.

•The thesis does not deal with the economy of the project.

Comparative analysis Inferences.

Details of case studies.

Selection of site for project Site analysis

Finalization of design program and area statement

Preliminary drawings Final drawings.

design concept

CHAPTER 2 : LITERATURE STUDIES

2.1 BRIEF ON TECHNICAL COLLEGES :

• The type of college depends on regional and local factors, so that it is not really possible to give absolute sizes for systems.

•The figures cover both part time and full time students, as an approximate guide lines, depending on the area served at least 10 sq.M. of site per part time student and 25sqm per full time student should be provided.

•Ensure a good shaped site and the possibility of extension. Arrangement on the site , type of construction and building design depends on the sizes of the spaces that can be accommodated on several levels and those which cannot : areas of non academic work like workshops or sports area.

•College buildings areas a rule 2 to 3 storey, higher only in exceptional cases.

•Worksop buildings with heavy machines or frequent deliveries are single storey

2.1.1Access:

•Entrance area and the foyer with central facilities used as circulation space connecting horizontal and vertical movement as in general school centres or comprehensive schools. Teaching areas are divided according to the type of teaching and their space requirements general purpose teaching areas occupy 10 to 20 % of the space.

•General class rooms : 50-60 sq.M

•Small class roms:45-50 sq.M

•Oversized classrooms :85 sq.M

2.1.2. Space requirement :

As we have different subjects for teaching their spaces and requirements for that is also different. Such as theoretical and practical subjects with their workshops are may be separate or joint or they are bigger than the actual size of classroom for theoretical subjects and the reason is due to need f space for work and circulation in practical time.

Fig 9 Space allocations scheme

2.2

BUILDING SPACE REQUIREMENTS ARE CLASSIFIED INTO:

1. Instructional area: this includes classroom/tutorial rooms, drawing halls, laboratories including computer center, workshops, and library instructional resource production center and exhibition hall/auditorium.

2. Administrative areas: it comprises of principal’s room, staff room, office and conference, confidential room, estate office and reception lounge.

3. Amenities: this includes student and staff rooms, indoor games, sports and recreation center, canteen, cooperative store, and dispensary and alumni association.

• The requirements for instruction of different types of classroom, lecture, tutorial, and drawing would depend on the curriculum structure. The breakdown of the curriculum in terms of the instructional time of each type of instructional activities has therefore to be determined initially

INSTITUTE OF DESIGN

MANALI LONDHE

2.2.1 Typical zoning for technical college :

1. Total area of 25 sq.M per full time student.

2. Total area of 10 sq.M per part time student

3. College buildings as per rules 2-3 storey high in exceptional cases

4. Workshop building are only single storey.

5. Brief on layout of colleges

6. Main lecture theatre, ceremonial hall, administration, deans office, students union

building Also libraries, refectories, sports facilities, halls of residence , parking

7. Technical facilities for central services supply.

8. Boiler room, services supply.

9. Subject specific teaching and research facilities.

10. Basic facilities for all subjects :

2.2.2 Lecture halls:

Major factors to be considered in designing a lecture room are the following

1. Sitting and writing surfaces

2. Space and furnishing for the lecturer

3. The use of wall space , including chalk boards, screens windows etc.

4. Facilities for projection and television

5. Acoustics and lighting

6. Heating and air conditioning

7. Aesthetic considerations

8. Space for keeping drafting materials

•Lecture theatres for basic and special lectures, seminar and group rooms for in depth work

departmental libraries, study rooms for academic staff, meeting room, exam room, etc

•Subject specific room requirements :

•Technical or artistic subjects, e.g.. Architecture, art, music, etc: rooms for drawing studios workshops rehearsal and assembly rooms for all kind.

INSTITUTE OF DESIGN

Fig

2.2.3. Classrooms :

The unit area to be provided could be stated on a room wise bases. Rooms for bigger class sizes requiring smaller unit area and room for smaller size, a higher unit area following are the desirable and minimum norms:

2.2.5. General requirements:

•The space should be arranged with sufficient imagination so that it is flexible and allows the teacher to vary the curriculum from year to year. Rooms therefore should be conceived as series of work centres in which activities with different kinds of materials can be carried forward.

•There is much need of displaced space for finished work

•Windows should provide adequate light and be high enough for storage and counter space underneath Ceilings and or walls should be acoustically treated

• room for bulk storage and storage of papers, illustrative materials and models, cardboard finished and unfinished projects will have to be supplied.

•The industrial art department should be isolated from quieter areas of building with a service road provided nearby.

•One storey structures on grade are most common, though mezzanine spaces often developed for storage or seminar use.

2.2.4 Workspace :

The most important thing for design institute is open mind, creative thinking, not only for the students but also for the teachers, an environment which helps person to give has best because design is an altitude which differs from person to person.

•Basically major elements are specially shops like wood working, electrical, metals, auto or combine general shop. Additionally drafting rooms are common as well as supporting classrooms, offices and sometime locker rooms.

•The layout of any shop should follow the logic of its equipment used and its relationship to electrical and mechanical services.

•Several things must be considered such as special code and safety concerns, good lighting,

saw dust collecting systems, overhead hoist systems, exhaust ducts and the ability to get large supplies in out store

•Area for fixed machine, storage for tool and other equipments, workroom for workshop in charge, worktables, storage for raw material, demonstration area, first aid box, fire safety provision, black board, washbasin, tool panel.

•Machine should be placed 1m clear distance from all walls or columns

•Flooring and electricity supply and imp consideration should must be according to equipments.

INSTITUTE OF DESIGN

Fig 12 General workflow at work area

2.2.6. Drawing studio :

•Various space requirement for technical subjects including architecture and art academics.

•Drawing table of dimension suitable forA0 size fixed or adjustable board.

•Drawing cabinet for storing drawings flat of the same height as drawing table, surface can also be used for putting things on a small cupboard on castors for drawing table materials possibly with filling cabinet is desirable

•Adjustable height swivel chair on castors , drawing tables, upright board , adjustable height or usable as flat boards when folded down

•Each workplace should have a locker..

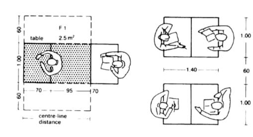
•Each space requires 3.5-4.5 sq.M , depending on the size of drawing table.

•Natural light is preferable and so a north light facing studio is best to receive even daylight. For right handed people it is best if the illumination comes from the left. artificial light should be at 500lx, with 1000lx at drawing surface.

The following table shows the area requirement for per student.

INSTITUTE OF DESIGN

2.2.7

Computer lab :

•Sizes for the desk and chair in lab.

•The eye distance from computer to human eye and other necessary precautions during drafting and designing.

2.2.8. Office spaces:

•Width of primary circulation path within the space must not be less than 2m

•The secondary and tertiary path must be not less than 1 5 and 0 75m respectively

•The planning and the layout must satisfy a particular functional need such as screening , division, stacking or storage etc.

•furniture arrangement must be such that the people at their work station must have clear visibility and adequate space around their desk.

•Spaces for furniture in offices:

•Many furniture systems in contemporary offices are still designed according to standards in use since 1980.

•In addition furniture units such as simple work tables and desks that incorporate piling systems are still used.

•Because of the increasing use of VDU and keyboard, European standards for workstations specifies a surface height of 72cm high.

2.2.9 Library :

•Libraries perform a range of functions in societies.

•Academic libraries, for e g obtain, collect and store literature for education and research purposes and are usually open to the general public, public libraries provide communities with a wide choice of more general literature and other information media, with as much as possible displayed on open shelves.

•The functions of academic and public libraries are often combined in a single library in larger towns.

Fig

Fig 22 floor area for an individual workstation Fig 23 minimum distance between tables Fig 25 four- seat micro fiche station Fig 24 micro fiche reading workstation Fig 26 Individual study booths Fig 27 Minimum free space in reading areas Fig 28 When books are moved between seated and standing users

MANALI LONDHE SINHGAD COLLEGE OF ARCHITECTURE
Fig 31 height of four shelf unit for small children
Fig 29 Height of five shelf unit
Fig 30 bookshelf for school children
Fig 32 Shelf units for adults 5-6 shelves for children 4-5 shelves

2.2.10. wood workshop:

Machine Size Use

Space for working

Circular saw 1x1.8 To cut goods 1m on all sides

Band saw

Drilling machine

0.6x1 For cutting 1m on 3 sides

0.8x1.4 For drilling 1m on 3 sides

Sander 1x1 For finishing 1m on 1 side

Wood lathe 2x2.75 To make circular part 1m on front side

Spinder maker moulder 1.4x1.4 To make frame and moulding 1m on 3 sides

Thickness plane 2x1.5 Uniform thickness 1m on 2 sides

2.2.11 metal workshop:

Machine Size Use

Space for working

Milling machine 2x0.75 To make circular path 1m on front side

Shear pressed sheath machine 2.5x2 To press sheet 1m on 2 sides

Nibbling machine 1.8x0.8 Forming 1m on 3 side

Hydraulic press 0.6x0.4 To press sheet 1m on 1 side

Bend saw 1.0x1.4 For cutting 1m on 3 sides

Drilling machine 1x1.2 To make holes 1m from all sides

Spot welding 1.5x0.3 To make holes 1m on 1 side

2.2.11 Textile lab :

•Loom weaving, tapestry work, tie dye, soft sculpture, banners, fabric collages, needle point, stitchery and sewing.

•The general work area should be flexible to allow frequent changing needs.

•Some activities will require a permanent setup such as floor looms and sewing machines and

these may be install in alcoves. The predominant arrangement will be one of movable work tables and counters which can be adapted for variety of crafts.

•The basic furnishing consists of work benches and tables and stools. Much of specialised equipments is portable. Heavy duty sewing machines are essential in textile program along with following textile weaving, block printing table, instructor room, store room handloom.

2.2.12 Photography studio :

•The process of photography consists of recording an image on a film and its development & printing.

•The sequence of operations is as follows: Shooting Outdoor / Indoor, Developing Process

• Dry area (dark room): Here enlargements are made on paper, film is loaded in cans

•Mixing: Here chemicals are store in bulk and mixed with desired use

•Wet Area: Here films, paper prints are developed. All processes requiring stored in bulk & mixed for desired use.

•Working space (2.4 X max. length of print), requirement (black out) Enlarger, working space (1.5 X max. length of print), requirement (black out) (Projection / selection): A small projection place of work is seen, use of chemicals carried on here.

•Finishing / mounting room: These are areas where finished prints, slides are mounted, glazed or otherwise Prepared for presentations.

2.2.13Animation & Film making studio :

•Computer animation CEL animation Computer (graphic card) Drawing, Shooting Work table, potter wheel, clay mixture, and oven for baking, storage for raw material, storage for finished goods, wet area (sink) for clay mixture, instructor cabin & demonstrator area.

•The layout of various types of animation: Motion or clay animation: Objects are placed under camera, lit by artificial/natural source

2.3. INTEGRATED SPACE AREA :

An integrated curriculum connects different areas of study by emphasizing related concepts across subject matters This style of curriculum makes it easier for students to make connections and to engage in relevant activities that can be connected to their own lives. Teaching with an integrated curriculum has many benefits. Research has found that integration:

1. Focuses on basic skills, content, and higher-level thinking.

2. Provides a deeper understanding of content.

3. Encourages active participation in relevant real-life experiences.

4. Provides connections among various curricular disciplines.

5. Accommodates a variety of learning styles, theories, and multiple intelligences. There are three categories for interdisciplinary work. Integration is a matter of degree and method. The three categories include

1. Multidisciplinary Integration: Teachers who use this method focus primarily on the disciplines They use a central theme, and standards from each subject are selected to support the theme For example, a unit focused on geo caching that met standards in math, language arts, and science would be multidisciplinary

2. Interdisciplinary Integration: The interdisciplinary approach supports standards from different subcategories in one subject area. For example, a unit that integrated reading, writing, and oral communication would be interdisciplinary. Another example might be a unit that integrated history, economics, and geography.

3. Trans disciplinary Integration: In the trans disciplinary approach, is organized around student questions or a real world topic. A common example of trans disciplinary curriculum is problem-based learning.

2.4. TAXONOMY OF SPACES

•Individual or paired study :

•Grouped study :

1. Quality of space :Space for individual or paired study should be quiet to allow for reflective learning.

2. Educational benefits : good for developing independence, and student – led working.

1. Quality of space :These spaces would be designed to support small to medium sized groups. Booths are one option to create group study space, and are usually clustered together in connective spaces or near cafes.

2. Educational benefits : Can be used for collaborative work or socialising, or one-onone assistance Useful to spread work out Teachers can observe and guide but not lead Agood space for teachers to meet up

•Presentation Space :

INSTITUTE OF DESIGN

1. Quality of space :A large open work area, to accommodate a big group This space would benefit from a projector, and a flat wall surface/ screen.

MANALI LONDHE

SINHGAD COLLEGE OF ARCHITECTURE

Fig 33 Individual study
Fig 34 Grouped Study
Fig 35 Presentation Space

2. Educational benefits : Good for facilitated discussions, questioning and answering. It would allow teachers to present ideas, and then break up into smaller group study. Gives students practice for class presentations.

•Interactive Space :

1. Quality of space :A mix of fixed computing tables, comfortable seating and flexible furniture are ideal. These areas offer users a choice of individual or group spaces, with or without fixed technology. Whiteboard space would work well, and technology would be required.

2. Educational benefits : This would be a space conducive to problem solving. These spaces would allow for groups to interact in new ways, and foster creativity and inspiration. Possibilities for gaming, media, prototyping.

•Circulation Space :

1. Quality of space :Corridors and halls which sit next to classrooms or offices are often overlooked spaces that could be used more effectively. Circulation space could be used for learning spaces, including individual or group study. They are likely to be high-traffic areas, so management of these spaces would have to be considered.

2. Educational benefits : Creating learning spaces in circulation spaces, would allow groups or individuals to break out from the classroom and maintain teacher supervision It would make learning more visible throughout the school, not just in the classroom

•Social space :

1. Quality of space :people need places where they can meet with friends and socialise both inside and outside. These spaces would benefit from being inspiring and motivating and give pride in being at school They should have the opportunity to help shape what their spaces look and feel like

2. Educational benefits : social spaces allow for informal peer learning, socialising and sharing experiences.

Fig 37 Circulation Space
Fig 37 Interactive Space
Fig 38 Social Space

CHAPTER 3 : CASE STUDIES

3.1 NATIONAL INSTITUTE OFDESIGN

3.1.1

INTRODUCTION :

The National Institute of Design (NID) is internationally acclaimed as one of the foremost multi-disciplinary institutions in the field of design education and research. The institute functions as an autonomous body under the department of Industrial Policy & Promotion, Ministry of Commerce & Industry, Government of India. NID has been declared ‘Institution of National Importance’by the Act of Parliament, by virtue of the National Institute of Design Act 2014

NID is recognised by the Dept of Scientific & Industrial Research (DSIR) under Ministry of Science & Technology, Government of India, as a scientific and industrial design research organisation.

NID has been a pioneer in industrial design education after Bauhaus and Ulm in Germany and is known for its pursuit of design excellence to make Designed in India, Made for the World a reality.

3.1.2 PROJECT BRIEF :

Architect: Gautam Sarabhai & Charles Eames

Established in: 1961

Location: Paldi, near the Sardar Patel Bridge.

Climate: Hot and dry summers & moderate winters

Floors : G+2

SiteArea: 80,000 sq.M

Built Up Area: 27,488 sq. m (approx.)

Accessibility: Railway station: 4km

Bust stand : 3km

Airport: 13km

Slope: The site is sloping towards the river

Ground level :The ground level is 2.51m below the high flood level.

INSTITUTE OF DESIGN

SABARMATI RIVERFRONT

RESIDENTAIL AREA

Fig 39 Google Earth Image

It is an open-air venue used for entertainment, performances, and sports

An old structure is retained by the architect and constructed a stage in front of it , so as to used it as a background

It is an open-air venue used for entertainment, performances, and sports.

An old structure is retained by the architect and constructed a stage in front of it , so as to used it as a background

3.1.4 CIRCULATION

 Vehicular circulation is restricted to the entrance of the Campus

 But it is possible to go from residential areas to academic areas Pedestrian & vehicular routes are not Separated.

 Roads : 8m Pathways : 2m

INSTITUTE OF DESIGN

A pathway covered by vegetation that connects the academic zone with residential and is used by staff and students.

A cafeteria is provided at the admin and institutional side of the site so as to be used by students, staff, and pubic. While the road on its side leads to the hostels

An open ground is provided at the southern side of institutional building as a common gathering spaces for programs, events and open conducted classes. It is named after Ar, Charles Eames .

46 Canteen

A cafeteria is provided at the admin and institutional side of the site so as to be used by students, staff, and pubic. While the road on its side leads to the hostels

Fig 45 Main Entrance
Fig 43 Pathway
Fig 42 Side Entrance
MANALI LONDHE
SINHGAD COLLEGE OF ARCHITECTURE
Fig 41 Amphitheatre
Fig 44 Eames Plaza
Fig
Fig 45 Site Plan
:

• The architect’s main emphasis has been on structural Clarity leading to functional perfection in the largely complex spaces like studios and workshops.

• The whole process of building the physical form around two main courts and planning the grid based on function makes the building easy to use and understand The massive blocks of NID devoid of any aesthetically features, suggest an introvert planning

Fig 47 Ground Floor
Fig 53 Slab opening in covered passage
Fig 49 Courtyard
Fig 48 Covered long span pathways on stilt
Fig 50 Displays along passage
Fig 52 Recreational Area
Fig

61 Passage leading from library to studio with courtyards adjoining it

Fig 57 Shades by trees in courtyard
Fig 58 Water fountain (used for cooling air)
Fig 62 : Hierarchy of open - semi open - built mass & circulation
Fig 55 First Floor
Fig 56 Sitting near library
Fig 59 Section
Fig 60 Workshops
Fig
Fig 65 Auditorium
Fig 70 : Hierarchy of open - semi open - built mass & circulation
Fig 63 Second floor
Fig 67 Section
Fig 69 Vertical circulation kept in the semi open area
Fig 64 studio used as workshop for students
Fig 66 classroom
Fig 68 Terrace connected to studio

3.1.8 INTERACTION SPACES :

For creativity to flow in, a space should be designed in a formal and informal way so that people can think freely and share their ideas which creates a diverse range of activities to create a social breathing space. It can be seen in:

1. Common spaces are provided at the centre of wings with different courses or on the ground floor near the exhibitions and display areas.

3.1.9

It is important for a designer to have an environment which inspires him In this institute we can see that in three forms :

2. In this institute staircase and ramps are not kept as a part of services but merge them along with courtyards and common areas so as to give maximum vertical communication between people and give aesthetical appeal to the building.

3. The studios have in formalness of the working methodology which is very important basic of the design education. It has the flexibility to change its planning according to the use needed

4 Studios have a connected common terrace or courtyard to them so as the students can have free space to work and less limited virtual boundaries

1. Nature : There is a coalesce between built and unbuilt. All the studios and workshops are been surrounded by either a courtyard or a terrace or the Eames plaza. The building is bounded by an extensive green lawn which encourage free movement through it.

2. Exhibition areas : Light filtering into semi dark ground floor along with yellow lights, creates the play of light and shadow. It is placed along side of passages from where students passages daily

3. Display areas: All circulation areas and common spaces are used for displaying students work in the form of panels, and posters.

INSTITUTE

Fig 72 Studios and its use as a classroom
Fig 74 Studios and its use as stage
Fig 73 Studios and its use as workshop
Fig 71 Common areas used for informal discussion
INSPIRATIONAL SPACES :
Fig 75 west side of building surrounded by Eames plaza
Fig 77 Posters put out on building during events
Fig 76 Open exhibitions around passage

•This building has a composite structural system.

•The major materials of construction are – RCC column, brick in the internal space and outer facade, double curved shell, waffle slab and metal I section are used in workshops

•Basic dimension of grid is 12.3m X 12.3m, 6.15m X 6.15 m Centre to Centre, forming 2 different modules.

•Metal sections are used as floor for second floor. Electrical fixtures are suspended on this over head grid. The flooring of this floor is made out of two modules. 5cm channel is maintained within this two module for the electrical lines to pass through it.

•The core of the building is distanced from workshop to Eliminate vibrations and material borne noises.

•The whole process of building the physical form around two main courts and planning the grid based on function makes the building easy to use and well ventilated.

•They have placed the fountain in courtyard in such a way that the wind carries the tiny droplets of water in the building, thus increasing the coolness.

•Studios are been given a buffer area so that the sunlight and rainwater doesn’t seep in.

•This area can also be used by the students for their work

1. Waffle slab on the ground floor were used to circulate the electrical wires & place the Lights at its centre.

2. This wires enclosed in wooden battens provides easy maintenance

Fig 80 :The slab is grid of waffle beams with columns spaced at a distance of 12m c/c
Fig 81 :The slab is grid of waffle beams with columns spaced at a distance of 6m c/c
Fig 78 use of girders and stanchions for workshops Fig 79 Basic module of structural grid
Fig 82 longitudinal section
3.1.12 SERVICES :
Fig 84 buffer areas used by students
Fig 85 ceiling above recreational area
Fig 86 section through the slab
Fig 83 Water fountains

1. Under floor electric wiring is laid in the channels below the flooring and filled with mass concrete.

2. Changes in machinery layout can be made at any time by simply removing the mass concrete in the channels and changing the under floor electric connections as when necessary without any damage to the concrete flooring.

Fig 88 Section through projection

3. All the projected chajjas were used to hide wires, cables, and ac ducts.

4. Electric light fixtures are suspended from the roof beams. They have been so designed that additional tube lights can be filtered if illuminations is required

5. Ducts for housing various services are an integral part of design of building.

WIRES

PROJECTION BEAMS

INSTITUTE OF DESIGN

1. Construction with exposed bricks and RCC framed catches everyone’s attention

2. The external cladding is prefabricated and consist of heat resisting glass in metal frames in workshops and in rosewood frame in studios.

3. feeling of informal atmosphere has been achieved with a low ceiling for a large open entrance space.

4. Materials in exposed form thus provided under lit surface giving a feeling of intimacy.

5. An informal set up of reception and waiting space with informal rural kinds.

Red

Fig 90 Section through ceiling
Fig 89 Ceiling above classroom
Fig 87 Projections along the passage
Fig 91 Exposed RCC system
Fig 94 Red painted steel staircase
Fig 93 Curtain wall used in faculty rooms for adequate light
6.
painted steel staircases are used in common areas for aesthetical effect
Fig 92 Use of steel structure in workshops

1. All the workshops and laboratories, administrative offices and a showroom are located on the first floor. Thus 9570 sq. metres of floor space becomes available on the ground floor, which is profitably utilized as public area, common-rooms for staff members and students, canteens, and for the storage of raw materials such as logs of wood, iron, steel, etc. not likely to get damaged by the occasional flood.

2. Each technology (such as wood, metal, plastics, ceramics and glass, printing and photography) is assigned a separate wing connected to the central core (which can be used for product assembly) but separated from each other by courts

3. Open to sky terraces in between the workshops and studios provide outdoor work areas

4. Provision has been made for expansion, not only of each workshop but for three new workshops in the future

5. The showroom can be reached directly from the main road on the north by a narrow bridge for pedestrians.

6. Drafting studios, seminar rooms and the library are on the mezzanine floor. Double glazing between the studios and the workshops enables students to see what is actually happening on the production floor, without however, being disturbed by the noise from the machines.

7. Spiral staircases from the studios provide direct access to the workshops.

8. The staggering of the studios to the east and the west permits open planning and at the same time ensures privacy.

9. The library has a lounge with open book-stacks for browsing and a separate area for quiet study.

10. Garden terraces attached to the library overlook the river to the north.

11. All workshops and drafting studios have a north-south orientation in order to avoid direct sun- light in the work areas.

12. The core of the building is structurally separated from the workshops, so as to eliminate vibration and material-borne noise being carried from the workshops to the studios.

MANALI LONDHE

3.2 NATIONAL INSTITUTE OFDESIGN

Gandhinagar

3.2.1 INTRODUCTION:

NID Gandhinagar was established in the year 2004. The institute offers many postgraduate and doctorate courses. These include subjects like Animation Film Design, Apparel Design, Film and Video Communication, Furniture and Interior Design, Interaction design, New Media Design etc. This institute is regarded as the Institute of National Importance. The institute is approved by the All India Council for Technical Education (AICTE) and theAssociation of Indian Universities. The institute has extended its study programs and added more postgraduate programs in the curriculum over the years These courses are taught by expert NID faculty members with years of experience in the related field This experience enables them to make the most of their knowledge by imbibing it in the students. These ambitious and dedicated faculty members aim toward academic excellence. These NID Gandhinagar courses are available in full-time options with a duration of two and a half years. The institute offers full-time two and a half years of design courses in NID Gandhinagar, on PG level. The M.Des course is offered in various disciplines of design, design management and merchandising.

3.2.2 PROJECT BRIEF :

Architect: Sen Kapadia

Established in: 2005

Location: Extension Road Near Infocity, gandhinagar

Climate: Hot and dry summers & moderate winters

Floors : G+1

SiteArea: 64,749 sq.M

Built UpArea: 16,137 sq. m

Accessibility: Railway station: 20km

Bust stand : 19km

Airport: 22km

Vehicular movement

Pedestrian movement

INSTITUTE

MANALI LONDHE SINHGAD COLLEGE OF ARCHITECTURE
Fig 96 Site plan
Fig 95 Google Earth Image

• Design concept

1. The 15-acre NID PG campus project at Gandhinagar, Gujarat, incorporates a medieval street with buildings opening on to the path while the individual structures bring in the sun patterns, while flanked by greenery around as well as on their roofs

2. The master plan is evolved as a dense linear layout with centre dense street, suggestive of traditional shaded and interactive streets ofAhmedabad.

3. Deep recesses shade the buildings from the harsh sun while the north side is left open for entry.

4. The low structure is craftily designed to merge into the landscape, thus blending the built and unbuilt spaces into a sustainable compact experience.

5. The building reveals as a dynamic form with specific scale and character assigned to the different academic, residential and public spaces to create a vibrant campus plan.

• Outer street :

1. The outer street having a series of landscaped and variable built forms

2. Main institute building comprises of classroom, labs, studios &administration areas which is in northern zone

3. On southern edge with landscaped slopped embankments on design shop, design gallery and auditorium.

Fig 40 Site Zoning
Fig 97 Pathway between main building and amphitheatre
Fig 101 Site Zoning
Fig 100 Concept planning
Fig 98 Main entrance
Fig 99 entrance to academic zone
Fig 40 Site Zoning

 The internal street provides connectivity to various academic disciplines & is interspersed with courtyards for spontaneous informal assembling.

 Roof of the same plays with Light and shadow, a wonderful design element.

 Courtyards with their concrete trellis further allow diffused light to filter in, forming interesting patterns while cutting heat ingress Arches prevail, each cut into interesting unconventional forms, their slants cutting the heat while serving as structural art in the courtyard The lounge for the faculty reveals equally interesting design and experience, the walls folded without a set pattern or rhythm, yet forming the poetic rhythm of the space

INSTITUTE OF DESIGN

Fig 101 Entrance lobby with ramp
Fig 102 Open conference room placed along side of atrium
Fig 103 Atrium
Fig 104 Media design studio
Fig 105 rear entrance from recreational area
Fig 106 Punctures in atrium
Fig 107 Ground floor

 First floor consists of all kinds of labs like digital lab, MAC lab, historic process lab, mechatronics lab & studios like LAD & photography.

 It also includes dark room

 Planning is done around 3 atriums to allow ample light and openness to the building

MANALI LONDHE SINHGAD COLLEGE OF ARCHITECTURE
Fig 111 Open staircase in atrium
Fig 110 photography studio
Fig 109 passage connecting academic to recreational zone (lockers placed along the wall)
Fig 108 Historic process lab
Fig 114 First floor
Fig 112 Courtyard
Fig 113 recreational zone in atrium
Fig 107 Ramp connecting to 1st floor

1. The large courtyard, partially covered gives openness to the whole interior..The second and third courtyard, rich in greenery gives atmosphere a cool and open feeling & also accounts for lighting & ventilation.

2. The daylight filtered in patterns fall all over interior. The roof is inclined a bit so that the whole daylight can be captured from morning to evening.. Light falls first over the library, then to the ground.

3. The institute has put ramp & staircases in the outer side of courtyard. This acts as aesthetics as well as functional element.

4. The Table Tennis court has stairs and corridor around it, so that audience can watch the game from around.

5. The partition wall given in a wavy form and seating provided in the gaps, prove as an effective usage of space.

6. The partition wall given in a wavy form and seating provided in the gaps, prove as an effective usage of space.

3.2.7 STRUCTURAL SYSTEM :

1. The structural system is a combination of RCC and steel.

2. As the building comprises of non monolithic structure & a number of courtyards and atriums the distance between columns is more along with its alignment, due to which heavy columns of RCC would had been required but they are replaced by less diameter stanchions and girder.

3. The structure and planning is bound to too many restrictive parameters created by the concepts hence flexibility can’t be achieved.

4. Coffered Slab is utilised as design element by providing lights in the grids

INSTITUTE

MANALI LONDHE SINHGAD COLLEGE OF ARCHITECTURE
Fig 117 diffused light patterns falling on built
Fig 116 open staircase
Fig 118 Different uses of partition wall
Fig 120 grid pattern of academic block
Fig 119 concept sketch of cluster of different areas
Fig 121 academic block is based on cluster form , interconnected & phased development.
Fig 115 Informal discussion or meeting area provided facing the large courtyard.

All the wires are concealed in the slab and the lights & fan are hung from the ceiling .

Core cutting is done for ducts.

All pipes are taken from corner of courtyards thus the outer elevation of building is not disturbed.

It is important to provide air conditioning to every studio and workshop for which its ducts and compressor should not disturb the elevation, hence ac compressors are hidden in two way shown below.

 The street spine of the institute is been shaded by the recreational area on the south side.

 All projection used as shade and protection for openings in building doesn't have a typical chajjas, but are used for multiples purposes and are given dynamic angles for aesthetical appeal.

 The design accounts for the extreme climatic factors by adhering to passive solar architecture with natural cooling and day lighting supported by north-south orientation and roof cover to avoid heat.

Faculty cabins on south side of the building have walls treated according the climatic response needed

They are provided with vertical angular windows to prevent direct rays of harsh sun & provide diffused light & ventilation.

LONDHE
Fig 122 Outlets ofAC used in interior offices are hidden in false ceiling
Fig 123 multi use as chajja for opening below and to hide ac outlets above
Fig 124 section of projection
Fig 125 South side
Fig 126 North side
Fig 127 faculty cabin
Fig 128 section through cabins opening

The roof above second atrium has been designed such that the sun rays entering from south side opening falls on the slant part of the roof and then gets reflected.

Due to this we get diffused light .

3.2.10 SITE SECTION :

1. For exterior :

• R.C.C. frame structure with steel columns supporting the atrium roof.

• Stone grit kota chips finish is used in the outer facade of the building.

• The landscape becomes a neutral backdrop to highlight a building. The building is like a spread of ‘fragments’ appearing to open out their arms to the surroundings The landscape then filters into the built fabric, appearing to be stitched into the sloping earth lands.

2. For interior :

• Granite & marble flooring in entrance foyer and circulation space.

• Stanchions used in atrium are painted red.

• Stone grit kota chips finish used for parapet, beams, and ramp.

• Walls painted with Plain cement floor finish in classrooms & labs

MANALI LONDHE SINHGAD COLLEGE OF ARCHITECTURE
Fig 131 Section through academic and recreational zone
Fig 134 Atrium
Fig 129 Section through roof
Fig 130 Roof of second atrium
Fig 132 RCC perfectly blended with landscape
Fig 133 Stone grit column

1. It is essential in this project to provide functional environment but experimental architecture has opposed to create just a visual iconic landmark, things happen as you keep going and each one individually is not great but the total experience is great creating an intense feeling of release.

2. As a result, the student or visitor to NID experience a meandering street analogy being a character of traditional shaded interactive streets ofAhmedabad.

3. The building reveals as a non-monolithic form with specific scale and character assigned to the different academic, residential and public spaces to create a vibrant campus plan.

4. Function works with the form to deliver the convocation grounds where open stage gets aligned with buildings which provide seating during functions and isolation work as landscape elements.

5. The multifaceted atrium offer opportunity for interaction, landscaping and essential student activities.

6. The campus design is an incompatible structure for the intended function as a design school.

7. A design school like NID, which holds the pride of being the fore runner of design in India need structure which can rapidly evolve to the ever changing requirements This building fails because the structure and planning is bound to too many restrictive parameters created by the concepts

MANALI LONDHE

3.3.1

INTRODUCTION:

3.3 VARE BUILDINGALTO UNIVERSITY

FINLAND, EUROPE

Väre is a part of a block containing over 47 500 square metres of floor space: more than the Kamppi shopping center in downtown Helsinki The walking routes and spatial elements inside the Väre building create a village-like feeling and interesting and usable series of spaces

Väre is an energy A-rated building, and uses only renewable energy The building is 90% self-sufficient in heating and cooling, and it has solar panels on its roof to generate electricity. The block was designed by Verstas Architects, consisting of the alumni of Aalto University, which won the international architectural competition held 2012-2013. The main designer is Jussi Palva from Verstas Architects. The name refers to a slight movement on water, caused by touch or other slight interference.

The building contains:

1. Shared spaces for the School of Business and the School ofArts, Design andArchitecture

2. Kipsari

3. Metro station underground

4. Aalto University Shop

5. Vare gallery spaces

3.3.2 PROJECT BRIEF :

Architect: VerstasArchitects

Established in: 2018

Location: in the alto university, Espoo, Finland

Climate: long cold winters & short rainy summers

Floors : G+3

SiteArea: 45400 sq. m

Built UpArea: 27014 sq. m

Accessibility: Metro station: 0 km

Airport: 23 km

Slope: The site is a flat land.

INSTITUTE OF DESIGN

Main building

Old design school

New square

School of business

School of design

School ofArt

• The architectural character of the core campus building will enable flexible, interdisciplinary encounters through a variety of spatial arrangements. The building produces a convincing variety of spatial arrangements that are adaptive and flexible to suit changing needs and facility solutions

Fig 137 Site plan
Fig 138 East side of building
Fig 139 North side of building
Fig 143 school of design
Fig 140 Building zoning
Fig 142 school; of business
Fig 141 school of art

 It is a new type of education venue that combines design & business under same roof along with underground station & retail spaces. It is dedicated to the concept of doing things together.

 The new square is the focal point of Aalto Campus. It brings together new and old university buildings, the entrance to an underground station and retail spaces.

 The complex hosts 1,850 students and 350 employees.

 The large new building is carefully adapted to the scale of the Otaniemi campus that is world-famous for mid-20th century functionalist architecture

 The Väre Building adapts to the cosy scale of its surroundings World-famous architects Aino and Alvar Aalto's master plan for the Otaniemi district in the 1940s created a village-like campus area. The new building complex is huge, but it is designed to appear as clusters of smaller buildings that have a comfortable scale – a principle reminiscent ofAaltos’design for the old main building.

1. Rather than giving conventional passages they have designed it in such a way that it can be used as gathering space, small cafes, personal reading spaces, etc.

2. The varying heights of building volumes create an impression of a compact cluster of small buildings.

Clad in red brick and printed glass, the new building complements AlvarAalto’s original Otaniemi campus.

3. The organizing principle for the new premises is a structural matrix based on two principal coordinates ofAlvar Aalto's main building and library.

Fig 144 Vare building, new square &Alvar Alto main building and library
Fig 145 Rearranging blocks for creating recreational areas
Fig 146 placement of all blocks
Fig 147 use of two principal axis from the main building as start point

3.3.4 INTERNAL PLANNING : LEVEL0

• Learning facilities are nested in two clusters, each arranged around an atrium, producing a wide variety of flexible spatial combinations.

•Spaces in Väre are arranged more according to the type of use rather than the discipline.

•Different kinds of workshops are all on the ground floor, with views to the park.

3.3.5 INTERNAL PLANNING : LEVEL1

•1st floor – Service, Department ofArt, Department of Film, and Department of Media

•Lively meeting areas and interdisciplinary project spaces are on the second level and spaces.

•The main lobby descends from the new square to the park.

MANALI LONDHE
SINHGAD COLLEGE OF ARCHITECTURE
Fig 149 Cafeteria
Fig 150 Gathering space below the atrium
Fig 151 workshop
Fig 155 Section
Fig 152 Atrium lobby with entrance on 1st floor and retail shops on ground floor
Fig 153 Workshops in atrium
Fig 148 Ground floor
Fig 154 First floor

• For concentrated study and research are on the upper floors.

•Studios are placed on the second and third floor , which are placed along atrium and open space

•2nd floor – Service, Department of Design / ARTS-BIZ Shared programme (CS, IDBM)

•Level 3 consists of less covered spaces and more open terraces.

•3rd floor – Service, Department ofArchitecture /ARTS-BIZ U level service

•The double height studios and seminar halls on the second floor continues on the third floor.

Fig 156 Studio
Fig 157AV Room
Fig 158 Labs
Fig 160 Atrium lobby of business school
Fig 161 Printing Lab
Fig 162 Sewing workshop
Fig 159 Second floor
Fig 39 Picture A

1. The architect aimed to encourage encounters by placing workshops of different fields on the same floors and mixing staff and student spaces This means that some of the spaces are very concretely shared

2. The building is a place for casual encounters between students and teaching staff, for intense creation, teaching and research in creative and business fields. This cooperation is expected to foster new types of start-ups, companies and future talent.

4. The building provides a variety of spaces for different learning situations. Project spaces and offices can be rearranged. New and innovative pedagogical and study methods might arise in the years to come, and they need to be met in a flexible manner.

5. Adaptable and flexible learning spaces are arranged around skylit atriums. Workshops are on the ground floor, meeting areas and project spaces above.

6. Circulation area are used as following spaces :

• Individual study area,

• Exhibition area,

• Lockers along the passages.

Fig 163 Area zoning of gathering space
Fig 166Area below staircase used as cafe
Fig 165 The glass walls of the workshops reveal the creative activity in the building
Fig 164 Recreational area near the entrance of building
Fig 169 Lockers placed along passage
Fig 170 Passages used as display area
Fig 168 Passage area used for individual study
Fig 167 Atrium lobby used as workshop space

3.3.9 STRUCTURAL SYSTEM :

•The building is mainly made of concrete and composite beams.

•There are plenty of steel structures in the roof lights, staircases & the beams of longer spans.

•The facades include brick-clad precast units and glass surfaces, which required complex joint detailing between the structures.

•There’re altogether 23 “cubes”. Each Consisting of precast units.

•The number of “cubes” was a challenge for structural design. Although the building units include plenty of similar features, they could not be copied as such but required separate designs.

3.3.10 MATERIAL EXPRESSION :

1. For exterior :

• Clad in sturdy red brick and light printed glass, the building complements Alvar Aalto's original Otaniemi campus.

2. For interior :

• Hand-laid brick walls are used in shops below.

• School of business: Limestone flooring, oak and warm colour painted on metal baffle create an ambiance that is both cozy and dignified

• School of design: Sculptural, painted steel stairs cross the atriums as a contrast to the neutral colours of the study areas.

MANALI LONDHE
SINHGAD COLLEGE OF ARCHITECTURE
Fig 175External facade of building
Fig 176 Shopping centre
Fig 178 use of wood in business school
Fig 177 School of design
Fig 171 Roof structure of atrium
Fig 172 Foundation of building
Fig 173 Working drawing of a unit cube
Fig 174 Structural system of building

1. While designing this building, the Verstas Architects knew that it is going to be in a close proximity to iconic old main building designed by Alvar and Elissa Aalto, today the Undergraduate Centre, which is the landmark of the campus. Hence the large new building is carefully adapted to the scale and appearance of its building and of the Otaniemi campus that is world-famous for mid-20th century functionalist architecture.

2. The new square creates a focal point ofAalto Campus. It brings together new and old university buildings, the entrance to an underground station and retail spaces.

3. VerstasArchitects challenges were

• Firstly, how to update the iconic functionalist campus and do it in the context of the work ofAalto and the national scenic area status the campus has.

• Secondly, how to unite the schools of design and business in the new building complex, while maintaining their identities,

• Thirdly, how to foster new ways or learning and teaching, for example, learning with modern technology, learning together and teaching in constantly changing programmes.

• VerstasArchitects’solution to the challenges was repeating a simple, modifiable module, whose arrangement both creates social learning environments and adapts the large new building complex to the landscape of the campus.

4 Spaces in Väre are arranged more according to the type of use rather than the discipline Different kinds of workshops are all on the ground floor, with views to the park Lively meeting areas and interdisciplinary project spaces are on the second level and spaces for concentrated study and research are on the upper floors

5. The building adapts the classic courtyard university typology to contemporary ways of learning. The spatial layout based on a lattice of simple project space units supports interaction and flexible use. The carefully planned spatial sequence unfolds with rooms arranged around sky-lit atriums that open views to all the floors and the stairs connecting them.

6. The main lobby extends through the building and connects different levels together.

7. Inside the building all the spaces have a Transparent walls or are partially visible to reveal the creative action in the project spaces to the public.

8. The workshops for different design disciplines are all located on the ground floor, and are visible to the park or the public lobby.

9. Use of steel stairs cross the atriums and painting it as a contrast to the neutral colours of the study areas provides for different level of interaction.

In Paldi, The commercial capital of Ahmedabad. Near infocity Gandhinagar In theAalto university, Espoo, Finland.

Location for an institute building is best suited for a calm and quiet neighbourhood.Acampus encourages detail facilities and educational decorum than a private tower in a city.

CIRCULATION

CAMPUS ZONING

Public vehicular circulation is restricted to the entrance of the Campus.

But pedestrian & vehicular routes are not Separated inside.

Visitors parking is kept near the main entrance, while parking for residents is given in residential zone.

Public vehicular circulation is restricted to the entrance of the Campus.

But pedestrian & vehicular routes are not Separated

Vehicular circulation is provided along the periphery of the site while pedestrian is seen through new square.

Vehicular circulation should be provided along the periphery of the site, while pedestrian route should be given through out the site.

. Visitors parking is kept near the main entrance, while parking for residents is given in residential zone.

The architect’s main emphasis has been on structural Clarity leading to functional perfection in the spaces like studios and workshops. The building is around two main courts makes the building easy to use and well ventilated.

The master plan is evolved as a dense linear layout with centre dense street, suggestive of traditional streets ofAhmedabad.

The building reveals as a dynamic form to create a vibrant campus plan.

parking is given in between old & new building which is also near to the shopping centre.

Visitors parking should be kept near the main entrance & parking for residents should be given in residential zone.

The principle for the new premises is a structural matrix formed of the two principal coordinates ofAlvar Aalto’s main building - library. Adaptable and flexible learning spaces are arranged around sky-lit atriums. Workshops are on the ground floor, meeting areas and project spaces above.

The building should be such that it can be transformed according to the needs at the time. The institute should encourage creativity among students, it should use circulation area as informal space for gathering..

Entrance office, Public relation office & incubation centre is at the start of site, residential zone is placed at the end of the site while recreational is placed between academic and residential.

Entrance office, Public relation office is at the start of site, then institutional zone is placed on northern side of main pathway and recreational on the sour then side. Residential zone is placed at the end of the site.

Entrance office, Public relation office & incubation centre should be accessible first, residential zone at the end of the site while recreational placed in such away that it connects academic and residential zone.

16

VERTICAL ZONING

Public areas (admin & office) are on the ground floor

Semi-public and private (office & studios) on 1st floor. Private (studios) on 2nd floor.

Building the physical form around two main courts and planning the grid based on function makes the building well ventilated.

Public areas (admin & office) are on the ground floor.

Semi-public and private (office & studios) on 1st floor. Private (studios) on 2nd floor.

.The internal street provides connectivity to various academic disciplines and is interspersed with foyers and courtyards for spontaneous informal assembling, which are covered with landmark signage and display potentials.

Public areas (admin ,shops workshops ) are on the ground floor.

Semi-public & ( meeting & interdisciplinary project areas ) on 1st floor. Private (studios) on 2nd & 3rd floor.

Rooms are arranged around interior courtyards that open views to all the floors and the stairs between them, which creates a sense of space. The public lobby stands out from the other spaces and helps users orient themselves in the building

Public areas (admin ,shops workshops ) are on the ground floor.

Semi-public & ( meeting & interdisciplinary project areas ) on 1st floor. Private (studios) on 2nd & 3rd floor.

All the spaces like studios, workshops, labs, library should be well connected with the outer surrounding. Hence a good builtunbuilt ratio should be followed.

17 OPEN - SEMI OPEN SPACES

In this each built space intersects with two smaller unbuilt and circulation is passed through these spaces.

In this the built space has a larger atrium with openings in its centre and the circulation is kept around the built mass

In this there are three number of smaller atriums in between 4 built masses and the circulation is kept around the built mass.

Acommon space should be given in between the built mass which acts as climatic response and people can use it for maximum interaction. 19

LIGHTAND VENTILATION

All studios are on the external walls and well-lit with natural light. The sliding panels from skirting to sill height provides sufficient natural light & ventilation in workshop. All studios are on the external walls & well-lit with natural light. Faculty cabins on south side are provided with vertical angular windows to prevent direct rays of harsh sun & provide diffused light & ventilation.

The structural system consists of RCC with a module grid, which is used multiple times, and double curved shell, waffle slab.

STRUCTURAL SYSTEM

The structural system mostly consist of RCC, but in places where more clear span is required, steel is used

Studios are placed on the second and third floor, which are placed along atrium and open space on either side of it for maximum light and ventilation. All studios and workshops should be well-lit with natural light and ventilation.

There’re altogether 23 “cubes”. Consisting of precast units, the building is mainly made of concrete and composite beams.

INSTITUTE OF DESIGN

The building should have a Structural system that can make it flexible enough for any transformations made in according to the needs.

Space for individual or paired study could be located

-Passage

-Staircase

-Cafeteria

-Seating's along side of courtyards

-Seating on other side of partition wall

Space for Group study could be located :

-open lawn

-RecreationalArea

-Cafeteria

-Designed seating in open spaces

Space for Presentation space could be located

-Semi –open exhibition area

-Merging of two classrooms

-Entrance arena (recreational area )

-Open workshops

CHAPTER 4 : DESIGN PROGRAM

 Map all the National institutes of design in India

CHAPTER 5 : SITEANALYSIS

 Other than these states, locate a place which has a efficient no of industries and institutions and which is known nationally as well as internationally and has more number of industries for placement.

5.1.1 Geographical distribution of design industry

 It has been seen that the major concentration of the design companies is in four urban areas wiz. Mumbai, Delhi, Bangalore, Pune.

 All these four cities are industrially active and are home to majority of well known Indian companies .

 The presence of leading education institutions in these cities is also another reason for concentration of design companies in these cities.

 Design industry statistics:

 Charts shows the maximum concentration of designer is in the area of architecture as compared to various design disciplines

 The obvious reason is that architecture as a domain of study and practice has been well entrenched for a long time.

INSTITUTE OF DESIGN

5.1.2 Site deduction

1. From the above analysis following cities are selected;

• Nagpur

• Kolhapur

• Lonavala

• Solapur

• Goa

• Lucknow

2. It is believed that design is used only by larger companies, thus smaller companies don’t get a part of it, this not being true a city should be selected which has more number of small industries which can use design for boosting there economy and hence participating in ‘make in India’initiative. The cities are as follows;

SOLAPUR

•Less industries which can tie up with design institute.

•Not so strong cultural background.

•Limitation to being internationally known.

GOA

•More industries which can tie up with design institute.

•Strong cultural background can help in a lot of ways to a design institute.

•Internationally well known.

Fig 182 State map of Goa

5.2ABOUT GOA:

•Goa is a state in western India with coastlines stretching along theArabian Sea.

•Goa is visited by large numbers of international and domestic tourists each year for its beaches, nightlife, places of worship and World heritage listed architecture.

•Goa had India's earliest educational institutions built with European support, like Saint Paul's College and Goa Medical College

•The Population of Goa in the year 2019 was 14,58,545

•Goa is divided into two parts :-

1. North Goa : Mostly known for tourists spots like churches, beaches, markets, serendipity and other events.

2. South Goa : Mostly known for accommodation and luxury hotels.

5.2.1

Climate :

•Goa features a tropical monsoon climate.

•Goa, being in the tropical zone and near the Arabian Sea, has a hot and humid climate for most of the year. The month of May is usually the hottest, seeing daytime temperatures of over 35 °C (95 °F) coupled with high humidity.

5.2.2

Events in Goa :

• There are a plethora of events held in Panjim throughout the year. From massive events attracting international audiences to small local events such as food and music festivals for the locals. They include:

5.2.3 Handicrafts of Goa :

•The local handicrafts of Goa truly make for colorful souvenirs.

•From intricate wood carving to colorful wooden lacquer ware, from sturdy bamboo craft to delicate papier-mâché, from fabulous terracotta and brassware to art pieces made from exotic sea shells, from intricate crochet and embroidery to rustic jute macramé, from delicate fiber craft to unconventional coconut masks, Goa’s art forms are as varied as the land itself

•The crafts of the state are intricately beautiful, capturing the fancies of tourists and locals alike

•These crafts are a mirror of Goa's perennial beauty and they have won critical acclaim of the connoisseurs of the art world.

•Goan lace can be found here, as are colorful masks, cotton bags, wooden toys, the excellent shopping bags and table mats woven from sisal or banana, coconut or pineapple fiber.

•The major art forms of the state include bamboo craft, woodcarving, brass metals, seashell craft, Papier-Mache, and wooden lacquer ware. Other important crafts are Jute Macramé, Fabric Collage, Plaster of Paris, Crochet and embroidery, fiber and batik prints along, fiber stone carving, coconut shell carving, metal embossing, silver and imitation jewelry, cotton dolls, soft toys, woolen tapestry, and artistic weaving.

•Goa does not lag behind as far as local arts and crafts are concerned and with the outstanding craftsmanship of the local artisans, it has managed to carve out a niche for itself in this highly competitive field.

Fig 183 Serendipity art festival Fig 184 International film festival of Goa
Fig 185 Local markets in Goa

5.2.4 Objectives of regional plan for GOARPG-21 :

• The main thrust of RP-2021 is to create a more vibrant and prosperous Goa - so that Goans, especially the young, feel confident they have a future here.

• We intend to create a Goa that has greater economic prosperity. A Goa that Goans are not tempted to leave - and those who have left, start thinking of coming back

• And we must do this in a manner that does not endanger the fragile eco-systems that make Goa what it is - the forests, the mangroves, the paddy fields, beaches and villages All these must be protected as part of our invaluable, and truly irreplaceable, heritage.

• We believe this can best be done in open and honest collaboration with people of Goa.

5.2.5 Issues and plans identified and given by goan authorities:

Fig 186 Issues identified by Goan authorities given in GOA RPG -21
Fig 187 Information of students participation in different games and events
Fig 188 Information of students participation in exhibitions
Fig 189Annual report given on site of Goa university
Fig 190 vision and mission for the institutions given in GOARPG -21

• The State of Goa is well known for it's abundance of creative and artistic thinkers. One of the primary difficulties faced by amateurs is that of establishing a career in the creative art fields.

• The existing schools of learning fail to address the concerns are problems that creative individuals face while trying to establish a career Such concerns include lack a access to equipment

• Studio and storage space, appropriate guidance and exposure, affordable and conductive workspace environments Hence the institute will focus on providing services and workshops

• Its main aim being to help individuals establish, maintain and further careers in the creative art fields by developing affordable and accessible shared space concepts as well as creating a platform rich in creative and collaborative energy.

• Proximity and shared facilities will encourage cross community perspectives.

From above pictures taken from Goa’s development and planning site and Goa university it can be concluded :

• In accordance with ‘community college’ programme diploma courses are added to the programme for product designing, interior designing, apparel designing and lifestyle accessory designing.

• To provide an event ground for open exhibitions and cultural events.

1. To provide design education and develop professionals excelling in confluence of Design, Technology and Management Skills, who will cater to Public & Private sectors, NGOs as well as small and large scale enterprises functioning throughout the Nation.

2. To collaborate with Government, Indigenous Industry and to promote Design exchange programs at national and international level with other Educational Institutes.

3. To provide outreach programs and Design training in various crafts clusters, MSMEs and other industries as well as to promote local crafts and heritage of the state.

4. To promote Design sensitivity in the community and impart values of Good Design in all sectors of the society, by organizing and participating in seminars, fairs & workshops and also, to reach out to students of various schools and colleges to create DesignAwareness.

INSTITUTE OF DESIGN

5.4 GOANARCHITECTURE:

•Goa's traditional art forms & architecture are strongly influenced by its colonial legacy.

•Goans display an infectious love of music, festivals, dance, poetry and literature, and a rich artistic and cultural heritage, seamlessly blending Indian and Portuguese elements.

•The architecture was inspired by European tastes, churches and houses bear a striking element of the Portuguese style of architecture, but the materials – red laterite stone, wood and terracotta, and oyster shells used instead of glass for windows – were all local

• Goan temples are another form of architectural hybrid, enfolding both Muslim and Christian elements into Hindu designs. Domed roofs a Muslim trait, while balustrade facades and octagonal towers are borrowed from Portuguese church architecture.

•The following factors affected house design in Goa:

1. Protecting oneself from the fierce monsoons was the basis of architectural form.

2. Portuguese rule allowed Goans to travel abroad; when they returned they brought with them ideas and influences from other countries. The Goan master builders executed these ideas using local building materials, making the Goan house a mixture and adaptation of design elements and influences from all over the world.

3. The European lifestyle was encouraged in an attempt to separate newly converted Goan Christians from their cultural roots. They adopted a European outlook but did not cut themselves off from their Indian roots completely. The resulting cultural fusion affected the house design.

5.4.1 Study of typical Goan street:

• Smaller width streets with roof sloping towards it

• Use of a primary colour on exterior side along with white border or vice versa

• Most of the openings have a semi circular arch.

• Some cafes have done some street art.

• The large balcoes had built-in seating, open to the street, where people can sit together and ‘see and be seen’, chat with their neighbours.

• These balcoes are bordered by ornamental columns that continues along the steps and added to the stature of the house.

• The houses of rich landlords had high plinths with grand staircases leading to the front door or balcao

OF DESIGN

Fig 192 Portuguese styled windows
Fig 191 Facade treatment to the externals of hotel
Fig 193 Seating placed in balcoes Fig 197 Elevated plinth of a house
Fig 196 Street art on external of a cafe
Fig 194 An alley in Goa
Fig 195 Arched openings

Conditions Response

Climate conditions High Humidity; high temperatures, cyclones

Dwelling spacing

Building depth

Detached houses, open spaces all around, good lighting courtyard plan facilitate high rates of ventilation external shading provided by thick vegetation all around.

Courtyard plan, high fenestration ratio Gable

windows provide attic ventilation along with crow

ventilation through courtyards, Lower story laterite

walls, high thermal capacity, upper floors spaces

walls low thermal mass.

Building orientation

Main street E-W axis sometimes 20 degree tilt (primary wind direction)

Materials walls-Lower story 500 nun Laterite; upper story slats on struts. Roof-Mud tiles, steep sometimes pitch Windows Decorative Jalis.

Fig 202 classification of different spaces
Fig 198 Good ventilation at body level
Fig 199 Protection from the fierce monsoons
Fig 200 Typical section across the alleys of Goa
Fig 201 Typical plan of alley

5.5 ABOUT SITE :

Location: The site is a vacant land allotted in the Goa university in rhrhrhhth Taleigaon town. It is 5km from the capital city Panjim.

Accessibility : Bust stand : 1km

Railway station: 17km

Airport: 22km

Connectivity : The site is accessible by 3 roads of 15m each.

Topography : The site is comprised of hill terrain with gradual slope

wegwegwggh merging into the Bondava lake on its northern side.

Site area : 33,530 sq.M

Land use : Institutional

View point : It is has a viewing point of lake towards northern side

5.3.1 Surrounding photos :

Fig 205 Site marked on DP of Goa
Fig 206 Site marked on google earth
Fig 203 Goa university main building
Fig 204 Shyama Prasad indoor stadium

TOWARDS LAKE

Accessible Not accessible Wind direction MENS HOSTEL

Fig 207 Orientation of Contours
Fig 208 Large ViewAreas
Fig 209 Three Axis Generates
Fig 210 Noise From Road & Ground
Fig 212 Section AA
Fig 211 Site plan

5.7.1 The Goa ( Regulation of land development and building construction ) act, 2008

 Building type : Institutional

 No development zone : The gradient exceeds 1:4

 Min. Width of access road : 6m

 Max. Permissible coverage : 33.33%

 Max. FAR : 100

 Min front setback : 5m

 Max height : 15m

 Parking area : 25m2 for floor area of 100m2

 Road width : 10m 15m

 Carriage width : 7m 9m

 Footpath width : 1.1m 2.5m

 Road corners diameter: 3m (for 10m road) & 5m (for above 10m)

 No. of toilets: 1 WCC for 100 students & 2 urinals for 150 students

 Maximum travel distance to the building - 22.5 m

 Minimum width of staircase up to 24 m in height - 1.5 m

 Minimum width of tread : 300 mm

 Maximum height of risers : 150mm, limited to 15 numbers per flight.

 Lifts – provision shall be made for building more than 12.5 m in height.

5.7.2 Swot analysis

STRENGTH

Located in university campus. Thus the surrounding area is of same use

The site is Accessible by three roads of 15m.

Lake view on sloping side of site

OPPORTUNITY WEAKNESS

The site on sloppy side above lake.

Thus the surface drainage of hill will pass through site.

One side shared by the playground and indoor stadium may cause traffic

Opportunity to create multi level and multi functional spaces as the site is sloppy land.

Contoured site will take care of the services

THREATS

 Three sides of site have dense foliage, & not connected to any road which may be a concern of security.

Threat of clumping of water during rainy season on site.

MANALI LONDHE

SINHGAD COLLEGE OF ARCHITECTURE

 https://www.educause.edu/research-and-publications/books/educating-net-generation/learning-spaces

 https://dipp.gov.in/sites/default/files/national_design_policy%20%20%20eng%201.pdf

 https://en.wikipedia.org/wiki/Make_in_India

 https://en.wikipedia.org/wiki/Kerala_State_Institute_of_Design

 https://epdf.pub/time-saver-standards-for-architectural-design-data-5ea7fbac981cc.html

 https://www.ads.org.uk/wp-content/uploads/Settings-for-Learning-Taxonomy-of-Spaces-Nov.pdf

 https://www.nid.edu/

 https://www.archdaily.com/904491/aalto-university-vare-building-verstas-architects

 https://www.aalto.fi/en/locations/vare

 https://verstasarkkitehdit.fi/projects/aalto-university/

 https://www.e-architect.co.uk/finland/the-aalto-university-vare-building-in-espoo-finland

 https://en.wikipedia.org/wiki/Goa

 https://goa-tourism.com/handicrafts

 https://www.serendipityartsfestival.com/

 https://iffigoa.org/

 https://en.wikipedia.org/wiki/50th_International_Film_Festival_of_India

 https://tcp.goa.gov.in/wp-content/uploads/2017/Regional-Plan-report-1-2-3/release%203_final_rpg2021.pdf

 https://www.unigoa.ac.in/

Turn static files into dynamic content formats.

Create a flipbook
Issuu converts static files into: digital portfolios, online yearbooks, online catalogs, digital photo albums and more. Sign up and create your flipbook.
Manali Londhe_Thesis by Manali Londhe - Issuu