coa- kodumba (2023)

Page 1


Kodumba is a village in the Palakkad Block of Kerala State, India’s Palakkad District. It is a part of the Division of Central Kerala. It is 5 kilometers to the south of Palakkad, the district headquarters. From Palakkad, 5 km. From the State Capital, 297 km Thiruvananthapuram.

NEARBY VILLAGES

• Gandhinagar Colony - 1km

• Canara Bank Colony - 2km

• Kenathuparambu - 2km

• Kunath - 2km

• Chandranagar Colony - 2km

FLORA & FAUNA

The village of Kodumba is located on the banks of the Bharathapuzha in the Keralan district of Palakkad.The Kodumbu Subramanya Swamy Temple, one of Kerala’s oldest Murugan temples, is the village’s most notable landmark. The Sengunthar Kaikola Mudaliyar, a community of weavers, occupy a sizable portion of the village.These Families left Kanchipuram during the Vijayanagara era.To aid the weavers, the kodumba Handloom Weavers Cooperative Society Ltd was founded in 1947.

CLIMATE DATA

LOCATION ABOUT WHY ?

The history of the village is very proud.Most of the buildings date back almost two thousand years.they used wood and mud as the main building materials, according to traditional construction techniques.They continue to adhere to the indigenous culture they adopted from their ancestors despite living in a highly developed world today. The village has not yet seen the development of industry.they lack many essential infrastructure facilities, which were researched and development proposals made.

ACCESSIBILITY

SOIL TYPE

Black soil is the most common type of soil. Although it is affordable and secure for foundations, building superstructures with it is risky due to its poor bearing capacity and shrinkage property.

The Nearest Airport Is Cochin International Airport At A Distance Of 69.8 Km
Olavakkod Railway Station Is At 7.5km Distance.
Palakkad Town Railway Station Is At A Distance Of 3.9 Km
Palakkad Bus Stand Is Located Within 3 Km From The Village.

Migrated from kanchipuram to kodumba Traversed to kolumampati for their thread

Heard a divine voice of lord Murugan while they traversed.

Moving idol of lord Murugan from where it was previously placed.

First chariot was constructed of 10 tones.

Commencement of trade and export via chittur route.

Migration of puppet makers from kodumbu.

Chariot 1 -

HISTORY

The first chariot was created over 500 years ago and was destroyed over time. Its height is 48 feet and weight is roughly 6 tons.

lord shivaShiva is one of Hinduism’s fundamental deities, and Shavites serve Shiva as the

Gopuram -

Built entirely in the dravida architectural style, it was constructed before the age of 80 and serves as a landmark for the entire village of Kodumbu.

Kodumbu ratholsavam -

Kodumbu ratholsavam, the temple’s yearly festival, is held over a 10-day period.Dieties are hauled through the streets in a chariot parade over the

Thai poosam-

Thai poosam is a very important festival associated with pilgrimage of kodumbu devotees from Tamil Nadu.

Chitra pau-

A celebration is held at the Lakshkulabayana Perumal Temple at the

Chariot 2 -

The entire chariot was built from a single eluppai tree about 1200 years ago.The chariot are 52 feet tall and weigh around 10 tonne .

Kodumbu, the nameThe bulk of muthalis that live

ARTS & CRAFTS

The weavers moved from Kanchipuram to Kodumba a very long time ago. As a result, they preserve the kanchipuram weaving tradition.Each weaver’s home is attached to a small thread factory. It is used to create weaving threads. However, due to how poorly clothing is weaved nowadays, these thread-producing machines sit idle. But they adhere to their traditions. Some people still use a charka and a weaving machine to weave using handmade threads.

The essential essence of kodumba culture is sculpture-making. Right now, the artists are working in front of their house.Their only source of revenue is the production of various religious artworks. In Kodumba, they today enjoy a greater social standing than weavers. Hand-crafting sculptures and preserving this tradition for future generations.

land use

The Kodumba village spans 2048240 acres in total. The village’s built-up area is 285832 acres. Nearly 1762408 acres of the remaining area are agriculture and open spaces.

OPEN SPACES MAP

MAP

TEMPLE HOUSE

The Kodumbu Subramanya Swamy Temple is close by the temple house, which is notable for its grandeur and conventional architectural design. Two temple employees and their families presently dwell there. The two storeys of the house are constructed completely of local wood. It is notable for its beautiful columns with finely carved capitals, comparably small doorways and arched windows, and ornate teak wood roof and columns.

Construction period-16th Century

Site Area-384sqm

Built up area-137sqm

PUTHAN HOUSE

The Puthan house is situated in a private neighborhood in Kodumbu, 220 feet east of the Palakkad-Chittur Road, on a site measuring 1937 square feet. According to the traditional kerala style of architecture, this house has a beautiful “Padippura” that serves as a grand entryway. The “poomukham” (sit out) that comes before it leads to the living room and other rooms. Clay tiles are used for the roofing, which is supported by a robust framework made of timber rafters and beams. Other noteworthy architectural elements include its coffered ceiling, long, narrow passageways, and arched windows.

Builtup area - 179 sqm

Construction period - 1962

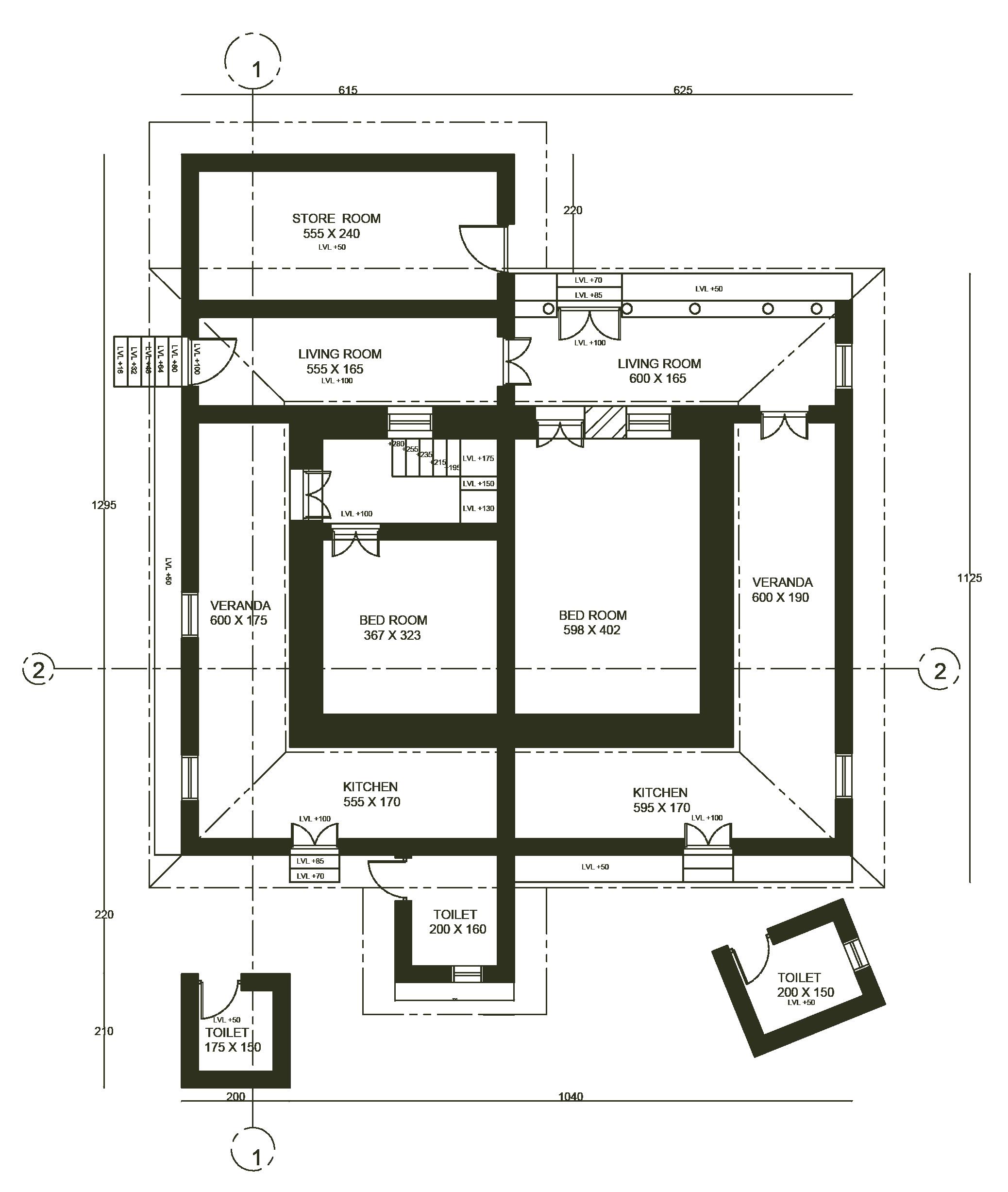
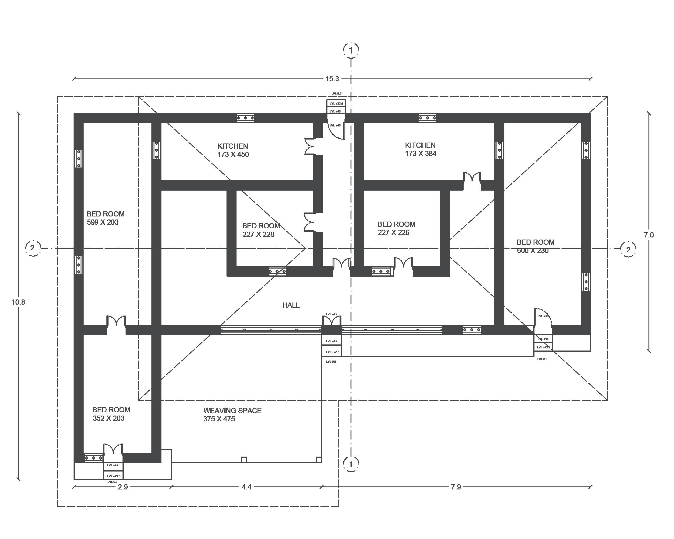
GROUND FLOOR PLAN

WEAVERS HOUSE -

A 50-year-old structure called The Weavers House 1 is situated in Kodumbu close to Paambukavu. A weaver’s family who relocated from Kanchipuram lives there in a 1960 square foot space. This pucca-style, one-story home has additional homes that are linked. Mud walls, which remain in style forever, timber beams, columns with exquisite carvings, and elaborate joinery details are just a few of the house’s notable architectural elements. Traditional red oxide flooring has an earthy, rustic feel.

Area - 279 sqm

Builtup area - 1960 sqft

Construction period- 1960

WEAVERS HOUSE 2 -

The closest landmark to The Weavers House 2 is a school, which is situated in Kodumbu. It is a standalone home inhabited by a Kanchipuram-born family that practice traditional weaving. Their ancestors erected and then rebuilt the house, which is more than 50 years old. It is a single-story pucca home with tiled roof, mud and hollow brick walls, and cement and terracotta flooring. Doors and windows with classical ornamentation enhance the room.

Built up area - 67sqm

Construction period - 1952

FOUNDTION - NEXUS MAP -

- BRICK WORK WALL IN MORTAR

- CEMENT FLOORING (RED OXIDE)

- BRICK BAT FLOORING

- RR PLINTH

- RR FOUNDATION COMPADED SAND BASE

FLOORINGs -

Traditional building materials include clay, palm leaves for roofing, stone, wood, and lumber. Walls are constructed of the porous red stone known as laterite, while foundations are made of granite. Widely utilized for framing and millwork, teak, rosewood, and jackfruit are frequently artistically carved by talented artisans. Stone or a bizarre mixture of sand, egg whites, burned coconut shells, unrefined sugar, and vegetable juice extract are used as flooring.

PLASTERING - CHARIOT DETAILS -

Rough plastering -First coat of mortar with limestone and river sand

Nice plastering - Second coat of mortar by grinding limestone and river sand. This is done every one hour for the next 12 hours`V

Sand white is mixed with limestone for a third coat

Limestone mixed with water is applied on the wall

Foam of egg white and drops of curd made from cow’s milk are mixed and then applied on the walls

After drying. walls are then polished

TEMPLE DETAILS -

Stucco decorations : the exterior of the gopuram is decorated with stucco decorations.

Red oxide : it is used in flooring.low cost material,they don’t loose their lustre as tiles.

Timber : Timber have been used for joinery detailing and connecting two minute timber.

Stone masonry: the gopuram construction entire have been done by stone masonry, the gopuram is adorned with numerous sculptures and carving . No motor is being used.

Rock:rocks are used for masonry work, lintel and vertical columns, floor covering of the temple.

Mud: mud have been used for plastering and for adding minute detailing . Most of the shrines

The Entire Chariot Is Carved In A Single Ellupai Teak Timber .

It Is Of Dravidan Style Of Architecture.which Is Characterized By Pyramid Shape Towers.

Intricate Carvings And Intricate Detailing.

The Four Gaint Wheels Made Of Timber Is Attached To The Chariot Look Complete With The Axis Shafts.

On The Wheels Are Concentric Timber Grains Motifs.

The Chariot Is Of Monolithic Structure Of 72 Feet With 12 Tones.

Turn static files into dynamic content formats.

Create a flipbook
Issuu converts static files into: digital portfolios, online yearbooks, online catalogs, digital photo albums and more. Sign up and create your flipbook.