MAITRI PATEL - Portfolio (2017-2022)

Page 1

M2017-2022PORTFOLIOAITRIPATEL

M A I T R I P A T E L

I am a fresher, graduated from D. C. Patel school of Architecture, A.P.I.E.D, Vallabh Vidhyanagar, affiliated to Sardar Patel University, Gujarat, India. I have always been fascinated with those people who visualize and portray aspect of unbuilt architecture, it’s appearance and selfexpression of the communicative tendencies. As an aware individual, I am in a constant exploration of finessing new methods of solving a question in hand. I have a keen interest in designing and graphical representation of drawings. And immensely attracted to any kind of art I see around me. D.O.B : 19 - 06 - 1999 Nationality : Indian Languages : English,Hindi, Gujarati ( A ) : 601, Sarita Sagar Apt., Anand Mahal road, Adajan, Surat, Gujarat - 395009 ( M ) : +91 94089 27642 ( E ) : maitripatel1921@gmail.com ( Ig ) : _mxitri19

Installation designing Sketching

2005-2011

MicrosoftDRAWCorelIndesignAdobe OfficePhotographyModelmaking

CookingSinging

2011-20172017-2022

20212020201920182017Auto CAD Sketchup AdobeLumion Photoshop

& Baking

Primary SecondarySchoolSchool B.Arch Ryan International School, ICSE, Surat Special mention at Zonal NASA for Reubens trophy (Z6) Buildathon’17 - Metal workshop at VDA, Vadodara The fiction of landscape by Prof. Pratyush Shankar, BVM The Habitat by Ar. Parag & Ar. Mona Udani, A.P.I.E.D Construction workshop at Hunnarshala, Kutch Clay workshop, A.P.I.E.D Tensigrity workshop by Florian Gtorlitz, A.P.I.E.D Lecture by Ar. Sanjay Joshi, A.P.I.E.D Origami & Kirigami workshop, A.P.I.E.D Planes & Solids by Ar. Percy Pithawala, A.P.I.E.D Lecture by Ar. Shabbir Unwala, A.P.I.E.D Disaster relief competition, A.P.I.E.D Lecture by Ar. B. V. Doshi, A.P.I.E.D Leewardist workshop, A.P.I.E.D Resin art workshop, A.P.I.E.D Lecture by Ar. Hiloni Sutaria, A.P.I.E.D Lecture by Ar. Aniket Bhagwat, A.P.I.E.D Interned at P. D. C. Architects, Ahmedabad Acquired 2nd position at Ayodhya Signages design competition Modular low cost housing design competition Bhulka Vihar School, GSEB, Surat D. C. Patel school of VallabhArchitecture,Vidhyanagar

EDUCATIONSKILLS BEYONDEXPERIENCESARCHITECTUREPROFICIENCY

Travelling Basic Average Excellent

0201 0304High rise development for the owners & merchants of Surat Diamond Bourse City centre - enhancing ur ban vibrancy and creating spaces accessible for everyone ( Vadodara ) Student & Faculty housingVallabh Vidhyanagar Selected work done during internship at PDC Architects, Ahmedabad (Jan - May’ 2021) Thesis (06) Urban Design (24) Housing (32) Office Training (48)

0605 0708Working drawing of a 3 BHK Bungalow - Vallabh Vidhyanagar Photography, Installations & Experiences DesignBasic (78) Design (80)Competition Miscellaneous (82) DrawingWorking (70) CONTENT

601Highrise development for the owners & merchants of Surat DiamondThesisBourse -

ToSDB.design climate responsive architecture and integrating greenness in high rise buildings. - To study how architecture contributes to high rise development. - To design spaces which brings closer to nature and harmony. - Priority to sustainable materials and functional requirements in design. - To bring transparency, fluidity and openness of spaces. - Design spaces which enhances physical and visual interaction and reduces isolation. - Analyzing and incorporating climate responsive design principles for high rise buildings. - Develop new concepts of courtyards in high rise buildings. - To study the role of courtyards in housing design within the urban

Providing housing facility and recreational activities to the merchants and owner of

7

The homes we build today must meet the needs of tomorrow. Today, housing is no longer regarded as simply a roof over one’s head but it plays a very vital role in achieving integrated physical, economic and sustainable development without cutting away the urban context. Throughout the years, it is seen that high rise developments have created a sense of social detachment with its urban context. Social interaction is encouraged through public and private green spaces, which do not exist nowadays. Without these social activities, the vertical development has a meaningless existence within the urban realm. Increasing demands for urban spaces has propelled the environment to grow vertical and compact. The individual detached houses are cut away and rearranged into high rise developments, resulting into the loss of greenness and the neighbourhood. So, in order to preserve the greenness, integrating plants and bio-climatic design principles has come up. Thus, the issue being addressed in this thesis is the scarcity of public and private green spaces that provide a sense of belonging. This thesis has been emphasized on integrating greenness into high rise building and creating a bioclimatic design which plays an important role in the energy conservation of the building as well as improving the living qualities of the residents. However, there must be a proposal of a high rise residence which can cater to these issues as a whole and provide housing facility for Surat Diamond Bourse.

AimVisioncontext.

ScopeObjectivesofwork

8 Building Usage Height Matrix Built v/s Open Vegetation, Open ground & Connectivity

9 Swot Analysis • Central Location – Can have greater presence and influence • Site Boundary – Clean, Orthogonal Geometry • Located on primary road – Easy access & greater accessibility • Absence of built context in the initial 10 years • No existing green scape to the site • Located beside Surat Diamond Bourse – Increasing footfall • Lack of strong architectural vocabulary – Freedom of exploration and expressions • Addition of Daily Necessity based program will help attract more people • Making station as a public interaction space, helping in economy generation • Bus flow may cause traffic and chaos in the area • Long barren plots, making the surrounding unsafe • Compatibility of existing and future use • Initial Generation of economy Latitude : 21.11 ° N Longitude : 72.79 ° E Distance from : Mumbai - 280 kms Ahmedabad - 287 kms Vadodara - 174 kms 10 kms 15 1.5kmskms Location Site Dimensions Site Dimensions Connectivity Permissible built up area PrimarySetbackapproach Plot area - sq.m.50,100 Permissible FAR - 4 Permissible built up area - sq.m.200,400 SITE ANALYSIS

10 Zoning at Unit level LIVING ROOM FOYERC. TOILET BEDROOM DRESSING A. TOILETKITCHENUTILITYSTORE STUDYDINING POOJA Area Statement Plot area - 50,100 sq.m. FAR permissible - 4 Permissible height - 82 m Total permissible area - 200,400 sq.m. Proposed area - 1,15,000 sq.m. Parking - 22,165 sq.m. Amenities - 10,075 sq.m. Balanced FSI - 52,760 sq.m. Ground level SITE LEVEL Multipurpose court Box cricket and football turf Skating Children’srinkplay area Kid’sSwimmingMultipurposeAmphitheatrehallpoolpool Changing rooms Party Seniorlawncitizen’s park GroceryGarden store MedicalLaundarystore Entrance and waiting area Day Indoorcaregames room Multipurpose hall Meeting room 575 sq.m. 900 sq.m. 435 sq.m. 880 1101106201000660608205802000100012001203009007651000sq.m.sq.m.sq.m.sq.m.sq.m.sq.m.sq.m.sq.m.sq.m.sq.m.sq.m.sq.m.sq.m.sq.m.sq.m.sq.m.sq.m.

Area of basement parking - 22,165 sq.m. No. of 2 wheelers - 460 No. of 4 wheelersAmenities330 level Sky Meditationwalk & Spa Yoga & Gymnasium Spa & ReadingSalon&E - library Game room Community hall Co-working BanquetMultipurposespacehallhall Restaurant Area of floor plate - 1140 sq.m. Circulation - 40 sq.m. Total no. of floors in 1 tower - 19 No. of units in 1 tower - 22 Total no. of units - 110 575 sq.m. 450 sq.m. 525 sq.m. 450 sq.m. 525 sq.m. 450 sq.m. 525 sq.m. 525 sq.m. 525 sq.m. 525 sq.m. 525 sq.m.

UNIT LEVEL Entrance foyer Vestibule Living Kitchen,areaDining area & store Servant’sUtility quarter Semi open terrace Pooja room FamilyBalconiesC.A.Bedroomtoilettoiletroom Game room Home Circulationtheatrearea Unit area : 3bhk - 550 sq.m. 4bhk - 750 sq.m. 5 bhk - 870 sq.m. 10 sq.m. 8 4065404510122050108216138085sq.m.sq.m.sq.m.sq.m.sq.m.sq.m.sq.m.-60sq.m.sq.m.sq.m.-15sq.m.sq.m.sq.m.sq.m.sq.m.

11

CLUSTER LEVEL PROGRAM

12

- By placing the built inwards gives it a view of the amenities green area as well as the proposed public garden too.

- The parking is provided in the basement for both, residents and the visitors, which restricts the vehicular movement on site.

approach is from the secondary road to avoid disturbance on the busy primary road.

- Recreational amenities are given on the 9th floor, a skywalk is provided on the inner edge of the towers which connects all the towers. Design Philosophy

- Vehicular entry and pedestrian entries are seperated to avoid haphazard movement within the site.

- The sports amenities are placed on the ground level and the residential towers are raised at a 2m plinth which creates a basement beneath, for -parking.Thevehicular

- The zoning was done in such a manner that the green patch creates a buffer from the busy 60m wide road and maintain a micro-climate within the site.

- A meandering central spine is created which bifurcates the residential towers and the amenities green area.

DESIGN DEVELOPMENT GROUND LEVEL PLAN 13

14 AMENITIES LEVEL PLAN (LEVEL 9) BASEMENT LAYOUT

15

16 3 BHK4 BHK 5 BHK Living & Family room Pooja room BedroomToilet Kitchen & Dining Servant’s quarter Home theatre Game room Vertical connector & services

17 PRODUCED BY AN AUTODESK STUDENT VERSION VERSIONSTUDENTAUTODESKANBYPRODUCED PRODUCEDBYANAUTODESKSTUDENTVERSION VERSIONSTUDENTAUTODESKANBYPRODUCEDStructuralCLUSTERUNITGrid

18 3 BHK UNIT Area = 550 sq.m. LEVEL 1, 6, 12, 17

19 4 BHK UNIT (LEVEL 1) Area = 350 sq.m. LEVEL 2, 7, 13, 18 4 BHK UNIT (LEVEL 2) Area = 410 sq.m. LEVEL 3, 8, 14, 19

20 5 BHK UNIT (LEVEL 1) 5 BHK UNIT (LEVEL 2) Area = 470 sq.m. Area = 410 sq.m. LEVEL 4, 10, 15 LEVEL 5, 11, 16

21

22

23

2402Citycentre - enhancing urban vibrancy and creating spaces accessible for everyone ( Vadodara ) Urban Design -

- Visitor’s centre - Exhibition area - Food court - Recreational spaces - Book store Program

a colective space that can cater city square and a community space and a community space into a singular design solution which not only gives a platform for interaction but also promotes social inclusiveness.

AimVision

aims to ease the prime issues faced by the people. It provides a platform to promote public gathering and interaction.

25 The city of Vadodara is divided into 13 wards. The site falls under ward 5. The site is located in the heart of the city, which is opposite to Vadodara Railway Station. The site has a mixed character, which cater lot of retail shops and complexes on one side and institutes on another side. Comprehensive system to facilitate ease of mobility. Leverage opulent natural and built heritage. To create a uniform space that acts as collective means of interaction for the people and breaks the monotonous nature of the area by creating a city square which can contribute to city development and -growth.Toprovide

TheObjectivesprogram

Project Type : City Square Site Area : 9,500 Sq.m.

26

- The site is near the Railway station and Kadak bazaar which leads to haphazard traffic at times.

- Railway station, Bus station and Institutes being nearby, also due to the width of the road which varies creates a haphazard movement of vehicles, resulting in accidents and congestion on the roads.

Land useOverall Site

- No proper parking facilities are available for 2-wheelers and auto-rickshaws which creates a chaos.

- Proper parking facility can solve the problem of traffic jam around the site. Issues Inferences

Existing context : Vadodara Railway station, Jan mahal, Kadak bazaar, Maharaja Sayajirao University, other retail shops and complexes.

- The width of the road varies (due to hawkers) which is a major reason for congestion in that area.

Land between two land parcels Police chowki

Hawkers near Railway station Vendors near Railway station Hirak baug Bus depot

27 SITE ANALYSIS

Visitor’s ParkingFleaFoodExhibitioncentrespacezonemarket

Green Square Book Openstorereading area 100 sq.m. 600

28 DESIGN DEVELOPMENT CULTURAL SQUARE EVENT GREENSQUARESQUARE

Cultural Square

375 sq.m. 375 sq.m. 700 sq.m. 215 sq.m. 420 sq.m. E vent Square Sq.1. Food kiosks Sq.2. Big chess Sq.3. Open Recreationalspacespace 275 sq.m. 140 sq.m. 310 sq.m. 560 sq.m.

Zoningsq.m.

GROUND LEVEL PLAN 29

30 Overall site development Cultural Square

31 Flea market (Vehicle free zone) Event

GreenSquareSquare

3203Student & Faculty housing - Vallabh Vidhyanagar Housing -

33 Communal spaces are basically a more regulated and organized version of public Theyspaces.provide all the benefits of public spaces while subtracting the side effects like crime, garbage piles, etc. Recreational spaces are human product that uses geographical and recreational infrastructure for leisure purposes. Thus, every area where a phenomenon of recreation (i.e., physical, social, cultural entertainment) takes place is a recreational Tospace.design student campus for them to stay considering the requirement of a design student and design faculty, keeping in mind that the nature of both faculty and student is different and will need different kind of spaces.

- Student housing - Faculty housing - Amenities block Program

Keeping the formation of each building same to form the same language throughout the sites and designing areas accordingly. By not following the general way of designing rooms and corridors, but to form interactive spaces within corridors to achieve better air circulation and light. In achieving so we get courtyards or gathering spaces between those built mass. Aim Vision The program aims to provide a housing facilty for both students and faculties along with recreational facilities. It provides a platform to promote public gathering and interaction.

Annual rainfall

-

VALLABH VIDHYANAGAR - Area : 2.30 Sq. Kilometres - Population : 23783 (2011)

E. - Temperature

F.S.I.MarginMargin1.8-2.5mbetween two buildings - 4.5m Parking - 20% of utilised F.S.I. 10% Visitor’s Maximum building height - 16.5m

municipality in Anand district also known as the educational hub. It is planned in and iron grid pattern with a large open ground, Shastri Maidan. The well planned area setup under the leadership of Sardar Vallabhbhai Patel has over 30 colleges. It is connected to Anand through the famous Anand Vidhyanagar road. The institutional zone covers major parcel of land and recidences are spread around the periphery.

- Coordinates

34 SITE VidhyanagarANALYSIS:Itisa

- Density : 127.22 People/Sq. Literacy Rate : Total 90.70% Local Bodies : C.V.M, C.G.M, C.A.M - : Flat and gentle slope towards South - west : 22.5560° N, 72.9510° : 45 degrees max, 9 degrees min - : 800mm

-

Topography

35

36 PROGRAM

Evolution of Zoningform

CANTEEN AMENITIES BLOCK FACULTY HOUSING

Trying various orientations and placements of rooms to achieve the concept and aim.

DEVELOPMENTSTUDENTHOUSING

37 DESIGN

The final zoning was done in accordance to connect student housing clusters and faculty housing clusters with common amenities block including basic and recreational amenities with gathering spaces in between.

Creating the builds in such a way as to achieve more open spaces and interactive areas.

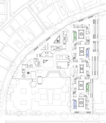
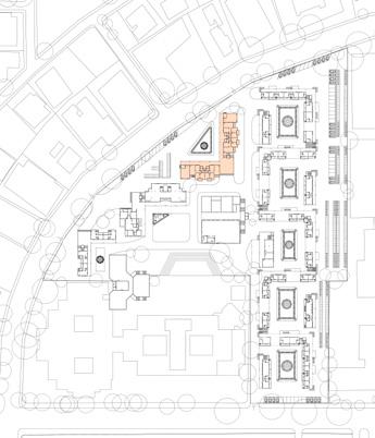
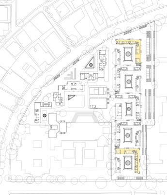
38 1 Entry 2 Student cluster ii 3 Student cluster iii 4 Student cluster i 5 Student cluster iv 11 Amenitiies block 12 Amphitheater 13 Student parking 14 Faculty parking 15 College 6 Guest housing 7 Faculty cluster (2BHK & Studio) 8 Faculty cluster (3BHK &4BHK) 9 Faculty cluster (1BHK) 10 Canteen GROUND LEVEL PLAN

39

Arial of overall site

view

Central courtyards for the housing clustor Primary entrance for the site

While designing the student cluster, we tried to provide interacting spaces in the corridors. Making courtyards between the clusters and keeping gazebo in the centre of the courtyards creating a soothing and calm micro environment that helps in growth of students.

40 User Understanding

While designing the faculty cluster, providing courtyards for children to play, teenagers to gather around and interact. Family gathering spaces and providing offices for professional works. And designing open corridors for better light and

STUDENT HOUSING FACULTY HOUSING SITE LEVEL

Designingventilation. spaces to create a happy, open and soothing environment for both students and faculties as well as the visitors. Creating cycle tracks, walking tracks, playground, gardens etc for users.

41 STUDENT HOUSING TYPE 1 CLUSTER LEVEL TYPE 2 G.F.G.F. F.F.F.F. Single sharing room VerticalCorridor connector Single sharing room Double & tripple sharing VerticalCorridorroomconnector G.F. - 8 single sharing rooms Other floors - 12 single sharing rooms G.F. - 6 single, 2 double & 1 tripple sharing rooms Other floors - 6 single, 3 double & 1 tripple sharing rooms

42 Common amenities Double & tripple sharing VerticalCorridorroomconnector G.F.workingkitchen,CommonCommon& Laundrettes Other floors - 3 double sharing rooms 13.5 sq.m. 20 sq.m. 24 sq.m. TYPE 3 SINGLE SHARING DOUBLE SHARING TRIPPLE SHARING UNIT LEVEL

43 FACULTY HOUSING TYPE 1 TYPE 2 G.F.G.F. F.F. 1 BHK VerticalCorridor connector 3 & 4 BHK Day care & Indoor sports VerticalCorridor connector All the floors - ( 4 ) 1 BHK Apt. G.F. - Day care & Indoor sports Other floors - ( 2 ) 3 BHK Apts. & ( 1 ) 4 BHK Apts. Structural grid CLUSTER LEVEL

44 TYPE GUEST3 HOUSINGG.F.CLUSTER 2 StudioBHK Apts. VerticalCorridor connector G.F. - ( 4 ) 2 BHK Apts. & ( 2 ) Offices Other floors - ( 4 ) 2 BHK Apts. & ( 2 ) Studio Apts. F.F. Suite Guestroomsrooms VerticalCorridor connector G.F. - Laundrette, Cafe kitchen, Indoor & Outdoor seating Other floors - ( 3 ) Guest tooms & ( 1 ) Suite room

45 UNIT LEVEL 34 sq.m.180sq.m. 50 sq.m.50sq.m. 9535sq.m.sq.m. 1 BHK APT 4 BHK APT 2 BHK STUDIOAPTAPT 3 BHK APT SUITE APT

46 BASIC & RECREATIONAL AMENITIES CANTEEN G.F. F.F. S.F. Basic amenities & Gym Multipurpose hall Library & reading room G.F. - Kitchen & covered seating F.F. - Semi - open seating & open seating spaces G.F. F.F.

Parking

Faculty housing cluster with central courtyard

View from balcony facing student cluster for student

47

4804Selected work done during internship at PDC Architects, Ahmedabad (Jan - May’ 2021) Office Training -

49 VEDANTA, SURAT PRAMUKH NVK PRAMUKH AURA TORRANCE, AHMEDABAD1. 3.2. 4. 7.6.5. PRAMUKH VIVANTA, SURAT PRAMUKH URBAN SQUARE, CHALA ARCHITECTURAL CONCEPT PROPOSAL FOR CENTRAL UNIVERSITY Landscape plan & elevation Landscape working drawings & details Landscape working drawings Compound wall drawings & details Landscape working drawings Flooring details & working

50 TORRANCE, AHMEDABAD

51

52PRAMUKH VIVANTA, SURAT

53

54 Wall A exterior Wall B exterior Wall D exterior Pool details

55 Wall A exterior Wall B exterior Wall D exterior

56VEDANTA, SURAT

58PRAMUKH NVK

59

60

61

62PRAMUKH AURA

63

64PRAMUKH URBAN SQUARE, CHALA

65

66 ARCHITECTURAL CONCEPT PROPOSAL FOR CENTRAL

67 CENTRAL UNIVERSITY

68

69

7005Working drawing of a 3 BHK Bungalow - Vallabh Vidhyanagar Working DrawingVERSIONSTUDENTAUTODESKANBYPRODUCED

71 DECK PARKING PORCH GARDEN FORPARKINGCAR2 BATHROOMCUMW/C COMMONTOILET1.8*1.8 21 RISERS 20 TREADS F' E' D' BCA A 24314 6265 4237 1000 17098 22108 2885 5965 3777 8620 8148 F A' A'' B E C C' D A F A' A'' B E C C' D 13'5432''2'26 123'5432''2'6B'A'C' F E D 1672 2328272 1900 2061 504300300300300300300300396 19991000 3000 4000 70430030030239620002230 1530600815600418525002230 2497144520551273168812701999 12460 5460 1079 3600 1085 4230 12001089211 25002497 2497250050330030030030030030030062667033533533535413745001618150115491000199912701688127320551445249713457 C1 C2 C3 C4 C5 C9C8C7C21C22 C12C11 C13 C14 C23 C26C25 7086 7635 6892 9463 4865 LVL +150mm LVL +600mm LVL +600mm LVL +450mm LVL +150mm LVL +300mm LVL +600mmLVL +600mm LVL +600mm LVL +600mm LVL +600mm LVL +600mm LVL +450mm G1 G2 V1 V1 G1 G10G8W2W2 G11G1W2 G1 G2W2 G6W2 W3 W3 W4 G2 G1 G1 D9 D3 D10 G2 D5 G4D2 G5 G2 D11 OPENINGSSCHEDULE NAME3 ROLLD.C.PATEL 17SA131 NAME MAITRI PROJECT 3 B.H.K. TITLE GROUND DRAWING PROF. JYOTI PROF. VIJAY PROF. MEHUL PROF. AMIT ALL DIMENSIONSFACULTYREMARKS ALL DIMENSIONS ALL UNFINISHEDDIMENSIONS KEY PLAN D3D2D1D9D5D6 1200600700800 D11D10D8D7W2W1W3W4W5W6W7W8W9V1 3600150010003000150012003600300230500600650200050025006000 2480 80011001400 5000 7000VERSIONSTUDENTAUTODESKANBYPRODUCED PRODUCEDBYANAUTODESKSTUDENTPRODUCEDVERSION BY AN AUTODESK STUDENT VERSION SECTION AA' A B C D A B C D INFORMAL LIVINGLVLPARAPET+600mm DINING AREA STAIR CABIN HOME THEATRE SWIMMING POOL G12 D10G1 W2W2T1F1 900 2100 21002502501850500150250250185050015050018502502501506006003000300030003009600 1000 6003001506701502850 6001502505002100 3000 150300 LVL +2950mm LVL +3600mm LVL +5950mm LVL +6600mm LVLLVLLVL+10200mm+9600mm+8950mm 300 OVERHEADTERRACES.PLINTHLNTL.T.LNTL.LNTL.W.T.LVL+3200mmB.B.LVL+6200mmB.B.LVL+9200mmB.B.LVL+900mmSILLLVL+4100mmSILLSILLLVL+7100mm PARKING PORCH TERRACE 1200 G.L. A A' B C D PRODUCED BY AN AUTODESK STUDENT VERSION Ground floor SectionplanAA’ PLANS, SECTIONS & ELEVATIONS

72 24314 2885 123'543 123'543 A A' A'' B E C C' D F' E' D' BCA B'A'C' F E D 1272 1900 2058 2000 4000 1672 2328 100011245815400 24971445205542312999 1272 1900 2058 2000 4000 1672 2328 15460 10891200211 2497 2500 25002497 2301000670335335335354349115014231205514452497300010461 131550011852999 C3 C9C4C8C7 C14C207635 68927086 4678 7971 LVL +3600mm LVL +3600mm V1 F1 W7 F1 W2F2F4 LVL +3600mm OPENINGSSCHEDULE 4 ROLLD.C.PATEL 17SA131 NAME MAITRI PROJECT 3 B.H.K. TITLE FIRST DRAWING PROF.PROF.PROF.PROF.ALL FACULTYREMARKS UNFINISHEDALLALL KEY D4D3D2D1D9D6D7D8D10W2D11W1W3W4W5W6W7W8W9V1 PRODUCED BY AN AUTODESK STUDENT VERSION VERSIONSTUDENTAUTODESKANBYPRODUCED PRODUCEDBYANAUTODESKSTUDENTVERSION First floor SectionplanCC’D C E B F D C E B F SECTION CC' INFORMALBEDROOMLIVING BATHROOMDECK ENTRANCE STUDIO500 2350 PARKING PORCH TERRACE 1000 9001502506003001502502600300300900300030007200 1200 SWIMMING POOL 500 2350 900 G2 G1 G1 W2G4 G1G2 G1D6 D4F1 F2 LVL +600mm LVL +3600mm LVL LVLLVLLVLTERRACES.PLINTH+6600mmT.+3200mmB.B.+6200mmB.B.+7500mmPARAPET G.L. 5 3 64 LVL LVLLVLTERRACE+6600mm+6200mmB.B.+7500mmPARAPET250150900 900 TERRACE PRODUCED BY AN AUTODESK STUDENT VERSION VERSIONSTUDENTAUTODESKANBYPRODUCED VERSIONSTUDENTAUTODESKANBYPRODUCED

73 East sideSectionelevationEE’ South side elevation EAST SIDE ELEVATION EXPOSED CONCRETE ROUGH TEXTURED PAINT EXPOSED BRICK WOODEN PLANK EXPOSED BRICK G1D1 G1W8 G1W3 G2D2 G1 G1 TOUGHENED GLASS W1F2 W3F2 WEST SIDE ELEVATION EXPOSED CONCRETE ROUGH TEXTURED PAINT EXPOSED BRICK EXPOSEDTOUGHENEDBRICK GLASS V1 PRODUCED BY AN AUTODESK STUDENT VERSION NORTH SIDE ELEVATION ROUGH TEXTURED PAINT EXPOSED CONCRETE EXPOSED BRICK G1W4 G1D8 D5F1 G2W6 G1W2 SOUTH SIDE ELEVATION EXPOSED CONCRETE ROUGH TEXTURED PAINT EXPOSED BRICK TOUGHENED GLASS G1V1 V1F1 G1D7 W5T1W2T2W2T1 W7F1 W2F1 W2F2 W5F1 PRODUCED BY AN AUTODESK STUDENT VERSION11 22 33 55 SECTION EE' G.L. BATHROOM POOJA ROOM LVL +600mm LVL +3600mm LVL LVLTERRACEPLINTH+6600mmS.T.+7500mmPARAPETLVL+6600mmTERRACELVL+3200mmB.B.V1F1 G1W6G1W2 G2W2 G4W2G3W2 G1D9 G1G1 T1D1 D6F1 W9F1 W6F1 D6F4100015025026001502502600150150 TERRACE1000300030003007300 2100 2100 950 2950 1850 1850 1000 22 33 55 G.L. W2 W2 W2W2 G1V1F2 G1W8 G2D2 G1D7 W5T1 W2T2 W2T1 W7F111 3'3' SECTION FF' LVLLVLPARAPET+6600mm+10200mmLVL+9600mmTERRACEOVERHEADW.T.LVL+6200mmB.B.LVL+9200mmB.B.LVL+600mmLVL+2950mmLVL+3600mmPLINTHLNTL.S.T.LVL+3200mmB.B.LVL+900mmSILL 2502501850500150150260025015026002501506006003000300030001509750 TERRACE POOJA ROOM BED ROOM BED ROOMBATHROOMBATHROOM STAIR CABIN PRODUCEDBYANAUTODESKSTUDENTVERSION

74 OPENINGSSCHEDULE NAME ROLL 17SA131 NAME MAITRI PROJECT 3 TITLE STAIRCASE DRAWING PROF.PROF.PROF.PROF.ALL FACULTYREMARKS UNFINISHEDALLALL KEY D4D3D2D1D9D5D6D7D8D10W2D11W1W3W4W5W6W7W8W9V1 ROOMPOOJA1.5*1.5 20 STEPSUP 1100W2W2W3 0.23 0.115 21 RISERS 20 TREADS 1234561413111078912 15 16 17 18 19 20 21 0.23 1000.0000 EQ EQ EQ EQ EQ EQ EQ EQ EQ EQ EQ EQ EQEQEQEQEQEQ B A 1 2 3 4 5 156 16 17 18 19 20 147 SECTIONPLAN 12mm Mortar 12mm Mortar 25 x 100mm Skirting 25 mm Marble 30mm Mortar RCC DETAILATA GLASS FIXED ON TH SS CLAMPS 10 MM THICK GLASS SCREWS USED TO FIX THE RAILING STAINLESS STEEL HAND RAIL SS CLAMPS 70 50 900 50 B 5x5 mm Grove 15mm Nosing 30mm Mortar 15mm Mortar 25mm Marble 30mm Mortar 150mmRCC BBCC DETAILATB SCREWS USED TO FIX THE RAILING 9 MM DIA AND 2" LONG SCREWS S.S. railing 35 mm x 100 mm tw frame 6mm thk fixed wired glass Baluster 12 mm plaster S.S. handrail25mm thk marble 30 mm thk plaster RAILING DETAIL DETAIL OF HANDRAIL AND STEP DETAIL OF GLASS WITH RAILING PRODUCED BY AN AUTODESK STUDENTPRODUCEDVERSIONBYANAUTODESKSTUDENTVERSIONKITCHEN STAIRCASEDETAILSDETAILS SCHEDULE : OPENINGS NAME12 TITLE DRAWING: NO. : PROF. JYOTI GILL PROF. VIJAY SUTHAR PROF. MEHUL DARSHAK PROF. AMIT MISTRY ALL DIMENSIONS TO BE FACULTY TEAM : REMARKS : ALL DIMENSIONS ARE ALL DIMENSIONS ARE UNFINISHED SURFACE SIZE QUANTITY KEY PLAN : D4D3D2D9D5 600 X 2100 700 X 2100 750 X 2100 3000 X 1800 800 X 2100 184 D8 2500 X 1200 D10 3600 X 1800 2 D11W2 6000 X 1800 W1W3W4W5W6W7W8 230 X 1350 300 X 1350 600 X 1200 650 X 1350 1200 X 1200 1500 X 1350 500 X 700 116333 B A C D STORAGE PLAN Pull-Out ShutterPull-Out Pull-OutPull-OutPull-OutShutterShutterKITCHEN6*4 STORE115 230 230 2*1.5 C19 C20 C16 C14 LVL +600mm G1W4 G3D3 G2D5 PLAN B A C D A'A KITCHEN6*4 STORE 230 230 2*1.5 C C' D C C' D 543 543C19 C20 C16 C14 LVL +600mm G1W4 G3D3 G2D5 C C' D C C' D 543 534 WATER TAP VERSIONSTUDENTAUTODESKANBYPRODUCED PRODUCED BY AN AUTODESK STUDENT VERSION

75 15 MM PLASTERTHK20MMTHKKOTASTONE115MMTHKBRICKWALL KOTA STONE WITH WALL OPENINGSSCHEDULE NAME13 ROLLD.C.PATEL 17SA131 NAME MAITRI PROJECT 3 B.H.K. TITLE KITCHEN DRAWING PROF.PROF.PROF.PROF.ALLDIMENSIONS REMARKSFACULTY ALL DIMENSIONS ALL UNFINISHEDDIMENSIONS KEY PLAN D4D3D2D1D9D5D6 100012006007007503000800D8D7 15002500 D11D10W2 6000 W1W4W5W6W7W8W9V1 1500120036003002305006006502000500 A B GOLDEN MOSAIC TILES 20 X 20 X 4 [MOSAIC SIZE] 372 X 372 X 4 [SHEET SIZE] 6 MM OPAQUETHICKGLASS C D WOODEN LOUVERS WINDOW VTRIFIED TILES LAZER BLACK 6 MM OPAQUETHICKGLASS 6 MM OPAQUETHICKGLASS FLOORING 75mm P.C.C. 100mm RODA COMPACTION 100mm SOIL FILLING SECTION AA' PULL OUT TROLLEYS 50 MM WOODENTHICKDOOR 50 MM WOODENTHICKDOOR SMALL SIZED TROLLEY MEDIUM SIZED TROLLEY LARGE SIZED TROLLEY ALUMINIUMWOODENSECTIONPLY 15MM THK WOODEN TROLLEY SHUTTER VERSIONSTUDENTAUTODESKANBYPRODUCED PRODUCEDBYANAUTODESKSTUDENTPRODUCEDVERSION BY AN AUTODESK STUDENT VERSION SCHEDULE : OPENINGS 12 D.C.PATEL SCHOOL ROLL NO. : 17SA131 NAME : MAITRI PATEL PROJECT : 3 B.H.K. BUNGLOW, TITLE : KITCHEN DETAILS DRAWING NO. PROF. JYOTI GILL PROF. VIJAY SUTHAR PROF. MEHUL DARSHAK PROF. AMIT MISTRY ALL DIMENSIONS TO FACULTY REMARKSTEAM: ALL DIMENSIONS ARE ALL DIMENSIONS ARE UNFINISHED SURFACE SIZE KEY PLAN : D4D3D2D1D9D6 1200 X 2100 600 X 2100 700 X 2100 750 X 2100 3000 X 1800 1000 X 1200 D8D7 1500 X 1200 2500 X 1200 D10 3600 X 1800 D11W2 6000 X 1800 W1W3W4W6W7W8V1 230 X 1350 300 X 1350 500 X 1350 600 X 1200 3600 X 1350 650 X 1350 1200 X 1200 2000 X 1350 500 X 700 B A C D STORAGE PLAN Pull-Out ShutterPull-Out Pull-OutPull-OutPull-OutShutterShutterKITCHEN6*4 STORE115 230 230 2*1.5 C19 C20 C16 C14 LVL +600mm G1W4 G3D3 G2D5 PLAN B A C D A'A KITCHEN6*4 STORE 230 230 2*1.5 C C' D C C' D 543 543C19 C20 C16 C14 LVL +600mm G1W4 G3D3 G2D5 C C' D C C' D 543 534 6 M.M. THICK 300X450 CERAMIC TILES 20 M.M. THICK GRANITE SKIRTING WITH BEVELLEDEDGE15MM THK CEMENT PLASTER SKIRTING DETAIL GRANITE BEADING15MM BLACKTHKGRANITE 15MM WOODENTHKSHUTTER BLACK GRANITE WHITEBLACKMARBLEGRANITE SLURRYKOTASTONE KOTA STONE WITH GRANITE BLACK GRANITE WHITE MARBLE BLACK GRANITE GRANITE BEADING BOTTLE TRAP WATER TAP STEELSTAINLESSSINK S.S COVER MORTAR UNDER COUNTER SINK VERSIONSTUDENTAUTODESKANBYPRODUCED PRODUCEDBYANAUTODESKSTUDENTPRODUCEDVERSION BY AN AUTODESK STUDENT VERSION

76 DOOR & WINDOW DETAILS 2530 W3 FIXEDALUMINIUMWINDOWELEVATION 230MM THICK BRICK 12MM100MMWALLRCCLINTELGRANITEFRAME9MMTHICKPLASTER8MMTHICKCLEARGLASSALUMINIUMALUMINIUMSHUTTER 18MM 12MMFRAMEGRANITETHICKPLASTER200MMCONCRETEWALLALUMINIUMBIDDING 8MM CLEARTHICKGLASS SECTION AA' OUTSIDEINSIDE OUTSIDE INSIDE 18MM BIDDINGGRANITETHICKFRAME8MMTHICKCLEARGLASSALUMINIUMSHUTTER 2200 2160 PLAN 611.9 ELEVATION V1 WINDOWVENTILATION 18MM115MMCONCRETEWALLGRANITEFRAMEALUMINIUMLOUVERSALUMINIUMFRAME100MMCONCRETEWALL SECTION AA' 200MM THICK BRICK WALL 18MM FRAMEGRANITE ALUMINIUM LOUVER OUTSIDE 18MMINSIDEGRANITEFRAME PLAN FINISHEDLVL+475 5 THICKmm PLY TOP 30X20BOTTOMLOCKRAILRAILRAIL70x100M.M.DOORFRAMEMMWOODENSTRIPSTEAKWOOD 70 90 25 900 ELEVATION 70 900 70 2100 70 900 SECTION AA' A HINDGEBUTTIRONHOLDFAST900 7070 PLAN 230 A'A DETAILHINGE A (SCALE 1:5) HOLD FAST 70 x 100mm TEAK WOOD FRAME 150X20mm TEAK WOOD STYLE WOODEN STRIPS 5mm THICK PLYWOOD 10mm THICK TEAK WOOD OUTSIDEINSIDE D5 FLUSH DOOR PLAN B FIXED GLASS OUTSIDEINSIDE A GLASS GLASS 780640 100 9001200 780640 1200 100100 230 MM 6100BRICKTHICKWALLx50MMTEAKWOODFRAME50X65MMOPENABLESHUTTERFRAMEMMTOUGHENEDGLASS LVL + FINISHED550LVL DETAIL A (SCALE 1:5) DETAIL B (SCALE 1:5) W5 SINGLE SHUTTER WINDOW SECTION AA'ELEVATION A'A 230 MM THICK 1511 1200 636240 102 1243962401280 OUTSIDEINSIDE PLAN 6 MM WOODENGLASSTHICKFRAME SECTION AA DETAIL B DETAIL C 100 MM TOP RAIL 100 BOTTOMMMRAIL ELEVATION AA 50 MM WOODENTHICKFRAME 6 MM THICK THICKWOODEN50WOODENGLASSHANDLEMMTHICKFRAME100MMTOPRAIL80MMTHICKLINTEL18MMPLASTER10 MM PLASTERTHICK 6 THICKMMGLASS 24 MM THICK MARBLE 10 MM THICK PLASTER W7 WINDOWCASEMENT OUTSIDEINSIDE 760 1140 W4 WINDOW W2 FIXED WINDOWDETAILA(SCALE1:5) 044 OUTSIDEINSIDEELEVATION9501PLANASECTION AA' OUTSIDE INSIDE 230 MM 6100BRICKTHICKWALLx70MMTEAKWOODFRAMEMMTOUGHENEDGLASS LVL + FINISHED550LVL AA' ELEVATIONPLAN PRODUCED BY AN AUTODESK STUDENT VERSION VERSIONSTUDENTAUTODESKANBYPRODUCED PRODUCEDBYANAUTODESKSTUDENTVERSION OPENINGSSCHEDULE NAMEPROF.PROF.PROF.PROF.ALLREMARKSFACULTY UNFINISHEDALLALL KEY D4D3D2D1D9D5D6D7D8D10W2D11W1W3W4W5W6W7W8W9V1 120 D6 SINGLE SHUTTER FLUSH DOOR 10MM (BROWNWOODENPLASTERFRAME230MMBRICKWALL3MMPLYWITHDUCCOPAINT(SILVERINCOLOR)115MMR.C.C.LINTEL10MMTHICKPLY25MMWOODENBATTERNMATTFINISHEDINCOLOR)A 6 MM THICK GLASS BEADINGELEVATIONPLAN A BRICK WALL B 20 MM THICK MARBLE C SECTION AA' OUTSIDEINSIDE OUTSIDE W8 FOUR SHUTTER SLIDING WINDOW INSIDE 640 70 500 140 500 140 500 2560 640 640 640 640 2560 11001000 1000 230 MM BRICKTHICKWALL 6 MM GLASSTOUGHENED LVL + FINISHED550LVL DETAIL A (SCALE 1:5) DETAIL B (SCALEDETAIL1:5)C(SCALE1:5) AA' 230 MM THICK BRICK 20 MM THICK MARBLE FIXING DETAIL FRAME ELEVATION HOLDWALLFASTFRAMEBUTT HINGE STYLE DETAIL 2 SLIDINGFRAMELINTELGRANITEROLLERFLOOR LVL OUTPLANIN30125 2800 2100 2800A'A SECTION AA'20 MM BEADINGTHK230 MM THK BRICK WALL WOODEN D9 SLIDING FOLDING 2300 230D8 SLIDING DOOR PRODUCED BY AN AUTODESK STUDENT VERSION

77 TOILET DETAILS OPENINGSSCHEDULE NAME19 ROLLD.C.PATEL 17SA131 NAME MAITRI PROJECT 3 B.H.K. TITLE TOILET DRAWING PROF.PROF.PROF.PROF.ALLDIMENSIONS REMARKSFACULTY ALL DIMENSIONS ALL UNFINISHEDDIMENSIONS KEY PLAN D4D3D2D1D9D5D6 100012006007007503000800D8D7 15002500 D10 3600 W2 6000 W9W8W7W6W5W4W3V1 1500120036003002305006006502000500V1F1 D3F2 D4F1 G1V1 G2D2 G1D3RRR 213234 123 324RRRRRRRR21323 R R R 1 2 32 3 141110987546121315 1716 18 A B D C A DB C A DB C A DB C2230 5475 3000 2240 2240 115 230 230 115 230 230 230 115 230230 3240 4235 3250 4250 SLOPE SLOPE SLOPE V1F1 D3F2 D4F1G1V1 G2D2 G1D3 A B D C A DB C A DB C A DB C2230 5475 3000 2240 2240 115 230 230 115 230 230 230 115 230230 3240 4235 3250 4250 W.C. WASH BASIN SOAP DISH TOWELSLOPEHANGERWASHSLOPEBASINW.C. BATH TOWELTUBRAIL TOWEL RAIL BATH TUB SLOPE WASH BASINW.C. CUPBOARD SB1 SB2 SB2 SB1 SB1SB2 600 600 600 600 600 600 600 150 20 MM THK BLACK GRANITE 20 MM THK BLACK GRANITE 20 MM THK BLACK GRANITE SOAP DISH TOWEL HANGER TABLE MOUNTED WASH BASIN TABLE MOUNTED WASH BASIN PIPECWHWPIPE RWPWATERWASTESOLIDWASTE WASTEHWPIPECWPIPESOLIDWASTEWATERRWP 350300 1 SIDE A SIDE B SIDE C SIDE D DOOR MIRROR W.C. TABLE MOUNTED WASH BASIN LEDGE WALL BLACKSTONEKOTA G1D3 ∅ 10 mm THICK WATER PROOFING 50 mm THICK P.C.C 150 mm B.B.C.CTHICK 70 mm THICK BEDDINGSANDWALLHUNG-WC RACK BOLT FOR WC WALL HUNG YELLOWFILLINGSOIL BATHROOM 1 BATHROOM 2 BATHROOM 3 BATHROOM 3 BATHROOM 1 BATHROOM 2 BATHROOM 2 PART 2PART 1 PART 2PART 1 WALL WATERHUNGCLOSET3000 2100 800 600 450 VERSIONSTUDENTAUTODESKANBYPRODUCED PRODUCEDBYANAUTODESKSTUDENTPRODUCEDVERSION BY AN AUTODESK STUDENT VERSION SCHEDULE : OPENINGS NAME20 TITLE : TOILET DETAILS DRAWING NO. PROF. JYOTI GILL PROF. VIJAY SUTHAR PROF. MEHUL DARSHAK PROF. AMIT MISTRY ALL DIMENSIONS FACULTY REMARKSTEAM: ALL DIMENSIONS ALL UNFINISHEDDIMENSIONSSURFACESIZE KEY PLAN : D3D2D1D9D5D6 1200 X 2100 600 X 2100 700 X 2100 3000 X 1800 800 X 2100 1000 X 1200 D8D7 1500 X 1200 2500 X 1200 D10 3600 X 1800 W1W2W3W4W5W6W7W8W9V1 230 X 1350 300 X 1350 500 X 1350 600 X 1200 3600 X 1350 650 X 1350 1200 X 1200 1500 X 1350 2000 X 1350 500 X 700 350300 1 SIDE A SIDE B SIDE C SIDE D DOOR MIRROR BATH TUBW.C. TABLE MOUNTED WASH BASIN BATH TUB G2D2 G1V1 BRICK WALL TILE FISCHERMORTARMORTARFINISHBEDBASINCOUNTERTOP(SANDWICH) BATHROOM 1 1 350300 DOOR MIRROR BATH TUB W.C. TABLE MOUNTED WASH BASIN BATH TUB D3F2 SIDE A SIDE B SIDE C SIDE D BATHROOM 3 PART 1 150 MM (P.C.C)THICK 20 MM 20GRANITETHICKMMTHICKCONCRETE MATT FINISH 10 MM THK 75 MM THICK SAND BED 150 MM THICK 250(P.C.C)MMTHICKBBCC230 COMPACTEDEARTHFILLING 60 250 250150100 FLOORING DETAIL 3000 2100 600 3000 1600 6 M.M. THICK 300X450 CERAMIC TILES 20 M.M. THICK GRANITE SKIRTING WITH BEVELLEDEDGE15MM THK CEMENT PLASTER SKIRTING DETAIL VERSIONSTUDENTAUTODESKANBYPRODUCED PRODUCED BY AN AUTODESK STUDENT VERSION

7806 Basic Design Compositions with geometric shapes and design priciples. Space making through the study of naturalObservationalobjects. sketches Creating foreground and background. Giving height to the compostions and creating spaces out of it.Derivation of space from natural objects EX 1 EX 2

branch, adding surfaces with triangulation method and developing spaces from it. EX 3

79 Dividing the building into simple

Decodinggeometrythe

8007 Design DISASTERCompetitionsRELIEFCOMPETITION

AYODHYA SIGNAGE DESIGN COMPETITION

8208 MiscellaneousPhotography, Installations & Experiences

83 PHOTOGRAPHY

84 INSTALLATIONS

85 EXPERIENCESBUILDATHON’17 Metal workshop at VDA, Vadodara PLANES AND SOLIDS Workshop by Ar. Percy Pithawala, A.P.I.E.D ConstructionHUNNARSHALAworshop, Kutch

+91 94089 maitripatel1921@gmail.com27642 M A I T R I P A T E L

Turn static files into dynamic content formats.

Create a flipbook
Issuu converts static files into: digital portfolios, online yearbooks, online catalogs, digital photo albums and more. Sign up and create your flipbook.