Mahurangi Matters_Issue 499_3 March 2025

Page 1


Mint condition motors on display

Morris & James in Matakana proved to be a mecca for petrolheads on Sunday, February 23, when the first Coffee & Cars event attracted well over 200 pristine classic motors. Everything from vintage vehicles to modern supercars were on display at the front of the pottery and cafe. The organiser, Omaha’s Di Balich, said she was pleased with the turnout and hoped to hold similar events monthly during summer at various local hospitality and tourism venues. As well as providing a spectacle for car lovers, the event also collected more that $750 for the Matakana Volunteer Fire Brigade.

Major plan change thrown out by council

The seemingly unstoppable train of development around Warkworth came to an abrupt halt last week, when Auckland Council threw out a private plan change application that would have meant almost 2500 new homes on Paddison Farm, opposite Te Honohono ki Tai (link) Road.

Mayor Wayne Brown led the charge against retirement home provider Arvida’s plans to rezone 140 hectares off Matakana Road

for mixed housing, including 29 hectares currently classed as highly productive rural land, near Warkworth Golf Club.

He said the scale of the proposal was “ridiculous”, and would mean developing an area bigger than Howick or Manukau.

Arvida’s proposed rezoning would provide capacity for what council called “a conservative estimate” of around 2200 dwellings, along with approximately 210

retirement village units. Council staff said there were at least three sound planning reasons councillors could reject the application, but on balance recommended its acceptance for two main reasons – one, that contentious grounds could be aired and decided during the public hearing process and two, that Arvida was likely to appeal to the Environment Court, which would cost council money.

However, Brown said the risk that it might be appealed was no reason to accept a plan change with sound reasons for rejection. He said as well as not meeting a number of key planning criteria around premature timing, infrastructure provision and the rezoning of productive rural land, the proposed development was simply wrong for Warkworth in its current form.

3,

17 Neville Street, Warkworth, 0941 ph 09 425 9068

Paddison Farm plan change thrown out by council

“This [development] is enormous. It’s about the equivalent of the part of town that took 150 years to be built. This is not that high a growth town. It’s way ahead of the market,” he said.

mahurangimatters localmattersnz

www.localmatters.co.nz

Next issue: March 17 Book your advertising by Mar 5

News:

Jannette Thompson ph 021 263 4423 gm@localmatters.co.nz

Sally Marden ph 022 478 1619 reporter@localmatters.co.nz

Tristan Ogden ph 022 593 1154 editor@localmatters.co.nz

Advertising: Marc Milford ph 022 029 1897 advertising@localmatters.co.nz

Anthony Ord ph 022 029 1899 local@localmatters.co.nz

Online: Courtney Gerrand ph 022 544 0249 online@localmatters.co.nz

Accounts: Angela Thomas ph 425 9068 admin@localmatters.co.nz

Graphic designer: Heather Arnold design@localmatters.co.nz

A division of Local Matters Mahurangi Matters is a locally owned publication, circulated to more than 13,000 homes and businesses fortnightly from Puhoi to Waipu.

Views expressed in Mahurangi Matters are not necessarily endorsed by the publishers. All rights reserved. Reproduction without editor’s permission is prohibited.

“The sheer scale of it is ridiculous. If they want to build an elderly care facility, why don’t they just make an application for an elderly care facility? I’ve a sneaky suspicion here they’re going to have an elderly care facility and flog a whole lot of land that has been upgraded on a speculation thing, which is not benefiting anybody up there.”

Brown pointed out that when there had been a comparable plan change at Beachlands, there had been provision for things like shops, employment, education and health facilities.

“There’s none of that here. This is not about town planning, this is about speculation and it’s not good for that area. I can think of a thousand reasons why we shouldn’t do this.”

Brown added that he’d welcome Arvida to come back with something “that’s just about what they do for a living, which is elderly care”.

Cr Shane Henderson said council needed to send a message to the development community and the Auckland community.

“They frustrate me, these conversations, because you know what? Why do we bother with things like the Future Development Strategy (FDS) if it’s going to be routinely ignored whenever it’s convenient for people to make profits?” he asked.

this city with infrastructure, the cost of infrastructure and the fact there is no funding for infrastructure,” he said. “The funding for Hill Street has gone, there will not be confirmed budgets for these [other surrounding] roads, and this is significant.

and green pool clean ups

“We do these plans for a reason – we want to encourage smart planning and compact cities, where we’re encouraging growth where there are jobs, where there are places to study, where there is already rapid transit provided, and unfortunately this isn’t an area we should be sprawling to. We can’t afford it.”

and

Planning committee chair Richard Hills said rejecting a private plan change was not something councillors did lightly or very often, but there were solid reasons to put this one on hold, not least because it went against the FDS that earmarked the land as not being ready for development until 2035 at the earliest.

“Communities are struggling all over

If we push this forward, without considering it is more than 10 years ahead of time, and the 29 hectares outside the rural urban boundary, and the fact that we don’t know how it will connect down to the town, which is already under strain ... this is what concerns me.

“I hope that it comes back and we can accept at a future time, but at this stage those issues are present and clear and we shouldn’t be afraid to reject it.”

Chris Darby agreed, emphasising that there was no transport funding at all, not even for Notices of Requirement routes, so the time to act was now, and not worry about court costs.

“We can’t wait to engage with the RMA process. The real cost and risk is letting this through now and dealing with the infrastructure deficit that we will be facing, which will probably be in the hundreds of millions of dollars.”

Councillors voted to reject the plan change application by 17 votes to nine. Rodney councillor Greg Sayers voted against the move, however, saying afterwards the public should have a democratic say about the proposed development (at a hearing).

“The decision will now mean ratepayers’ money being unnecessarily wasted by defending the decision this political decision in the Environment Court (if Arvida appeals),” he said.

An Arvida spokesperson said on Thursday last week they were surprised and disappointed by the council decision and were considering their options.

Caring for families in Warkworth and

The proposed plan change area outlined in red.

Tamahunga kiwi hikes 14 kilometres

New Zealand is famous for little creatures embarking on unexpected journeys and covering long distances – and now we can add a kiwi to the list.

A brown male kiwi, which apparently has a reputation for wandering, has successfully traversed 14 kilometres (and counting) through a protected habitat corridor from Mt Tamahunga to Kaipara Flats, where it was last spotted recently.

The journey of the kiwi highlights the conservation efforts of The Forest Bridge Trust, which has been working to create a safe and connected environment for kiwi between the east and west coasts of Rodney. Since receiving Jobs for Nature funding through Save the Kiwi in 2020, the trust has collaborated with over 1000 landowners and local communities to establish extensive traplines, tipping the balance in favour of kiwi across 54,000 hectares.

Predator control across this area targets mustelids such as ferrets, stoats and weasels. Trust operations manager Matu Booth says it’s not uncommon for kiwi to travel that far and this kiwi, in particular, has got a reputation.

Originally the bird was one of 10 brown kiwi translocated to Mt Tamahunga by the Tamahunga Trappers in March 2023.

“It had a transmitter on its leg and moved up north towards Pakiri quite quickly from where it was released. It was retrieved and brought back by the trappers to try to keep those original birds together,” Booth says.

“The trappers continued to track the kiwi, but it went off their radar in November, 2023. They had no real explanation for that but thought it might have dropped the transmitter. So it became an

off-the-radar bird.

“And then we picked it up on one of our trail surveillance cameras in August last year. It had crossed State Highway One in the Dome Valley.”

Booth says the trust has a whole network of trail cameras across the landscape to assist them with deployment of their traps.

“The kiwi disappeared again and then in January it showed up on our cameras again. This time we got hold of the Tamahunga Trappers and Kaipara Kiwi, the group that’s monitoring kiwi on the west coast.

“The trappers were able to identify it was a bird from Tamahunga because its transmitter was still working.”

Trust chief executive officer Ana Christmas says kiwi are very adept at surviving a variety of different landscapes if there is adequate predator control.

“This little guy has done exactly what we predicted and followed that kiwi connectivity pathway,” she says.

“The Kaipara Kiwi team had the appropriate permits to be able to put a new transmitter on that bird so we can continue to track its progress as it makes its way across the landscape and hopefully finds a mate and settles down.”

Booth says the kiwi has been heading west as the crow flies but who knows how far.

“He’s going to more than likely encounter kiwi that are also sifting through the landscape. He could be the first ambassador bird from the east coast.”

With Jobs for Nature funding soon coming to an end, Christmas says maintaining these hard-won conservation gains is at risk and that continued support is essential to ensuring kiwi thrive beyond these

The kiwi comeback

protected areas.

“We need the whole nation to get behind this ambitious mission to create a connected, protected landscape of healthy forests, waterways and thriving native wildlife alongside our nation’s biggest city.

“Together we can ensure kiwi and other native species continue to thrive for generations to come.”

To learn more about the brown kiwi in Rodney go to: https://surl.li/bqupoj

Licence renewal saga reaches critical stage

A speciality South African shop that has been trying to renew its liquor licence for more than two years came up against opposition from an anti-alcohol lobby group at a hearing into its latest application last week.

Wellsford’s Biltong Plus owner and director Marisa Bosman was forced to apply for a new liquor licence, despite having sold South African wines, beers and spirits unopposed since 2015, after licensing inspectors decided in 2022 that she had been granted the wrong type of off-licence (MM, Dec 9).

As renewing the old licence couldn’t legally be allowed, Bosman applied for a new off-licence, which she said prompted a flurry of objections in October when lobby group Communities Against Alcohol Harm (CAAH) posted on social media that there was to be a brand new liquor store in Wellsford.

“This is incorrect,” Bosman told the hearing in Warkworth on February 24. “I want to make it very clear today that this is an application for a new licence because of regulation requirements. We have existed there with a licence for eight years already,

if not more. Nothing is changing. We’ve had no issues.”

Bosman added that the new licence would be on condition that she only sold drinks imported from South Africa, which was all she was interested in selling.

“The purpose of my shop is the nostalgic side of things – we have biltong, we have braai … it’s the South African side, rather than the alcohol side of it.”

The panel heard there was no opposition from Auckland Council’s licensing inspectors, the Medical Officer of Health or NZ Police.

There were, however, 140 written objections, which panel chair Gavin Campbell noted had all been completed using the same Jotform app.

Only one of those objectors, Nathan Cowie, appeared at the hearing, together with counsel Grant Hewison, both of whom work with CAAH. They raised a number of concerns around the new licence being ‘a store within a store’, plus the layout of the shop and Bosman’s suitability as a

LOW CARBON CONCRETE

By the early 1970s, kiwi had virtually disappeared from Rodney. Decades later, determined conservation efforts led to successful reintroductions at Tāwharanui (2006), Mataia (2013), and Maunga Tamahunga (2023). The translocation of kiwi to Mataia was particularly groundbreaking, marking the first time birds were released into a working farm environment. The farms’ owners, who later founded The Forest Bridge Trust, envisioned a connected landscape where kiwi populations could expand and intermingle.

Alcohol licensing inspector Gordon Auld

the licence would be replacing an existing licence, and any deprivation, population density and customer base wouldn’t change. The hearing was adjourned, with a decision expected in the next four weeks.

Welcomed with open arms: the wandering kiwi finds a safe place to rest in Kaipara Flats after travelling 14km. Photo, Paula Griffin.
licensee. Cowie also expressed concerns that the store could be sold on and said Wellsford was deprived and vulnerable to alcohol harm.
said

Calls to cut 100km/h speed limit outside school

A rural school principal is calling for a range of road safety measures outside a school where there are no speed restrictions, meaning traffic can potentially race past at 100km/h.

Bex Thompson took over at Tapora School late last year after several years teaching in Warkworth, and said the contrast between the two was not just about roll size.

“We are struggling to get our students safely from cars and buses as we have no footpath,” she said.

“We need a path in front of the carpark for our students, as well as signs and a speed limit change from the corner to the end of the school, and opposite our school.”

The speed limit past the school and Tapora Community Hall, both of which sit on the side of Run Road, is currently 100km/h, added to which there is a sharp 80 degree bend coming into town just before the school.

In addition, the road before and after the school and hall remains unsealed – Run Road, leading into Tapora from Wellsford, is metalled for more than seven kilometres from the eastern junction of Burma Road into the township.

“It’s so dangerous,” Thompson said. “The dust is really dangerous, too, it’s a bit scary to drive in. If you’re following a truck, you can’t actually see where you’re going. Everyone is sliding at the moment, it’s so dry.”

Dairy farmer and local land and coast care group president Earle Wright agreed. He lives on unsealed Okahukura Road, just down from the school, and regularly sees large

trucks from local avocado orchards barrelling along at 100km/h, leaving a funnel of dust in their wake.

He said the roads needed to be sealed and the speed limit reduced, as soon as possible.

“It’s madness. Where else in the country do you have a 100km/h limit past the school? It needs to be 50km/h at most. We’ve been forgotten about yet again, no doubt.”

He added that the situation would be made worse when a planned new shop and café opened in a new subdivision, just across the road from the school.

Rodney Local Board member Michelle Carmichael, who teaches at Tapora School, says the current situation is “crazy, with the amount of heavy vehicles that go through”.

“The only thing that we at least have is a better school warning sign – for a long time we didn’t even have that. It was even worse when we didn’t have the new perimeter fence.”

She said the board supported reducing speed limits outside schools in Rodney during Auckland Transport’s (AT) last draft three-year speed management plan, in late 2023.

However, AT said last week that was having to be reconsidered due to the government’s new speed rules.

“There were proposed changes to the speed limit that AT consulted upon as part of a previous speed management plan, however due to a change in the speed limit setting rule we are reassessing the section of road outside the school,” a spokesperson said.

“These changes will be undertaken before July next year, and further updates will be provided to the local board and community prior to any changes.”

There was some good news for the community last week, however – preparation work for the first of three stages to seal Run Road to Tapora was due to start as part of AT’s Unsealed Roads Improvement Programme. This will involve a 4.5km-stretch that runs between both ends of Burma Road, which loops to the south of Run Road.

Les Miller & Jackie Woolerton - Webster Malcolm Law
Tapora School lies just around a blind bend. Photo, Google.

Overhaul for island wharves

Two wharves on Kawau Island are getting a major overhaul to the tune of nearly $6 million this year, courtesy of Auckland Transport (AT).

School House Wharf, on the southern side of the island’s main Bon Accord Harbour, is first in line, with a partial rebuild due to start in early April. The work will include the replacement of hardwood decking, wharf head piles, fender sleeves, bracing and wrapping of existing piles.    AT said the total cost for School House Wharf was approximately $1.3 million, with completion planned for the end of June, subject to weather conditions.

In May, South Cove Wharf is set for a comprehensive rebuild, following site investigations and pile assessments in October last year.

An AT spokesperson said the full remedial solution would involve the strategic replacement of piles, bracing, joists, bearers and decking, using more robust and longer-life hardwood materials and steel piles. Seawall repairs will also be carried

out at the wharf.

“The total project cost is approximately $4.5 million, subject to confirmation of construction methodology,” they said.

“Construction will take approximately four to six months, as the site is exposed and works are heavily weather dependent. In a worst-case scenario, construction will be completed in early November.”

Old sheds at both wharves were also due to be removed and replaced.

“We will be renewing the wharves on Kawau Island to ensure they remain operational for both locals and tourists,” the spokesperson added.

“There might be some noise, but we’ll try to minimise it. Normal ferry services should continue without disruption – we’ll plan the construction to minimise public access impact, though some sections of the wharf will need to be closed at times.

“We’re working closely with the community to keep everyone informed throughout this project.”

Rural discrimination

I have been a keen observer for 70 years of how our democracy works, both nationally and in local body governance. There have been huge changes in my lifetime, particularly in the last 40 years. By far the biggest change being in how the administrative employees of councils operate in carrying out their responsibilities.

The new rules on rural septic tank systems, which came into force in December 2023, are a prime example.

Rural septic systems have existed on farms for more than 100 years. Thousands more all over New Zealand are in service in small towns, mostly on quarter-acre sections or

less. More recently all small lifestyle blocks would have a similar system. All those systems have functioned successfully over many decades with any problem quickly fixed. So, what reasons have been given to justify new regulations?

In a brochure dated December 8, 2023, council gives its reasons for new regulations. It states that “poor design, installation or maintenance may result in polluting the environment and putting your family and your neighbour’s family at risk”. The word “may” means unproven.

These officers present no facts to support their theory, but conveniently ignore scientific-based case studies, both here and in the US, that prove that in no way do

septic systems pollute waterways or cause any health issues. So, they create new rules, without any consultation with rural people who are directly affected by having to pay many thousands of dollars, to address an imagined problem.

This legislation can only be seen as blatant discrimination against a minority group of rural dwellers. This is especially galling when the city is regularly dumping hundreds of tons of raw sewage into the Waitemata Harbour, creating a real health and environmental problem. Those who drafted these new rules are notably silent on this huge problem.

Gordon Levet, Wharehine (abridged – full letter can be read online)

Grounds for punishment

The front paddock at Matakana pottery Morris & James were a petrolhead’s dream on Sunday, February 23, when a Coffee & Cars even attracted dozens of top marques and dream drives. However, while most people were drooling over the classic Aston Martins, luxury Lamborghinis, pristine Porsches and more, it appears not quite everyone was showing the respect that these thoroughbred motors deserved, when a disposable coffee cup was spotted discarded atop a fiery red Ferrari 328 GTS.

Relief for Rodney police as closer custody unit reopens

The Waitematā East District Custody Unit is back in business.

Based at the North Shore Policing Centre in Rosedale, the facility reopened on February 25 ready to support policing across Auckland’s North Shore and Rodney. Crucially, it will reduce the time frontline staff in the area spend transporting people in custody.

Police Commissioner Richard Chambers says the new unit will mean reduced travel times for staff working as far north as Wellsford.

“The population across North Shore and Rodney communities continues to grow. “It’s important my staff aren’t unnecessarily taken off the road for lengthy periods of time,” he says.

Having undergone improvement works in recent months, the unit is now state-of-theart and will support the existing Waitematā cell facility, which is based in Henderson. The unit began accepting detainees on the same day it opened.

The unit’s technologically-advanced facilities aim to reduce processing times for arresting officers.

“At the end of the day, we’ll have frontline staff back out there faster working to keep the community safe,” Chambers says.

Around the country, police manage more than 120,000 people in custody each year.

“Our custody units are an important part of managing people in our care and custody safely.

“In many instances those people in custody require intensive monitoring, and features such as high-quality CCTV and intercom systems will help custody staff.”

Chambers acknowledged the team involved in recommissioning the unit, which was decommissioned in 2013 and utilised by police periodically, as required, including periods to support police operations during the pandemic response.

“It’s great to see the use of technology to make savings and efficiencies, such as the high-quality audio-visual link suite installed,” he says.

“In many instances for those detainees appearing in court remotely this will remove some costs and complexities associate in transporting them.”

Waitematā District Commander

Superintendent Naila Hassan says the North Shore facility is a welcome addition to the district.

“We are continuing to find ways to adapt to the growing demand and population across communities in Waitemata,” she says.

“This facility will be supported by sworn police staff, alongside additional authorised officers recruited into the roles.”

The reopened custody unit will help frontline policing operations across Rodney.

Viewpoint

Call for board candidates

As I will not be standing in the next local elections, I want to take this opportunity to thank our community. It has been a privilege to serve you. But now, more than ever, we need strong voices to step up and represent our area.

As a local board member, I have seen firsthand the importance of strong, dedicated representation in our community. Local representatives serve as the voice of the community, ensuring that concerns and needs are addressed. Without engaged leadership, our community risks losing essential advocacy. Now is the time to act – our future depends on it.

Despite over 75 per cent of feedback opposing the reduction, the Northern Action Group (NAG) has successfully pushed to reduce representation in Mahurangi. We now await the government’s final decision, but it appears we [Warkworth subdivision] will lose one board member. This reduction, influenced by NAG, diminishes our ability to be heard. We cannot afford further losses – we need passionate individuals to step up and ensure our voices are heard.

Local representation is more crucial than ever. From infrastructure improvements to environmental concerns and community development, the board has been at the forefront of advocating for change. Efforts to improve unsealed roads demonstrate how local advocacy makes a difference. Last year, more roads were sealed in our area than in the entire Auckland region. Without committed representation, these advancements may stall or disappear

Giant

altogether.

The devastating impact of Cyclone Gabrielle also highlighted the critical need for responsive leadership. Our community faced damaged infrastructure, downed trees and power outages. Local representatives were instrumental in coordinating recovery efforts, advocating for resources, and ensuring residents’ needs were met. We need people ready to step up and fight for our community when disaster strikes.

One of my proudest achievements this term is how well the board members have worked together. This collaboration was a goal I set out to achieve, and it has been incredibly rewarding to see the positive changes that resulted. But this teamwork must continue. Without new leaders, our progress could be undone.

We urgently need candidates for this year’s election. Our urban areas lack direct representation, as all board members, including myself, live rurally. If you care about where your children and grandchildren grow up, now is the time to act. Those running sports clubs, community events, play centres, and school boards would be ideal candidates. The local board manages a budget of tens of millions of dollars – your leadership can ensure we are well represented and all voices heard. If you want more investment in sports facilities at Warkworth Showgrounds, then you need to be on the board.

The time to step up is now. Our community needs you. I urge people to stay engaged, support their representatives and consider running.

Omaha jetty application on hold

A resource consent application to build a jetty on Omaha River is still on hold while Auckland Council awaits further information from the applicant, a council spokesperson says.

Additionally, no decision has been made yet on whether the application will be publicly notified.

If approved, a 20.2-metre-long timber jetty connected to a 10-metre-long gangway and a floating pontoon will be built on a narrow branch of the Omaha River (MM Dec 19, 24).

Because of the proposed jetty’s size in relation to where it’s being built, the application is causing concern among

residents in the area, in particular the Whangateau HarbourCare Group (WHCG), which says the application should be notified.

WHCG are worried it will negatively impact the Coastal Marine Area (CMA), as well as people who use that part of the river recreationally such as kayakers and paddle boarders.

However, specialist planning consultancy Barker & Associates Limited (B&A) says in its Assessment of Environmental Effects (AEE) report that the proposal to construct a jetty … with associated works “satisfies all matters the consent authority is required to assess, and that it can be granted on a nonnotified basis”.

Coastguard president Paul Steinkamp, left, presented Leigh Fish manager Tom Searle with a plaque acknowledging the generous donation. Coastguard is a voluntary service and each volunteer averages between 150 to 200 hours a year training and responding to callouts.

Fisheries boosts coastguard appeal

Kawau Volunteer Coastguard is one step closer to replacing its current vessel after receiving $25,000 from Leigh Fish last month. But president Paul Steinkamp says the team still has a long way to go.

“Over the last 15 years our current vessel has saved many people who otherwise would not be here today and has also provided support for emergency services on Kawau Island,” Steinkamp says.

“It has been out in some significantly bad weather over that time and has completed more than 100 rescues a year. But it’s nearing the end of its life as a Coastguard vessel.”

Steinkamp estimates that it will cost close to $1.2 million to replace.

“The new surveyed vessel will be built to Maritime New Zealand safety standards with a full set of electronic navigation and radar equipment, as well as equipment such as stretcher, oxygen, and various first aid equipment that you would expect for a first responder.”

So far, the volunteers have raised $350,000, which has been matched dollar-for-dollar by a Coastguard NZ commitment.

As well as Leigh Fish and the Rodney Health Charitable Trust, donations and support have come from Rotary, New World, Masons Contracting and Masons Containers.

Steinkamp says the target over the next 12 to 18 months is to achieve another $350,000 from the community and then lastly, monies from the sale of the current boat.

“We will also be approaching various charitable organisations with the help of Coastguard NZ.

“We are very grateful to Leigh Fish for their community spirit and support, and hope their donation will act as an example to other local businesses who might like to also support such an important local service.”

Significant contributors will be offered signage on the boat or a corporate team building event.

“Another item that people might like to think about is the naming rights for the boat.”

For more information on how to support Kawau Coastguard, contact Paul Steinkamp at paul.steinkamp@coastguard.nz

Kaipara netting rāhui extended

A rāhui on set-netting imposed on Kaipara Harbour beaches around Tapora three years ago is being extended for another five years.

Local dairy farmer and Tapora Land & Coast Care president Earle Wright says the restriction, placed by Te Uri o Hau in 2022, aims to curb illegal fishing by groups of people coming up from Auckland and taking vast quantities of fish.

“We’re just changing it to 2030. If we don’t do anything, we won’t have anything for the next generation. People can still go and throw a line out and get a feed, but netting is pillaging,” he says.

“They join nets together and put them across estuaries. I’ve seen them in the water right up to their necks, dragging a net and putting everything into 200-litre drums – the

amount they’re taking is commercial pillage.” Wright says the situation has been going on for 20 years, but has worsened since covid, when the rāhui was placed out of frustration.

“I’ve had people pull knives on me and threaten me. They take cars down walking tracks, break through barriers and chains, and they hide round corners if you see them,” Wright says.

“We want to educate people, so the next generation can still just catch a fish.”

He says Fisheries officers have increased their presence in recent times, which has been a help, but the remoteness of Tapora means it’s not easy for officials to get there fast.

Anyone witnessing illegal fishing should call Fisheries on 0800 476224.

Groups of people travel from Auckland to set nets off Tapora beaches.

Police

Staying in touch

There is a saying, and I’m sure many of you will have heard it, that you can never find a policeman when you need one. One of the things I hear quite often is that many of you become frustrated when you pick up the phone, call the station number, get a call centre and can’t speak to a local officer. This week I’m writing about how to get the best out of the various contact methods for your police. In Warkworth, we have never had more police staff and they are every bit as accessible as in the past. The trick is understanding how to best access the services we provide. Between the hours of 8am and 4pm, Monday to Friday, the front counter at the station is staffed by a Frontline Station Support Officer.

A great many of you will have met Celia Baker, who has been the police’s public facing presence here at Warkworth Station for a great many years. Celia is on hand to record complaints, take messages for police staff, dole out commonsense advice or, when needed, she will call a police officer to speak to anyone who needs one. In addition, she is a document certifier, so she is the go-to lady for those of you who need a certified copy of a document for official purposes. Very occasionally, for reasons of staff absence beyond anyone’s control, the station will be closed on a week-day but

that is the exception rather than the rule. For people who wish to telephone the police, the simple rule of thumb is this:

• If it’s something you think the police would like to know, then call the ‘105’ line. That’s it.

Dial 105 and a police call centre will record the information you wish to impart and pass it on to the correct department within the police

• The *555 telephone number is for urgent, but not life threatening, driving incidents. Something like a non-injury car crash or the ‘cow on the road’ scenario

• And, finally, on the telephone number front, there is 111. If it’s something that you feel the police need to take immediate action on the number to call, as it’s always been, is 111 and ask for police

The other way to contact the police, and for many people it is perhaps the best, is the police website 105.police.govt.nz

I say it’s often the best because writing something down usually allows people to concentrate their thoughts on what it is they want to say, resulting in a well thought out, accurate account. We look forward to hearing from you.

Warkworth to Te Hana info session

Anyone wanting to know the latest on the proposed Ara Tūhono Warkworth to Te Hana motorway should head to Wellsford this Saturday, March 8. NZ Transport Agency Waka Kotahi staff will be holding a drop-in information session on the Road of National Significance’s next stage north at the town’s community centre, at 1 Matheson Road, between 10am and 2pm. More info and newsletter subscriptions: https://nzta. govt.nz/projects/northland-corridor/

hollyfleming@terrapura.co.nz

Dear diary, looks like the lawn mowed itself again today

Love

not lifting a finger.

At Summerset, there’s no need to worry about the maintenance of your home or garden. That’s our job. Your job is to focus purely on doing the things you love. That’s what retirement is all about.

Serviced apartments are available with flexible pricing from $316,500.* Plus, for a limited time, we’ll help you every step of the way with a moving service package. Simply sign a sales application for a selected serviced apartment between 01 January 2025 and 31 March 2025, and then settle by 30 June 2025 #

Love the life you choose.

Open Days

Wednesday 12 and Friday 21 March, 10am - 2pm Summerset Falls 31 Mansel Drive, Warkworth 09 425 1202 | summerset.co.nz/warkworth warkworth.sales@summerset.co.nz

only serviced apartment 512 left at $316,500. #For terms, conditions, exclusions visit summerset.co.nz/warkworth-o er All Summerset

Vector says the new substation will blend in with the local environment when it’s finished.

New Sandspit Road substation to boost local power supply

Vector says it is on track to finish and commission a new electricity substation on Sandspit Road, near Snells Beach, later this year.

Substantial construction work has been carried out over recent months on the site near the junction with Sharp Road and Mahurangi East Road, leading to some local speculation over what exactly was being built there.

A Vector spokesperson offered reassurance last week that it was just part of its longterm plan to reinforce the power network in the Warkworth area, to support population growth and boost reliability for locals.

“As part of this, we’re building a fifth zone substation on Sandspit Road, to complement the four that already supply power to the wider area [at Warkworth, Wellsford, Snells Beach and Big Omaha].

“The new Sandspit zone substation will house a transformer, as well as new switchgear. To support future growth, we’ve also made provisions for the addition of a second transformer when it’s needed.”

However, getting the new substation up and running could involve some traffic hold-ups on surrounding roads when it comes to prepping for the big switch-on.

“One of the more significant aspects of

Mahurangi Pasifika returns

A colourful and joyful celebration of Pacific cultures will return to Warkworth on March 22.

The Mahurangi Pasifika Festival was last held in 2019, so next month’s event will be the first since covid.

Organisers say they are excited to see the local festival return and are promising a day packed with fun and entertainment. Kiribati, Tuvalu, Tongan, Rabi Fijian and Māori groups will be sharing their food, art and dances.

A food market and art exhibition will be held from 10am to 1.30pm, followed by a cultural showcase from 1.30pm to 4.30pm. People

are welcome to come and go as they please.

The festival will be hosted by Mahurangi Hope Community Church and supported by Mahurangi Hope Community Trust, with an organising committee made up of local Pacific representatives.

Funds raised from koha at the event will support Pacific youth programmes run by the trust, which include academic support, mentoring and exercise opportunities.

The festival started at Warkworth Primary School in 2011 and ran for nine years consecutively, drawing large crowds. This year’s event will be held at the Hope Church, behind The Warehouse, in Mansel Drive.

the project is the integration of the new substation into the existing network, which requires extensive civil work on nearby roads,” the spokesperson said.

This will entail connecting the supply from the Warkworth zone substation, opposite the golf club, to the new Sandspit substation, and then connecting that into the existing Warkworth and Snells Beach distribution networks.

“These new connections will not only help balance demand, but also mean we have more options to restore power from a different direction if a localised fault occurs.”

Vector added that the design for the new substation had gone beyond the merely functional.

“We’ve taken steps to mitigate run-off during heavy rain, and we’ve worked with the Warkworth community to design the new substation to blend in with the local environment,” they said.

“We’ve incorporated rural fencing and a variety of planting to improve amenity, including a magnolia tree to add interest when it flowers.

“We’re excited about how the substation will benefit the resilience of the power supply for the local community.”

The committee behind the Mahurangi Pasifika Festival, which returns next month.

History

Ship’s bell donated

Early last month, the Warkworth Museum received the gift of a beautifully restored ship’s bell from the bulk cement carrier, John Wilson. The ship was named for Nathaniel Wilson’s brother John, who was one of the proprietors of Wilson’s NZ Portland Cement Company. A small ceremony was held at the museum with manager Victoria Joule, president Brenda Yoxall and a local representative of the Wilson family, Jill Harvey, there to receive the gift from three of John Wilson’s descendants – Susan Ewart, who had the bell restored, her sister Heather Charles and cousin Cathy WilsonFry. While at the museum, the cousins enjoyed the Wilson Cement Exhibition and a look behind the scenes. Then, with their new-found Warkworth cousin, they saw Riverina, Nathaniel’s old house and enjoyed a picnic in the grounds of the historic Wilson Cement Works.

The 81-metre steel vessel John Wilson was built in Leith, Scotland, in 1961, by Henry Robb and sailed out to New Zealand, where it carried cement for Wilson’s Portland Cement Co. of Whangarei. In 1974, it was sold to Tarakohe Shipping Co, part of Golden Bay Cement Co., which merged with Wilsons in 1983. The vessel was sold and broken up for scrap by Pacific Steel in December 1984. In 1985, the bell was given to Susan Ewart, great-granddaughter of John Wilson.

The ship’s bell is a strong symbol linked to the maritime world. On board ships, the bell was traditionally used to ring the change of watch and especially to warn other ships in foggy weather. The bell was

always compulsory on ships over 20 metres, an obligation present in the International Regulations for Preventing Collisions at Sea. In foggy weather, the sound carries well and the bell was used as a warning to other vessels.

Wilson’s Cement owned a number of vessels over the years including Ronaki, an auxiliary ketch in the early 1900s and the steamers Mahurangi and Herekino around the 1920s. In 1958, a 350-tonne coastal cement carrier was built in Holland for Wilson’s Portland Cement Ltd., to carry bagged cement from Whangarei to Auckland, Tauranga, Gisborne and Napier. This ship was named Nathaniel Wilson after the original company’s founder. It was

sold to an Australian company in 1974. The John Wilson bell, generously restored and gifted by Susan Ewart, is now on display in the Wilson Cement Works exhibition at the Warkworth Museum.

11 Alnwick Street

Warkworth Phone: 09 425 1199

Snells Beach Phone: 09 425 5055

Free kiwi avoidance classes for canines

The Forest Bridge Trust is offering free kiwi avoidance training sessions to Rodney dog owners, which are being funded by Rodney Local Board.

In particular, people who own dogs and live in areas known to be home to kiwi encouraged to attend.

The trust says the aim of the sessions is to help protect growing kiwi populations in the area and they are open to pet dogs, working dogs and hunting dogs.

“Our trainer will guide you and your dog through a free 10-minute e-collar session to teach kiwi scent avoidance. While training is a valuable tool, it’s not foolproof. We recommend that all dogs entering areas known to be home to kiwi remain on a leash at all times.”

Email: KAT@theforestbridgetrust.org.nz to secure your spot. Session locations and times: Glorit Memorial Hall – Saturday, March 8, from 9am to 3:30pm. Morris & James Pottery, Matakana – Saturday, March 15, from 9am 3.30pm.

Try scouts for free

There’s an opportunity for children and teens of all ages to try out scouting for free this term. Warkworth Scout Group is offering free taster sessions for Keas (5 to 8 years) on Wednesdays at 4.30pm, Cubs (8 to 11) on Tuesdays or Fridays from 6pm, Scouts (11 to 14) on Mondays at 6pm, plus Venturers (14 to 18), where dates are to be confirmed. Warkworth Scout Group meets at the Den Hall at Shoesmith Domain with the aim of providing young people with new adventures, outdoor activities and games, life skills, confidence and friendship. Info: Contact group leader Travis Weigel on 021 861434.

NEW PATIENTS WELCOME

WARKWORTH SNELLS BEACH

WE PROVIDE • Wide range of doctor and nurse led services including accident and medical services, immunisation, minor surgery, vasectomies, immigration, dive and insurance medicals.

After hours free child & low cost virtual GP appointments available

• Wide range of visiting specialists.

• Warkworth is open Monday to Friday 8am-5pm and Saturday 8am-12 noon.

• Snells Beach is open Monday to Friday 8am-5pm

• Low Cost access for enrolled patients under 14 free, young people $13, adults from $19.50.

• Pharmacy, Labtest, Physio on site.

• Flu and Covid -19 vaccinations available.

1199

Beach 09 425 5055 for direct connection to the surgery or our after hours service.

Surgery at Unit 2/347 Mahurangi East Road
Surgery at 11 Alnwick Street
Susan Ewart, Cathy Wilson-Fry, Heather Charles and Jill Harvey at the bell handover.
The John Wilson

Families gather in front of the ‘rare’ giant McKinney kauri, estimated to be around 800 years old.

The picnic provided plenty of time to have some fun, especially when the water pistols appeared. Photos, Sue Hill.

Day shines light on rare disorders

Families in Warkworth marked International Angelman Day on February 15 with a picnic at Parry Kauri Park. Whanau, friends and supporters dressed in blue to mark the day, which raises awareness for Angelman Syndrome (AS), a rare neurogenetic disorder affecting chromosome 15.

Event organiser Ursula Christel, who is also the Angelman Network chair and International Angelman Day co-founder, expressed gratitude for the turnout, emphasising that the day was about both awareness and fostering connections among families.

“It’s about helping families feel less alone,” she said. “As an affected parent, I know first-hand how hard it can be to get out into the community and enjoy yourselves in a relaxed environment.

“Days like today allow us to share our stories openly, support each other and build lasting friendships. We all leave inspired and energised for the year ahead.” Angelman syndrome affects one in 15,000 births, causing developmental delays, severe speech impairment, seizures and motor

issues, and yet individuals often display a happy demeanour, frequent laughter and a love of social interaction.

AS affects all ethnicities, males and females equally, and many are fascinated with water.

The summer picnic weather made for a funfilled afternoon, complete with watermelon, bubble blowing and a lively water-fight, enjoyed by both children and adults.

Christel said that Aotearoa NZ still has no formal registry for rare disorders, nor a Centre of Expertise, leaving whanaudriven support organisations to become the experts and advocates. She said this places more strain on families that already face daily challenges.

“As a member of the Rare Disorders NZ collective, we support the urgent call for an immediate action plan in the new health system to implement the Rare Disorders Strategy.”

The Angelman Network is a registered charity, raising funds for grants, educational resources and events through a Givealittle page.

For more information, visit www.angelman.org.nz

appreciation with chocolate brown

Know someone who deserves a big “thank you” for their community spirit? Tell us and they will receive acknowledgement in Mahurangi Matters and an amazing hamper from Chocolate Brown, 6 Mill Lane, Warkworth. Send your nominations to editor@localmatters.co.nz (subject line: Sweet Appreciation) or post to: Sweet Appreciation, Mahurangi Matters, 17 Neville Street, Warkworth. Kindly refrain from nominating members of your own family.

Congratulations to Leanne Rynne from The Photo Store in Warkworth, who is this week’s recipient of the Chocolate Brown gift basket. Leanne was nominated by Thelma French, who wrote … “

Leanne is amazing. I’ve had several close family members and friends pass away in the last 18 months and each time I visited the The Photo Shop very upset with my precious photos to be printed. On each occasion, Leanne quietly and calmly did what needed to be done, treating me with genuine care and compassion. I know there will be many other Photo Shop customers who would like to join me in thanking and acknowledging Leanne in this way.

Chocolaterie, Baking supplies, Rubs & Sauces Ph 415 8777 6 Mill Lane, Warkworth www.chocolatebrown.co.nz

Homebuilders

Parenting through a separation

Ending a relationship can be one of the most stressful and testing times in a person’s life. It can also be a key time in the life of any child involved, too. Understandably, how parents manage their separation will have a huge impact on how their child experiences this process.

There are a range of things parents can do to make the separation process easier for their child. Sorting out relationship issues away from children is a great start. It can be deeply upsetting seeing or hearing parents yelling and arguing, slamming doors, putting each other down and so on. Children need to be able to love both their parents, so avoid putting them in a situation where they feel they may have to take sides or choose between you. For example, not getting them to pass on tricky messages to the other parent and not undermining or putting down the other parent in front of them.

Helping children to see their other parent, and their wider family (except where there is a safety concern) is really helpful and healthy. If the changeover time is sometimes tricky, see if there is a relative or friend, who both parents respect and trust, to do this. It isn’t unusual for younger children to blame themselves when their parents separate, they may need lots of reassurance that this isn’t the case, that everyone still

loves them, and that they aren’t responsible for what’s happened or for sorting things out between their parents.

Generally, a good approach is to develop a plan both parents agree to, before things occur. For example, what will happen during holidays, at family birthdays, and what either parent will do if a child is unwell. It makes more sense to have these things worked out and agreed to beforehand, then your child and both parents have a greater sense of security. It also reduces the potential for small issues unnecessarily escalating into big issues, which is in no one’s interests.

There are some great resources online to assist parents in the process of going through a separation. Check out the Ministry of Justices ‘Parenting Through Separation’ website for helpful information on how to support children through this situation. This website also provides details on the Parenting through Separation course, and options such as Parenting Plans and Family Court mediation, for parents wanting assistance to clarify and stabilise the situation for their children.

Children are learning all the time. What they see their parents do to sort through difficult situations, models how they will try to sort out difficult issues in their own life.

Garden gains for Puhoi groups

An open day at a Puhoi garden on Saturday, February 15 raised $800 for the Puhoi Volunteer Fire Brigade and Slow Water Sea Scouts. This was the second year that Liz McLaren invited locals and visitors to explore her 10-hectare riverside property in Ahuroa Road, and she says the fundraiser may become an annual event. “Everyone seems to think that would be a great idea, with lots of people saying they’ll be back next year,” she said. “We probably will, but we’ll see as next year rolls around.”

Environment

Eco friendly insect control featuring a unique blend of botanicals including citronella and eucalyptus with a safe but effective concentration of active ingredient. Safe around pets and children.

Green Exterior House & Grounds Washing

022 011 0244 | andy@greenwash.co.nz | www.greenwash.co.nz

Covering Warkworth, Matakana, Omaha, Snells Beach, Sandspit, Wellsford, Mangawhai, Leigh, Orewa

The chip thief

Sitting on the beach staring out to sea eating hot chips can be hazardous in Kaikoura, where I’ve spent some time over summer and visit often. But it’s hazardous, not just for me and the hot chips, but also for the chip thief, the red-billed gull/ tarāpunga, who will come down and steal the chips between the paper wrapping and the lips.

Last year, a tarāpunga was taken to the South Island Wildlife Hospital with a hole in his throat, probably caused by a hot chip that burnt through his oesophagus and neck. Yesterday, I saw a tarāpunga with a missing foot, most likely from entanglement in fishing line. Kaikoura conservationists reckon 10 tarāpunga are being killed each week by cats. And around 20, including two juveniles, were killed by a dog or dogs in one event in March last year.

Tarāpunga are a protected native bird, taken for granted because they’re “the everywhere bird”. They’re the most commonly seen of New Zealand’s three gull species, often encountered at rubbish dumps, fish factories and meat works, and at the beachside sites of hot chips, especially in Kaikoura.

Tarāpunga at Kaikoura and other colonies disperse over autumn and early winter, going as far as Invercargill and Auckland. Not so different from my movements actually, though I’ve been travelling the coast raising awareness for Hector’s dolphins, yet another threatened species. One of the Kaikoura birds was even found in Australia.

Tarāpunga egg laying can extend from September to January, and they are monogamous (sometimes even in same sex pairs). The longest recorded tarāpunga

marriage is 17 years. Both parents make their nests from grass, seaweed and twigs. They normally lay two eggs, sometimes three, and the eggs hatch after three or so weeks, with the chicks fledging around a month later.

Though the colony at Otago seems to be growing, the country’s largest colonies are in decline, including the one at Kaikoura, and it’s no wonder. As well as the threats from introduced cats, dogs and mustelids, climate change impacts also appear to be taking their toll, as the unavailability of krill can have a major impact on breeding success. The harsh coastal weather, storm surges, parasitic ticks and people’s mindless killing of them ‘for fun’ are also leading to the collapse of breeding colonies. Only one in 12 eggs survive to become an adult bird of two years old.

Tarāpunga are a beautiful bird, delicate, curious, softly feathered. Hot chips are not a great gull diet, nor for humans either. Some threats they face may be out of our personal control (imagine being eaten alive by ticks), but I didn’t eat any hot chips to inadvertently share with the local tarāpunga at Kaikoura this summer. And I’ll leave them to their krill. Locals really need to keep their cats and dogs under control for Kaikoura to continue being a haven for tarāpunga and many other special birds. Long live the chip thief, with a better diet!

Matakana School’s multi-million dollar makeover seals leaks

When Matakana School returned from the summer break it wasn’t just the start of another year, it was the beginning of a whole new – and much drier – era for teachers, staff and students.

Thanks to extensive weathertightness remediation works that were started in 2023 and completed near the end of last year, the once sodden school no longer has to make do with a leaky hall and damp buildings, which had been a problem for decades.

The works were carried out in two stages, with the Matakana School Board of Trustees managing stage one.

Ministry of Education’s acting national weathertightness team programme manager James Hardy says (stage one) works on blocks 9, 10 and 11 took place

between January 2023 and March 2024, and cost about $2 million.

The demolition and rebuild of classroom 3 in block 2 was a ministry-led project that took place between May and November 2024, and cost around $1.3 million, he says.

In total, the weathertightness remediation works cost around $3.3 million.

Project architect Jovi Su says apart from classroom 3 in block 2, which was completely demolished, redesigned and rebuilt, the other three blocks were reclads with similar but more up-to-date cladding materials to fix weathertightness issues.

“Visually, people may not notice too much difference, however there is a lot of unseen work that went into this project to make sure all the buildings are now weathertight

Pacific Environments NZ Ltd enable sustainable and community centred growth through experience and expertise in Urban Design and Master Planning.

By understanding your project and unique site context, we develop master plans and architectural designs in the residential, retirement, commercial and educational sectors.

• Urban Design

• Master Planning

Expert evidence for plan change and resource consent meetings and Environment Court

• Architecture

• Interior Design

for many decades to come,” he says.

“We also upgraded all four buildings to meet modern fire code and Ministry of Education fire requirements so that’s another thing that will ensure the safety of the students and teachers in the event of that sort of emergency.”

Su says the first stage of the project, which involved recladding, was quite challenging.

“The original design of the classroom blocks was quite complex. There were a lot of weird junctions, complex flashings and angled windows, particularly ones with angled bottoms that didn’t comply with the ministry’s standards.

“So we replaced that cladding with similar micro-cement sheet cladding, but updated to modern standards. We kept the layout of the buildings all exactly the same for that

first stage, and the exterior walls.”

Decayed timber wall framing, waterdamaged ceiling linings, internal linings where damaged, and joinery were also all replaced in blocks 9,10 and 11.

For stage two of the project, Su says they demolished and rebuilt classroom 3 in block 2 because it was very damp and basically unusable.

“You could put a screwdriver through the floor because it was so wet and deteriorated. Because it was a rebuild, we had a blank canvas to work with so it wasn’t quite as challenging as the recladding.”

He says it was incredibly satisfying seeing the kids get back in the classrooms and enjoying the new warm and dry learning environment.

continued page 18

The infamous classroom 3 in block 2 was completely demolished, redesigned and rebuilt.
Proud principal: Darrel Goosen stands in front of the brand-new classroom 3.

from page 17

Matakana School principal Darrel Goosen, who has been in the role since 2010, says having the project completed is “a massive deal”.

Musty smells, mould, water stains, leaky windows, leaks coming down the walls, rotten decks and doors, sagging ceilings, dampness, puddles and drips – all of that’s now gone, he says.

“The hall in block 10 was particularly bad. I wanted that done first so that we could decant the students into there. It looks

pretty much the same other than we don’t have water leaks everywhere.

“It’s got all new lights, new fire systems, and the ceiling was put back in place. Everything’s pretty much been redone, other than the floor and the stage – it was a heck of a job.”

With both stages of the watertightness project complete, Goosen says they’re finally back to normal.

“In a nutshell, I feel that the school now matches the community that it’s in.”

Waiwera campground listed

Urban Partners, owners of the derelict Waiwera Spa Resort, have put the former Waiwera campground, at the southern end of their property, on the market.

The nearly 18,000sqm site includes about a hectare of flat land with direct beach access.

The property is being marketed by Colliers. Agent Josh Coburn says the site is a premium offering that benefits from amazing views and is developmentready through an existing agreement with Watercare for wastewater connections.

“The Watercare agreement guarantees wastewater capacity for developments of scale on the campground site,” Coburn says. “This represents a significant opportunity for buyers, potentially putting the site years ahead of competing stock.”

He says that recommissioning of an on-site bore would provide access to geothermal waters, offering opportunities for wellness, sustainability, and premium amenities such as private hot tubs and pools.

Colliers was also involved in the 2020 attempt to sell the Waiwera Thermal Pools site. At the time, Urban Partners said they were open to a sale or a joint venture to develop the site as a day spa with hotel, micro-brewery and apartments. However, no sale or joint venture eventuated.

Urban Partners chief executive Grieg Staples said last week that while Urban Partners was not yet in a position to make an announcement, it remained fully committed to reestablishing a world-class thermal resort at the pool site.

“The thermal hot springs industry is highly specialised, with only a small number of parties possessing the expertise required to develop and operate a high-quality thermal resort,” he says.

“Recent challenges, including the impacts of Covid-19, the property downturn, and the tough economic climate, have slowed progress towards our goal.”

The nearly two-hectare property has been closed since 2018.

The former campground includes more than 150 metres of beach frontage.
Mould-free, reclad classroom exterior with watertight rectangular windows.
Mouldy classrooms before the recladding with a leaky, angled window.

Subdivision refused on rural site

A bid to build 18 new homes on the western edge of Warkworth has been turned down after independent commissioners said the development would have adverse effects on the site’s rural character.

Ellper Holdings Limited wanted to develop 18 single house sites of between 373 and 580 square metres with a new road at 14 Mason Heights, off Woodcocks Road, where currently there is just one house. The land is bordered by the Mason Heights Gospel Church to the north-west and one house to the north, and is otherwise surrounded by fields to the south and west, with the Mason Heights subdivision to the east.

At a hearing in December, the parties for the applicant and Auckland Council disagreed on whether the site was rural or not, with Ellper Holdings planner Diana Bell saying the site was not rural, not urban, but “periurban”, and the future urban-zoned land was earmarked for development.

However, council planner Hannah Thomson said the land was definitely rural and pastoral in character and even if there were to be future development, that didn’t mean it should happen now.

“Eighteen lots and a new road is not small scale,” she said, while recommending that resource consent should be refused.

In their decision released on February 13, hearing chair Richard Blakey said he

and commissioner Amanda de Jong were unable to accept Bell’s contention that the site had no rural character.

“Overall, it is our finding that the proposal would result in a clearly visible level of urban development and, consequently, have adverse effects on existing rural character and amenity values,” he said.

“The proposal will result in actual and potential adverse effects on rural character and amenity that are more than minor and which are not sufficiently resolved through the mitigation measures incorporated within the application.”

Referring to a previous High Court case, Blakey noted that it had been found that the overall purpose of future urban-zoned land was as a “holding zone”, to provide a transition from rural to urban use and development, and that, until it was rezoned as urban, its main activities should be rural. He added that there was no evidence that the development would add to Warkworth’s housing mix.

“While the proposal will provide additional housing capacity, we are not convinced that the proposal provides for an increase in housing choice – we have no plans of future dwellings before us, but anticipate that the subdivision will provide for more single family-sized homes, similar to those on the other side of Mason Heights,” he said.

The land is right on the edge of Warkworth and surrounded by fields.

Wellsford wastewater foundations cemented

Watercare has finished cementing the concrete foundations and plinths to support the $38.3-million upgrade currently underway at the Wellsford wastewater treatment plant.

Made from reinforced concrete, the nine plinths were installed on top of 99,000 litres of concrete, poured one week earlier.

The upgrade will allow the plant to meet stricter resource consent requirements and to better cope with peak flows during wet weather.

Once the upgrades are finished, six of the nine plinths will hold two MembraneAerated Biofilm Reactor (MABR) tanks, two aerobic tanks and two anoxic tanks.

The other three plinths will support future tanks that can be installed later to cater for future population growth.

The upgrades are on track to be finished by the middle of next year.

Watercare head of wastewater Jonathan Piggot says having MABR tanks and Membrane Bioreactor (MBR) technology integrated into the treatment process will result in cleaner water being discharged into the Hōteo River and surrounding environment.

“The MBR and MABR technology are very efficient in removing organic matter and nutrients,” Piggot says.

“This is largely thanks to microorganisms (bugs) which work on our behalf – we just create the right conditions for them.

“Any pathogens that pass through the membranes face ultraviolet disinfection, ensuring high-quality wastewater discharge.”

Watercare capital delivery general manager Suzanne Lucas says the layout of the upgraded plant utilises modular design principles, where each part is built separately and joined together at the plant.

“Opting for a modular design for the upgrade allows us to incorporate existing infrastructure into the new build, reducing construction time and cost,” Lucas says.

“It also provides greater flexibility to scale up and update technology to meet future needs and accommodate population growth.”

Lucas says over the next month, the MABR tanks will be lifted into position and the work for installing the supporting and mechanical electricals will start.

“Over the next couple of months, we’ll also have crews on site installing a new inlet

pump station, a new dosing area, control building and new outfall pipeline.

“Traffic management will be in place about 300 metres on either side of the entrance on State Highway 1, around 2.5km south of Wellsford, to allow for the high number

of trucks and vehicles that will be coming in and out of the site.

“We appreciate the community’s patience and understanding as we work to increase the plant’s capacity and ensure its longterm sustainability.”

Nine plinths were installed on top of 99,000 litres of concrete which was poured one week earlier.
Wellsford Wastewater Treatment Plant.

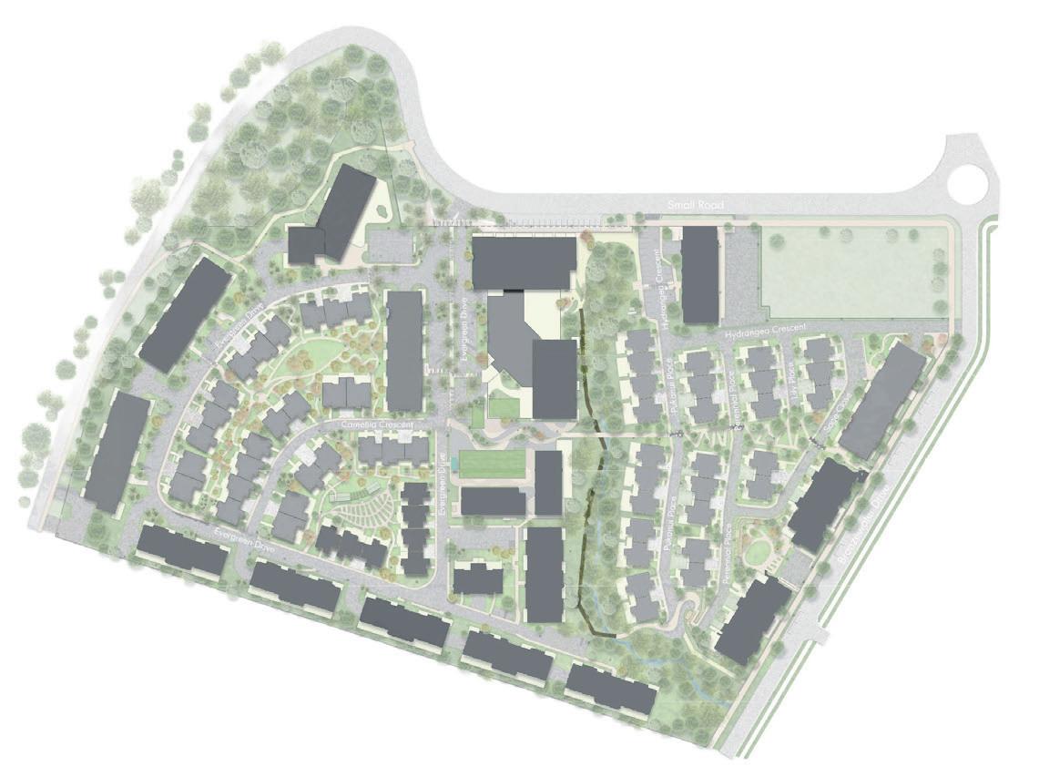
Warkworth high density housing land on market again

Up to 116 new houses could be on the cards for one of the last greenfield developments in the middle of Warkworth.

The almost six-hectare block lies between Shoesmith Street, the Mahurangi River and Belvedere Place, which is off View Road, and is on the market with Albany-based Mars Realty. They say resource consent has been lodged for “approximately 116 dwellings with a varied product mix”.

The block is zoned for urban mixed housing in Auckland Council’s Unitary Plan, which would allow for high density residential development up to three storeys high.

This is the second time the sloped site has been put up for sale in recent years. It was previously marketed as being suitable for a potential townhouse, apartment or retirement village development that could accommodate up to 300 separate dwellings.

The land adjoins a conservation area to the south and the riverside walkway into town to the east, and sits between Warkworth Primary School and Mahurangi College.

Warkworth Ridge sales on the right track

It looks like sales are starting to pick up in Warkworth Ridge, according to local real estate agents.

The upswing should be helped further by the Reserve Bank of New Zealand’s (RBNZ) decision to cut the Official Cash Rate (OCR) by 50 basis points to 3.75% on February 19.

Following the OCR drop, it didn’t take long for the major banks to respond by lowering their mortgage rates, in particular the flexible and floating home loan rates, which in the past has brought more buyers into the housing market.

CoreLogic’s chief property economist Kelvin Davidson says there still seems room for another 0.5% cut to the OCR before a ‘final’ 0.25% fall thereafter.

“For the property market and mortgage borrowers, then, the key message is that interest rates seemingly have further to fall yet, although the drops to come could be a bit slower or smaller than those seen to date – especially since banks were already cutting in advance of today’s decision anyway,” he says.

“It’s also going to be really interesting to see whether the recent stampede towards borrowers taking floating and short-term fixed rates goes into reverse at some stage in 2025, with the focus potentially shifting back towards longer-term fixed rates again.”

Harcourts North Rodney salesperson Amy Wagstaff says since interest rates have come

down, as well as people coming back from holiday, it feels like the whole market in Warkworth has lifted.

“Overall, houses have now started selling in the ridge – houses that are finished, house and land packages, and also sections.

Recently there’s been two unconditional sales and one conditional sale in the ridge so far that I know of,” Wagstaff says.

“We’re getting constant inquiries every week from buyers looking. People just feel a little bit more confident to make decisions now.

“We’re selling more to the mums and pops, and the people who want to build their own homes and already have a builder. So we’re seeing more families, retirees and people wanting to build who have an idea of what they want.”

Wagstaff says they’ve only been marketing Warkworth Ridge properties since about October last year.

“By then the interest rates had already started coming down, so we’ve been getting a good amount of traffic from buyers inquiring. We open it every weekend and we’re getting a good, steady flow of buyers coming through.”

Key2 salesperson Dean Nieper says Warkworth Ridge is starting to get more traction.

“We’ve been involved in Warkworth Ridge as a project from its inception – we helped Templeton Group (the company behind the development) get their presales in the

covid times,” he says.

“I do Saturday and Sunday open days there, and I’m getting visitors every weekend. It’s going to grow, which is good – there was a house sold there yesterday.

“What will ultimately happen from where we are now is that people will hang their undies on washing lines and wheelie bins will be rolled down drives.

“When we see subdivisions they take time and then they ramp up to the part where houses are getting finished and people are going, oh okay this is the neighbourhood. It’s not just a link road, it’s the neighbourhood.”

We have worked with hundreds of Kiwis to recreate their dream homes

DEC Construction have done an excellent job renovating our family home. We originally selected them for the project based on the praise of our neighbour, who had recently used them. DEC Construction completed our major renovation to a high standard and were a pleasure to deal with.

Peter Baker
Warkworth Ridge is being developed by the Templeton Group.
Harcourts’ Amy Wagstaff says the Warkworth housing market has lifted since interest rates were cut.
Key2’s Dean Nieper says Warkworth Ridge is starting to grow.

Splendid isolation – principal Bex Thompson says more children could benefit from Tapora School’s facilities and learning opportunities.

Roll call to increase student numbers at rural school

New Tapora School principal Bex Thompson has a well-equipped school with three classrooms, a hall, a library and a swimming pool – what she doesn’t have is enough students to fully benefit from those facilities.

With a current roll of just 15 students, she wants to get the school’s numbers up so part-time teachers can be retained and funded by the Ministry of Education, instead of the Board of Trustees.

“Ideally, I would like to be around the 40 mark, but I’m quite happy to be sitting in the high 20s for the area,” she says. “I’d like to be able to have a good amount of kids in each class and completely fund two teachers on Ministry funding, instead of the Board.”

Thompson says if the roll doesn’t increase, there won’t be a second teacher next year and it will just be her in sole charge, which would reduce opportunities for students. She says there are plenty of reasons for students to travel to Tapora, from the practicality of a daily bus service out from Wellsford to participation in a national online learning programme.

“Virtual network learning classes from Year 6 up are a good choice to learn extra things like languages, specialist arts, intensive te reo, writing, and you learn with different learners all around New Zealand,” she says. But Thompson, who was previously team leader of 90 students in Warkworth, says the main advantage at Tapora is the opportunity for personalised learning and

connection with the local community.

“From teaching in a very big school to coming here, the learning is so much more personal and connected, you have a lot more ownership of what’s being taught and how.

“We can work one-on-one with students a lot and develop their learning. It’s very flexible, everyone gets support and gets a learning programme tailored to their needs and abilities. And we have so many more opportunities being part of a rural community.”

Upcoming activities include stream exploration on a local farm and snorkelling at Goat Island, and Thompson plans to reintroduce the school’s ag day plus market in the spring. There is also a trip to Wellington coming up for senior students that happens every two years, and senior students travel to Rodney College for tech classes.

Thompson says growth will come, with the proposed sealing of Run Road over the next few years and a new subdivision across the road from the school, including a new shop and cafe. However, she wants people to know that the school is ready and waiting for more students right now and she welcomes visits and enquiries.

“I would really like people to come out and visit and to see the school,” she says. “Feel free to come and ask questions and see how the kids work together. It’s such a cool community to be a part of. I’ve only been out here a few weeks and I’ve already made friendships and connected with people. It’s a great place.”

Business on hold? Your lease may help

The Warkworth and Mahurangi region continues to grow in popularity, and that growth brings with it opportunity for local businesses. By its nature though, development also means change that can impact on your business. As a local business owner, you pour your heart and soul into your enterprise, but what happens when unforeseen events disrupt your operations?

Natural disasters, major public works, or even simple access issues can throw a wrench into your plans. That’s where your commercial lease becomes crucial.

Commercial leases often follow standardised formats, typically the “ADLS” version, but the specific details can vary significantly and there are many different types of non-ADLS lease documentation. The exact provisions of your lease can have a major impact on your business during unexpected disruptions. While most business owners focus on rent and term, the fine print regarding business interruption can be a lifeline during challenging times. Your lease guarantees “quiet enjoyment”, which means you should have uninterrupted access to your premises. However, this isn’t absolute. If external factors such as road closures due to council work impede access, the lease might not offer complete protection. Carefully review clauses related to access. Does the lease address temporary disruptions? Does it outline the landlord’s obligations in such scenarios?

Natural disasters like floods or earthquakes can severely damage premises. The ADLS lease typically addresses this through clauses dealing with damage and destruction. These clauses often outline procedures for determining the extent of damage, the landlord’s obligation to repair, rent abatement or suspension during repairs,

and termination rights if the premises are deemed unusable. It is very important to understand if the lease covers partial or total destruction.

Even during business interruption, you might still be liable for outgoings such as rates, and insurance. Understand your insurance obligations and ensure your policy covers business interruption. Landlords will also have their own insurance. The interaction between your insurance and the landlord’s insurance is important to understand.

While not always explicitly included in standard ADLS leases, a “force majeure” clause can excuse parties from fulfilling obligations due to unforeseeable circumstances beyond their control. If your lease includes this, it could be relevant during major events. However, the scope of force majeure is often debated, so legal advice is essential.

Business interruption is a reality. Protect your business by first reviewing and understanding your lease to understand your rights and obligations. Communicating with your landlord, ensuring you have adequate insurance, and seeking legal advice when needed can all help keep your business moving. Proactive steps now can mitigate future disruptions.

Patrick Steuart

Checklist for when disaster strikes

Natural disasters come in many forms, from fires and floods to tornados.

Nobody is immune to the possibility of being in the path of a wild storm or fire, but the better prepared people are to cope, the faster the recovery.

Those affected by the tornado in Mangawhai who have insurance will, no doubt, have already reached out to their insurer. The Insurance Council of NZ says it is this type of unexpected and sudden event that insurers are there to provide support for.

“A tornado is classed as a storm and, therefore, Natural Hazards Cover only provides cover for damage to land (within the limits set by legislation), with damage to homes covered by private insurance.

“If your home insurance policy includes fire insurance (and most do) then you have natural hazards cover.”

The council said once it was safe to enter a damaged house or property, there were some things that would help make the claims process a little easier. Their advice was to:

Take photos of any damage and note details of valuable items, and don’t dispose of anything until you’ve spoken to your insurer. It will help speed up claim assessments

• Take photos of perishable or unsanitary items before disposing of them

• Make your home safe and sanitary, but don’t do non-essential repairs

• If safe to do so, try to protect your home from further damage

• Get essential services repaired and keep copies of invoices

• Always wear protective gear, including gloves and masks, in case of exposure to hazardous material

• Do not do anything that puts your safety at risk or causes more damage to your property

If your home is uninhabitable due to damage from the event, you may be eligible for a temporary accommodation benefit. This is in most home and contents policies, and it would pay to check with your insurer to see what support they can offer.

Uninsured assistance

Support is also available from Work and Income and other agencies.

Work and Income Northland regional director Kiriwai Welsh says assistance could be for things like food, bedding or clothing.

“People can apply for a wide range of benefit payments and one-off grants, and if their need is caused by an emergency, this is taken into consideration,” Welsh says.

“If the government declares an emergency in a certain area and activates Civil Defence Payments, residents of that area can apply for these through Work and Income if they are affected.”

See more:

Emergencies - Work and Income

https://www.workandincome.govt.nz/ eligibility/emergencies/index.html

Urgent or unexpected costs - Work and Income

https://www.workandincome.govt.nz/ eligibility/urgent-costs/index.html

A-Z benefits and payments - Work and Income

https://www.workandincome.govt.nz/ products/a-z-benefits/index.html

Need commercial fire extinguishers? We can help!

Failure, the unseen key to success

Schools are more than just places of learning; they are environments where students build resilience, develop character and discover their own potential. In last month’s column, Karney Dawson spoke about the importance of cultivating a strong school culture built on values, collaboration and connection. This is absolutely true, but what happens when students face setbacks? How does failure fit into this vision of success?

The word failure isn’t one we celebrate often in education. It’s a word that students and teachers can fear. But failure, when framed correctly, is a powerful tool for learning and growth. True success is not about avoiding failure, it’s about learning how to turn it into opportunity.

I believe we need to encourage students to take risks in their learning, knowing that stumbles are part of the journey. The greatest athletes have lost more games than they’ve won, the best writers have faced rejection, and the most successful leaders have learned from their mistakes. What seems to set them apart is their ability to push forward, reflect and grow. As a parent of four children, I understand the instinct to protect our children from failure. But one of the greatest challenges we face, both as educators and parents, is knowing when to step back and allow them to experience it. The earlier they learn to navigate failure the better, because as we grow older, the

impacts and costs of failure can become much greater.

However, labels matter. Too often, students see failure as a permanent stain rather than a stepping stone. If a child believes they are “not good at maths” or “not a leader,” or “can’t behave in class” these labels can become self-fulfilling. Our role as educators and parents is to help students shift that mindset and to see failure as feedback, not as final. This shift in perspective is crucial. At Rodney College, like all schools in our area, we see daily examples of students turning challenges into stepping stones for success. Whether it’s a senior student who didn’t achieve NCEA the first time but came back stronger, a Year 10 struggling with public speaking who later stands up to give a speech, or a young person learning appropriate behaviour – the ability to keep going despite setbacks is what makes the difference.

Leadership is no different. Our student leaders of 2025, like those at other kura, have stepped up, not because they never failed, but because they kept going when things got tough. To lead is to serve, to inspire, and to persevere especially in moments of difficulty.

Perhaps we could consider teaching our students that success is not about never failing, it’s about learning to rise each time they do. In the end, failure isn’t the opposite of success – it’s the path to it.

Laurence Caltaux, Principal Rodney College principal@rodneycollege.school.nz

Crime writers come to Warkworth

Fans of crime and thriller writing are in for a literary treat next month when Warkworth Library hosts a panel discussion with five leading writers in the field.

Badness in Brokenwood is one of a series of events organised by the Ngaio Marsh Awards, in association with Auckland Libraries, to examine why the genre continues as such a favourite for readers.

Past Ngaio Marsh Award winner Fiona Sussman, TV producer and true crime writer Angus Gillies, Hibiscus Coast author and first-time crime writer Robyn Cotton and Matakana mystery writer Madeleine Eskedahl will be joined in conversation by award-winning Gulf Harbour short story writer Stephen Ross, who will “keep the peace and cross-examine the offenders”. The panel will discuss what draws them to crime writing, how they craft and convey memorable characters, fictional or real, and the impact of local settings, real-life issues and universal themes on their writing. They will also muse on why and how crime and thriller writing has evolved from puzzle-like mysteries in the past to the modern genre that delves deeply into people, place and labyrinthine connections.

Badness in Brokenwood will take place at the Old Masonic Hall, next to the library in Baxter Street, on Thursday, April 3. Doors open at 5pm for light refreshments and the panel will be on stage from 6pm to 10.15pm.

Free entry, but please RSVP for catering to: warklib@aucklandcouncil.govt.nz or (09) 427 3920

D IAL M FOR MURDER

The writers:

Fiona Sussman is a former family doctor who has won the Ngaio Marsh Award for Best Novel, the Sunday StarTimes Short Story Award, the 2021 NZ Booklovers Award for Best Adult Fiction and been shortlisted for the Commonwealth Short Story Prize. Her latest novel is The Doctor’s Wife.

Angus Gillies is the author of the Ruatoria Killings series of non-fiction investigations. He has worked as a journalist and producer at TV3 for 20 years, is a sports biographer and cowriter of Far North, which was recently made into a TV series..

Madeleine Eskedahl is the author of the Matakana Series of mysteries starring Sergeant Bill Granger and Constable Niko Sopoaga. Her debut novel, Blood on Vines, was voted onto the Whitcoulls Top 100.

Robyn Cotton is a Hibiscus Coast author who worked as a business consultant before discovering creative writing. After writing two novels based on personal experiences, The Jibe is her first crime novel, inspired by her love of sailing.

Stephen Ross is a Whangaparaoa writer whose short stories have been published in several international mystery magazines and nominated for crime writing awards. His first novel, The Bride Must be Stopped, will be published this year.

Zen Shiatsu Taka

Authentic Shiatsu Massage Therapist Japanese Acupuncturist ACC available

Contact Taka and appointments SMS 021 0832 9635 shiatsumassage.co.nz

2025 Concert Series

Sat 5 April 4pm Ensemble Aaru

A reed quintet with extensive international experience, Ensemble Aaru was formed in June 2023 by principal players from the Auckland Philharmonia and Aotearoa’s leading freelance artists. The performance breathes new life into classic repertoire with a programme that includes works from Vivaldi, Debussy and Gershwin.

Sun 4 May 4pm Ristov Duo

“Love, Passion & Romance” - a violin and piano recital that takes the audience on an exciting and emotional musical journey. The repertoire will explore different forms of love, including Brahms’ Violin Sonata No. 2, Clara Schumann’s Three Romances, Dellapiccola’s Tartriniana Seconda, and Ravel’s masterpiece, the mysterious and highly passionate Tzigane

Sat 31 May 4pm Duo Vivo

Featuring Miranda Adams (violin) and Tatiana Lanchtchikova (piano/accordion), Duo Vivo formed in 2003 and immediately found popularity through their CD Jealousy, tango music. Their programme provides a colourful contrast of classical, tango, and gypsy music, plus a NZ composition written for them by John Elmsly.

Sat 28 June 4pm John Chen*

Winner of the 2004 Sydney International Piano Competition, New Zealand pianist John Chen returns home to present an all-French programme of chefsd’oeuvre by Francis Poulenc, Henri Duparc, César Franck, Gabriel Fauré, and Camille Saint-Saëns.

Sat 26 July 4pm Ghost Trio*

The Ghost Trio, featuring Monique Lapins (violin), Ken Ichinose (cello), and Gabriela Glapska (piano), explore the cultural diversity of the piano trio canon, including works by Ludwig van Beethoven, Tōru Takemitsu, Maurice Ravel, and the premiere of a new work by Aotearoa composer Glen Downie.

Sat 30 August 4pm Fellowship Ensemble*

A group of young musicians on the cusp of professional careers are selected by audition to form an ensemble at the 2025 Adam Summer School for Chamber Music. The yet-to-be-named ensemble will receive professional development from Chamber Music New Zealand and the New Zealand String Quartet.

Sat 11 October 4pm The John Rae Trio

Warkworth Town Hall By

Directed by Rosie Hutchinson

3-12 APRIL

Jazz composers and musicians John Rae, Ben Wilcock and Patrick Bleakley have produced a stunning new album entitled Splendid Isolation, described as “beguiling” (PBS The Modernist). The trio will play material from this album as well as new material and music from John Rae’s previous albums.

Venue for all concerts – Warkworth Town Hall

*Concerts presented in partnership with Chamber Music New Zealand

Ticket Prices

Non-members $40 per person

Members $30 per person

Tertiary students $10 per person

School students Free when accompanied by a paying adult.

Annual Membership - $30 per person.

Season Ticket - $205 (includes annual membership). Receive transferrable tickets to all 7 concerts.

Purchase tickets online at warkworthmusic.org.nz

Something for everyone at this year’s show

Everything from Chinese lion dancers and rodeo riders to miniature horses and medieval combat fighters will be performing at this year’s Warkworth A&P Lifestyle Show on Saturday, March 15.

The organising committee has trawled its nets far and wide to secure a range of attractions to suit everyone’s taste, from farming families to visitors passing through, with a variety of entertainment and demonstrations on stage and around the showgrounds all day.

New this year and bound to be a highlight will be the dynamic drumming and brightly coloured costumes of the Auckland-based Tung Tek Lion Dancers. This energetic Chinese cultural dance involves two people controlling each of several giant fluffy lions and performing an animated dance, accompanied by a drummer, cymbals and gongs, with the aim of driving away bad spirits and bringing good luck and prosperity to all.

Also new this year is the chance to fight a knight with the Dargaville Medieval Combat Club. The group trains in historical European martial arts using

authentic weapons, including longswords, side swords, spears and daggers. As well as giving demonstration fights with their heavy steel weapons, the group will also have an arsenal of soft training swords for show visitors to have a go.

There will be a number of music and dance performances throughout the day, including the Razza Dazzlers line dancing group, the Wellsford Variety Music Group and performers from the local Kiribati community.

Warkworth Rodeo and Cowboy Challenge North Auckland will be running a Have a Go day, featuring pole bending, barrel racing, team sorting and penning, and steer and calf riding, while Warkworth Volunteer Fire Brigade will have a climbing challenge for kids.

Other attractions include a truck show with a people’s choice award, a display of classic vehicles by the Wellsford Warkworth Vintage Car Club and quick fire raffles.

There will also be plenty of traditional show events to enjoy, such as wood chopping with the Puhoi Axemen’s Club,

sheep shearing and a sheep display, cattle classes, the Donkey & Mule Society, plus a demonstration of hay baling by Sam Paddison.

For equestrian fans, there will be a mounted games tournament (see story p30), the cowboy challenge and there are more than 40 different classes in the popular miniature horse section.

As ever, children will be well catered for with free rides all day in the Fun Zone, including tea cups, a merry-go-round, the big slide and giant lawn games, plus cow milking and calf feeding. The always popular inflatable obstacle course will also be back.

And, of course, there will be a spread of impressive produce, preserves, crafts and flowers in the Indoor Exhibit section (see story p30), plus plenty to eat, drink, buy and admire at the many food trucks, market stalls and trade sites.

Entry costs $15 for adults, $5 for children and $35 for a family pass, which admits two adults and up to four children.

Info: https://www.warkworthshow.co.nz/

Ticket giveaway

We have two family passes, worth $35 each, to give away. To enter the draw, email reporter@ localmatters.co.nz with your name and contact number, and ‘A&P pass’ in the subject line. Closing date Wednesday, March 12.

Thanks to our sponsors

Warkworth A&P Lifestyle Show committee are grateful to all their sponsors and volunteers, without whom the show could not take place: Principal sponsor – Wharehine Group; Major sponsors – Auckland Council, Mason Contractors, Northland Waste, Absolute Scaffolding, Mason Containers and Carter’s Tyres; Shearing sponsors – Coresteel & Hutchinson Consulting Engineers; Indoor and general support –Warkworth Butchery, 8 Wired, STR Automotive, Charlie’s Gelato, Tahi Bar, The Photo Store, Warehouse Stationery, Paper Plus Warkworth, Matakana Cinemas, Katie Boyle Real Estate, Intimate Apparel, Warkworth Menswear, Stargate Forest Retreat and Mahurangi Matters

Honda’s all terrain vehicles make farm life easy. Longitudinally mounted engines, generous carry racks, low maintenance solid rear axle or high towing capacity independent rear suspension options.

Debut drone demo at A&P Show

Since Mahi Drones was launched in 2022, business has, well, taken off for owneroperator Stuart Mcleod, who will be demonstrating what his drone can do at the Warkworth A&P Show on March 15.

This will be the first time Mcleod has put on a display at an A&P show.

“I’ve done plenty of demos in quarries and on buildings, and I’ve done other more industry-specific demos, but I haven’t done a showground-type demo. It makes me nervous thinking about it, but it’ll be good.”

He says the way people had been spraying was a bit archaic, hard work, slow and tedious.

“Letting the public know these machines exist and showing we can do this type of stuff is a great opportunity.”

The large-capacity drone, which usually provides commercial roof and building treatments as well as agricultural spraying services, will have its 50-litre tank filled with water for the demonstration.

“I’ll be highlighting the machine in the air and you’ll also be able to see it in action spraying and spreading,” Mcleod says.

“In our work we use a fine droplet for

spraying gorse and plants and an ultracoarse droplet on rooves to really soak the area, so we’ll show both variations during the demo.

“On the controller I can also increase and decrease the flow rate on the run. So I’ll just turn the nozzles on and off while it’s hovering reasonably close to the crowd and push the drone back and forth a bit.”

Mcleod says he’s going to set up a target for the drone on a hill at the back of the showgrounds, possibly a gazebo low to the ground and angled to allow people to see the coverage and pattern of the spraying.

Spray drone services have been in New Zealand for a few years now, however they were relatively uncommon when Mcleod first started out.

“There was only the one here in Whangarei and now there’s four operators in the area, a guy two minutes down the road from me, another one over in Dargaville, and a guy in Kerikeri.

“It is absolutely phenomenal the amount of pressure coming on from other guys within the industry, but I actually think it’s a good thing. There’s plenty of work out there, which is great to do with a drone.”

Spray and display: audiences will be able to see the Mahi drone in action at the Warkworth A&P Show.

and run alongside their ponies at pace.

Saddle up for three-day mounted games championships

For the first time, the New Zealand Mounted Games Association individuals championship will be contested at the Warkworth Showgrounds, from Friday, March 14 to Sunday, March 16. The games will also feature as part of the Warkworth A&P Show on Saturday, March 15.

Northland Mounted Games president Brenda Cross says the mounted games is a fast-paced equestrian discipline with riders showing off their skill, fitness and horsemanship.

“It’s a spectator sport, it really is. And often

people like to pick their favourite rider and watch them as they progress through the competition,” she says.

“The individuals class is everyone for themselves, so it’s quite exciting.

“There’s eight ponies racing against each other, and at quite a clip. Basically any pony is suitable. We have all types of breeds, sizes and shapes competing.”

Cross says she’s hoping for 50 to 70 riders to take part across the five classes: under 12s, under 15s, under 18s, opens and veterans (35 and over).

“The open-level riders’ games are just action-

packed. The under 18s are the same. Veteran riders have a really good competition as well. And the under 15s and under 12s, they’re pretty much your beginner classes, your upand-coming new riders.”

For an event called the mounted games there seems to be quite a lot of dismounting involved, with the riders picking up objects such as flags or poles at speed, which “involves really good handeye coordination”.

Riders will often dismount while cantering or galloping, depending on their level or class.

“So as the pony is running, the rider lands

Head indoors for a dazzling display

While the animals and entertainment might grab most of the attention at the A&P, one of the biggest show sections is the Indoor Exhibits, which are displayed in the Red Scorpion shed between the cattle pens and the carpark.

Although the name might not be the most inspiring, indoor exhibits comprise nearly 170 wildly diverse classes of produce, preserves, baking, flowers, arts and crafts for all ages.

While many of the classes are perennial favourites, allowances are made for changing tastes, habits and life’s unpredictability – this year’s schedule includes prizes for home-made kombucha, upcycled items

and garments, and “a genuine flop” from entries in the cookery section.

There are nine adult sections this year – Field & Garden Produce (20 classes); Home Made Preserves (19 classes); Cookery (18 classes); Flowers (19 classes); Floral Art (two classes – Open: ‘do your own thing’, and Summer Time: ‘from the beach’); Needlework (six classes); Fibre Craft (nine classes, knitting and felting); and Craft (nine classes).

For younger entrants, there are three sections – junior, for those aged eight and under; intermediate (nine to 13 years); and senior (14 to 18).

These feature many old favourites such

Sustainable Natural Pet Food straight from the Bush to the Bowl

Locally made, sustainable, and natural pet food — straight from bush to bowl. At Bush to Bowl, we transform pests into premium raw pet food that supports the environment and your pet’s health.

Available Proteins & Blends

Venison, Goat, Hare, Beef, Lamb, Chicken, Possum, Salmon, plus heart, liver, kidney, and specialised blends.

Why Choose Us?

• Healthy & Natural: Premium raw food for your pets.

• Wild-Inspired Diet: Just what they’re born to eat.

• Eco-Friendly: Supports pest control and reduces waste.

• Unmatched Quality: Produced by MPI-approved meat inspectors.

as novelty fruit and veg, a sand saucer and miniature gardens, but also more modern classes for LEGO constructions, photography, digital artwork and making items from waste material.

There is also a catch-all class in each age section for “any article not already mentioned” in the schedule, which seems to allow a pretty free rein.

Entries cost $1 per class for adults and 20 cents for children and youth, with free passes available for multiple entries.

Prize money is $5 for first place and $2 for second in adult sections, or $2 for first and 50 cents for second in under 18s.

All entries must be delivered to the shed

on their right leg and they run with the horse and then they grab the rein and do whatever they’ve got to do before bolting back on,” Cross says.

“They need to have one hand on their horse at all times whether it’s the saddle or the reins, anywhere really, but they’ve got to have their hand touching the horse.”

Cross says there will be flag, pole and sword games as well as sock and bucket to test the riders’ skills.

“It’s pretty exciting for spectators, and can enjoyed by everyone, not just people with horsey knowledge.”

between 6.30pm and 7.30pm on Thursday, March 13 or from 8.30am to 11.30am on Friday, March 14, after which they will be judged in time for the show next day. Schedules and entry forms: https://www. warkworthshow.co.nz/show-schedules

Spectator sport: riders are required pick up objects on the move.
Riders of all levels dismount

That’s Life

Canine courtesies

Welcome to my first column at contemplating life, the universe and everything in between. I am relentlessly curious and truly believe in the phrase “people, places and things are interesting, study them all”. Living by this mantra I have over my working career been in the RNZAF, a professional motorcycle racer, mechanic, journalist, author, business owner, designer, university lecturer, head of school and director of innovation, and have travelled extensively and lived abroad for many years. Warkworth has been home for over 17 years now and it’s been a blast … except when it involves dodging furry missiles disguised as “friendly” dogs. Before anyone starts breathing heavily, I own a dog. I love dogs. I am, however, not keen on owners who think their outof-control, leash-less hounds are just “expressing themselves” when they charge at innocent bystanders like a heat-seeking missile with bad manners.

While this in itself is pretty disconcerting for an adult, imagine how a small child feels. Terrified I would imagine. The galling thing for me is when out walking our dog and a furry missile is heading at us at pace, the owner is invariably yelling the universal response, “It’s okay! He’s friendly!” Oh, is he? Is he really? Because from where I’m standing clutching my leash and trying to get my dog behind me while all the time bracing for impact, I’m not exactly inclined

to take your word for it. Sure, your outof-control four-legged fruitcake might be harmless, but if it doesn’t have any recall ability, keep it on a leash.

I have seen more than my fair share of dog fights and panicked dog owners at the Warkworth Showgrounds to know it’s not an isolated thing. Owning a dog is a responsibility, not an excuse to let chaos reign. If your four-legged hooligan has zero recall skills and thinks “come here” means “ignore me completely and keep charging at people and other dogs” then newsflash – you need a leash. It’s not just for others’ safety; it’s for your dog’s safety, too.

Imagine what would happen if I randomly ran at you flat-out yelling with teeth bared, jumped all over you, tried to bite you, or lick your face? I reckon I’d be on way to a padded room quick smart. So, if your dog has a tendency to charge at people and other dogs, put yourself in their shoes and try and feel what it would be like if it was happening to you – you know, try a bit of empathy.

One last thought that might make some folks sit up and think. Scientists say that a dog’s personality is strongly linked to human personality (https://www.petmd.com/dog/petlover/how-much-dogs-personality-comes-theirowner), and a BBC report said researchers in Austria believe dogs can mirror the anxiety and negativity of owners … I’ll let you connect the dots. Just saying.

Interested in advertising with us?

Phone 425 9068

email advertising@localmatters.co.nz or local@localmatters.co.nz

Something for everyone at Wellsford expo

Anyone whose routine needs a bit of a reset should head to Wellsford on March 15, when a Lifestyle Expo is being held at the town’s community centre.

Featuring more than 25 stands offering everything from banking and tax advice to natural medicine and funeral planning, the event has grown out of three previous Seniors Expos.

One of the organisers, Support Your Local’s Melissa Wallace, says the decision to broaden the scope of the event came about because so many of the exhibitors had information and products useful to a wider audience.

“We didn’t want to just call it senior any more, we wanted to make it a Lifestyle Expo because a lot of the things we have are not just for older people, they’re for everyone,” she says.

“We have a lot of wellness practitioners and there’s a wide range of other stands –I don’t think we have birth, but we’ve got pretty much everything else covered up to and including the day you die!”

Exhibitors include community groups, such as l Lions, Rotary, Hospice, Age Concern branches and Wellsford Horticultural Society. There will also be advice on life, death and taxes from Justices of the Peace, the Inland Revenue, ASB Bank and Besoul Funerals.

For those on the move, Driving Miss Daisy, Warkworth Toyota, Auckland Transport and Cindy Bakewell Travel can advise on getting around locally or getting away from it all, while Wellsford Firewood can offer ways to keep warm for those staying at home.

Keeping fit and healthy will be well covered, with stands focusing on beauty and skin care, physio and chiropractic treatment, aqua aerobics, Pilates and prostrate cancer research, plus nine practitioners from the Wellness Hub Mahurangi offering free taster sessions.

Group spokesperson Pamela Harland said the expo was a great opportunity for the

community to find out how the group’s various therapies might be able to help with “de-stressing, easing pain and optimising wellbeing”.

Techniques and therapies being offered include naturopathy, sound healing, bioptron light therapy, magnetic energy balancing, optimal breathing and life path coaching.

In addition to all the stands, there will be drinks and refreshments available.

The Wellsford Lifestyle Expo is at Wellsford Community Centre on Saturday, March 15, from 10am to 2pm. Free entry.

Treemendous result for Blue Light youth programmes

The Kowhai Coast Lions donated $6500 to the North Rodney Blue Light (NRBL), the charity and community youth organisation based in Wellsford, at a dinner hosted at the Warkworth RSA on February 25.

The Treemendous Christmas Tree display held at the Warkworth Masonic Hall last year raised $6000 for NRBL while $500 came from other Lions’ fundraising activities such as barbecues and catering.

NRBL community youth coordinator Shane Gould says the money is amazingly helpful and will be going towards a variety of opportunities for young people, including leadership camps and training programmes.

“We’ve always run our programmes as cost efficiently as possible. We try to run most things subsidised. We want kids to have an enjoyable experience at a fairly reasonable cost,” he says.

“Blue Light’s got a huge amount of credibility and I think in our area, continuity. But a lot of people still don’t know about us. That’s why we’re trying to help spread the word. We were just up at Wellsford on Saturday doing a youth expo.”

NRBL secretary Senior Constable Katie Hawkins says it’s becoming harder for the

organisation to get funding so the Lions’ donation “is huge”.

“The money goes directly back into the local community. Every dollar that’s given is a dollar that goes to young people.”

Lions director Liz Price says she was very pleased with the amount they had raised for

Blue Light, which topped their fundraising efforts in 2023.

To learn more about North Rodney Blue Light visit their website: https://www.nrbl. org.nz/

Or follow them on Facebook https://www. facebook.com/NorthRodneyBluelight/

From left, North Rodney Blue Light secretary Senior Constable Katie Hawkins, Kowhai Coast Lions director Liz Price and president Pam Neilson, North Rodney Blue Light community youth coordinator Shane Gould.

Wellsford Motors

The new owners of Wellsford Motors are putting the business on the map in more ways than one.

That’s because when Alex and Holly McGoram took it over in November, they discovered many people didn’t realise the auto repair shop was there, despite it servicing and fixing vehicles in the community for over 20 years.

With Wellsford Motors sitting behind Poland Motors on Rodney Street visibility, was the issue, which wasn’t helped by a lack of roadside signage that stood out, and the fact that both businesses had very similar exteriors.

Holly says they’ve already put up a new sign by the road to point potential customers in the right direction, and also done a significant visual rebrand on the outside of the shop.

Making the reception area more inviting for those customers who might want to

wait while their vehicle is being looked after was also a priority.

“It was painted all neutral colours, which matched the navy-blue Poland branding. So we went with really bright, vivid green.”

Now more people are walking through the neon door.

“They want to see who we are and what we offer,” Holly says.

Husband Alex was a mechanic at Pit Stop in Warkworth, while Holly was working as a nurse – now they literally run a mumand-pop shop.

The couple has four children and are presently living in Snells Beach, but plan to move to Wellsford soon to be closer to the business.

“We want people who’ve been coming here for years to know they’re going to get the same great service,” they say.

Alex and Holly McGoram

Colourful fun for fire brigade

Wellsford’s Centennial Park will be filled with crowds of people and clouds of colour at the end of this month, when the town’s first Colour Run will be held on Saturday, March 29.

Open to runners and walkers, entrants can choose to take part in a 5km walk, a 5km run or a 10km run in and around the park grounds, with everyone guaranteed to get doused in brightly-coloured powder as they make their way around the course. The event is being organised by local business groups Wellsford Plus, Wellsford Lions and Wellsford Volunteer Fire Brigade, with all profits going towards the brigade’s fundraising campaign for a much-needed ute.

As well as the races, there will be plenty to keep spectators busy, with food trucks, games and activities for all the family.

Organisers say the event promises to be a funfilled day of colour, laughter and community spirit supporting a great cause, as well something a bit different for the town.

“Whether you’re racing through the colour clouds or cheering from the sidelines, there’s something for everyone to enjoy. Let’s raise those dollars and have a blast doing it.”

Registration costs $25 for adults, $15 for children under 16, or $50 for a family pass, and all entrants get a medal, race bib and race tracker, with racing starting at 9am.

What to bring:

• Race bib and entry pack

• A colourful outfit that you don’t mind getting covered in colour – wearing red in support of the Fire Brigade is encouraged

• Water bottle

• Cash

• Hat, sunglasses and sunscreen

• Old towels or something similar top wipe off excess colour

Info and registration: https://barefootsport. bbtiming.com/event/592

Join me at the expo and unlock special Viking Cruise discounts—only available on the day.

Visit my stall to chat about your next travel adventure!

LIBERTY SHUTTLES TOURS NZ & AIRPORT DIRECT

• Events - golf, fishing and more

• Other options on request

• Discount for group bookings

Neale Stevens (owner operator)

0800 99 55 11 | 09 420 5366 or 021 447 455 libertyshuttles@gmail.com | libertyshuttles.co.nz

APPLIANCE REPAIRS

A SMART REPAIR Service for F&P smartdrive washers, F&P/ Simpson dryers. Prompt service 021 168 7349.

CARPET ADVICE

Free Quote for Steam Cleans, Carpet Repairs, 35 years experience https://carpetadvice.co.nz/ Dwyane 027 499 7929 CARPETS

DRIVEWAYS

MAINTENANCE Grading, rolling & metalling for rural Driveways. No job too BIG or small. Contact Trevor tlc.trev@hotmail.com

TRANSFERRED to DVD/hard drive. Phone or txt Tetotara Video 021 777 385

CERTIFIED ELECTRICIAN

Switchboard upgrades, additional power points and lighting. Small Jobs Welcome. detechelectrical05@gmail.com 021 313 749

MAGIC SHOWS

The Amazing George The Magician for Children's Birthday Party's and All Events. Lots Of Fun. Lots of References. 021 954 875 ghwinchservices@xtra.co.nz

SAANEN MILKING GOAT Doe, looking for a good home. Offers. Heather 021 124 8319 FOR SALE

The deadline for classified advertising for our March 17 paper is March 12. Send classified advertising enquiries to design@localmatters.co.nz

FOR LEASE

90-Acre Dairy Support Block in Mangawhai Heads, Northland,

Property Highlights: Location: Prime secure position, just minutes from Mangawhai Heads township.

• Size: 90 acres of wellserviced, fertile pasture.

• Infrastructure: Very good fencing, reliable water supply, and access points for easy farm management.

• Versatility: Ideal for dairy support, grazing, or other livestock operations.

Available 1 June 2025 For inquiries and viewing appointments, phone +61 404 592 824

HOME & MAINTENANCE

Cleaning, Soft Bio House Wash, Gutter Clean, All Exterior Cleaning, Water Blasting, Roof Treatment, Local Professional service. Ph Pat 022-646-5849

COLLINS ELECTRONICS HAVE YOU LOST CHANNELS? Or need your Freeview box tuned for the new channels? Freeview installations & new Freeview boxes for sale. TV repairs & installation, microwave oven repairs. Ph Paul 027 29 222 04

FACIAS & SPOUTING Repaired, replaced, rejuvenated. All types. LBP. Ph Steve 021 489 330

SECTION SERVICES

Trees: BIG, small, difficult. Pruned. Removed. One off section tidy-ups. Hedge reductions. Insured. Experienced. Ph or text for a quote. Dom 027 222 1223

TRIM & PROPER SOLUTIONS

Hedge trimming • Fruit tree & orchard pruning • Formative prunes • Stump grinding 020 4027 6200 trimandproper@outlook.co.nz

MOVING

FURNITURE REMOVAL

Experienced Owner Operator 30 years. Single items Flat/ House lots. Silverdale based. Ph Gavin 0274 973 867

PEST CONTROL Eradication of rats & mice. Competitive Rates. Ph 426 2253 Ph 027 286 7321, www.noratsandmice.nz PEST CONTROL

FESTIVAL

Thursday 13 March, 7pm at the RSA Meeting Room. Everyone Welcome

JUSTICE OF THE PEACE

Warkworth, at the Library Monday 10am – 2pm Matakana, Cinema Complex Tuesday 11am-1pm Warkworth RSA Fridays 3.30pm to 5pm No appointment is needed. There is no cost. Supported by Mahurangi Matters

NOTICE TO CREDITORS

HELEN HAGER

Pursuant to section 79 of the Trusts Act 2019, all creditors and other persons having claims to which that section applies in connection with the estate of the late Helen Margaret Hager of Auckland, who died on 23 October 2024, must send to the executors Stephanie Paxton-Penman and Juliet Witana at the address specified below before 30 days from the date on which this notice is given, particulars of their claim.

They are warned that after that date, the estate may be administered or distributed having regard only to the claims of which the executors have notice without being liable to persons of whose claims the executors have not received notice.

Enquiries to: Stephanie Paxton-Penman at PaxtonPenman et al, Solicitors, Level 3/Kowhai House, 7 Alnwick Street, Warkworth Auckland. Telephone: (09) 425 7701 Email: stephanie@ppetal.co.nz

URGENTLY NEEDED TO DELIVER THE MAHURANGI MATTERS NEWSPAPERS Runs available. Suit retired or school aged children. Contact 425 9068, admin@localmatters.co.nz HOUSE WASHING - Soft Wash / Low Pressure / Chemical Wash Also Window Cleaning / Gutter Clearing / Decks / Concrete. Careful service, reasonable rates. qualitywash.co.nz 021 057 9743

IAN SCHEDEWY

Pursuant to section 79 of the Trusts Act 2019, all creditors and other persons having claims to which that section applies in connection with the estate of the late Ian Anthony Schedewy of Warkworth, who died on 27 January 2025, must send to the executors Stephanie Paxton-Penman and Paula Smith at the address specified below before 30 days from the date on which this notice is given, particulars of their claim.

They are warned that after that date, the estate may be administered or distributed having regard only to the claims of which the executors have notice without being liable to persons of whose claims the executors have not received notice.

Enquiries to: Stephanie Paxton-Penman at PaxtonPenman et al, Solicitors, Level 3, Kowhai House, 4 Warkworth Street, Warkworth Auckland. Telephone: (09) 425 7701 Email: stephanie@ppetal.co.nz

2 BED HOUSE TO RENT Quiet responsible retired couple, long term, non smokers great refs, contact anytime 09 433 7304 or lindaloo361@gmail.com WANTED TO RENT

Quiz nights Warkworth RSA

Fortnightly quiz nights start on Wednesday, March 12. Great prizes, food for sale or bring along a cheese board. Teams of two to six members welcome, or come along solo and join a team on the night. Happy hour 6.30-7.30pm. Quiz master will be Alan Reeves from Going Bananas. Entry $4 per person. Raising funds for the RSA and you don’t have to be a member to attend. Info: Warkworth RSA Facebook

Rebels Netball Club Wellsford

Trials Friday, March 7, 5.30-7.30pm at the Kaiwaka Sports Association; and again on Saturday, March 22, 10-midday at Wellsford Netball Courts. You can attend all trials but do not have to. There will be a $20 trial fee. Info: Rebels Netball Club on Facebook

Colour Run Wellsford

Get ready for a burst of colour, excitement, and community spirit at this year’s Wellsford Colour Run, Saturday, March 29, 9am. Raising funds for the Wellsford Volunteer Fire Brigade, and hosted by Wellsford Plus, Lions and the fire brigade. Events: 5km walk, 5km run and 10km run. There’s something for everyone to enjoy. Info and registrations: www.barefootsport.bbtiming.com

Badminton Kaiwaka

Badminton is held every Tuesday night from 7-8.30pm at the Kaiwaka sports complex gym. All ages and abilities welcome. Casual fees are $3 per person per session. Annual fees $50 for a single or $80 for a family. Loan rackets and shuttlecocks are free to use. Info: Kaiwaka Badminton Club on Facebook

Top of the Rock Kaiwaka

Kaiwaka Sports Association, Pakeho Road Kaiwaka, presents Top of the Rock on Sunday, March 9, starting at 9am. Choose from a 5km or 10km run or walk, or enter the kids into the free Kids Fun Bike ride. Fundraiser with entertainment, prizes and more. Pick up entry forms from Kaiwaka Four Square or visit www.kaiwakasport.co.nz/top-of-the-rock/

Kick-ass class for kids at Snells

Free kickboxing classes for 12 to 18-yearolds funded by Rodney Youth Project are back for a second year in Snells Beach and Wellsford.

The continuation of the classes, not to mention their popularity with young people in the community, is testament to their success.

Noble Fight Systems founder and head coach Eddie Jensen teaches his free class at the Wellsford Community Centre on Tuesdays, from 7pm to 8pm, and says there’s a huge internal, physical and emotional change for the kids when they train hard.

“It’s about tough core workouts and repeating really difficult things. It doesn’t feel glamorous when you’re doing it, it feels hard. But when you do it for a while, you start to build up belief inside of yourself,” he says.

“I just train them up so they’re fit and conditioned. I encourage and motivate them.

“I want to teach them that they have the internal resources to not only achieve difficult goals in kickboxing, but also outside of the class.”

Connect Striking founder Daniel Ruka, known as ‘Matua Dan’ by his students, teaches his free class at his gym in Snells Beach on Fridays, from 4.30pm to 6pm, and says it allows many of the kids to do something they wouldn’t otherwise be able to do.

“They learn Muay Thai fighting skills which translates to self-confidence,” he says.

“Some of the kids come in on their heels with their heads down, but after a while they’re up on their toes with their heads up. It can take one class, or for the super-shy kids it might take three or four.

“They also get a free feed after – Māoristyle food like chowders and hangis. We eat together and if anyone wants to talk, I’ll talk with them.”

Ruka says his students learn about respect, discipline and friendship.

Rodney Youth Project youth coordinator

Priscilla McClintock says the project was established last year by the Rodney Local Board to provide more things for young people in the area to do.

“Basically, it’s a year-long pilot and we’ve been trying different activities,” she says.

“Kickboxing provides opportunities for kids to connect positively with the community and builds skills such as mental health, resilience, and fitness, plus it promotes wellbeing.

“Dan’s free kickboxing class at Snells Beach was one of the first ones we funded. It’s basically a drop-in class, so you don’t have to commit, and it’s been really popular.

“Then they heard about it in Wellsford and requested free classes so we asked Eddie to do the same thing up there.”

McClintock says accessibility for the kids was key and that’s why central locations were chosen for the classes, which begin and end with each school term.

Fully funding them so that they were free for participants was also important and has been working really well.

The Rodney Youth Project will be reviewed at the end of Term 1, which will determine whether the classes continue.

“All the feedback has been very positive so I’d be surprised if it didn’t keep going.”

The free kickboxing classes are held at the Wellsford Community Centre on Tuesdays, from 7pm to 8pm (finishing April 15) and at the Connect Striking gym in Snells Beach on Fridays, from 4.30pm to 6pm (finishing April 11).

Kids making the most of the free Friday kickboxing class in Snells Beach.

3 Community Singing, old Masonic Hall, next to Warkworth library, 5.30-6.30pm. Gold coin. Info: warkworth.library@aucklandcouncil.govt.nz

3 Scottish dancing Have a Go night with Ranfurly Scottish Dancers, old Masonic Hall, Warkworth, 7pm. Bring a water bottle, light shoes and a smile. Singles welcome. Info: scdaucklandnorthland.org.nz/our-clubs

4-18 Sewing Sessions,Warkworth Library, 9.30am. Bring along your own project. Repurpose, repair, recreate. Learn new skills. First and second Tuesday of every month. Admission $7

7 World Day of Prayer, Anglican Church Warkworth, 43 Percy Street, 1.30pm. Theme “I Made You Wonderfully”. Service prepared by the women of the Cook Islands. All welcome

5 Warkworth Library Garden Group, Warkworth Library, 6.30-7.30pm. Monthly speakers, plant trading table and practical advice with like-minded gardeners. Tea and biscuits.  Gold coin. Info: warkworth.library@aucklandcouncil.govt.nz

5 Retired Men’s Coffee Morning, Parsley Pot Café, 786 Sandspit Rd, 10.30am. Camaraderie and chat with Men’s REBUS. You don’t have to be a member, strictly social. Info: Ron 422 3111

5 Warkworth Area Liaison Group meeting, Totara Park Hall, 7pm. Share ideas and concerns to help keep local communities proactively updated. All welcome

6 Back Bar Jazz, The Bridgehouse, Warkworth, 6.30-9.30pm. Free, all welcome. Gigs first Thursday of every month

6 Brain Charge Hour, Warkworth Library, 10.30-11.30am. Aimed at anyone who wants to improve cognitive brain function with fun activities. Free. Info: warkworth.library@aucklandcouncil.govt.nz

7 English Conversation Group, 1.30-2.30pm. Safe and informal space to practice speaking English. Warkworth library, free. Info: warkworth.library@ aucklandcouncil.govt.nz

7 Chess Club Every Friday, Warkworth Library, 3.30-5pm. Suitable for all levels of ability from beginners to skilled players, children to adults.  Free. Info: warkworth.library@aucklandcouncil.govt.nz

7 Tea & Talk: Max Hamilton, the barefoot scientist, Warkworth Museum, 10am. Entrance $10. Bookings: warkworthmuseum@xtra.co.nz

8 Free Kiwi Avoidance Training for dogs, Glorit War Memorial Hall, 2995 Kaipara Coast Hwy, 9am–3.30pm. Email: KAT@theforestbridgetrust.org.nz (see story p13)

8 Sea Week Mahurangi East Library, Mahurangi Tennis Club, Snells Beach, 10am12 noon. Hands-on shell painting fun for children, free ice cream for kids and adults welcome. Info: www.facebook.com/MahurangiEastLibrary

8 Warkworth - Te Hana motorway, Wellsford Community Centre, 10am-2pm. NZTA drop-in session. Info and newsletter subscriptions: https://nzta.govt.nz/ projects/northland-corridor/ (see brief p9)

8 Summer Serenade, Jazz in the Garden, Couldrey House & Garden, 6pm. Featuring Jane Horder and band performing jazz favourites and musical hits. Tickets $55+booking fee from Eventfinda

10 Concert with Dave Alley and Jon Sanders, Whangateau Hall, 7.30pm. Admission $15. Tickets: whangateaufolk@gmail.com or whangateau.co.nz

12 Warkworth Photo Club, Kowhai Art and Craft Rooms, Warkworth Showgrounds, 7-9pm. Second Wednesday of the month. Info: wwphoto.org.nz All welcome

12 Warkworth Quiz Night, Warkworth RSA, 7pm. A great night of fun. Happy hour from 6.30pm. Register on night: team, individual & non members welcome. Info: Alan Reeves 027 244 8714

13 Auckland Emergency Management, Warkworth Library, 1 Baxter Street, 3.305pm. Free tips and tricks for emergencies, survival and evacuation in your area

15 Warkworth A&P Show, Warkworth Showgrounds, 9am-4.30pm (see feature pgs 28-31)

15 Lifestyle Expo, Wellsford Community Centre, 10am-2pm. Encompassing health professionals and local community organisations. Free entry. Info and stands: Contact Tania on 021 264 0424 or Facebook: Support Your Local Wellsford (see feature pgs 32-34)

15 Free Kiwi Avoidance Training for dogs, Morris & James Pottery, 48 Tongue Farm Road, Matakana, 9am-3.30pm. Email: KAT@theforestbridgetrust.org.nz (see story p13)

16 Settlers’ Market with local artisans, 980 Port Albert Road, Wellsford, 10am-2pm

16 Take a kid fishing day, Warkworth Lions Club, Sandspit Wharf, 9-1pm. For kids aged 5-12 and accompanied by an adult. Register by March 12: email office@ lionsclubs.org.nz

Wellsford rugby welcomes all-comers to club

One of the biggest challenges Wellsford Rugby Football Club (RFC) faces every year is finding enough team members. And not only players, but also volunteers –both are in short supply.

Wellsford RFC committee chair Mick Sweetman says the club really appreciates the financial assistance they get from local businesses and their sponsors, but they’re definitely feeling the pinch.

“One of our biggest problems is that we need more local people to get involved with the running of the club itself, like helping out on the committee and looking after the maintenance,” he says.

“Playing numbers have also dwindled. It’s a tough one, because it’s a combination of young people now changing their preferences for recreation and rugby not being as popular as it once was.

“We’ve started training and had up to 20 players taking part at any one time, plus we’ve had 30 and 40 players who have indicated they are interested in playing. So we’re confident that we’ll have the numbers for one prems team.”

However, the club has needed to combine with Otamatea Hawks Rugby Club to put together a reserve grade team, which is required to be eligible to play in the Northland Rugby Union premier competition.

“You need about 50 guys at least for a prems team and a reserve grade team, and we just couldn’t see that we’d get that many so we made the call early to combine with Otamatea,” Sweetman says.

“There are six or so clubs in Northland who have done a similar thing. You combine with a neighbouring club and one club becomes the premier team and the other club plays as their reserve grade team.”

The last time Wellsford fielded a premier team and a reserve grade team was three years ago.

“We’d like to think that in the future we could go back to what we were doing, but it all depends on interest shown by players.”

Last year the Wellsford prems finished sixth in the Northland competition out of 10 teams.

“Sometimes you’ll have a run of injuries

which affected us a little bit last year. The depth in our premier squad wasn’t as good as in previous years,” he says.

“We were competitive throughout the whole season, but we struggled for a couple of games.

“Like most clubs, we’re always on the look out for front row players and locks. We’d really love to see a few more props or locks turn up at the club if we could.”

After a few years’ away from Wellsford Paul Mant returns as the new head coach and will be assisted by Ross Neal and Ross Wright.

While a captain hasn’t been appointed yet, loose forward Brady Foster was the skip last year and is the front-runner to lead the team again this season.

“Our aim is obviously to make the final, but firstly make the top four, which puts you in the semi-finals and then go from there,” Sweetman says.

The first match of the season is an away game against Kamo Rugby Club on March 22.

Wanted

Players and volunteers

Wellsford RFC committee chair Mick Sweetman says the club is always on the lookout for new players and volunteers.

“We need people to help out around the club, at after-match functions, in the kitchen, cleaning, setting up fields, admin duties – anything that they feel they could help in. There’s lots of work to do,” he says.

“We’d like people who could take on being in a club promotion role and look for ways to attract more players –anyone with a love of rugby or a love of the area.

“Anyone interested in refereeing can just come along to the club and we’ll put them in touch with the Northland Rugby Referees Association, who can get them skilled up. We’d love to see more referees.”

For registration details visit: https:// www.facebook.com/WellsfordRugby/

Wellsford RFC committee chair Mick Sweetman and head coach Paul Mant.
New recruits like Will Smith are just what the club needs.

Turn static files into dynamic content formats.

Create a flipbook
Issuu converts static files into: digital portfolios, online yearbooks, online catalogs, digital photo albums and more. Sign up and create your flipbook.