Portfolio 2023-2014 - Manuel Campaña Sánchez (English)

Page 1

PORTFOLIO 2023-2014

PROFESSIONALPROFILE,EXPERIENCE&TRAINING

ConstructionAssistance&Control|PROJECTS

ADDITIONALINFORMATION

MANUEL

CAMPAÑA SÁNCHEZ

MEng Civil/Structural Engineer

Master’s in Preservation of Architectural Heritage

PROFESSIONAL PROFILE

I am a Civil Engineer specialized in Structural Engineering. Additionally, I hold a Master's degree in Architectural Heritage Conservation, whereIspecializedininterventiontechniques.

Ihaveprovenskillsinvarioustypesofsoftwarefor structural modelingand analysis, both linear and nonlinear, as well as in geotechnical analysis andAutoCAD.

Over the more than seven years of my professional experience, including over three years working in the United Kingdom, I have continued to further my education while developing my professional skills. I have worked in various sectors of civil engineering, from hydraulic works to building construction, and currentlyintherailwaysector.

Withastrongpassionformywork,myimmediate goal is to continue developing as a Civil Engineer, focusing on the field of structural and buildingtechnology.

PROFESSIONAL EXPERIENCE

 Technical level 2, INECO/Madrid/March2021–September

ConstructionAssistance&Control: Forest Fire Reinforcement Brigade Bases works on railway infrastructures (ADIF & forrailwaysignalling(ADIF)

 Structural Engineer, FVAI/Valencia/October2019–

Projects: AITEXTechnologicalCenter-Alcoy(Alicante).

 Structural Engineer, Jacobs/Manchester/March2019

Projects: AllerganWestWingExpansion.

EastMidlandsCheckinHallExtensionRehabilitation

 Structural Engineer, BDIStructuralEngineeringSolutions/Sale(Manchester)/May

Projects: Residentialandcomercialbuildingstructuresforprívateandcomercialclients.

 Graduate Civil and Structural Engineer, GHD /Cheadle(Manchester)/Jul

Projects: Elan Valley Aqueduct

Newark Waste and Water Improvement Project

 Undergraduate – Graduate Civil Engineer, VILOR /Valencia(Spain)/July2014

CONTACT

C/SimóndeColonia7,28903 Getafe(Madrid),España macamsnc@gmail.com

0034656953862 LinkedIn

EDUCATION AND TRAINING

2018–March2019 y2016–Mach2018 –September2014

Projects: Railway connection between “València – St. May 2024 (Excellent)

Isidre Stn.” & “València - Font de St. Lluís Stn.”

Final Dissertation, the Polytechnic University of Valencia / Valencia (Spain) / The Contracting Hall of the Valencia Silk Exchange (1483-1498): Construction and Structure

Master's Degree in Preservation of Architectural Heritage. the Polytechnic University of Valencia / September 2019–June2020

Final Dissertation, the Polytechnic University of Valencia / Valencia (

Project for a Passenger Underpass at Almassora Station – Castellón

MSc Civil Engineering, 2:1, the Polytechnic University of Valencia / September

DegreeaccreditedatMASTERSlevelbytheABETagency(http://www.abet.org

Spain) / August 2014 – July 2015 (Excellent) 2006–June2014 ). 2023 (MITECO), improvement renfe), technical buildings March2020 –August2019

PROFESSIONAL PROFILE, EXPERIENCE & TRAINING

VARIOS CLIENTES

Different clients (ADIF, MITECO, etc.) require new construction or rehabilitation works to improve their providedservices.Thetypesofworksareveryvaried.

Regarding rehabilitations, they range from interventionsinlargeandhistoricrailwaystations,such asValenciaNord,tosmallreinforcementsinslabs,like in Talavera de la Reina. Existing structures are also checked to support new installations, such as new fans in the lobby of Orihuela station, or existing infrastructures are remodeled to increase their capacity. An example of the latter is the project for thenewAlcaládeHenaresstation.Finally,workisalso done for new constructions, such as the new Reinforcement Brigades for Forest Fire (BRIF) bases, distributedthroughoutthenationalterritory.

As a technician in the different Construction Supervision Assistance (CSA) roles, my work mainly consistedofcheckingconstructionproposalsfroman engineering perspective, supervising the works, and proposing alternative solutions to unforeseen situations. For the latter, I drafted various calculation notestonumericallyjustifythesechanges.

I used specific software such as CYPECAD, Autodesk ROBOT, AutoCAD, and other programs for more specific analyses, such as joint checks (HILTI HIT PROFIS) or others for checking and designing compositeslabs.

ConstructionAssistance&Control

ADIF | ADIF ALTA VELOCIDAD

ADIFpromotestheconstructionofnewhigh-speedrail lines to improve train communication between different regions of Spain. In the final phases of such projects, the necessary installations for safe train operationareprovided.Amongtheseinstallationsare those related to Control, Command, and Signaling (CCS), telecommunications, and track electrification. These installations are centralized in various technical buildings along each line, from which the necessary information is transmitted to the different Control Centers.

These buildings typically consist of reinforced concretefoundationslabs,onwhichthebuildingsare constructed using precast prestressed concrete panels. The interior finishes include raised flooring, plasterboard panels, and, in some cases, suspended ceilings. The buildings also include low-voltage installations, air conditioning, fire protection systems, and,insomecases,watersupplyandsanitation.

As a Construction Supervision Technician, I was responsible for reviewing construction proposals, supervising and certifying the works, and ultimately approvingprotocolsforcommissioning.

ConstructionAssistance&Control

AITEX

The TextileTechnologicalInstitute AITEX,needs anew headquarterinAlcoy(Alicante).

The project covers a big area (31000m2). The total usefulareais28000m2 .

Thebuildinghastwoundergroundlevels(basement-1 and -2) and four stories above ground level (Ground Floor, First Floor, Second Floor and Third Floor). The wholebuildinghasatrapezoidalplanshape.

Theplanareaofthebuildingis7000m2 approximately. Structurally, the building is composed by six (6) independent blocks, which are separated by expansion joints. For all cases, expansion joints are designed based on the traditional method of double column.

calcareous apacity. In consequence, a The , where the building is is characterised by a big upward slope to the totalelevationdifferenceof between the South side and the North the two basement levels, retaining walls need to

The bearing surface for the foundation is located over a big ground layer, which is composed by gravels with good bearing c shallow foundation solution is adopted by using pad footings for columns and strip footings for walls. topographical profile of the site proposed, North.Thereisanapproximate eight (8) meters side. For bedesigned. The structure bycolumns

proposed superstructure is designed as a reticular ,whichare separated7.20mx7.20m. columns. There is coexistence andconcretecolumns.Floorsaredesigned

theanalysis,AUTODESKROBOTisused,aswellasEXCEL

In a plan view, some of these columns no longer have continuity for last stories. Therefore, there are some huge spans (14.40m) between betweensteel asbidirectionalfloors(waffleandsolidslabs). For spreadsheets.

Seismic forces are also considered for structuralelements,includingthefoundation.

PROJECTS
the design of all Six (6) blocks separated by expansion joints South-West block (block 4)

ALLERGAN

AllerganBiologicsLtdownsaninvestigationcentrein

Speke (Liverpool) for clinical trials and pharmacological products development. The companyrequirestheexpansionofthelaboratoryto improveitscompetitiveness.

A new Project is carried out to extend the current building, adding a new wing. This new extension cosist of a two stories building, annexed to the west elevation.Approximatedmaindimensionsinplanare 15mwideby66mlong.

The new building incorporates two pilot plants, laboratories, a freezers room, areas for offices and alsowelfareandamenityareas.

The project also includes other minor jobs. On one side, the development of the current building courtyard to turn thisinto a new office area. On the other side, the implementation of annexed extensions to gas sotres which are part of the complex.

Thesuperstructureforthemain

using TEKLA Structural Designer. All unidirectional elements (beams, columns and bracing) are modelledwithstandardsteelprofiles. floors, poured proposed. Foundations consist of combined and also strap foundations intercede the adjacent building Therefore, ground,strap

– The adopted expansionismodelled Fortheroofand concrete on metal decking is pad foundations, to do not foundation. in order to apply uniformly pressure on beamsarerequired.

Annexed extensions for gas stores design for superstructures and foundations, replicatesstructuralsolutionsofexistinggasstores.

Main expansion - Structure for roof Main expansion Main expansion – Foundation New area for offices - Superstructure
PROJECTS
First floor structure

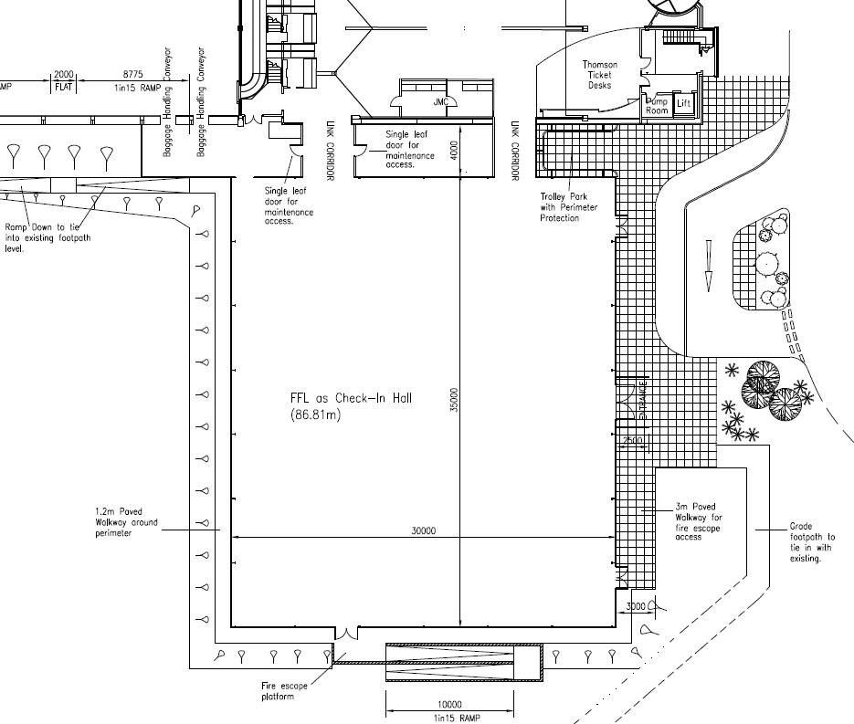
EAST MIDLANDS CHECK IN HALL EXTENSION REHABILITATION

JacobswascommittedbyManchesterAirportGroup (MAG) to carry out a study of the current state of a bearing slab for an extension, which is annexed to the main terminal of East Midlands Airport. The extension is built with prefabricated materials. The superstructure required to be replaced, keeping the existingbearingslabfoundationtobereused.

Plan dimensions of the extension are 30.0m x 35.0m. Theslabis150mmthick,whichisreinforcedinthetop layer with A393 mesh. Also, there is an edge beam whichisreinforcedtoo.

Relative information to the original design was provided by MAG because no intrusive tests or groundinvestigationswerecarriedout.

The suitability of the slab was determined based on theprovidedinformation,aswellasvisualinspections on site. As a final conclusion, it was advised to perform some additional ground tests to confirm its aggressiveness. Also,itwasestimated65kN/mtensile strength and 50kN/m2 ground bearing capacity. Finally, it was considered achievable an asset life of 15yearsmaximum.

PROJECTS
EastElevation NorthElevation WestElevation Extensionmainplan Outsideview–Mainentrance Edgebeamdetail Slabedge Outsideview–Mainterminal

APROPOS PROJECTS

BDI Structural Engineering Solutions is commissioned by APROPOS Conservatories to provide structural designserviceforthetotalityoftheirprojects.

Jobs normally consist of new conservatories, internal alterations, extensions and loft conversions for residentialdwellingsforprivateclients.

Budgets usually vary between £400 and £800, dependingonthejobmagnitude.

APROPOS Conservatories provides all information in regards to sections, elevations and visuals for proposed solutions and we proceed with the structuraldesign.

As a structural engineer with CAD competences, I use to be in charge for the whole job. Our design packages include structural calculations, drawings for proposed layouts as well as structuraldetails and adesignriskassessmentdocument.

Two stories rear extension is proposed to extend lounge on ground floor and one of the bedrooms onfirstfloor.

New conservatory and internal alterations are proposedforrearelevationofthehouse.

PROJECTS
Ref 3807 – Donaldson Ref 3883 – Mc Veigh

36SUNNYBANKDRIVE

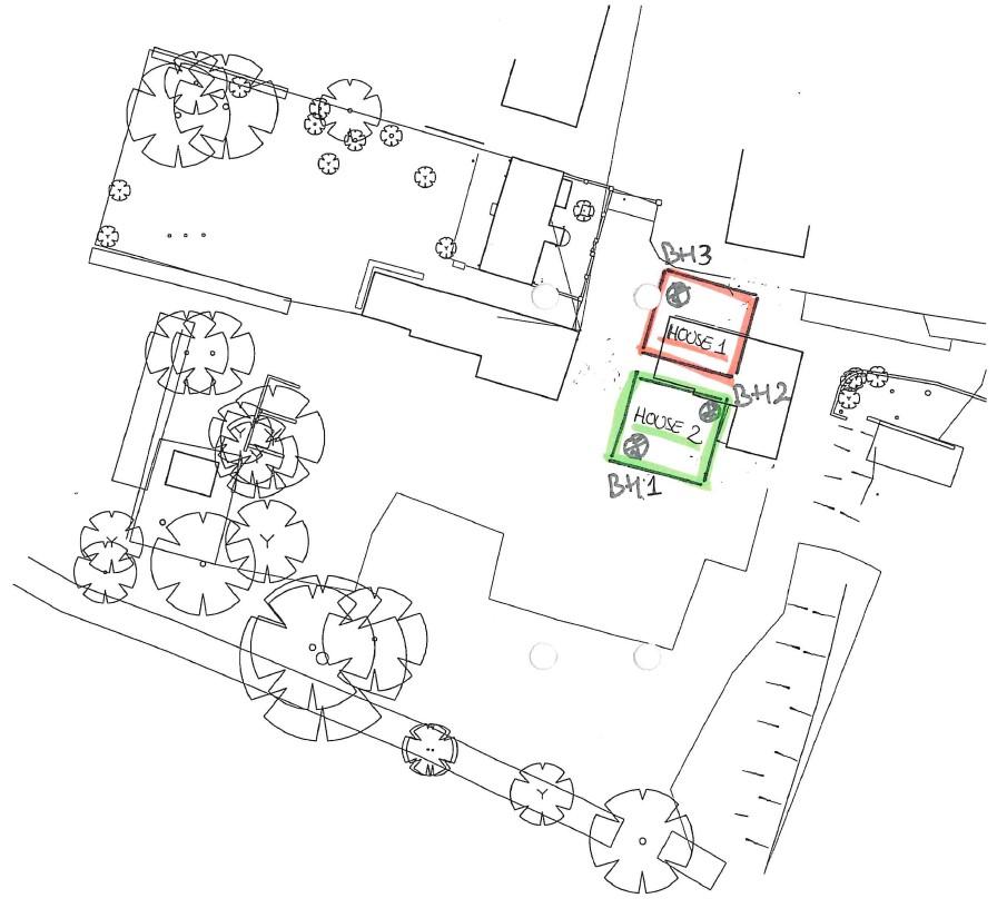
BDI Structural Engineering Solutions was commissioned by Hive Architects Studio Ltd for the structural design for two new dwellings in Wilmslow, Cheshire.

Solutions for superstructure for both houses are exactly the same. Methodology applied for foundations is also the same, though elements sizes foreachdwellingaredifferent.Thisisduetodifferent groundbearingcapacityfoundonsite.Stripfootings arethereforewiderforHouse1.Twowaysreinforced concreteslabsaredesignedforgroundfloor.

Superstructures are designed using blockwork, steel and timber elements. Lateral stability is provided by buttressing, floor diaphragm effect and proposed steelcrankedframesanchoredtofoundations.

Cranked frame elevation & connection details. Bigopeningsforfirstandgroundfloorsforfrontand rear facades are proposed. In order to ensure lateralstability,steelcrankedframesaredesigned.

PROJECTS

20PEELMOATROAD

AnewprojectforaresidentialdwellinginStockport–Manchester, was undertaken by DROME ARCHITECTS. BDI Structural Engineering Solutions was instructed to carry out a structural design package forthisjob.

The project was about a rear extension for the ground floor. Existing cavity walls in the back of the house were demolished in order to increase the internal space for the new extension. Therefore, significant structural elements were necessary to support storeys above and also to provide lateral stability.

In regards to new foundations, some structural alterationsfortheexistingbasementwererequiredto transfernewverticalloadsthroughfromgroundfloor to basement bearing level. For new elements installed out of the existing basement layout, foundations were carried out at ground level. However,historicfilladjacenttobasementwallswas also considered. Thus, part of the proposed strip footing was required to step down to level of basementfoundation.

Plywood underside existing floor joists as well as new flat roof is proposed in order to provide diaphragm effect.

The design for remaining elements, a new precast concretelintelfortheopeningintherearfacadeand proposedrooflightsforthenewflatroof,aredesigned byothers.

Elevationforproposedrearextension

PROJECTS

377WASHWAYROAD

StudiO 34 was the architectural consultancy commissioned to undertake the design for a house extension in Sale – Manchester. BDI Structural Engineering Solutions provided structural design servicesforthisproject.

The job included a new loft conversion, a lateral extensionfor ground and first floor and an extension for the back of thehouse,justforgroundfloorin this case,asareplacementforanexistingconservatory.

The loft conversion is mainly designed with timber elements. The existing roof is extended over the lateral extension. Vertical studs are installed to prop thewholeroofstructure.Studsaresupportedbysteel beamswhichareinstalledbetweenceilingjoists.

The client wished spaces at ground level as big as possible. Therefore, internal alterations were also necessary to remove some load bearing walls. Consequently, a moment frame was required to provide lateral stability as well as masonry checks werealsoconsideredtoverifylocalcapacity.

PROJECTS
Proposedfrontelevation Proposedlateralelevation Proposedrearelevation Proposedfoundationlayout Proposedgroundfloorlayout Proposedfirstfloorlayout Proposedloftlayout Existingfrontelevation Existingrearelevation Existinggroundfloorlayout

ELAN VALLEY AQUEDUCT

The Elan Valley Aqueduct was built in The Victorian Period, to convey water from Wales to Birmingham. Due to the age of the current channel,Severn Trent promotes the replacement of some sections to reduce the high risk of flooding in some Welsh villages. Works consist of the creation of three new tunnels atBleddfa, Knighton and Nantmel which will bypasssomeexistingsections.Theseexistingsections willno longerbeusedasnewtunnelswillguarantee thewatersupplytoBirminghaminasafeway.

As a design team member, I was in charge of the structural design for different elements along the aqueduct.

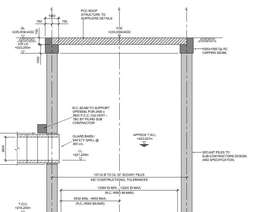
For Frydd Wood, I designed a precast concrete tunnel,adropshaft locatedattheupstreamend of this and a well house for the downstream end. For Nantmel I worked on connection pits designs for another proposed tunnel which is bypassing the existing section. I also designed, as a temporary structure,aTBM(tunnelboringmachine)thrustframe fortunnellingworksinNantmel.

I also took responsibility for some geotechnical jobs such as slope stability analysis, seepage and hydraulic failure checks, flotation checks, sheetpiles designandQassessmentsfortunnelinrock.

Precastconcretetunnel Precastconcretetunnel Precast concrete tunnel –sectionanalysisusingSTRAND7 Drop shaft beam,ringbeams,tunnelportalandbaseslab. Connection pit 3D visual – cofferdam carried out usingsecantpiles.
–sectionanalysisusingSTRAND7
PROJECTS –sectionshowing:roofslab,capping
–sectionanalysisusingSTRAND7 Victorian EVA TBM launch operations

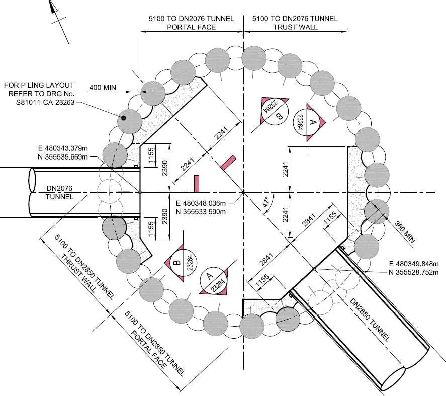
NEWARK WASTE AND WATER IMPROVEMENT

Newark'ssewerageandwatersystemwasinsufficient to protect homes from flooding. Therefore, Severn Trent invested £60 million to upgrade the current sewersystem.

GHD was commissioned to design improvements for theexistingsystem.MaintasksI hadto completefor this job were mostly the design of the majority of proposed shafts along new tunnels. I was also involvedindesignsfortunnelportalsforthoseshaftsI previously designed in order to connect each other bydifferenttunnelsections.

I also carried out flotation checks and strata assessmentsbyanalysingboreholesresults.

Newark Sewers Strategy Project construction of a 3km new transfer sewer between Millgate/FarndonRoadandCrankleyPointSTWusing tunnelling techniques; upgrading of 11.6km of existing sewers using traditional techniques; and associated works at Crankle STW).

(comprising the open

Shaft 1 layout
PROJECTS
Tunnel portal for Shaft 1 –sectionandelevation cut/trench y Point

RAILWAYCONNECTIONBETWEEN“VALÈNCIA–SANT ISIDRETRAINSTATION”AND“VALÈNCIA–FONTDE SANTLLUÍSTRAINSTATION”

ADIF (National Rail Infrastructures Administrator in Spain) invested approximately £7.26 million for a railway connection between two train stations located in the city of Valencia (Spain) “ValènciaSant IsidreTrain Station”and“València- Font de Sant Lluís Train Station”. This project included a new railway bridge and a new underpass for passengers in“València–FontdeSantLluísTrainStation”.

As anapprenticeemployedbyVILOR,Ihadagood first contact within the construction sector. Most of timeI spentonsitewiththeSiteManager,wastobe explained about different construction methods for different work units such as concrete pouring, excavationjobsorsteelmembersinstallation.Ihada first appreciation of testing on site for different materials as well. Concrete, steel rebars, welds or grout are some examples of them. However, I also took some small responsibilities during my employment. These were normally related to budgetsfornewunitsbutalsoIwasinvolvedinsome surveytasks.

PROJECTS
Steelrebarinstallation Pillingjobs Concretepouringforgroundslab Steelproppingsystemforpiledwall Railwaycuttingworks Culvertsinstallationforunderpass Railwayreinstallationjobs Finishesforstaircasealready installed Accessstairsandshelterfor platform

PROJECT OF UNDERPASS AT ALMASSORA TRAIN STATION–CASTELLÓN

A new underpass for passengers at Almassora Train Station(Castellón-Spain)isdesignedinaccordance to jacked box tunnelling method. Pile walls are calculatedfortwostaircaseswhicharelatercovered by steel platform shelters. Steel structures for elevators are designed as well as drainage and electrical installations for the correct service of the new underpass. An assessment of affected services duringconstructionisalsocarriedouttoapplyrepair measuresonceworksonsitehavefinished.

- Operative rail service during constructionimpliesusing“jackedbox tunnelling”methodology.

- Micropilesareusedforstaircaseswalls duetorailwaysproximity.

- Location chosen according to space availableinthetrainstation.

- Thereisnotseismicrisk.

- Therearenotneithersulphatesnor groundwater.

- Geological strata; topsoil (1.3m), limestone and sandstone gravels which are occasionally cemented betweenthem.Clayedmatrixand calcareouscement.

- Allowablegroundbearingpressure calculated:435kN/m2 .

PROJECTS
ATROS systemtosupportrailwaysduringconstruction.

SOFTWARE SKILLS

HERITAGE ARCHITECTURE AND LANSCAPES

INSTITUTIONS AND LICENSES

ADDITIONAL INFORMATION

Turn static files into dynamic content formats.

Create a flipbook
Issuu converts static files into: digital portfolios, online yearbooks, online catalogs, digital photo albums and more. Sign up and create your flipbook.
Portfolio 2023-2014 - Manuel Campaña Sánchez (English) by macamsnc - Issuu