Portafolio Maria Emilia

Page 1

300

Diseño subsuelo parqueadero

Gradas

ASCENSORES

Referentes:

DISEÑO DE BAÑO ESPECIFICACIONES

1. Vidrio esmerilado batiente + perfilería

2. Juego de ducha marca FV gama élite

3. Puerta de madera lacada 200x70cm

4. Antepecho inferior de mampara 10cm

5. Inodoro alargado una sola pieza marca

6. Vidrio esmerilado batiente + perfilería

7. Espacio para productos de aseo 30x40cm

8. Mueble de madera tríplex para lavabo

9. Lavabo incrustado marca FV

10. Piso de azulejo de mármol color gris

0.80 1.80 0.60 0.30 0.80 0.10 0.60 0.40 0.13 0.07 0.20 0.50 0.20 0.22 0.45 0.22 0.70 0.70 0.60 10 2.00 1.00 0.50 0.94 2.00 0.10 4 2 3 5 1 0.10 1.97 6 4 ESC 1:50 ESC 1:75 0.80 1.80 0.60 0.30 0.80 0.10 0.60 0.70 0.70 0.60 10 2.00 1.00 0.50 0.94 2.00 0.10 4 2 3 5 1 ESC 1:75 0.80 1.80 0.60 0.30 0.80 0.10 0.60 0.40 0.13 0.07 0.20 0.50 0.20 0.22 0.45 0.22 0.70 0.70 0.60 10 2.00 1.00 0.50 0.94 2.00 0.10 4 2 3 5 1 0.10 1.97 0.50 2.00 0.30 6 1 7 2 4 3 0.90 1.97 0.10 0.53 6 8 9 4 1
ESC 1:50 ESC 1:75 ESC 1:75 ESC 1:75

DISEÑO DE PARQUEADERO EN SUBSUELO

1 5 2 6 3 7 4 8 A B C D 9 RETICULA PLANTA BAJA LOSA CORTE RAMPA 18% RAMPA 10%               0 5 15           0 5 15 25 12 2,7 5,7 2,8 0,2 0,2 0,2 0,2 4,6 0,4 3,4 0,4 0,4 5,4 0,4 4,6 0,4 4,6 0,4 1 5 2 6 3 7 4 8 A B C D 9 RETICULA PLANTA BAJA RAMPA 18% RAMPA 10%           0 5           0 5 15 25 12 2,7 5,7 2,8 0,2 0,2 0,2 0,2 4,6 0,4 3,4 0,4 0,4 5,4 0,4 4,6 0,4 4,6 0,4

CORTE A - A'

PISO A - A' MARIA EMILIA HINOJOSA CONSTRUCCIONES IV RAMPA 18% RAMPA 10%             LNT 0 5 15 0 5 15 LOSA PISO
MARIA EMILIA HINOJOSA CONSTRUCCIONES IV RAMPA 18% RAMPA 10%                 15 LNT 0 5 15 0 5 15
3 4 5 6 7 5 6 7 5 6 7 MEDIDAS MÍNIMAS NORMATIVA

ENVOLVENTES

TERRAZA .90 DE-01 DE-01 DE-02 DE-02 DE-03 DE-03 1.20 .40 .40 D F E A C COD 1 46 928 150 CANT 2 2 46 ESPESOR 2054 LARGO 100 ANCHO B C E DESAMBLAJE DE PUERTA APANELADA Isomerías
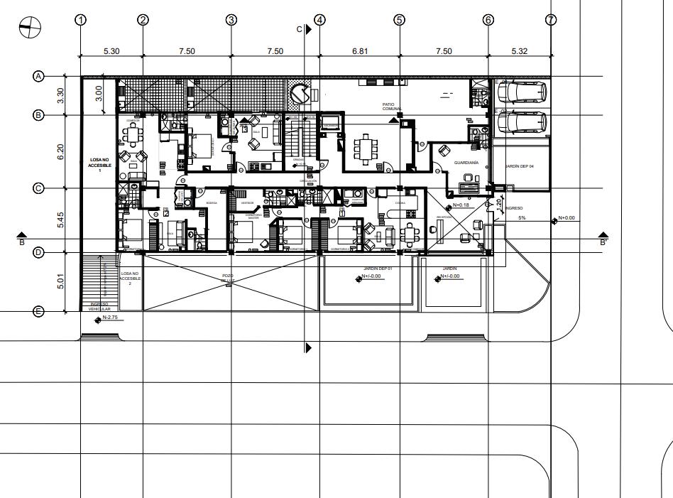
5 P3 N+8.82 N+9.00 S B 5.30 7.50 7.50 6.81 3.30 6.20 5.45 5.01 1 A B C D E 2 3 4 5 BALCON 2 COMEDOR COCINA SALA CUARTO MÁQUINAS COMEDOR SALA COCINA CUARTO DE MÁQUINAS ASCENSOR 2.37 2.13 PO3 PI04 PI04 PI08 PI08 PI07 TU01 PI01 PS01 PS02 PS03 PS04 VD05 VD04 N+7.20 2 P3 3 P3 4 P3 BODEGA N: +7.20 CIRCULACIÓN GRADAS COCINA COMEDOR SALA DORMITORIO 1 BAÑO VESTIDOR ESTAR CUARTO DE MÁQUINAS DORMITORIO MASTER SALA COMEDOR COCINA BAÑO BAÑO VESTIDOR DORMITORIO MASTER CUARTO DE MÁQUINAS A PO6 VO1 PI08 PI07 PI07 PI07 PI07 PI07 PI07 PI09 PI04 PI04 PI04 PI08 PI08 PI08 PI08 PI08 PI08 PI08 PI08 PI08 PI07 PI07 PI07 PA03 PA04 PA04 TU01 TU01 TU01 TU01 TU01 TU01 TU01 TU01 TU01 TU01 TU01 VD05 VD04 VD04 VD04 TU02 VD05 VD04 PI01 PI07 PI07 PO6 PO6 PO6 PO6 PO6 PO5 PO5 PO5 PO5 PO5 PO5 PO5 PO5 PO5 TU03 TU03 TU03 TU03 TU03 PA01 PA01 PA01 PA01 PA02 PA02 PA02 PA02 PA02 PA03 PA03 PA03 PA03 PA05 PA06 PA08 PA08 PA08 PA08 PARED INTERIOR DE GYPSUM COLUMNAS DE HORMIGON VIDRIO DE 8mm MALLA ELECTRO SOLDADA PARA PARED DE HORMIGON DE 8CM PLATINA DE UNION DE PIEZAS DE GYPSUM AISLANTE TERMICO DORMITORIO MASTER VESTIDOR BAÑO BAÑO COCINA COMEDOR SALA DORMITORIO 1 CUARTO DE MÁQUINAS VD05 VD05 DE-02 DE-03 DE-01 5 P3 N+8.82 N+9.00 S B 5.30 7.50 7.50 6.81 3.30 6.20 5.45 5.01 1 A B C D E 2 3 4 5 BALCON 2 COMEDOR COCINA SALA CUARTO DE MÁQUINAS COMEDOR SALA COCINA CUARTO DE MÁQUINAS ASCENSOR 2.37 2.13 PO3 VO1 PI04 PI04 PI08 PI08 PA01 PI07 TU01 PI01 PS01 PS02 PS03 PS04 VD05 VD04 N+7.20 2 P3 3 P3 4 P3 BODEGA N: +7.20 CIRCULACIÓN GRADAS COCINA COMEDOR SALA DORMITORIO 1 BAÑO VESTIDOR ESTAR CUARTO DE MÁQUINAS DORMITORIO MASTER SALA COMEDOR COCINA BAÑO BAÑO VESTIDOR DORMITORIO MASTER CUARTO DE MÁQUINAS A PO6 VO1 PI08 PI07 PI07 PI07 PI07 PI07 PI07 PI09 PI04 PI04 PI04 PI08 PI08 PI08 PI08 PI08 PI08 PI08 PI08 PI08 PI07 PI07 PI07 PA03 PA04 PA04 TU01 TU01 TU01 TU01 TU01 TU01 TU01 TU01 TU01 TU01 TU01 VD04 VD04 TU02 VD05 VD04 PI01 PI07 PI07 PO6 PO6 PO6 PO6 PO6 PO5 PO5 PO5 PO5 PO5 PO5 PO5 PO5 PO5 PO5 PO5 TU03 TU03 TU03 TU03 TU03 PA01 PA01 PA01 PA01 PA01 PA02 PA02 PA02 PA03 PA03 PA03 PA03 PA03 PA05 PA06 PA06 PA08 PA08 PA08 PARED INTERIOR DE GYPSUM COLUMNAS DE HORMIGON VIDRIO DE 8mm MALLA ELECTRO SOLDADA PARA PARED DE HORMIGON DE 8CM PLATINA DE UNION DE PIEZAS DE GYPSUM AISLANTE TERMICO DORMITORIO MASTER VESTIDOR BAÑO BAÑO COCINA COMEDOR SALA DORMITORIO 1 CUARTO DE MÁQUINAS VD05 VD05 DE-02 DE-03 DE-01 1 2 3 4
1 P3 7.50 5.32 6 7 BALCON 1 BALCON 3 BAÑO DORMITORIO MASTER DORMITORIO 1 VESTIDOR BAÑO VESTIDOR DORMITORIO MASTER DORMITORIO 1 BAÑO PO2 PI07 PI07 PI08 PI08 PI08 PI08 PI08 PA03 TU01 TU01 TU01 PI01 PI01 PS01 PS02 PS03 PS04 PS01 PS02 PS03 PS04 VD05 VD04 VD04 VD06 PI04 PO6 PO6 PO5 PO5 PO5 PO5 TU03 TU03 TU03 PA01 PA01 PA06 VO1 VD05 θ 6MM θ DE-01 DE-02 θ θ θ DE-03 θ 6MM θ 6MM 7.50 5.32 6 7 BALCON 1 BALCON 3 BAÑO DORMITORIO MASTER DORMITORIO 1 VESTIDOR BAÑO VESTIDOR DORMITORIO MASTER DORMITORIO 1 PO4 PO2 PI07 PI07 PI08 PI08 PI08 PI08 PI08 PA03 TU01 TU01 TU01 PI01 PI01 PS01 PS02 PS03 PS04 PS01 PS02 PS03 PS04 VD05 VD04 VD04 VD06 VD06 PI04 PO6 PO6 PO5 PO5 PO5 PO5 TU03 TU03 TU03 PA01 PA05 PA06 VO1 VD05 θ 6MM θ θ θ DE-01 DE-02 θ θ θ θ DE-03 θ θ θ 6MM θ 6MM 6 7
PARED INTERIOR DE GYPSUM VIDRIO DE 8mm MALLA ELECTRO SOLDADA PARA PARED DE HORMIGON DE 8CM PLATINA DE UNION DE PIEZAS DE GYPSUM AISLANTE TERMICO BAÑO 1 2 4 3 Pared 1 Pared Pared 3 2.26 .60 .08 1.11 .60 1.15 .45 1 2 3 4 5 6 PARED INTERIOR DE GYPSUM VIDRIO DE 8mm MALLA ELECTRO SOLDADA PARA PARED DE HORMIGON DE 8CM PLATINA DE UNION DE PIEZAS DE GYPSUM AISLANTE TERMICO BAÑO 1 2 4 3 Pared 1 Pared Pared 3 2.26 .60 .08 1.11 .60 1.15 .45 .70 .70 .45 1 2 3 4 5 6 PARED INTERIOR DE GYPSUM VIDRIO DE 8mm MALLA ELECTRO SOLDADA PARA PARED DE HORMIGON DE 8CM PLATINA DE UNION DE PIEZAS DE GYPSUM AISLANTE TERMICO BAÑO 1 2 4 3 Pared 1 Pared Pared 3 Pared 4 2.26 .60 .08 1.11 .60 1.15 .45 .70 .70 .45 1 2 3 4 5 6 PARED INTERIOR DE GYPSUM VIDRIO DE 8mm MALLA ELECTRO SOLDADA PARA PARED DE HORMIGON DE 8CM PLATINA DE UNION DE PIEZAS DE GYPSUM AISLANTE TERMICO BAÑO 1 2 4 3 Pared 1 Pared Pared 3 Pared 4 2.26 .60 .08 1.11 .60 1.15 .45 .70 .70 .45 1 2 3 4 5 6 Pared 1 Pared 2 1.09 2.24 .50 .80 1 2 7 8 9 3.17 7 6 3 2.25 .74 9 .40 .60 10 13 12 BAÑO 1 2 4 3 Pared 2 Pared 4 1.15 .45 .70 .70 .45 1 2 3 4 5 6         Ventana corrediza (C) Ventana corrediza de 4 perfiles (C4) Aluminio negro Aluminio negro Aluminio negro Ventana fija S-300 mampara de 4 2.40 x 2 m 2 x 1.75 m 3.24 x 3.79 m V V 04 05 V 02 Material Fromato Gypsum ST estandar Color traslucido Policarbonato alveolar 5.9 x 2.1m Código TU 01 03 02 CUADRO DE TUMBADOS 122 x 244 cm blanco TU TU blanco Hormigon armado estucado/ pintado F F F F F F Especificación Cielo raso de placas Se ancla a la estructura tumbado del puesto. Planta baja y planta tipo 1.75 2.00 4.20 2.00 1.20 2.00 2.40 2.00 E: 3mm E: 3mm E: 3mm Planta tipo Ventana de vidrio reflectivo claro con capa pirolíptica. Perfilería de aluminio (Cedal) color negro. Panel superior fijo de 120x130cm. Panel inferior fijo de 120x0.7cm. Planta baja Ventana corrediza (C) Aluminio negro 4.20 x 2 m V 03 Planta tipo E: 3mm Ventana de vidrio reflectivo claro con capa pirolíptica. Perfilería de aluminio (Cedal) color negro. Ventana de vidrio reflectivo claro con capa pirolíptica. Perfilería de aluminio (Cedal) color negro. Panel izquierda fijo de 120x200cm. Panel derecha corrediza 120x200cm Ventana
reflectivo claro
pirolíptica. Perfilería de aluminio (Cedal) color negro. Panel izquierda fijo de 0.85x0.5cm. Panel derecha abatible 0.85x200cm E: 8mm Policarbonato alveolar 8mm. Hormigón armado. Reforzado electrosoldada espesor para estucado, pintura pared.     E: 8cm
de vidrio
con capa

Pared 2

Pared 2

Pared 2

Pared 2

Baño

PARED INTERIOR DE GYPSUM VIDRIO DE 8mm MALLA ELECTRO SOLDADA PARA PARED DE HORMIGON DE 8CM
        laminado. del Ubicación Planta baja y planta tipo Muestra translúcido de Tragaluz sobre núcleo de escaleras, pozo de luz Subsuelo-parqueadero malla Mortero       

DISEÑO DE BAÑO

Muestra .62 .70 .59 .59 PI04 PI08 TU01 PA03 PA02 2.40 .70 2.50 .60 .20 .15 .73 .62 .11 .54 .44 .85 .35 .62 .15 Pared 1 Pared 2 Pared 3 Pared 4 13 9 8 4 2 6 N+0.18 1 PB 2 PB 3 PB CIRCULACIÓN GRADAS CUARTO DE MÁQUINAS MASTER DORMITORIO 1 DORMITORIO COMEDOR SALA SALA SALA COMEDOR DORMITORIO BAÑO BAÑO RECEPCIÓN BAÑO DORMITORIO 1 BAÑO GUARDIANÍA PATIO COMUNAL ASCENSOR A CUARTO DE MÁQUINAS CUARTO DE MÁQUINAS PA02 7 8 Muestra .70 2.10 .50 .60 .89 .89 .60 PARED INTERIOR DE GYPSUM VIDRIO DE 8mm MALLA ELECTRO SOLDADA PARA PARED DE HORMIGON DE 8CM PLATINA DE UNION DE PIEZAS DE GYPSUM AISLANTE TERMICO BAÑO 1 2 4 3 Pared 1 Pared 2 Pared 3 Pared 4 2.26 .60 .08 1.11 .60 1.15 .45 .70 .70 .45 1 2 3 4 5 6 Pared 1 Pared 2 Pared 3 1.09 2.24 .50 .80 2 7 8 9 3.17 6 3 .74 9 .80 1.09 10 7 .40 1.40 1 10 Ubicación Muestra interiores baterías sanitarias baño baja y planta tipo baja y planta tipo sanitarias 13 12 PARED INTERIOR DE GYPSUM VIDRIO DE 8mm MALLA ELECTRO SOLDADA PARA PARED DE HORMIGON DE 8CM PLATINA DE UNION DE PIEZAS DE GYPSUM AISLANTE TERMICO BAÑO 1 2 4 3 Pared 1 Pared 2 Pared 3 Pared 4 2.26 .60 .08 1.11 .60 1.15 .45 .70 .70 .45 1 2 3 4 5 6 Pared 1 Pared 2 Pared 3 1.09 2.24 .50 .80 1 2 7 8 9 3.17 7 6 3 2.25 .74 9 .80 1.09 10 7 .40 1.40 1 3 .60 10 Muestra
planta tipo .70 2.10 tipo 13 12 Pared 1 Pared 2 Pared 3 1.09 2.24 .50 .80 1 2 7 8 9 3.17 7 6 3 2.25 .74 9 .80 1.09 10 11 7 2.10 .40 1.40 1 3 .60 10
planta tipo .70 2.10 tipo 13 12 Pared 1 Pared 2 Pared 3 1.09 2.24 .50 .80 1 2 7 8 9 3.17 7 6 3 2.25 .74 9 .80 1.09 10 11 6 7 2.10 .74 .40 1.40 1 3 .60 10 baterías planta tipo .70 2.10 tipo 13 12 Pared 1 Pared 2 Pared 3 1.09 2.24 .80 1 2 9 3.17 7 6 3 2.25 .74 9 .80 1.09 Pared 4 10 11 6 7 2.10 .74 .40 1.40 1 3 .60 10 planta tipo .70 2.10 tipo 13 12 Pared 3 .80 1.09 Pared 4 10 11 6 7 2.10 .74 1.40 1 3 Muestra S B N: +0.18 3 PB N+1.80 N+2.16 CIRCULACIÓN GRADAS PATIO DEP 02 PATIO DEP 03 SALA SALA COMEDOR DORMITORIO 1 BAÑO PATIO COMUNAL ASCENSOR A CUARTO DE MÁQUINAS
baterías
baterías

PARED 30 x 90 cm Gris

7

CUADRO DE ACABADO

Cerámica Cerámica magma gris de uso residencial

5 PISO marfil

Cerámica

TUMBADO

PUERTA

11

Especificación Ubicación Muestra Paredes interiores baterías sanitarias

Piso del baño Cerámica Ópalo marfil acabado mate. Uso residencial moderado 30 x 30 cm

Gypsum ST estandar 122 x 244 cm blanco Cielo raso de placas de yeso laminado. Se ancla a la estructura interna del tumbado del puesto.

Puerta batiente 2.10 x 0.70 m

E: 5mm Madera sólida wengue

Puerta batiente de madera sólida con tres salientes de 1cm, bisagras ocultas antibarreta

Planta baja y planta tipo

Baños

8

Ventana abatible (A) 50 x 60 cm

LAVAMANOS

LAVAMANOS DUBLÍN CON MUEBLE

Cerámica Sanitaria yTablero

Aglomerado MDF

MEZCLADOR LAVAMANOS

INODORO MASTER REDONDO

CUERPO DE BRONCE Cerámica Sanitaria

MEZCLADOR DE DUCHA HOVE

VENTANA Cuero de bronce Cabeza de ducha acero inoxidable

Planta baja y planta tipo baterias sanitarias .50 E: 3mm Aluminio negro

89 x 90 x 80 cm

Mueble Humo

Ventana de vidrio reflectivo claro con capa pirolíptica, . Perfilería de aluminio (Cedal) color negro.

Lavamanos cubierta de muebleinstitucional Dureza: Tablero de alta resistencia al rayado Superficie del tablero microporosa lo protege de la humedad

Cuerpo de bronce - Aereador Reductor de caudal - Cartucho cerámico de alta durabilidad

x

Dos piezas al piso 4.8 litros por descarga - Instalación al piso desde la pared hasta el desagüe 30.5cm - Anillo redondo

Mezcladoras de ducha hove so050 21 31 1 leros empotrada para ducha, cartucho cerámico sedal, cerfificación de calidad cupc

cm

SALPICADERO 2 89 x 5 cm

2 cm

Bronce

44 x 4 cm E: 1cm 19 x 11 cm

0.76 m E: 3mm

Negro mate

Material Formato Color Código
2.10
.80 .89 .89 .60
Baños
12.2x17.9x5 cm
Baños
Negro mate
Vidrio claro con perfil de acero MAMPARA 68.9
36.9 x 74 cm
Blanco Baños .74 .36 .68
57x10cm
Cabeza 30x30 cm cuerpo
Negro mate Baños .23 1 13 6 9 3
Cerámica sanitaria E:
Blanco Ducha del Baño Baños 2.10x0.60m 2.10x0.55m 2.10xx0.55m E: 1
Salpicadero de lavabo de 5 cm de alto, impermeable, evita que el agua pase
Negro Vidrio claro para puerta de ducha con perfil de acero inoxidable
10
ACCESORIOS DE BAÑO POR SET HOVE 8000
Baños .44 .05 .89 .05 2.20 .11 ESPEJO SIN ILUMINACIÓN HOVE Aluminio ESPEJO 12
Toallero sujeto a la pared con tornillos Portarrollos de papel
1.09
X
Negro mate Baños 1.09 13 Hormigón cubierto por cerámica BORDILLO DE DUCHA 14 15x60cm 15x78cm 15x55cm E: 10 Gris Baños Cerámica magma gris de uso residencial .60 .78 .55 1.11 1.15 BAÑO BAÑO GUARDIANÍA
ESPEJO SIN ILUMINACIÓN JP-ZJM-003B DECORATIVO HOVE VIDRIO DE 3MM CON MARCO DE ALUMINIO DECORATIVO



    .87 1.57 .70 .60 .46 .55 .60 2.50 1.35 .59 2.09 Isometría .36 .68 .30 .57 .23 .44 .05 .89 .05 .60 .55 .55 .19 .11 1.09 .76     .60 .78 .55 1.11 Pared 1 .74 .36 .68 .30 .57 .23 del Baño .44 .05 .89 .05 2.20 .60 .55 .55 .19 .11 1.09 .76 
     .60 .78 .55 1.11 1.15 Pared 1 .74 .36 .68 .30 .57 .23 .44 .05 .89 .05 2.20 .60 .55 .55 .19 .11 1.09 .76 Pared 1 .74 .36 .68 .30 .57 .23 .44 .05 .89 .05 2.20 .60 .55 .55 .19 .11 1.09 .76 .60 .78 Pared 1 .74 .36 .68 .30 .57 .23 .44 .05 .89 .05 2.20 .60 .55 .55 .19 .11 1.09 .76 .60 .78 .55 1.11 Pared 1 .74 .36 .68 .30 .57 .23 .44 .05 .89 .05 2.20 .60 .55 .55 .19 .11 1.09 .76 .60 .78 .55 1.11 1.15 Pared 1    PI04 PI08 TU01 PA03 PA02 2.40 .70 2.50 .60 .20 .15 .73 .62 .11 .54 .44 .85 .35 .62 .15
Pared 3
13 9 8 4 2 6 DORMITORIO 1 DORMITORIO 2 COMEDOR DORMITORIO 1 BAÑO PA02 TU01 PA02 2.40 .54 .44 .85 .35 .62 .15 Pared 1
2 13 9 8 4 2 6 S B N: +0.18 N+0.18 1 PB 3 PB N+1.80 N+2.16 CIRCULACIÓN GRADAS CUARTO DE MÁQUINAS BAÑO VESTIDOR DORMITORIO MASTER DORMITORIO 1 DORMITORIO 2 BAÑO COCINA COMEDOR SALA SALA BAÑO BAÑO RECEPCIÓN GUARDIANÍA PATIO COMUNAL ASCENSOR A PA02
Pared 1
Pared 4
Pared
Pared 2
    .87 1.57 .70 .60 .60 .46 .55 2.37 1.30 .60 2.50 1.35 .59 .60 1.40 .72 2.09 Isometría  .87 1.57 .70 .60 .60 .46 .55 2.37 1.30 .60 2.50 1.35 .59 .60 1.40 .72 2.09 Isometría .87 1.57 .70 .60 .60 .46 .55 2.37 1.30 .60 2.50 1.35 .59 .60 1.40 .72 2.09 Isometría
      
    

Turn static files into dynamic content formats.

Create a flipbook
Issuu converts static files into: digital portfolios, online yearbooks, online catalogs, digital photo albums and more. Sign up and create your flipbook.