

LUCÍA SABAG CHAIN
ARCHITECTURE PORTFOLIO
As an architectural designer, I am driven by a profound connec on to space and form, guided by a deep apprecia on for the visual and tac le elements of design. Central to my prac ce is the belief that architecture is about cra ing experiences. I am passionate about designing spaces that resonate with their surroundings, responding to the unique context of each site while seamlessly integra ng with the programma c needs of the project. The essence of architecture lies in the principles of form, space, and order. I find beauty in the harmony of these elements, striving to create environments that evoke emo on and inspire connec on. In essence, my design philosophy is a blend of ar s c vision and prac cality.
EXPERIENCE
PROJECT COORDINATOR - PHILLIPS PARTNERSHIP
Atlanta, GA
Septeber 2024 - Present

ARCHITECTURAL INTERN - LAMAR JOHNSON COLLABORATIVE
Phoenix, AZ
July - Septeber 2023
CONSTRUCTION INTERN - CMC CONSTRUCTORA
Santa Cruz, Bolivia
July - August 2022

ARCHITECTURAL INTERN - ETONNANT ARQUITECTURA
Santa Cruz, Bolivia
July - September 2021
DOCENT - SCAD MUSEUM OF ART
Savannah, GA
April 2021 - June 2022

AWARDS & AFFILIATIONS
DEAN’S LIST 2021-24
TAU SIGMA DELTA` 2022-24
CLAYCO Endowed Scholarship Fund for Architecture 2022
SCAD AIAS Member 2021-22 Board Member 2022-24










01 CONVIVIALITÁ
SENIOR CAPSTONE
Loca on: Asheville, NC
Individual Project 20 weeks
So ware: Revit, Rhino, Enscape, Adobe Illustrator, Adobe Photoshop
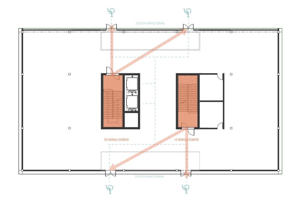
In response to the urgent need for sustainable urban solu ons, this project aims to create innova ve spaces that integrate ver cal hydroponic farming with a focus on fostering physical and emo onal well-being. At its core, the design features a vibrant center where community members can come together to enjoy fresh, locally grown produce and par cipate in the art of food cul va on and prepara on.
This program seamlessly blends agriculture, educa on, and leisure, enhancing the exis ng sense of community, art, and culture in asheville. Addi onally, the project is commi ed to environmental stewardship.


CONNECTION
THE MAIN ACCESS CONNECTS TO ASHEVILLE’S CITY LANES, ENCOURAGING BIKE AND FOOT TRAFFIC, FOSTERING EXPLORATION OF THE BUILDING AND SITE. THE PROPOSED BRIDGE PROVIDES DIRECT ACCESS FROM THE BOOMING ART DISTRICT OF THE CITY.
FACILITATED CIRCULATION
PEDESTRIAN AND BIKE LANES ARE SEPARATED BY A NATURAL BARRIER OF VEGETATION TO ENSURE A SAFE AND NON OBSTRUCTED FLOW THROUGH THE SITE.
A
SECTION C
SCULPTED STRUCTURE
STEEL GRIDS ARTFULLY PLACED ON THE SITE DELINEATE THE PATH, HOSTING FLOURISHING PLANT GROWTH. THIS DES GN ELEMENT GUIDES VISITORS BESIDES HINTING AT THE VERDANT EXPERIENCE AWAITING INSIDE THE BUILDING.
SECTION D
FRAMING RIVER VIEWS
THE PEDESTRIAN LANE BRANCHES INTO A CANTILEVERED DECK OVER THE RIVERBANK, OFFERING A SEPARATE EXPERIENCE WITH STUNNING WATER VIEWS AND BEAUTIFUL SCENERY. THIS ALLOWS FOR USERS TO PAUSE WITHOUT OBSTRUCTING THE MAIN CIRCULATION PATHS. SECTION B
TOPOGRAPHY
THE SITE’S ELEVATED TOPOGRAPHY CREATES RAISED PATHWAYS, OFFERING A UNIQUE EXPERIENCE. THESE PATHS PROVIDE A FRESH PERSPECTIVE ON THE GREENHOUSE TOWER AND OFFER VIEWS OF OTHER PARK-GOERS, GIVING A COMPLETE OVERVIEW OF THE ACTIVITIES HAPPENING BELOW.
SECTION E



KALWALL FACADE SYSTEM
• DIFFUSED NATURAL LIGHT
• UV PROTECTION
• TEMPERATURE CONTROL



• PPORT PLANT SUP

• TROL PEST CONT

• VENTILATION NATURAL V

• DURABILITY
• ENERGY EFFICIENCY FACADE SYSTEM STEEL MESH





• NG DEVICE SUN SHADI
• BILITYSUSTAINAB

• R COLLECTION RAINWATER





02
AQUA HARVEST
FALL STUDIO 2023
Individual Project 10 weeks
So ware: Revit, Rhino, Grasshopper, Lumion, Adobe Illustrator, Adobe Photoshop


In bustling La Paz, Bolivia, rapid growth fueled by tourism, relentless urbaniza on and intensive agricultural prac ces. has led to cri cal water shortages.
Aqua Harvest seeks to address this by crea ng a mul -func onal building that collects, filters, and stores water while also providing space for agriculture. This innova ve design integrates housing, infrastructure, farming, commerce, and recrea on to offer a holis c solu on to the city’s challenges.
Aqua Harvest aims to be a model for sustainable urban development, showcasing how though ul design can mi gate environmental stressors and foster a thriving community.




Loca on: La Paz

WATER COLLECTION

















































































UNDERGROUNDWATERSTORAGE E

ROTATION OF MASS TO MAXIMIZE SURFACE AREA













ORIENTATION INTENDED TO MAXIMIZE DAYLIGHT AND PASSIVE HEAT GAIN WATER USAGE
RAINWATER COLLECTION
HVAC CONDENSATION DRAINAG
AGRICULTURE ZONES
GREEN ROOF FILTERING SYSTEM




REGULAR GRID
LEVELS
BASEMENT, 01, 02, 03, 04, 10, 19, 28, 38
LARGEST SPAN





IRREGULAR GRID
LEVELS 05 09, 11 18, 20 27, 29 37
LARGEST SPAN 30’ PROGRESSIVE ROTATION 10 DEGREES





















































































03 ARTIST ARCHIVE LIBRARY
FALL STUDIO 2022
Loca on: Lacoste, France
5,000 Sq. Ft. Approx
Individual Project 8 weeks
So ware: Revit, Enscape, Adobe Photoshop



A studio project resul ng from a study abroad Experience. While spending the fall at a small town in the south of france, our studio observed the close rela onship between the members of the small community of Lacoste and the architecture that composes it. In a people town such as Lacoste, buildings relate to the human scale and are shaped based on the land and the streets that meet it. Therefore, highligh ng the importance of having human scaled spaces that are not only func onal but also warming.
This library is a depository for a special collec on book made by visi ng SCAD studio ar sts. The books in this library are never checked out, making it a ‘unique’ space, and in some ways, both modern and historic in func on.






























SIMBIOSIS
WINTER STUDIO 2023
Loca on: Thunderbolt, Savannah, GA
Individual Project 10 weeks
So ware: Revit, Adobe Photoshop, Enscape
“The interdependence of two different organisms coexisting together”.
Symbiosis seeks to open dialogue about the relationship between humans and their Environment using the language of Architecture. Originated from a mass broken apart by thunderbolt’s main road, and then reconnected by a ramp spanning over 150 feet, these two volumes materialize the Connection between the neighborhood and the environment.
Inspired by biophilic design, this project Incorporates nature into spaces designed for education, recreation and exhibition.





















MULTI FUNCTIONAL ROOM


05 DAFFIN PARK SPRING STUDIO 2023
Loca on: Savannah, GA
Individual Project 10 weeks
So ware: Rhino, Adobe illustrator, Adobe Photoshop, Lumion
FUNCIONALITY - CONFORT - CONNECTION
The revitalization of Daffin Park aims to harness its potential as a city hotspot by addressing the existing functionality problems and lack of connection throughout the park.
Through a careful analysis of the site, this design attempts to utilize architecture as a means to highlight and formalize the existing program, while reactivating dead spaces and intensifying connections.
Additionally, we draw inspiration from the park’s natural shade under tree canopies to create a breezy and comfortable atmosphere throughout the space.

















































