

LUCÍA SABAG CHAIN
ARCHITECTURE PORTFOLIO
As an architectural designer, I am driven by a profound connec on to space and form, guided by a deep apprecia on for the visual and tac le elements of design. Central to my prac ce is the belief that architecture is about cra ing experiences. I am passionate about designing spaces that resonate with their surroundings, responding to the unique context of each site while seamlessly integra ng with the programma c needs of the project. The essence of architecture lies in the principles of form, space, and order. I find beauty in the harmony of these elements, striving to create environments that evoke emo on and inspire connec on. In essence, my design philosophy is a blend of ar s c vision and prac cality.



EXPERIENCE
PROJECT COORDINATOR - PHILLIPS PARTNERSHIP
Atlanta, GA
Septeber 2024 - Present

ARCHITECTURAL INTERN - LAMAR JOHNSON COLLABORATIVE
Phoenix, AZ
July - Septeber 2023
CONSTRUCTION INTERN - CMC CONSTRUCTORA
Santa Cruz, Bolivia
July - August 2022

ARCHITECTURAL INTERN - ETONNANT ARQUITECTURA
Santa Cruz, Bolivia
July - September 2021
DOCENT - SCAD MUSEUM OF ART
Savannah, GA
April 2021 - June 2022

AWARDS & AFFILIATIONS
DEAN’S LIST 2021-24
TAU SIGMA DELTA` 2022-24
CLAYCO Endowed Scholarship Fund for Architecture 2022
SCAD AIAS Member 2021-22 Board Member 2022-24
EDUCATION
Savannah College of Art and Design
B.F.A. Architecture
GPA 3.96
SOFTWARE
Adobe Photoshop (cer fied 2022)
Adobe InDesign
Adobe Illustrator
Revit
Rhino
Enscape
Lumion
AutoCAD (cer fied 2020)
SKILLS
Sketching
Concept Development
Schema c Design
Dra ing
Conceptual modeling
Teamwork
Communica on
Graphic Design
LANGUAGES
Na ve Spanish
Fluent English












01 02 03 04 05
ARTIST BOOK ARCHIVE LIBRARY
SIMBIOSIS
DAFFIN PARK
01 CONVIVIALITÁ
SENIOR CAPSTONE
Loca on: Asheville, NC
Individual Project 20 weeks
So ware: Revit, Rhino, Enscape, Adobe Illustrator, Adobe Photoshop
In response to the urgent need for sustainable urban solu ons, this project aims to create innova ve spaces that integrate ver cal hydroponic farming with a focus on fostering physical and emo onal well-being. At its core, the design features a vibrant center where community members can come together to enjoy fresh, locally grown produce and par cipate in the art of food cul va on and prepara on.
This program seamlessly blends agriculture, educa on, and leisure, enhancing the exis ng sense of community, art, and culture in asheville. Addi onally, the project is commi ed to environmental stewardship.


TRADITIONAL GREENHOUSE
MINIMIZE FOOTPRINT MAXIMIZE SURFACE
INSERT PROGRAM
THE BUILDING'S PROGRAM AIMS TO FOSTER A SYMBIOTIC RELATIONSHIP BETWEEN PEOPLE, ART, AND NATURE, WHERE EACH ELEMENT SUPPORTS AND ENRICHES THE OTHERS. IT FEATURES SPACES DEDICATED TO MENTAL AND PHYSICAL WELL-BEING, EDUCATIONAL ACTIVITIES, NATURE CONSERVATION, AND CREATIVE EXPRESSION. THESE SPACES ARE DESIGNED TO CULTIVATE A HEALTHY, INTERCONNECTED COMMUNITY, LEAVING USERS WITH A PROFOUND SENSE OF BELONGING.
FACILITATED CIRCULATION
PEDESTRIAN AND BIKE LANES ARE SEPARATED BY A NATURAL BARRIER OF VEGETATION TO ENSURE A SAFE AND NON OBSTRUCTED FLOW THROUGH THE SITE.
A
CONNECTION
THE MAIN ACCESS CONNECTS TO ASHEVILLE’S CITY LANES, ENCOURAGING BIKE AND FOOT TRAFFIC, FOSTERING EXPLORATION OF THE BUILDING AND SITE. THE PROPOSED BRIDGE PROVIDES DIRECT ACCESS FROM THE BOOMING ART DISTRICT OF THE CITY.
SECTION C
SCULPTED STRUCTURE
STEEL GRIDS ARTFULLY PLACED ON THE SITE DELINEATE THE PATH, HOSTING FLOURISHING PLANT GROWTH. THIS DES GN ELEMENT GUIDES VISITORS BESIDES HINTING AT THE VERDANT EXPERIENCE AWAITING INSIDE THE BUILDING.
SECTION D
FRAMING RIVER VIEWS
THE PEDESTRIAN LANE BRANCHES INTO A CANTILEVERED DECK OVER THE RIVERBANK, OFFERING A SEPARATE EXPERIENCE WITH STUNNING WATER VIEWS AND BEAUTIFUL SCENERY. THIS ALLOWS FOR USERS TO PAUSE WITHOUT OBSTRUCTING THE MAIN CIRCULATION PATHS. SECTION B
TOPOGRAPHY
THE SITE’S ELEVATED TOPOGRAPHY CREATES RAISED PATHWAYS, OFFERING A UNIQUE EXPERIENCE. THESE PATHS PROVIDE A FRESH PERSPECTIVE ON THE GREENHOUSE TOWER AND OFFER VIEWS OF OTHER PARK-GOERS, GIVING A COMPLETE OVERVIEW OF THE ACTIVITIES HAPPENING BELOW.
SECTION E
WATER MANAGEMENT
WASTEWATER RUNS THROUGH THE BUILDING’S LIVING MACHINE, WHERE IT S PURIFIED. THE CLEAN WATER IS THEN USED FOR GREENHOUSE IRRIGATION, WHILE THE REMAINING RESIDUE S CONVERTED INTO COMPOST FOR AGRICULTURAL USE.





WASTE WATER FROM NEIGHBORHOOD
LIVING MACHINE ON SITE



KALWALL FACADE SYSTEM
• DIFFUSED NATURAL LIGHT
• UV PROTECTION
• TEMPERATURE CONTROL



• PPORT PLANT SUP

• TROL PEST CONT

• VENTILATION NATURAL V

• DURABILITY
• ENERGY EFFICIENCY FACADE SYSTEM STEEL MESH





• NG DEVICE SUN SHADI
• BILITYSUSTAINAB

• R COLLECTION RAINWATER









1. GREENHOUSE ROOF DETAIL
2. STEEL MESH DETAIL
RAIN WATER COLLECTION
3. KALWALL FACADE DETAIL
SOLSTICE




AQUA HARVEST
FALL STUDIO 2023
Individual Project 10 weeks
So ware: Revit, Rhino, Grasshopper, Lumion, Adobe Illustrator, Adobe Photoshop


In bustling La Paz, Bolivia, rapid growth fueled by tourism, relentless urbaniza on and intensive agricultural prac ces. has led to cri cal water shortages.
Aqua Harvest seeks to address this by crea ng a mul -func onal building that collects, filters, and stores water while also providing space for agriculture. This innova ve design integrates housing, infrastructure, farming, commerce, and recrea on to offer a holis c solu on to the city’s challenges.
Aqua Harvest aims to be a model for sustainable urban development, showcasing how though ul design can mi gate environmental stressors and foster a thriving community.




Loca on: La Paz



Recent data concerning La Paz’s water scarcity paints a bleak future, indica ng a pressing need for immediate ac on. With diminishing water resources and growing demand, the situa on calls for emergency measures to mi gate the impending crisis. Without decisive interven on, the sustainability ons to safeguard of water supply in La Paz is at risk, highligh ng the urgency for comprehensive solu ons to the city ’s future.






WATER COLLECTION
































































UNDERGROUNDWATERSTORAGE

ROTATION OF MASS TO MAXIMIZE SURFACE AREA












ORIENTATION INTENDED TO MAXIMIZE DAYLIGHT AND PASSIVE HEAT GAIN WATER USAGE
RAINWATER COLLECTION
HVAC CONDENSATION DRAINAG
AGRICULTURE ZONES
GREEN ROOF FILTERING SYSTEM
TYPICAL MASSING WITH INTENDED PROGRAM

PROGRAMMING

USER




REGULAR GRID
LEVELS
BASEMENT, 01, 02, 03, 04, 10, 19, 28, 38
LARGEST SPAN 30’



IRREGULAR GRID
LEVELS 05 09, 11 18, 20 27, 29 37
LARGEST SPAN 30’ PROGRESSIVE ROTATION 10 DEGREES













































































NORTH FACADE GLAZING
MINIMIZE HEAT LOSS EAST - WEST FACADE GLAZINGS
PODIUM LEVELS SOUTH FACADE GLAZING






EXTERIOR CLADDING MATERIALS
DOUBLE PANE EXTERIOR GLAZING METAL PANEL SYSTEM



















03 ARTIST ARCHIVE LIBRARY
FALL STUDIO 2022
Loca on: Lacoste, France
5,000 Sq. Ft. Approx
Individual Project 8 weeks
So ware: Revit, Enscape, Adobe Photoshop



A studio project resul ng from a study abroad Experience. While spending the fall at a small town in the south of france, our studio observed the close rela onship between the members of the small community of Lacoste and the architecture that composes it. In a people town such as Lacoste, buildings relate to the human scale and are shaped based on the land and the streets that meet it. Therefore, highligh ng the importance of having human scaled spaces that are not only func onal but also warming.
This library is a depository for a special collec on book made by visi ng SCAD studio ar sts. The books in this library are never checked out, making it a ‘unique’ space, and in some ways, both modern and historic in func on.









FACILITATED CIRCULATION & SETBACK FROM WALL PROVIDING A DIRECT CIRCULATION ACROSS THE SITE, WHILE ALLOWING FREE ACCESS TO THE WALL. THIS RESPONDS TO THE PUBLIC / PRIVATE RELATIONSHIP OF COMMUNITY IN LACOSTE.

IMITATION OF ROCK PATTERNS IN LACOSTE A BUILDING INSPIRED BY HOW ROCKS ARE STACKED TO CREATE SPACE COMPLEXITY.


BUILDING BORN FROM THE SITE
A BUILDING IN WHICH THE FORM RESONATES WITH THE ELONGATED SHAPE OF ITS SITE.






























SIMBIOSIS
WINTER STUDIO 2023
Loca on: Thunderbolt, Savannah, GA
Individual Project 10 weeks
So ware: Revit, Adobe Photoshop, Enscape
“The interdependence of two different organisms coexisting together”.
Symbiosis seeks to open dialogue about the relationship between humans and their Environment using the language of Architecture. Originated from a mass broken apart by thunderbolt’s main road, and then reconnected by a ramp spanning over 150 feet, these two volumes materialize the Connection between the neighborhood and the environment.
Inspired by biophilic design, this project Incorporates nature into spaces designed for education, recreation and exhibition.
















MULTI FUNCTIONAL ROOM


TYPICAL MASSING



MASS SPLIT DUE TO ROAD





RECONNECTION OF MASS AS A PUBLIC WALKWAY






















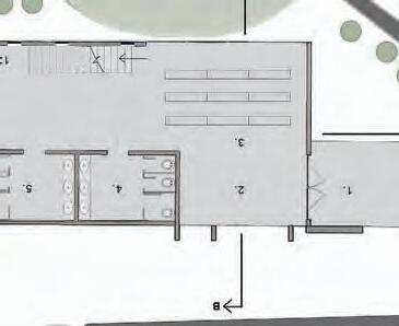
05 DAFFIN PARK SPRING STUDIO 2023
Loca on: Savannah, GA
Individual Project 10 weeks
So ware: Rhino, Adobe illustrator, Adobe Photoshop, Lumion
FUNCIONALITY - CONFORT - CONNECTION
The revitalization of Daffin Park aims to harness its potential as a city hotspot by addressing the existing functionality problems and lack of connection throughout the park.
Through a careful analysis of the site, this design attempts to utilize architecture as a means to highlight and formalize the existing program, while reactivating dead spaces and intensifying connections.
Additionally, we draw inspiration from the park’s natural shade under tree canopies to create a breezy and comfortable atmosphere throughout the space.

DIAGRAM
WINTERDAYTIMEWIND




































VOLLEYBALL SAND FIELD




















A significant component of the design interven on is the formaliza on of Morris Field, with the aim of accommoda ng various spor ng events. While providing ample sea ng for the audience, the super structure goes beyond its primary purpose. Underneath the bleachers, the space is op mized to house facili es for the pitch, as well as the adjacent tennis area. This mul func onal approach maximizes the u lity of the area and enhances the overall func onality of the park.
The dis nc ve facade of our structure derives from a system of cylindrical panels framing a tentlike element. This design not only serves as the main shade provider but also facilitates natural ven la on through strategically placed openings. The combina on of shade and ven la on creates a pleasant and invi ng atmosphere, ensuring that visitors can enjoy the park comfortably even in hot




NATURAL AIR


