
T E M A 5


2 0 2 5





E N M A D E R A




M U R O S

E S T R U C T U R A



C O N S T R U C C Ó N




Mgtr.Arq. Luis Fernando Ruano Paz




• Tema 5:
o Muros > estructura o Muros > forros
• Requisitos Entrega No. 4


![]()



2 0 2 5





E N M A D E R A




M U R O S

E S T R U C T U R A



C O N S T R U C C Ó N




Mgtr.Arq. Luis Fernando Ruano Paz




• Tema 5:
o Muros > estructura o Muros > forros
• Requisitos Entrega No. 4



SOLERA SUPERIOR




SOLERA DE AMARRE



SOLERA INFERIOR













Sistema Continuo (balloon frame)
















Los pies derechos que conforman los tabiques estructurales perimetrales e interiores son continuos, es decir, tienen la altura de los dos pisos (comienzan sobre la fundación y terminan en la solera de amarre superior que servirá de apoyo para la estructura de techumbre).
















Es el método más utilizado en la construcción de viviendas con estructura en madera. Su principal ventaja es que cada piso (primero segundo nivel) permite la construcción independiente de los tabiques soportantes y autosoportantes, a la vez de proveer de una plataforma o superficie de trabajo sobre la cual se pueden armar y levantar.













Sistema Plataforma
Sistema Continuo (desventaja es la longitud de las piezas)


Esquema de distribución de cargas verticales desde niveles superiores a pie derecho, y de estos a solera inferior.

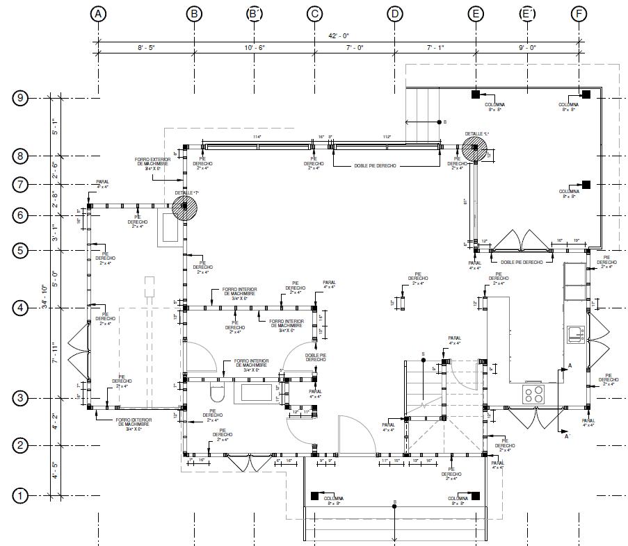
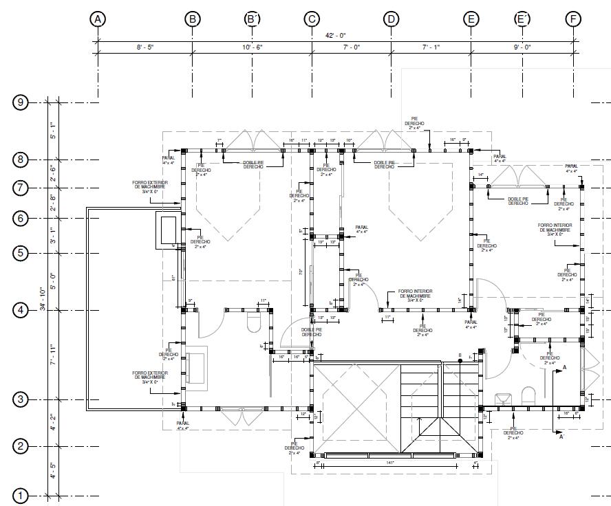
Separación columnas (pies derechos):
➢ Casa 1 Nivel: @ 24” (2’) a ejes
➢ Casa 2 Niveles: @ 16” (+/- 1.5’) a ejes
➢ Sección: 2”x4”

Rigidizante diagonal 1”x4”


Plywood fenólico 4’ x 8’ x1/2”
En caras exteriores de la construcción


















muro desde piso a entrepiso









Diagonales


Diagonales
1”x4”
1” x 4”
Horizontal 2”x4”



Tamaño de dintel para un nivel Luz en pies

4” x 4”
4” x 6”
4” x 8”
Para dos niveles utilizar
1 de 4” x 12” o
2 de 2” x 12”
Hasta 4’
De 4’ a 6’
De 6’ a 8’










2”x4”










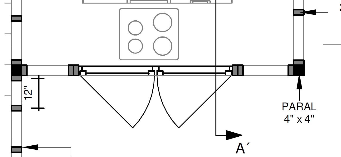
TODOS LOSPARALESY PÉS DERECHOS VANCLAVADOSA LASOLERA INFERIORCON CLAVOGALVANZADO DE 5",HINCADOS30º
LA SEPARACÓNDEPIÉSDERECHOS ES DE 16"A EJES
EL FORRO EXTERORDEMACHIMBRE DE 34" x6" VAFJADO CONCLAVO GALVANIZADO DE 2 1/2" SOBRECADA PÉ DERECHO
ENTREEL FORRO EXTERIORY LOSP ÉS DERECHOSSE COLOCAUNFORRO DE PAPEL ASFÁLTICO
EL ARROSTRE DE LOSMUROSES PORMEDIODERGIDIZANTES DE 2" x4"ENTRE CADA PIÉ DERECHO COLOCADOS DE FORMA DESFAZADA





























G R A C I A S







