




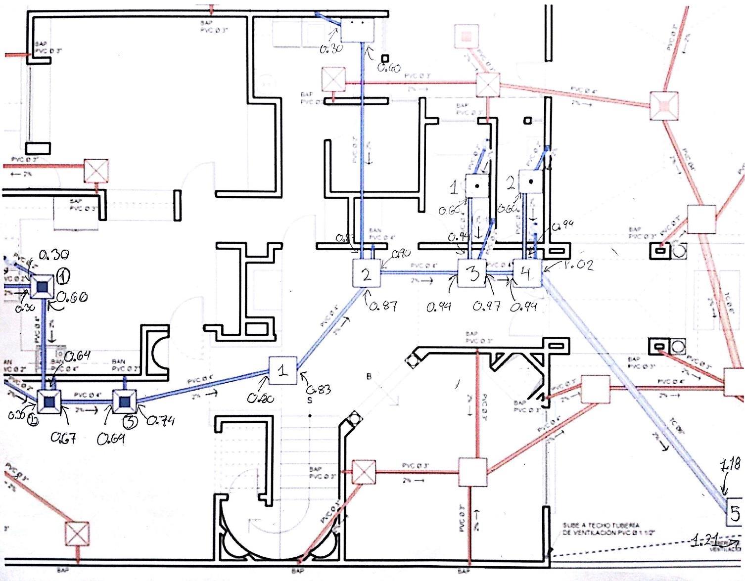
Agua Potable F + C
Aguas Negras
MGTR. ARQ. LUIS FERNANDO RUANO PAZ
MGTR. ARQ. LUIS FERNANDO RUANO PAZ
I N S T A L A C I O N E S
MGTR. ARQ. LUIS FERNANDO RUANO PAZ
Se procede a hacer el zanjeado de aproximadamente 0.30m de ancho y de 0.20m de profundidad.
El cálculo del zanjeo se realiza de la siguiente manera:
Metros lineales de tubería = 46metros lineales
Dimensiones de zanja = 0.30m (ancho) x 0.20m (profundidad)
0.30m x 0.20m x 46m lineales x 1.25 = 3.45 m3 de excavación para la tubería de agua fría y caliente.
- Considerar 0.20m de separación entre tuberías PVC y CPVC.
0.20m
0.30m
Caso 1
Tuberías paralelas a 0.20m de separación.
Caso 2
Tuberías a más de 0.20m de separación.
Considerar cada zanja individualmente o en conjunto.
Se calcula de la misma manera, considerando el cambio de dimensiones de la zanja.
Por el método conocido.
0.30m
Se debe de tomar en cuenta los metros lineales de tubería por diámetro para dividirlo dentro de los tamaños comerciales de tubería (6.00ml)
Se obvian las uniones.
Se debe de tomar en cuenta también las alturas de salida de los artefactos.
TEFLÓN:
Al utilizar teflón se considera comúnmente 8 vueltas(1mm de espesor) por cada unión.
Equivalente a 8cms por vuelta ó 50cms aproximados por extremo.
Se divide dentro de los tamaños comerciales (5.00m - 10.00m).
PEGAMENTO:
Para tubería de PVC y CPVC se considera comprar por galón para evitar que haga falta al momento de la instalación. Investigar sobre “rendimientos del pegamento”
También se pueden utilizar los siguientes recursos: Pagina de calculo de adhesivos para tubería: http://www.construccionviaweb.com.ar/ Calculadora-PVC.html
Fuente:http://www.amanco.cr/descargas/PegadoTuberias.pdf
Calculo de accesorios
Para el cálculo de los accesorios, se realizará un conteo de accesorios, tipos de caja, etc.
Se debe de tomar en cuenta que para la instalación de algunos artefactos, hay accesorios que no se ven en planta, por la tanto se debe de prever dichos accesorios.
Cálculo de accesorios
Cálculo del suministro y colocación de todos los mecanismos o elementos que cierran o regulan el paso de agua, conocidos como llaves o válvulas.
La unidad de medida que se utilizará es pieza (pz).
La sumatoria de elementos se realizará por la cantidad de piezas, agrupadas por tipo y diámetro.
MGTR.
Se deben de excavar las zanjas con la amplitud necesaria debe de ser mas ancha en donde se ubiquen las cajas de registro , tiene que tener el 2 % de inclinación es decir 2 cm por cada metro.
FASE 1:
Conformación de la capa de apoyo sobre la que se extenderá el tubo. Debe compactarse uniformemente en toda su longitud
FASE 2:
Se continua el relleno vertiendo material en capas de espesor menor o igual15 cm hasta la coronación del tubo y con un grado de compactación similar al de la capa de apoyo
FASE 3: se continua el relleno hasta 30 cm por encima de la coronación . En esta fase se debe de usar suelo seleccionado, pudiéndose utilizar también para este fin al mismo material que se uso para el hecho.
FASE 4 : continuación del relleno hasta la coronación de la zanja , en espesor menor e igual a 20 cm
Se suma por unidad los tubos con sus distancias y por cada artefacto.
1. Cotas invert: Son las medidas dadas
desde el nivel del piso terminando 0.00
m. hacia abajo
2. Pendientes: Aguas negras 2%
Volumen excavación = lado a X lado b X altura(cota invert de salida)
Ejemplo
Volumen de excavación caja receptora AN 1
V = 0.59X0.59X(0.60cota invert de salida)
V = 0.226m3
NOTA: Al tener un zanjeo mayor a 1m. el ancho de la zanja deberá aumentar al menos 1m. para la colocación de la tubería de manera apropiada.
de caja
Caja Receptora AN 1
Caja Receptora AN 2
Caja Receptora AN 3
Caja Unificadora 1
Caja Unificadora 2
Caja Unificadora 3
Caja Unificadora 4
Caja Unificadora 5
Caja Sifón Pila
Caja Receptora
Inodoro 1
Caja Receptora
Inodoro 2
Volumen caja = (lado a X lado b X altura)
Ejemplo
Volumen caja receptora AN 1
V = 0.59X0.59X0.475
V = 0.17m3
Volumen total de relleno =
Volumen de excavación – volumen de caja
Número de caja
Caja Receptora AN 1
Caja Receptora AN 2
Caja Receptora AN 3
Caja Unificadora 1
Caja Unificadora 2
Caja Unificadora 3
Caja Unificadora 4
Caja Unificadora 5
Caja Sifón Pila
Caja Receptora Inodoro 1
Caja Receptora Inodoro 2
• Las cajas de registro se fabricarán de la ladrillo tayuyo de 0.065 x 0.11 x 0.23 m
• Las orillas de los tubos que entrarán a las cajas de registro saldrán 2 cms desde el rostro del alisado.
SUELO:
0.83 x 0.83 x 0.05 = 0.034 m3
TAPA: = 0.069 m3
0.83 x 0.83 x 0.05 = 0.034 m3
0.069 x 1.05 = 0.072x 9.80 = 0.71 >> 1 saco de cemento
0.072x 0.55 = 0.04 m3 de arena
0.072x 0.55 = 0.04 m3 de piedrín
TAPADERA: Ref. 6 No. 2 ambos sentidos
0.78m largo x 6 = 4.68m
0.78m largo x 6 = 4.68m
4.68 + 4.68 = 9.36m / 6m (largo de varilla) = 1.56 >> 2 varillas de Ø 1/4”
x 6 ladrillos de altura
72 LADRILLOS TOTALES
Para el levantado de muros de cajas de drenaje se usará ladrillo tayuyo de 0.065 x 0.11 x 0.23. El factor de mortero para levantado es de 0.025286 el cual incluye el 25% de desperdicio.
Ejemplo:
0.61 x 0.49 = 0.2989 x 4 (paredes)= 1.1956 m2 x 0.025286= 0.030 m3
12 sacos x 0.030 = 0.36 >> 1 sacos de cemento
1.33 m3 x 0.030 = 0.04 m3 de arena de río.
PAREDES
0.61 X 0.49 = 0.2989 X 4 (PAREDES)= 1.1956 M2 X 0.025286= 0.030 M3
SUELO
0.61 x 0.61 = 1.22 m2 x 0.025286= 0.030 m3
0.030 + 0.030 = 0.06 m3
15.54 sacos x 0.060 = 0.93 >> 1 sacos de cemento
1.32 m3 x 0.060 = 0.08 m3 de arena de río.