C L A S E

1




P R O Y E C T O S


D I S E Ñ O D E

I N S T A L A C I O N E S

E S P E C I A L E S

G A S P R O P A N O

Mgtr.Arq. Luis Fernando Ruano Paz 2 0 2 5





P R O Y E C T O S
D I S E Ñ O D E
I N S T A L A C I O N E S
E S P E C I A L E S
G A S P R O P A N O
Mgtr.Arq. Luis Fernando Ruano Paz 2 0 2 5
Tema 9: Gas propano
Asignación Entrega No. 8
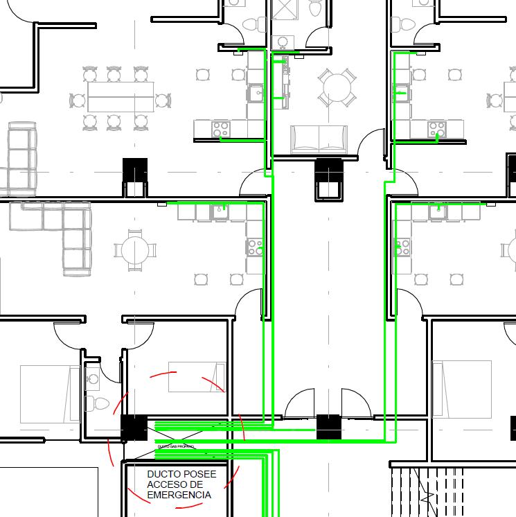
Asesoría Ductos y Sistemas de Eliminación de Residuos Sólidos
Avances Proyecto final
▪ No tiene color (incoloro)
▪ No tiene olor (inodoro)
▪ No es tóxico en cantidades mínimas
▪ Es muy flamable
▪ Excesivamente frío (-42 ºC)
▪ Es limpio
▪ Es económico
*
Queda prohibida la instalación de depósitos, cualquiera que sea su tamaño, en locales cuyo piso esté más abajo que el nivel de la calle, por lo tanto se prohíbe situarlos en sótanos, núcleo de gradas y en pasillos.
La protección contra incendios constará de 2 extintores de polvo químico seco de 12 kg de contenido c/u.
Volumen máximo de llenado de tanque
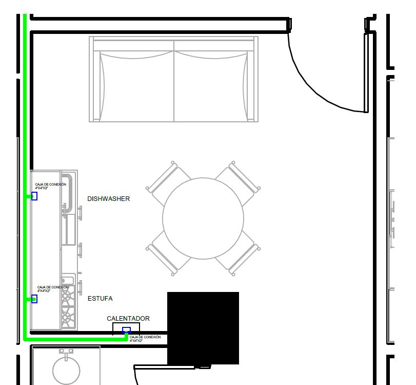
La instalación interior de Gas se compone de las siguientes partes:
▪ Ramal Interior o Distribuidor: es la tubería que va desde la llave de paso general y que se une con el montante general o con montantes individuales o con los contadores.
▪ Montante General: el montante general es la tubería general encargada de distribuir el gas a todas las viviendas. A su llegada a cada vivienda o local, se deriva directo al contador.
▪ Montantes Individuales: considerando un cuarto general de contadores en la planta baja, cada abonado recibirá el gas mediante una tubería o también llamada montante individual.
La instalación interior de Gas se compone de las siguientes partes:
▪ Derivación: Se denomina derivación a la columna que llega hasta los aparatos de consumo. La misma puede ubicarse empotrada o vista.
▪ Contadores: Los contadores de gas siempre se sitúan en lugares ventilados, resguardados de la intemperie y de fácil acceso. Resulta de gran importancia su buena ventilación ya que se los considera como aparatos receptores y por ello pueden sufrir averías o fugas. Los contadores suelen ubicarse en batería en cuartos cerrados o en armarios cerrados con llave para evitar la manipulación por personal no autorizado.
Tubería de conducción Medidor
Proyecto análogo
Complejo de apartamentos con sistema centralizado de distribución de Gas LP, el cual cuenta con medidores independientes para cada apartamento.
El complejo posee tres torres habitacionales:
▪ Torre Rubí 52 apartamentos. >> 2 tanques estacionarios con capacidad de 500 galones c/u.
▪ Torre Zafiro 104 apartamentos. >> 2 tanques estacionarios con capacidad de 1000 galones c/u.
▪ Torre Esmeralda 44 apartamentos. >> 1 tanque estacionario con capacidad de 500 galones
* Promedio 15 – 20 galones por apartamento
Además, todos cuentan con sistema antisísmico, el cual se activa al momento de existir un movimiento telúrico de más de 4 grados en la escala de Richter.
Válvulas antisísmicas
https://www.youtube.com/watch?v=44rMiNLD_y8&t=4s
El hecho se registró cuando se usó el calentador del apartamento para ducharse cuando "todo explotó".