Luisa Moreno Verenguer | 2023

Page 1

portfólio arquitetura & urbanismo | 2023 luisa moreno verenguer

luisa moreno verenguer

04.02.1996

Arquiteta e Urbanista formada na Faculdade de arquitetura e urbanismo Escola da Cidade | 2020

Interessada em desenvolvimento de projetos urbanos e arquitetônicos. Com experiência em trabalhos de escritório de arquitetura, urbanismo e design gráfico.

educação e formação

2013.

conclusão do ensino médio, Escola Vera Cruz, São Paulo

2020.

Escola da Cidade — faculdade de arquitetuta e urbanismo, São Paulo

TC - Espaço como a experiência do corpo coreografia para um devir Jardim Tropical urbano

idiomas

inglês _ avançado

espanhol _ intermediário

português _nativo

programas

autocad_ avançado

indesign_ avançado

illustrator_ intermediário

photoshop_ intermediário

sketchup_ intermediário

contato

e.

luisaverenguer@gmail.com

t.

+55 (11) 9 8347 2955

r.

min. américo

mar. antônio, 230

Sumarezinho, São Paulo - SP

pacote office_ avançado

qgiz _ iniciante

archicad_ iniciante

cursos

2016. diagrama como estratégia projetual - Marina Pedreira de Lacerda 2017. ferramentas e mapeamento não convencional — Iconoclassistas - Pablo Ares, Projeto Contracondutas

experiências

2016.

estágio no escritório Pimenta Associados, especializado em acessibilidade, levantamento de prédios que não estão dentro das normas de acessíbilidade e desenhos

2017.

estágio na editora Escola da Cidade, redesenho de arquitetura para os livros da editora, edição de imagens e diagramação de textos, para publicações

estágio no núcleo de design da Escola da Cidade, produção do material gráfico da faculdade, assim como prudutos de papelaria

2019.

estágio no taller Palma na cidade do México, desenho de projetos executivos, maquetes e desenvolvimento de concursos

2021.

autônima projeto da Casa Riviera, colaboração com arquiteta Marina Lickel em um projeto executivo de reforma

2021.

autônoma projeto gráfico Farinheira, colaboração com Beatrice Perracini no projeto gráfico da pizzaria em Monte Alegre do Sul

2021.

arquiteta na JBMC arquitetura e urbanismo, -desenvolvimento e desenho de projeto executivo da residência boaçava -projetos executivos de renovação e adequação de acessibilidade de terminais de 34 onibus na cidade de são paulo. passando pelas etapas de levantamento, desenho de implantação, plantas e amplições, memoriais descritivos e tabela de quantidades -projeto conceitual da Linha 20 Rosa do metrô de São Paulo

3
passagens
1 | cozinha Sítio Cultural .6 3 | auditório 132 .16 2 | palma CDMX .10 4 | reforma Boaçava .20 5 | terminais SPTRANS .24
1

| cozinha Sítio Cultural 2019

luisa moreno / amanda wensko / beatrice padovan / ingrid colares / orlando naj

O sítio Cultural Alsácia é um projeto em Santo André que reune artistas e aprendizes. Com objetivo de dar nova vida a cozinha e restaurante do sítio, que abrange desda alimentação do dia a dia um trabalho de capacitação de cozinheiros e um restaurante/café em dias de espetáculo. O edifício existente precisa de maior versatilidade sem perder o que caracteriza o sítio. Para isso a expanção da cozinha e a ideia de uma maior conecção com o entorno foram os guias para fazer essa remodelação do espaço. Explorando melhor as áreas de convivência e aprimorando as dinâmicas de uma cozinha profissional. O projeto fica com o sítio para possívelmente um dia ser executado.

diagrama cobertura

planta casa sede sítio Cultural Alsácia janela/balcão basculante

organização cozinha

| palma CDMX 2019

vivência externa - estágio em um escrtório na Cidade do México

Villas Chiripa foi um projeto que acompanhei as fases de permissão da prefeitura e início dos desenhos executivos. Implantado em um terreno com bastante declividde, os dois blocos verticais buscam se aproveitar ao máximo das suas janelas que se desdobram para a vista do oceano Pacífico e são colocados espelhados no terreno para manter a privacidade dos hóspedes. Essa divisão em dois edifícios permite a exploraçãodo uso de diferentes maneiras, seja como residência fixa ou como passagem temporaria, que pode até ser compartilhada. Conectadas por uma passarela externa de acesso, no primeiro nível de ambos os blocos ficam as áreas comuns como sala e cozinha. Nos níveis superiores e inferiores ficam os quartos com banheiros e generosas varandas.

fotografía: Luis Young

11
2

planta 2 -1,08m

12
planta 1 -3,24m
13
C
corte

planta 3 +2,16m

planta 3 +5,40m

14
15
B
corte

| auditório 132

2018

luisa moreno / lucas ormazabal / sofia boldrini

Guiados pelos focos de recorrentes incêndio da parte informal da cidade de Valparaíso-CL, e sua proximidade com os campos de futebol já existentes, também chamados em espanhol como “auditórios”. Esses lugares foram entendidos para além da prática do esporte e pela própria abragência do termo que os confere nome, revelando-se como potenciais espaços para a convivência da comunidade que ali reside, para o lazer e para situações emergenciais como as de incêndio. Nesse sentido, o projeto propõe a sistematização do programa em 2 formas arquitetônicas. Enquanto a primeira, circular, funciona como um espaço plurívoco, com campo poliesportivo e outras ocupação, a forma retangular, quase como a de um pavilhão, funciona como apoio. Essa segunda forma, busca atender aos usuários do auditório com cozinha, refeitório, vestiários, sala para estudos, além de uma pequena brigada de incêndio e estação de reciclagem de lixo (pincipal causa dos incêndios). Em caso de uma situação emergencial, esse espaço também teria seu caráter reconfigurado, de forma a funcionar como um lugar temporário, atendendo à comunidade local.

focos de incêndio

17
corte transversal
auditórios - quadras esportivas 3
corte longitudinal
planta geral/ implantação no terreno

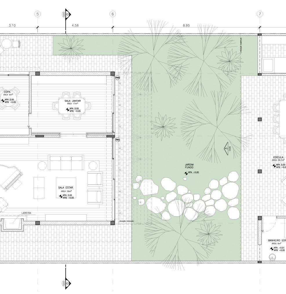
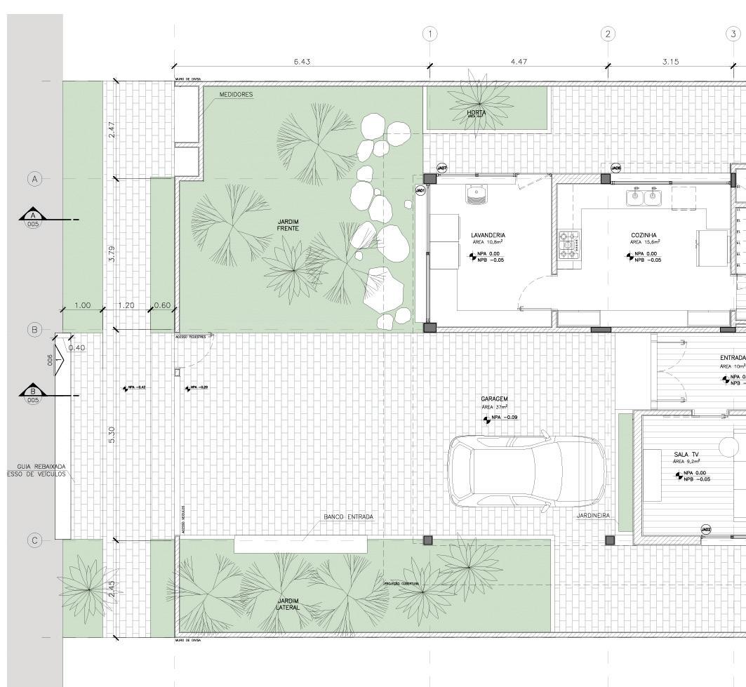
| reforma Boaçava

2021

JBMC arquiteruta

Para a renovação de uma casa e seus usos esse projeto incorpora as necessidades de uma nova familia. O desenho para a resiência Boaçava partiu de premissas simples de ampliação e abertura entre comodos. A casa existente já possuia portas de correr embutidas, que foram reformadas e mantidas como parte do partido do projeto, possibilitando integração entre os usos assim como um recolhimento. As janelas foram trocadas e ampliadas para que entrasse mais luz e algumas aberturas foram substituidas por portas, permitindo uma maior ligação com os ambientes externos. A estrutura e o layout da casa continuaram a mesma, exceto pela cozinha e o quarto princípal que foram modificados para melhor aproveitamento dos espaços.

21 MDF A SER DEFINIDO MDF A SER DEFINIDO MDF A SER DEFINIDO PINGADEIRA DE PEDRA
2/2 0 QUADRO DE LUZ MDF A SER DEFINIDO MDF A SER DEFINIDO MDF A SER DEFINIDO PINGADEIRA DE PEDRA
CASA BOAÇAVA ARQUITETURA PROJETO EXECUTIVO AMPLIAÇÃO COZINHA JBMC-EX-A026
4
22
23
N 5

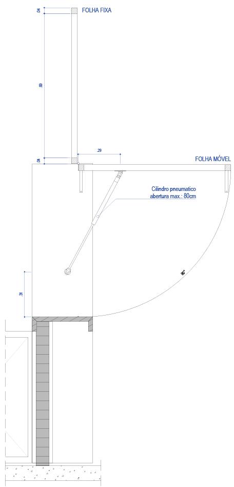
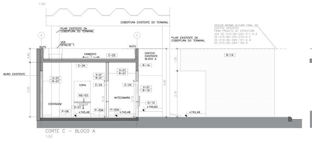
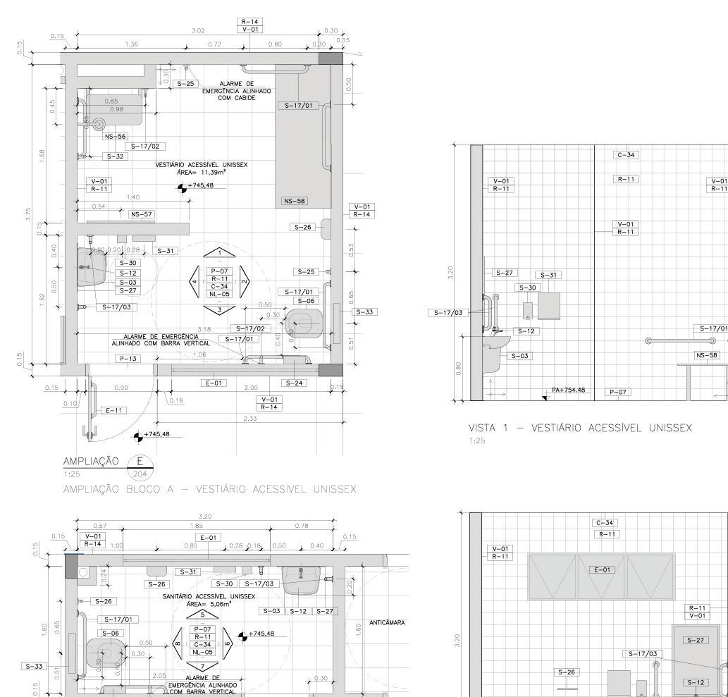
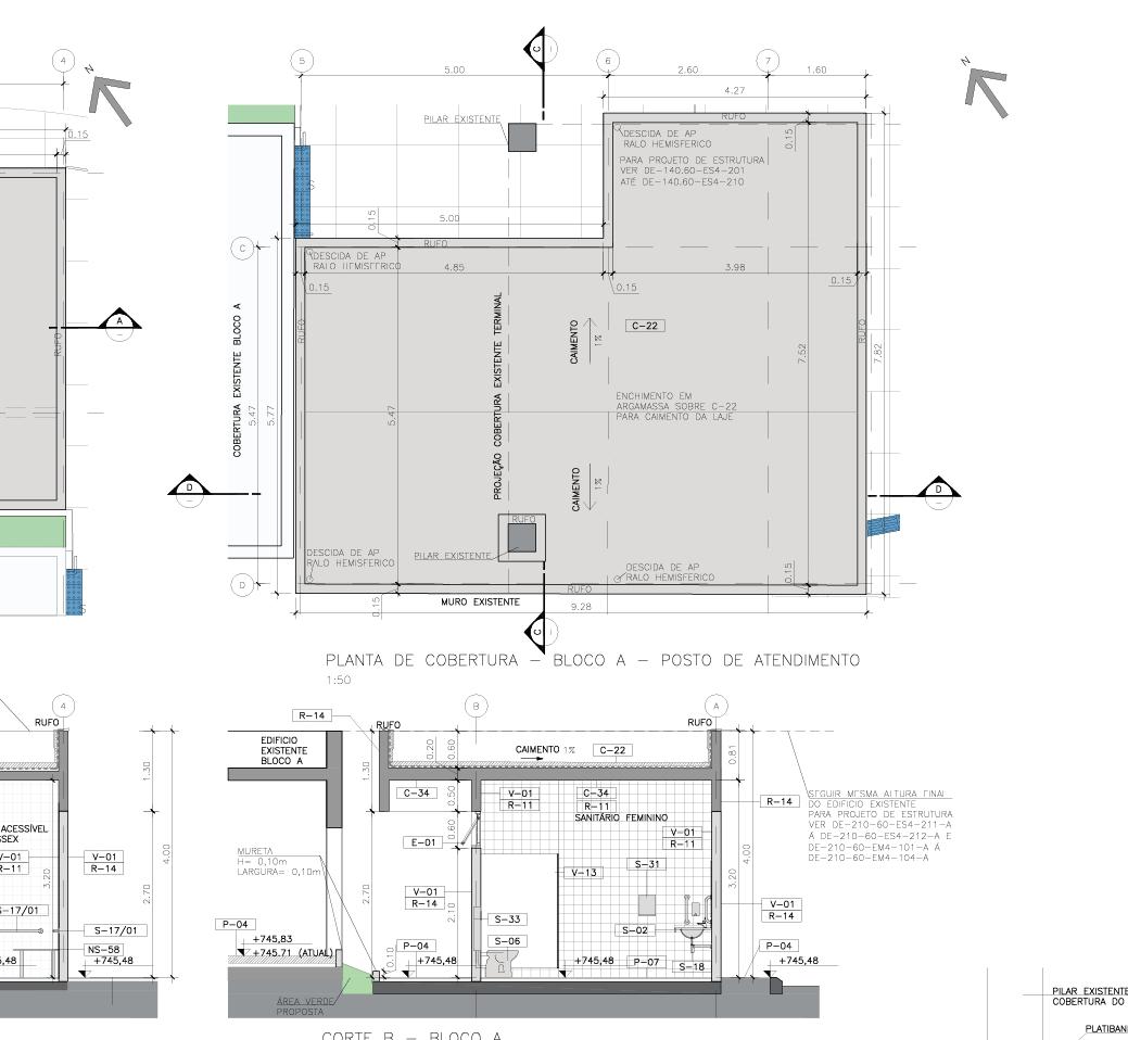
| terminais SPtrans 2022

JBMC arquitetura e urbanismo

Foram 34 terminais de ônibus na cidade de São Paulo, cujos projetos foram avaliados para reforma e adequação de acessíbilidade seguindo as normas da SPTrans. Levando em consideração as necessidades de cada um deles foram propostas reconfigurações e ampliações para otimizar suas dinâminas de funcionamento, buscando uma coerência que permeie os terminais.

25
26
27
28
29
31
contato r. min. américo mar. antônio, 230 Sumarezinho, São Paulo - SP t. +55 (11) 9 8347 2955 e. luisaverenguer@gmail.com

Turn static files into dynamic content formats.

Create a flipbook
Issuu converts static files into: digital portfolios, online yearbooks, online catalogs, digital photo albums and more. Sign up and create your flipbook.
Luisa Moreno Verenguer | 2023 by Luisa Moreno Verenguer - Issuu