PORTAFOLIO MUESTRA ARQ LUISA MARTINEZ

Page 1

1 PORTAFOLIO DE MUESTRA LUISA MARTINEZ P
L I O
O R T A F O
LUISA MARTINEZ

PRESENTACIÓN

PAGINA 3

CELULAS URBANAS PARA LA REHABILITACIÓN SOCIO-HISTORICA DE PARQUE BERRIO

PAGINA 4-6

CATALOGO MOBILIARIO-PLUGGINS

PAGINA 7-9

CENTRO DE INTEGRACIÓN Y FORMACIÓN DE LAS ARTES POPULARES

PAGINA 10-12

CATALOGO MOBILIARIO-DISPOSITIVOS URBANOS

PAGINA 13

DISPOSITIVO TECNICO ADAPTABLE SOSTENIBLE

PAGINA 16-21

PARTICIPACIONES CONCURSOS DE ARQUITECTURA

PAGINA 22-25

CATALOGO MOBILIARIO PARA LA PRIMERA INFANCIA

PAGINA 26

DESARROLLO DE MAQUETAS ARQUITECTONICAS

PAGINA 28-29

2 PORTAFOLIO DE MUESTRA LUISA MARTINEZ C O N T E N I D O

ARQ. LUISA MARTÍNEZ

MAQUETISTA PRINCIPAL

MaQ-ARCHÉ (Emprendimiento personal)

tura por medio de la impresión 3D y el manejo de herramientas manuales.

Agosto 2023-Actualidad

ARQUITECTA JUNIOR

ARQUINOBA

Desarrollo proyectual de proyectos de vivienda, espacios religiosos y adoración y centros de cultura

Enero 2024-Junio 2024 FREELANCE

ARQUITECTA JUNIOR

GVD ARQUITECTOS S.A.S

CONCURSO DE ARQUITECTUR A. (Segundo puesto)

Concurso público de anteproyecto para el diseño de un velódromo en el parque Gibraltrar en Bogotá D.C.

Noviembre 2021

COL ABOR ADOR A EN EQUIPO DE DISEÑO.

Entropia. Elaboración de esquemas para concursos.

Junio 2021-Diciembre 2021

LIDER EN DISEÑO DE DISPOSITIVO TECNICO.

Luisa Fernanda Mar tínez Tamayo Arquitecta

A27752023-1193051306

(+57) 3007545144 luisa.fer.mar.tam@gmail.com

https://issuu com/luisamar tinezarq/ docs/luisa_mar tinez-brochure_compressed Medellín, Colombia.

PERFIL PROFESIONAL

Soy arquitecta freelance de la ciudad de Medellín, tengo 23 años y durante mi crecimiento personal he presentado interes dentro de la línea de diseño arquitectonico, detalles y aproximaciones al diseño de mobiliario y la experiencia del usuario en si misma.

Experiencia en desarrollo proyectual de proyectos públicos, vivienda y mobiliario de alta gama. Elabora-tructivos , manejo de programas de renderizado y uso de maquinaria FDM para materialización de proyectos en maqueta.

EXPERIENCIA LABORAL EDUCACIÓN

Elaboración de maquetas para proyecto “Plan Maestro Medellín” para planeación de alcaldia de Medellín

Noviembre 2023-Mayo 2024 FREELANCE

CAPACITACIÓN EN DIBUJO TECNICO PAR A CARPINTERIA

D’linneantes.

Capacitación en dibujo tecnico y construcción de mobiliario americano. Interpretación planimetrica , dibujo tecnico para el área de carpinteria y aplica ción de la norma ADA en mobiliario

Junio 2023-Agosto 2023

PR ACTICANTE EN EQUIPO DE DISEÑO.

Paralelo 621.

Participación en el proceso de radicación y memorias de diseño para el Velodromo de Bogota , desarrollo de proyectos de vivienda e industrial , elaboración de catalogo de mobiliario infantil para concurso.

Junio 2022-Julio 2022

Enero 2023-Junio 2023

CONCURSO DE ARQUITECTUR A.(Mencion de honor)

L AND Y Entropia

Concurso privado abier to de arquitectura para el di

seño de proyectos emblematicos de espacio público y jardines interiores del complejo hospitalario San Juan de Dios.

Junio 2021

CONCURSO DE ARQUITECTUR A. (Tercer puesto)

Concurso público Paisajes del agua.

Octubre 2021

Lider en una experiencia de ingenieria humanitaria con la comunidad de Moravia y corporación Jarum. Enero2021-Junio 2021

EXPOSICIÓN DE MUSEO

• Exposición Ethos de la arquitectura latinoamerica na

“Acciones comunitarias-Albergue Indígena Kapaclajui” En compañia de Brayan Santiago Ciro Usme. Julio 2019-Noviembre 2019. La exposición abier ta al público de Diciembre 1 de 2020 a 31 de enero de 2021.

PROYECTO DESTACADO.

Taller de proyectos 2, Refugio “Refugio en conmemoración a Stephen Hawking” Julio 2018-Noviembre 2018.

Enero 2018-Agosto 2023

PROMEDIO ACADÉMICO GENER AL:4.30

IDIOMAS

• INGLES: B2

Centro de idiomas de la Universidad EAFIT

Enero 2013-Noviembre 2019

• ALEMÁN: A1

Centro de idiomas de la Universidad EAFIT

Enero 2017-Actualidad

Escribo y hablo ingles y me encuentro estudiando Alemán

EDUCACIÓN COMPLEMENTARIA

UNIVA MEXICO

• Curso Asistencia Técnica en acabados.

Enero 2021-Junio 2021

SENA

Enero 2019-Marzo 2019

• Curso de Ingenieria humanitaria

Seminario Internacional de Ingeniaría Humanitaria

• Curso Asistencia Técnica en procesos constructivos.

SENA

Enero 2019-Marzo 2019

• Curso Asistencia Técnica en instalaciones hidrosanitarias y electricas

SENA

Enero 2019-Marzo 2019

• Curso de Revit de cero a avanzado

FONSECA ARQUITECTOS

Enero 2022

Juan David Bocanumeth - Bocanumeth Arquitectura

+57 3006759752

David Noriega Barreto - ARQUINOBA +57 3012409782

Daniel Felipe Bañol -Arquitecto D’linneantes. +57 313 7761832| | dafebafa@gmail.com arquinoba@hotmail.com

Camilo Foronda Roman-Arquitecto Paralelo 621 +57 300 4944793 |

DE MUESTRA LUISA MARTINEZ
PORTAFOLIO
HABILIDADES GRAFICAS REFERENCIAS
CAD BIM ADOBE CC RENDERING MAQUETAS Sketch up Autocad Revit Rhino 7 V-ray Enscape Manual Impresión 3D Photoshop Indesign Illustrator Premier
-
Textil S.A.S
+57 3013687373
S.A.S
Gilberto Villegas Díaz- GVD ARQUITECTOS
-
4 PORTAFOLIO DE MUESTRA LUISA MARTINEZC E L U L A S U R B A N A S P A R A L A R E H A B I L I T A C I Ó N S O C I O - H I S T O R I C A D E P A R Q U E B E R R I O

Apartir de la lectura del entorno se comprende la necesidad de generar una REGENERACIÓN DE USOS , tenien-

Habitos historicos.

Estrategias proyectuales y urbanisticas

PEATONALIZACIÓN DE AV.PALACEPERMEABILIDAD URBANA

DESTAPAR QUEBRADADESPLIEGUE BIOTICO DE FITOREGENERACIÓN

Priorización de la accesibilidad del usuario dentro del área de trabajo

Reconciliación historico-biotica del entorno medio de la disposición en el espacio publico de dispositivos facilitadores de actividades

LIBERACIÓN DEL ESPACIO INUTILIZADO MUTACIÓN DEL ESPACIO APARTIR DEL PROGRAMA (PARASITOS)

acondicionar las visuales de los bajos

Revitalización de fachadas como alternativa para la restauración patrimonial del centexto en conjunto con la activación del espacio

Vocaciones programaticas a partir de los habitos historicos obtenidos.

Accesibilidad desde diferentes puntos que responden al contexto inmediato MEMORIA HISTORICA

COMERCIO

Recolección del agua

Murales de Pedro Nel

Cuenteros y declamadores

Convites de danzas

RECICLAJE DE LO EXISTENTE COMO APOYO DEL SISTEMA TECNICO DEL PROYECTO CONTENEDOR PARA LA REGENERACIÓN DE USOS

Condensación de los usos que permiten una relacion programatica entre el programa

Comercio Movil

AMBIENTAL REHABILITACIÓN SOCIAL

Recolección del agua

Inclusión biotica

Paisaje del lugar

5 PORTAFOLIO DE MUESTRA LUISA MARTINEZ
socio-historica del contexto urbano.
Lectura
--
-
DISPOSICIÓN
PLUGGINS PUNTOS DE ACCESIBILIDAD 1 2 3 4 5
7 8 E T A P A H I S T O R I C O - B I O T I C O E T A P A R E H A B I L I T A C I Ó N S O C I O - C U L T U R A L
DESPLIEGUE HISTORICO
DE
6
H A B I T O H S T O R C O R E L A C I O N P R O Y E C T U A L MEMORIA
civicas Espacios habitables H A B T O H I S T O R I C O R E L A C O N P R O Y E C T U A L H A B T O H I S T O R I C O R E L A C O N P R O Y E C T U A L H A B I T O H S T O R C O R E L A C I O N P R O Y E C T U A L
Artes

El proyecto se compone de 2 etapas de las cuales tienen diferentes enfoques y sus respectivas vocaciones:

ETAPA HISTORICO-AMBIENTAL

Su principal objetivo es regenerar el espacio público por medio de la apertura de la quebrada Santa Elena; dándole así un alivio ambiental al contexto y mejorando la calidad urbana del espacio público.

Permitiendo la composición de diferentes células urbanas que se conectan por medio de las dinámicas y los hábitos de los usuarios ya mencionados en el párrafo anterior, a partir de la caracterización de diferentes jardines que llevan al usuario tener una conexión directa con la naturaleza y darle una identidad paisajística natural al lugar .

ETAPA REHABILITACIÓN SOCIO-CULTU-

RAL

Su principal objetivo es entender como la permite el surgimiento de diferentes módulos enfocados en la rehabilitación social desde la acción de acoger al inmigrante (usuario que llega) y la mutación de los espacios existentes por medio de estrategias de patrimonio como lo son; la restauración y el fachendismo. Henry y su cubierta.

A través de este despliegue se tiene un recorrido programático que permite reactivación y rehabilitacion del contexto y punto de importancia; Parque Berrio.

REVITALIZACIÓN Activación programatica

Desde la lectura de contexto, se determina

Portacomidas , en el cual posee una oportunidad para mixtura de usos y a su vez la ampliación espacial y oferta desde el proposito proyectual de lo que vendria activar la cubierta del proyecto.

REVITALIZACIÓN

Aplicación de entretenimiento intelectual en el espacio

Desde la propuesta proyectual , se Henry con el objetivo de reactivar la desde el proposito de la implementación urbano como oportunidad de activación socio-cultural.

REVITALIZACIÓN

Extensión programatica

Extensión programatica permitiendo así mixtura de usos en uno de los patrimogenera espacios colectivos para usuarios del SMART-HUB, la Uni-remington y el bloque administrativo del metro. Igualmente esta estrategia permite tener otro punto de accesiblidad para los diferenres usuarios del entorno

FACHENDISMO

Complemento programatico

Se genera la propuesta de tener un punto de encuentro que da oportunidades tanto sociales como economicas a las personas inmigrantes de las cuales se genera el centro de acogimiento que proporcionan espacios culturales y sociales

REVITALIZACIÓN

Intelectualismo Ambulante

Se relaciona con uno de los factores más importantes del parque berrio, la venta ambulante; desde una propuesta enfocada en el entretenimiento intelectual (artes civicas) y a su vez complementandose con el Smart-HUB

FACHENDISMO

Complemento programatico

Basado en el bienestar del inmigrante que se encuentra en la calle, se enfoca en darle un espacio digno al usuario que llega al entorno y decide habitar este.

6 PORTAFOLIO DE MUESTRA LUISA MARTINEZ P3 P3 P2 P4 P5 P6 P1
P1 P2 P3 P4 P5 P6
Composición
Comercio
programatica del espacio publico del proyecto.
Mercado social
Extension intelectual Activación programatica
SMART-HUB para la rehabilitación social Extensión

así patrimousuarios el metro. tener los se la implementación

¿COMO EL MOBILIARIO SE ARTICULA EN LAS DINAMICAS SOCIALES Y EN SUS HABITOS?

inmigrante enfoca que más venta enfocaintelectual complementanpunto tanto las se que y

Espacio de exhibición de productos

Espacio de preparación de alimentos (el usuario dispone de la base y la acomoda segun las necesidades

ASIENTOS BASE

Espacio dispuesto para el comerciante

Espacio dispuesto para los comensales del puesto culinario.

Ubicado en el CORREDOR BIOTICO como apoyo para el ambiente de COMERCIO SOCIAL

Su función principal es de REACTIVACION, permitiendo asi espacios de permanencia a través de el comercio en el día y el arte culinario en la noche

Funcion plegable flexible que permite mayor numero de personas en la estancia

TENDEDERO BASE Espacio de exhibición de productos

Espacio dispuesto para el comerciante

Espacio dispuesto para locales para decoracion , carpa u otro accesorio de identidad.

Ubicado en el CORREDOR BIOTICO Y CENTRO DE ACOGIMIENTO como apoyo para el ambiente de COMERCIO SOCIAL

Su función principal es de REACTIVACION permitiendo asi espacios de permanencia a través de el comercio en el día y espacio de estancia en la noche.

RED (MALLA)

Espacio de exhibición de productos

Espacio dispuesto para el entretenimiento del usuario nocturno

Ubicado en el OASIS URBANO DE LA QUEBRADA SANTA ELENA en la busqueda de generar diferentes dinamicas sociales a através de las horas del día

Su función principal es de REACTIVACION, permitiendo espacio de apoyo para el comercio local y en la noche espacio de entretenimiento y esparcimiento para el usuario nocturno

7 PORTAFOLIO DE MUESTRA LUISA MARTINEZ
0.0m 0.40m 0.80m 1.40m 2.80m
activación determina
desde
una su
vendria
MOMENTO 1 MOMENTO 2 NICHO COMERCIAL NICHO COMERCIAL 0.0m 0.40m 0.80m 1.40m 2.80m 0.0m 0.80m 1.60m 2.40m 3.20m MOMENTO 1 MOMENTO 2 NICHO COMERCIAL NICHO DE APOYO AL COMERCIO LOCAL MOMENTO 1 MOMENTO 2 NICHO COMERCIAL NICHO DE ENTRETENIMIENTO
QUEBRADA SANTA ELENA ESPACIO POLIVALENTE PLAZA LIQUIDA CICLO RUTA PAISAJE BIOTICO ESPACIO PUBLICO SMART HUB PAISAJE BIOTICO ANDEN PEATONAL CALLE AVENIDA 50 Plataforma hacia la Estrella Café Flamingo Espacio de intercambio comercial ENTRETENIMIENTO INTELECTUAL Plataforma hacia Niquia Cubierta habitable Plataforma de intercambio ZONA NO PAGA ZONA PAGA ZONA PAGA
Comercio del aguante

Entretenimiento intelectual

Inclusión biotica

ASIENTOS

Espacio de estancia dispuesto a las necesidades del usuario

Ubicado en el OASIS URBANO DE LA QUEBRADA SANTA ELENA en la busqueda de generar diferentes dinamicas sociales a através de las horas del día

Su función principal es de REACTIVACION permitiendo espacio de estancia y en la noche espacio de apoyo al entretenimiento intelectual nocturno (teatro, exposiciones, cine al aire libre)

Ubicado en el PARQUE BERRIO.

MOMENTO

MOMENTO 1 COMERCIO NOMADA

Espacio de exhibición de productos

RUEDAS BASE

Funcion de movilidad que permite estar en diferentes lugares para ofrecer los servicio del agente intelectual

Como apoyo para el ambiente de ENTRETENIMIENTO INTELECTUAL

Su función principal es de REHABILITACIÓN permitiendo asi la difusión de cultura y apoyo a los espacios de patrimonio cultural como es “La Bastilla”.

MEANDOS

Elementos de memoria biotica para la recolección del agua lluvias y darle un espacio a la memoria del agua en el contexto

MOMENTO 1 PAISAJE BIOTICO

Ubicado en el PARQUE BERRIO.

Como elemento de oasis urbano que permite traer al contexto la MEMORIA DEL AGUA EN CONJUNTO CON EL PAISAJE BIOTICO .Del cual carece el parque Berrio actualmente.

Su función principal es de REHABILITACIÓN, permitiendo asi la relación con lo biotico dentro del centro de la ciudad y generar un respiro medio ambiental al entorno.

BASE

Espacio dispuesto para el parqueo de bicicletas en asociación con EnCicla

Ubicado en el PARQUE BERRIO.

MOMENTO 1 APOYO A ENTIDAD PUBLICA EXISTENTE

ASIENTO

Espacio de permanencia ya sea como punto de encuentro o simplemente estancia del usuario

MOMENTO 2 ESPACIO DE ESTANCIA

Como elemento de apoyo a la empresa municipal EnCicla que permite el alquiler de bicibletas para promover la movilidad verde en todo el área Metropolitana

Su función principal es de REHABILITACIÓN, permitiendo asi la consolidación de objetivos de los mayores promotores de la movilidad verde en Medellín.

8 PORTAFOLIO DE MUESTRA LUISA MARTINEZ
0.0m 0.40m 0.80m 1.40m 2.80m
ESPACIO DE ESTANCIA MOMENTO 2 APOYO AL ENTRETENIMIENTO INTELECTUAL NOCTURNO 0.00m 0.40m 0.80m 1.00m 0.0m 0.80m 1.60m 2.40m 3.20m
1
MOMENTO 2 MEMORIA DEL AGUA 0.40m 0.80m 1.40m 2.80m
-0.40m 0.0m
9 PORTAFOLIO DE MUESTRA LUISA MARTINEZ C U B I E R T A N I V E L 4 N I V E L 3 N I V E L 2 N I V E L 1
10 PORTAFOLIO DE MUESTRA LUISA MARTINEZ-
-C E N T R O D E I N T E G R A C I Ó N Y F O R M A C I Ó N D E L A S A R T E S P O P U L A R E S
“Metro ligero de la 80”

Integración de estructuras naturales para la vida en la DISEÑO URBANO

En cuanto a estrategias se tienen:

TRANSVERSALIDADES QUEBRADA

METRO LIGERO COMO EJE DE CONECTIVIDAD RECONSTITUCIÓN DEL PAISAJE

VIVIENDA FUTURA

ZONA 2 se en-

de los cuales los primeros son usuarios que acondicionamiento del primer piso de sus viviendas y en segundo lugar se encuentran los

11 PORTAFOLIO DE MUESTRA LUISA MARTINEZ
-
ESTRATEGIAS PROYECTUALES
relación con la zona 2

integrado al nuevo entorno que genera el corredor del metro de la 80, permite darles

artes populares es un espacio que toma las

ACCIONES FORMALES PROYECTUALES .

espacios y dispositivos se podrían diseñar

danza, artes escénicas, artes pictóricas, proyecto por la relación que esta tiene con se tiene estas actividades como vocaciones que permiten una razón de ser de cada uno de los módulos y los dispositivos que

Estructura portante Estructura portante

articuladores del espacio

ÁREA DE INTERVENCIÓN 1 2 3 4 5 6

LIBERACIÓN DEL PRIMER PISO COMPOSICIÓN ESTRUCTURAL ARTICULACIÓN DEL ESPACIO VERTICAL ADICIÓN PROGRAMATICA SOBREPOSICIÓN DE LA CUBIERTA

A partir de estos hallazgos del entorno actual, se convierten en oportunidades para proyeceste caso se considera propicio el hecho de como se puede mantener un dinamismo del “Centro de integración y formación” por medio de la actidispositivos que ayudan a ge-ciales , nuevas actividades que estudio y oportunidades eco-cuentran dentro de la ZONA 2.

12 PORTAFOLIO DE MUESTRA LUISA MARTINEZ
-
-
-
-
PROPUESTA PROYECTUAL Y PROGRAMATICA DE LA ZONA 2
ÁREA
Elemento Escenarios artisticos Estructura en relación al recorrido PATIO EXTRUIDO

MERCADO ARTESANAL

Se busca generar un espacio ante la necesidad de los usuarios de tener espacios que permitan la exhibición de productos (emprendimientos, cosechas y demas) de los cuales son hechos por los usuarios de la ZONA 2 El mercado artesanal se basa en el principio de ser canal de trasmisión de la voz cultural en la zona y a su vez generar un movimiento economico por medio del apoyo de nuevos productos desde la sostenibilidad el cuidado de las costumbres artesanales y el respeto al arte popular

CINTA PICTORICA

Basado en las 2 estrategias proyectuales iniciales este dispositivo contribuye a darle un punto de fuerza a la transversalidad de la quebrada permitiendo así; una relación cercana medio ambiental del usuario y entorno dispuesto de la “Quebrada la Picacha”. En cuanto a la segunda estrategia; reconstitución del paisaje , se respeta y se abraza la naturaleza por medio de la acción de sobreponer en el terreno y generar así un recorrido biotico y de respeto por la naturaleza, basado en el arte y la difusión artistica local.

ARTES ESCENICAS

Dando fuerza a los hallazgos desde el estudio , se presenta un espacio ideal el cual contribuye a la difusión de las artes escenicas y creando así espacios de comunidad. Por un lado genera nuevas actividades y fortalece las dinamicas sociales actuales dispuestas dentro del entorno

AMBROSIA CULTURAL

Se tiene dispuesto en el espacio publico pequeños puntos de concentración que proponen diferentes dinamicas artisticas a los usuarios ya sean los usuarios locales y/o usuarios transitorios. Estos genera diferentes puntos de difusión que en este caso son enfocados en el crecimiento de escenarios enfocados en la musica y la danza. Este escenario permite un enlace con un lugar estrategico como lo es “La Villa de Aburra”

13 PORTAFOLIO DE MUESTRA LUISA MARTINEZ 0.0m 0.80m 1.60m 2.40m 3.20m 0.0m 6.00m 0.0m 0.80m 1.60m 2.40m 3.20m 0.0m 0.80m 1.60m 2.40m 3.20m
1.50m 3.00m 4.50m
QUE PERMITEN LA EXPERIENCIA
DEL PROYECTO
DISPOSITIVOS
DENTRO
14 PORTAFOLIO DE MUESTRA LUISA MARTINEZ
15 PORTAFOLIO DE MUESTRA LUISA MARTINEZ
Imagen perspectiva de peaton desde la quebrada Imagen perspectiva de peaton Imagen perspectiva de peaton desde la quebrada Imagen de vista aérea.

tes acciones por medio de “DISPOSITIVOS TECNICOS” ; dentro del proceso de diseño y construcción gracias a la disposición de guia de construcción, generar conciencia del cuidado de los recursos y darle una segunda oportunidad a los residuos que en algun momento

16 PORTAFOLIO DE MUESTRA LUISA MARTINEZ-
D I S P O S I T I V O T E C N I C O A D A P T A B L E S O S T E N I B L E

la cual se producen estos asentamientos, es la violen-

que tienen los campesinos con el auge de la gran ciudad,

consolidando a lo largo de los años en la centralidad de

la estructuración de un espacio para la comunidad con

talleres sociales se logra concluir en el diseño de un connecesidades de las personas a través de la concientiza-

“ECO-HUERTA MORAVIA” , donde la comunidad se sintiera participe de estas acciones en pro de la naturaleza y la invención de 5 dispo-

DISPOSITIVOS TÉCNICOS

17 PORTAFOLIO DE MUESTRA LUISA MARTINEZ LECTURA SOCIO-HISTORICA DEL CONTEXTO URBANO. -
-
-
-
-
-
-
-

El dispositivo desarrollado, en cuanto a su materialidad

PROGRAMA APARTIR DE LA SOSTENIBILIDAD

con las personas que sacaran provecho de este dispositivo, y en este punto podemos decir que esta es la verda-

Para este sistema de compostaje sera necesario darle la segunda oportunidad a los elementos los cuales se necesitaran :un cajon desechado o cajones de frutas de madera desechada listones de madera viejos; como materia prima Luego lo siguiente es conseguir tierra fresca del entorno cercano y recoger los residuos organicos desechados del hogar. Para así lograr nuestro sistema de compostaje y poder construir la ECO-HUERTA

mación, necesidades, personas, materiales y técnicas,

crear el dispositivo:

Para este sistema se necesita de la lluvia, cuando el agua cae al techo, esta se encamina por la con pelota, este recoge las primeras aguas que limpian el techo, cuando la pelota llega al tope de la botella, el agua por medio de estos tubos PVC se dirige ahora si al tanque recolector que es un botellón, de ahí se puede disponer del agua, tanto para jardinería, o para la huerta de alimento y también para labores de la casa. Para así lograr nuestro RECOLECTOR DE AGUA LLUVIA CON FILTRO

Para este sistema se necesita de la lluvia, cuando el agua cae al techo, esta se encamina por la con pelota, este recoge las primeras aguas que limpian el techo, cuando la pelota llega al tope de la botella, el agua por medio de estos tubos PVC se dirige ahora si al tanque recolector que es un botellón, de ahí se puede disponer del agua, tanto para jardinería, o para la huerta de alimento y también para labores de la casa. Para así lograr

RESIDUOS ORGANICOS

Cascaras de fruta , verduras desechos de hojas tallos, cascaras de huevo.

GRATIS

LISTONES DE MADERA Madera reciclada de cajones de frutas desechados muebles desechados para darle una segunda oportunidad al material

GRATIS

4 listones 1.5m de longitud espesor: depende del materia obtenido

8 listones 0.70m de longitud espesor: depende del materia obtenido

BOTELLAS RECICLADAS

Botella pet reciclada y una pelota servira para limpiar las impurezas del agua recolectada

GRATIS

500 pelota

2 botellas pet de 600cc 2 pelotas

BOTELLONES (GARRAFON)

Botella de garrafon para la recepcion del agua descontaminada y lista para el riego de la ECO-HUERTA

5.000 botella de garrafon

2 botellones de garrafon

RESIDUOS ORGANICOS

Cascaras de fruta , verduras desechos de hojas tallos, cascaras de huevo.

GRATIS

18 PORTAFOLIO DE MUESTRA LUISA MARTINEZ DISPOSITIVO TECNICO ADAPTABLE
-
--
MADERA RECICLADA Madera reciclada de cajones de frutas desechados muebles desechados para darle una segunda oportunidad al material GRATIS 4 laminas 0.50m X 0.97m espesor: depende del material obtenido GRATIS 700m 4 laminas 1.50m X 0.97m espesor: depende del material obtenido 2 laminas 2.50m X 0.50m espesor: depende del material obtenido TIERRA FRESCA Tierra del entorno
GRATIS 700m
PLASTICO
CANALETA Canaleta
14.000 GRATIS
5.000
500 codo de 90° 1.000 codos de 45° 9.000 tarro de soldadura de pvc
codos de 45° 4 codos de 90° 2 tubos pvc de 1”1/2 1 tarro de 56gr de soldadura TUBO PVC Tubos de 1”1/2 y codos para darle dirección al agua recolectada
O
de techo o reciclaje de un plastico con aparencia concava
si se decide reciclar 2 canaletas 3m de longitud espesor: depende del proveedor
tubo pvc 1”1/2
8
GRATIS 700m TIERRA FRESCA Tierra del entorno 5.000 tubo pvc 1”1/2 500 codo de 90° 1.000 codos de 45° 9.000 tarro de soldadura de pvc 8 codos de 45° 4 codos de 90° 2 tubos pvc de 1”1/2 1 tarro de 56gr de soldadura MADERA RECICLADA Madera reciclada de cajones de frutas desechados muebles desechados para darle una segunda oportunidad al material GRATIS 2 cajones 0.50m X 0.97m espesor: depende del material obtenido
nuestro RECOLECTOR
AGUA LLUVIA CON FILTRO
DE

DEFINICIÓN DE ESCALARIDAD

ADAPTABILIDAD DENTRO DE UNA VIVIENDA PEQUEÑA

OPCIONES DE ADAPTIBILIDAD

El dispositivo puede funcionar en espacios abiertos dentro de un apartamento como lo puede ser un patio o terraza, la cual este a la intemperie o tenga contacto directo con la caida de agua lluvía

ADAPTABILIDAD DENTRO DE UNA VIVIENDA MEDIANA

OPCIONES DE ADAPTIBILIDAD

ADAPTABILIDAD DENTRO DE UN ESPACIO PUBLICO

El dispositivo puede funcionar en espacios abiertos dentro de una vivienda o casa de mayor área; como lo puede ser un patio o terraza, la cual este a la intemperie o tenga contacto directo con la caida de agua lluvía

OPCIONES DE ADAPTIBILIDAD

El dispositivo puede funcionar en espacios abiertos dentro del espacio publico y tener varios prototipos en un mismo sitio; permite tener ciertos conjuntos que pueden compartir abasto como tambien tener mayor cobertura a las necesidades de la comunidad.

POSICION PARA COMPARTIR ABASTO

Igualmente su construcción al ser auto-constructiva permite acomodar el sistema a lo que busca el usuario a sea acomodar el sistema de compostaje o las dimensiones del dispositivo

Igualmente su construcción al ser auto-constructiva permite acomodar el sistema a lo que busca el usuario ya sea acomodar el sistema de compostaje o las dimensiones del dispositivo

Igualmente su construcción al ser auto-constructiva permite acomodar el sistema a lo que busca el usuario ya sea acomodar el sistema de compostaje o las dimensiones del dispositivo

19 PORTAFOLIO DE MUESTRA LUISA MARTINEZ
20 PORTAFOLIO DE MUESTRA LUISA MARTINEZ GUIA DE FUNCIONALIDAD- PARA EL USUARIO NO TECNICO

DISPOSITIVO ADAPTABLE SOSTENIBLE

21 PORTAFOLIO DE MUESTRA LUISA MARTINEZ

FUNCIONES:

FUNCIONES:

22 PORTAFOLIO DE MUESTRA LUISA MARTINEZ P A R T I C I P A C I O N C O N C U R S O S D E A R Q U I T E C T U R A
EQUIPO: EQUIPO: CONCURSO DE ARQUITECTURA.(Mencion de honor) Junio 2021 CONCURSO DE ARQUITECTURA. (Tercer puesto)

FUNCIONES: FUNCIONES:

EQUIPO: CONCURSO DE ARQUITECTURA. CONCURSO DE ARQUITECTURA

23 PORTAFOLIO DE MUESTRA LUISA MARTINEZ P A R T I C I P A C I O N C O N C U R S O S D E A R Q U I T E C T U R A
EQUIPO:
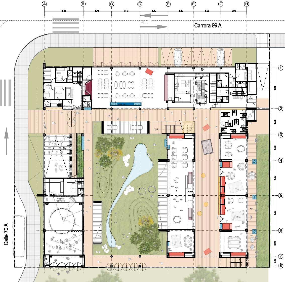
24 PORTAFOLIO DE MUESTRA LUISA MARTINEZ AMBIENTES INNOVADORES Y SOSTENIBLES PARA LA EDUCACIÓN INICIAL NOMBRE: INDETIFICACIÓN: IDENTIFICACIÓN SCA: CONCEPTO CRÉDITO ENCARGO FECHA 1 3 ¿? LOTE PARA PROPUESTA OPERACIÓN ENTRE SEMANA (DIA) OPERACIÓN DIA SABADO DOMINGO PLANTA DE CUBIERTA ESC 1:500 SECCIÓN ESC 1:250 OPERACIÓN TEATRO URBANO OPERACIÓN EVENTO ESPECIAL ENTORNOS SEGUROS ESPACIOS POLIVALENTES LA INTEGRACIÓN CON EL LUGAR BIOCLIMATICA JARDIN INFANTIL ESTRATEGIA COVID: REFERENTES NUEVA EDUCACIÓN. USUARIOS: AMBIENTES INNOVADORES Y SOSTENIBLES PARA LA EDUCACIÓN INICAL Nuevo desarrollo inmobiliario Aulas jardin infantil Comedor polivalente Comedor polivalente Comedor polivalente Ludoteca polivalente Ludoteca polivalente Teatrino urbano Teatrino urbano Teatrino urbano Espacio de uso barrial Aulas La propuesta entiende los nuevos desarrollos urbanos circundantes lote, con objetivo tener una mayor articulación con dinámicas sociales culturales sector. Como proyecto para desarrollar jardín estableciendo una relación directa con comunidad barrio, creamos lugar educativo integral desde cual apoya solo educación del niño, sino sus padres. Para esto desarrollamos área perimetral esquina cual concentramos ambientes polivalentes los cuales se integran comunidad, convirtiéndose lugar para padres hijos. lavamanos tradicional sale del ambiente exclusivo zona húmeda convierte en mueble mas del espacio. cual permite los niños tener un lavado constate sus manos conservar siempre una higiene. Aparte diseñaron estos muebles de manera que permitan niño tener esa conciencia del lavado manos junto con un cuidado por recurso natural agua. jardín consta con un sistema entradas aire grandes ventanales que permite recambio de aire todos los espacios evitando que momento acumulación niños en solo espacio estos gocen siempre un aire fresco entrada de luz. una partición típica aulas; lugar cerramiento hace través dispositivos (nichos compinches) los cuales permiten cambiar de lugar ser reemplazados libremente que aportan una tercera dimensión interior aula, permitiendo ampliar variedad de experiencias juegos Esta gran extensión área permite jugar afuera aire libre tener que salir jardín días lluvia, alta radiación contingencia ambiental por mal estado del aire. Para estos eventos queríamos resolver problema en este proyecto, creando un entorno que niños puedan jugar interior con misma libertad que tienen en exterior, para profesores también darles posibilidad de vigilar los niños con facilidad Nichos que permiten observar que ocurre en nivel inferior deslizaderos redes que conectan diferentes niveles, creando un ambiente donde niños de todas edades puedan aprender juntos. Uno los grandes aprendizajes que nos dejo pandemia del Covid importancia del autocuidado por medio del lavado manos constante, entrar, salir interactuar entre espacios. Como respuesta esto proyecta una serie de muebles que distribuyen los largo todo jardín. Desde acceso, patio jardín, las aulas, terrazas circulaciones. Los cuatro pilares de educación inicial; juego, arte, literatura, exploración del medio, interactúan con las cinco dimensiones del desarrollo; artística, corporal, comunicativo, cognitivo personal social entono escolar. Este círculo de desarrollo humano esta presente en toda actividad pedagógico, mediado por maestras, sus resultados involucran toda familia impactan comunidad. ÁREA EXTENSIÓN ACADEMICA ÁREA EXTENSIÓN HUERTAS PLAY GROUND Jardín parte generar conexiones todos los niveles partiendo naturaleza que desarrolla localidad en especial en este sector Engativá El patio convierte en jardín se abre uno sus costados vinculando futura sesión de espacio público proyecto Acanto, conformando una esquina verde que termina La propuesta plantea por medio sus cubiertas inclinadas control térmico en los espacios consiguiente temperaturas ambientes de 21º grados.. Se propone que jardín tenga una ventilación cruzada en primer piso además una fácil recirculación del aire dentro los espacios. proyecto plantea paneles solares en sus cubiertas para un aprovechamiento Área de Cesión ESPACIOS DE ARTICULACIÓN URBANA EJES DE ENLACE URBANO ESPACIOS COMPARTIDOS ASOLEAMIENTO VENTILACIÓN PANELES SOLARES CALLE 70 CARRERA 99A CONCEPTO ESPACIALIDAD AMBIENTES CONVENCIONALES A A A A A A A A A A A A A CONCEPTO ESPACIAL AMBIENTES INNOVADORES SOSTENIBLES + Área Extensión academica Aulas con limites difusos Aulas separadas PILARES DE LA EDUCACIÓN: PERSONAL COGNITIVO ARTISTICA EXPLORACIÓN MEDIO COMUNICATIVA 21º 23º am 12pm 4pm 60% 60% 104 110 116 AÑOS AÑOS AÑOS AÑOS Pared las palabras Pared Magnetica ESTRATEGIA DE APRENDIZAJE PARTIR DEL MOBILIARIO CM Pared juego logico Comprendemos afrontamos el diseño del Jardín de Infantes como un espacio creado para descubrir, como un instrumento de aprendizaje para promover la conciencia el intercambio de saberes donde respetamos que los niños creen propio pensamiento desarrollo de personalidad; como resultado de interacción del niño con los espacios su relación con entorno. Para esto cada rincón del jardín es tratado como una oportunidad de aprendizaje de intercambio de experiencias para niño. ESTRATEGIA ESPACIAL El Jardín de Infantes como ambiente innovador sostenible, parte de crear un entorno donde cada espacio cada lugar, sea un escenario para el aprendizaje el intercambio de ideas. Así desarrollamos un sistema de dispositivos que activan potencian todos los espacios. Nichos compinches, escaleras, redes, toboganes. bosques, jardines, cambios de niveles, donde los niños desarrollen su sensibilidad creatividad, subir, bajar, saltar, correr, deslizar, observar cuidar medio ambiente la naturaleza por todo proyecto. Desde parte de las aulas se optó por tener una estructura que permitiera tener un alto grado de variabilidad, brindando un ntorno que se pueda adaptar múltiples actividades momentos de estudio, que vinculados una relación directa con naturaleza permite tener una conciencia sobre paso del tiempo los ferentes eventos que ocurran en el exterior Así proyecto se llenó de ESTRATEGIA URBANA Jardín parte de generar conexiones todos los niveles partiendo de la naturaleza que desarrolla en localidad en especial en este sector de Engativá, donde una sucesión de parques detes de comunicación exterior como aulas polivalentes, comedor, acceso, teatro los corredores. Trascendiendo del acceso como único medio de comunicación interacción del interior-exterior, permitiendo la apropiación por parte de comunidad en especial de los padres de familia de estos espacios, los cuales podrán estar más cerca de sus hijos, verlos jugando en el desarrollo de sus actividades diarias. Convirtiéndose en parte integral del desarrollo de vida diaria del barrio, como espacios lugares de encuentro durante todo el año. patio se convierte en jardín se abre en uno de sus costados vinculando futura sesión de espacio público del proyecto Acanto, conformando una esquina verde que termina de Se desarrolla área perimetral esquina en cual concentramos los ambientes polivalentes los cuales se integran comunidad, convirtiéndose un lugar para padres hijos. FACHADA OCCIDENTAL ESC 1:250 IMAGEN TEATRINO URBANO CONCURSO DE ARQUITECTURA. Junio 2022 FUNCIONES: EQUIPO: P A R T I C I P A C I O N C O N C U R S O S D E A R Q U I T E C T U R A

Archivo

Bodega-Taller

TEATRINO URBANO / ESPACIO DE CIUDAD

UBICACIÓN PROGRAMA PROPOUESTO

Se propone un teatrín urbano como espacio de ciudad en donde se realizaran cine de barrio, reuniones barriales y cualquier otra actividad de ciudad.

Se plantea este teatrino cubierto convirtiéndose de espacio de extensión urbana y de jardín.

Administracion

Coordinación y apoyo

Baños profesores

NOMBRE:

El teatrín funcionara como extensión al espacio urbano del jardín infantil funcionando como apoyo al vestíbulo de acceso al jardín.

TEATRINO URBANO / ESPACIO DE CIUDAD

Circulación

Baños personal institucion

Vestier y lockers

Profesores

Cuarto de aseo

Baños para niños

Ambientes de aprendizaje

Circulación Sala de juntas

Huertas

Bodega mantenimiento

Aula múltiple y comeodor

Ambiente polivalente

Basuras Ambientes de aprendizaje

Cocina

Personal (vigilantes y aseadores)

UBICACIÓN PROGRAMA PROPOUESTO

Parque infantil y recreación exterior

Almacen y cuarto de aseo

Ludoteca

Teatro al aire libre

Primeros auxilios

Archivo

25 PORTAFOLIO DE MUESTRA LUISA MARTINEZ
auxilios Comerdor
caliente Almacen seco
Archivo P.
Preparación
Porteria Entrega de Alimentos Baños Carro isotermico Almacen Refrigerado Aulas Play Ground Aseo Vestibulo Preparación en frio Basura Zona recibo Almacen Congelados Extensión Amb Aprendizaje Ludoteca Z. parqueo Extensión AC Huertas Bodega-Deposito Baños niños-niñas Secretaria Teatrino Urbano 1 4 4 7 7 10 10 13 13 16 16 2 2 5 5 8 8 11 11 14 14 17 17 21 21 21 21 21 21 21 25 25 3 3 3 6 6 A A B B B B B B B A C C C B A B B A A A C C C B C D E A B E E 9 9 12 15 15 18 18 22 22 22 26 26 19 19 23 23 27 27 20 20 24 24 28 28 12 AXONOMETRICO ESPACIOS INTERIORES Servicios Generales Baños Play Ground Aula Multiple-Comedor Ambientes de aprendizaje Huertas Ludoteca multiple Zona tecnica de apoyo Extension de Ambientes Teatro urbano 1 4 7 10 2 5 8 3 6 9 PLANTA PRIMER NIVEL ESC 1:250 1 Se propone un teatrín urbano como espacio de ciudad en donde se realizaran cine de barrio, reuniones barriales y cualquier otra actividad de ciudad. N AMBIENTES INNOVADORES Y SOSTENIBLES PARA LA EDUCACIÓN INICIAL TEATRINO ESPACIO POLIVALENTES Y MULTIPLICIDAD DE USOS Archivo P. auxilios Comerdor Preparación caliente Almacen seco Bodega-Taller Porteria Entrega de Alimentos Baños Carro isotermico Almacen Refrigerado Aulas Play Ground Aseo Vestibulo Preparación en frio Basura Zona recibo Almacen Congelados Extensión Amb Aprendizaje Ludoteca Z. parqueo Extensión AC Huertas Bodega-Deposito Baños niños-niñas Secretaria Teatrino Urbano Coordinación Sala de juntas Auditorio Vestier baños tecnicos Secretaria sala de profesores Sala de profesores Zona tecnica 1 4 7 10 13 16 2 5 8 11 14 17 21 21 21 21 21 21 21 21 25 3 6 A B B B B B B B C A A A D B B A A A C B A A D D B E E E E E 9 12 15 18 22 22 22 26 26 19 23 23 23 23 27 20 24 28 29 29 29 30 29 31 33 35 35 35 33 31 30 32 34 36 36 36 32 Se propone generar extensión del comedor así el interior del proyecto para aumentar su capacidad de ocupación Se propone generar extensión del proyecto para aumentar Se propone el comedor como un espacio para charlas y reuniones con la comunidad El comedor como espacio de múltiples actividades tanto para el jardín como para la comunidad COMEDOR = SALON DE REUNIONES COMEDOR = SALON MULTIPLE LUDOTECA PLANTA PRIMER NIVEL ESC 1:250 PLANTA SEGUNDO NIVEL ESC 1:250 Se propone un cine de barrio,
plantea este urbana y de jardín. El teatrín funcionara funcionando como A B N C A B D AMBIENTES INNOVADORES Y SOSTENIBLES PARA LA EDUCACIÓN INICIAL
Se
CONCEPTO : CRÉDITO :
auxilios Comerdor
caliente Almacen seco
Porteria Entrega de Alimentos Baños Carro isotermico Almacen Refrigerado Aulas Play Ground Aseo Vestibulo Preparación en frio Basura Zona recibo Almacen Congelados Extensión Amb Aprendizaje Ludoteca Z. parqueo Extensión AC Huertas Bodega-Deposito Baños niños-niñas Secretaria Teatrino Urbano Coordinación Sala de juntas Auditorio Vestier baños tecnicos Secretaria sala de profesores Sala de profesores Zona tecnica 1 4 7 10 13 16 2 5 8 11 14 17 21 21 21 21 21 21 21 21 21 25 3 6 A B B B B B B B C B A A A D B B A A A C A D D B E E E E 9 12 15 18 22 22 22 26 26 19 23 23 23 23 27 20 24 28 29 29 29 30 29 31 33 35 35 35 33 31 30 32 34 36 36 36 32 Se propone generar extensión del comedor así el interior del proyecto para aumentar su capacidad de ocupación Se propone generar extensión de la ludoteca así el interior del proyecto para aumentar su capacidad de ocupación Se propone una ludoteca dual prestando servicios tanto al interior como al exterior del proyecto. Se propone el comedor como un espacio para charlas y reuniones con la comunidad El comedor como espacio de múltiples actividades tanto para el jardín como para la comunidad La ludoteca como espacio de múltiples actividades para el para la comunidad COMEDOR COMEDOR = SALON DE REUNIONES COMEDOR = SALON MULTIPLE LUDOTECA LUDOTECA ESPACIO DUAL LUDOTECA SALON MULTIPLE 1 2 AXONOMETRICO ESPACIOS INTERIORES Servicios Generales Baños Play Ground Administración y Coordinación Cubiertas como huertas Aula Multiple-Comedor Ambientes de aprendizaje Huertas Ludoteca multiple Ambientes de aprendizaje Zona tecnica de apoyo Extension de Ambientes Teatro urbano Extension de Ambientes 1 4 7 10 13 14 2 5 8 11 3 6 9 12 PLANTA PRIMER
1:250 PLANTA
P.
Preparación
Bodega-Taller
NIVEL ESC
SEGUNDO NIVEL ESC 1:250
N C D
26 PORTAFOLIO DE MUESTRA LUISA MARTINEZ CATALOGO DE MOBILIARIO PARA LA PRIMERA INFANCIA ELABORADO DENTRO DEL CONCURSO

Ambientes de aprendizaje

AXONOMETRICO ESPACIOS INTERIORES

Servicios Generales

Aula Multiple-Comedor

Zona tecnica de apoyo

Baños

Ambientes de aprendizaje Huertas Ludoteca multiple

Administración y Coordinación

Ambientes de aprendizaje

Cubiertas como huertas

27 PORTAFOLIO DE MUESTRA LUISA MARTINEZ 2 3
Ludoteca
Almacen
de aseo Teatro al aire libre Circulación Huertas Primeros auxilios Archivo múltiples actividades MULTIPLE 1 4 7 10 13 2 5 8 11 3 6 9 12 14
Baños para niños
y cuarto
Play Ground
Extension de
Teatro urbano Extension de Ambientes 1 4 7 10 13 14 2 5 8 11 3 6 9 12 FACHADA ORIENTAL IMAGEN COSTADO SUR ADAPTABILIDAD FLEXIBILIDAD DE DETALLE CONSTRUCTIVO JARDIN INFANTIL Losa de contrapiso en concreto Piso en tableta de gres en arcilla para enchape 7 3 AMBIENTES INNOVADORES Y SOSTENIBLES PARA LA EDUCACIÓN INICIAL NOMBRE: INDETIFICACIÓN: IDENTIFICACIÓN SCA: CONCEPTO : CRÉDITO : ENCARGO : FECHA 3 3 FACHADA ORIENTAL IMAGEN COSTADO SUR FACHADA NORTE DETALLE CONSTRUCTIVO JARDIN INFANTIL Losa de contrapiso en concreto Canoa en lamina galvanizada Piso en tableta de gres en arcilla para enchape Fachada en Ladrillo gran formato 7 9
Ambientes

MAQUETA PLAN MAESTRO MEDELLIN - POLÍGONO SAN BENITO

FINAL.

Maqueta para la muestra de “Plan Maestro Medellin” para la junta de planeación de la alcaldia de Medellín y en coordinación de GVD Arquitectos.

MAQUETA PRESENTACIÓN PARA CLIENTE- CASA DEPORTE

MAQUETA FINAL.

Maqueta para cliente “Urban Transformation Program ETH Zurich-UPB

Impresión 3D e impresion en Lona

Impresión 3D

28 PORTAFOLIO DE MUESTRA LUISA MARTINEZ D E S A R R O L L O D E M A Q U E T A S D E A R Q U I T E C T O N I C A S
MAQUETA
-
TECNICA: TECNICA:
“PARQUE CULTURAL NIVELES DE INTEGRACIÓN SOCIAL”
29 PORTAFOLIO DE MUESTRA LUISA MARTINEZ
ETHOS DE LA ARQUITECTURA
EXPOSICIÓN
LATINOAMERICANA.
Modelo elegido, Caso de estudio TECNICA: MAQUETA FINAL.
30 PORTAFOLIO DE MUESTRA LUISA MARTINEZ

Turn static files into dynamic content formats.

Create a flipbook
Issuu converts static files into: digital portfolios, online yearbooks, online catalogs, digital photo albums and more. Sign up and create your flipbook.
PORTAFOLIO MUESTRA ARQ LUISA MARTINEZ by Luisa Martínez Tamayo - Issuu