PORTFOLIO

B.A. Interior Architecture | Year of 2024

clhcandice@gmail.com | +1 (413)-399-9913| Providence, RI | Portfolio: www.luhuachen.com
![]()

B.A. Interior Architecture | Year of 2024

clhcandice@gmail.com | +1 (413)-399-9913| Providence, RI | Portfolio: www.luhuachen.com
09/2020 - Expected 05/2024
02/2023 - 06/2023
Award
Relevant courses
WORK EXPERIENCE
06/2023 - 09/2023
05/2022 - 09/2022
08/2020 - 04/2021
TECHNICAL SKILL
Graphic
Architectural
Virtual Reality Design
Social Media Marketing
Rhode Island School of Design, Providence, RI
Bachelor of Arts in Interior Architecture | GPA 3.94
University of Arts Londong, London, UK
Exchange Study in Theatre Design
RISD Honor Student 2020 -2023
ADU/AARP Charette Competition 2023, Team 1st Place
Design
Interior Architecture Studio | Building Structure | Building Material | Human Factors | Theatre Production
Digital Media
Creative Coding | Digital Representation of Architecture | Virtual
Morphology | Spatial Audio
Language & Writing
Arts Writing | History of Interior Architecture | Research Method
Perkins&Will, New York Office
Interior Design Intern
Jarret Yoshida Interior Design Inc, New York
Interior Design & Social Media Marketing Intern
Shenzhen Jimei Cultural Technology Co., Ltd
Assistant Project Coordinator Intern
Photoshop | Illustrator | InDesign | Adobe XD | Premiere | Final Cut
Revit | AutoCAD | Rhino | Grasshopper | Enscape | Lumion | Laser Cut & Woodshop Working
Processing | Twinmotion | Unity | Max MSP & Repear (Sound Design)
Chinese & English Writing | Social Media Post, Blog, Podcast
























Intro to Interior Architecture Junior Studio: Temporal Housing Fall 2022
Location: OCT Wetland Park, Shenzhen, Guangdong, China
Shenzhen has experienced rapid development in the past decade and became one of the most adavanced and prosperous cities in China. It housed many of world-famous hightech companies. In this fast-paced city where efficiency is extremely prioritized, people are
in desperate need to escape the bustling urban life and release stress. Aiming to create a shelter for the mind and bring people to nature, I designed this urban meditative cabinet for the wetland and coastal parks of Shenzhen, China.
The cabinet provides temporal housing for the busy white collars of technology companies in Shenzhen to relax and refresh. The wood material and cocoon shape aim to adapt to the surrounding environment and merge
into the ecosystem of the wetland. The plastic barrels provide floation, which allows the cabinet to adapt the wetland typography. The cocoon shape of the cabinet mimics the form of artificial bird nest to avoid disturbance to the environment.
The central element of this cabinet is a rotatable platform in the middle, which can be rotated to different modes (sleeping, meditation, or bird watching), maximizing the potentials of this small space.





10:00 AM Meditation Mode - Table & Seating
3:00 PM Bird Watching Mode - Lifted Platform & Ladder
11:00 PM Sleeping Mode - Bed with Hidden Mattress Storage




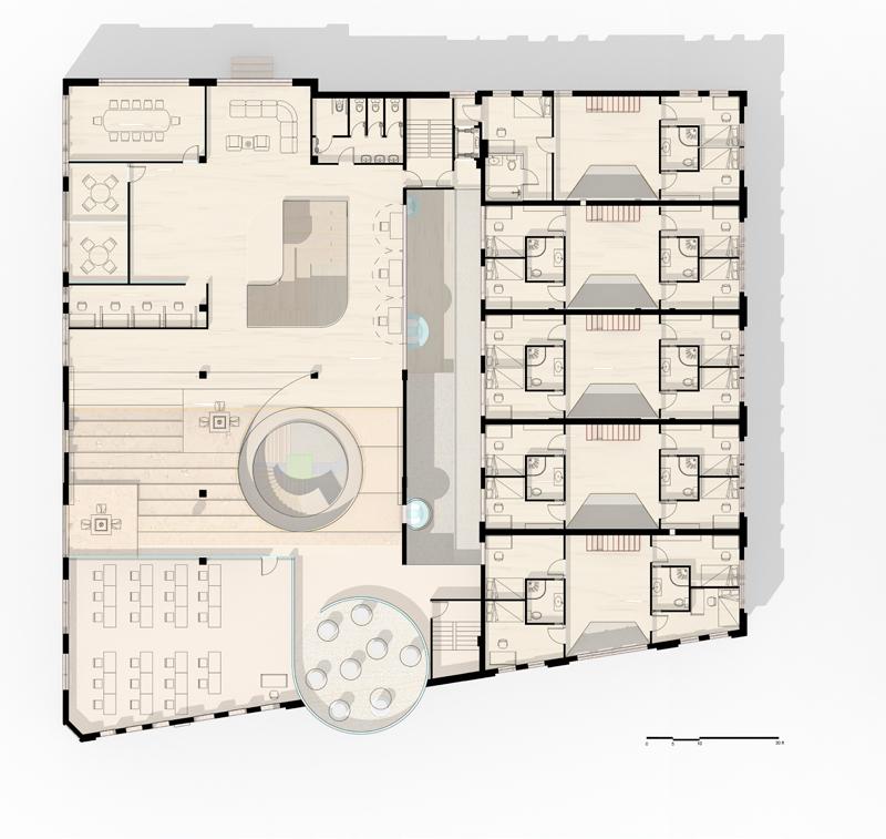
ADAPTIVE REUSE OF HISTORIC COMMUNITY LIBRARY

Intro to Interior Architecture Sophomore Studio Spring 2022
Location: 275 Elmwood Ave, Providence, RI
Knight Memorial Library is a historic library that is currently serving the diverse Elmwood community. Nowadays, library serves more than a place for reading but also as shelter, information center, children’s daycare, space for socialization, and community classrooms. The current issues such as vast unoccupied underground space, the lack of clear
vertical circulation and lack of clear function distribution, made the library less effective in serving these purposes. The project aims to continue serving the current community including middle-class families, group of unemployed and homeless, while attracting young people and family in the neighborhood. The library serves as a community information center with the newest information about employment, community news, and events, helping the immigrant population,
unemployed groups to better merge into the society. Computer booth are also setup for access. There's also auditorium for community gathering. The library also appeals to the youth community with children's room, makerspace, and computer lab for teenagers.
Safety is our top concern to ensure that youth, children and parents feel safe at this place. Thus, user groups and functions are clearly divided between the floors (1F as information center; 2F & Mezzaine as library)
Underage Education
Health Related
Immigrant-related Nonprofit Organization













Existing Bookshelf


Tomaquag Museum Archive & Research Center
Studio: Advanced Studio Fall 2023
Location: Ministerial Rd, South Kingstown, RI
My project concept revolves around the idea of a "patch" to heal not only the ground and earth but also history itself. This design seeks to combine archive, collection, and research spaces at the heart of the building while surrounding them with various facilities. This arrangement ensures access to sunlight for areas like offices, exhibition spaces,

and the public library while maintaining a dark environment for the archive, crucial for preservation. Key features of the design include:
- A clear division between public and private spaces with separate entrances, creating 3 circulation routes for the general public, staff and researchers
- Multiple Interactive features such as the audio & video bubble exhibition wall, 2 way shelves, glass window to conservation & research rooms .etc.
The archive center is divided into two parts: a dark storage area and a well-lit research area, with an archive monitor room in the middle. Seven different storage systems are employed, with a special two-way shelf that can be pulled from both sides and is covered with glass for public viewing without physical access.
- Three outdoor spaces: a pavilion at the front and a herb corridor at the back. The pavilion can be integrated with the front yard for large-scale plantings, while the herb corridor leads to a pond and is ideal for colorful and fragrant plantings.


Research Historian & Archivist Consulting












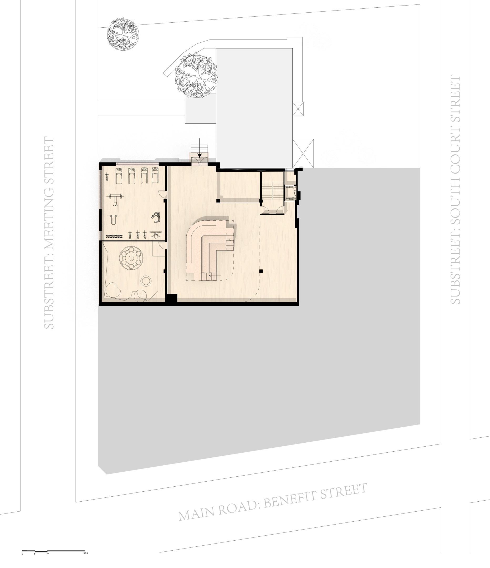
Intro to Interior Architecture Junior Studio: Housing Design for Social Change Fall 2022
Location: What Cheer Studio 101, Providence, RI
In 2021, approximately 1 in 44 children in U.S is diagnosed with an autism spectrum disorder. While autism in childhood received increasing attention, autism in adulthood is still being negelected.
This program aims to help autistic teenagers to
go through transitional period from school to society by pairing teenagers with highfunctioning autistic adults to form group livings and mentorships. The aimed user group is individual of 16+ in age, that are on the Level 1-2 of the autistic spectrum and high-functioning autistic adults. 4 teenagers and 2 adults form a “family” to live together. Tenants live temporarily here for approximately 1-2 transitional years. Provide Support on independent living, employment, community engagement
& relationship building. Programs include: Sensory Room, Gym, Therapy Center, Sensory Pool, Makerspace & Computer Lab , Autismfriendly Cafe for internship, Media Hall, Classroom, Co-working Space, Community Kitchen, Rooftop lounge
Key features indlude: Garden of Sound (Atrium with Terraced Seating), Garden of Scent (staircase library facing interior garden), Garden of Taste (2-storied Vertical Farm) , Wall of Escape bubbles.


































Thank You For Your Time
Luhua (Candice) Chen | clhcandice@gmail.com | US: +1 (413)-399-9913| Portfolio:www.luhuachen.com