

![]()


By Lucy Flockhart Portfolio
UCAS Personal ID - 190-810-0706


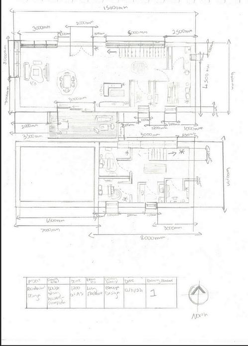
Project Overview: In my HNC Architectural Technology with Digital Construction course. One of my projects was to Develop a residential veteran's house, within a community in Summertown, South Glasgow, The goal of the brief is to create a self-sufficient community that can house and rehabilitate former military members, their families, and support staff as necessary. Charities in Scotland have asked for the task of creating a special location that can assist people who need assistance readjusting to life following active military duty. The spatial requirements are 2-3 Double Bedrooms (one of the bedrooms must be allocated for a support worker). An
Open plan kitchen, dining and living space which is fully accessible and adaptable, Utility room, Access to a small garden, Ensuite for the master bedroom located on the ground floor, Accessible to W/C on the Ground Floor and a Family Bathroom.

Sypon Cop, By Brown & Brown
Spyon Cop was completed in 2022.
Location: in Eastern edge of the Cairngorms National Park, in Aberdeenshire – Glenbuchat
Architectural Precedents - I wanted to research houses that i liked the architectural elements of for inspiration for my design, i decided to sketch the houses. In the process of the sketches, I wanted to focus on tone to enhance the shadows within the materials.

The Black House, By Rural Design Architects
- Black House was completed in 2013
Location: The Isle of Skye.

-The Architects described this projects aim was to build a family home with a small and strict budget, this meant that the house needed to be spatially efficient, minimalist and easy to build with inspiration from Rural Architecture. The house is a single Storey with 3 bedrooms, artist's studio and study.
Materials:
-Black corrugated cladding(This material was chosen because it is durable, this was to withstand the open climate).
-Blockwork wall Timber
-Laminated "Kerto" beams

-The architects wanted to create a modern get away. The house is exposed to harsh climate of the hillside. Additionally, a wild grass roof has been added to help the blend of the building into the surroundings. The room's interior is simple, designed as a huge common area with a doubleheight ceiling around which a number of smaller, more tactile areas are arranged to create the bedrooms.
Materials
-Blackened timber
-Corten steel
-A wild grass roof (which helps cocoon the structure into the landscape.)
-Glass
Location: The isle of Harris
-This building is a mixed-use enterprise building, community space and social housing. Their mission was to revitalize the community by offering sustainable job and housing options. The café area and main hall open onto a deck with views of the mountains and sea to the northwest. The six houses, which are a combination of two- and three-bedroom apartments, were built in collaboration with the Hebridean Housing Partnership to offer muchneeded low-cost rental housing Project is powered by a windturbine.
Materials
-Untreated larch Cladding
-Panel of yellow
-Natural ice-sourced bedrock under decking
For this design I wanted it to be modern, Modern architecture prioritizes functionality and simplicity, using purpose-driven designs and efficient layouts. It often incorporates innovative materials like steel, glass, and reinforced concrete, which also blends into traditional and contemporary styles. Modern architecture also incorporates sustainability and energy efficiency, incorporating practices like renewable resources and passive energy design. I want to take into consideration an open floor plan as stated in the brief.
Materials
-Blackened timber
-Corten steel
-A wild grass roof (which helps cocoon the structure into the landscape.)
Glass



When designing concept houses, clashing shapes can create striking and dynamic compositions. Juxtaposing geometric forms like sharp angular prisms with smooth, organic curves introduces visual tension and energy. This technique invites bold contrasts, allowing light, shadow, and materiality to interact in unexpected ways, pushing architectural boundaries and inspiring innovative spaces.









I used the software Sketchup in this study, using this software helped me create detailed 3D models and designs efficiently.



In the form study I started by focusing on rectangular shapes and extruded them, I then tampered with and started clashing with other shapes to make an interesting effect. I also started to elongate shapes sections of the walls to create a wall feature to see how it would impact the design. Within some forms, I started to Play with a sunken roof effect, I started to consider when I bring this into the house design which could lead to a green roof

Developing a shape form into a house with features in SketchUp is a fluid and creative process. Starting with basic geometric forms, i iteratively add functional elements like windows, doors, and roof structures using the software’s intuitive tools. SketchUp allows for precise adjustments and real-time visualization, making it easy to refine proportions and experiment with layouts. This process bridges the gap between abstract concepts and practical, livable designs, ensuring the final form aligns with both aesthetic and functional goals.





Scale - 1:100

Evevations
Scale - 1:100

Section
Scale - 1:50



Isometric
Scale - 1:100


First Floor Plan - Scale: 1:100

Secound Floor Plan - Scale: 1:100

Elevations - Scale: 1:100


Sections - Scale: 1:50







Foundation Detail - Scale: 1:5
When creating these details i considered the importance of what needs to be included within the design to comply with regulations and successfully match the design. For example for the Roof Detail i decieded to detail a warm roof. Warm flat roofs are good because they provide excellent thermal efficiency by placing insulation above the structural deck, preventing heat loss and condensation. This design protects the structure, reduces energy costs, and ensures durability.

Stair Detail - Scale 1:5

WIndow Head & Cill Detail - Scale: 1:5

Roof Detail - Scale: 1:5




This render showcases a modern, thoughtfully designed residential home, created with precision in Revit. The model emphasizes open space, natural light, and sustainable design elements. Featuring clean lines, contemporary materials, and a seamless integration with its surrounding environment , this project reflects both functionality and aesthetic appeal. The realistic render highlights detailed textures and lighting, offering a glimpse of the envisioned living experience.




This render highlights the interior design of a contemporary home, created using Revit. Featuring a n open floor plan, modern finishes, and a harmonious blend of textures and materials, the space offers both comfort and sophistication. Natural light floods the interior, enhancing the airy atmosphere and showcasing thoughtful details such as custom furniture, lighting, and material choices. This high -quality render brings the vision of this inviting, functional living space t o life.






Project Overview: In Advanced Higher Art & Design i wanted to make a castle inspired by the novel ‘Dracula’ by Bram Stoker, When i first started this project i wanted to start with looking into gothic architectural characteristics, i investigated local Churches & Cathedrals then i took an academic trip to New York to investigate buildings by James Renwick Jr, such as ‘Grace Church’ however i took the most inspiration from ‘St Patricks Cathedral’, i took note of the size of the cathedral and how i would convey that into a 1:100 scale model. i also was inspired by the bold spires surrounding the cathedral which gave it a dramatic effect.










For my final solution, i wanted to use characteristics from my previous model, such as the pointed arched windows with red stained glass. I decided to add some point perspective drawings, Point perspective drawings create realistic depth and accurate proportions, guiding the viewer's eye and enhancing composition. They are versatile, dynamic, and foundational for depicting spaces and structures with precision.




The process of making this model, was by using card, sketch the design, cut detailed shapes from sturdy card, and assemble the pieces with glue. Add texture and features like spires or arches using layers, scoring, and painting for a realistic finish.


I have learned from making this model, i learned patience, precision, and design skills, along with techniques for cutting, assembling, and detailing materials. It also deepens your understanding of architectural features and creative problemsolving.



