TCC | CCS - Centro de Cultura e Saúde Sexual em Santa Cecília

Page 1

CULTURA

AGRADECIMENTO

Queria começar a agradecer a Deus, por sem pre me dar apoio e sabedoria para conseguir evoluir como ser humano, aluno e profissional. Sem ele nada seria possível.

Aos meus pais, Benito Pena e Adriana Balogh, por me darem amor em todos os momentos, me mostrando como viver de forma digna e respeitosa. Sei o quanto eles se sacrificaram para que eu pudesse estar concluindo essa eta pa da minha vida e sou muito grato.

Aos meus amigos do curso - Isabella, Ingrid, Carol e Bella - que me deram alegria e deixa ram eu dividir minhas angustias e medos em todos esse processo de formação.

A minha orientadora - Ana Carolina Mendes - que desde o começo me ajudou em todas as etapas desse trabalho, me incentivando em todo momento a realizar uma pesquisa empá tico e relevante para o tema de saúde sexual; sua contribuição e leveza foram de grande aju da para o decorrer desse TCC.

Faço uma dedicação especial ao meu cachor ro Billy, que infelizmente morreu, e que ficava deitado do meu lado à todo momento que eu produzia esse TCC.

Finalizo agradecendo a todos que passaram em minha vida e que deixaram sua marca. Que Deus abençoe a todos.

SIGLAS

AB: Atenção Básica

AIDS: Síndrome da Imunodeficiência Adquirida

CCM: Centro de Cidadania da Mulher

CR: Centro de Referência IST/AIDS

CRS: Coordenadoria de Regiões de Saúde

CTA: Centro de Testagem e Aconselhamento

HIV: Imunodeficiência Humana

HPV: Papilomavírus Humano

HSH: Homens que fazem sexo com outros Ho mens

IST: Infecções Sexualmente Transmissíveis

OPAS: Organização Pan-Americana da Saúde

PEP: Profilaxia Pós-Exposição

PREP: Profilaxia Pré-Exposição

SAE: Serviço de Atendimento Especializado HIV/ AIDS

STS: Supervisão Técnica de Saúde

UNAIDS: Programa Conjunto das Nações Uni das sobre HIV/Aids

SUMÁRIO

Introdução

Entendendo o contexto histórico do HIV no Brasil

1.1. Contexto atual de novos casos de ISTs no Brasil

1.2. Estigma e preconceito com as populações mais vulneráveis

1.3. Estratégias de combate a ISTs no Município de São Paulo atualmente

Centro de Testagem e Aconselhamento (CTA) no Brasil

2.1. Diferentes arranjos de CTAs

2.2. O CTA na estrutura das redes de atenção básica

2.3. Motivos para a não adesão da população a equipamentos de saúde sexual

2.4. Os CTAs existentes

Ciência, educação e cultura

3.1. Centro de Cultura e Saúde Sexual

3.2. Proposta de localização

Estudo de casos

Construção do programa

Análise da área

6.1. O Terreno e a relação com entorno

6.2. O Projeto

Considerações finais

Bibliografia

15 17 20 23 27 29 31 32 34 39 41 43 47 61 65 68 78

12
120 01 02 03 04 05 06
118

RESUMO

Esse TCC traz a importância de abor dar dois assuntos difíceis e cheios de tabus em nossa sociedade: sexo e sexualidade. Entendendo que só através da educação so mada a testagem e métodos de proteção po deremos construir uma sociedade preocupada em diminuir os números de novos casos de Infecções Sexualmente Transmissíveis (ISTs).

A partir de todo o contexto histórico e social e os estudos desenvolvidos, se pretende pro jetar um Centro de Cultura e Saúde Sexual no bairro de Santa Cecília, ao lado da esta ção de metrô Marechal Deodoro; procurando alinhar um importante instrumento de testa gem e prevenção - CTA - com o novo Museu da Sáude Sexual que pretende valorizar as populações que por anos foram estigmatiza das pelos preconceitos acerca das ISTs, além de ter espaços expositivos para conscienti zar as pessoas sobre a importância do tema.

Procurando mostrar como a arquitetura pode ser um grande agente de transformação so cial, a partir da criação espaços pensados para os usuários, sendo humanizados e acolhedo res e que possam influenciar para que mais pessoas procurem saber sua sorologia atual e se prevenir de forma gratuita de ISTs/HIV.

Palavras chaves: Centro de Cultura e Saúde Sexual, ISTs e Santa Cecília

INTRUDUÇÃO

12

Esse trabalho de TCC pretende ensaiar um Centro de Cultura e Saúde Sexu al em São Paulo, no bairro de Santa Ce cília, segundo bairro com mais casos de ISTs/ HIV por 100 mil habitantes na cidade.

Para isso, a pesquisa foi dividida em 06 eta pas, que traz o leitor a ter o maior enten dimento do assunto, sendo assim, a cons trução da pesquisa se voltou para artigos científicos, reportagens com médicos es pecialistas no cuidado à saúde sexual.

O projeto pretende mostrar todo o proces so histórico e cultural que contribuiram para o aumento de novos casos de ISTs no Brasil, bem como mostrar a importância que o CTA (Centro de Testagem de Aconselhamento) teve e tem para a prevenção e tratamento de Infec ções sexualmente transmissíveis em nosso país.

É importante frisar que o novo equipamento dará uma atenção prioritária para as popula ções , que historitamente foram marginalizadas no país pelos preconceitos e tabus relaciona das ao tema: população negra e periférica, LGBTQIA+, pessoas em situação de rua, pro fissionais do sexo e pessoas que vivem com ISTs. Porém, entendendo que o Centro de Cultura e Saúde Sexual não deve se limitar apenas a esses segmentos populacioanis, mas sim, trazer para discussão todas as pessoas de nosso sociedade.

Atravês da junção de uma nova unida de do CTA com a criação de um Museu da Saúde Sexual, poderemos ter uma trans formação social para diminuição de into lerâncias e preconceitos, o entendimento da importâcia da prevenção, e a interrup ção dos aumentos de casos em São Paulo.

13

1. ENTENDENDO O CONTEXTO HISTÓRICO DO HIV NO BRASIL

Na década de 80, a partir de um comunicado oficial do Center of Disease Control (CDC), o mundo pôde ter notícias de uma nova doença ainda desconhecida chamada de AIDS, com forte índice de morte e transmissão, vinculada a um grupo especifico: de homens que fazem sexo com outros homens (HSH); trazendo um cenário deturpado e carregado de concepções de cunho moral. Em pouco tempo, novos casos começaram a aparecer em outros países, como França, Bélgica, Suíça, Alemanha e Espanha. 1

No Brasil, os primeiros casos observados foram no Estado de São Paulo em 1983, durante o 2° Congresso Brasileiro de Infectologia com uma abordagem preconceituosa, proibindo a doa ção de sangue por homossexuais. O assunto foi tratado com seriedade, considerando uma nova epidemia, somente no segundo semestre de 1983, já que o Ministério da Saúde, inicial mente, não tomou nenhuma medida para con trole e prevenção de novos casos da doença, por considerar poucos casos e dar prioridade para outras doenças da época, como a Malá ria, Febre Tifoide e Hanseníase.

Em São Paulo, um grupo de homossexuais pressionaram para elaboração de um atendi mento especializado para cuidar dos casos de HIV, tendo apoio do então Secretário da Saúde, João Yunes, começando assim, uma série de diretrizes com o foco na diminuição de casos, estabelecendo grupos de apoios, assistência ambulatorial e locais para internação. Instituin do o Hospital Emilio Ribas como um Centro de Referência de AIDS e de capacitação de profis sionais para o todo o pais; por ter conseguido um conhecimento inicial sobre a doença de forma substancial. 2

1. MONTENEGRO, H e col. Organização e planejamento para a criação do centro de testagem e aconselhamento para HIV., 2020

2. CAMPANA, Pedro. “Aids no Brasil: do primeiro caso à estruturação das políticas de saúde”. 2019

15

Em 1985 foi criado um departamento apenas para AIDS, onde Lair Guerra, bióloga recém -chegada dos EUA após uma pesquisa sobre clamídia, representou o pais na Primeira Con ferência Internacional de AIDS em Atlanta, rei vindicando ajuda financeira aos países de baixa renda para combater o HIV, conseguindo in centivo para criar um setor exclusivo para tratar sobre ISTs/ AIDS e Hepatites Virais com ajuda do movimento homossexual e de Aids, univer sidades, membros das secretarias estaduais de saúde, membros de Igrejas e pessoas de diver sos ministérios para ser consultado para definir novas estratégias de controle a partir do SUS.

Segundo o documentário “Carta além dos mu ros”, no ano de 1986, com agravamento da epi demia, a repressão sobre o sexo cresceu dema siadamente, o cenário antisexo se abateu sobre as políticas públicas colocando a relação sexual como algo nocivo. Com a ajuda do Grupo de Apoio à Prevenção da AIDS (GAPA), foi criado a primeira campanha nacional de incentivo ao sexo seguro, onde era possível ver no cartaz “transe numa boa” (aqui dando a ideia que o problema estaria no sexo desprotegido e não na relação em si). Porém, a Conferência Nacional dos Bis pos do Brasil (CNBB) fez pressão para censurar a campanha, entendendo que o uso de preservati vos era errado segundo os seus preceitos morais.

“O papel da Igreja (Católica) nessa história toda, foi um papel criminoso, [...] se você tem uma epidemia de uma doença sexualmente transmissível, potencialmente fatal. E naque la época, universalmente fatal, e uma insti tuição religiosa diz que é contra o uso da ca misinha. Isso é um crime!” (VARELLA, 2019)

Em 1996, com a pressão de ONGs e apoio da sociedade civil, houve a aprovação da lei N° 9.313, conhecida como “Lei Sarney” que obrigava o Governo Federal a financiar a pro dução nacional dos antirretrovirais, se basean do nos dados de eficácia relatados na Confe rência Internacional em AIDS do mesmo ano. Isso possibilitou dar uma chance de sobrevida para os pacientes, mudando o quadro da AIDS de incurável e letal para uma doença crônica, nesse momento o Brasil consegue se tornar o país mais bem-sucedido com programas para diminuição da doença e, sendo o único país no mundo a disponibilizar os medicamentos de for ma gratuita a todos que necessitam pelo Siste ma Único de Saúde. 3

1. MONTENEGRO, Hercélia; e col, 2020 3. Documentário “Carta para além dos muros” (CANTO,2019)

16
Imagem 1| Cartaz “Transe Numa Boa” em 1986. Fonte | Grupo de Apoio à Prevenção da AIDS (GAPA). Imagem 2 | “Especialista encara AIDS como tratável”. Fonte | Acervo digital Folha de São Paulo, 03 de julho de 1996.

1.1. CONTEXTO ATUAL DE NOVOS CASOS DE ISTS NO BRASIL

Atualmente, o Brasil tem um protocolo avançado de tratamento, disponibilizando gratuitamente preservativos e lubrificantes, remédios para tra tar ISTs, PEP (Profilaxia de pós exposição), PREP (profilaxia de pré infecção), vacinação para HPV, campanhas de combate as doenças e de prevenção. Entretanto o descuido, a falta de informações e desigualdade vem fazendo com que os números de ISTs venham aumentando.

No caso da sífilis adquirida, só no primei ro semestre de 2021, foram contabilizados 64 mil novos casos pelo Ministério da Saú de. Em relação à Hepatite, os dados do Mi nistério da Saúde mostram que entre 1999 a 2018 mais de 632 mil casos foram notificados.

Já o HIV, de acordo com o Programa Conjunto das Nações Unidas sobre HIV/AIDS (UNAIDS) entre 2010 e 2018 o país teve aumento de 21% de casos, enquanto o resto do planeta teve queda de 16%, de acordo com o Ministério da Saúde de 2007 a 2021 foram notificados mais de 380 mil novos casos no país; sendo 69,8% em homens e 30,2% em mulheres, tendo a maior incidência de casos (52,9%) entre pes soas de 20 a 34 anos. (Outras ISTs como por exemplo, clamídia e gonorreia não são com pulsoriamente notificadas, dificultando o en tendimento completo de novas transmissões).

Podemos citar como um dado relevante, o cres cimento de HIV e Sífilis em grávidas na cidade de São Paulo com dados coletados do boletim epi demiológico de São Paulo de 2021, entre 2010 a 2020 houve um crescimento de 36% de casos de HIV e no caso da Sífilis foi percebido um crescimen to de 13,2% em relação a 2019 (Gráficos 1e 2).

17

Gráfico 1 | Casos notificados e taxa de detecção de sífilis em gestante (TDSG) por 1.000 mil nascidos vivos (NV) segundo ano de diagnóstico, São Paulo, 2010 – 2020.

Fonte | SINAN/ Núcleo de Vigilância de Sífilis/DVE/COVISA.

Gráfico 2 | Número de casos notificados de gestantes/ parturientes/ puérperas HIV positivo e taxa de detecção (TD) por 100 mil habitantes no ano, Município de São Paulo, 2010 – 2020.

Fonte | SINAN/ Núcleo de Vigilância de Sífilis/DVE/COVISA.

18

É importante lembrar que o Brasil se comprome teu com a Organização Panamericana de Saúde (OPAS), com aval da UNAIDS em 2014, a cum prir as metas “90-90-90” que procurava levar testagem e tratamento para a grande maioria das pessoas que vivem com HIV e reduzir a carga de viral em seus organismos à níveis indetectáveis em 90% da população até o final de 2020, para que se mantenham saudáveis e evitem a propagação do vírus , assim podendo vislumbrar um possível fim da epidemia de AIDS no mundo até 2030. 4

Contudo, conforme o Departamento de Doen ças de Condições Crônicas e Infecções Sexu almente Transmissíveis do Ministério da Saúde, o Brasil não conseguiu bater essa meta, hoje 920 mil pessoas vivem com HIV. Dessas, 89% foram diagnosticadas, 77% fazem tratamento com antirretroviral e 94% estão em tratamen to e não transmite o vírus para outras pessoas.

De acordo com o médico infectologista José Valdez Madruga, coordenador do comitê de Aids da Sociedade Brasileira de Infectologia, um dos principais motivos para o não cum primento das metas são as relações mono gâmicas em que parceiros não utilizam mé todos de prevenção, outro motivo é a falta de campanhas sobre a prevenção combinada.

“Muitas vezes, são relações monogâ micas só de um lado; há muitos casos de pessoas que se contaminaram dessa forma. São casais homossexuais e he terossexuais que até começaram a usar preservativo quando se conheceram e que, à medida que vão aprofundando o afeto, acham que estão protegidos —até o momento em que descobrem que um dos parceiros se contaminou ou a contaminou” (MADRUGA, 2020)

Mesmo tendo oferta gratuita de preservativos, vacinas e medicamentos que previnem e com batem as ISTs por meio da Prefeitura de São Paulo, segundo Daniel Suslik, coordenador da campanha #VemProUro e da Área de Ado lescência da Sociedade Brasileira de Urolo gia (SBU), o assunto de ISTs sempre é coloca do como problema do outro, criando um fator chamado por ele de “fadiga do preservativo”; onde os homens sabem da sua necessidade e importância, mas optam por não se prevenir.

Por outro lado, os adolescentes estão inician do sua vida sexual cada vez mais novos, um levantamento realizado para a campanha #VemProUro mostra que 15% dos jovens de 12 a 18 anos já tiveram iniciação sexual, des tes 44% não usaram preservativos na primeira relação e 35% não usam ou raramente usam preservativos. Para piorar a situação 38% dos meninos admitem não saber colocar o preser vativo e 44% não conversam sobre esse tema em casa ou nas escolas por causa do tabu re lacionado ao sexo, todos esses fatores associa dos contribuem para que novos casos se multi pliquem pela cidade colocando as pessoas em risco de desenvolver problemas graves de saúde.

19
4. COORDENADORIA DE ISTs DE SÃO PAULO, 2021

1.2. ESTIGMA E PRECONCEITO COM AS POPULAÇÕES MAIS VULNERÁVEIS

É necessário se ter em mente que os primeiros pacientes com casos de HIV/AIDS, noticiados nos EUA, eram homens que se relacionavam com ou tros homens (HSH); isso fez com que esse grupo ficasse marcado e estigmatizado, a doença foi divulgada com apelido de “gaycompromisesyn drome”. Já no Brasil era possível ver em jornais e revistas apelidos como “peste gay” ou “câncer rosa”, tratando do tema com sensacionalismo e causando medo e agressividade da sociedade perante a população mais vulnerável, contribuin do ainda mais para a opressão contra essa po pulação. 2

O moralismo instituído contribuiu para que o termo “grupo de risco” se espalhasse, estigmati zando ainda mais os HSHs, travestis, mulheres e homens trans, usuários de drogas injetáveis e pro fissionais do sexo, os deixando mais vulneráveis para a epidemia de HIV e de outras ISTs. Para o médico infectologista Ricardo Vasconcelos a “Ho mofobia, Transfobia, Machismo, Racismo e Desi gualdade Social são coisas que também transmi tem HIV, não é só o sexo sem camisinha”. 5

2. CAMPANA, 2019

5. FERNANDES, Nathan. ”Síndrome do preconceito: como o estigma contribuiu para o aumento da epidemia de aids”. 2017

20
Imagem 3 | “Peste Gay já apavora São Paulo”. Fonte | Jornal Noticias Populares, 12 de junho de 1983. Imagem 4 | “Aids é o castigo de Deus, porque bicha é uma raça desgraçada”. Fonte | Jornal Luta Democrática, outubro de 1983.

Gráfico 3 | Percentual de casos notificados de HIV em pessoas com 13 anos ou mais de idade de acordo com exposição hie rarquizada por ano de diagnostico, Munícipio de São Paulo, 1980 a 2020.

Fonte | SINAN – DVE/ COVISA, Coordenadoria de IST/ Aids, Fundação SEADE.

Gráfico 4 | Taxa de detecção (TD) de HIV em pessoas de 15 anos ou mais de idade do sexo masculino das raças/cor branca, preta e parda, Munícipio de São Paulo, 2010 a 2020.

Fonte | SINAN – DVE/ COVISA, Coordenadoria de IST/ Aids, Fundação SEADE.

21
Bissexual Hemofílicos Sem informação Homossexual Heterossexual UDI Transfusão Transmissão Vertical

Podemos confirmar essa afirmação a partir dos dados do boletim epidemiológico de HIV/AIDS da prefeitura de São Paulo de 2021, no qual encontramos as informações que homens e mu lheres pretas acabam tendo um número de casos muito maior comparado com brancos. Em 2020 a taxa de transmissão de HIV por 100 mil habi tantes em brancos era de 17, em pretos 57,1 e pardos 33,6. Já para transmissão de Sífilis adqui rida a taxa de transmissão por 100 mil habitan tes de pessoas autodeclarados pardas ficou em 41,6, em brancos 37,4 e em pretos 14,2. Desde 2010 a taxa de infeção em pardos vem crescen do, (aqui é importante ressaltar que o Movimento Negro considera pretos e pardos a mesma parce la populacional para leitura dos dados cientifico, em dissonância com IBGE).

Analisando em contexto geral os dados, per cebemos que os homens que fazem sexo com homens possuem maior taxa de infecção de HIV com 60,9%, 24,5% em heterossexuais, 1% usuário de drogas injetáveis (UDI) e 0,3% via transmissão vertical (de mãe para o filho). Vale ressaltar a falta de dados reais sobre a popula ção trans e travesti, pois o sistema de gerencia mento de dados obriga a classificação binaria entre homens e mulheres. 4

O preconceito além de deixar marcas emocio nais, acaba fazendo com que pessoas que vivem com ISTs/ HIV tenham dificuldades em vislumbrar um relacionamento e ou filhos, isso porque a falta de informação à população no geral, cria um dis tanciamento e exclusão sobre essas pessoas. Po rém, a partir de dois importantes estudos norte-a mericanos (HPTN 052 e PARTNER) foi constatado que o uso contínuo de antirretrovirais permite que parceiros possam ter relações sexuais sem cami sinha, desde que alinhado com outros tipos de proteção, já que a longo prazo os medicamentos deixam o paciente com vírus indetectável em seu organismo (sem possibilidade de transmissão),

4. COORDENADORIA DE ISTs DE SÃO PAULO, 2021

permitindo uma vida normal para casais soro discordantes e permitindo uma gravidez natural, sem a preocupação de transmissão vertical para o bebe.

No entanto, os estigmas e a discriminação criam obstáculos entre prevenção e tratamento em relação as ISTs, criando um medo de vio lência e exclusão em pessoas com suspeita de sua sorologia; cuja a sociedade no geral cria uma falsa ligação entre o estado sorológico com o gênero, orientação e práticas sexuais. Influenciando para que esse indivíduo - dentro do grupo marginalizado – opte por não realizar testes ou oferecer preservativo para o parceiro da relação, com medo de suspeitarem de sua sorologia. Assim dizendo, essa problemática só conseguirá se resolver quando assunto sexo e sexualidade for discutido sem preconceitos, amaras ideológicas e moralismo, para todos os segmentos populacionais e à todas as idades.

22

1.3. ESTRATÉGIAS DE COM BATE A ISTS NO MUNICÍPIO DE SP ATUALMENTE

Segundo o relatório de “diretrizes para im plementação de cuidados de IST/HIV/ AIDS de 2017”, a cidade de São Paulo defende a prevenção combinada como ferramenta para enfrentar e freiar os casos de ISTs e HIV, dessa forma, deixa de colocar o preservativo como principal método e amplia-se a gama de op ções para prevenção, oferecendo mais alterna tivas científicas eficazes. Ou seja, na prática de ve-se utilizar um ou mais métodos de proteção a depender do tipo de relação, do parceiro e do momento de vida de cada indivíduo. Como podemos observar na (Imagem 5), ficam evi dentes as diferentes estratégicas em um círculo representando que não existe um método me lhor que a outro. Esses métodos são ofertados em UBS, CTA – Centro de testagem e aconse lhamento e SAE – Serviço de Assistência espe cializada.

23
Imagem 5 | Mandala de Prevenção Combinada. Fonte | DIAHIV/SVS/MS.

As redes de prevenção de ISTs se organizam em 03 etapas:

- Intervenções biomédicas (aquelas estratégias que utilização por meio de remédios e vacinas para prevenção, ou seja, preservativos e lubrifi cantes, PREP – Profilaxia de pré exposição, PEP – Profilaxia de pós exposição, Vacina para HPV e Hepatite B, tratamento para ISTs e interrupção da transmissão vertical);

- Intervenção comportamental (aquelas que procuram reduzir casos por meio de mudança de comportamento do indivíduo ou da comu nidade, ou seja, incentivo à testagem, redução de danos para usuários de álcool e drogas, adesão ao uso de preservativos, estratégias de comunicação e educação para base comunitá ria e campanhas de vacinação);

- Intervenção estrutural (estratégia focado para população mais vulnerável por questões socio culturais e pessoas que sofrem preconceito e estigma pela sociedade, ou seja, promoção dos direitos humanos, enfrentamento do machismo, LGBTfobia, racismo e sexismo procurando aca bar com a exclusão desses indivíduos.

É necessário o reforço à Prevenção Combinada para segmentos populacionais vulneráveis de nominados de populações-chave e populações prioritárias para ações de prevenção, ressaltan do que esses conceitos nada têm a ver com os antigos conceitos de grupo de risco ou compor tamento de risco.

A nova denominação entende e reconhece to dos os aspectos sociais e estruturais que colo cam essas populações, em situação de maior vulnerabilidade e dificuldade de acessos aos espaços de saúde, e não somente os indivíduos e seus comportamentos, são elas: a população LGBTQIA+, usuários de droga, trabalhadores do sexo, população negra, população jovem, pessoas em situação de rua e população indí genas, podemos notar essa nova organização atravês das imagens 6 e 7.

24

Imagem 6 | Populações-chave. Fonte | DIAHIV/SVS/MS.

Imagem 7 | Populações prioritárias. Fonte | DIAHIV/SVS/MS.

25

2. CENTRO

DE TESTAGEM

E ACONSELHAMENTO (CTA) NO BRASIL

Com o aumento de novos casos de Aids e o preconceito relacionado a doença, uma das estratégias para tentar diminuir as novas infec ções foi a adoção do então Centro de Orienta ção e Aconselhamento Sorológico (COAS) em 1988, posteriormente chamado de Centro de Testagem e Aconselhamento (CTA), tendo ob jetivo de testar de forma gratuita para HIV e Sí filis, sempre de forma confidencial e anônima, oferecendo aconselhamentos para indivíduos em situação de risco. 6

O segundo CTA do país a ser implantado em 1989, foi o CTA Henfil no município de São Paulo, tendo recebido o nome em homenagem ao cartunista Henrique de Souza que morreu em decorrência da Aids em 1988, localizado inicialmente na Galeria Prestes Maia, local com muito fluxo de pessoas e de fácil acesso e depois redirecionado para Av. Libero Badaró, 144. Essa unidade CTA é um marco por ser o primeiro equipamento de gestão municipal a oferecer testagem e aconselhamento para população, além de trazer aulas de prevenção para população vulnerável e considerado refe rência de tratamento para os outros estados. 7

27

6. BENZAKEN, A e col. Diretrizes Para Organização Do Cta No Âmbito Da Prevenção Combinada nas Redes De Atenção À Saúde, Brasília. 2017. 7. Documentário “30 anos CTA Henfil” (MALAVOLTA, PÁSSARO, 2020) Imagem 8 | Registros da pré-avaliação com usuários do antigo COAS. Fonte | Imagem tirada do documentário: “30 anos CTA Henfil”.

O Ministério da Saúde, dirigiu a principal reco mendação para implementação do CTA, sen do em locais com grandes fluxos de pessoas, fisicamente autônomas em relação a outros equipamentos de saúde e contando com uma equipe própria de multiprofissionais. O equipa mento deveria se voltar, prioritariamente, para as populações mais vulneráveis: homossexuais, profissionais do sexo e usuários de drogas in jetáveis. Com a função principal de acolher e prevenir as novas infecções a partir da distri buição de insumos, realização de diagnósticos precoces para barrar a cadeia de transmissão ou encaminhar as pessoas infectadas para os serviços especializados (SAE). 6

Em 1990, os CTAs se tornaram referência uni versal de testagem e aconselhamento para toda a população. É importante frisar que a testa gem para as Hepatites virais, só foram incluí dos em 2004, causando uma restruturação na forma de combate e prevenção, novos cursos para capacitação dos funcionários, além novas medidas de interpretação dos marcadores so rológicos. 6

6. BENZAKEN, A e col, 2017

Passados 30 anos de epidemia, e com a in fecção de HIV sendo considerada doença crô nica, tendo em paralelo a melhora de acesso a métodos de tratamentos, houve a mudança na forma de prevenção; não focando somente em ações de tratamento, mas, sim, promoção de qualidade de vida e prevenção a essas ISTs, observando a necessidade de criar estratégias para atender e dar uma qualidade de vida para Pessoas vivendo com HIV (PVHIV). 6

Os CTAs são equipamentos estratégicas para fortalecer o combate a ISTs através da preven ção combinada, focando sua atenção a cada indivíduo. Em 2018, o Estado de São Paulo foi o pioneiro do país, ao fazer a inclusão da PREP, e posteriormente, PEP nos CTAs - antes era restrita apenas para os SAEs - possibilitan do, assim, mais acesso a prevenção. Como esses medicamentos só podiam ser prescritos por médicos, houve a necessidade de uma res truturação física dessas unidades, aumentando a quantidade de consultórios, salas de medica mentos, reorganização de fluxos e protocolos, capacitação de funcionários, criação de espa ços de encontro de educação sexual contínua. 8

8. SILVA. A; e col. Relatório de Gestão 20172020.

28
Imagem 9 | Registros internos do antigo COAS, mostrando cartazes informativos sobre os protocolos da unidade. Fonte | Imagem tirada do documentário: “30 anos CTA Henfil”.

2. 1. DIFERENTES

DE CTAS

ARRANJOS

Com a necessidade de incorporar as ações de Prevenção Combinada para combater a epidemia de HIV e diminuir casos de Hepati tes Virais e Sífilis, nos CTAs, o Departamento de Vigilância, Prevenção e Controle das ISTS, do HIV/Aids e das Hepatites Virais (DIAHV), do Ministério da Saúde começou em 2016 uma reorganização e adoção de diferentes arranjos para cada necessidade de localidade e popula ção. Em todos, o foco principal de atendimento é voltado para a população chave e prioritária.

O primeiro é o CTA tipo 1, tendo papel estra tégico na ampliação do diagnóstico e atenção primária. Possui o dever de realizar atividades de prevenção, entrega de insumos de proteção e realizar testagem rápida, estabelecendo rela ção com a rede laboratorial.

O CTA tipo 2 é organizado para realizar ati vidades preventivas, necessita de pelo menos um profissional médico para realizar apoio ma tricial, fazer vinculação de casos positivos de ISTs e tratamento para elas. Além disso, ela faz encaminhamentos para testes adicionais rela cionadas as infecções e realiza a PREP e PEP.

Já o CTA tipo 3, tem a função de integrar ativi dades preventivas, assistenciais e educacionais de forma permanente, podendo ter o papel for mador da rede de saúde e ampliando a gama de diagnósticos para HIV, Sífilis e Hepatites, bem como de seus tratamentos. Alem disso, re alizam trabalho de campo com as populações mais vulneráveis, promovendo assim, educação entre pares (pessoas homossexuais tem o apoio de funcionários homossexuais, transexuais tem o apoio de funcionários transexuais), permitin do a anexação de outras atividades relaciona das a saúde sexual, à critério da unidade. Na proxima página, indicamos as atribuições com pletas de cada tipo de CTA. 6

29

6. BENZAKEN, A e col, 2017

Tabela 3 | Perfil de cada tipo de CTA. Fonte | DIAHV/SVS/MS.

30

2. 2. O CTA NA ESTRUTURA DAS REDES DE ATENÇÃO BÁSICA

O CTA e o SAE, são os dois equipamentos pú blicos de saúde direcionados para o combate e prevenção de ISTs/ HIV. Enquanto o CTA tem a missão de prevenção, tratamento e educação sobre infecções sexuais, o SAE deve receber os casos positivados vindos dos CTAs ou UBS (Uni dade Básica de Saúde) e disponibilizar apoio psicológico e acompanhamento médico para o tratamento de antirretrovirais para Pessoas Vivendo com HIV (PVHIV). Ambos os equipa mentos têm o dever de prestar atenção ma tricial para as outras redes de saúde, ou seja, participar do processo construtivo de práticas para melhor a integração de informações rela cionadas ao tema. 6

As diretrizes de organização das Redes de Aten ção Básica (RAS) foram estabelecidas em 30 de dezembro de 2010, se baseando em uma con cepção poliárquica com respeito as diferenças funções de saúde. Nesse modelo, a Atenção Básica é uma porta preferencial, porém, não deve ser a única ou rígida, sendo capaz de ter permeabilidade dos usuários por todos os lo cais de necessidades. 6

É importante que as Organizações Não Go vernamentais (ONGs) que tratam dos temas de ISTs, assim como as Casas de Acolhimentos LGBTQIA+, Centros de Referência e Diversida des e espaços de hormonioterapia para transe xuais e travestis estejam tendo conversas diretas com essas unidades, afim de alinhar os pensa mentos e contribuir para a diminuição de casos na cidade de São Paulo. 8

31

6. BENZAKEN, A e col, 2017 8. SILVA. A; e col. Relatório de Gestão 20172020

2.

3. MOTIVOS PARA A NÃO ADESÃO DA POPULAÇÃO A EQUIPAMENTOS DE SAÚDE

SEXUAL

Infelizmente, a população no geral e principal mente as populações mais vulneráveis às infec ções sexualmente transmissíveis, por diversos motivos, tendem a não procurar os serviços de saúde sexual, como o CTA. Alguns fatores corroboram para o não acesso a esses equipa mentos, como o medo do término da relação caso um dos parceiros tenha a vontade de rea lizar um teste, medo de ser reconhecido dentro desses ambientes por algum amigo ou familiar, medo do resultado dos exames, falta de flexi bilidade nos horários de atendimentos dessas unidades, atendimentos rígidos sem pensar in dividualmente em cada necessidade de atendi mento. 6 e 9

Um fator muito importante para essa dificulda de de acesso é a falta de orientação por par te de alguns profissionais que acabam tendo ações discriminatórias e julgando os pacientes, que na maioria das vezes já são grupos margi nalizados pela sociedade.

Para a população transexual e travesti, por exemplo, um dos fatores que mais desestimu la a continuação nessas unidades é a ligação imediata que alguns profissionais da saúde fa zem entre sua identidade de gênero e vulnera bilidade a ISTs/ HIV, as reduzindo e colocando em mais um lugar de estigmatização. Outro fator a ser observado é a falta de profissionais bem capacitados para informar sobre como essas terapias antirretrovirais (TARV) funcionam associado ao tratamento hormonal – sem pre judicar a continuidade da hormonioterapiacriando mais uma barreira para a prevenção. 10

6. BENZAKEN, A e col, 2017 9. ARAUJO, 2006 10. SOARES, Brandão, 2013

32

Já no caso das mulheres grávidas podemos perceber o sentido inverso, por muitas vezes, com a deficiências em atendimento para grávi das no Brasil. Por exemplo, muitos profissionais não realizam a testagem para HIV e os que re alizam durante o pré-natal na Atenção Básica (AB), não possuem experiência necessária para apoio emocional relacionado a positividade dos diagnósticos para HIV, gerando medo e constrangimento às futuras mães e seus par ceiros (as), levando-as a utilizar os serviços do CTA como forma de assistência e por sua vez causando congestionamento nas unidades.

“[...]. Você já está sabendo do resultado do seu exame do HIV? Eu disse: “Não”.

Ela pegou e disse: “Oh, o seu teste do exame do HIV deu positivo”. Eu disse: “Como é que deu? ”. Ela disse: “É por que deu 90%”. [...] eu fiquei sozinha pen sando o que ia ser da minha vida. Não me falou mais nada, pegou foi embo ra [...]”. (Margarida flor, HIV positivo).

“[...] O aconselhamento na verdade não existe. A gente acaba não fazendo. Não sei se é falta de conhecimento dos profis sionais, ou é falta de ambiente para você fazer isso. [...]. Não há tempo para você explicar para ela o exame, se ela concor dar ou não. [...] é uma admissão cheia, tem várias pacientes, e que você tem que atender rápido”. (Médica especialista em ginecologia e obstetrícia do hospital). 11

33
11. FONSECA, IRIANT, 2012

2.4. OS CTAS EXISTENTES

Através das informações da Coordenadoria de HIV/Aids foi possível elaborar um mapeamento dos locais das atuais unidades do Centro de Testagem e Aconselhamento.

Hoje, no município de São Paulo existem 10 unidades distribuídas por todas as regiões, sen do a maior parte implantada na região leste com 5 unidades. Observando as condições das unidades atuais foi possível perceber que a maioria dos espaços acabam sendo rema nejados de outros serviços públicos, e alguns deles, são pouco pensados para necessidade diária de cada unidade, o que pode dificultar o fluxo dos pacientes, a ventilação e iluminação necessária, que o equipamento de saúde deve ter para dar uma condição melhor de trabalho para os funcionários, e para os pacientes se sentirem mais acolhidos, mesmo assim, é im portante frisar que os funcionários dessas uni dades procuram dar o melhor atendimento e apoio aos pacientes.

34
10 12 11 13 10
Imagens 10,
11, 12
e
13
| Fachada da unidade CTA Sergio Arouca, Pirituba, Parque Ipê e Cidade Tiradentes, respectivamente. Fonte | Google Maps.

Mapa 1 | Mapeamento das unidades de CTA no Município de São Pulo, 2022.

Fonte | Produzido pelo autor com dados do Coordenadoria de IST/Aids.

35

Como já mencionado, a CTA Henfil é a pri meira unidade criada em São Paulo, e precisou passar por reformulações internas a partir da necessidade de se introduzir a PEP e PREP como parte da prevenção combinada nos Centros de Testagem e Aconselhamentos, além disso, a unidade teve uma proposta de modernização em toda a parte interna, trazendo cores vivas, desenhos e grafites com foco na população jo vem, sendo a parcela da população com alta prevalencia nos atendimentos dessa unidade. 7

“A gente tinha uma unidade, que era basi camente direcionada para testagem e pre venção. Então, introduzir uma tecnologia de prevenção com necessidade de atendi mento médico alterou, bastante, o funcio namento da unidade tanto se a gente pen sar em processos de trabalhos, quanto a estrutura física mesmo. A gente teve que re estruturar todo o modelo de sala de coleta, criar novos consultórios médicos com toda estrutura necessária para o atendimento.” (TALMANY LIMA, ex gerente do CTA Hen fil, 2017 -2019)

Imagem 14 | Fachada da unidade CTA Henfil, R. Líbero Badaró, 144 - Centro Histórico de São Paulo.

Fonte | Agencia de notícias de Aids

Imagens 15 e 16 | Registros internos da sala de espera da unidade Fonte | Imagem tirada do documentário: “30 anos CTA Henfil”.

A unidade de CTA Santo Amaro estava implan tada junto com o Centro de Referência em in fecções de ISTs (CR) e desde o dia 30 de no vembro de 2017, passou a funcionar em outro endereço, possibilitando maior independência para os serviços prestados. Ele passou a fun cionar no edifício que já abrigava o Centro de Cidadania da Mulher (CCM) e por ter passado por reformas encontra-se em bom estado de conservação.

A partir da visita realizada para estudo, perce bemos alguns problemas estruturais e de fluxo, bem como algumas questões que podem afas tar a população de maior vulnerabilidade des ses espaços. Para conseguir acessar o interior da unidade foi necessário tocar uma campai nha e esperar que um funcionário destrancasse o portão,

36
7.
14 15
Documentário “30 anos CTA Henfil” (MALAVOLTA, PÁSSARO, 2020)
16

podendo trazer um desconforto a um usuário que está constrangido por estar usando esse serviço e precisa ficar esperando do lado de fora. A dificuldade de identificar essa unida de, foi outra questão analisada, porque possui apenas uma pequena placa com o nome da instituição.

Na área interna, a sala de espera possui boa iluminação e ventilação, porém com corre dores estreitos para passagem dos usuários e funcionários. Há dificuldade em se entender os caminhos que os usuários precisam fazer para chegar aos sanitários ou consultórios, por exemplo, por falta de placas de sinalização.

As salas de acolhimento – que precisam ser espaços reservados e privativos – encontramse em um grande ambiente com divisórias que não vão até o teto, promovendo vazamento

podendo inibir o paciente de dividir assuntos pessoais e importantes para a consulta com o profissional.

De acordo do a Divisão de informação, Co municação e Pesquisa, a Rede Municipal Es pecializada em Aids (RME IST/AIDS) definiu em 2019 uma reformulação na identidade visual das partes externas e internas, adotando a co loração lilás nas paredes e placas informativas, representando o acolhimento a população LGBTQIA+ (cor presente na bandeira do mo vimento), já que é uma das populações mais vulneráveis as infecções sexuais. 9

37
9. SILVA. A; e col. Relatório de Gestão
2017- 2020
Imagem 17 | Fachada da unidade CTA Santo Amaro, Av. Mário Lopes Leão, 240 - Santo Amaro. Fonte | Google Maps.
17 18
Imagens 18 | Registros internos da sala de espera da unidade. Fonte | Secretaria de Saúde, notícias, Prefeitura de São Paulo.

3. CIÊNCIA, EDUCAÇÃO E CULTURA

As análises trazidas por esse trabalho, sobre o histórico de uma das pandemias que mais marcou nosso país (HIV) e de como a socie dade brasileira estigmatizou populações mais vulneráveis, nos levou ao entendimento de que São Paulo, mesmo tendo um grande instrumen to de combate à ISTs como o CTA, não está conseguindo diminuir os números de novas in fecções.

Nos parece certo concluir que o problema re lacionado as ISTs vai além do combate a mul tiplicação dos vírus e o incentivo ao uso de preservativos, está totalmente relacionado com a forma conservadora e preconceituosa que o Brasil insiste em discutir o sexo e a sexualidade.

Observando os números dos países latinos vi zinhos fornecidos pela ONU, percebemos que a maioria teve suas taxas de infecções em 8 anos diminuídas, como: El salvador (-48%), Ni carágua (-29%), Colômbia (-22%) e Equador (- 12%), enquanto o Brasil foi o único que ob teve crescimento expressivo de 21% de novas infecções. Nos mostrando que para conseguir vencer essas epidemias de Sífilis, Hepatites, HIV e outras, devemos pensar em novas estratégias para combater não só novos casos das doen ças, mas sobretudo a epidemia da desinforma ção, da violência contra a população mais vul nerável e o preconceito que contribuem para o aumento de casos.

“Para alcançar um programa mais forte, acredito que o desafio do Brasil reside em adaptar uma resposta mais focada à epidemia com a introdução de abor dagens inovadoras, mantendo uma pla taforma sobre direitos humanos onde o estigma e a discriminação relacio nados ao HIV são claramente aborda dos. Também será importante trabalhar ainda mais de perto com as comuni dades mais afetadas pela epidemia” (Diretor regional da UNAIDS para Amé rica Latina e Caribe, 2020)

39

Vale ressaltar que o Museu da Diversidade Se xual - que se localizava na estação República do metrô, próximo a estação Marechal Deo doro - era único equipamento cultural da ci dade que valorizava e dava espaço para po pulação LGBTQA+ e que já tiveram algumas exposições relacionados a história do HIV e seu combate. Entretanto, por questões políticas, ideológicas e preconceituosas no dia 30 de abril de 2022 o museu foi fechado por tempo indeterminado, correndo o risco de ser fecha do permanentemente, contribuindo para que a importante discussão sobre sexo, sexualidade e prevenção seja cada vez menos colocado em pauta na sociedade, favorecendo o aumento de caso de IST/ HIV.

Dessa forma surge a necessidade de alinhar a ciência, educação e cultura a fim de vislumbrar uma sociedade mais empática com as pessoas que vivem com HIV e mais aberta para discutir sobre o tema; pois só dessa forma conseguire mos tratar com seriedade os assuntos, como: ensino de prevenção as ISTs para aos jovens, diminuição de gravides na adolescência, dimi nuição de ISTs, interrupção de mortes de doen ças que possuem tratamentos, tratamentos cor retos para as pessoas positivadas com alguma IST e prevenção de gravides indesejadas para pessoas mais pobres.

Imagem 19 | Exposição virtual “Memórias de uma epidemia”, 2021 Fonte | Museu da Diversiade Sexual Imagem 20 | Exposição virtual “Memórias de uma epidemia”, 2021 Fonte | Museu da Diversiade Sexual

3.1. CENTRO DE CULTURA E SAÚDE SEXUAL

Durante a elaboração do trabalho, foi observado que as pessoas ainda hoje possuem medo, repulsa e/ou preconceito em adentrar um equipamento da saúde sexual ou procurar o seu diagnóstico,por esse motivo, nos parece interessante criar estraté gias que possam aumentar o fluxo de pessoas no entorno do novo CTA, fazendo com que mais pessoas possam utilizar o equipamento de saúde, além de estabelecer um novo local de apoio a edu cação e cultura acerca dessa temática, focando na transformação social para imaginar uma grande diminuição de casos.

A partir desse pensamento estabelecemos um Centro de Cultura e Saúde Sexual, que reunirá um importante instrumento de combate ao aumento de ISTs (CTA), a um museu destinado a valoriza ção das pessoas que vivem com IST/HIV, popula ção LGBTQ+, população negra e periférica, com espaços que ensinam sobre todo o processo histó rico relacionado as epidemias até hoje no Brasil, formas de prevenção, tratamento e o respeito a essas populações.

O Centro de Cultura e Saúde Sexual será um pro jeto que ligará três equipamentos públicos: a es tação do metrô existente (Marechal Deodoro), o novo Centro de Testagem e Aconselhamento e o novo Museu da Saúde Sexual, além de uma gran de praça que fará a conexão dos equipamentos convidando toda a população para conhecer mais sobre o tema e se prevenir.

41

Imagem 21 | Organgrama de intenções. Fonte | Produzido pelo autor.

42

3.2.

PROPOSTA DE LOCALIZAÇÃO

Em virtude do contexto histórico e discriminató rio relacionado as ISTs trazidos nesse documen to, bem como os dados oficiais que mostram as regiões e bairros com maior ocorrência de detecção de casos na cidade de São Paulo, fica evidente que a futura implantação do Centro de Cultura e Saúde Sexual, necessita estar em local com grandes fluxos de pessoas, em re gião com alta de casos, facilidade de acesso por meio de transporte público, estar perto do SAE para encaminhamento de pacientes posi tivados com HIV, e principalmente bairros que se encontram - em maior parte - as populações vulneráveis; como pessoas em situação de rua, profissionais do sexo, pessoas LGBTs, entre ou tros.

Foi observado a partir do boletim epidemioló gico de HIV/ AIDS divulgado pela prefeitura de São Paulo em 2021, que a região central pos sui as maiores taxas de detecção das infeções e doenças relacionado a relação sexual despro tegida por 100 mil habitantes, comparadas as demais regiões.

No caso do HIV, a taxa de detecção para re gião central foi de 62,4 por 100 mil habitantes, tendo como bairros de maiores picos: Sé (84,4) seguido de Santa Cecília (64,7) (Gráfico 5).

Já no caso da AIDS, a região central continua sendo a região com maior taxa detecção, ten do 31,1 por 100 mil habitantes, mais uma vez Sé e Santa Cecília aparecem em primeiro e se gundo lugar respectivamente (Gráfico 6).

43

Gráfico 5 | Taxa de detecção de HIV por Supervisão Técnica de Saúde (STS) de residência e ano de diagnostico por 100 mil habitantes, 2010 – 2020, Município de São Paulo.

Fonte | Coordenadoria de IST/Aids.

Gráfico 6 | Taxa de detecção de AIDS por Supervisão Técnica de Saúde (STS) de residência e ano de diagnostico por 100 mil habitantes, 2010 – 2020, Município de São Paulo.

Fonte | Coordenadoria de IST/Aids.

44

No caso da Sífilis adquirida, através da CRS, observou-se que o Centro obteve o maior cres cimento de detecção de casos por 100 mil habitantes do município (174,1 casos a cada 100 mil habitantes). Segundo a STS as maiores taxas de detecção foram Sé (184,2 casos por 100 mil habitantes, seguido de Santa Cecília com 159,1 casos). (Gráfico 7).

Sendo assim, analisamos que a região central carece de atenção especial sobre o combate as novas infecções de ISTs, tendo a necessida de de implantar novos espaços de testagem e prevenção, além de espaços educativos, os nú meros refletem uma região onde se encontram muitos eventos e festas – que incentivam o uso de bebidas e drogas - além de espaços desti nados à prostituição. Outro fator importante é a grande concentração de pessoas em situação de rua; que possuem pouco acesso a educação sexual ou incentivo ao uso de contraceptivos.

Com ajuda do mapeamento de CTAs atuais e entendendo a preocupação com os dois bair ros com maiores taxas de detecção (Sé e Santa Cecília), foi observado que o CTA Henfil, que fica entre a Liberdade e Sé, abrange ambos os bairros e consegue chegar até as popula ções mais vulneráveis, além de estar implan tado perto de locais que tem grandes taxas de infecções, como prostíbulos, cinemas eróticos, saunas gays e bares LGBTQIA+. 7

Quando analisamos o entorno do bairro da Santa Cecília - o segundo bairro com maiores taxas de detecção de todas essas ISTs - é possí vel notar a falta desse equipamento e a grande distância que a população precisa se locomo ver para conseguir chegar ao CTA mais próxi mo. Com isso, nos parece fazer sentido que o novo Centro de Cultura e Saúde Sexual seja implantado nesse bairro, procurando a partir da prevenção e educação sexual uma mudan ça da sociedade para diminuir novos casos de ISTs.

7. Documentário “30 anos CTA Henfil” (MALAVOLTA, PÁSSARO, 2020)

45
Gráfico 7 | Taxa de detecção (TD) de Sífilis por Supervisão Técnica de Saúde (STS) por 100 mil habitantes, 2020, Município de São Paulo. Fonte | Coordenadoria de IST/Aids.

4. ESTUDO DE CASO

Como vimos, o assunto sexualidade, e prin cipalmente saúde sexual, historicamente não são tratados com a relevância necessária, por conta de preconceitos e tabus da sociedade em geral. Por esse motivo há uma dificuldade em identificar projetos ou concursos de arquitetu ra voltados para esses assuntos, já as plantas das unidades atuais dos CTAs , além de não serem facilmente localizadas, não nos parecem interessantes como referência projetual por es tarem defasadas em relação aos tempos atuais, não permitindo uma melhor humanização dos espaços internos para fazer com que os pacien tes se sintam acolhidos.

Para servir de base projetual para o futuro Cen tro de Cultura e Saúde Sexual, foram escolhidos três projetos de referência para o CTA, todos vencedores do “Concurso de UBS do Parque do Riacho” localizado em Brasília e para a elabo ração do Museu foi escolhido o “Primeiro lugar do concurso do Museu da Diversidade Sexial” de São Paulo e o projeto “Espaço Cultural” do escritório DMDV.

Esses projetos servirão para auxiliar no desen volvimento do programa, bem como referência para estruturas, fluxos e dimensionamento dos espaços que os equipamentos propostos neces sitam.

47

1° Lugar no Concurso de UBS-DF Parque do Riacho:

Autores: Saboia + Ruiz Arquitetos

Local: Brasília, Distrito Federal, Brasil Ano: 2016

Área do terreno: 9.790m²

Área construída: 2.150m²

Imagem 22 | Render da fachada UBS Parque do Riacho - Saboia + Ruiz. Fonte | Archdaily.

Nesse projeto, os arquitetos exploraram o gran de dimensionamento do terreno, criando três blocos com pátios internos; ampliando assim, a volumetria do edifício. Os pátios internos trazem para o ambiente um sentimento de hu manização e tranquilidade, além de trazer ven tilação e iluminação controlado para as salas de atendimento. Para o acesso, foi pensado em uma extensão do passeio público que se trans forma em um ponto de encontro; sendo ligado diretamente ao bloco central que tem a função de receber os usuários e distribuir os progra mas.

Por estar localizado em uma região com clima quente, a ventilação foi pensada para tornar o interior com temperatura fresca para todos, assim, através do detalhamento é possível per ceber como funciona a entrada de ar frio pela parte inferior dos consultórios e o ar quente é retirado através do Shed na parte superior. A estrutura vazada da fachada permite a melhor entrada de luz natural durante o dia, além de aumentar a qualidade de ventilação do espaço. Esse projeto será de grande ajuda para enten der a melhor ventilação e humanização dos ambientes.

Imagem 23 | Corte de detalhamento de circulação de ar. Fonte | Archdaily.

48

LEGENDA

5 0 20

Espera

Farmácia/ Vacinação Patio Interno Praça Seca Auditório ADM Consultório Serviços

Imagem 24 | Planta da UBS produzido pelo autor. Fonte | Archdaily.

Imagem 25 | Render da sala de espera da UBS. Fonte | Archdaily.

49

50

2° Lugar no Concurso de UBS-DF Par que do Riacho:

Autores: Hiperstudio

Local: Brasília, Distrito Federal, Brasil

Ano: 2016

Área do terreno: 9.790m²

Área construída: 2.100m²

Imagem 26 | Render da fachada UBS Parque do Riacho - Hiperstudio. Fonte | Archdaily.

Os arquitetos optaram por estabelecer uma es trutura principal linear, que acomoda a área de espera com espaço amplo e fácil orientação. Além disso, o projeto possui jardins internos que permitem a entrada de luz natural para os usuários através de rasgos na cobertura. Uma grande praça seca recebe os pacientes e os le vam para a entrada frontal da UBS. O setor de atendimento e administração está no bloco que liga a lateral do projeto, tendo corredores separados e privativos para os con sultórios.

É importante ressaltar os espelhos d’água, que garantem uma melhor qualidade de ventilação e os consultórios que possuem ventilação cru zada. Outra questão relevante é o espaço do auditório que se encontra logo na entrada, o que possibilita que tenha eventos relacionado a saúde, sem a necessidade dos visitantes en trarem em contato com a das salas de atendi mentos.

Esse projeto é interessante para entender me lhor a circulação ideal para uma unidade de saúde, com seus diferentes fluxos.

Imagem 27 | Ampliação do corte, circulação de ar. Fonte | Estúdio 41.

LEGENDA

Farmácia/ Vacinação

Espera

Patio Interno Praça Seca Auditório ADM Consultório Serviços

20 0 50

Imagem 28 | Planta da UBS produzido pelo autor. Fonte | Archdaily.

Imagem 29 | Render da sala de espera da UBS.

Fonte | Archdaily.

51

3° Lugar no Concurso de UBS-DF Par que do Riacho:

Autores: ARQBR + Estúdio MRGB

Local: Brasília, Distrito Federal, Brasil

Ano: 2016

Área do terreno: 9.790m²

Área construída: 1.350m²

Imagem 30 | Render da fachada UBS Parque do Riacho - ARQBR + MRGB. Fonte | Archdaily.

O último projeto parte da simplicidade como partido arquitetônico, focando na humaniza ção dos espaços internos e clareza construtiva. A proposta prevê um pavilhão linear que pro cura organizar dois fluxos de circulação; sendo o primeiro eixo exclusivo para médicos e fun cionários da unidade e o segundo destinado para a circulação dos usuários; os consultórios e outras atividades ligam os dois.

Sua estrutura é composta por pilares e vigas de aços, com lajes de painéis treliçados, e as ve dações são formadas por blocos de concreto e brises em chapa de aço; procurando dar maior conforto térmico, para trazer humanização para os interiores foi proposto pátios internos. Nesse projeto o dimensionamento dos espaços, bem como sua estrutura são objetos de estudo para o futuro projeto.

Imagem 31 | Ampliação de Corte, circulação de ar. Fonte | Archdaily.

52

LEGENDA

20 0 50

Espera

Farmácia/ Vacinação Patio Interno Praça Seca Auditório ADM Consultório Serviços

Imagem 32 | Planta da UBS produzido pelo autor. Fonte | Archdaily.

Imagem 33 | Render da sala de espera da UBS. Fonte | Archdaily.

53

1° Lugar no Concurso “Museu da Diversidade Sexual”

Autores: H+F Arquitetos

Local: São Paulo, Avenida Paulista

Ano: 2014

Área do terreno: 4000m²

Área construída: 2.165m²

54

Esse projeto tem como foco principal elaborar um espaço o qual levante pautas necessárias para a sociedade, trazendo a importância de se falar sobre as diferentes sexualidades, bem como a necessidade de se preservar o patri mônio histórico existente da cidade, procuran do estabelecer uma implantação que valorize o casarão da família Franco de Mello e suas vegetações existentes de grande porte.

O projeto surge para dar uma solução ao pou co espaço - de pouco mais de 100m² - que possui a sede atual do Museu da Diversidade e que não consegue comportar sua adminis tração, espaços de exposições fixas e espaços para conservar e restaurar suas obras.

A implantação do projeto foi pensada para afir mar o caráter público, livre e gratuito que esse museu tem desde sua atual sede na estação de metrô da Republica e que continuará tendo na Paulista, dessa forma se pretende incorporar uma praça que conduzirá diversos visitantes a adentrarem o espaço (sendo da comunidade LGBTQI+ ou não).

O volume do novo anexo procura se comunicar com o casarão existente, a partir da adoção de mesmo altura total do anexo igual ao casarão, um volume secundário no térreo procura criar uma diagonal para nova praça de acolhimen to, para sinalizar os visitantes sobre a entrada principal do museu, além de criar uma facha da lateral voltada para o Parque Mario Covas e uma eventual conexão. A materialidade e as decisões construtivas prezam pela preservação dos elementos existentes, como a estrutura do casarão e as raízes das arvores, toda a constru ção utiliza – se de estrutura metálica e painéis de vedação.

Com as dimensões reduzidas no interior do ca sarão, o programa foi pensado para que a ad ministração, exposição existente e o café se es tabeleça em seu interior, já os programas mais robustos ficarão no anexo, como auditório, acolhimento, biblioteca, sala multiuso, gestão do acervo, exposições temporárias, reservas técnicas e o bar vale salientar a preocupação de criar ambientes inclusivos a todos,

Imagem 34 | Render da fachada Museu da Diversiade Sexual - H+F Arquitetos. Fonte | Archdaily.

sendo possível perceber que novo museu proje ta banheiros unissex para seus ambientes sem a necessidade de se impor um gênero específico. Ao todo o programa é dividido em 1740m² no anexo e 425m² no casarão.

O projeto se conecta com a cidade através de uma praça pública que convida o usuário a adentrar o museu, com espaços de convivência e espaços para desfrutar da área arborizada, com a finalidade de estimular a aproximação do espaço por parte de todos que se movimen tam na Paulista e não somente os que visitam o museu.

A circulação vertical do anexo é feita através de uma escada aberta e um elevador que levam o usuário por todo o edifício, e a circulação entre as duas edificações se dá através do térreo e de uma pequena passarela metálica no segun do pavimento que interliga áreas de exposições temporárias com as permanentes.

Esse projeto é muito importante para usar como referência a forma como a praça se comunica com a cidade e o equipamento cultural, além disso, esse projeto nos norteia a criar espaços acessíveis, inclusivos e que valorizam a cultura e o respeito com as diferenças.

LEGENDA

0 10 20

Exposição temporárea Loja e Áreas de eventos Oficinas

Exposição Permanente

Auditório

ADM Biblioteca Bar

Imagem 35 | Corte com divisões de programa produzido pelo autor. Fonte | Archdaily.

55

ENTRADA

DOS VISITANTES

0 5 10

Imagem 36 | Planta do museu com estudo de circulação produzido pelo autor. Fonte | Archdaily.

Imagem 37 | Render da biblioteca. Fonte | Archdaily.

56
ENTRADA DE FUNCIONÁRIOS

Autores: DMDV

Local: São Paulo

Ano: 2014

Área construída: 3500m²

O projeto surge como mais um espaço destina do a valorização da cultura em São Paulo, pen sando em espaços convidativos e acolhedores. Logo no nível da rua o projeto pensa em criar espaços de convívio com mesas e cadeiras con vidando, assim, as pessoas a ficarem perto do edifício. Além disso para criar uma conversa entre a calçada com o interior do equipamento cultural foi trabalhado um pé direito alto envi draçado, permitindo assim a visualização das atividades desse pavimento aos transeuntes da cidade.

A circulação foi bem pensada para dividir os di ferentes programas, ao adentrar o ambiente in terno do térreo é possível acessar o foyer, sani tários e o auditório. Já para acessar os espaços de exposições, oficinas, restaurante, biblioteca e administração é possível acessar por elevado res ou por escadas que circundam o edifício e ajudam a criar movimento para a fachada.

Os espaços internos foram pensados pelos ar quitetos para serem humanizados, sendo possí vel notar em vários pavimentos jardins e espa ços verdes, além de uma grande claraboia que leva luz solar para a administração, restaurante e biblioteca.

A estrutura se desenvolve por laje nervurada dupla para dar conta dos grandes vãos neces sários para receber os programas mais exten sos e é possível notar os diferentes pés direi tos para cada programa e brises amadeirados para proteger do sol criando uma fachada mais dinâmica. Um detalhe interessante é a forma que os arquitetos encontraram de estabelecer uma fachada com movimento mesmo com o pavimento das exposições precisando ser sem janelas para não prejudicar as peças artísticas, dessa forma eles escolheram trabalhar com ve getação, estabelecendo uma ligação com os espaços verdes internos.

57
Imagem 38 | Render da fachada Edifício Cultural - DMDV. Fonte | Archdaily. 0 Edifício Cultural

LEGENDA

Exposições

Restaurante e Pátio Interno Oficinas Auditório

Biblioteca e ADM Estacionamento

0 5 10

Imagem 39 | Corte com divisões de programa produzido pelo autor. Fonte | Archdaily.

58

Imagem 40 | Diagrama de circulação. Fonte | DMDV.

59
Imagem 41 | Render do Pátio interno e ao fundo o restaurante. Fonte | Archdaily.

5. CONSTRUÇÃO DO PROGRAMA

É relevante ressaltar que, infelizmente, a pre feitura de São Paulo possui grande burocracia para uma possível autorização de acesso à documentos e entrevistas relacionados a cada unidade de saúde.

Os profissionais da unidade visitada, CTA San to Amaro, tiveram uma grande abertura e entu siasmo em auxiliar o projeto, por considerar um tema de grande importância a ser discutido no âmbito acadêmico. Contudo o processo para autorização perante o conselho ético de saúde da capital, iria se perpetuar por tempo maior do que o fechamento desse trabalho.

A elaboração do programa de necessidades, reuniu diversas referências bibliográficas; como as plantas escalonadas para melhor entendi mento dimensional das UBS escolhidas como estudo, vídeos de tour pelas CTAs no canal do Youtube da Coordenadoria de IST/Aids de São Paulo; para entender como funciona o dia a dia dessas instituições e suas necessidades.

O documento “Práticas de aconselhamento em infecções sexualmente transmissíveis/aids: perspectiva das profissionais de saúde”; desta ca a necessidade de melhorias estruturais pela visão dos trabalhadores dos CTAS, bem como, necessidade de ampliação dimensional dos espaços internos que deem conta de receber grandes quantidades de pacientes diariamen te, esse documento nos ajudou a entender a necessidade urgente de melhorias para que os funcionários consigam designar sua profissão da melhor forma possível, além de nos fazer entender a necessidade de construir um novo paradigma de serviços e espaços internos para o CTA.

61

O documento “diretrizes para organização do CTA no âmbito da prevenção combinada e nas redes de atenção à saúde”, detalha as ativida des realizadas pelo CTA; além de ajudar na construção do programa, deixando claro que cada unidade tem a autonomia de adicionar novas atividades de saúde a depender da ne cessidade individual de cada equipamento. Por esse motivo, alguns programas foram adicio nados as atividades do Centro de Testagem e Aconselhamento.

Como exemplo de programas adicionados as estruturas originais do CTA, temos a sala de ginecologia que permitirá uma atenção espe cializada para testagem, atendimento e apoio emocional às mulheres grávidas que desco nhecem seu estado sorológico ou vivem com alguma ISTs/ HIV. A partir dessas analises foi possível estabelecer o programa do novo CTA, dividido em três setores: técnico, administrativo e diagnóstico.

Para a elaboração do novo Museu da Saúde Sexual foi analisado o edital ProAc nº 13/2014, que estabelecia um programa de necessidades mais robusto para atender a nova sede do Mu seu da Diversidade Sexual (MDS) na Avenida Paulista, sendo ele, o norteador para estipular as metragens necessárias para cada atividade oferecida no novo museu, além de permitir a incorporação de novos programas com foco voltado ao ensino á prevenção e combate a novas ISTS, bem como espaços que incentivem a quebra de tabus e preconceitos relacionadas as populações mais marginalizadas por essas infecções.

O projeto “Espaço Cultural” do escritório DMDV, foi outro projeto que nos auxiliou para o entendimento das necessidades dimencionais dos espaços que valorizam a cultura e a educa ção, bem como a entender os diferentes fluxos que um equipamento público com grandes di mensões demandam.

Como entendemos que diminuição de novos casos de infecções, a tolerância e o respeito as populações mais vulneráveis, e principalmente, o respeito com as pessoas que já vivem com alguma ISTs; só se dará através da mudança de mentalidade e postura da nossa sociedade, al guns programas foram adicionados para trazer a sociedade para o foco da discussão.

Como exemplo de programa adicionais ao novo museu, temos o auditório; que servirá de espaço de palestras e debates sobre o tema, oficinas e salas multiusos pensadas para que escolas possam levar os jovens para um enten dimento mais concreto da necessidade do res peito as diferenças e a seriedade que um sexo sem prevenção pode acarretar para suas vidas.

O programa final ainda contempla uma gran de praça verde que ligará a atual estação Ma rechal Deodoro do metrô com o terreno esta belecido para implantar o projeto, afim de criar um ponto de encontro, que trará a população para mais perto desse equipamento de saúde tão necessário e ao mesmo tempo margina lizado. Já para os espaços internos, o ponto de partida está em criar espaços acolhedores, humanizados, com boa ventilação e ilumina ção natural, a partir de ambientes com espaços verdes e aberturas para entrada de luz natural.

62

Tabela 4 | Programas de necessidades do Centro de Cultura e Saúde Sexual. Fonte | Produzido pelo autor.

63

6. ANÁLISE DA ÁREA

Localizado no Centro de São Paulo, o distrito de Santa Cecília - local escolhido para implan tação do Centro de Cultura e Saúde Sexualpertence a subprefeitura da Sé e é composto pelos bairros de Campos Elíseos, Santa Cecília, Várzea da Barra Funda, e parte da Vila Buarque onde estão localizados o Largo Santa Cecília e a estação do metrô Santa Cecília.

Nele encontram-se a maior parte do Elevado Presidente João Goulart (vulgo Minhocão), a Praça Marechal Deodoro, a Praça Princesa Isa bel, a Praça Júlio Prestes e o Largo Coração de Jesus.

Segundo relatos da prefeitura de São Paulo, a história da região teve início em 1860, quan do os moradores da região pediram licença à prefeitura para implantação de um templo para Sta. Cecília, padroeira dos músicos, que foi inaugurado somente em 1961.

65
DISTRITO DE ST. CECÍLIA LOCAL DO TERRENO

O local ainda não era um bairro, mas se de senvolveu a partir do loteamento de chácaras, fazendas e grandes propriedades rurais, próxi mo ao Largo do Arouche. Um desses loteamen tos ficou conhecido “Chácara das Palmeiras”, sendo arrematada por Francisco Aguiar de Barro e Maria Angélica de Sousa Queirós de Barros – que hoje dá o nome a Avenida An gélica, uma das mais importantes do bairro- a construção dessa chácara contribuiu para o desenvolvimento de ruas da região. Uma das construções que ajudou no desenvolvimento do bairro foi a Santa Casa de Misericórdia, um dos mais importantes hospitais de São Paulo.

Na década de 30, muitos casarões e mansões foram demolidas, dando ugar para verticaliza ção e especulação imobiliária, os imóveis que resistiram se tornaram cortiços e moradias co letivas.

Entre 30 e 90, alguns fatores contribuíram para a decadência do bairro; como o processo de esvaziamento da região central da cidade, em detrimento da Avenida Paulista, desinteresse dos herdeiros em manterem seus imóveis, bus ca pela classe média em apartamentos mais modernos em outros locais e a construção do Elevado Presidente João Goulart, (Minhocão); que dividiu o bairro no meio e trouxe proble mas como poluição, perturbações sonoras, aumento da população em situação de rua e desvalorização dos imóveis.

A partir da década de 2000, a inciativa priva da se aproveitou dos baixos valores dos imó veis, em um bairro com ótima infraestrutura e da boa localização. Para trazer investimento na cultura e gastronomia; aproximando os jovens para morar na região. Hoje, as maiores facul dades privadas da cidade estão no entrono do bairro, e a região se tronou conhecida pelos seus bares e festas com estilos “hipsters”.

66
Mapa 2 | Começo do processo de mudança das edificações. Fonte | Mapeamento 1930, Sara. Mapa 3 | Especulação imobiliária mudando as caracteristicas do bairro. Fonte | Mapeamento 1954, Vasp Cruzeiro. Mapa 4 | Minhocão dividiu os “dois lados” do bairro e diminuiu a praça. Fonte | Ortofoto 2017, PMSP RGB.

Mapa 5 | Localização de pontos importantes do Distrito de Santa Cecília. Fonte | Produzido pelo autor.

AMA/ UBS BORACÉIA

SESC BOM RETIRO

SAE CAMPOS ELÍSEOS

ESTAÇÃO JULIO PRESTES

PRAÇA PRINCE SA ISABEL

LARGO CORA ÇÃO DE JEUS PARÓQUIA ST. CECÍLIA

MINHOCÃO

UBS HUMBERTO PASCALE PRAÇA MARECHAL DEODORO HOSPITAL ST. CECÍLIA

ESTAÇÃO MARECHAL DEODORO

67
150
0 300

6. 1. O TERRENO E A RELAÇÃO COM O ENTORNO

Como dito anteriormente, o bairro de San ta Cecília foi escolhido para implantação do Centro de Saúde Sexual e a partir disso, come çamos a procura do terreno para implantar o equipamento.

As condições ideais de um local seria com grande afluxo de pessoas, boas opções de transporte público; para facilitar o acesso da população à unidade, ter um grande dimen sionamento; para receber os diferentes publi cos do CTA e Museu da Saúde Sexual, alêm de acolher a praça proposta. Alêm disso, visando a comunicação e continuidade de tratamento iniciado no CTA , deve estar perto de uma uni dade existente do SAE.

Com a ajuda do mapeamento de unidades existentes de CTA e SAE em São Paulo - mapa motrado anteriormente - foi possível localizar a unidade de SAE mais próximo ao bairro; sendo a unidade do Campos Elíseos, localizado na Rua Alameda Cleveland.

A busca por terrenos subutilizados concentrouse perto da estação de metrô Marechal Deo doro; por estar próximo a unidade do SAE, ter boa infraestrutura de mobilidade, como metro, ponto de ônibus e ciclovia, ter grande quan tidade de pessoas diárias que circulam pela região, estar perto de diferenços espaços histo ricamente importantes para comunidade LGB TQ+ e infelizmente, por ter um número grande de pessoas em situação de rua (população que faz parte do grupo prioritário de atendimento do CTA).

Com ajuda dos mapas estudados e fotos do terreno, poderemos demostrar como o terre no escolhido possui força para receber o novo complexo de programas, além de atender todas condições importantes relatadas para implan tação do Centro de Cultura e Saúde Sexual.

68
69
Imagem 42 Rua Dr. Albuquerque Lins, a esquerda terreno escolhido e a direito estação do metrô Marechal Deodoro. Fonte | Google Maps. Imagem 43 | Rua Dr. Albuquerque Lins, nessa rua o terreno que atualmente é um estacionamento é cercado por grades. Fonte | Google Maps.

Fonte

70
Imagem 44 | O terreno se encontra em um local bem localizado e permite a vizualização por cima do Minhocão. Fonte | Google Maps. Imagem 45 | Praça Marechal Deodoro, parte do terreno que se relaciona com essa rua é fechada por muro. | Google Maps.

Imagem 46 | Foto mostrando a única divisão por muro entre a área livre pública da estação com o terreno pensado para receber a praça e o CCS.

Fonte | Google Maps.

Imagem 47 | Área livre pública do metrô que possibilita a integração com os dois equipamentos propostos.

Fonte | Google Maps.

71

Com a construção do Minhocão, o bairro da Santa Cecília acabou criando uma divisão no bairro, o mapa de usos demostra a diferença que ocorre entre os dois “lados” do mapa; onde é possível perceber que a parte superior está presente a maior parte de usos de comércio e serviço e as edificações mista utilizando todo o terreno, já a parte inferior do mapa possui em sua maioria parte usos apenas de edi ficações residenciais soltas no lote.

Podemos observar, também, onde se encontram os terrenos obsoletos ou abandonados possíveis para a implantação; sendo constatado que o terreno que mais se aproximava das condições necessárias para o equipamento proposto, encontrava-se ao lado da estação de metrô Marechal Deodoro entre a Rua Doutor Albuquerque Lins e Praça Marechal Deodoro.

Mapa 6 | Usos do Solo

LEGENDA

Estacionamentos

Imóveis abandonados

Equipamentos públicos Comércio e Serviço Residencial Misto

72
50 0 100

O gabarito do entorno possui em sua maior parcela edificações altas de 11 a 25 pavimentos, seguidos de 4 a 10° pavimentos, tendo apenas poucas edificações com poucos pavimentos. A partir do mapa fica evidente que essa região do estudo possuí poucos respiros visuais da cidade, por ser cercada de grandes empreendimentos.

73
1 a 3 pavimentos Térreo 4 a 10 pavimentos 11 a 25 pavimentos Terreno
LEGENDA
50 0 100
Mapa 7 | Gabarito

O bairro da Santa Cecília é servido de ótima infraestrutura e mobilidade por estar na região central, com esse mapa foi possível perceber como o terreno escolhido é facilmente acessado pela estação de metrô Marechal Deodoro, linha de ônibus na Praça Marechal Deodoro com nome de “Marechal De odoro” com 06 linhas, “Rosa e Silva” com 21 linhas e “Angélica” com 21 linhas. É possível acessar o terreno com bicicleta, com a ajuda a ciclofaixa localizada na parte inferior do Minhocão e na Rua Dr. Albuquerque Lins.

LEGENDA

Ponto de Ônibus

Estação do Metrô Ciclofaixa

Corredor de Ônibus

Linha de Ônibus

Terreno 50 0 100

74
Mapa 8 | Mobiliário

O mapa de áreas livres deixa evidente a falta de espaços livres públicos para que a população possa ter lazer e pontos de encontros, tendo apenas a Praça Marechal Deodoro e a Estação do Metrô como locais de convivência. Esse mapa reforça a necessidade de novas áreas públicas disponíveis para a po pulação do bairro, isso nos dá força projetual para planejar uma praça junto ao equipamento de sáude e cultura; estimulando o convívio, o lazer e a aproximação das pessoas para perto de um equipamento que fala de um assunto com muitos tabus, como o sexo e a sexualidade.

Mapa 9 | Áreas Livres

LEGENDA

Áreas livres públicas Áreas livres privadas Áreas privadas de acesso público

Terreno 50 0 100

75

LOCALIZAÇÃO:

Praça Marechal Deodoro e Rua Dr. Albuquer que Lins

ZONA: ZEM - Zona Eixo de Estruturação da Transfor mação Metropolitana

ÁREA TOTAL: 4.645m²

PARÂMETROS URBANÍSTICOS:

C.A Máximo: 4

T.O: 0,7

Gabarito Máximo: 28 metros

Recuo fundo e lateral: NA Recuo frontal: NA P.A1: 0,25

LEGENDA

Mapa 10 | Zoneamento ZEM Área Verde Terreno

Uso: nR1-4 - Serviços de saúde de pequeno porte 50 0 100

76

O terreno escolhido possui um desnível de 4m, tendo sua menor cota próximo a estação do metrô. Atualmente ele é ocupado por um grande estacionamento que fechou com muro o acesso à Praça Ma rechal Deodoro e cercou com gradis a entrada na Rua Dr. Alberto de Lins.

77
25 50 0
Mapa 11 | Topografia

6.2. O PROJETO

Fachada que alterna a cada ex posição temporárea para dialogar com pedestres que circulam no Minhocão

Espaços inclusivos e humanizados

Praça verde convidando os visitantes e ligando a estação existente

Escadas que proporcio nam passeio e convidam a ver a vista do minhocão

Ventilação natural Iluminação natural

78

O Centro de Cultura e Saúde Sexual tira parti do de sua localização privilegiada ao lado do Metrô e do Minhocão - locais onde passam mi lhares de pessoas por dia – para estabelecer um novo marco no bairro da Santa Cecília através da retirada dos muros e grades, afirmando o caráter público do espaço e conectando o novo equipamento com a estação existente.

Aliado a isso uma praça é implantada, sendo ela um dos poucos espaços verdes restantes no bairro, visando sua utilização como espaço de convivência e que servirá de estratégia para aproximar a população ao Centro de Testagem e Aconselhamento e do Museu da Saúde Se xual.

Entendendo que a concentração de pesso as que percorrem o metrô diariamente junto a uma nova opção de área verde e de lazer possam contribuir para a quebra de barreiras e preconceitos acerca do tema. Sendo assim, a escolha do terreno e o desenho do térreo pro cura a todo momento estimular mais pessoas a se testarem e criarem uma conscientização sobre a necessidade de prevenção as ISTs e so bretudo para contribuir para a diminuição dos índices de multiplicação de vírus e de mortes no bairro de Santa Cecília e de São Paulo (sendo dos segmentos mais vulneráveis ou não).

Com a proximidade do CCS (Centro de Cultura e Saúde Sexual) com o SAE e a possiblidade de se aumentar o trabalho de conscientização e prevenção além dos muros com moradores em situação de rua, e principalmente com as pessoas que vivem na cracolândia e que são totalmente vulneráveis a se infectar com IST por conta de uso de drogas e sexo desprotegido poderemos ter avanços significativos ao enfren tamento das epidemias de ISTs.

Um assunto relevante é o fato de que o terreno se insere em uma ZEM (Zona Eixo de Estrutura ção da Transformação Metropolitana), pois de acordo com a lei são espaços destinados a pro mover o uso residencial e não residencial com densidades demográficas e construtivas altas, bem como a qualificação paisagística e dos es paços públicos de modo articulado ao sistema de transporte público.

Entretanto nosso projeto não irá atingir o C.A máximo estimulado pela lei, por entender que a necessidade de se implantar um equipamento de grande importância para a saúde pública da cidade e de valorização de populações margi nalizadas por meio da cultura e educação, em uma região central, está acima dos interesses mercadológicos e construtivos privados e por considerar esse terreno o melhor local de im plantação do equipamento.

Preferindo dar grande espaço para área verde e um respiro visual para a cidade em detrimen to de um grande volume estrutural, chegamos aos números de um CA de 1,21, TO de 35% e área verde 1175m², sendo assim, utilizaremos esses parâmetros como base, para projetar uma área verde e de convivência que tira pro veito do desnível do terreno para estabelecer escadarias, rampas e arquibancadas que ligam o vão do metrô diretamente aos novos equipa mentos públicos.

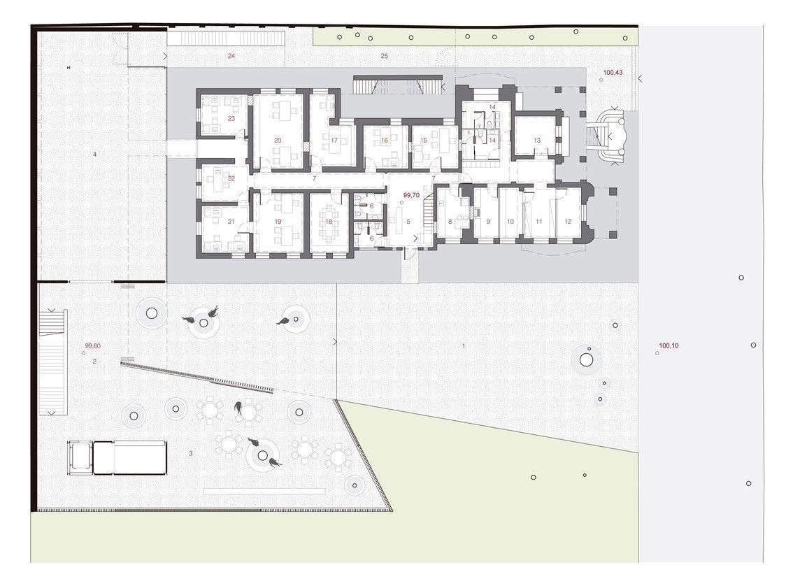
As organizações dos diferentes fluxos foram pensadas para dar o melhor funcionamento no dia a dia, considerando a entrada via Praça Marechal Deodoro para carga e descarga de itens expositivos e retirada de lixos biológicos, químicos e comuns e entrada dos funcionários do Museu. Já a circulação dos funcionários do CTA se dá pela entrada posterior do edifício pela Rua Dr. Albuquerque Lins.

79

A ventilação e a luz natural são uma preocupa ção ao longo de todo equipamento, através de pátios internos, janelas basculantes, elementos vazados, brises e sheds metálicos; que propor cionam espaços mais frescos e iluminação con tinua, procurando chegar a um resultado proje tual que humanize os espaços internos.

A circulação vertical ajuda a desenhar a volu metria, através de escadas que circundam a fa chada e proporcionam um passeio por todo o Museu com vista para cidade, e principalmente o Minhocão, além disso para chegar ao terraço expositivo uma grande escada lateral ao CTA leva os usurários do térreo ao terraço elevado.

O edifício se forma a partir de laje nervurada com foco em vencer grandes vãos, além de pilares, vidros, alvenaria e elemento vazado, procurando criar uma hierarquia formal, ou seja, estabelecendo fachada mais fechadas e protegidas com brises e parede de concre to com o logo do CTA em relação a Rua DR. Albuquerque Lins e uma fachada mais aberta com maiores aberturas e mirantes para permitir máxima ligação visual entre o Centro de Cul tura e Saúde Sexual e o Minhocão (espaço que ao longo do tempo se tornou um importante espaço de lazer para cidade).

Para além das soluções de circulação e facha das elencadas acima, a fachada do pavimento de exposição temporária procura aproximar o pedestre que percorre o Minhocão através de uma parede que permitirá que diferentes obras extravasem o espaço interno e apareça com atrativo para que os visitantes sintam interesse de adentrar ao Museu.

Um dos pontos mais importantes do projeto é trazer as populações mais vulneráveis para o centro das discussões de sexo, sexualidade e prevenção, para isso, algumas medidas foram elaboradas como: a adição de consultórios gi necológicos no CTA, espaços expositivos, ofici nas e auditório no Museu.

Que não só trarão o assunto de prevenção e combate as infecções sexualmente transmissí veis, mas incentivará dando mais voz através da produção de arte à população negra, peri férica, LGBT e de pessoas que muitas vezes não tem espaço, por conta dos preconceitos sobre sua sorologia; com foco na transformação de mentalidade da sociedade.

Nesse equipamento de saúde e cultura os ba nheiros adquirem grande importância tanto no partido, quanto para o discurso sobre inclusão, respeito e tolerância, buscando criar um am biente mais acolhedor as pessoas trans e tra vestis (grandes vítimas das ISTs e que por muitas vezes deixam de utilizar o CTA por preconceitos voltadas a elas), dessa maneira os banheiros e banheiros acessíveis não fazem distinção de gênero, para maior conforto da população LGBTQ+.

Por fim, o projeto relembra a necessidade ur gente de uma transformação social e de maior cuidado com a saúde pública e com a cultu ra, colaborando para construir novas gerações conscientes de seu papel social em diminuir preconceitos e intolerâncias e que sabem o real valor em estar sempre atualizado sobre formas de prevenção e tratamento para evitar novas epidemias.

80
81
Imagem 48 | Render em perspectiva do Centro de Cultura e Saúde Sexual.

AUDITÓRIO/ FOYER

PRAÇA ABERTA

82 Imagem 49 | Diagrama de Programas
CONSULTÓRIOS
ATENDIMENTO
COBERTURA BIBLIOTECA SALA MULTIUSO EXPOSIÇÃO TEMPORÁREA RESTAURANTE/ LOJA EXPOSIÇÃO PERMANENTE ADMINISTRAÇÃO TERRAÇO EXPOSITIVO ADM/
OFICINAS RECPÇÃO/

Usuários | Museu da Saúde Sexual Usuários | CTA Santa Cecília Funcionários | CTA e Museu Usuários | Estacionamento Usuários | Bicicletário

83 Imagem 50 |
Diagrama de Fluxos
84 A B B

1 ESTAÇÃO MARECHAL DEODORO

2 PRAÇA

3 SANITÁRIOS 4 FOYER

6 CAMARIM

8

9

10

11 CIRCULAÇÃO

12 VACINAÇÃO 13 ACOLHIMENTO 14 COLETA 15 ATENDIMENTO

16 ESPERA

18 ESTACIONAMENTO

20

BICICLETÁRIO Imagem 51 | Térreo 0 5 1 2 10 20

85
5
7
17
19
A 21
ABERTA
AUDITÓRIO
CARGA E DESCARGA
DEPÓSITO DA FARMÁCIA
FARMÁCIA
RECPÇÃO/ ESPAÇO DE DISTRIBUI ÇÃO DE PRESERVATIVOS
FUNCIONÁRIOS
INDIVIDUAL
COPA E VESTIÁRIO
LIXO QUÍMICO, BIOLÓGICO E COMUM
PÁTIO INTERNO

A

86
B B

A

1 EXPOSIÇÃO PERMANENTE 2 ÁREA TÉCINA 3 SANITÁRIOS 4 ESPERA 5 CAPACITAÇÃO DOS FUNCIONÁRIOS 6 ATENDIMENTO COLETIVO 7 CONSULTÓRIO ODONTOLÓGICO 8 CONSULTÓRIO GINECOLÓGICO 9 ADMINISTRAÇÃO 10 SALA DE REUNIÃO 11 SALA DE NOTIFICAÇÕES DE NOVOS CASOS 12 CIRCULAÇÃO DOS FUNCIONÁRIOS Imagem 52 | Primeiro Pavimento 0 5 1 2 10 20

87
88
B B
A

CAFÉ 3 SANITÁRIOS 4 COZINHA 5 TERRAÇO EXPOSITIVO Imagem 53 |Segundo Pavimento

89
0 5 1 2 10 20 A 1 LOJA 2 RESTAURANTE/
90
B B
A

TEMPORÁREA 2 DML

SANITÁRIOS

ÁREA TÉCINA

MIRANTE Imagem 54 | Terceiro Pavimento

91
0 5 1 2 10 20 A 1 EXPOSIÇÃO
3
4
5
92
B B
A

INTERNO 3 SANITÁRIOS 4 MULTIUSO 5 MIRANTE Imagem 55 | Quarto Pavimento

93
0 5 1 2 10 20 A 1 OFICINAS 2 PÁTIO
94
B B
A

DE REUNIÃO Imagem 56 | Quinto Pavimento

95
0 5 1 2 10 20 A 1 BIBLIOTECA 2 ADMINISTRAÇÃO 3 SANITÁRIOS 4 SALA
5 MIRANTE
96
B B
A

1 CASA DE MÁQUINAS 2 RESERVATÓRIO E BARILETE Imagem 57 | Cobertura

97
0 5 1 2 10 20 A
98 Imagem 58 | Corte A 0 5 1 2 10 20
99
100 Imagem 59 | Corte B 0 5 1 2 10 20
101
102 Imagem 60 | Vista A 0 5 1 2 10 20
103
104 Imagem 61 | Vista B 0 5 1 2 10 20
105

VIDRO CANELADO

* Para maior privacidade aos usuários

JANELA BASCULANTE

*Promovendo maior circulação de ar natural, criando espaços frescos

PÁTIO INTERNO

* Procurando trazer um espaço humanizado e permitindo ventilação cruzada entre os ambientes

Imagem 62 | Ampliação salas de atendimento e pátio interno. Fonte | Produzido pelo autor.

106
LAJE NERVURADA

Imagem 63 | Ampliação recepção e administração do CTA. Fonte | Produzido pelo autor.

ELEMENTO VAZADO NEOREX 18

*Permite a entrada do ar freco e bloqueia a entrada de ar quente auxiliando no conforto ambiental

107

SHED METÁLICO

*Procurando tirar proveito da luz e da ventilação natural

PÁTIO INTERNO

*Incentivando espaços de convivências atraves de um ambiente que traz conforto.

Imagem 64 | Ampliação do pátio interno que da acessos as oficinas e salas multiusos. Fonte | Produzido pelo autor.

108

BRISES DE MADEIRA ECOLÓGICA

*Prevendo conforto ambiental a par tir da proteção da luz solar que vem do leste

Imagem 65 | Ampliação das oficinas e adminstração Fonte | Produzido pelo autor.

109
110
Imagem 66 | Render fachada do Centro de Cultura Fonte | Produzido
111
Cultura e Sáude Sexual via Rua DR. Albuquerque Lins Produzido pelo autor.
112 Imagem
| Render fachada Fonte
imagem
67
| Produzido pelo autor com

fachada vista pelo Minhocão imagem da exposição “arte positiva”

113
114
Imagem 68 | Render recpção do CTA. Fonte | Produzido pelo autor.

Imagem 69 | Render corredor dos consultórios Fonte | Produzido pelo autor.

115

Imagem 70 | Render esposição permanente. Fonte | Produzido pelo autor.

116

Imagem 71 | Render pátio interno/ sala multiuso e biblioteca. Fonte | Produzido pelo autor.

117

CONSIDERAÇÕES FINAIS

118

Ao final desse trabalho foi possível ressaltar o papel social que a arquitetura pode e deve exercer nas cidades, propondo- se a pensar em ambientes inclusivos, acolhedores, humaniza dos e contemporâneos.

Durante a faculdade somos estimulados a criar um olhar atento a cidade, por esse motivo o projeto se volta as reais necessidades de São Paulo, utilizando –se da contextualização his tórica e social que permeia as ISTs na cidade e o entendimento da importância do Centro de Testagem e Aconselhamento para diminuição de novos casos e mortes.

Entretendo através do processo de estudo ob servamos que não chegaremos nas metas para diminuição de casos apenas com investimento na prevenção e combate as ISTs, mas sim, atra vés da junção de saúde, cultura e educação, com foco na transformação da sociedade que ainda contribue para o não enceramento das epidemias de saúde sexual, por conta de toda intolerância, preconceitos e segregação de po pulações que ficam mais propensas a se infec tarem.

Por essa razão, o edifício ensaiado procura in centivar a testagem e dar voz as populações marginalizadas em todos seus ambientes in ternos, além de pensar em uma comunicação com a cidade e a região central com a pro posta de supressão de muros que segregavam o terreno e permitindo que os transeuntes do entorno possam desfrutar de uma área arbori zada, procurando aproximar as pessoas a um equipamento que ainda pode causar medos e preconceitos por parte da população.

119

BIBLIOGRAFIA

REPORTAGENS:

CAMPANA, Pedro. “Aids no Brasil: do primeiro caso à estruturação das políticas de saúde”. Carta Capital. São Paulo, 15 jul. 2019. Dis ponível em: https://www.cartacapital.com.br/ blogs/saudelgbt/aids-no-brasil-do-primeiro -caso-a-estruturacao-das-politicas-de-saude /. Acesso em: 23 fev. 2022.

CAMPANA, Pedro. ”Por que a Aids predomina entre jovens gays negros e pardos? ”. Carta Capital. São Paulo, 02 dez.. 2019. Disponível em: https://www.cartacapital.com.br/blogs/ saudelgbt/por-que-a-aids-predomina-entre-jo vens-gays-negros-e-pardos/. Acesso em: 20 fev. 2022.

FERNANDES, Nathan. ”Síndrome do precon ceito: como o estigma contribuiu para o au mento da epidemia de aids”. Revista Galileu. São Paulo, 01 nov. 2017. Disponível em: ht tps://revistagalileu.globo.com/Ciencia/Saude/ noticia/2017/11/hiv-apesar-de-avancos-da -medicina-preconceito-e-o-mesmo-dos-a nos-80.html. Acesso em: 20 fev. 2022.

EM SÃO PAULO, 80,7% das pessoas que vivem com HIV entrevistadas para o índice de Estig ma relatam dificuldade para conter às pesso as sobre diagnostico. São Paulo: UNAIDS, 7 nov. 2020. Disponível em: https://unaids.org. br/2020/11/em-sao-paulo-807-das-pessoas -que-vivem-com-hiv-entrevistadas-para-o-indi ce-de-estigma-relatam-dificuldade-para-con tar-as-pessoas-sobre-seu-diagnostico/. Acesso em: 23 fev. 2022.

90-90-90: bom progresso, mas o mun do está longe de atingir as metas de 2020. São Paulo: UNAIDS, 21 dez. 2020. Dispo nível em: https://unaids.org.br/2020/09/ 90-90-90-bom-progresso-mas-o-mundo-esta -longe-de-atingir-as-metas-de-2020/. Acesso em: 23 fev. 2022.

120

NOS ÚLTIMOS 20 ANOS, brasil teve mais de 632 mil casos de hepatite. São Paulo: Di ário de Pernambuco, 28 jul. 2019. Disponível em: https://www.diariodepernambuco.com. br/noticia/cienciaesaude/2019/07/nos-ulti mos-20-anos-brasil-teve-mais-de-632-mil -casos-de-hepatite.html#:~:text=Entre%20 1999%20e%202018%2C%20o,crescimen to%2C%20de%202014%20para%202018. Acesso em: 20 fev. 2022

VEIGA, Edson. ”Como vai o combate à aids no Brasil?”. DW Brasil, 01 dez. 2020.. Acesso em: 25 fev. 2022.

TURBIANI, Renata. ”Infecções sexualmente transmissíveis estão em alta no Brasil, saiba quais são e como se proteger”. BBC Brasil, 16 nov. 2019. Disponível em: https://www.bbc. com/portuguese/brasil-50337527. Acesso em: 25 fev. 2022.

Aids: número de casos cai 11% no mundo e aumenta 3% no Brasil. São Paulo: Portal do go verno de São Paulo, 05 dez. 2017. Disponível em: https://www.saopaulo.sp.gov.br/spnoti cias/aids-numero-de-casos-cai-11-no-mundo -e-aumenta-3-no-brasil/. Acesso em: 27 fev. 2022.

GARCIA, Janaina. ” Brasil não cumpre me tas da ONU sobre HIV; teor de campa nhas pode explicar”. Viva Bem uol, 08 dez. 2020. Disponível em: https://www.uol.com. br/vivabem/noticias/redacao/2020/12/08/ brasil-nao-cumpre-metas-da-onu-sobre-hiv -teor-de-campanhas-pode-explicar.htm#:~: text=Os%20n%C3%BAmeros%20constam%20 do%20%C3%BAltimo,Unidas%20sobre%20HI V%2FAids). Acesso em: 25 fev. 2022.

FERBER, Amanda. “ Anunciados os vencedores do concurso para a Unidade Básica de Saúde em Parque do Riacho – CODHAB - DF”. Ar chdaily, 28 abril. 2016. Disponível em: https:// www.archdaily.com.br/br/786317/anuncia dos-os-vencedores-do-concurso-para-a-uni dade-basica-de-saude-em-parque-do-riacho -codhab-df. Acesso em: 18 marc. 2022.

ESPECIALISTA Encara Aids Como Tratável. São Paulo, Acervo Folha de São Paulo, 03 jul. 1996. Disponível em: https://acervo.folha.com.br/lei tor.do?numero=13204&anchor=292754&o rigem=busca&originURL=&pd=e213a980e 1a2836cd2e11d32e7b2c48d. Acesso em: 26 marc. 2022

ZYLBERSZTEJN, Daniel. “A síndrome de super -homem, o tabu do preservativo e as DSTs ” Veja São Paulo. São Paulo, 16 dez. 2020. Dis ponível em: https://saude.abril.com.br/coluna/ com-a-palavra/a-sindrome-de-super-homem -o-tabu-do-preservativo-e-as-dsts/. Acesso em: 09 abr. 2022.

Estigma e Discriminação. UNIADS. São Paulo. Disponível em: https://unaids.org.br/estigma -e-discriminacao/ . Acesso em: 09 abr. 2022

DOCUMENTÁRIOS:

Cartas para além dos muros, André Canto, Netflix, 26 set. 2019, 1h 33 min. (Disponível em: https://www.netflix.com/search?q=car ta%20p&jbv=81213977), Acesso em: 10 dez. 2021

30 anos de CTA Henfil, Pedro Malavolta e Thiago Pássaro, Youtube, 2020, 24 min. (Dis ponível em: https://www.youtube.com/watch? v=KuF6AI1mAv0&lc=UgzeJCcKZkGCXlY6XI x4AaABAg). Acesso em: 26 fev. 2022

121

A história do vírus HIV, Leonardo Carvalhei ra, Youtube, 2020, 59 min. (Disponível em: ht tps://www.youtube.com/watch?v=04vb-P2R_ pk). Acesso em: 26 fev. 2022

ARTIGOS CIENTIFICOS:

SILVA. A; e col. Novos paradigmas dos CTA da cidade de São Paulo. Secretaria Municipal da Saúde de São Paulo, São Paulo, 2019. Dis ponível em: https://www.prefeitura.sp.gov.br/ cidade/secretarias/upload/saude/arquivos/no vos_paradigmas_CTA.pdf?fbclid=IwAR0vjNn gZJVZBzN-X2x-Y5TIU-iCFb5fm_oJACs2bSi4zR CqIqD9Z8oyQgA. Acesso em: 23 marc. 2022.

SILVA. A; e col. Relatório de Gestão 20172020. Secretaria Municipal da Saúde de São Paulo, São Paulo, 2020. Disponível em: ht tps://www.prefeitura.sp.gov.br/cidade/secreta rias/upload/Relatorio_de_Gestao_Coordena doria_ISTAids_2020_site.pdf. Acesso em: 23 marc. 2022.

Wolffenbüttel, Karina. A Organização Tecno lógica Do Centro De Testagem E Aconselha mento (Cta) No Enfrentamento Da Epidemia De Dst/Aids No Estado De São Paulo. Facul dade de Ciências Médicas da Santa Casa de São Paulo – Curso de pós-graduação em Saú de Coletiva., São Paulo, 2006. Disponível em: http://www3.crt.saude.sp.gov.br/arquivos/pdf/ publicacoes_dst_aids/A_organizacao.pdf.Aces so em: 23 marc. 2022.

SILVA. A; e col. Boletim Epidemiológico de HIV/AIDS, São Paulo, 2021. Disponível em: http://www.aids.gov.br/pt-br/pub/2021/bole tim-epidemiologico-hivaids-2021. Acesso em: 07 marc. 2022.

GRANGEIRO, A; FERRAZ. D. Centros de Testagem e Aconselhamento do Brasil DESAFIOS para a EQÜIDADE e o ACESSO, Bra sília, 2008. . Disponível em: https://bvsms. saude.gov.br/bvs/publicacoes/centros_testa gem_aconselhamento_brasil.pdf. Acesso em: 07 marc. 2022.

BENZAKEN, A e col. Diretrizes Para Organiza ção Do Cta No Âmbito Da Prevenção Combi nada E Nas Redes De Atenção À Saúde, Bra sília, 2017. Disponível em: http://www.aids. gov.br/pt-br/gestores/diretrizes-para-organiza cao-e-funcionamento-dos-cta-no-ambito-da -prevencao-combinada. Acesso em: 07 marc. 2022.

SILVA, M e col. Diretrizes para Implementação da Rede de Cuidados em IST/HIV/AIDS Manual Gestão da Rede e dos Serviços de Saúde, São Paulo, 2017. Disponível em: https://issuu.com/ crtdstaidsspcrtaids/docs/diretrizes_para_im plementa____o_da__5e9e980c6596b9/136. Acesso em: 07 marc. 2022.

FONSECA, P; IRIART, J. Aconselhamento em DST/Aids às gestantes que realizaram o tes te anti-HIV na admissão para o parto. 2012. Disponível em: https://www.scielo.br/j/ic se/a/QnQ3YzrRNsJYZFtSYbBybZb/?lang=p t#:~:text=Apesar%20de%20reconhecer%20 que%20o,das%20gestantes%20ao%20pr% C3%A9%2Dnatal. Acesso em: 07 marc. 2022.

MIRANDA, A e col. Políticas públicas em in fecções sexualmente transmissíveis no Brasil. 2011. Disponível em: https://www.scielo.br/j/ ress/a/4PN8LTxznTgSGZwnvVrvYFH/. Acesso em: 12 marc. 2022.

ROVAI, M; SABEH, L. O Silêncio Do HIV Nos Anos 1980. Alfenas, 2020. Disponível em: https://www.unifal-mg.edu.br/remadih/wp content/uploads/sites/11/2020/11/Atividade 03Milena.pdf. Acesso em: 12 marc. 2022.

MONTENEGRO, H e col. Organização e pla nejamento para a criação do centro de testa gem e aconselhamento para HIV. Rio de Janei ro, 2021. Disponível em: https://www.scielo. br/j/reben/a/btwjhCrY3xnzxBj7WHm6kmc/? format=pdf&lang=pt. Acesso em: 12 marc. 2022.

122

Secretaria de Estado da Saúde de São Paulo, 2009. Disponível em: https://www.scielo.br/j/ rsp/a/hQRPBRRTwQMyQMtdV6QZZpr/?lan g=p. t. Acesso em: 12 marc. 2022.

Secretaria de Estado da Saúde de São Paulo. Protocolo para o atendimento de pessoas transexuais e travestis no município de São Paulo. 2020. Disponível em: https://www.pre feitura.sp.gov.br/cidade/secretarias/upload/ saude/Protocolo_Saude_de_Transexuais_e_ Travestis_SMS_Sao_Paulo_3_de_Julho_2020. pdf. Acesso em: 12 marc. 2022.

SILVA, Y e col. Práticas de aconselhamento em infecções sexualmente transmissíveis/ aids: perspectiva das profissionais de saúde. Alagoas, 2019. Disponível em: https://www. scielo.br/j/reben/a/zsDsDDxCvLGF9cHybzTw Ddc/?format=pdf&lang=pt#:~:text=Este%20 trabalho%20%C3%A9%20estruturado%20 em,transmiss%C3%A3o%2C%20preven% C3%A7%C3%A3o%2C%20tratamento%20 e%20esclarecer. Acesso em: 12 marc. 2022.

SILVA, Yago. Compreensão Dos Aconselha dores Sobre Suas Práticas Em Um Centro De Testagem E Aconselhamento Em Ist/Aids De Maceió/Al, 2016. Disponível em: https:// ri.cesmac.edu.br/bitstream/tede/800/1/Dis serta%c3%a7%c3%a3o%20-%20Yugo%20 Torquato%20da%20Silva.pdf. Acesso em: 14 marc. 2022.

TANCREDI, Maria. Características dos usuá rios e fatores associados à soropositividade para o HIV em usuários de Centros de Tes tagem e Aconselhamento (CTA) no Estado de São Paulo, 2000 a 2007, 2016. Dis ponível em: https://www.researchgate.net/ publication/305477738_Caracteristicas_ dos_usuarios_e_fatores_associados_a_soropo sitividade_para_o_HIV_em_usuarios_de_Cen tros_de_Testagem_e_Aconselhamento_CTA_ no_Estado_de_Sao_Paulo_2000_a_2007. Acesso em: 14 marc. 2022.

SOARES, Priscila; BRANDÃO, Elaine. Não re torno de usuários a um Centro de Testagem e Aconselhamento do Estado do Rio de Ja neiro: fatores estruturais e subjetivos, 2013. Disponível em: https://www.scielo.br/j/phy sis/a/RhGFRSCdMWh5rvWwVr65h8j/abstrac t/?lang=pt. Acesso em: 14 marc. 2022.

JUNIOR, João; SOUZA, Maurini. As primeiras notícias da Aids no Brasil no jornal O Estado de S. Paulo: uma análise, 2020. Disponível em: https://www.scielo.br/j/physis/a/RhGFRS CdMWh5rvWwVr65h8j/abstract/?lang=pt. Acesso em: 14 marc. 2022.

ENTREVISTA E EXPOSIÇÃO VIRTUAL:

Testemunho Público, com Márcia Rachid, Mar cos Tolentino, Cultura em Casa, 20201, 1hr e 22min. (Disponível em: https://culturaemcasa. com.br/video/testemunho-publico-com-mar cia-rachid-2/). Acesso em: 24 Jul. 2022

Exposição Virtual “Memórias de uma epide mia”, Matheus Emílio e Renam Matheus, Mu seu da Diversidade Sexual, 2022. (Disponível em: https://artsandculture.google.com/story/ ewXxowQrdkQVIw). Acesso em: 24 Jul. 2022

123

Turn static files into dynamic content formats.

Create a flipbook
Issuu converts static files into: digital portfolios, online yearbooks, online catalogs, digital photo albums and more. Sign up and create your flipbook.