Portfolio de Arquitetura | Lucas Balogh

Page 1

ARQUITETURA E URBANISMO

POR FO IO l

LUCAS BALOGH

2021
T
2
3 C.V BIBLIOTECA CLEVELAND EDIFÍCIO MULTIFUNCIONAL CENTRO CULTURAL PAULO EIRÓ 4 6 16 24

LUCAS BALOGH PENA

Vila Olimpia, São Paulo

11 985405380

lucasbpena@hotmail.com

https://issuu.com/lucasbalogh

4
C.V

FORMAÇÃO ACADÊMICA

Bacharelado em Arquitetura e Urbanismo

Centro Universitário Senac

2018/ 2022

(Em curso)

Ensino Médio

Colégio Irnternacional Anhembi Morumbi

2015/ 2017

COMPLEMENTARES

Oficina de Colagem no Photshop

CURA, 2021

Curso de Representação Arquitetônica

CURA, 2020

Oficina de Autocad- Básico

Profº Rubênio Simas, 2019

SOFTWARES

AutoCad

Sketchup

Vray Photoshop

Indesign

Illustrator

Pacote Office

5

ED. MULTIFUNCIONAL

MEMORIAL DESCRITIVO

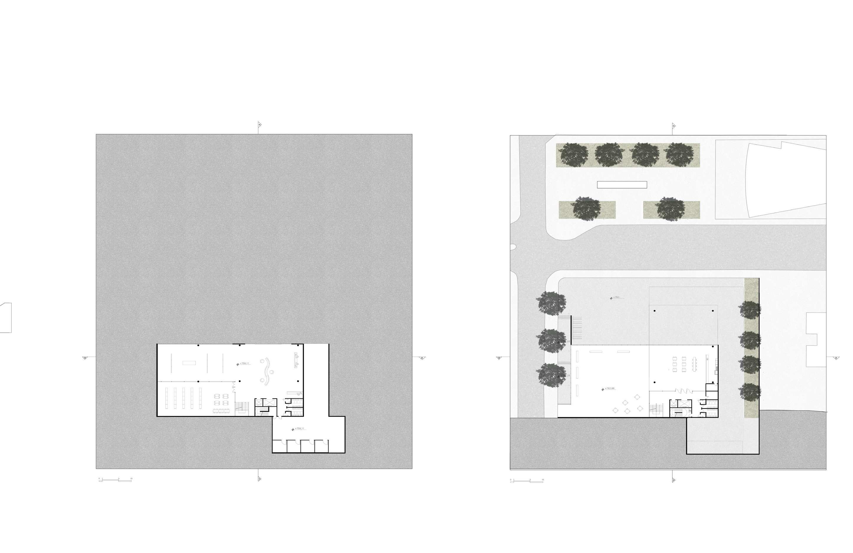
O edifício multifuncional, foi implantado entre as esquinas da av. João dias e as ruas São José e Antônio Bento, por essa razão, o partido tira proveito da localização do lote, incentivando e qualificando a circulação dos pedestres. Um embasamento de lojas foi proposto para dar movimento para o local, e foi implantando uma praça aberta acessada através dos vazios dados por pilotis, que interage diretamente com a cidade. Tornando- se o coração do projeto.

O conjunto possui dois prédios, e foi pensado para conversar com o bairro. Dessa forma, o edifício residencial dialoga com a ruas que possui mais residências e menos movimento. Já o edifício corporativo se relaciona diretamente com a avenida, onde possui mais serviços e comércios e tendo sua volumetria estabelecida pelo desenho da rua. O projeto buscou ter o mesmo diálogo visual, propondo o mesmo gabarito para os dois edifícios e trabalhando com a madeira para o fechamento de todo o complexo.

Desenvolvido com Isabella Borba; Ingrid Oliveira e Ana Barelli

Orientação: Arthur Katchborian e Sergio Matera 7º semestre, 2021

6
1
7

COBERTURA

PAVIMENTO RESIDENCIAL

GARAGEM

HALL RESIDENCIAL

LOJAS

DESCOMPRESSÃO

ESCRITÓRIOS

LAZER

LOJAS

PRAÇA

RECEPÇÃO

LOJAS

8
9
10
1 LOJAS 2 HALL CORPORATIVO 3 HALL COMERCIAL 4 HALL RESIDENCIAL 5 SANITÁRIOS
6 PRAÇA
NÍVEL + 754.88 0 5 10 20 A B A B
7 ENTRADA GARAGEM
PLANTA
11 PLANTA NÍVEL + 754.88 0 5 10 20 1 APARTAMENTO 55 m² 2 APARTAMENTO 40 m² 3 APARTAMENTO 30 m² 4 SANITÁRIOS 5 ESCRITÓRIOS A B A B
12
13
14 CORTE A CORTE 0 5 10 20 0 5 Av. João Rua São José
15 CORTE B 10 20 Dias Rua Antônio Bento

MEMORIAL DESCRITIVO

BIBLIOTECA CLEVELAND

O bairro de Campos Elísios já foi um bairro nobre, e residência das famílias mais ricas de São Paulo, com tudo, por diversos fatores a região se vê em processo de decadência e degradação, principalmente em suas edificações que contam a história da cidade. Com o objetivo de preservar o patrimônio através de atividades dadas a eles, restauramos os dois casarões adotando novas infraestruturas para receber os novos programas, evitando ao máximo intervenções invasivas que possam comprometer os detalhes construtivos originais. Escolhemos dar protagonismo para o casarão principal, colocando as exposições permanentes e áreas multiuso, fazendo com que o visitante se reconecte com a história. Para o anexo, idealizamos uma volumetria regular, fechamentos leves e com gabarito equivalente ao dos casarões, afim de gerar uma conversa entre a nova arquitetura e a pré-existência. Gerando uma continuidade no conjunto, através de uma passarela metálica leve e aberta. Uma praça central e um café foram implantados no térreo para estimular pontos de encontro e espaços de convívios.

Desenvolvido com Ingrid Oliveira

Orientação: Katia Pestana e Moracy Amaral

6º semestre, 2020

16
2
17
18 EXPOSIÇÃO ÁREAS BIBLIOTECA
PRAÇA
19 EXPOSIÇÃO PERMANENTE ÁREAS MULTIUSO
ADMINISTRAÇÃO
20 CORTE A 0 5 10 15
21

ALAMEDA CLEVELAND

1

2

3

4

5

6

7

8

9

10

11

12

22
SANITÁRIO
EXPOSIÇÃO PERMANENTE
BILHETERIA
COPA
DIRETORIA
ADMINISTRAÇÃO
LOJA
ÁREA DE ESTAR
CAFETERIA
CARGA E DESGARGA
BICICLETÁRIO
PRAÇA
A A 0 5 10 15
PLANTA NÍVEL + 100
NOTHMANN
ALAMEDA

1

2

3

5

23
SANITÁRIO
PUBLICAÇÕES NOVAS
EXPOSIÇÃO TEMPORÁREA
ÁREA DE CONVIVÊNCIA
4
MONITORIA
VARANDA
ÁREA DE EVENTOS
MULTIUSO
CATALOGAÇÃO 10 RESTAURO 11 LIVROS RAROS 12 MANUTENÇÃO PREDIAL 13 MONITORIAMENTO 14 MAPOTECA 15 PASSARELA PLANTA NÍVEL + 105.55 A A 0 5 10 15
6
7
8
9

MEMORIAL DESCRITIVO

CENTRO CULTURAL PAULO EIRÓ

Localizado entre a Avenida Adolfo Pinheiro e Rua Conde de Itu, em frente ao Teatro Paulo Eiró, o projeto estabelece uma conexão entre o novo centro cultural e o atual teatro. Dessa forma, tira partido da praça existente na frente do lote, buscando uma ligação visual. Para resolver os diferentes níveis entre rua e avenida, é proposto um terraço elevado com café que convida o público a desfrutar da vista da cidade.

Uma suave rampa de 5,5% de inclinação acomoda o desnível do térreo inferior com a avenida e conduz o público ao acesso principal do conjunto. O programa pretende incentivar a produção e o consumo de cultura, sendo um espaço democrático e livre para todas as manifestações artísticas.

Desenvolvido com Isabella Borba; Ingrid Oliveira e Ana Barelli

Orientação: Marcelo Suzuki e Maurício Petrocini

5º semestre, 2020

24
3
25

O embasamento é posicionado viabilizando a circulção dos sam o interior do edifício pela

26

posicionado semi enterrado, dos usuários que aces

pela Avenida Adolfo Pi Itu.

27
4 LOJA 9 TRANSFORMADOR/ MEDIÇÃO A B B A
5 DML 10 TERRAÇO AV. ADOLFO PINHEIRO RUA CONDE DE ITU A B B A

ADMINISTRAÇÃO TERRAÇO

FOYER AUDITÓRIO

EXPOSIÇÕES

OFICINAS

TERRAÇO/ CAFÉ

LOJA

BIBLIOTECA

EXPOSIÇÕES/ MULTIUSO

PRAÇA SECA

30
31
EXPOSIÇÕES/ MULTIUSO

Contato

1198540-5380

lucasbpena@hotmail.com

Turn static files into dynamic content formats.

Create a flipbook
Issuu converts static files into: digital portfolios, online yearbooks, online catalogs, digital photo albums and more. Sign up and create your flipbook.
Portfolio de Arquitetura | Lucas Balogh by Lucas Balogh - Issuu