ANÁLISIS URBANO DE SURQUILLO - GRÁFICO TÉCNICO

Page 1

ANÁLISIS URBANO SURQUILLO

TALLERDEPROYECTOS ARQUITECTÓNICOS6

DOCENTES

MG.ARQ. GIOVANNAROSADODAVIRAN

MG.ARQ. OMARWINCHOCHILQUILLO

GRUPO7

CÁCERESGÓNGORACARLOS

CAMPOSSANTACRUZLOIDA

CAPCHADOMINGUEZPERCYANTONY

CRUZADOCASTAÑEDAEMILY

HUARACARODRIGUEZNALLELY

U N I V E R S I D A D P R I V A D A D E L N O R T E
GRÁFICO TÉCNICO
Í N D I C E MAPA GRÁFICO-TÉCNICO INTRODUCCIÓN 01 OBJETIVOS 02 11 Objetivogeneral DEMOGRAFÍA 04 4.1.Social 4.2.Educación 4.3.Economía 4.4.Salud MARCOS 03 2.1.Marcoconceptual 2.2.Marcohistórico 2.3.Marconormativo SISTEMAVIAL 06 CONDICIONES NATURALES/AMBIENTALES 08 8.1.Topografía 8.2.Tiposdesuelos 8.3.Clima 8.4.Florayfauna SERVICIOSBÁSICOS 07 61 Tiposdevías 6.2.Mediosdetransporte 63 Flujos DIAGNÓSTICO 11 REGLAMENTACIÓN 10 21 Problemáticas 22 Diagnósticos 33 Tipologíasdeproyectos 34 Referentesarquitectónicos(3) CONCLUSIONES 13 PROPUESTAURBANAYDE EQUIPAMIENTO 12 2.1.Zonificación 2.2.Parámetrosurbanísticos TRAMAURBANA 05 5.1.Evolución 5.2.Tipologías EQUIPAMIENTOURBANO 09 9.1.Residencial 9.2.Educativo 9.3.Industrial 9.4.Comercial 9.4.Recreativo/cultural 9.5.Religioso/otros REFERENCIAS 14

INTEGRANTES

TALLERPROYECTOSARQUITECTÓNICOS6

CRUZADO CASTAÑEDA EMILY

SoydelaCarreradeArq.y urbanismo,meconsidero unapersonaresponsable, dedcadaydetalistaymi metaespodercontribuira unmejordesarrollodela ciudadurbanístcamente hablando.

CACERES GÓNGORA CARLOS

CAPCHA DOMINGUEZ PERCY

SoydelaCarreradeArq.y Dis.Interiores,meconsidero unapersonasociable.Mi metasesdiseñarycrearun hogarempleandola sostenibilidad

CAMPOS SANTA CRUZ LOIDA

SoydelaCarreradeArq.y urbanismo,meconsiderouna personaempaticay perfeccionista.Mimetases incluirentodoproyectoa futurolaimportanciadela Sostenibilidad.

SoydelaCarreradeArq.y urbanismo.

Mimetaacortoplazoestitularmey colegiarmecomoArq.Alargoplazo creamiempresaaminombrepara diseñaryconstruir grandes proyectosarquitectónicosy/o urbanosparalasociedad.

RODRIGUEZ HUARACA NALLELY

SoydelaCarreradeArq.y Diseño,meconsiderouna personaempáticay perfeccionista.Mimetases incluirentodoproyectoa futurolaimportanciadela Sostenibilidad.

INTRODUCCIÓN ANÁLISISURBANÍSTICO

INTRODUCCIÓN

EL PRESENTE TRABAJO SE REALIZARA:

ANÁLISIS DE LA URBANIZACIÓN Y TIPOLOGIAS

HISTORIA Y CULTURA

DENTRO DEL DISTRITO

IDENTIFICAMOS PROBLEMÁTICAS

HALLADAS EN EL DISTRITO

INVESTIGACIÓN DE DATOS ESTADÍSTICOS

DOCENTES:

INTEGRANTES:

UBICACIÓN:LIMA RODRGUEZHUARACANALLELY

TEMA:ANÁLISISURBANO

GRÁFICOTÉCNICO

DISTRITODESURQUILLO

CRUZADOCASTAÑEDAEMLY
CACERESGÓNGORACARLOS
TA6
CAPCHADOMNGUEZANTONY CAMPOSSANTACRUZLODA N°07
MG.
GRUPO: ARQ.GIOVANNAROSADODAVIRAN
ARQ.OMARWINCHOCHILQUILLO
L-02
AMPOSsantacruzLODA TA6 DISTRITODESURQUILLO LIMA CAPCHADOMNGUEZANTONY RUZADOCASTAÑEDAEMILY RODRGUEZHUARACANALLELY MG ARQ GOVANNAROSADODAVRAN MG ARQ OMARWNCHOCHLQUILLO DOCENTES: 3 AÑO2023-01

OBJETIVOS ANÁLISISURBANÍSTICO

OBJETIVO GENERAL

OBJETIVO GENERAL

Elaborar tres propuestas urbanas para el Distrito de Surquillo que responda de manera acertiva al lugar.

INTEGRANTES:

ÁreasVerdes
Diversificación
ÁreasVerdes
CACERESGÓNGORACARLOS CAMPOSsantacruzLODA
TA6 DISTRITODESURQUILLO
LIMA CAPCHADOMNGUEZANTONY CRUZADOCASTAÑEDAEMILY RODRGUEZHUARACANALLELY N°07
MG ARQ GOVANNAROSADODAVRAN MG ARQ OMARWNCHOCHLQUILLO
L-05
ANÁLISISURBANO GRÁFICOTÉCNICO AÑO2023-01
UBICACIÓN:
GRUPO:
DOCENTES:
TEMA:

MARCO CONCEPTUAL HIST. Y NORMATIVO ANÁLISISURBANÍSTICO

DEMOGRAFÍA

Educación y genero

Analfabetismo

TRAMAURBANA

Evolución

Tiposdevías Mediosde transporte

Flujos

DOCENTES:

SERVICIOS BÁSICOS

Agua y luz Población

INTEGRANTES:

MEDIOAMBIENTE

EQUIPAMIENTOURBANO

Salud

Cultura, comercio Progreso distrital Residencia media Residencia alta Educación Comercio vecinal

Topografía

tiposdesuelo

GRUPO:

TEMA:ANÁLISISURBANO

GRÁFICOTÉCNICO

UBICACIÓN: LIMA

SURQUILLO
CACERESGÓNGORACARLOS CAMPOSsantacruzLODA
MARCO CONCEPTUAL
TA6 DISTRITODESURQUILLO
CAPCHADOMNGUEZANTONY CRUZADOCASTAÑEDAEMILY RODRGUEZHUARACANALLELY N°07
MG ARQ GOVANNAROSADODAVRAN MG ARQ OMARWNCHOCHLQUILLO
L-07
AÑO2023-01

MARCO HISTÓRICO

Lima-18enero(1535)

Callao-6marzo(1537)

PuertodeChorrillos

SefundoMiraflores2enero1857

FundacióndeSurquillo15Julio1949 "1940poblacióndeLima849171hab."

FundacióndeSanBorja1Junio1983 "1981poblacióndeLima4,993032hab."

FUENTEMAPASHISTORICOS:WILEYLUDEÑA OTROSMAPAS: ELABORACIONPROPIA

DOCENTES:

MapadeSurquillohastalaactualidad

INTEGRANTES:

GRUPO:

3SectoresdeSurquillo

Conclusión:el distritoalolargodelahistoria setransformoenundistritomuycompactoy tieneunaubicaciónquearticulaycentralizadaa losdemásdistritosdeLimaSureste.

TEMA:ANÁLISISURBANO

1-(1535) 2-(1857) 3-(1949) 4-(1983) 6- ACTUALIDAD) 5-(1984) FUENTE:MUNICIPIODESURQUILLO FUENTE:PLANDEACCIONDISTRITALDESURQUILLO
CAMPOSsantacruzLODA
CACERESGÓNGORACARLOS
TA6 DISTRITODESURQUILLO
CAPCHADOMNGUEZANTONY CRUZADOCASTAÑEDAEMILY RODRGUEZHUARACANALLELY N°07
UBICACIÓN: LIMA
MG ARQ GOVANNAROSADODAVRAN MG ARQ OMARWNCHOCHLQUILLO
L-08
GRÁFICOTÉCNICO AÑO2023-01

DOCENTES:

INTEGRANTES:

Ley N° 27157- Ley de regularización de edificaciones, del procedimiento para la declaratoria de fábrica y del régimen de unidades inmobiliarias de propiedad exclusiva y de propiedadcomún.

Artículo 7º . - Del Procedimiento Para la regularización de la Licenca deEdificación.

El plazo para aprobar el expediente de regularización será de treinta (30) días hábiles, en caso de encontrarse observaciones se emitirá por única vez la esquela correspondiente concediendo el plazo adcional

Ley N° 27972- Las municipalidades deben de: Normar, regular y otorgar autorizaciones, derechos y licencias y realizar la fiscalización de: construcciones, remodelaciones o demolicionesdeinmueblesydeclaratoriasdefábrica.

Ley N° 29090- Establece la regulación jurídica de los procedimientos administrativos para la obtención de las licenciasdehabilitaciónurbanaydeedificación.

Artículo 10º . - De la actualización de los valores del predio Luego de expedida la resolución que declara aprobada la regularización de Licencia de Edificación, la Subgerencia de ObrasPrivadas.

OrdenanzaN°1076-MMLyOrdenanzaN°343-MMLReajusteintegraldelazonificacióndelosusosdelsuelo delosdistritosdeBarrancoySurquillo

GRUPO:

TEMA:ANÁLISISURBANO

UBICACIÓN: LIMA CAPCHADOMNGUEZANTONY

CACERESGÓNGORACARLOS CAMPOSsantacruzLODA
MARCO NORMATIVO
TA6 DISTRITODESURQUILLO
CRUZADOCASTAÑEDAEMILY RODRGUEZHUARACANALLELY N°07
MG ARQ GOVANNAROSADODAVRAN MG ARQ OMARWNCHOCHLQUILLO
L-09
GRÁFICOTÉCNICO AÑO2023-01

DEMOGRAFÍA ANÁLISISURBANÍSTICO

SOCIAL 91023

ECONÓMICO

FUENTE:INEI-CENSOSNACIONALESDEPOBLACIÓNYVIVIENDA2017LIMA

RUBROS DE TRABAJO / CENSO DESDE 14 AÑOS

P.CIENTIFICOSEINTELECTUALES

SERVICIOSYCOMERCIANTES PROFESIONALESTÉCNICOS

FUENTE:RESULTADOSDEFINITIVOSDELAPEA2017

P.E.A.: 50853 PERSONAS

EDUCACIÓN

LATASADEANALFABETISMOESDEL0.7% DELATASA TOTALDELAPROVINCIADELIMA.

FUENTE:INEI-CENSOSNACIONALESDEPOBLACIÓNYVIVIENDA2017LIMA

3 PRIMERAS CAUSAS DE MORBILIDAD

INFEC.DEVÍASRES.AGUDAS CARIESDENTAL

FUENTE:MINSA-MINISTERIODELASALUD

CONCLUSIONES:

Poblaciónconformadamayormenteadolescentes yjóvenesadutos

Granporcentajede apoblaciónposeeestudios superiores.

AFILIACIÓN A TIPO DE SEGURO

SEG.INTEGRALDESALUD(SIS)

FUENTE:MINSA-MINISTERIODELASALUD Cuentaconun55.8%dePEA.

Encuantoasaud,laenfermedadquemáspredomna eneldistritodeSurquiloson as nfeccones respiratorias.

INTEGRANTES:

TEMA:ANÁLISISURBANO

UBICACIÓN: LIMA

100% 75% 50% 25% 0% POBLACIÓN CLASIFICADA POR EDADES 0-14 15-64 65-Más 13.9% 69.6% 165% 100% 75% 50% 25% 0%
EDUCATIVO ALCANZADO / CENSO DE 15 AÑOS A MÁS Sinestudios Primaria Secundaria 6.3% 0.6% Superior Doctorado 299% 575% 5.6%% 0% 5% 10%15%20%
NIVEL
0% 5% 10%15%20%
OBESIDAD 0%10%20%30%40%50%
ESSALUD
SEGUROPRIVADODESALUD
TASADECRECIMIENTO ANUALDEL0.2%
HABITANTES
20.4%
SALUD
16.6% 5.1% 45%
12.7% 468% 201% 53% 47% 26.8% 14.9%
DEMOGRAFÍA
ANÁLISIS -
CACERESGÓNGORACARLOS CAMPOSsantacruzLODA
TA6 DISTRITODESURQUILLO
CAPCHADOMNGUEZANTONY CRUZADOCASTAÑEDAEMILY RODRGUEZHUARACANALLELY N°07
MG ARQ GOVANNAROSADODAVRAN MG ARQ OMARWNCHOCHLQUILLO
L-11
GRUPO:
DOCENTES:
GRÁFICOTÉCNICO AÑO2023-01

TRAMA URBANA ANÁLISISURBANÍSTICO

ANÁLISIS - TRAMA URBANA

EVOLUCIÓN DE LA TRAMA

MAPAENLAACTUALIDAD LEYENDA

COMIENZODELDSTRITO

EVOLUCIONDELDISTRITO

DSTRITOALEDAÑO

SURQUILLO ANTIGUO

Delincuencia

Valorhistórico

EVOLUCIÓNDECALLESYAVENIDAS

AV.RICARDOPALMA(4deJuliode1955)

Delincuencia

Valorhistórico

SURQUILLO NUEVO

AV.RICARDOPALMA(actualidad)

CONCLUSIÓN

En conclusión, e distrito, sus vías y sus calles han ido evolucionando de una manera posita ;esto hace que el distrito crezca.

INTEGRANTES:

GRUPO:

CACERESGÓNGORACARLOS CAMPOSsantacruzLODA
TA6 DISTRITODESURQUILLO
CRUZADOCASTAÑEDAEMILY RODRGUEZHUARACANALLELY N°07
UBICACIÓN: LIMA CAPCHADOMNGUEZANTONY
MG ARQ GOVANNAROSADODAVRAN MG ARQ OMARWNCHOCHLQUILLO
L-13
DOCENTES:
GRÁFICOTÉCNICO AÑO2023-01
TEMA:ANÁLISISURBANO

ANÁLISIS - TRAMA URBANA

TRAMARACIMO

Se ramifica hacia las demás calles

TRAMA CUADRICULADA

Las calles se cortan perpendicuarmente en ángulo recto.

TRAMALINEAL

forma alargada, desarrollándose a partir de una cale central o avenida de mayor tamaño (puedenservariasparaelas

TRAMAHOJA RETICULADA

En la traza urbana reticular predomina el trazado de las calles en líneas rectas, atravesadas perpendicularmente por otras vías.

CACERESGÓNGORACARLOS CAMPOSsantacruzLODA
TA6 DISTRITODESURQUILLO UBICACIÓN: LIMA CAPCHADOMNGUEZANTONY CRUZADOCASTAÑEDAEMILY RODRGUEZHUARACANALLELY N°07
MG ARQ GOVANNAROSADODAVRAN MG ARQ OMARWNCHOCHLQUILLO
L-14
ANÁLISISURBANO GRÁFICOTÉCNICO AÑO2023-01
INTEGRANTES:
GRUPO:
DOCENTES:
TEMA:

ANÁLISIS - TRAMA URBANA

TRAMA URBANA ( SECTORES Y BARRIOS)

LIMATAMBO

Las casas de la urbanización

Limatambo del distrito de Surquilo lucen deterioradas. Algunas de las paredes de las viviendas se encuentran resquebrajadas

VILLAVICTORIA

Ahora los residentespropietarios han reemplazado e adobe por el ladrilo. Todas las calles y veredas de Vlla Victoria se encuentran pavimentadas; está formada por 28 manzanas ytiene4parques.

CASAHUERTAS

SURQUILLO CERCADO

Eselbarriodemayordensidad con22112hab/km2.Altavariedad decomercio;fabricas,comercios industrales,mercados restaurantes,etc.

INTEGRANTES:

Barrioquemastardoenadquirir agua y desagüe, pavimentacióne luminación

CALERADELA MERCED

Legalmente no es urbanización popular pero tiene todas las características para recibir esa denominación. Allí existen viviendas de uno hasta cincopso

UBICACIÓN: LIMA

SURQUILLO CERCADO
VILLA VICTORIA CASA HUERTAS
DE LA MERCED CACERESGÓNGORACARLOS CAMPOSsantacruzLODA
LIMATAMBO
CALERA
TA6 DISTRITODESURQUILLO
CAPCHADOMNGUEZANTONY CRUZADOCASTAÑEDAEMILY RODRGUEZHUARACANALLELY N°07 GRUPO: MG ARQ GOVANNAROSADODAVRAN MG ARQ OMARWNCHOCHLQUILLO DOCENTES: L-15 TEMA:ANÁLISISURBANO GRÁFICOTÉCNICO AÑO2023-01

SISTEMA VIAL ANÁLISISURBANÍSTICO

SISTEMA VIAL

MEDIOSDETRANSPORTE LEYENDA

VÍASPRINCIPALES

Av.Aviación

Av.RepublicadePanamá

Av. AngamosEste

VíaExpresa

Av TomásMarsano

Av Principal

URBANIZACIÓN LIMATAMBO

Av Andrés

Aramburú

Av Domingo Orué

URBANIZACIÓNCASAHUERTA

Av Repúbica de Panamá

Av Sergio Bernales

Av Angamos Este

SURQUILLOCERCADO

Av República de Panamá

Va Expresa

Av Angamos Este

LACALERADELAMERCED

Av. Aviación

Av Prncipa

Av Angamos Este

Av. Manuel Villarán

C. Antihuatana

ViasPrincipales

ViasArteriales

Sector con falta de equipamientoeducativo

Sector con falta de equipamientoAreasverdes

AUTOS PARTICULARES

CONCLUSIÓN

Concluimos que las principales avenidas son muy transitadas cada uno de elas cuenta con 4 carriles por eso motivo facilitan su recorrido La mayoria de ellas cuenta con transporte pubico ; sin embargo Angamos , a mas importante no cuenta con transporte publico municipal.

CICLOVÍAMANUEL VILLARÁN-2023
Iniciodelaciclovía TOMÁSMARSANO AV.AVICIÓN Puntodellegada
BUSES TRANSPORTES BICICLETA METROPOLOLITANO
Recorrido de la linea 1705 Recorrido de la linea 3702 Recorr do de a l nea 7607 Corredor rojo CR02 ANÁLISIS - SISTEMA VIAL
VILLA VICTORIA TREN AV Tomás Marsano Av. Prncipa Av.DomingodeOrue Av .TomasMarsano A v . R e p u b l i c a d e P a n a m á Av. Gral. Recavarren Av. Angamos Este A v . Aviació n CACERESGÓNGORACARLOS CAMPOSsantacruzLODA
TA6 DISTRITODESURQUILLO UBICACIÓN: LIMA CAPCHADOMNGUEZANTONY CRUZADOCASTAÑEDAEMILY RODRGUEZHUARACANALLELY N°07 GRUPO: MG ARQ GOVANNAROSADODAVRAN MG ARQ OMARWNCHOCHLQUILLO
L-17
ANÁLISISURBANO GRÁFICOTÉCNICO AÑO2023-01
LÍNEASDEBUSES
INTEGRANTES:
DOCENTES:
TEMA:

SISTEMA VIAL

FLUJOS, NODOS Y CONGESTIÓN VEHICULAR

AV. REPÚBLICA DE PANAMA , DOMINGO DE ORUECON AV TOMÁS MARSANO

AV. ANGAMOS CON AV. AVIACIÓN

VÍA EXPRESA INTERCCION AV.

ANGAMOS

DOCENTES:

INTEGRANTES:

AV.ANGAMOSCON TOMÁSMARSANO

En esta intersección se encuentra el open plaza Angamos.

Esta esquina es una de las mas congestionadas de la via

CONCLUSIÓN

Se forman nodos vehiculares en intersecciones de las vías principales y secundarias, ahí es donde el transito se vuelve extremadamente lento.

GRUPO:

TEMA:ANÁLISISURBANO

UBICACIÓN: LIMA

Nodos Puntosde congestionamiento VasPrincipales VíasSecundarias Av .TomasMarsano A v R e p u b l i c a d e P a n a m á Av. Angamos Este A v . Aviació n Av.DomingodeOrue
LEYENDA
- SISTEMA
ANÁLISIS
VIAL
CACERESGÓNGORACARLOS CAMPOSsantacruzLODA
TA6 DISTRITODESURQUILLO
CAPCHADOMNGUEZANTONY CRUZADOCASTAÑEDAEMILY RODRGUEZHUARACANALLELY N°07
MG ARQ GOVANNAROSADODAVRAN MG ARQ OMARWNCHOCHLQUILLO
L-18
GRÁFICOTÉCNICO AÑO2023-01 FUENTEFOTOGRAFICA GOOGLEMAPS. FUENTE MAPA ELABORACIONPROPIA.

COND. NATURALES Y MEDIOAMBIENTALES ANÁLISISURBANÍSTICO

ANÁLISIS - TIPO DE SUELOS GEOLÓGICOS

TIPOSDESUELOS

CONCLUSIÓN

En conclusión, el distrito de Surquillo presenta mayor actividad en el sector comercio ademas de Residencias de densidadbaja

G N GU R CARDO PALMA DEP MUN CEM N ER O D P MUN E TAD O MUN P CARLOS MO O O SQ-1 HUACA NEOP S CAS SQ-2 DE N ERM D D S N T TU O NAC ON L LUZ DEL U SQ-3 SQSQ-3 SQ-3] A PRNCIPAL Av TOMAS MARZANO Av TOMASMARZANO A S R O E N L A R CA DO P LM OC Y BO OÑ MA UE V A AN CA TAMARINDO A v AV AC ON AvMANUELVILLARAN A MANUELVLLARAN Av MOYANO A INTIHUATANA Av ELSAUCE Av ELSAUCE Av MANUE A AN RDA E1 CZ RDB CZ CZ RDM E1 OU OU VT VT CZ OU ZRP CZ H2 RDM OU CZ RDM RDM VT CZ CV CZ VT CV VT CZ H2 CV CZ VT 1 RDM CZ I1 CZ CZ CZ E3 CZ CZ CZ VT E3 OU 1 VT CZ RDM OU OU CZ E1 CV RDA CZ RDM ZRP CZ VT H1 RDM VT CZ CZ E1 OU OU OU OUE1 ZRP CV E1 VT CZ CZ RDM CV CZ CV ZRP OU CV ZRP ZRP E1 ZRP ZRP CV ZRP CZ ZRP RDM E1 OU RDM ZRP ZRP ZRP CZ CZ E1 ZRP ZRP ZRP RDM E1 OU CZ RDM ZRP E1 ZRP CZ CZ ZRP H4 RDM E2 ZRP RDM OU CZ ZRP OU A UTE KNG AvCALERADELA ERCED Av TOMASMARSANO Av CAMINOSDE NCA A AND E CA ER S v ANGAMO ST RNC A A MAD D A ACUA O v A GAMO S AvDOMNGOORUE A REDEF OC NERRAVACER v 5DEEN O A NG MOSE TE O D A P A R S E E A E L R U A M C E P B A N A L A A R A S A E S T v ENAVD S CUÑA Av TOMASMARSANO Av GEMISIS A F ER O CA AR N A M U L A R S A DO A R A DO A MA SQA OR ON Z A S G O OU A OCAYBOLONA O R U H S A E P A T T T Av AL R PALMA A v ARENALES A v GALVEZ U B P E O A E S A C A R v L D P AvRCARDO AvDEL BORJASUR Av OSCARR BENAVIDES A PEDROVENTURO A A L A CASIMIROULLOA A v A R E Q U A A v A R E Q U P A A v PETT THOUARS O C O E S A v L AvRICARDOPALMA A U E P B L R N A R R A N E S L G E A v A V A C I O N v ANBO AS R D A E v ANBO ASUR AvJMADRD BOULEVARD AvFEDERICO OPIN AvCLAUDOGALENO Av SAN LUIS AvPEDROVENTURO AVIACION Av HIGUERETA PARQUESUR Av GUARDIA CIVIL AvMALACHOWSKI
AGENCIAS IMPRENTAS TIENDAS CAFETERÍAS
CACERESGÓNGORACARLOS CAMPOSsantacruzLODA
TA6 DISTRITODESURQUILLO UBICACIÓN: LIMA CAPCHADOMNGUEZANTONY CRUZADOCASTAÑEDAEMILY RODRGUEZHUARACANALLELY N°07 GRUPO: MG ARQ GOVANNAROSADODAVRAN MG ARQ OMARWNCHOCHLQUILLO
L-20 TEMA:ANÁLISISURBANO GRÁFICOTÉCNICO AÑO2023-01
INTEGRANTES:
DOCENTES:

ANÁLISIS - CONDICIONES NATURALES Y MEDIO AMBIENTE

CLIMADESURQUILLO ASOLAMIENTO

ABRIL-08:00AM

PRECIPITACIONESMENSUALES

TEMPERATURAMENSUAL HÚMEDAD

Elmescon mayor humedades Diciembre con83%

ABRIL-18:00PM

VIENTO

Elviento oscilaentre los18y13 km/h

CONCLUSIÓN

El mes mas calido en e distrito es en e mes de febrero con 24°C y con temperaturas mas bajas es Agosto con19°C.

0 25 50 75 100 125 Enero Febrero Marzo Abril Mayo Junio Julio Agosto Septiembre Octubre Noviembre Diciembre 0 10 20 30 Enero Febrero Marzo Abril Mayo Junio Julio Agosto Septiembre Octubre Noviembre Diciembre
CACERESGÓNGORACARLOS CAMPOSsantacruzLODA
TA6 DISTRITODESURQUILLO UBICACIÓN: LIMA CAPCHADOMNGUEZANTONY CRUZADOCASTAÑEDAEMILY RODRGUEZHUARACANALLELY N°07
MG ARQ GOVANNAROSADODAVRAN MG ARQ OMARWNCHOCHLQUILLO
L-21
ANÁLISISURBANO GRÁFICOTÉCNICO AÑO2023-01
INTEGRANTES:
GRUPO:
DOCENTES:
TEMA:

ESPECIESDEVEGETACIÓN

Manzanillo

ESPECIESDEFAUNASILVESTRE

Tipo:ÁrbolesOrnamentales

Descripción:Tienede20mde altura,troncorecto,sushojas sonovaladas.

Baseasimétricaconunlado atenuadoyelotroredondeadoa obtuso PoncianaReal

Tipo:ArbolesOrnamentales

Especiesdevegetación

EspeciesSilvestres

Descripción:Tienede6a8m,conlacopaaparasolada, baseredondeada,conlacopaaparasolada.

Uso:Urbanoparaalineacióndelascalles.

Cuidado:Muypocaaguay100%Luminosidad.

DOCENTES:

INTEGRANTES:

GRUPO:

ESPECIESDEFAUNADOMÉSTICO

CONCLUSIÓN

Cuenta con mayor desarrollo urbano en la cual nos da pase a poder tener ambientes recreativos donde se pueda interactuarentrelacomunidad.

LEYENDA
Cuculí CuervoNegro Perro Gato
CACERESGÓNGORACARLOS CAMPOSsantacruzLODA
ANALISIS - FLORA Y FAUNA
TA6 DISTRITODESURQUILLO
CAPCHADOMNGUEZANTONY CRUZADOCASTAÑEDAEMILY RODRGUEZHUARACANALLELY N°07
UBICACIÓN: LIMA
MG ARQ GOVANNAROSADODAVRAN MG ARQ OMARWNCHOCHLQUILLO
L-22
TÉCNICO AÑO2023-01
TEMA:ANÁLISISURBANO GRÁFICO

EQUIPAMIENTO URBANO ANÁLISISURBANÍSTICO

EQUIPAMIENTO URBANO / RESIDENCIAL

SECTORRESIDENCIAL

RESIDENCIADE DENSIDADALTA

05%(02Pisos)

60%(03a06Pisos)

05%(07a20Pisos)

30%(03a04Pisos)

RESIDENCIADE DENSIDADBAJA

RESIDENCIADE

CONCLUSIÓN

-RDMpredominaenSurquillo

-VTpredomnanen2dolugar

-RDB Y RDA son minoría según zonificación.

DENSIDAD MEDIA
VIVIENDA TALLER
FUENTEFOTOGRAFICA:GOOGLEMAPS. FUENTE MAPA ELABORACIONPROPIA. CACERESGÓNGORACARLOS CAMPOSsantacruzLODA
TA6 DISTRITODESURQUILLO UBICACIÓN: LIMA CAPCHADOMNGUEZANTONY CRUZADOCASTAÑEDAEMILY RODRGUEZHUARACANALLELY N°07 GRUPO: MG ARQ GOVANNAROSADODAVRAN MG ARQ OMARWNCHOCHLQUILLO DOCENTES: L-24 TEMA:ANÁLISISURBANO GRÁFICOTÉCNICO AÑO2023-01
INTEGRANTES:

EQUIPAMIENTO URBANO / EDUCATIVO

SENATI
MARTINDEPORRES COLEGIORICARDO PALMA COLEGIOLADIVINA PROVIDENCIA
UNIVERSIDADSAN
deeducaciónbásica.
RADIODEINFLUENCIA E1 RADIOCONDEFICITE1YE2 98% 01% 01% Déficit Déficit Déficit FUENTEFOTOGRAFICA:GOOGLEMAPS. FUENTE MAPA :ELABORACIONPROPIA. CACERESGÓNGORACARLOS CAMPOSsantacruzLODA INTEGRANTES: TA6 DISTRITODESURQUILLO UBICACIÓN: LIMA CAPCHADOMNGUEZANTONY CRUZADOCASTAÑEDAEMILY RODRGUEZHUARACANALLELY N°07 GRUPO: MG ARQ GOVANNAROSADODAVRAN MG ARQ OMARWNCHOCHLQUILLO DOCENTES: L-26 TEMA:ANÁLISISURBANO GRÁFICOTÉCNICO AÑO2023-01 R:800m.
R:300m.
R:800m.
CONCLUSION -ExistenensumayoríaColegios
-Sootieneunauniversidad. -Sootieneuninstituto.
R:380m. R:380m. R:380m. R:380m. R:300m.
R:200m.

EQUIPAMIENTO URBANO / SALUD

INSTITUTONACIONALDE ENFERMEDADES NEOPLÁSTICAS

CONCLUSIÓN

-Notieneunhospitalgeneralmoderno.

-Solotiene3centrosdesaludbásicos.

-Senecestaunhospita

CENTROMÉDICO CENTROMÉDICO
CENTROMÉDICO
ensurynorte. Déficit RADIODEINFLUENCIA RADIODEDÉFICIT Déficit Déficit Déficit 96% 02% 02% FUENTEFOTOGRAFICA:GOOGLEMAPS. FUENTE MAPA :ELABORACIONPROPIA. CACERESGÓNGORACARLOS CAMPOSsantacruzLODA INTEGRANTES: TA6 DISTRITODESURQUILLO UBICACIÓN: LIMA CAPCHADOMNGUEZANTONY CRUZADOCASTAÑEDAEMILY RODRGUEZHUARACANALLELY N°07 GRUPO: MG ARQ GOVANNAROSADODAVRAN MG ARQ OMARWNCHOCHLQUILLO DOCENTES: L-28 TEMA:ANÁLISISURBANO GRÁFICOTÉCNICO AÑO2023-01
R:380m. R:800m. R:380m. R:380m.

EQUIPAMIENTO URBANO / INDUSTRIAL

EMPRESAAUTOMOTRÍZ

TERMINALTERRESTE DEBUSES

MECÁNICA AUTOMOSTRIZ

EMPRESA CONSTRUCTORA

EMPRESAAUTOMOTRIZ AMBACAR

EMPRESAINDUSTRIAL COCACOLA

DOCENTES:

MECÁNICAAUTOMOTRÍZ

INTEGRANTES:

CACERESGÓNGORACARLOS CAMPOSsantacruzLODA

TEMA:ANÁLISISURBANO

GRÁFICOTÉCNICO

SUZUKI
I1
FUENTEFOTOGRAFICA:GOOGLEMAPS. FUENTE MAPA :ELABORACIONPROPIA.
TA6
DISTRITODESURQUILLO
CAPCHADOMNGUEZANTONY CRUZADOCASTAÑEDAEMILY RODRGUEZHUARACANALLELY N°07
MG ARQ GOVANNAROSADODAVRAN MG ARQ OMARWNCHOCHLQUILLO
UBICACIÓN: LIMA
GRUPO:
L-30
AÑO2023-01

ANÁLISIS - EQUIPAMIENTO URBANO COMERCIAL

CONCLUSIÓN

-Hayzonasdecomerciovecinal quenocumplenconzonificacion.

-CZseconcentranenAV principales

TEMA:ANÁLISISURBANO

MALLANGAMOS MERCADO1 METRODE SURQUILLO
MULTIFAMILIARESEN ZONIFICACION CV 20% 80% COMERCIO VECINAL SODIMAC GRIPO
FUENTEFOTOGRAFICA GOOGLE
ELABORACION
CAMPOSsantacruzLODA
TA6 DISTRITODESURQUILLO UBICACIÓN: LIMA CAPCHADOMNGUEZANTONY CRUZADOCASTAÑEDAEMILY RODRGUEZHUARACANALLELY N°07 GRUPO: MG ARQ GOVANNAROSADODAVRAN MG ARQ OMARWNCHOCHLQUILLO
L-32
PECSA
MAPS. FUENTE MAPA
PROPIA. CACERESGÓNGORACARLOS
INTEGRANTES:
DOCENTES:
AÑO2023-01
GRÁFICOTÉCNICO

EQUIPAMIENTO URBANO / RECREATIVO - CULTURAL

COMPLEJODEPORTIVO RECREATIVO

PAULHARRIS

PARQUEHEROES DELAPAZ

CONCLUSIÓN

-Enzonanoroestenoexistemuchos parqueyáreasrecreatvas.

-Notienemuseonibiblioteca.

PARQUE JOSEMATIASLEON PARQUEBOLIVAR
JUVENTUD HUACALA
PARQUE ELREDUCTO N°5 CASADELA
MERCED
Déficit PARQUE LIMATAMBO FUENTEFOTOGRAFICA:GOOGLEMAPS. FUENTE MAPA :ELABORACIONPROPIA. CACERESGÓNGORACARLOS CAMPOSsantacruzLODA INTEGRANTES: TA6 DISTRITODESURQUILLO UBICACIÓN: LIMA CAPCHADOMNGUEZANTONY CRUZADOCASTAÑEDAEMILY RODRGUEZHUARACANALLELY N°07 GRUPO: MG ARQ GOVANNAROSADODAVRAN MG ARQ OMARWNCHOCHLQUILLO DOCENTES: L-34 TEMA:ANÁLISISURBANO GRÁFICOTÉCNICO AÑO2023-01
RADIODE DÉFICIT

EQUIPAMIENTO RELIGIOSO Y OTROS

DRNOSPNP

NTITUTO GEOGRAFCO NACIONAL

PARROQUIA JESUSOBRERO

PARROQUIASAN VICENTEDEPAUL

COMISARIA

CEMENTERIOSURQUILLO

TEFLEFONICA DELPERU SEDAPAL

COMPANIAELECTRICA LUZDELSUR

CONCLUSION

-Cuentaconiglesiaycapillas

-Cuentaconvariasentidadesque quebrindanserviciosbásicos.

TEMA:

FUENTEFOTOGRAFICA:GOOGLEMAPS. FUENTE MAPA :ELABORACIONPROPIA. CACERESGÓNGORACARLOS CAMPOSsantacruzLODA
TA6 DISTRITODESURQUILLO
LIMA CAPCHADOMNGUEZANTONY CRUZADOCASTAÑEDAEMILY RODRGUEZHUARACANALLELY N°07
MG ARQ GOVANNAROSADODAVRAN MG ARQ OMARWNCHOCHLQUILLO
L-36
INTEGRANTES:
UBICACIÓN:
GRUPO:
DOCENTES:
ANÁLISISURBANO
TÉCNICO AÑO2023-01
GRÁFICO

EQUIPAMIENTO URBANO GENERAL

Residencia DensdadBaja

CoegioSan JosedeCluny

CentrodeMedico

Municia deSurquillo

InsttutoGeográfico Naciona

Asociacón

AutomotrizdelPerú

UniversidadSan MartndePorres

CentrodeSalud

VillaVictoriaPorvenir

Mall Angamos

ColegioRcardoPalma

ResidenciaDensidadMeda

ResdencaDensidadAlta

LuzdelSur

LEYENDA: Areaverdes

Senati

InstitutoNaconalde EnfermedadesNeoplásicas

MercadoN°1

CentrodeSalud

Municipaidad

VviendaTaller ComercioVecina

Cementero

INTEGRANTES:

EstadioMuncpal

CONCLUSIONGENERAL:

1°-Solocuentacon1institutodeeducaciónsuperior.

2°-Faltacolegiostécnicosenzonanoroeste.

3°-Faltanhosptalesycentrosdesaludmodernos.

4°-Nocuentaconmuseo,teatroybblioteca.

5°-Faltanáreasverdesyrecreativasalnoroeste.

FUENTEFOTOGRAFICA:GOOGLEMAPS. FUENTE MAPA ELABORACIONPROPIA.
CACERESGÓNGORACARLOS CAMPOSsantacruzLODA
TA6 DISTRITODESURQUILLO
CAPCHADOMNGUEZANTONY CRUZADOCASTAÑEDAEMILY RODRGUEZHUARACANALLELY N°07
MG ARQ GOVANNAROSADODAVRAN MG ARQ OMARWNCHOCHLQUILLO
L-37
ANÁLISISURBANO GRÁFICOTÉCNICO AÑO2023-01
UBICACIÓN: LIMA
GRUPO:
DOCENTES:
TEMA:

Zonificación

Zonificaciónresidencial

Se considera un área mínima de 75m2 para departamentos de 3 dormitoros

En zonas residenciales se podrá construir viviendas unifamiliares en cuaquier lote superior a 90m2

Las muncipalidades distritaes podrán proponer requerimientos de estaconamientos distintos a los señalados en el cuadro

En las zonas calificadas como vivienda taler (VT), en lotes exstentes con un área mínima de 120m2 se permtirá el uso mixto de vivenda con otras activdades urbanas, según el índce de usos.

CACERESGÓNGORACARLOS CAMPOSsantacruzLODA INTEGRANTES: TA6 DISTRITODESURQUILLO UBICACIÓN: LIMA CAPCHADOMNGUEZANTONY CRUZADOCASTAÑEDAEMILY RODRGUEZHUARACANALLELY N°07 GRUPO: MG ARQ GOVANNAROSADODAVRAN MG ARQ OMARWNCHOCHLQUILLO DOCENTES: L-39 TEMA:ANÁLISISURBANO GRÁFICOTÉCNICO AÑO2023-01
REGLAMENTACION

ZONIFICACION COMERCIAL

Noexigibleparauso comercial.Pisos destinadosaviviendas dejaranelarealibre querequiera

ALTURAMAXIMADEEDIFICACIONES

7pisosdealturalotesmaor a200m2conancho25m.

6pisosdealturamayora 200m2frenteavenidasy frontis20m

AREACOMERCIAL

Sepermitehastael100%dearea deloslotescomercialesparauso residencial

CONCLUSION

El mayo ingreso que genera el distrito es por el comercio zonalyvecinal

TAMAÑO DELOTE AREA LIBRE
ZONA ALTURA EDIFICACION USORESIDENCIAL COMPATIBLE COMERCIOMETROPOLITANO 1.5(A+R) RDA 1.5(A+R) RDA-RDM 5PISOS RDM COMERCIOZONAL COMERCIOVECINAL
Existentesegunproyecto Existentesegunproyecto Existentesegunproyecto
ESTACIONAMIENTO 1Cada50m2 (4) (4) (4) 1Cada50m2 1Cada50m2
CACERESGÓNGORACARLOS CAMPOSsantacruzLODA INTEGRANTES: TA6 DISTRITODESURQUILLO UBICACIÓN: LIMA CAPCHADOMNGUEZANTONY CRUZADOCASTAÑEDAEMILY RODRGUEZHUARACANALLELY N°07 GRUPO: MG ARQ GOVANNAROSADODAVRAN MG ARQ OMARWNCHOCHLQUILLO DOCENTES: L-40 TEMA:ANÁLISISURBANO GRÁFICOTÉCNICO AÑO2023-01

PARAMETROS URBANISTICOS

PARÁMETROSURBANISTICOS

N°deestacionamientodebeserequivalenteala +Areacomercial

Nomayorde40.00m2,estacionamientoVia publica.

Departamentode2y3dormitorios,1 estacionamiento

1dormitorioporcda3unidadesestacionamientos

ÁREAMÍNIMADEUNIDADDEVIVIENDA

Departamentodeundormitorio:40.00m2

Departamentodedosdormitorios:55.00m2

Departamentodetresdormitorios:75.00m2

ALTURAMAXIMADEEDIFICACIONES

Siconlindanconedificacionesde densidadaltaserashasta5pisos

Sicolindanconzonasquepermitande8a 10pisos.

Sicolindanconzonas12pisosomás.

CONCLUSION

Surquillo es un distrito organzado que cumple con os parámetrosestablecidos

G N GUE R C RDO PA MA DEP MUN C M N ER O D P MUN ST D O MUN C CAR O MO COSO SQSQ-3 Q-3 SQ-3 SQ-3 M RDA E1 CZ RDB RDM OU OU ZRP RDM RDM RDM CZ H2 CV CZ VT 1 RDM CZ 1 CZ CZ E3 CZ VT E3 OU 1 OU CZ H1 RDM VT CZ CZ E1 OU OU OU OUE1 ZRP CV A LU ERKNG A CALERADELA A A CAMINOSDE A A GAM SES Av RNC A DOMNGOORUE A REDEF OC ER O D A P A S E E A L M C D B A N E P A A A A A ENAV P CUÑ Av TOMASMARSANO A D C EC V EN A E R ROCA BOLON R U S A A ALV Z AvDE A v ETT THOUARS A S NBO U A A ANB RAS R Av MADRD A Av SAN U S A DELPALOMAR PARQUESUR Av GUARD A C V L ESTACIONAMIENTO COMERCIO UNIDADDEVIVIENDA
CACERESGÓNGORACARLOS CAMPOSsantacruzLODA
TA6 DISTRITODESURQUILLO UBICACIÓN: LIMA CAPCHADOMNGUEZANTONY CRUZADOCASTAÑEDAEMILY RODRGUEZHUARACANALLELY N°07
MG ARQ GOVANNAROSADODAVRAN MG ARQ OMARWNCHOCHLQUILLO
L-42
GRÁFICOTÉCNICO AÑO2023-01
INTEGRANTES:
GRUPO:
DOCENTES:
TEMA:ANÁLISISURBANO

DIAGNÓSTICO ANÁLISISURBANÍSTICO

DIAGNÓSTICO GENERAL DEL DISTRITO

ESTRATEGIAS DEL DISTRITO SECTORES CON DEFICIT

Zona de Comercio Zonal

Equipamiento de primera necesidad a la mano

Avenidas principales

Por el distrito atraviesa avenidas importantes que atraviesa la ciudad.

Economía

El distrtio presenta gran movivmiento en el sector comercial lo que lleva a una biodiversidad de servicios que abastezca a los ciudadano.

Seguridad

El flujo entre calles ayudan a reducion la inseguridad ciudadana

Uso de Suelo

Mayor adquisicion de lotes comerciales dependiendo la zona

CONCLUSIONES DE PROBLEMÁTICAS

Encontramos masas caloricas en cruces entre avenidas principales y arteriales, esto se origina a raiz del la masiva concetracion peatonal a horas puntas de la ciudad.

Analizamos que en el sector 3 carece de areas verdes y equipamiento al aire libre, por otro lado el unico sector con el 70% de parques es el sector 4.

LEYENDA

ViasPrincipales

MasasCaloricas

Sector con falta de equipamientoeducativo

Sector con falta de equipamientoAreasverdes

Surquillo solo cuenta con 1 instituto tecnico superior que actualmente es "Senati"

Observamos que en el sector 3 no cuenta con un equipamiento educativo ni de salud que cubra con las necesidades en la zona mencionada

SECTOR2 SECTOR3
SECTOR4 SECTOR1
CACERESGÓNGORACARLOS CAMPOSsantacruzLODA INTEGRANTES: TA6 DISTRITODESURQUILLO UBICACIÓN: LIMA CAPCHADOMNGUEZANTONY CRUZADOCASTAÑEDAEMILY RODRGUEZHUARACANALLELY N°07 GRUPO: MG ARQ GOVANNAROSADODAVRAN MG ARQ OMARWNCHOCHLQUILLO DOCENTES: L-44 TEMA:ANÁLISISURBANO GRÁFICOTÉCNICO AÑO2023-01

REFERENTES ARQUITECTÓNICOS

REFERENTE NACIONAL

INSTITUTO SUPERIOR SAN FERNANDO

Av.RepublicadeChile475,JesúsMaría15072Lima

CarrerasTecnicas

Texturasenfachada

Patronesenlafachadaquecubre laescaera

EnfermeríaTécnica

FORMA-ESPACIO

Rejasdemetal

Optometría

Espaciosequipadospara cadaespecialidad

Materialidad

Vidrio

Concreto Ladrillo

Aulasespaciosascongran iluminación

Fisioterapiay Rehabilitación

INTEGRANTES:

GRUPO:

Fachadacon ventanales amplios, guardando relacionconel entornoporla formay diferenciándose porlaalturayel color

UBICACIÓN: LIMA

CACERESGÓNGORACARLOS CAMPOSsantacruzLODA
TA6 DISTRITODESURQUILLO
CAPCHADOMNGUEZANTONY CRUZADOCASTAÑEDAEMILY RODRGUEZHUARACANALLELY N°07
MG ARQ GOVANNAROSADODAVRAN MG ARQ OMARWNCHOCHLQUILLO
L-47
DOCENTES:
AÑO2023-01
TEMA:ANÁLISISURBANO GRÁFICOTÉCNICO

INSTITUTO EDUCACION SUPERIOR BAT YAM

UBICACION:BEERSEBA-ISRAEL

AREA:6000M2

AÑO2015

INTEGRANTES:

LAVOLUMETRIATENEFORMACASI CUADRADOPERFECTOCON4NVELES, DONDE ELPRMERPISOTIENEUNA PLANTRA LBRECON50%SUSTRADO.

UBICACIÓN: LIMA

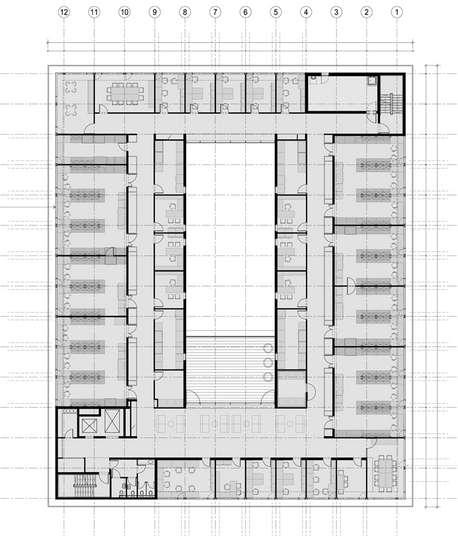
TERCERPISO AULAS CUBICULOS PATIOINTEROR OFICNAS SS-HH ESCALERAS ASCENSOR CIRCULACION CAFETIN TERRAZA LEYENDA: 1 2 3 4 5 6 7 8 9 10 05. 06. 07. 08. 08. 08. 08. 01. 01. 01. 01. 01. 01. 04. 04. 04. 04. 04. 02. 02. 02. 02. 02. 02. 02. 02. 02. 02. 02. 05. 06. 01. 05.
VESTBULO AUDITORIO DRECCION OFICINA PATOINTERIOR SS-HH ESCALERAS ASCENSOR RAMPA LEYENDA: 1 2 3 4 5 6 7 8 9 PRIMERPISO
CAMPOSsantacruzLODA
CACERESGÓNGORACARLOS
TA6 DISTRITODESURQUILLO
CAPCHADOMNGUEZANTONY CRUZADOCASTAÑEDAEMILY RODRGUEZHUARACANALLELY N°07 GRUPO: MG ARQ GOVANNAROSADODAVRAN MG ARQ OMARWNCHOCHLQUILLO DOCENTES: L-48 TEMA:ANÁLISISURBANO GRÁFICOTÉCNICO AÑO2023-01 SEGUNDO PISO EMPLAZAMIENTO-ACCESIBILIDAD
INTERNACIONAL
PROGRAMA-PLANIMETRIA-FUNCION FORMA-ESPACIO LABORATORIOS S.REUNION COMPUTO ADMINISTRACION OFICNAS ARCHIVEROS FOTOCOPIAS SS-HH ESCALERAS ASCENSOR CIRCULACION LEYENDA: 1 2 3 4 5 6 7 8 9 10 11 01. 01. 01. 11. 01. 01. 01. 08. 09. 09. 11. 06. 11. 02. 01. 06. 02. 10. 04. 03. 07. 07. 06. 06. 08. 09. 09. 10. 11. 04. 04. 04. 04. 04. 04. 04. 04. 04. 01. ENELMEDIOTIENEUNASUSTRACCION RECTANGULARQUEFORMAELPATIO NTERIORDEVENTILACIONEILUMNACION ESPACIOSABIERTOS,TERRAZAYALTURA MPORTANTEQUEDANESCALAMAYOR AVENIDA A A V E N I D A B FUENTES:ARCHDAILY/ ARQUTECTOSCHYUTIN
REFERENTE
N° 01

REFERENTE INTERNACIONAL N° 01

INSTITUTO EDUCACION SUPERIOR BAT YAM

SISTEMAESTRUCTURAL- ELEMENTOS

VISTAPATIOINTEROR

MATERIALIDAD- ENVOLVENTE

MATERALDEALUMINIO

MURODEHORMIGON

COLUMNASDEORMIGON

MATERALDE ALUMINO

VSTALOBBY

CONCLUSION:

LAESTRUCTURAESMIXTACON

COLUMNASYPLACASDE

HORMIGON,MASCOLUMMASY

ESQUELETODEACERO

COLUMNADEACERO

CIELORAZO

MUROCORTINA

LUMBRERA DEVIDRIO

LUMBRERADEVDRIO

LAFACHADATIENEUN SISTEMADEDOBLEPIEL.

BASE SUSPENDDA

MUROCORTINA NTERIOR ACRITALADACUBIERTO CONUNAPIELDEALUMINO.

PAREDFORRADO DEMADERA

DOCENTES:

INTEGRANTES:

PSOMACHMBRADO

GRUPO:

PSOPORCELANATO CACERESGÓNGORACARLOS

TEMA:

UBICACIÓN: LIMA

CAMPOSsantacruzLODA
TA6 DISTRITODESURQUILLO
CAPCHADOMNGUEZANTONY CRUZADOCASTAÑEDAEMILY RODRGUEZHUARACANALLELY N°07
MG ARQ GOVANNAROSADODAVRAN MG ARQ OMARWNCHOCHLQUILLO
L-49
GRÁFICOTÉCNICO AÑO2023-01
ANÁLISISURBANO

REFERENTE INTERNACIONAL N° 02

ESCUELA SECUNARIA DE FU

SALONES: 24 AULAS

PATIOS: 4

EDIFFICIOS: 2

RAMPAS: 4

AREAS: GIMNASIO Y CAFETRERIA

ESCUELA SECUNDARIA -SHANGHAI, CHINA

Arquitectos: Atelier GOM

Área : 1187 m²

Año : 2016

Ubicación: Se emplaza en la calle

De Fu, en Jiading, un nuevo pueblo en Shanghai.

MATERIALIDAD ESTRCTURA SDEACERO CONCRETO ARMADO

INTEGRANTES:

ARCILLA
SECA
CAFETERIAYGIMNASIA RAMPAS CUATROPATIOS
CAMPOSsantacruzLODA
RAMPAS
CACERESGÓNGORACARLOS
TA6 DISTRITODESURQUILLO
CRUZADOCASTAÑEDAEMILY RODRGUEZHUARACANALLELY N°07
MG ARQ GOVANNAROSADODAVRAN MG ARQ OMARWNCHOCHLQUILLO
L-50
UBICACIÓN: LIMA CAPCHADOMNGUEZANTONY
GRUPO:
DOCENTES:
GRÁFICOTÉCNICO AÑO2023-01
TEMA:ANÁLISISURBANO

PROPUESTA URBANA

Área: 1 108.276m2

ACCESIBILIDAD

Perímetro : 135.029

Zona de intervención

ENTORNO

Ubicación: Se emplaza en la Av. Domingo de Orué Área para proponer un colegio inclusivo.

A sus alrededores hay comercio y viviendas, lo cual al crear un centro educativo facilitaría a las familias que viven en ese sector.

A este sector le faltaría un centro educativo con una buena infraestructura inclusiva y patios amplios para el desarrollo de los niños.

DOCENTES:

Alrededores se encuentra condominios

Se ubic a en la Av. Domingo Orue Se encuentra cerca a la calle San Pedro, en dónde se encuentra viviendas unifamiliares.

El terreno se encuentra en lugar donde hay locales comerciales, viviendas y condominios.

viviendas

INTEGRANTES:

GRUPO:

TEMA:ANÁLISIS

UBICACIÓN: LIMA

Av.DomingodeOrue Av .TomasMarsano A v . R e p u b l i c a d e P a n a m á Av. Gral. Recavarren
TERRENO UBICACION DE PROPUESTA N° 01
CACERESGÓNGORACARLOS CAMPOSsantacruzLODA
TA6 DISTRITODESURQUILLO
CAPCHADOMNGUEZANTONY CRUZADOCASTAÑEDAEMILY RODRGUEZHUARACANALLELY N°07
MG ARQ GOVANNAROSADODAVRAN MG ARQ OMARWNCHOCHLQUILLO
L-52
URBANO GRÁFICOTÉCNICO AÑO2023-01

UBICACION DE PROPUESTA N° 02 (INSTITUTODEEDUCACIONSUPERIOR)

VSTACALLE MANUELITURREGUI

VSTA ESQUINA

VISTACALLE GONZALESPRADA

DOCENTES:

INTEGRANTES:

GRUPO:

TEMA:ANÁLISISURBANO

UBICACIÓN: LIMA CAPCHADOMNGUEZANTONY

GRÁFICOTÉCNICO

DISTRITODESURQUILLO

CACERESGÓNGORACARLOS CAMPOSsantacruzLODA
TA6
CRUZADOCASTAÑEDAEMILY RODRGUEZHUARACANALLELY N°07
MG ARQ GOVANNAROSADODAVRAN MG ARQ OMARWNCHOCHLQUILLO
L-53
AÑO2023-01

UBICACION DE PROPUESTA N° 03

DOCENTES:

INTEGRANTES:

GRUPO:

TEMA:ANÁLISISURBANO

UBICACIÓN: LIMA CAPCHADOMNGUEZANTONY

GRÁFICOTÉCNICO

DISTRITODESURQUILLO

CACERESGÓNGORACARLOS CAMPOSsantacruzLODA
TA6
CRUZADOCASTAÑEDAEMILY RODRGUEZHUARACANALLELY N°07
MG ARQ GOVANNAROSADODAVRAN MG ARQ OMARWNCHOCHLQUILLO
L-53
AÑO2023-01

REFERENCIAS

REFERENTESDEINVESTIGACION:

https://www.gob.pe/munisurquillo

https://www.facebook.com/municipalidaddesurquillo/?locale=es_ LA

http://www.munisurquillo.gob.pe/distrito/historia.pdf

http://munisurquillo.gob.pe/portal/?fbclid=IwAR39zYZuFrl8-Ob04x4YQcgCHnzoYDhKAe8EnUeaDwBDW35FAz8iwE1iTYY

REFERENCIASDEREFERENTES:

https://www.archdaily.pe/pe/785312/instituto-nacional-de-biotecnologia-chyutin-architects?

ad _ source=search&ad _medium=projects_ tab

https://www.chyutin.com/content/biotechnological-inst-nibn?ref=nid599&cat=.

https://institutosanfernando.edu.pe

Turn static files into dynamic content formats.

Create a flipbook
Issuu converts static files into: digital portfolios, online yearbooks, online catalogs, digital photo albums and more. Sign up and create your flipbook.
ANÁLISIS URBANO DE SURQUILLO - GRÁFICO TÉCNICO by Loida Yameli Campos - Issuu