My first document

Page 1

DESIGN PORTFOLIO

04-05 ABOUT 06-07 EDUCATION EXPERIENCE 08-09 CERTIFICATIONS 10-11
#1 12-13
#2
PROJECT
PROJECT
14-15
PROJECT #3 TABLE OF CONTENTS

I have always had a passion for design which was greatly influenced by my mother. I love helping others and being the best person I can be. Helping others design their dream home is a huge passion of mine. After High School, I started working at Nova Tile & Stone, where I gained a lot of experience and have been hands-on with clients when they need assistance with remodeling or building their home. I am very passionate for what I believe in and love putting that towards my creative side. Guiding clients in a direction to make their home unique and stand out to them is a great feature I have. My goal is to become and Interior Designer and have my ideas come to life. Empty spaces have so much potential and with my creative eye, the empty room will become a one of a kind beautfil space.

ABOUT ME

EDUCATION EXPERIENCE

AAS CONSTRUCTION AND DESIGN, RESIDENTIAL DESIGN MAJOR

TRUCKEE MEADOWS COMMUNITY COLLEGE 2021-2023

HONORS DIPLOMA

SPANISH SPRINGS HIGH SCHOOL

EARLY GRADUATE 2020

SKILLS

PROFESSIONAL

INTERIOR DESIGNING

3D MODELING

CREATIVITY

OPEN-MINDED

INNOVATION

BRAINSTORMING

GOAL-ORIENTED

BUDGET PLANNING

PROJECT MANAGEMENT

SKETCHING SKILLS

SPACE PLANNING

REVIT SOFTWARE EXPERIENCE

AUTOCADD SOFTWARE EXPERIENCE

SALES ASSOCIATE

NOVA TILE & STONE HOME DESIGNS CENTER 2021- CURRENT

• Commincated with contractors, homeowners, builders, and other clients to ensure project is going smoothly.

• Developed a loyal customer base through constant delivery of excellent customer service skills.

• Creatively assisted clients in selecting furnishings for thir home.

Intern Designer January 2023-May 2023

• Assisted designers with ongoing projects and new selections of furniture, fabrics, etc.

• Utilized photoshop and Revit to create renderings for projects to display product as well as based off of architectural drawings.

• Created concept boards for clients to showcase their products.

REFERENCES:

Lukas Olsen (775)434-9574

Cindy Wright (775)771-8779

Sarah Aquino (775)742-9032

Adriana Zeron (775)431-0221

CERTIFICATIONS/AWARDS

For this award one student was selected from the program to receive the award. One of my professors awarded me with “Outstanding Residential Design Student”. Through my vigorous work on projects and always wanting perfection I was the receipient of this award.

PROJECT 1

In this project our goal was to create a modular home with the given site, where the topography was very sloped. My goal for the outcome of this project was to create a modern contemporary modular home. Modular homes are homes that are 80%-90% constructed off-site, with this consideration in mind, I wanted the modular home to be consistent and easier to construct. The bedroom areas would be constructed the same and are the same size. The living area is a different size, but would be built from the same material. The downtairs level consists of the garage as well as the game room.With the use of revit, I was able to create all of the plans, and on illustrator and photoshop I was able to create the presentation board. Along with this, we also built a volume model on the topography as well as a wall detail model.

PROJECT 2

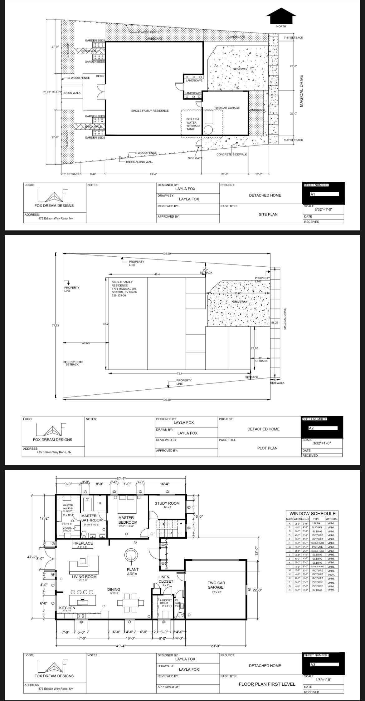
In this project the goal was to create a residential home for a family of five. By listening to the clients wishes I was able to design a space that has an open floor plan for entertaining, all while creating a cozy space for the family. In order to make the home feel open I designed the space to have a loft on the second level and the rest of the floor open to below, with the opportunity to see the kitchen, living room, and dining room from the second floor. By achieveing this design the ceilings are also higher mkaing the space feel larger. All twelve plans were first hand drawn and then input into AUTOCAD. After all the drawings were finished, I began to build the final model. With the final model we photoshopped all elements needed, such as: stucco, brick, landscape, shingles, etc.

PROJECT 3

This projects purpose was to create a museum that would reflect your senses. Each room represented a different concept and had to bring in your senses. Originally we started this project by creating models and then making them into a building. The five rooms are growth, rest, reunion, water, and earth. The circulation pattern is circular to give the visitors an experience to where they start with growth and go from there. There are outdoor areas for some rooms of the museum, such as growth, I designed this room this way so the visitors can feel their senses by also connecting with the outdoors.

REACH OUT (775)203-1987 foxlayla2003@gmail.com

Turn static files into dynamic content formats.

Create a flipbook
Issuu converts static files into: digital portfolios, online yearbooks, online catalogs, digital photo albums and more. Sign up and create your flipbook.