Mémoire technique - Réhabilitation d'un moulin

Page 1

Lisa Piquemal

Ouvrier Professionnel en Restauration du Patrimoine APIAS Formation 2020-2021

Rapport technique – Plans et descriptifs

Réhabilitation du moulin hydraulique de l’abbaye Notre-Dame de Cîteaux

1

1. PLANSDESEXISTANTS

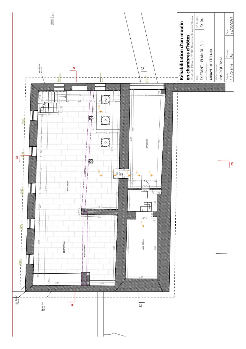
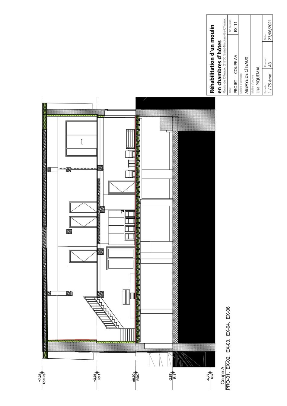
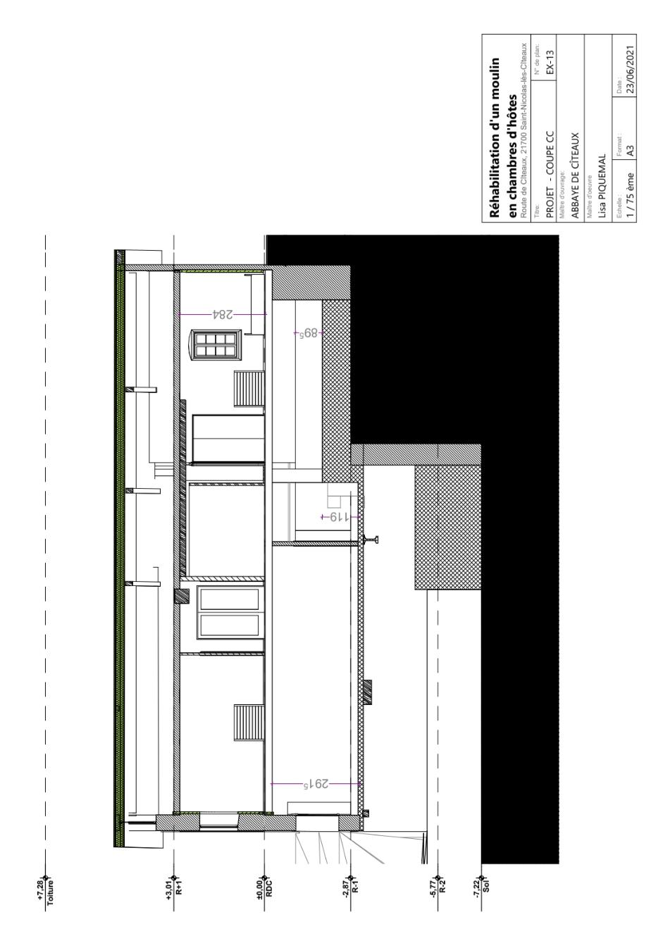
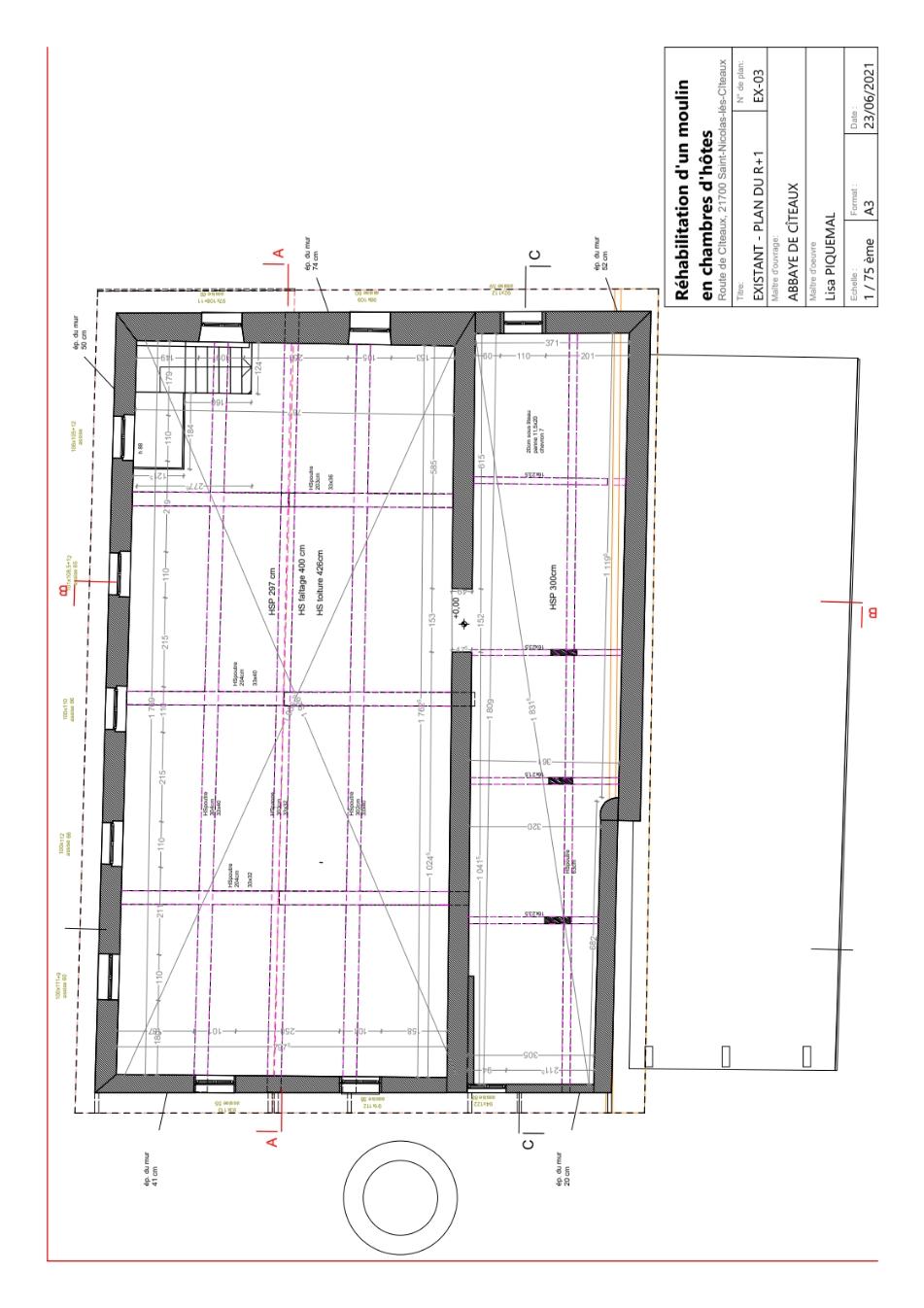
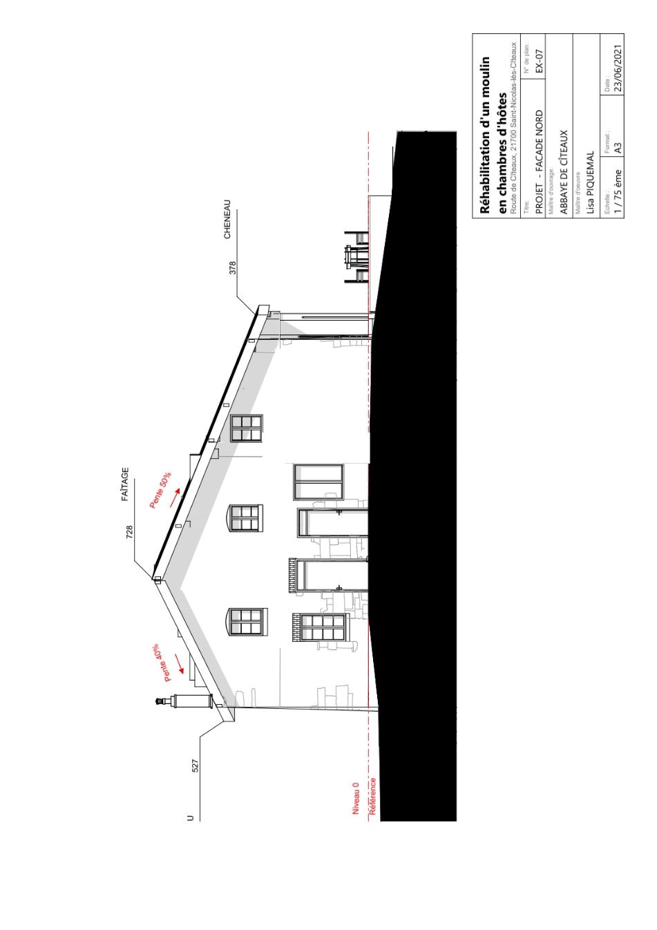
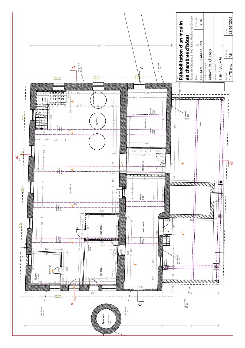
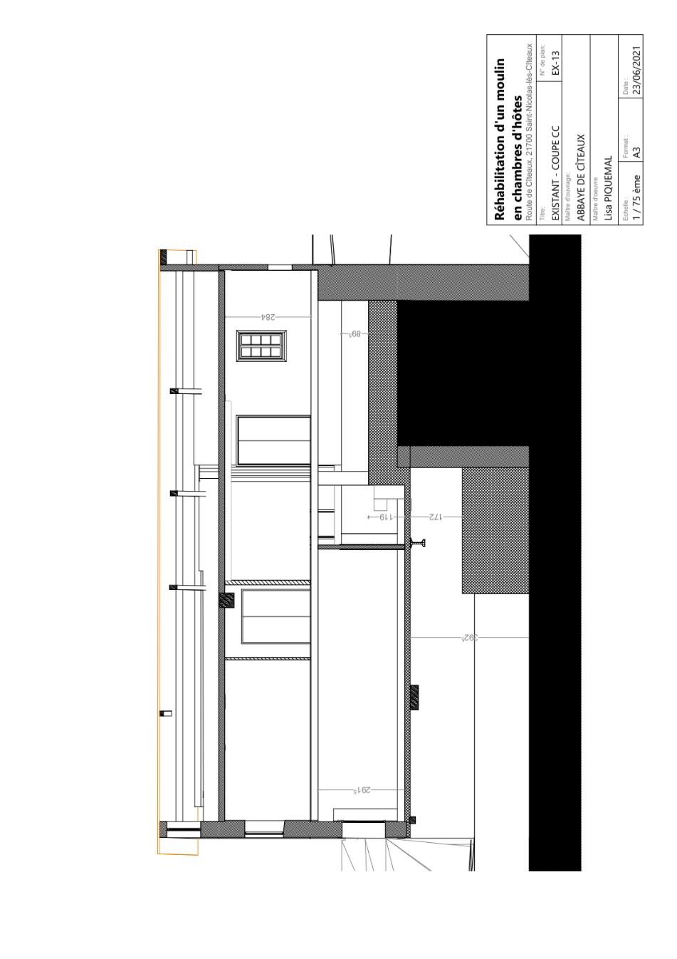
a/ Plan de situation et vue aérienne b/ Plans cadastraux c/ Plan masse d/ Plans (Rdc, R+1, R-1, R-2) e/ Elévations f/ Coupes g/ Détails .

2.PLANSDUPROJET

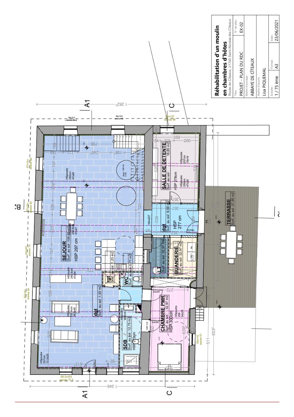
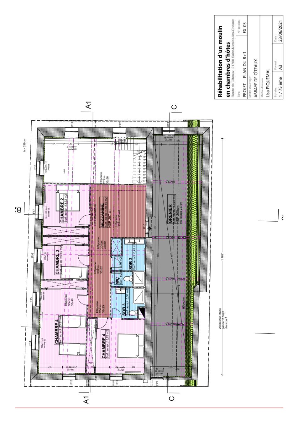
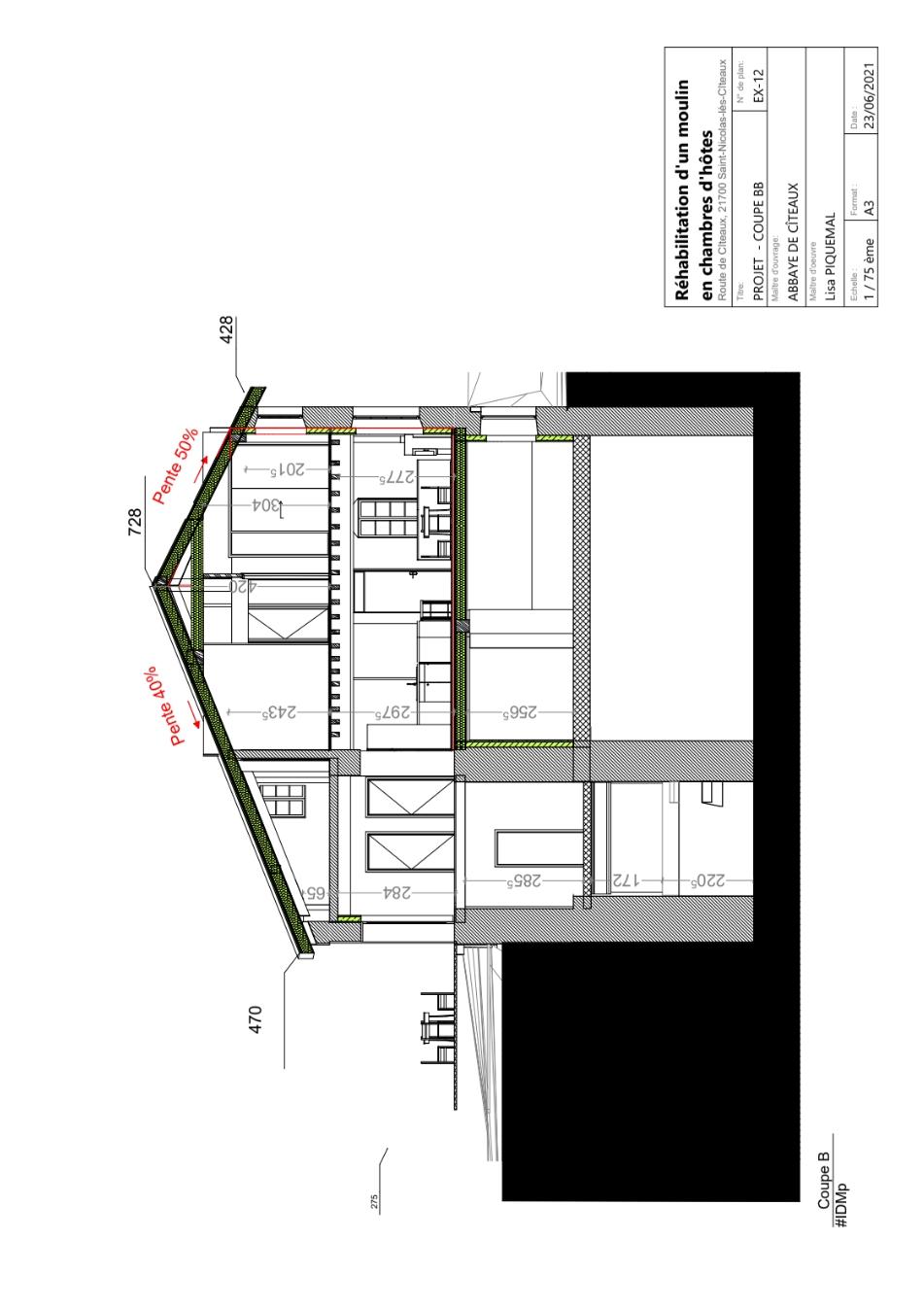
a/ Plan de toiture, plan masse b/ Plans (Rdc, R+1, R-1, R-2) c/ Élévations d/ Coupes e/ Détails

3.MISEEN EXÉCUTION

a/ Métrés b/ Descriptifs des travaux

S
OMMAIRE .
2

1.PLANDESEXISTANTS

.

Carte IGN

Photo satellite Google Earth

3

cadastre.gouv Géoportail de l'urbanisme

Informations sur la parcelle

Commune : Saint-Nicolas-lès-Cîteaux

N° de la parcelle : 0097

Section : 0A

Zonages(s) : Classement Na, zone naturelle

SCOT, schéma de cohérence territoriale des agglomérations de Beaune, Nuits Saint Georges et Gevrey-Chambertin

b/Plancadastraux
4

Bâtiment situé dans le périmètre de 150 mètres de Monument Historique soumis à l’appel d’un ABF (architecte des bâtiments de France) pour le dépôt de permis de construire sur l’aspect extérieur des travaux. c/Planmasse

5
6
7
8
9
10
11
12
13
14
15
16

2. DESSINSTECHNIQUESDU PROJET

.

Perspective -avant Perspective -avant

17
18
19
20
.
21
22
23
. 24
25
. 26

3. MISE EN EXECUTION

a/ Métrés

.

1. Récapitulatif des surfaces existantes (m²)

Emprise au sol (hors appentis) 238,1

Total du périmètre 63,40 ML

Surface du plancher

RDC 197,70

R+1 200,70

R-1 179,50

R-2 11,10 Appentis 88,80

Total surface de plancher (hors appentis) 604,6

Surface des façades

Façade Nord 75 Façade Sud 105 Façade Est 142 Façade Ouest 92

Total surface des façades 414

Surface des ouvertures en façade

Façade Nord 9,70

Façade Sud 10,80 Façade Est 19,30 Façade Ouest 9

Total des surface des ouvertures en façade 48,80

27
28

DEMARRAGE DU CHANTIER

Tous les lots concernés par les travaux devront respecter les conditions suivantes :

- Accessibilité pour tout type d’engins par le portail de la porterie (code d’accès fourni au conducteur de travaux)

- Branchement de l’alimentation au bâtiment de l’aile Lenoir par le biais d’enrouleurs (privilégier les appareils sans fil)

- Fourniture en eau avec un tuyau d’arrosage au niveau de l’hôtellerie

- Equipement obligatoire de protection individuel (EPI) : gants, casque, lunette de protection, chaussures de sécurité, autres à définir.

- Possession d’une trousse de secours pour chaque équipe.

- Nettoyage et rangement avant et après chaque intervention dans une pièce du bâti existant

- Tri des déchets par type et pour réutilisation/réemploi. A déposer à l’extérieur sous bâche, réutilisation des sacs usagés, disposition de bennes à gravats

b/DESCRIPTIFDESTRAVAUX
29

MAÇONNERIE

Intervention

Les façades doivent être nettoyées des imperfections de l’ancien enduit afin de pouvoir travailler sur un support propre avec les nouveaux enduits. L’intervention concerne aussi bien l’intérieur que l’extérieur.

Équipement pour toutes les interventions

- EPI

- Lunettes de protection - Casque anti-bruit - Masque anti poussière - Echafaudage

1. MISE A NIVEAU DE L’ARASE DES MURS

Organisation de chantier Nombre de personnes : 1 Temps d’exécution : 1 journée

Outillage

- Massette - Pointerolle

- Balayette - Règle de 4 m - Niveau à bulle - 4 Serre-joints de maçon - Scie circulaire

Quantitatif

- 3 Planches de coffrage de 3 m ; - Chaux NHL 3,5

- Terre

30

Mode d’exécution

La longueur des trois murs concernés font 19 mètres

1) Purger et nettoyer l’arase en retirant les éléments non solides.

2) Repérer le point le plus haut de l’arase actuelle à l’aide d’une règle et d’un niveau à bulle

3) Placer le long de l’arase 2 planches de part et d’autres en les faisant tenir avec un serre-joint pour le coffrage

4) Remplir le coffrage par le mélange de mortier

5) Décoffrer après que le mortier ait bien tiré.

- Sable
31

3. REALISATION DES ENDUITS EXTÉRIEURS

Organisation du chantier Nombre de personne : 3

- 1 personne pour la préparation du mortiers - 2 personnes pour l’application 10 m² par jour par personne Temps estimé à 14 jours

Outillage

- Taloche - Taloche crantée - Truelle ronde - Truelle carrée - Langue de chat - Brouette - Pelle - Seaux - Bétonnière et/ou malaxeur - Tuyau d’arrosage - Tamis - Auge - Brosse de chiendent

Quantitatif

Surfaces en m² Enduit extérieur 365,20 Enduit de sous-bassement 50,70 - hauteur 80cm

Chaux hydraulique NHL 3,5 Sac de sable 0-3/0-5 mm Eau

Acide chlorhydrique

Par m² - 2,5 kg pour le gobetis (7 mm)

32

- 3,5 kg pour le corps de l’enduit (15 mm)

- 1,5 kg pour une finition extérieure grattée (2 mm)

- 1 kg pour une finition intérieure talochée de (2 mm)

Dosage

Il faut en moyenne 1 sac de chaux pour 30 m². Nous avons utilisé 4 volumes de sable pour 1 volume de chaux pour chaque couche sur un mur ancien

La finition est dosée avec 3 volumes de sable pour 1 volume de chaux.

Mode d’exécution

• Piquage : enlèvement de l’enduit existant en mauvais état

• Nettoyage à l’eau courante et brosse de chiendent Brosser le support à la brosse de chiendent et/ou gratter à a truelle. Nettoyer les pierres si besoin avec un mélange de 30% d’acide chlorhydrique et 70% d’eau à l’aide d’une éponge.

Rejointoiement

C’est la reprise ponctuelle des joints à la chaux : fissures, assises, linteaux, joints usés. Pose à l’écrasé à la truelle ronde et langue de chat.

Etapes pour toutes les couches d’enduit :

- Préparation de l’enduit avec un mélangeur dans une bauge

- Mouiller à l’eau courante le support (environ 1 m²) à l’aide d’une brosse à chiendent et une éponge.

- Poser l’enduit du bas vers le haut si possible.

- Ne pas hésiter à laisser la chaux "tirer" un instant (le fait de sécher pour gagner en adhérence).

Retravailler les surfaces trop lisses pour la prochaine accroche en grattant « a fresco » (enduit encore frais).

- Appliquer l’enduit sur l’ensemble de la maçonnerie sauf les éléments en pierre : appuis et linteaux de menuiseries, chaîne d’angles. Il faudra arrondir les bords en terminant avec moins d’enduit.

• Gobetis (ép. 0,7 cm)

C’est la couche d'accrochage liquide jetée afin de mettre en place des couches d'enduits successifs et rendre un support lisse plus rugueux.

Pose au jeté à la truelle ronde ou carrée avec un aspect granuleux.

33

• Corps d’enduit (ép. 1,5 cm)

C’est la couche la plus épaisse de l'enduit qui s'accroche par les joints et prépare la couche de finition.

Appliquer l’enduit avant le séchage du gobetis estimé à environ 48h.

Pose au jeté à la taloche en couches successives pour un aspect uniforme, tiré et lissé.

• Enduit de finition : badigeon sable fin-chaux sur l’ensemble des maçonneries, teinte crème (ép. 2 mm)

C’est le plus fin et le moins riche en liant.

Le sable est tamisé fin : granulat 0-2 mm.

Pose à la truelle ou platoir en lissant.

Compter un jour par surface.

4. REALISATION DES ENDUITS INTÉRIEURS

Organisation du chantier Nombre de personne : 3

- 1 personne pour la préparation du mortiers

- 2 personnes pour l’application Réalisation de 20 à 30 m² par jour par personne..

Temps estimé : 18 jours

Outillage (idem enduit extérieur) Projeteur

Équipement (idem enduit extérieur)

Quantitatif

Enduit intérieur en béton de chaux-chanvre 416

Enduit intérieur de finition à la chaux 747

Chaux hydraulique NHL 2

2 sacs de chaux de 36 kg pour 1 paquet de Granulat Chanvre

Dosage

1 volume de chaux hydraulique naturelle NHL 2 et de CL90 à part égale

1 volume de sable 0-3/0-5 mm

1,5 volume de chanvre

34

50 à 60 litres d’eau

Par exemple, il faut minimum 1,5 m3 pour enduire 30 m² avec 5 cm d’épaisseur.

Mode d’exécution

Préparation du support

Enlever l’ancien revêtement du mur comme précédemment. Humidifier la surface la veille de l’intervention et le jour-même.

Préparation du banchage

Il s’agit d’un coffrage perdu en lattis de bois d’une hauteur de 30 à 40 cm qui sera relevé au fur et à mesure du remplissage pour accélérer le séchage du béton..

1) Clouer les lattis de biais sur l’ossature en respectant à peu près un plein, un vide.

2) Un soubassement en panneaux de liège expansé, collés avec un mortier de chaux et vissés sur l’ossature, est soigneusement préparé sur une épaisseur de 5 cm

3) De la toile de jute est agrafée sur certains poteaux et autour des fenêtres

4) Des planches de coffrage sont placées de biais afin de créer un coffrage pour l’embrasure des fenêtres

5) Des panneaux et planches sont vissés du côté extérieur du mur comme coffrage temporaire

6) Une planche est positionnée en pied de mur à l’épaisseur désirée. Elle facilite le nettoyage tout en permettant de garder le pied de mur droit et propre

7) Le mortier de chènevotte et de chaux est projeté à la machine sur une épaisseur de 25 cm à l’intérieur et de 5 cm à l’extérieur (après décoffrage) au dosage de 300 à 350 kg/m3

8) Talocher à la taloche crantée

• Réalisation d’un béton de chaux chanvre (ép. 80 mm)

1. Le mortier peut être réalisé soit à la bétonnière, soit avec un malaxeur.

2. D’abord introduire la chaux et l’eau jusqu’à obtention d’une pâte homogène.

3. Ajouter ensuite le chanvre et le sable en dernier.

4. Tous les granulats doivent être bien enrobés.

5. Rajouter de l’eau si la consistance est trop sèche.

6. L’application se fait à la truelle.

7. L’épaisseur sera d’environ 20 à 30 mm.

8. Il ne faut pas lisser.

9. Le temps de séchage sera d’environ 7 jours.

35

• Pose de l’enduit de finition sable-chaux, granulométrie fine (ép. 2 mm) (idem enduit extérieur)

36

5. DALLE : REMISE A NIVEAU DU RDC

Organisation du chantier Réalisation de 10 à 15 m² par jour par personne.

Outillage

- Platoir

- Taloche crantée - Truelle ronde - Truelle carrée - Brouette - Pelle - Seaux - Bétonnière et/ou malaxeur - Tuyau d’arrosage - Balai - Auge Équipement (idem enduit)

Quantitatif

Surfaces en m² Ragréage (RDC/R+1) 308

Chape au RDC 196

Revêtement en pierre de Bourgogne 196 - dimensions

Chaux hydraulique NHL 3,5

37

• Nettoyage à l’eau courante du sol (pour tous les niveaux)

• Remise à niveau du sol par ragréage en chaux hydraulique aux RDC et R+1 (ép. 10 mm)

Préparation de la colle

• Pose d’une chape en chaux hydraulique auto-lissant fibrée au RDC (ép. 50 mm)

• Coupure de capillarité et de désolidarisation (film imperméable comprenant couche de sable)

• Pose d’un revêtement en dalle de pierre de Bourgogne au RDC (ép. 15 mm)

Préparation du calepinage au cordeau :

1. Poser en quinconce

2. Tracer un premier axe centré par rapport à l’entrée et parallèle au mur extérieur

3. Tracer deux bordures parallèles à partir des angles au fond de la pièce

4. Tracer une perpendiculaire au niveau de l’angle à droite

Préparation de la barbotine et pose

1. Commencer par le fond de la pièce jusqu’à l’entrée, rangée ligne par ligne.

2. Faire un mélange de colle/barbotine dans une bauge avec un malaxeur.

3. Application de la colle sur la chape d’une surface équivalente à 2 ou 3 dalles à l’aide d’un peigne

4. Beurrer (aspect lisse) la face de dessous d’une dalle avec la colle

5. Poser la dalle placée d’équerre avec des joints de 2-3 mm entre dalle

6. Vérifier le niveau en tapotant avec un maillet 7. Nettoyer le surplus en bordure 8. Répéter le processus sur toute la surface souhaitée 9. Laver à l’éponge le dallage progressivement

10. Terminer par les découpes de finition en bordures en réservant 3 mm de joint périphérique (pour cacher plinthe, liège de rupture de pont thermique) 11. Après séchage, balayer ou aspirer la surface et gratter à la truelle les imperfections au préalable 12. Nettoyer à l’eau courante

Pose du joint

• Application en 3 couches avec truelle et rouleau

• Laver à l’éponge le dallage progressivement

• Après séchage, laver l’ensemble, balayer

Mode
38

Entretien

Application d’une solution hydrofuge

Application de savon noir sur le sol sec

39

CHARPENTE-COUVERTURE

Intervention

Réfection de la couverture après arase des murs.

Organisation du chantier

Nombre de personnes : 2

Réalisation de 10 à 15 m² par jour par personne. Surface à exploiter : 295 m² Temps d’exécution : 15 jours

Outillage

- Marteau de charpentier

- Pied de biche

- Scie circulaire - Disqueuse - Mettre ruban

- Rabot électrique

- Ciseau à bois - Masse

- Scie radiale

- Visseuse à choc

- Cordeau à poudre pour tracer

Équipement

- Echafaudage

- Echelle de couvreur

- Harnais de sécurité

- Cordage - Casque anti-bruit - Lunettes de protection

40

Quantitatif

Panne (faîtière et sablière) en douglas 79 ML - dimensions 50x80 cm - 2 pannes de longueur totale 19,80 - 2 pannes de longueur totale 19,85

Liteau en épicéa 874 ML - dimensions 8x30 mm - quantité 46 - longueur totale 19 - entraxe 35 cm

Chevron en douglas 490 ML - dimension 8x10 cm - quantité 33 - longueur totale 5,30+9,56

Planche de rive 69,40 ML - ép 22 cm

Tuiles Grand moule 295 m² - dimensions 43,5x25,5 cm - pureau 35 cm - 12 tuiles/m² Qtité 3540

Tuiles de faîtage arêtier à emboîtement de 40 - dimensions 46,5x24,2 cm - longueur totale 19,83 m Qtité 42

Tuiles de rive universelle de 33 à visser - dimensions 38x22,5 cm - longueur totale 29,72 m Qtité 78 Tuile à douille diam. 120 mm Lanterne diam. 120 mm

Ecran de sous-toiture 271,74 m²

41

Mode d’exécution

1. DÉPOSE DE LA COUVERTURE

Dépose du faîtage

Dépose des tuiles

Dépose du lattage et contre-lattage Dépose du chevronnage

Evacuer au fur et à mesure les éléments en mettant de côté les tuiles intactes.

2. POSE DE LA COUVERTURE

Calcul du pureau

C’est la partie de la tuile visible qui n'est pas recouverte par la rangée supérieure.

Les paramètres à prendre en compte sont :

• en région II (site normal)

• Versant A (est)

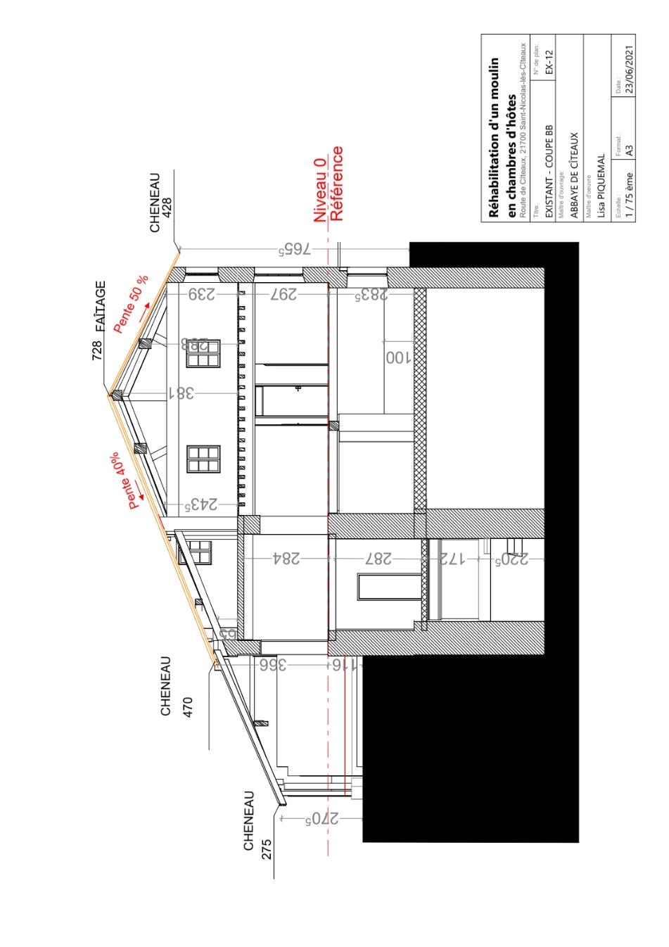
- la pente de la toiture est de 26,70° soit 50 %.

- la projection horizontale PH du rampant est de 429 mètres

• Versant B (ouest)

- la pente de la toiture est de 21,60° soit 40%.

- la projection horizontale PH du rampant est de 863 mètres

Le choix des dimensions des tuiles mécaniques en terre crue sont 43,5x25,5 cm à pureau variable. Nous choisirons une moyenne de 35 cm, qui correspond à l’espacement entre liteaux.

Traçage des ournes

1. Tracer le trait carré au cordeau à poudre (tracé vertical) perpendiculaire aux liteaux, de l’égout au faîtage, pour obtenir les liaisons.

2. Utiliser un liteau qui sert de pige pour tracer la largeur de l’ourne correspondant à la largeur totale de 3 ou 4 tuiles.

3. Prévoir l’emplacement des ventilations et du conduit du poêle pour effectuer des découpes

Pose des pannes sablières et intermédiaire

1. Positionner les pannes sur l’arase de niveau.

42

Pose du chevronnage

1. Positionner les poutres en entablure avec les sablières neuves.

2. Vérifier l’aplomb et le niveau

3. Présenter simultanément 2 poteaux avec une traverse dans chacune des poutres

4. Positionner les 2 traverses reliant les 2 groupes de poteaux, les sangler provisoirement en partie haute

5. Positionner par enfourchement le cadre et l’enrayure du lanternon

6. Cheviller après avoir vérifié les aplombs et niveaux des différentes pièces

7. Positionner et clouer les chevrons

8. Poser la volige sur un pan en commençant par le bas, la clouer (clous de 70mm) sur les chevrons et les chevrons d’arêtier.

9. Faire un trait au cordeau traceur sur les voliges en se positionnant sur l’axe de l’arêtier

10. Scier l’excès de volige à la scie circulaire suivant le trait

Pose du pare-pluie, écran de sous-toiture pour la perméabilité à la vapeur d’eau

1. Procéder de bas en haut par rangée.

2. Fixer l’écran de sous-toiture sur les chevrons avec un espacement.

• Pose des contre-lattes à clouer qui viennent fixer le pare-pluie.

Pose des liteaux

Le sens de pose est perpendiculaire à la pente du versant avec un appui minimum de 3 chevrons. L’espacement est équivalent à la valeur du pureau soit 35 cm.

Les coupes se feront à la scie. Il faudra faire des jonctions sur un chevron. Pointer au marteau de couvreur les liteaux sur les chevrons.

• Pose des tuiles

Commencez toujours du bas vers le haut et en diagonale.

Pas besoin de fixation pour un degré de pente inférieur à 60. La pose s’effectue par emboîtage. La rive tuile mécanique se pose avec des tuiles mécaniques spéciales pour les arrêts de toit.

Pour la pose du faîtage, les faîtières sont vissées.sur un liteau au sommet.

Terminer par la pose des tuiles de rive avec un dernier liteau en bordure, celles-ci sont vissées sur la planche de rive.

43

PLÂTRERIE / ISOLATION

Organisation du chantier Réalisation de 10 à 15 m² par jour par personne.

Outillage

- Perceuse, visseuse

- Disqueuse - Marteau

- Mettre ruban - Scie sauteuse - Scie circulaire - Scie crocodile - Couteau ondulé

Équipement - EPI - Casque anti-bruit - Lunettes de protection - Masque anti-poussière - Escabeau

Quantitatif

Ouate de cellulose -------------------------------------------- 210 m² panneaux en deux couches croisées

Laine de bois -------------------------------------------------- 196 m² ép. 240 mm (R= 6 m².K/W) : panneaux en deux couches croisées

Pare vapeur --------------------------------------------------- à définir - toiture - murs - sol

Panneaux OSB ___________________________ à définir - toiture - plancher RDC

Suspente _______________________________ à définir

44

- rails - suspension

Revêtement parquet pin ____________________ 167,28 m² - dimensions 100x21mm / ép. 8 mm

Mode d’exécution

1. ISOLATION CHARPENTE

• Pose d’un frein vapeur

Ce film régule la vapeur et est étanche à l’air pour éviter les déperditions de chaleur

Créer une ossature bois à partir de tasseaux fixés aux chevrons.

Coller le frein vapeur avec des agrafes sur les montants côté intérieur.

Coller un ruban adhésif double-face sur les montants bois.

Bien tendre le frein vapeur avec une main vers le bas et coller le long du montant de haut en bas avec l’autre main. Veillez à faire un débord de 10 cm environ et vérifier la verticalité avec les strilles du support.

• Pose de ouate de cellulose en rouleau entre solives

• Pose d’un panneau OSB (16 mm) vissé sur des tasseaux fixés aux chevrons

• Pose d’un plénum pour réserver les spots lumineux vissé sur des tasseaux fixés sur les panneaux

A savoir que tout matériel électrique et source de chaleur sont interdits au sein de l’isolation, à fixer en dehors.

2. ISOLATION PLANCHER BAS

Pose de laine de bois

Faire en sorte que les panneaux d’isolant soient jointifs entre eux ainsi qu’avec le sol et le plafond afin d’éviter les ponts thermiques. La pose doit être faite avec le souci de comprimer l’isolant sur le mur d’origine afin d’assurer la continuité capillaire si le mur est perméable à la vapeur d’eau.

45
46

Turn static files into dynamic content formats.

Create a flipbook
Issuu converts static files into: digital portfolios, online yearbooks, online catalogs, digital photo albums and more. Sign up and create your flipbook.
Mémoire technique - Réhabilitation d'un moulin by Lisa Piquemal - Issuu