portfolio

Page 1

Architecture Portfolio
LILIANA RIVERA portfolio. 2020-2023

SOBRE MÍ

LILIANA RIVERA

ARCHITECT

EXPERIENCIA LABORAL

DATOS

ACADÉMICOS

PROGRAMAS

SEMINARIOS/CURSOS

27/09/1999

6367-4758

IDIOMAS SERVICIO SOCIAL

lilianajriverag@gmail com

Los Ríos, Canal Zone

Hola! Mi nombre es Liliana Rivera, actualmente estoy estudiando Arquitectura estructural en la universidad Santa María la Antigua Me considero creativa, responsable, apasionada por mi carrera y organizada en el trabajo, siempre a la expectativa de aprender nuevos conocimientos y experiencias

DiseñadorJunior. - pasantia

OPERAA STUDIO

Diseño de iInteriores

Modelado 3D

Renderización

Diseñador Junior. - pasantía MM Interiores (Monique Mulino)

Diseño de interiores

Planos arquitectónicos

Renderización

Colegio San Vicente de Paul Bachiller en Ciencias | 2017

Universidad Santa Maria La Antigua Arquitectura Estructural | 2024

Autocad SketchUp Adobe Photoshop InDesign

D5 Render Adobe Lightroom

3Ds max

l Primer Congreso de Patrimonio, COARQ (2019)

Congreso de Arquitectura y Diseño COARDI (2021)

Taller de Mastermind "Importancia del Wayfinding" (2021) Mallol Arquitectos

Español: Nativo.

Fanlyc - 2017

Hogar Divino Niño -2017

Fundación espacio Creativo - 2024

Inglés: Nivel basico.

.

proyectos

Hotel en Calidonia

Casa del Lago

nuestro logo

El arte Capsulado

Uso Mixto

Cementerio la Paz

Mobiliario Casa Alfaro

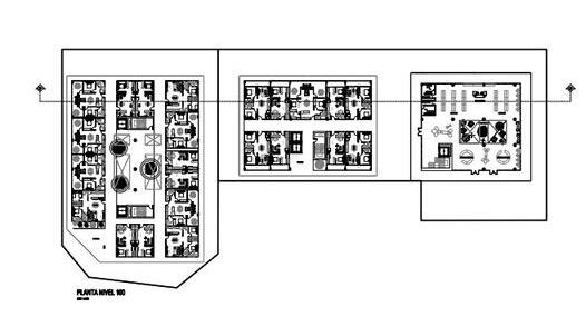
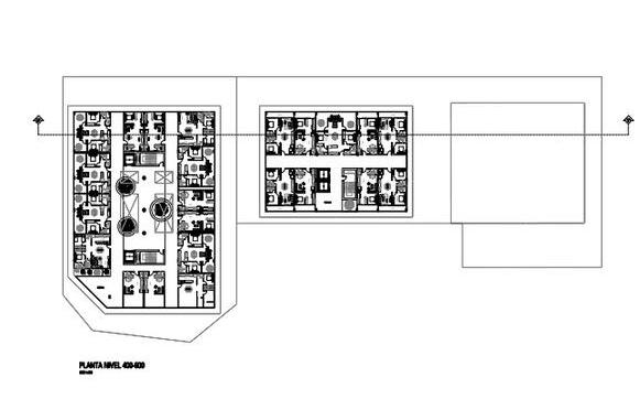
El Hotel se encuentra localizado en Calidonia, entre Calle 32 Este y Avenida Justo Arosemena, Ciudad de Panamá Donde se puedan ejecutar actividades amenas para sus usuarios, así como un ambiente cómodo y universal Su volumen se caracteriza por su forma circular que se divide por 3 volumentes de diferentes altura, que resalta con las distintas edificaciones dandole al sitio un ambiente moderno

H O T E L E N C A L I D O N I A 01 l

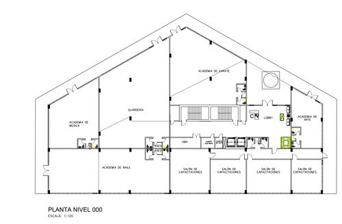
Planta Nivel 000

AMINISTRACION Y LOCALES COMERCIALES

Planta Nivel 001

AREA RECREATIVA AREA RECREATIVA

Planta Nivel 002

AREA SOCIAL AREA SOCIAL

Planta Nivel 003-004

HABITACIONES SENCILLAS SENCILLAS

Planta Nivel 005-006

HABITACIONES DOBLES HABITACIONES DOBLES

Planta Nivel 007

Planta Nivel 008-009

RESTAURANTE SUITES

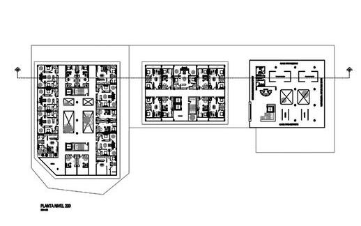
El proyecto se encuentra ubicado entre la Calle 1 Perejil, 2da Perejil y avenida Central,Corregimiento de Calidonia, Panama Nace desde la perspectiva del peaton inspirandonos del movimiento y el flujo de una ciudad caminable , abriendo paso a esta gran plaza central que es rodeada de residencias que se rigen en el proyecto dandole proteccion a la plaza, acompañada de caminos que crean un recorrido e invitan al usuario con sus grande aberturas a que forme parte de la vida que se encuentra en ella.

M I X E D U S E 02 RETAIL, OFFICE AND RESIDENCE l

TORRE ARBOLEDA

TORRE GUAYACAN

TORRE JACARANDA
Exploded Axonometric

PLANTA

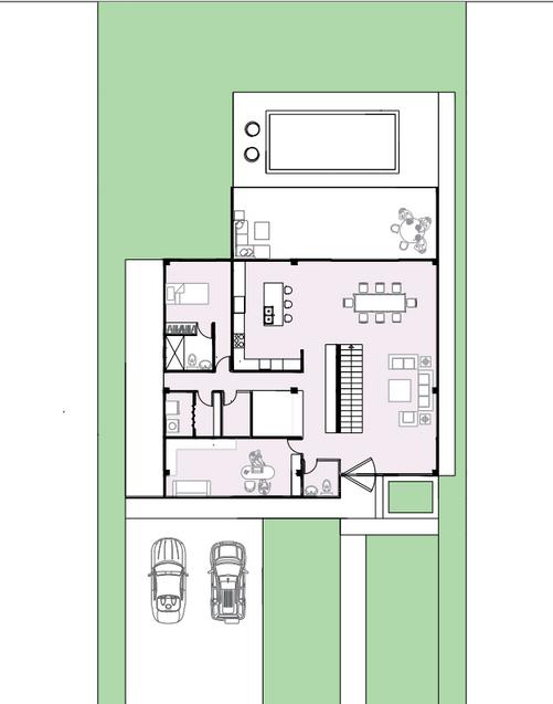
La residencia se encuentra ubicada en Santa Maria , cuenta con 483 14 m2 con vista hacia el lago con jardines que le brindarán a su familia un ambiente de paz y armonía. Contiene una circulacion directa y fluida , su volumetria sencilla pero varia con llenos y vacios generando sombras, compuesta por materiales naturales que se integran con la naturaleza.

ARQUITECTONICA PLANTA BAJA NIVEL 000
C A S A D E L L A G O 03 l
PLANTA ALTA NIVEL 100
,

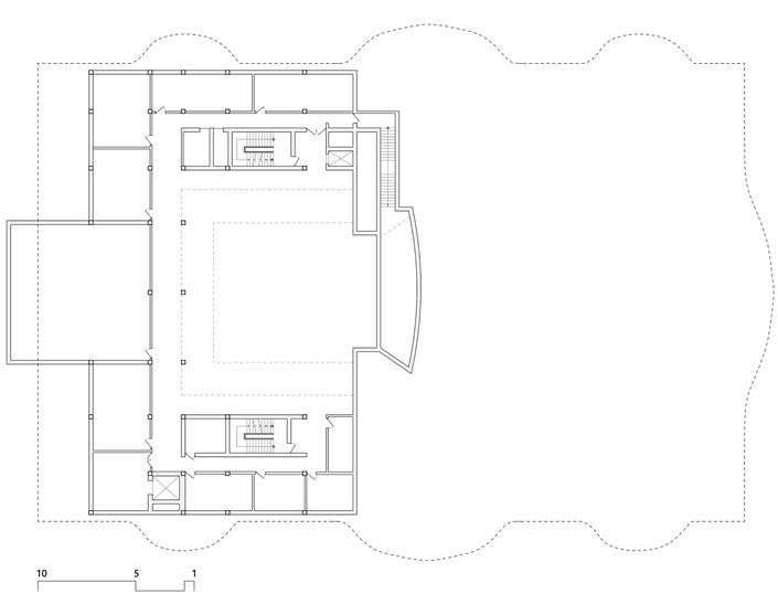
Este proyecto se trata de diseñar un teatro como principal actividad cultural en conjunto con una plaza recreativo, teniendo como objetivos, la convivencia de familia y atracción de turismo Partiendo de un análisis de sitio se pudo estudiar desde distintos aspectos la topografía, el asoleamiento, y viento para así finalmente definir la orientación del edificio principal El exterior del teatro se creó mediante la idea de movimiento de un telón, siendo reflejada en el perímetro de las fachadas. El interior del teatro se toma en cuenta la armonía de los elementos fundamentales. La plaza se diseña en contraste con el edificio principal, siendo como un complemento, adornado de arboledas y espejos de agua dando un reflejo confortable al teatro dado a que las personas que visiten el lugar estén a gusto de recorrer el jardín

MasterPlan 1 2 3 4 5 6 7 8 9 Entradaabierta Estacionamientos semi-soterrados Jardínverde Accesovertical Escalinataverde
Teatro
E L A R T E E N C A P S U L A D O 04 l
Espejodeagua
Cargaydescarga Equipamentos

El edificio está compuesto por volúmenes simétricos con diferentes alturas cuya morfología busca imitar las vistas de un escenario y es cubierta con una fachada que cae sobre dichos volúmenes dando la impresión de que son cubiertos por un telón que representa de manera grafica la funcionalidad del edificio pero con una solucion elegante y algo diferente haciendo que no pase desapercibido por el peatón es la representación de una fachada simple pero hermosa que lleva consigo un contexto simbólico dónde resalta la belleza de teatro y su participación con el público La piel del edificio está formada por louvers posicionados de manera que se formen curvas sobre el edificio, creando dinamismo visual y representando esa curvatura que se forma en el telón

Camerinogrupal Camerinoindivi cargaydescarga depdisfraces depsonidos depiluminaciòn cuartodeuma cuartoelectrico cuartodedata

nivel000 nivel100 nivel-100
SecciónLongitudinal
1 2 3 4 5 6 7 8 9 10 11 Nivel000 lobby tiquetera escalera cafeteria y snackbargiftshop asientos escenario caseo greenroom cocineta utileria 12 13 14 15 16 17 18 19 20 programadediseño
ElevaciónLateralIzquierda

escaleraprincipal espaciodearte espaciodeestar asientosespeciales escenario cabinadecañones depòsito oficinasdeadmin

Una parte muy importantedelteatroes que brinda a sus usuariosexperien-cias de arte en sitios especificos del mismoAlrecorrerelteatro se disfruta de muchasgaleriasensus niveles dando un mensaje que simboliza‘‘elpoderdel arte’’

5 SecciónTransversal nivel200 nivel300 Plantadeestacionamientos ElevaciónFrontal 1 2 3 4 5 6 7 8 9 Nivel200y300 vacioconector

El proyecto consiste en un cementerio con múltiples opciones de espacios de sepultura, luto como criptas, nichos, una capilla y abundantes areas verdes Además su circulación significativa para mantener la percepción de la espiritualidad Para el desarrollo del cementerio se baso en el símbolo cristiano conocido como Ichtus formado por dos arcos que se asemejan a la figura de un pez

C E M E N T E R I O L A P A Z 05 l

El proyecto consiste en diseñar el mobiliario fijo de una casa para un musico en donde el mobiliaro contiene el mismo lenguaje y semetria. Ademas de la selección de mobiliario para sala, comedor, bar, estudio de música, recámara principal, secundaria y terraza

Diseño de mobiliario fijo para SALA en mdf hidrófugo revestido en chapilla de roble natural, con módulos abiertos para librero

P R O Y E C T O C A S A A L F A R O M E L O - O P E R A A S T U D I O 06 l

Diseño de mobiliario fijo para COMEDOR en mdf hidrófugo revestido en chapilla de roble natural.

Diseño de mobiliario fijo para ESTUDIO en mdf hidrófugo revestido en chapilla de roble natural, con vitrina para exhibición de instrumentos, escritorio y módulos cerrados para almacenaje

Diseño de mobiliario fijo tipo CAVA DE VINO en mdf hidrófugo revestido en chapilla de roble natural, con módulos abiertos de 10x10 cm para inserción de botellas y modulos cerrados para almacenaje

Diseño de mobiliario fijo para CLOSET PRINCIPAL en mdf hidrófugo revestido en chapilla de roble natural, con distribución interna para armario y módulos fijos para instalación de tv.

ANEXO Renders Diseño de Interior

Turn static files into dynamic content formats.

Create a flipbook
Issuu converts static files into: digital portfolios, online yearbooks, online catalogs, digital photo albums and more. Sign up and create your flipbook.