portfolio.
Architecture Portfolio
LILIANA RIVERA
2020-2023

![]()
2020-2023

6367-4758
SOBRE MÍ
EXPERIENCIA LABORAL
DATOS ACADÉMICOS
PROGRAMAS
SEMINARIOS/CURSOS
IDIOMAS
SERVICIO SOCIAL
Lilianajriverag@gmail com
Hola! Mi nombre es Liliana Rivera, Soy arquitecta, me considero una persona creativa, responsable, apasionada por mi carrera Disfruto explorar diferentes ramas de la arquitectura y siempre estoy en busca de nuevos conocimientos y experiencias que me permitan crecer tanto profesional como personalmente Me motiva que para formar parte de los sueños y necesidades de las personas significa diseñar espacios que no solo sean funcionales y estéticos, sino también reflejos de sus historias, emociones y forma de vida
OPERAA STUDIO
Diseñador interno - febrero - abril 2023
Diseño de interiores, Modelado 3D,Renderizacion
MALLOL ARQUITECTOS
Arquitecto junior interno - julio - diciembre 2024
Contribuí en la creación de presentaciones visuales para proyectos, el rediseño de mobiliario fijo, Modelado 3D,cotizaciones y gestioné trámites para la aprobación de planos,Además, asistí a inspecciones en obra para comprender mejor el proceso de construcción
Universidad Santa Maria La Antigua Arquitectura Estructural | 2024
Autocad SketchUp Adobe Photoshop InDesign
D5 Render Adobe Lightroom
3Ds max + Vray
l Primer Congreso de Patrimonio, COARQ (2019)
Congreso de Arquitectura y Diseño COARDI (2021) Taller de Mastermind "Importancia del Wayfinding" (2021)
Mallol Arquitectos
BIM coordinador - Curso Actualmente
Español: Nativo
Fanlyc - 2017
Hogar Divino Niño -2017
Fundación espacio Creativo - 2024
Reef Restoration Panamá
Inglés: Nivel basico
Hotel en Calidonia
El arte Capsulado
Uso Mixto
Cementerio la Paz
Mobiliario Casa Alfaro
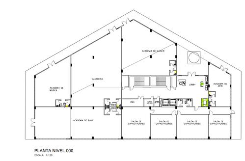
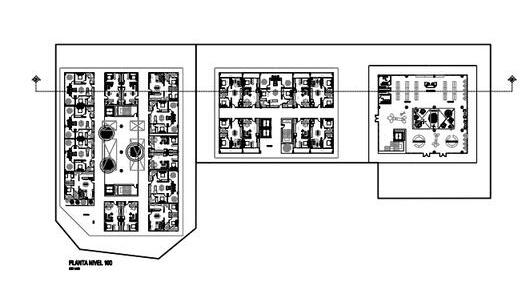
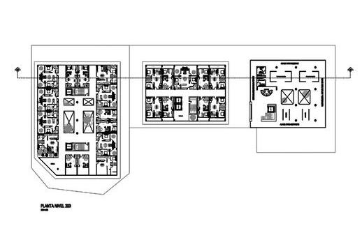
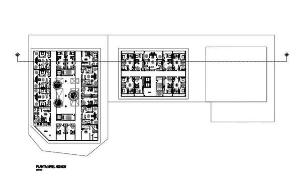
El Hotel se encuentra localizado en Calidonia, entre Calle 32 Este y Avenida Justo Arosemena, Ciudad de Panamá Donde se puedan ejecutar actividades amenas para sus usuarios, así como un ambiente cómodo y universal Su volumen se caracteriza por su forma circular que se divide por 3 volumentes de diferentes altura, que resalta con las distintas edificaciones dandole al sitio un ambiente moderno



AMINISTRACION Y LOCALES COMERCIALES AREA RECREATIVA AREA RECREATIVA



HABITACIONES SENCILLAS SENCILLAS

HABITACIONES DOBLES HABITACIONES DOBLES

RESTAURANTE SUITES



El proyecto se encuentra ubicado entre la Calle 1 Perejil, 2da Perejil y avenida Central,Corregimiento de Calidonia, Panama Nace desde la perspectiva del peaton inspirandonos del movimiento y el flujo de una ciudad caminable , abriendo paso a esta gran plaza central que es rodeada de residencias que se rigen en el proyecto dandole proteccion a la plaza, acompañada de caminos que crean un recorrido e invitan al usuario con sus grande aberturas a que forme parte de la vida que se encuentra en ella.















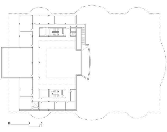
Este proyecto se trata de diseñar un teatro como principal actividad cultural en conjunto con una plaza recreativo, teniendo como objetivos, la convivencia de familia y atracción de turismo Partiendo de un análisis de sitio se pudo estudiar desde distintos aspectos la topografía, el asoleamiento, y viento para así finalmente definir la orientación del edificio principal El exterior del teatro se creó mediante la idea de movimiento de un telón, siendo reflejada en el perímetro de las fachadas. El interior del teatro se toma en cuenta la armonía de los elementos fundamentales. La plaza se diseña en contraste con el edificio principal, siendo como un complemento, adornado de arboledas y espejos de agua dando un reflejo confortable al teatro dado a que las personas que visiten el lugar estén a gusto de recorrer el jardín

Entradaabierta Estacionamientos semi-soterrados Jardínverde Accesovertical Escalinataverde Espejodeagua Teatro Cargaydescarga Equipamentos


El edificio está compuesto por volúmenes simétricos con diferentes alturas cuya morfología busca imitar las vistas de un escenario y es cubierta con una fachada que cae sobre dichos volúmenes dando la impresión de que son cubiertos por un telón que representa de manera grafica la funcionalidad del edificio pero con una solucion elegante y algo diferente haciendo que no pase desapercibido por el peatón es la representación de una fachada simple pero hermosa que lleva consigo un contexto simbólico dónde resalta la belleza de teatro y su participación con el público
La piel del edificio está formada por louvers posicionados de manera que se formen curvas sobre el edificio, creando dinamismo visual y representando esa curvatura que se forma en el telón

tiquetera escalera cafeteria y snackbargiftshop asientos escenario caseo greenroom cocineta utileria 12 13 14 15 16 17 18 19 20
Camerinogrupal Camerinoindivi cargaydescarga depdisfraces depsonidos depiluminaciòn cuartodeuma cuartoelectrico cuartodedata










vacioconector escaleraprincipal espaciodearte espaciodeestar asientosespeciales escenario cabinadecañones depòsito oficinasdeadmin
Una parte muy importantedelteatroes que brinda a sus usuariosexperien-cias de arte en sitios especificos del mismoAlrecorrerelteatro se disfruta de muchasgaleriasensus niveles dando un mensaje que simboliza‘‘elpoderdel arte’’






El proyecto consiste en un cementerio con múltiples opciones de espacios de sepultura, luto como criptas, nichos, una capilla y abundantes areas verdes Además su circulación significativa para mantener la percepción de la espiritualidad Para el desarrollo del cementerio se baso en el símbolo cristiano conocido como Ichtus formado por dos arcos que se asemejan a la figura de un pez








El proyecto consiste en diseñar el mobiliario fijo de una casa para un musico en donde el mobiliaro contiene el mismo lenguaje y semetria. Ademas de la selección de mobiliario para sala, comedor, bar, estudio de música, recámara principal, secundaria y terraza

Diseño de mobiliario fijo para SALA en mdf hidrófugo revestido en chapilla de roble natural, con módulos abiertos para librero

Diseño de mobiliario fijo para COMEDOR en mdf hidrófugo revestido en chapilla de roble natural.

Diseño de mobiliario fijo para ESTUDIO en mdf hidrófugo revestido en chapilla de roble natural, con vitrina para exhibición de instrumentos, escritorio y módulos cerrados para almacenaje

Diseño de mobiliario fijo tipo CAVA DE VINO en mdf hidrófugo revestido en chapilla de roble natural, con módulos abiertos de 10x10 cm para inserción de botellas y modulos cerrados para almacenaje

Diseño de mobiliario fijo para CLOSET PRINCIPAL en mdf hidrófugo revestido en chapilla de roble natural, con distribución interna para armario y módulos fijos para instalación de tv.










