
P O R T F O L I O
![]()

P O R T F O L I O

A L E J A N D R O B R I S E Ñ O C O N T R E R A S
Soy un estudiante de noveno semestre de arquitectura en la Universidad de las Américas Puebla (UDLAP). Tengo experiencia en diseño arquitectónico y habilidades en software de modelado 3D, como AutoCAD, SketchUp y Revit, lo que me permite desarrollar proyectos detallados y visualmente impactantes. Me apasiona crear espacios funcionales y estéticamente atractivos, considerando tanto la comodidad y eficiencia de los usuarios como la integración armoniosa con el entorno. He trabajado en proyectos residenciales y comerciales, aplicando principios de sustentabilidad y diseño innovador para ofrecer soluciones que combinen estilo y practicidad.
N T E N I D O
C A S A A L E B R I J E


J A N E I R O
R E V I T A L I Z A C I Ó N D E L C



C A S A A L E B R I J E


Este proyecto arquitectónico se centrará en la creación de una escuela de talleres en San Martín Tilcajete, Oaxaca, con un enfoque en la enseñanza y práctica de dos oficios tradicionales de la región: la creación de alebrijes y el trabajo con telas. Este espacio no solo estará diseñado para fomentar la creatividad y preservar estas tradiciones culturales, sino también para proporcionar un entorno adecuado para que estudiantes y artesanos perfeccionen sus habilidades. El proyecto tiene como objetivo integrar la riqueza cultural de Oaxaca con un diseño funcional y estético que celebre su patrimonio artístico, a la vez que fomenta la colaboración y el aprendizaje entre generaciones.
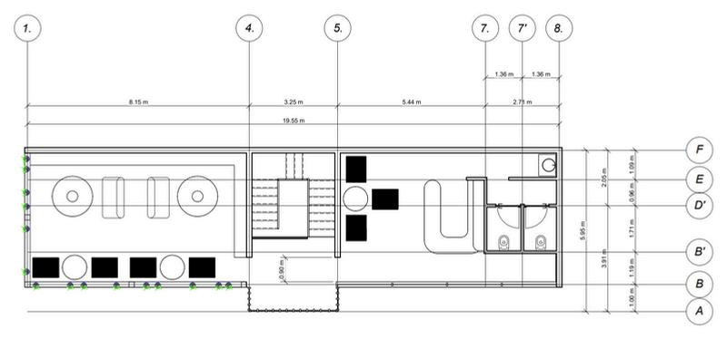
Taller de Escultura en Madera
Espacio dedicado al tallado de las figuras de alebrijes. Podrías equiparlo con herramientas tradicionales y modernas para la talla de madera.
Taller de diseño y dibujo
Lugar donde los artesanos puedan desarrollar bocetos y diseños previos para las figuras, fomentando la creatividad y la planificación de las piezas.
Taller de pintura
Espacio dedicado a la preparación y uso de tintes hechos a partir de plantas, insectos y minerales típicos de la región oaxaqueña. Esto reforzaría el conocimiento sobre prácticas sostenibles.




Taller de telar de pedal
Enseñar el uso de los telares tradicionales, como el de pedal, que es muy característico de la región. Este espacio podría estar equipado con varios telares para que los alumnos aprendan y practiquen.
Taller de bordado tradicional:
Este taller estaría enfocado en la enseñanza de los patrones y técnicas de bordado locales, que suelen incluir elementos naturales y símbolos culturales.
Taller de diseño textil
Un espacio donde se enseñe cómo transformar los tejidos en prendas y otros productos, como accesorios textiles.


Taller de historia y cultura
Fomentar la identidad cultural y el orgullo comunitario a través de la narración de historias y tradiciones locales.
Taller de lenguas indígenas
Un taller donde la herramienta fundamental para preservar la cultura y las raíces de la comunidad.
Taller de Marketing y emprendimiento
Se enseñan habilidades de marketing, venta en línea y gestión de negocios para que los artesanos puedan comercializar sus productos.
Taller de reciclaje y sostenibilidad
Este taller busca educar a la comunidad sobre prácticas ambientales responsables, como la reutilización de materiales y el manejo adecuado de residuos.


Con base a las problemáticas y necesidades que cuenta la comunidad, buscamos que las intenciones arquitectónicas respondan a estos desafíos, promoviendo un enfoque sostenible, inclusivo y cultural. Proponemos un conjunto de intenciones arquitectónicas alineadas con las necesidades del lugar:

Conservación de recursos naturales
Uso de materiales locales
Sistemas ecológicos
Acceso a infraestructura básica
Sistemas autonomos para servicios básicos
Espacios de salud y bienestar comunitario
Preservación de la cultura local
Espacios que celebren la cultura artesanal
Espacios de formación y desarrollo personal
Infraestructura sostenible
Infraestructura para el manejo y captación de aguas
Fomento de la integración e inclusión
Espacios abiertos que integren a la comunidad
Espacios de facil acceso
Integracíon con el entorno natural
Bioarquitectura
Conexión con la naturaleza











R E V I T A L I Z A C I Ó N
D E L C A M P O D E
B É I S B O L “ L A
P R E S A ”

Esta propuesta busca revitalizar un espacio deportivo y recreativo para que los habitantes de la zona puedan disfrutar de un lugar adecuado para el esparcimiento, promoviendo estilos de vida saludables y fomentando la interacción social. Asi mismo, se busca reducir el impacto ambiental mediante el incremento y cuidado de áreas verdes, la creación de infraestructura que permita nuevas opciones de movilidad y la implementación de estrategias para la gestión de residuos.
En conjunto, estas estrategias contribuyen a la mejora de la colonia Guadalupe Hidalgo, el acceso a espacios públicos y áreas verdes, y la movilidad para garanztizar el derecho a la ciudad.
Piedra de cantera: En los senderos por su durabilidad y estética.
Tezontle: como subrasante para drenaje y estabilidad.
Concreto con cimbra de madera en las pérgolas para simular madera natural.
Tartán en el circuito por su amortiguación y seguridad.




Iluminación ambiental para senderos, asegurando visibilidad y seguridad.
Mesas y bancos robustos para áreas de descanso y convivencia.
Estructuras de sombra .
Señalización e iluminación direccional para guiar a los usuarios.

































E S P A C I O
H Í B R I D O : R Í O D E
J A N E I R O

Esta propuesta coloca en la sección izquierda del terreno: VIVIENDA Y OFICINA con su respectivo estacionamiento y su acceso es por la calle AV. CARLOS CHAGAS FILHO. En la sección media incluye: RECREACIÓN Y OCIO y en la parte superior se ubica más espacio de estacionamiento, el cual nos parece mucho mejor debido a que se ubica justamente en la zona centro del terreno, lo que la distancia entre cualqueira de los tres edificios y el estacionamiento es equitativo. el cual se acceder a esta sección por la AV. HORACIO MACEDO. La sección derecha del terreno es: CENTRO CULTURAL y ALOJAMIENTO.
Convivencia
Privada
Servicio


Centroeducativo/cultural













P L A Z A
C O M E R C I A L






