

Av. 4 Pte. , Centro, 72000
Heroica Puebla de Zaragoza, Pue.
ALEJANDRO BRISEÑO CONTRERAS 169808
PATRIMONIO
ARQUITECTÓNICO
DOLORES LOBATO
MACIAS
UNIVERSIDAD DE LAS AMÉRICAS PUEBLA
![]()


Av. 4 Pte. , Centro, 72000
Heroica Puebla de Zaragoza, Pue.
ALEJANDRO BRISEÑO CONTRERAS 169808
PATRIMONIO
ARQUITECTÓNICO
DOLORES LOBATO
MACIAS
UNIVERSIDAD DE LAS AMÉRICAS PUEBLA

Soy un estudiante de noveno semestre de arquitectura en la Universidad de las Américas Puebla (UDLAP).
Actualmente estoy cursando la materia de patrimonio arquitectónico. El concepto de “Patrimonio” se me hace muy interesante, y conforme avanzo en el curso, me doy cuenta de la gran relevancia que tiene en la conservación de la identidad cultural, histórica y arquitectónica de una comunidad.
Me llama especialmente la atención cómo el patrimonio no solo se limita a edificios antiguos o monumentos históricos, sino que también abarca elementos intangibles, tradiciones, costumbres y saberes que forman parte del legado de una sociedad.
El concepto de patrimonio, según la UNESCO, se refiere a todo el legado tanto tangible como intangible que la generación actual hereda de los antepasados. El objetivo de este concepto es identificar, preservar y proteger todo este patrimonio cultural y natural que tenga un valor excepcional para la comunidad en el que se encuentra.
El concepto de Patrimonio viene del latín “Patrimonium”, lo cual se refiere a todos los bienes heredados del padre. Por lo que lo primero que se comenzó a heredar fueron las obras de arte, sin embargo, después de la revolución francesa, se estableció que los bienes considerados como patrimonio fuera un bien común y no solo del clero.
Posteriormente, en el siglo XX, en el año 1931, después de la Pirmera Guerra Mundial, se estableció la Carta de Atenas destacando la imortancia de los monumentos históricos. Para 1954, fue cuando en la convención de la Haya, surgió cómo tal, la palabra “Patrimonio”, centrada en la protección del patrimonio cultural. Años más tarde en 1972, la UNESCO organizo la Covención sobre la Protección del Patrimonio Mundial, tanto natural, cómo cultural. Proponiendo conceptors modernos en lo que se clasifica el patrimonio.
El Patrimonio Natural de clasifican en:
Monumentos Naturales
Zonas Naturales
Patrimonio Paleontológico.
El Patrimonio Cultural se puede dividir, tanto en tangible como intangible, y tanto en mueble, cómo inmueble.
Así también se pueden clasificar los valores de patrimonio, los cuales se dividen en:
Valor de uso, material, simbólico, histórico y emotivo






ABR. 2009 NOV. 2013
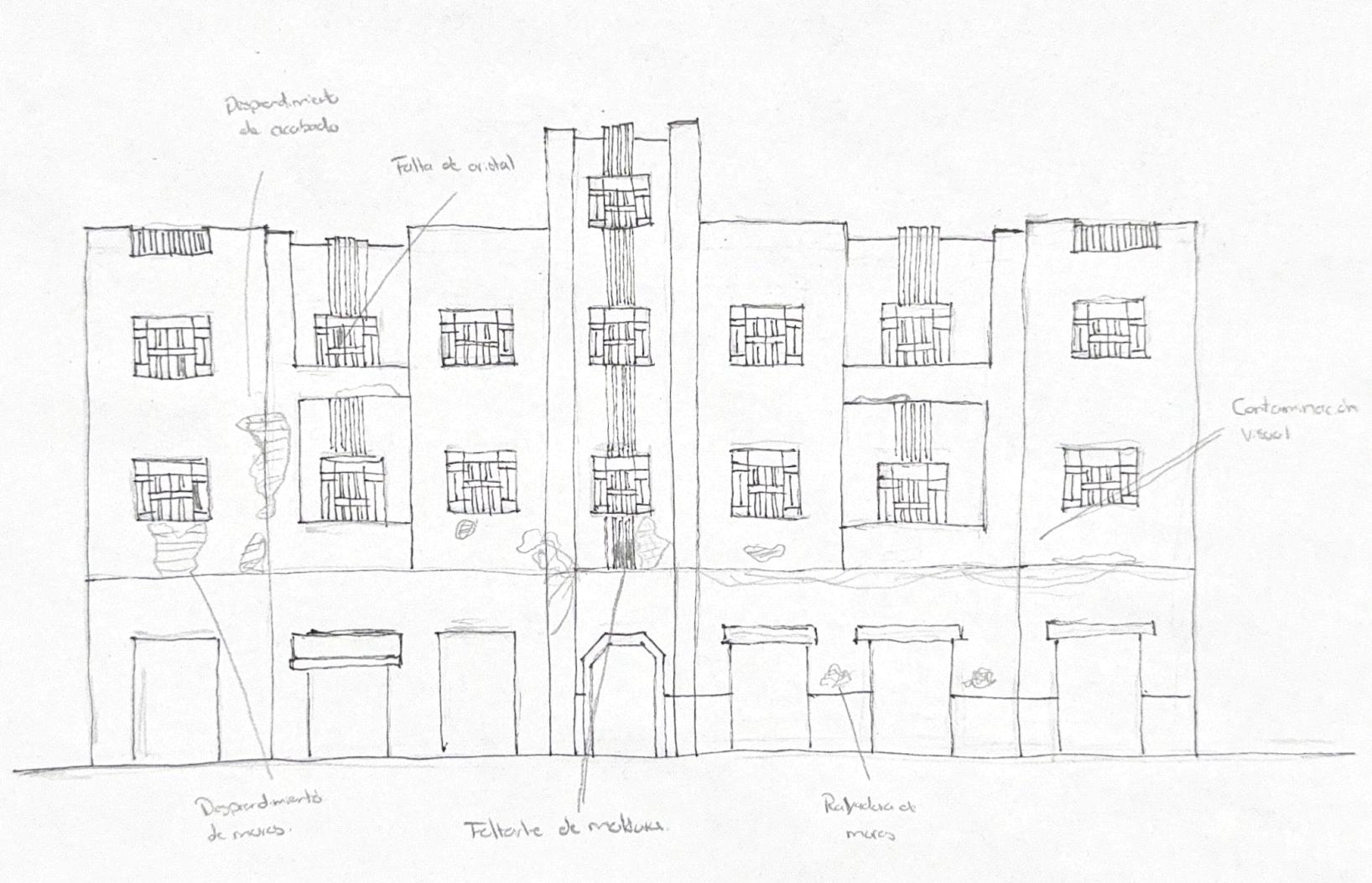
El inmueble ya se encuentra deteriorado, sigue conservando algo de pintura en sus fachadas, sin embargo, se perciben varias zonas
con desprendimiento de esta
Tienen más zonas en dónde se notan desprendimiento de acabado y se puede observar que también cuenta con faltante de vidiros


Sus condiciones siguen siendo similares
Sus condiciones siguen siendo similares


2019 ENE. 2022
La pintura de los acabados son más notables, y sigue sin tener un mantinimiento adecuado
Se puede percibir la aparición de ralladura en muros


ENE. 2023 MAY. 2024
Sus condiciones siguen siendo similares
Desaparecieron algunas zonas de ralladuras en los muros
El inmueble se encuentra se encuentra ubicado en la calle 4 Poniente del centro histórico de la Ciudad de Puebla. Esta calle antiguamente se solía
llamas “Calle Belén”, esto gracias al inmueble que se encuentra en la esquina de enfrente, El Templo del Antiguo Hospital de Nuestra Señora de Belén. Un inmueble que se contruyó entre 1692 y 1700 por La Orden de los Hermanos Hospitalarios. Posteriormente, el antiguo regidor de Puebla, Don Acho, propuso la idea principal de enumerar las calles progresivamente, pero fue hasta 1917 que se hizó realidad, con Manuel B. Montes de Oca como presidente municipal, y retomó la idea de Acho, y esta calle pasó a llamarse como se le denomina hoy en día Calle 4 Poniente.
El inmueble seleccionado, comenzó siendo una vecindad, un concepto que comenzó en el país a principios del siglo XIX donde las antiguas edificaciones virreinales fueron reconstruidas para las personas que vivían con escasos recursos, haciendo de estas una forma de vivienda popular. Se utilizaban principalmente por familias, en donde se compartían baños y patíos, el cual funcionaba como una zona de convivencia.
Esta antigua vecindad frente al Templo de Belén, estuvo involucrada en una tragedia el 5 de diciembre de 1959, dónde una avioneta de la CFE, que salía desde el aeropuerto de Santa Lucía, con destino a Campeche, falló una parte de su motor, y no pudo mantenerse en el aire, y por consecuencia provocando que se estrellara llevandose la cruz del Templo y cayendo en la parte superior del inmueble, anteriormente vecindad. Hoy en día el inmueble de estilo art deco, se encuentra todavía habitado conservando algunos comercios en la parte inferior de la fachada.
Tipo de patrimonio:
Patrimonio cultural inmueble: El inmueble, al ser de estilo art déco, representa un valioso patrimonio arquitectónico que debe ser conservado no solo por su valor estético, sino también por su importancia histórica y cultural. Su conservación proporciona una herramienta fundamental para el estudio y la comprensión de las tendencias arquitectónicas del pasado, permitiendo a las futuras generaciones conocer y valorar el legado histórico que estas construcciones representan.
Valores patrimoniales:
Valor Material: Permite conocer el estilo arquitectónico y materiales que se utilizaron en la época en la que fue construido el inmueble
Valor Histórico: Permiteconocer cómo fue la forma de vida de los habitantes de la zona, y aporta a tener una idea del contexto antiguo de la zona en la que se encuentra el inmueble.
Valor Emotivo: Permite transmitir emociones a la parte de la población que tenga una idea de los acontecimientos que sucedieron en este edificio.
Valor de uso: Cuenta con comercios y parte del inmueble se encuentra habitado
Teórico Orígen
Viollet Le-Duc Francia (1814-1879)
John Ruskin Inglaterra (1819-1900)
Camillo Boito Italia (1836-1914)
Cesare Brandi Italia (1906-1988)
José Villagrán García México (1901-1982)
Carlos Chanfón Olmos México (1928-2002)
Teorías
Restaurar un edificio significa reestablecerlo en un grado de integridad que puso no haber tenido jamás
Desaparición digna de un bien cultural
Aceptar su pérdida y ausencia
Dejarlo existir hasta su muerte
Diferenciación de estilos: Respetar los diferentes estilos, todos dignos de una época
Diferenciación de materiales: La apariencia corresponde a la escencia del inmueble sin proyectar contenidos falsos
Exposición de piezas de las que se haya prescindido
Distingir las piezas nuevas de las antiguas
Notoriedad visual de las acciones emprendidas
Principio de utilidad: La conservación de patrimonio cultural se facilitará
Principio de combatibilidad: Todo lo que se interviene debe adecuarse sin alteraciónes a sus elementos
Principio preventivo: Acciones que evitan el deterioro de manera adelantada
Principio de Integridad: Se conserva de manera total, teniendo en cuenta su valor estético, historico, ambiental, físico, etc.
Principio de contextualidad: Ningún inmueble es valioso sin su entorno
Principio de autenticidad: Promueve el respeto a la honestidad y diferenciación de estilos, materiales e intervenciones
Principio de diferenciación: Documentar el qúe y cómo se han realizado las diferentes intervenciones
Principio de reversibilidad: Todo lo que se realice, se puede revertir.
Teoría de valores: El valor definido como una cualidad que concede a las cosas una estimación, ya sea, positiva o negativa
Fundamentos teóricos de la restauración: Toda intervención es perfectible por lo que debe tener carácter reversible
Categorización: Se marcan los niveles de conocimiento involucrado en el proceso y se aclaran las participaciones que desempeñan las distintas áreas de trabajo
Formas de intervención del patrimonio edificado: Consolidación, Conservación integral, y rehabilitación

John Ruskin
El inmueble lleva muchos años sin ser restaurado, por lo que aplica la teória de Ruskin al dejarlo en su estado hasta su desaparición

Camillo Boito
Como dice boito, es importante saber y poder diferenciar los estilos a los que pertenece junto a su época

José Villagrán García
El inmuble presenta un tipo de valor de uso, al tener comercios y espacios habitacionales
Presencia de vandalismo
Contaminación visual
Pérdida de población residente
Falta de adaptación a la vida contemporánea
Falta de mantenimiento




















Carta de atenas:
La Carta de Atenas para la restauración de monumentos históricos propone soluciones que buscan garantizar la preservación auténtica del patrimonio arquitectónico y monumental. Estas soluciones incluyen una intervención mínima para evitar alteraciones innecesarias en la estructura original de los monumentos, el uso de materiales compatibles con los originales para preservar su integridad, la restauración reversible que permita deshacer cualquier cambio sin dañar el monumento a largo plazo y el respeto por la historia y el contexto del monumento, asegurando que la restauración no elimine ni modifique elementos significativos de su evolución histórica y cultural. Estas directrices orientan la conservación de monumentos de manera ética y respetuosa con su legado.
Carta de Venecia. Carta internacional sobre la conservación y la restauración de monumentos y sitios (ICOMOS):
- Establece principios fundamentales para la restauración y conservación del patrimonio monumental.
- Defiende la autenticidad y la mínima intervención en la restauración.
- Prohíbe reconstrucciones hipotéticas y promueve el uso de técnicas modernas de consolidación.
- Fomenta la documentación detallada de todas las intervenciones.
Carta del Restauro:
Favorece la conservación y restauración con el menor grado de intervención posible. Propone el uso de materiales compatibles con los originales para evitar deterioros mayores. Considera la reversibilidad de las intervenciones como principio clave.
















Zona A Piedra Desprendimiento de acabado Intrínsecas Antigüedad
Zona A y B Lona pvc
Zona B Cristal
Desprendimiento de acabado
Contaminación visual Extrínsecas Físico
Faltante de cristal en vanos
Presencia de vandalismo Extrínsecas Físico
Zona B Cables Presencia de contaminación visual Extrínsecas Físico
Zona C Piedra Desgregación de material Intrínsecas Antigüedad
Zona C Piedra Desprendimiento de acabado Intrínsecas Antigüedad
Zona D Piedra Desgregación de material Intrínsecas Antigüedad
Zona D Piedra Perdida de moldura Intrínsecas Antigüedad
















Zona A
Zona A y B
Restauración
Reintegración de acabado a partir de aplanado y pintura
Restauración
Readecuación de toldo a partir de nueva lona comercial
Zona B
Restauración
Zona B
Restauración
Reintegración de vano a partir de colocación de nuevo material
Revitalización de fachada a partir de nueva colocación de cables
Zona C
Restauración
Reconstrucción de balcón a partir de colocación de nuevo material
Zona C
Restauración
Reintegración de acabado a partir de aplanado y pintura
Zona D
Restauración
Reconstrucción de balcón a partir de colocación de nuevo material
Zona D
Restauración
Reintegración de elemento a partir de colocación de nueva moldura
Elemento
Muros
Balcones
Cada año
Vigilar:
Aparición de fisuras
Deprendimientos de acabados
Estado de juntas
Aparición de humedades
Estado de pintura
Vigilar:
Cada 2 años
Ventanas Cada 3 años
Desgregación de material
Desprendimiento de acado
Estado de pintura
Vigilar:
Roturas de cristales
Sellado de grietas, Aplicación de impermeabilizante, retocar pintura, eliminación de polvo y suciedad, verificación del estado de las juntas.
Revisar estado del suelo, revisar estado de estructura, sellar fisuras, aplicación de impermeabilizante.
Limpieza de vidrios y marcos, sustitución de vidrios deteriorados o rotos, verificación de funcionamiento, conservación de detalles ornamentales.
Campos, A. (2025, April 5). Calle de Belén. Avenida 4 Poniente 500. Blogspot.com.
https://porlascallesdepuebla.blogspot.com/2009/09/calle-de-belen-avenida-4-poniente-500.html
Gobierno de México. (2020). Templo y Hospital de Nuestra Señora de Belén. Secretaría de Cultura/Sistema de Información Cultural.
https://sic.cultura.gob.mx/ficha.php?table=monumento icahe&table id=2005
Reyes, E. (2023). OEM. Oem.com.mx. https://oem.com.mx/elsoldepuebla/cultura/vecindades-de-conventos-a-viviendas-populares-los-tiemposidos-19299750
Rodríguez, E. (2024, January 19). Accidentes aéreos más impactantes que ocurrieron en Puebla. El Universal Puebla.
https://www.eluniversalpuebla.com.mx/estado/accidentes-aereos-mas-impactantes-que-ocurrieron-en-puebla/
UDLAP. (2015, August 14). Las calles de Puebla y sus nombres. Blog UDLAP.
https://blog.udlap.mx/blog/2015/08/14/callesdepueblasusnombres/

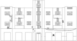
Patrimonio Arquitectónico
Ficha de Deterioros
Primavera 2025
Código D1
Ubicación: Nivel Área de estudio Elemento horizontal
Av. 4 Pte. & Calle 7 Norte, Centro histórico de Puebla, 72000 Heroica
Puebla de Zaragoza, Pue.
Planta de Localización


Deterioros
Grietas
Desprendimiento de acabados
Faltante de Aplanados
Contaminación visual
Planta baja y Primer nivel
Planta área de estudio

Zona A Elemento vertical
Alzado área de estudio

Detalle

Nota : Anexa todos los deterioros encontrados
Imágenes de deterioros



Patrimonio Arquitectónico
Ficha de Deterioros
Primavera 2025
Código D1
Ubicación: Nivel Área de estudio Elemento horizontal
Av. 4 Pte. & Calle 7 Norte, Centro histórico de Puebla, 72000 Heroica
Puebla de Zaragoza, Pue.
Planta de Localización


Deterioros
Planta Baja y Primer nivel Zona B Elemento vertical
Planta área de estudio

Grietas Contaminación visual
Desprendimiento de acabados Vandalismo
Faltante de Aplanados
Faltante de vidrio
Nota : Anexa todos los deterioros encontrados
Imágenes de deterioros
Alzado área de estudio



Detalle


Patrimonio Arquitectónico
Ficha de Deterioros
Primavera 2025
Código D1
Ubicación: Nivel Área de estudio Elemento horizontal
Av. 4 Pte. & Calle 7 Norte, Centro histórico de Puebla, 72000 Heroica
Puebla de Zaragoza, Pue.
Planta Baja y Primer nivel
Planta de Localización Planta área de estudio


Deterioros
Grietas
Desprendimiento de acabados
Faltante de Aplanados

Zona C Elemento vertical
Alzado área de estudio

Detalle

Nota : Anexa todos los deterioros encontrados
Imágenes de deterioros



Patrimonio Arquitectónico
Ficha de Agentes
Primavera 2025
Código A1
Ubicación: Nivel Área de estudio Elemento horizontal
Av. 4 Pte. & Calle 7 Norte, Centro histórico de Puebla, 72000 Heroica
Puebla de Zaragoza, Pue.
Planta de Localización


Planta Baja y Primer Nivel Zona A Elemento vertical
Planta área de estudio Alzado área de estudio Detalle



Deterioro Causas intrínsecas Causas extrínsecas Contaminación visual Posición del edificio Agentes acción prolongada
Desprendimiento Orientación Antigúedad Grieta Inherentes a la estructura Agentes Naturales ocasionales
Fisura Sistema Constructivo
Faltante de elemento Humanas Alteracion Transformación
Nota : Anexa todas las causas detectadas Imágenes de deterioros/Causa


Patrimonio Arquitectónico
Ficha de Agentes
Primavera 2025
Código A1
Ubicación: Nivel Área de estudio Elemento horizontal
Av. 4 Pte. & Calle 7 Norte, Centro histórico de Puebla, 72000 Heroica
Puebla de Zaragoza, Pue.
Planta de Localización


Planta Baja y Primer Nivel Zona B Elemento vertical
Planta área de estudio

Alzado área de estudio

Detalle

Deterioro Causas intrínsecas Causas extrínsecas Faltante de vidrio Posición del edificio Agentes acción prolongada
Desprendimiento Orientación Antigúedad
Vandalismo Inherentes a la estructura Agentes Naturales ocasionales
Faltante de aplanados Sistema Constructivo
Contaminación visual Humanas Alteracion Transformación
Nota : Anexa todas las causas detectadas Imágenes de deterioros/Causa


Patrimonio Arquitectónico
Ficha de Agentes
Primavera 2025
Código A1
Ubicación: Nivel Área de estudio Elemento horizontal
Av. 4 Pte. & Calle 7 Norte, Centro histórico de Puebla, 72000 Heroica
Puebla de Zaragoza, Pue.
Planta de Localización


Planta Baja y Primer Nivel Zona C Elemento vertical
Planta área de estudio

Alzado área de estudio

Detalle

Deterioro Causas intrínsecas Causas extrínsecas Grietas Posición del edificio Agentes acción prolongada
Desprendimiento de acabados
Faltante de aplanados
Orientación Antigúedad
Inherentes a la estructura Agentes Naturales ocasionales
Sistema Constructivo
Humanas Alteracion Transformación
Nota : Anexa todas las causas detectadas Imágenes de deterioros/Causa


Patrimonio Arquitectónico
Ficha de Agentes
Primavera 2025
Código A1
Ubicación: Nivel Área de estudio Elemento horizontal
Av. 4 Pte. & Calle 7 Norte, Centro histórico de Puebla, 72000 Heroica
Puebla de Zaragoza, Pue.
Planta de Localización


Planta Baja y Primer Nivel Zona D Elemento vertical
Planta área de estudio

Alzado área de estudio

Detalle

Deterioro Causas intrínsecas Causas extrínsecas Grietas Posición del edificio Agentes acción prolongada
Desprendimiento de acabados Orientación Antigúedad
Faltante de aplanados Inherentes a la estructura Agentes Naturales ocasionales
Disgregación de material Sistema Constructivo
Humanas Alteracion
Nota : Anexa todas las causas detectadas Imágenes de deterioros/Causa


Ficha de Acciones de intervención Primavera 2025
Código I1
Ubicación: Nivel Área de estudio Elemento horizontal
Av. 4 Pte. & Calle 7 Norte, Centro histórico de Puebla, 72000 Heroica Puebla de Zaragoza, Pue.
Planta Baja y Primer Nivel
Planta de Localización

Alzado área de estudio


Zona A Elemento vertical
Planta área de estudio

Debe de ser la sección mas dañada de tu inmueble

Acciones de intervención
Revitalización: Alser un edificio icónico en elcentro dePuebla,y tener un estilo característico como elartdeco,sería importantedevolverleel valor deuso para incorporarsealcontexto inmediato en elqueseencuentra.
Remodelación: Otorgarlealinmueblecondicionesóptimaspara poder darleun correcto funcionamiento. Espacio Criterios Acción Tratamiento Nuevo uso Darle al inmueble un uso despúes de su recuperación como un inmueble de uso mixto.



Acciones de mantenimiento


Ficha de Acciones de intervención Primavera 2025
Código I1
Ubicación: Nivel Área de estudio Elemento horizontal
Av. 4 Pte. & Calle 7 Norte, Centro histórico de Puebla, 72000 Heroica Puebla de Zaragoza, Pue.
Planta Baja y Primer Nivel
Planta de Localización

Alzado área de estudio


Zona C Elemento vertical
Planta área de estudio

Debe de ser la sección mas dañada de tu inmueble

Acciones de intervención
Revitalización: Alser un edificio icónico en elcentro dePuebla,y tener un estilo característico como elartdeco,sería importantedevolverleel valor deuso para incorporarsealcontexto inmediato en elqueseencuentra.
Remodelación: Otorgarlealinmueblecondicionesóptimaspara poder darleun correcto funcionamiento. Espacio Criterios Acción Tratamiento Nuevo uso Darle al inmueble un uso despúes de su recuperación como un inmueble de uso mixto.



Acciones de mantenimiento


La propuesta para el nuevo uso que se realizó, planea volver a integrar el inmueble que anteriormente fue una vecindad en el centro histórico de Puebla, y darle un nuevo uso. Lo que se propone es que se convierta en un múseo cultural, ya que, por la ubicación y el contexto inmediato en el que se encuentra, es una zona muy concurrida, y que fácilmente invitaría a las personas a visitarlo. De igual manera, se propone realizar una intervención en el que se pueda reintegrar las características arquitectonicas del Art Deco que tanto caracterizan al edificio y que lo hacen único, como los marcos de las ventanas, las molduras verticales, los acabados, etc.
A través de esta intervención se propone que para su nuevo use, se puedan adaptar los espacios en su interior que funcionen para las nuevas necesidades culturales, tales como, salas de exposiciones, talleres, áreas comunes, patio central, almacén, etc. Esta nueva propuesta sería atractiva, ya que, es un inmeble que puede conectar el pasado con el presente, y transmitir algo de la riqueza cultural que este ofrece.
El nuevo uso del inmueble lo permitiría integrarse al contexto en el que se encuentra, ya que, como se encuentra actualmente, el cual funciona como uso mixto, la mayor parte de este se encuentra abandonado y el cual ha sufrido de deterioros, por distintas causas como vandalismo, falta de mantenimiento, disgregación de materiales, etc. Al tener un uso completamente distinto podría ser de este inmueble un nuevo destino tanto para gente local, como para turistas, donde se pueda conocer y apreciar distintos temas, como puede ser la historia de la zona, obras de arte, talleres recreativos, etc.
Se plantea que los acabados se cambien, ya que, al realizar la investigación previa, este inmueble solía contar con un tono de pintura amarilloso, y molduras en piedra natural, sin embargo, para la nueva propuesta se optó por una cambio de estos acabados a tonos más neutros, y que además pueda integrarse al contexto. Todo esto sin retirar los elementos arquitectónicos que lo caracterizan como las antes mencionadas molduras verticales y los marcos de las ventanas.