My first document

Page 1

Luis Felipe Coelho

P O R T F Ó L I O

Sobre mim

Tenho contato com arquitetura desde 2016, quando comecei a faculdade e fui trabalhar em uma marcenaria. A princípio, apenas para imprimir projetos, mas com o tempo livre, fui aprendendo e desenvolvendo programas essenciais que uso hoje, como Sketchup, Layout, V-Ray. Além de adquirir a experiência necessária em modelagem de móveis até me tornar projetista.

Desde então, venho trabalhando mais efetivamente na área de arquitetura, me desenvolvendo em modelagens, projeto de aprovação de prefeitura, executivos, entre outras habilidades em projetos residenciais e comerciais.

Meus serviços:

Projeto Residencial

Experiência em projetos residenciais para condomínios e lotes.

Projeto Comercial

Experiência em projetos de escritórios, hamburguerias, lojas e centros de distruibuições logísticos.

Projeto de Interiores

Experiência com reformas e projetos de residências, apartamentos e comerciais.

Modelagem 3D

Para modelagem 3D, tenho o costume de utilizar o Sketchup; onde posso fazer conversão e pareamento com alguns outros programas, como

Sketchup Layout, AutoCAD e alguns plugins para renders - como Enscape.

Apesar da base em Sketchup, já estudei e trabalhei um pouco com outros programas de modelagem, Revit e 3DS Max.

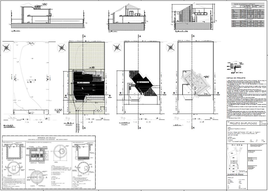
Projeto de Aprovação

Projetos de aprovação para prefeitura normalmente pedem o AutoCAD.

Possuo experiência em trabalhar com as plantas, cortes, fachadas e vistas necessárias, além de toda a parte de topografia, memorial de cálculos, elevações e projeto de condomínio, quando necessário.

Projeto Executivo

Residencial

Para a execução do projeto executivo, costumo utilizar o Sketchup Layout, com o auxílio dos dados da obra.

Para isso, sigo o seguite execução de projeto:

Demolir e Construir

Layout

Pontos Técnicos (Hidráulica e Elétrica)

Forro

Iluminação

Pisos e Revestimentos

Marcenaria

Marmoraria

Vidraçaria

Serralheria

Comercial

Logometria

Renderização

Nas renderizações, utilizo o programa Enscape pela praticidade e tempo de renderização.

Além disso, possuo experiência com Lumion, Twinmotion, CoronaRenderes e V-Ray.

Onde me encontrar: CONTATO: (11) 97530-3469 ENDEREÇO: São Paulo - SP EMAIL: luis _felipe.co@hotmail.com

Turn static files into dynamic content formats.

Create a flipbook
Issuu converts static files into: digital portfolios, online yearbooks, online catalogs, digital photo albums and more. Sign up and create your flipbook.