Luis Felipe Coelho - Currículo+Portfólio

Page 1

Luis Felipe Coelho

P O R T F Ó L I O

Sobre mim

Tenho contato com arquitetura desde 2016, quando comecei a faculdade e fui trabalhar em uma marcenaria. A princípio, apenas para imprimir projetos, mas com o tempo livre, fui aprendendo e desenvolvendo programas essenciais que uso hoje, como Sketchup, Layout, V-Ray. Além de adquirir a experiência necessária em modelagem de móveis até me tornar projetista.

Desde então, venho trabalhando mais efetivamente na área de arquitetura, me aprofundando em projetos de interiores, modelagens, projeto de aprovação de prefeitura, executivos, entre outras habilidades em projetos residenciais e comerciais.

Meus serviços:

Criação

Uma das minhas partes favoritas junto com a renderização, me sinto realizado podendo ajudar construir um projeto criativo baseado no briefing do cliente, considero meu ponto forte justamente a criatividade nessa parte, buscando elementos novos e diferentes que cabem na necessidade do cliente apresentando propostas e ideias de acordo.

Modelagem

Na modelagem procuro sempre ser o mais detalhista possível dentro do tempo disponível para a execução do projeto, afinal uma modelagem bem feita ajuda trazer um maior realismo na etapa de renderização, como também agiliza nas etapas de modificação do projeto já que está bem modelado e fácil para alterar.

Archviz

Modelagem e Renderização é uma das minhas partes favoritas, gosto de sempre estar evoluindo e adaptando nos programas existentes no mercado, podendo assim tirar o melhor proveito do programa unindo realismo + praticidade.

Executivos

Possuo experiência vasta em projetos executivos, abrangendo desde projetos residenciais, comerciais, interiores, reformas e varejo.

Costumo considerar meu forte já que meus últimos trabalhos costumam voltar muito para essa etapa, destacando principalmente no executivo de marcenaria por ter trabalhado fazendo exatamente isso em uma marcenaria por um tempo.

Modelagem 3D

Para modelagem 3D, tenho o costume de utilizar o Sketchup; onde posso fazer conversão e pareamento com alguns outros programas, como Sketchup Layout, AutoCAD e alguns plugins para renders - como Enscape.

Apesar da base em Sketchup, já estudei e trabalhei um pouco com outros programas de modelagem, Revit e 3DS Max.

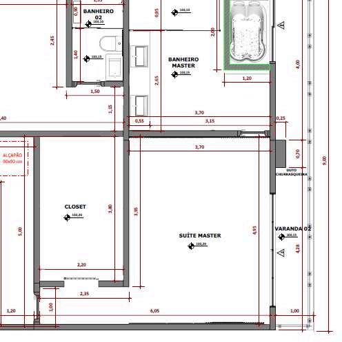
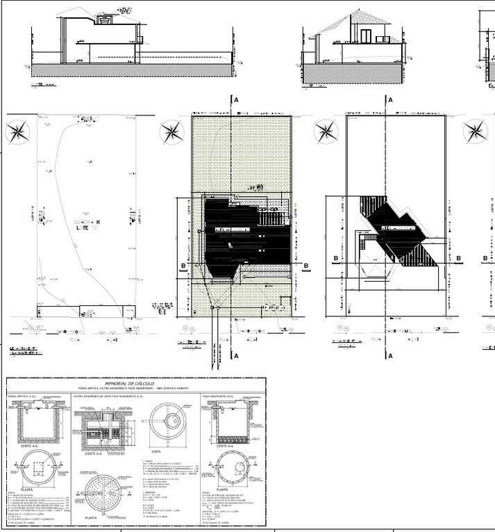
Projeto de Aprovação

Projetos de aprovação para prefeitura normalmente pedem o AutoCAD. Possuo experiência em trabalhar com as plantas, cortes, fachadas e vistas necessárias, além de toda a parte de topografia, memorial de cálculos, elevações e projeto de condomínio, quando necessário.

Projeto Executivo

Para a execução do projeto executivo, costumo utilizar o Sketchup Layout, com o auxílio dos dados da obra.

Para isso, costumo realizar as seguintes pranchas:

Demolir e Construir

Layout

Pontos Técnicos (Hidráulica e Elétrica)

Forro

Iluminação

Pisos e Revestimentos

Marcenaria

Marmoraria

Vidraçaria

Serralheria

Comercial

Logometria

Renderização

Renderizar é minha parte favorita, utilizo o programa Enscape pela praticidade e tempo de renderização. Além disso, possuo experiência com Lumion, Twinmotion, CoronaRender e V-Ray.

Vídeos

Além da parte de render, tenho o costume de fazer vídeos de apresentação do projeto caso seja necessário.

Onde me encontrar: CONTATO: (11) 97530-3469 ENDEREÇO: São Paulo - SP EMAIL:
luis _felipe.co@hotmail.com

Turn static files into dynamic content formats.

Create a flipbook
Issuu converts static files into: digital portfolios, online yearbooks, online catalogs, digital photo albums and more. Sign up and create your flipbook.