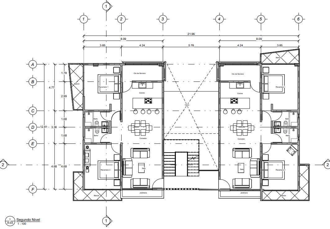
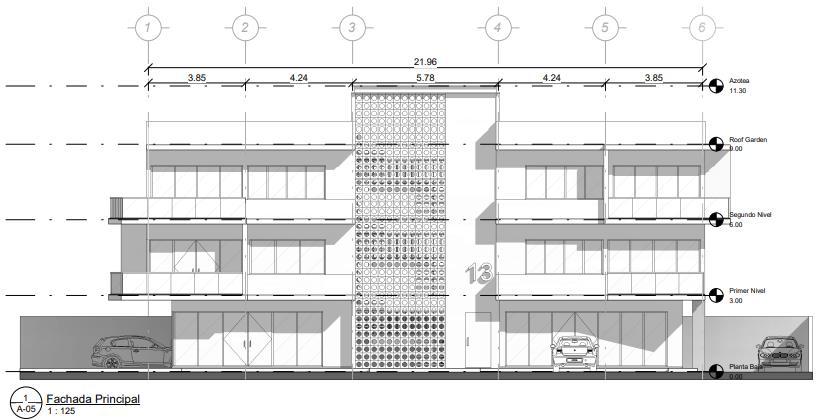
EDIFICIO USOS MÚLTIPLES
El edificio de Usos múltiples, creado a partir de una repentina en octavo semestre de la universidad, se organiza a través de dos volúmenes unidos por la circulación vertical permiten mejorar la iluminación de los espacios. La Planta Baja cuenta con locales comerciales, y el primer y segundo nivel con 2 departamentos en cada nivel.





CENTRO DE JUSTICIA PARA LA MUJER
Con la necesidad de crear un espacio en donde se proteja a la mujer de la violencia en el municipio de Benito Juárez, Quintana Roo. Este trabajo se llevó a cabo en equipo, con todos los alumnos de noveno semestre de la Escuela de Arquitectura en la Universidad La Salle Cancún, El planteamiento comenzó con un análisis del sitio en donde se ubicaría.
Se buscaba un espacio que diera seguridad y privacidad a las mujeres que acudían por lo que el edificio de alojamiento se mantiene alejado de los ruidos y vistas ajenas a la propia estancia. El uso del color sería a través de elementos naturales y de la propia materialidad aparente como madera, concreto, árboles, etc.







Sección Arquitectónica
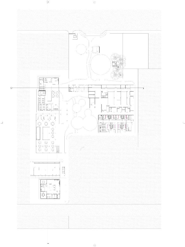
SUPERMANZANA 21
Como parte de una actividad para la asignatura de Regeneración Urbana se buscaba la reorganización de la supermanzana 21, esta Supermanzana es de importancia debido a que se integra al Plan Maestro de la ciudad de Cancún que alberga espacios de esparcimiento cultural y deportivo como la Casa de la Cultura, el gimnasio Kuchil Baxal, canchas y estadios.
El proyecto cumple con una propuesta orgánica, marcado con un eje rector donde se incorporan los centros de conexión y de reunión para cada edificio.
El diseño de cada edificio considera las dimensiones mínimas de SEDESOL.
Cuenta con gimnasio deportivo,, 35 canchas, estadio-arena, teatro, casa de la cultura, conectados por una alameda central.

Diagrama Conceptual



CINETECA PUERTO JUÁREZ
Proyecto de tesis.
El objetivo de la tesis era desarrollar un proyecto ejecutivo integral de Cineteca en la zona de Puerto Juárez que permita una convivencia social, en un edificio cultural.
Se plantea en la Colonia Puerto Juárez Cancún, esta zona en abandono es de importancia al ser considerada como fundacional, debido a que los primeros registros en un mapa de la Secretaria de Agricultura y Fomento data de 1920.
La cineteca tiene como objetivo rescatar, preservar, conservar, incrementar y catalogar los acervos fílmico, iconográfico, videográfico y documental.
Los espacios con los que cuenta son: salas cinematográficas, acervo fílmico nacional, galería, oficinas, restaurante, foro al aire libre y locales comerciales.


Planta Baja Arquitectónica

Sección sala de Cine




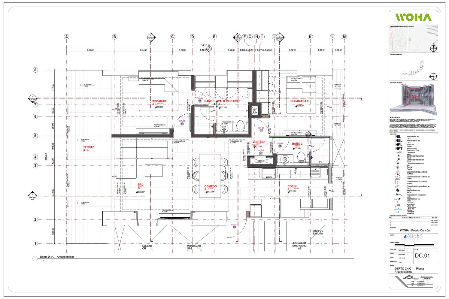
EDIFICIO DEPARTAMENTOS WOHA
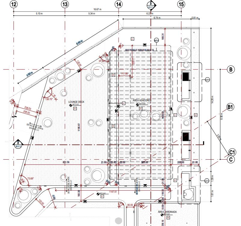
Edificio de departamentos para inversión de 20 niveles con 3 tipos de departamentos (de 115m², 121m² y 225m²), amenidades interiores y exteriores con alberca. Cuenta con sistemas pasivos como aislamiento térmico en fachadas con vegetación integrada y activos como paneles solares y protección contra huracanes en cancelerías.
En este proyecto bajo la dirección de Sanzpont Arquitectura se trabajó colaborativamente con diferentes disciplinas con el software de Revit.








Amenidades Exteriores, diseño de mobiliario





Amenidades Exteriores, detalles constructivos



Departamento tipo A, detalles constructivos





Departamento tipo C, detalles constructivos


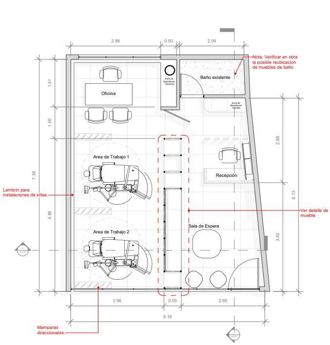
CONSULTORIO DENTAL
Remodelación de Consultorio Dental ubicado en la ciudad de Acapulco. El local cuenta con una sala de espera, recepción, área de trabajo, baño y oficina. El diseño es pensando en la eficiencia del espacio para brindar confort tanto al paciente como al dentista.




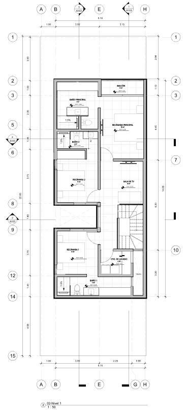
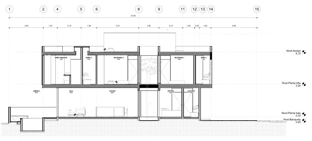
CASA PASEO LA SELVA 13
Diseño de Casa residencial ubicada en Cancún.
El programa habitacional se extiende a lo largo de una fachada principal cerrada para mantener la privacidad, pero con un jardín interior permitiendo mantener frescos los espacios y disminuir la necesidad de consumo energético por iluminación artificial. Los espacios sociales se abren al exterior mientras que los espacios privados se encuentran en el primer nivel, compuesto por una recamara principal y dos secundarias cada una con su propio baño.







MODELADO INSTALACIONES
Bajo la dirección de la empresa Apame México, se analiza el uso y estructura de cada edificio para así crear la distribución de luminarias con sus respectivos apagadores, ubicación de tomacorrientes, canalización y circuitos eléctricos.
Cuando se requiere una remodelación se realiza un levantamiento mediante nube de puntos para ubicar con mayor precisión elementos arquitectónicos.







MASTER PLAN FELIPE CARRILLO PUERTO
Proyecto en desarrollo, cuenta con 460 lotes de uso habitacional de 1500 m² cada uno. Se proyectan amenidades exteriores como parque infantil, parque pet friendly, canchas deportivas, temazcal y yoga. Las vialidades interiores contemplan una banqueta de 1.20m, área verde de 1.00m para minimizar el contacto directo del peatón con la avenida. La calle tiene 6.00m para el carril izquierdo y 6.00m para el carril derecho separados por un camellón de 4.00m



