Leptos Sivitanidium Megaron

Page 1


SINCE 1960

Leptos Estates Leptos Estates

PROJECT DESCRIPTION

Ideally located at the hub of the business centre of Paphos, LEPTOS SIVITANIDIUM MEGARON

presents a unique opportunity to secure a presgious, self-contained office building in an area that has seen major investment and regeneraon in recent years. The building is posioned adjacent to the municipal market and parking grounds, main high street, government offices, banks, law firms, accountancy pracces, architectural and engineering services, other major businesses, and an extensive range of shops and restaurants within easy walking distance.

CYPRUS

Explore a world of endless possibilies on an island that serves as your gateway to Europe.

CYPRUS

Posioned at the crossroads of three connents

Member of the EU and Eurozone

High level of services, including financial, medical, educaon, telecommunicaons etc.

Ability to obtain permanent residency through purchase of real estate

Cyprus' natural gas discovery will be a game changer for the domesc economy

Mild climate and sunshine (340 days a year)

Beauful scenery and prisne beaches

English language widely spoken

Safe and secure environment

High standard but low cost of living

New marinas, golf courses and casinos

Paphos

PAPHOS

Cyprus' cosmopolitan resort town, and a centre for culture.

PAPHOS

A thriving commercial centre with internaonal business acvies

The most luxurious hotels and resorts on the island

Freehold properes in prime locaons

Excellent medical centres and educaonal instuons

A UNESCO world heritage centre

Modern airport linking Cyprus to internaonal desnaons

Internaonal 18-hole championship golf courses

Excellent tourist facilies and culinary experiences

Modern, revived and mul-cultural centre

A TOP-RATED DESTINATION

Paphos

Paphos

Iasis

Neapolis

Paphos

LOCATION MAP

PAPHOS HARBOUR
SHOPPING MALL LIGHTHOUSE AND ARCHAEOLOGICAL PARK MUNICIPAL BEACH
MAIN SHOPPING STREET
MUNICIPAL PARKING ADJACENT TO THE BUILDING TOMBS OF THE KINGS
PAPHOS TOWN SQUARE
PAPHOS TOWN HALL MUNICIPAL PARK

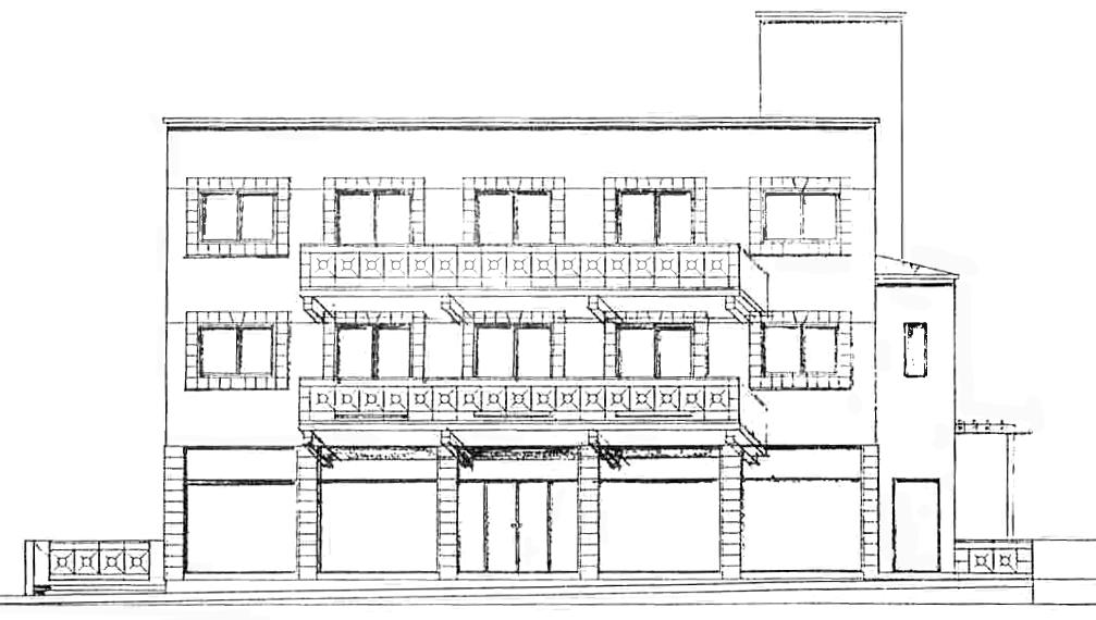
ACCOMMODATION

This presgious office building has been designed to accommodate · either a cellular office format or an open plan landscaped format.

The office space is spread over four floors and with private parking · in the basement.

An elevator serves all floors. ·

·

The in-built flexibility gives rise to a variety of use opons:

o High street banking premises with administrave offices

o Department store

o Showroom with administrave offices

o A professional pracce

o Corporate offices

BENEFITS

· Last remaining site

Private parking ·

Adjacent to municipal parking ·

Shop fronts · Sea views ·

Presgious locaon ·

MUNICIPAL PARKING (BACKGROUND) ADJACENT TO THE BUILDING

THE MARKIDEIO THEATRE (5 MINUTE WALK FROM THE BUILDING)
MAIN STREET IN FRONT OF THE SIVITANIDIUM MEGARO (FEATURED RIGHT)
AREA ADJACENT TO THE SIVITANIDIUM MEGARO
KENNEDY SQUARE (PAPHOS TOWN CENTRE)
SIDE STREETS NEAR THE SIVITANIDIUM MEGARO
NEARBY PLACES OF INTEREST (CULTURAL CENTRE)

MAIN ROAD

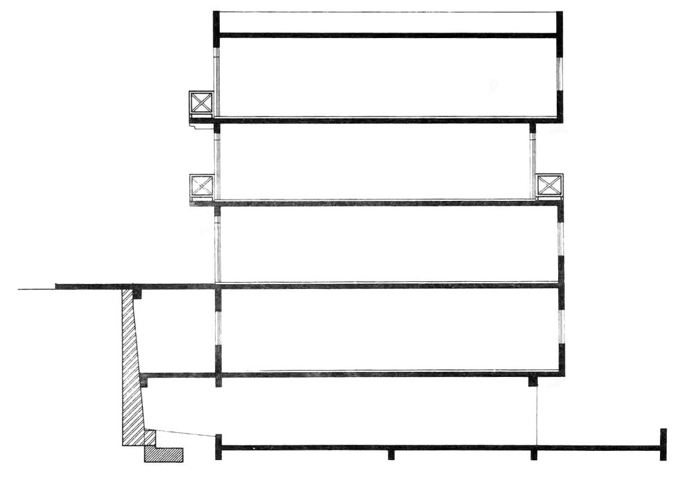
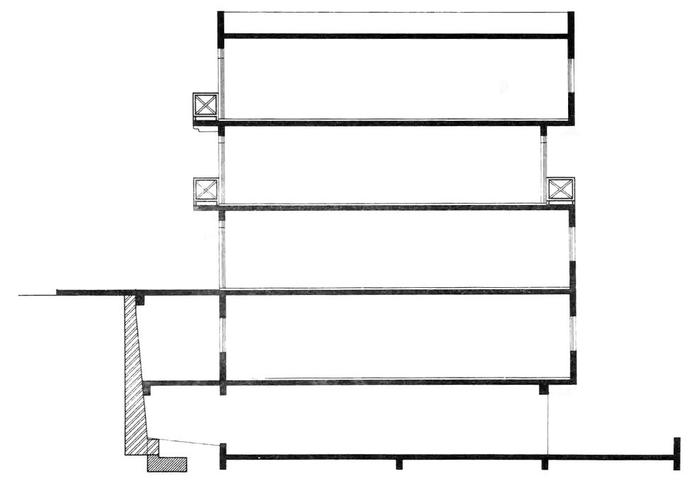
SECTION THROUGH BUILDING

LOWER GROUND 1

LOWER GROUND 2

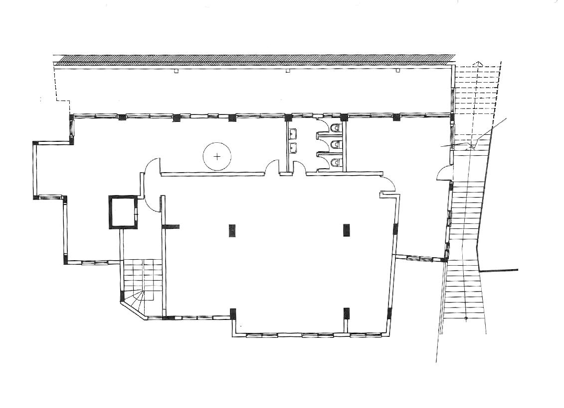
LOWER GROUND 2 FLOOR PLAN

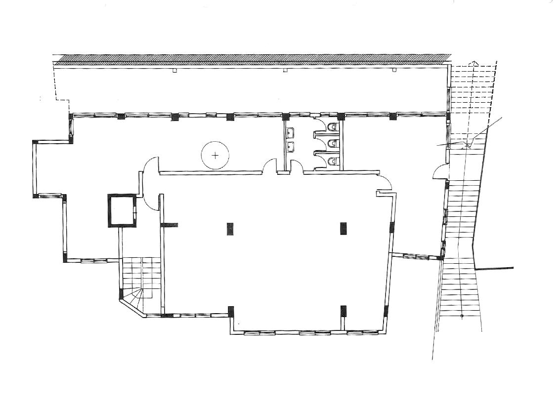
LOWER GROUND 1 FLOOR PLAN

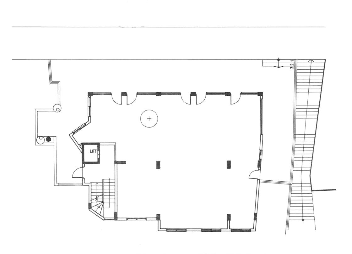
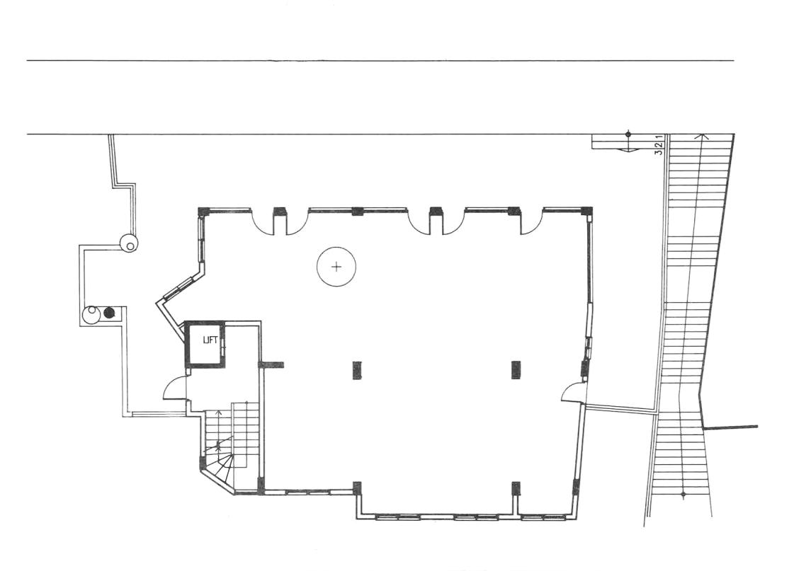
GROUND FLOOR PLAN

S
M
VERANDA
VERANDA
LIFT
FIRST FLOOR PLAN

SECOND FLOOR PLAN

VERANDA
LIFT

SPECIFICATIONS

The building has been designed to provide total flexibility to the prospecve tenant in terms of internal finishes and facilies.

Structure: Reinforced concrete frame infilled with cellular clay blocks.

Floors and Roof: Reinforced concrete slabs with high live load characteriscs.

Internal Walls: Finishes subject to negoaon.

External Walls: Textured plaster with natural stone features around the windows and ground floor columns to the main road elevaon.

Balconies have wrought iron balustrades.

Windows: Anodised aluminum and single glazed.

SINCE 1960

Leptos Estates Leptos Estates

Turn static files into dynamic content formats.

Create a flipbook
Issuu converts static files into: digital portfolios, online yearbooks, online catalogs, digital photo albums and more. Sign up and create your flipbook.