TCC II: Centro Educacional Infantil Zilda Maria - Arquitetura e Urbanismo

Page 1

ENTRE CRIANÇAS, ESPAÇOS E RELAÇÕES Arquitetura como suporte ao ensino infantil

A escola é por excelência um dos principais locais de formação crítica e consciente do ser humano, sendo uma das instâncias mais conceituadas da sociedade onde se constrói as primeiras relações com o mundo. Entretanto ao olhar para história do ensino escolar público infantil, é observado que as instituições ao longo do tempo, passaram a ser associadas a ambientes pouco atrativos, superficiais e excludentes sem qualquer relação com entorno, no qual assemelham-se mais a uma prisão do que propriamente um local de estímulos ao aprendizado.

Dentro dessa perspectiva e seguindo os princípios de acesso universal à educação, é preciso debater o papel da instituição escolar na sociedade contemporânea, assim como a relação entre a arquitetura e a pedagogia, pois a escola é reconhecida pela influência que causa em seu redor, não apenas pela característica que carrega, mas pelo sentimento de pertencimento da comunidade e por ser símbolo de coletividade e transformação social. Nesse contexto, o objeto de estudo surge a partir do entendimento sobre a importância educacional na primeira infância, onde os primeiros anos de vida são fundamentais

no desenvolvimento cognitivo, tais como a percepção, memória, o raciocínio etc. Possuindo no espaço, em conjunto a pedagogia, um dos principais colaboradores desta evolução, através de ambientes que possibilitam vivências e socialização, contribuindo na formação da personalidade a partir das primeiras experiências de aprendizagem.

Para isso, buscou-se desenvolver base teórica para o projeto de uma instituição escolar infantil pública qualificada, através de metodologias pautadas em levantamentos bibliográficos a respeito dos princípios que regem as pedagogias alternativas e sua relação com o espaço construído, a fim de projetar uma instituição escolar infantil com ambientes focado na criança, mesclando a vida em comunidade e vida acadêmica, com intuito de desmontar quaisquer barreiras sociais que possam existir, aprimorando, através da arquitetura, a relação escola, família, comunidade e consequentemente o desenvolvimento infantil. A escolha do Jardim Ângela, distrito localizado na zona Sul da cidade de São Paulo, para materializar tal projeto se deu por análises sociodemográficas, no qual constatou-se a necessidade para tal proposta.

{ O Ambiente escolar contemporâneo e a educação }

A educação de qualquer indivíduo é baseada no contexto em que se insere, deste modo, o ato de aprender pode ocorrer de distintas maneiras. É possível, aprender em casa, na rua, no parque, no transporte público etc. entretanto não significa que não seja necessário um ambiente específico para tal finalidade, haja visto que quanto mais qualificado o espaço melhor, maior será a possibilidade de absorção do conhecimento. Correntes como Waldorf, Piaget, Montessori e Reggio Emilia, contrariam não somente o modo de transmissão de ensino tradicional, mas também sua espacialidade. Pois, entende-se que a arquitetura escolar não se resume meramente entre a relação metragem quadrada e a quantidade máxima de alunos que ela permite, nem tão pouco o programa arquitetônico padrão, e sim sobre a reflexão do espaço como direito fundamental da criança estabelecidos em lei, proporcionando ambientes qualificados ao aprendizado, partindo do desenho arquitetônico até a cor e mobiliário que vão compor o ambiente.

Escola Tradicional

Supervisão e ordem; Similaridade é preferida à diversidade; Ambientes pouco acolhedores, ditatoriais; Pouco estímulos ao aprendizado e a interação;

IMG 02

Escolas baseadas em Pedagogias Alternativas

| Integração |

Propor espaços que incentivem e promovam maior interação tanto entre seus usuários, como a comunidade.

| Sensações

Favorecer a aprendizagem através da da espacialidade dos ambientes, da natureza e de soluções arquitetônicas.

| Espacos lúdicos e alternativos

Propor espaços que desperte a criatividade e estimulem curiosidade das criança.

| Conforto Ambiental

Propor soluções sustentáveis que propiciam um ambiente agradável para aprendizagem.

Brasil Estado de São Paulo Cidade de São Paulo Jardim Ângela
Síntese TFG I | 110Síntese TFG I TRABALHO FINAL DE CONCLUSÃO DE CURSO Orientador: Sérgio Salles Leonardo Santos 818118680
Montessori Waldorf Reggio Emília Piaget
IMG 01 - Perspectiva da entrada da escola e sua relação com a praça proposta.

O distrito do Jardim Ângela situa-se no extremo sul do município de São Paulo e faz parte da Subprefeitura do M'Boi Mirim. A região é marcada por um contexto geográfico complexo, em virtude das grandes tensões demográficas e ambientais impulsionada pelo alto crescimento populacional, no qual avança, cada vez mais, sobre áreas de preservação ambiental, principalmente às margens da represa Guarapiranga.

Habitantes (Ha)

Distrito com maior populacão da cidade de São Paulo.

Fonte: Fundação SEADE, Elaboração: Secretaria Municipal de Desenvolvimento Urbano –SMDU / Departamento de Produção e Análise de Informação – DEINFO Distrito com a maior número de crianças (0 a 6 anos) da cidade de São Paulo. 02º 11,28% em relação a população total do distrito População infantil 37.212 ha Fonte: IBGE/Seade, ano base 2018 - dados retirados da pesquisa desigualdade na Primeira infância 2020 da Rede Nossa São Paulo, modificada pelo autor. 37.212 32.371 31.160 29.712 Jd. São LuizCapão RedondoJardim Ângela BrasilândiaGrajaú 1º 3º 4º 5º 2º 43.031 Fórmula: (Habitante total do distrito x Porcentagem de crianças do distrito) ÷ 100 Fonte: SME/EOL, ano base 2018 - dados retirados da pesquisa desigualdade na Primeira infância 2020 da Rede Nossa São Paulo. Distrito Jardim Ângela Média da Cidade de São Paulo 1 2 3 4 5 ...174 1 2 3 4 5 ...107 Distrito com maior tempo médio para atendimento de vagas em creche 11º 20,6 GuaianasesGrajaú 14º 96º174,7177,3 Jardim ÂngelaJabaquara 11º10º 152,7 Fonte: Seade/IPVS Base Setor Censitário, ano base 2010 - dados retirados da pesquisa desigualdade na Primeira infância 2020 da Rede Nossa São Paulo, modificada pelo autor. Distrito com maior número de crianças em vulnerabilidade social da cidade de São Paulo. 02º 10,2% em relacão a populacão infantil total Crianças em áreas vulneráveis 3.795 3.795 3.204 2.991 2.801 Cidade AdemarCapão RedondoJardim Ângela BrasilândiaGrajaú 1º 3º 4º 5º 2º 4.217 Fórmula: (Numero de crinças total do distrito x Porcentagem de crianças em vulnerabilidade social por distrito) ÷ 100 Renda média familiar mensal 0 a 2,5 salários minimos Fonte: BGE/Seade, ano base 2017 - dados retirados da pesquisa desigualdade na Primeira infância 2020 da Rede Nossa São Paulo.
329.893 ha Fonte: IBGE/Seade, ano base 2018 dados retirados da pesquisa desigualdade na Primeira infância 2020 da Rede Nossa São Paulo. 02º
Jardim ÂngelaÍndice Paulista de Vulnerabilidade Social – IPVS Município de São Paulo -2010 RuaMagisterLeoninus Rua Ribeirão Ponte Baixa X EstradaGuavirutuba Rua Francisca Jacinta dos Santos Represa Guarapiranga CEI Jardim Maria AliceCEI Parque Santa MargaridaEMEF Profa. Carolina Renno Ribeiro PraçaE.E. Doutora Rosa Pavone PimontMargem do córrego não preservada Barreira física e visualReciclagemEstacionamentoDepósitoCórrego guavirutuba Rua sem saída | 210Síntese TFG IIMG 04 - Pontos importantes do entorno. IMG 03

EDUCAÇÃO

A partir da leitura do território, foi possível identificar eixos visuais, possíveis caminhos e pontos focais que serão importantes no processo de concepção arquitetônica e urbanística do projeto.

ZILDA MARIA

Inicialmente foi prevista conexão (Atualmente inexistente) entre as Ruas rua Ribeirão Ponte Baixa, Rua Magister Leonius e rua Francisca Jacinta dos Santos através de um ponto focal, a praça, no qual a mesma também servirá como apoio ao acesso a área escolar. Para permitir tal acesso, a edificação foi implantada em dois volumes, um linear, acompanhando o viário e outro com certa inclinação, acompanhando o córrego, respeitando sua área de preservação. Entretanto verificou-se que a relação interna/externa tanto da rua quanto da praça, estava restrita somente a entrada, enfraquecendo o projeto.

Para estabelecer maior relação entre os três pontos principais do projeto (Praça, Córrego e Rua,) foi alterada a implantação de modo a ampliar a área de entrada e consequentemente permitindo maior

conexão entre público e semipúblico. Entretanto, a grande extensão dos dois volumes perpendiculares ao viário e córrego, manteve-se a sensação de um grande “paredão”, algo que já é realidade no local da intervenção. Para solucionar o problema anterior, estabeleceu-se vazios entre os blocos de modo a criar “respiros” na volumetria permitindo assim, uma melhor relação entre a área interna e externa. Além disso, foi estabelecido um eixo diagonal sentido encontro dos córregos a fim de levar maior conexão e evidenciar sua importância, possibilitando diversas áreas de permanência e contemplação.

Com o propósito de trazer maior relação com o córrego, foi levado para a implantação a lembrança da sinuosidade do mesmo antes da retificação através do deslocamento dos volumes centrais dos blocos. Tal modificação possibilitou a criação de jardins, internos e externos, fator que possibilitou a requalificação do passeio público além do aumento da arborização da região em conjunto com a recuperação do leito do córrego.

TFG II CENTRO DE
INFANTIL
TRABALHO FINAL DE CONCLUSÃO DE CURSO Orientador: Sérgio Salles Leonardo Santos 818118680 | 310TFG IIIMG 06 - Vista da fachada principal a partir da Rua Ribeirão Ponte Baixa.
IMG 05 - Diagrama de concpção arquitetônica

Mobiliário

Através da utilização de mobiliários na escala da criança, a escola permite que a mesma se desenvolva integralmente a partir do estimulo a autonomia e a coordenação motora.

Referências Arquitetônicas

Praça

Para elaborar a concepção da praça foi utilizado principalmente duas referências, a primeira sendo a ladeira da barroquinha para solucionar o desnivel de 5 metros entre o terreno e a Rua magister leoninus, mesclando a forma dos degraus entre estreitos e largos de forma a proporcionar não somente um local de passagem mais também de permanência. Somando-se a isso, foi elaborado também com base no projeto do Promenada, bancos com geometrias diferenciadas criando espaços de permanência em conjunto com áreas verdes e sombreada, no qual permite assim espaços multiuso de apropriação pela comunidade, além de servir como modelo para a requalificação do trecho do córrego guavirutuba.

Edificação

Quanto a concepção volumétrica, a ideia desde o início, era estabelecer uma relacão maior entre a escola e a comunidade, deste modo museu arqueológico foi de grande importância pois mesmo com programa distinto a volumetria refletiu-se diretamente na edificação proposta, através dos módulos de salas que “saltam” para a rua assemelhando-se a pequenos agrupamentos de ”casas” que se estruturam através de um pátio central no qual articula o programa, tornando-o um local de convivência e interação, assemelhando-se ao projeto da escola pública escola vila any-guel. Tais características foram de grande importância para a incorporação do programa de forma a estabelecer maior conexão entre os tres pilares: comunidade, criança e educação.

Museu Arqueológico

Lima, Peru Barclay&Crousse architecture

Materialidade

Cores

A escolha das cores foi com base nas cores primárias, embora não todas, pois possuem harmonia entre si e gerando estímulos nas crianças. Nas salas de aula foi utilizada tonalidades pasteis, para equilibrar a relacão estímulo e tranquilidade.

Caixilharia

O desenho foi inspirado no projeto Heydar Aliyev da Zaha hadid, onde o desalinhamento entre as guarnições provoca a sensação de movimento da fachada, permitindo assim, a união entre a estética e o funcionalismo através de janelas basculantes que permitem a ventilação natural dos ambientes.

Cobertura

A fim de possibilitar a cobertura do pátio central foi projetado um telhado borboleta com uma claraboia central com intuito de não prejudicar a iluminação natural do interior da escola. Além de permitir a captacão da àgua da chuva.

Vedação

A vedação é feita a partir de blocos de concreto devido a economia, e embora não seja um bom isolante térmico algumas soluções realizadas, como ventilação natural cruzada auxiliam na diminuição da temperatura.

Estrutura

Para uma construção econômica, racional e rápida foi decidido por utilizar estruturas pré-moldadas, devido a necessidade do projeto. Além disso possibilita uma construção mais limpa evitando, ainda mais, possíveis danos ao córrego.

| 410TFG II IMG 07
5,50mEixos
Tabela geral de áreas Parâmetros de ocupação Área de Intervenção fase 01 Recuo Obrigatório Àreadepreservacão Permanente(APP) Área de intervenção Fase 02 Área de intervenção - FASE 02 5.332 m2 Área edificada 2.022 m2 Área de intervenção - FASE 01 4.364 m2 Área não edificada 2.342 m2 Área construída total 3.553 m2 Coeficiente de aproveitamento (CA) Taxa de Ocupação (TO) Área permeável (AP) 0,81 0,46% Máximo: 0,7% Máximo: 2 Minimo: 15%0,18% Parâmetros - Fase 01 Índice Atingido Índice Legal do município FASE 01FASE 02 2% 5% 7% 17% 21% 623,50m2 188m2 811m2 1903m2 2342m2 5332m2 48% 52% (5867,5m 2 ) | 510TFG IIIMG 09 - Vista a partir da praça inferior IMG 08 16213 18 175 13 NÚMERO DE ALUNOS ATENDIDOS NÚMERO ADOTADO DE ALUNOS POR TURMA NÚMERO TOTAL DE CRIANÇAS ATENDIDA. CRECHE CRECHE PRÉ ESCOLA PRÉ- ESCOLA
| 610TFG II0 5 10 20 + 772,60 + 769,55 + 765,80 + 765,00 + 765,40 + 765,00 + 769,15+ 768,75 + 772,20+ 771,80 + 764,20 + 763,60 + 761,60 + 776,05 CORTE AA C C B B A A 0 25 50 100 IMPLANTAÇÃO N IMG12 IMG 18 IMG 10 IMG 11 IMG 10 - Vista da Rua Magister Leoninus IMG 11 - Vista da rampa de acesso a praça IMG 12 - Vista da praça IMG 13 - Implantação por fotomontagem mostrando a relacão entre o entorno e o edifício proposto. RuaMagisterLeoninus RuaRibeirãoPonteBaixa Estrada Guavirutuba Rua Francisca Jacinta dos Santos

Ventilação

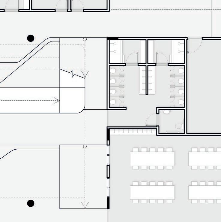
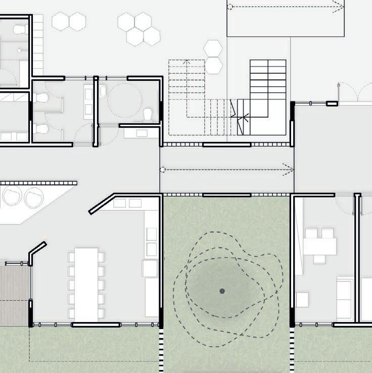
0 5 10 20 CORTE BB + 769,15 + 765,40 + 772,20 + 765,40 + 765,00 + 765,50 + 765,00 + 757,10 + 769,15 + 773,25 + 759,60 + 760,00 + 774,30 765,80765,80765,40 765,40 765,80 766,40 765,00 765,00 765,00 765,00 764,80 764,80 759,00 0 5 10 20 PLANTA TÉRREO N C CB B A LEGENDA 18. Ambulatório 13. Sala dos professores 17. Nutricionista 14. Espaço de descompressão 15. Copa/Refeitório 16. Psicólogo 10. Banheiro PMR Fem./ Masc 11. Banheiro 12. Vestiário Fem./ Masc 09. Depósito geral 02. Acesso principal 08. Sala de Reuniões 03. Patio central 04. Recepção 05. Arquivo 06. Administração + Secretaria 07. Diretoria 01. Praça de integração 21. Despensa 19. Área de higienização 22. Cozinha 23. Higienização de alimentos 24. Refeitório Alunos 25. Vestiário Aluno 20. Despensa Fria 26. Lavanderia 28. Depósito geral 27. DML 33. Horta 37. Abrigo Gás e Lixo 38. Abrigo de Lixo 34. Estacionamento 32. PlayGround 29. Depósito Mat. Jardinagem 30. Brinquedoteca 31. Biblioteca 36. Vaga de Ambulância 35. Vaga Carga e descarga 01 06 02 05 09 10 10 13 14 14 15 16 17 18 19 2320 21 22 24 25 26 27283031 32 33 34 35 36 37 38 29 11 11 12 12 0908 04 07 03
A solução encontrada para garantir o conforto térmico dos ambientes foi a utilização de janelas basculantes na fachada e uma abertura superior conforme diagrama abaixo para garantir a ventilação cruzada. | Diagrama 10 - Solucão de ventilação e luz natural | 710TFG II IMG 14 - Vista do pátio central a partir do acesso a ala do berçário.
Rua Ribeirão Ponte Baixa
i=7,38%i=7,38% i=8,00% i=8,33%i=8,30% i=8,30% i=8,33% i=8,33% i=8,33% i=8,33% i=7,38% i=6,66% IMG22 IMG24 IMG 23 IMG 17 IMG 16 IMG 19 IMG 19

Durante da implantação foi verificado a insolação, no qual foi constatado, através das cartas solares, que além do recuo da fachada será necessário prever brises nas fachadas Noroeste e Sudeste para conter incidência solar direta na primavera e verão no período das 12:00h as 16:00 conforme o diagrama 11. A fachada Nordeste, somente receberá sol das 06:00h as 12:30h durante o ano todo não sendo necessário prever quaisquer tipos de barreira além da estabelecida.

0 5 10 20 + 772,55 + 775,20 + 769,15 + 764,80 + 765,40 + 765,00 + 765,60 + 765,75 CORTE CC 0 5 10 20 CORTE CC Diagrama 11 - Verificacão de necessidade de olucão de controle de insolação Nordeste - NE Sudoeste - SO NoroesteNO N IMG 15 IMG 20 IMG 21 IMG14 759,00 765,80765,80765,40 765,40 765,80 766,40 759,15 765,00 769,55 764,80 768,75 769,55 764,80 40. Sala de atividades Maternal I (2 a 3 anos) 44. Banheiro Infantil 45. Solário 46. Lactário 39. Sala de Artes 41. Banheiros masc. e Fem. 43. Banho infantil 42. Banheiros PMR masc.e fem. 47. Sala de atividades Berçário I e II (0 a 2 anos) 56. Sala Multimídia 55. Sala de atividades Maternal (4 a 5 anos) 48. Cozinha 49. Fraldário 50. Berçário 51. Sala multiuso 53. Banheiro PMR Infantil. 54. Sala Multimídia 45. Sala de Repouso Berçário I e II 52. Sala de atividades Maternal II (3 a 4 anos) LEGENDA 40 39 44 44 41 41 53 42 42 45 45 52 51 5455 55 55 56 5252 47 48 46 49 50 40 40
Insolação 0 5 10 20 PLANTA PRIMEIRO PAVIMENTO N C CB B A | 810TFG II
Rua Ribeirão Ponte Baixa
i=7,38% i=7,38% i=8,33% i=8,33%i=8,33% i=8,33% i=8,33% i=7,38% IMG 15 - Sala de Aula Modelo
IMG 16 - Vista da horta e ala do bercário IMG 17 - Vista do Playground
IMG 18 - Vista do acesso escolar a partir da praça. | 910TFG II
IMG 19
- Pátio central coberto.
IMG 20 - Vista do pátio superior e a conexão visual com o entorno. | 1010TFG II
IMG
24 - Bilbioteca.
IMG
23
- Brinquedoteca. IMG 22 - Espaço de convivência no pátio central. IMG
21
- Pátio superior.

Turn static files into dynamic content formats.

Create a flipbook
Issuu converts static files into: digital portfolios, online yearbooks, online catalogs, digital photo albums and more. Sign up and create your flipbook.