TCC I: Centro Educacional Infantil Zilda Maria - Arquitetura e Urbanismo

Page 1

ENTRE CRIANCAS, ESPACOS E RELACOES

ENTRE CRIANÇAS, ESPAÇOS E RELAÇÕES.

Arquitetura como suporte ao ensino Infantil

Leonardo Santos da Silva

Universidade São Judas Tadeu Faculdade de Arquitetura e Urbanismo

Trabalho Final de Graduação I

Orientador:

Prof. Me. Sérgio L. Salles Souza

"ENQUANTO ELES CAPITALIZAM A REALIDADE, EU?, EU SOCIALIZOMEU SONHO" (SERGIO VAZ)

São Paulo

Junho de 2021

No caminho de grandes conquistas, pas samos por momentos turbulentos, no qual duran te o percurso existem pessoas que nos auxiliam a superar todas as barreiras e limitações. A estes dedico o presente trabalho como forma de agra decimento e carinho pela contribuição e suporte a esse processo de formação e desconstrução.

A minha família por ter o privilégio de in centivarem constantantemente os estudos, em especial minha avó Zilda, no qual é um exemplo de força, persistência e superação, e a minha mãe Marli, minha primeira professora, pelo companhei rismo, suporte e ensinamentos, onde me auxiliam a superar os desafios da vida.

A Iara, meu grande amor, pelo carinho, compreensão, incentivo e pelas diversas vezes que me deu forças para concluir este sonho.

A todos meus amigos, em especial a Vitó ria Vaz, minha irmã de consideração, pela parceria de vida, a Carol Sampaio, minha eterna dupla de trabalho, e também a Graziela Montim por terem dividido tantos momentos de alegria e dificuldades durante a graduação.

E a todos os professores, fonte de inspira ção, dedicação e exemplos de profissionais, espe cialmente a meu orientador Sérgio Salles, por me ajudar a organizar os turbilhões de pensamentos.

| Agradecimentos |

03

INTRODUÇÃO }

pg.07

Problemática | - |Justificativa | pg.08 pg.09

| Metodologia |

| Objetivo Gera l - l Objetivo Específico l pg.10

01{ O AMBIENTE ESCOLAR CONTEMPORÂNEO E A EDUCAÇÃO } pg.11 pg.15

1.1 | Síntese evolutiva das instituções de ensino paulista | pg.14

1.2 | A padronização e suas deficiências | pg.17

1.4 | Relação escola, familia e comunidade |

1.3 | Pedagogias alternativas e o espaço construído | pg.27

02

{ A CONSTRUÇÃO DE PARÂMETROS ARQUITETÔNICOS } pg.31

2.1 | Colégio Pies Descalzos pg.33

2.2 | Pré-School San José | pg.37

2.3 | Jardim de infância moravia | pg.41

{ JARDIM ÂNGELA E A CARÊNCIA EDUCACIONAL } pg.45 pg.49

3.1 | Jardim Ângela | pg.47

3.2 | Aspectos sociais e demográficos | pg.51

3.4 | Parâmetros de ocupação |

3.3 | A percepção espacial como diretrizes arquitetônicas | pg.56

{ CENTRO EDUCACIONAL INFANTIL ZILDA MARIA } pg.57

04

4.1 | Diretrizes de projeto | pg.59

4.2 | Programa de necessidades | pg.61

4.3 | Concepção volumétrica-espacial | pg.63

4.4 | Representação eletrônica pg.71

4.5 | Bibliografia | pg.76

{
00 | INDICE | | INDICE | | INDICE | | INDICE | | INDICE |

A escola é por excelência um dos princi pais locais de formação crítica e consciente do ser humano, sendo uma das instâncias mais concei tuadas da sociedade onde se constrói as primei ras relações com o mundo. Entretanto ao olhar para história do ensino escolar público infantil, é observado que as instituições ao longo do tempo, passaram a ser associadas a ambientes pouco atrativos, superficiais e excludentes sem qualquer relação com entorno, no qual assemelham-se mais a uma prisão do que propriamente um local de es tímulos ao aprendizado. Dentro dessa perspecti va e seguindo os princípios de acesso universal à educação, é preciso debater o papel da instituição escolar na sociedade contemporânea, assim como a relação entre a arquitetura e a pedagogia, pois a escola é reconhecida pela influência que causa em seu redor, não apenas pela característica que carrega, mas pelo sentimento de pertencimento da comunidade e por ser símbolo de coletividade e transformação social. Nesse contexto, o objeto de estudo surge a partir do entendimento sobre a importância educacional na primeira infância, onde os primeiros anos de vida são fundamentais no de

senvolvimento cognitivo, tais como a percepção, memória, o raciocínio etc. Possuindo no espaço, em conjunto a pedagogia, um dos principais co laboradores desta evolução através de ambientes que possibilitam vivências e socialização, con tribuindo na formação da personalidade a partir das primeiras experiências de aprendizagem. Para isso, buscou-se desenvolver base teórica para o projeto de uma instituição escolar infantil pública qualificada, através de metodologias pautadas em levantamentos bibliográficos a respeito dos princí pios que regem as pedagogias alternativas e sua relação com o espaço construído, a fim de proje tar uma instituição escolar infantil com ambientes focado na criança, mesclando a vida em comuni dade e vida acadêmica. Com intuito de desmon tar quaisquer barreiras sociais que possam exis tir, aprimorando, através da arquitetura, a relação escola, família, comunidade e consequentemente o desenvolvimento infantil. A escolha do Jardim ngela, distrito localizado na zona Sul da cidade de São Paulo, para materializar tal projeto se deu por análises sócio-demográficas, no qual constatou -se a necessidade para tal proposta.

O ensino público é hoje um dos grandes enfrentamentos da sociedade contemporânea brasileira, sua principal dificuldade é suprir o défi cit educacional de uma forma qualificada, unindo quantidade e qualidade. Os mais de 50 anos des de as primeiras políticas educacionais, ainda não foram o suficientes para aprimorar efetivamente o sistema educacional público, no qual este persiste em produzir instituições baseadas nos conceitos tradicionais onde a espacialidade é elaborada de maneira a favorecer a supervisão e ordem trans formando-as em fábricas de ensino e o conheci mento como uma linha de raciocínio padronizada, onde a similaridade é preferida à diversidade.

Além do déficit de vagas, podemos obser var que muitas unidades de ensino infantil público, atualmente, encontram-se em condições precárias de conservação, além de possuírem qualidade espacial questionável, pois é constituída de ambientes pouco acolhedores, ditatoriais que não concedem estímulos ao aprendizado. A revisão organizacional do espaço escolar neste contexto assume grande importância, visto que um espaço desqualificado pode prejudicar o aprendizado

“Pesquisas da neurociência demons traram que o cérebro humano alcança 80% do tamanho adulto durante o três primeiros anos de vida e que, nessa etapa, se formam 40% das habilidades mentais das pessoas adultas.” (ARAÚJO; LÓPEZ-BOO, 2010 apud MEC, 2008, p.11).

A infância é considerada um período decisivo na vida de uma pessoa, pois as descobertas são constantes ao se deparar com um mundo de infinitas possibilidades. Desse modo, a escola representa um ambiente de valores, experiências afetivas e de aprendizado, podendo potencializar ou inibir as relações interpessoais, afetando dire tamente o desenvolvimento da criança. Tal desen volvimento é fruto dos vínculos transmitidos tanto pela equipe docente quanto pela interação com o ambiente escolar

Desse modo, é essencial questionar a rela ção das instituições escolares na sociedade assim como a compatibilidade entre arquitetura e peda gogia, a fim de afastar a idealização de que se é público é algo ruim, pois as desigualdades sociais presentes na contemporaneidade se iniciam diante das diferenças de acesso à educação qualificada.

7 centro de educação infantil centro de educação infantil | 8
| Introdução | | Justificativa || Problemática |

Desenvolver um anteprojeto arquitetônico de uma Escola Infantil Pública para o distrito do Jardim ngela, pois o mesmo é o segundo distrito com maior número de crianças em vulnerabilidade social da cidade de São Paulo.

Este presente trabalho pretende revisar a atual estrutura organizacional escolar através do estudo sobre o espaço construído das pedagogias alternativas, a fim de produzir uma arquitetura que possa ser utilizada como ferramenta, repertório e ascensão das potencialidades de uma instituição de ensino, estabelecendo ambientes que estimu lem tanto o aprendizado quanto a construção crí tica e consciente das crianças, e que juntamente, incentive o sentimento de pertencimento da comu nidade, com a finalidade de evidenciar seu papel de agente de transformação social.

1. Estabelecer premissas relação entre in divíduo e espaço arquitetônico

2. Implementar ambientes que despertam, sensações como a curiosidade, o interesse e a criatividade das crianças;

3. Desenvolver espaços que promovam a inclusão, autonomia e que propiciem ricas experi ências para os usuários de forma lúdica, constru tiva e intuitiva;

4. Elaborar uma arquitetura que proporcio na maior relação com a comunidade, através de ambientes integradores.

A escolha do tema nasceu das experiên cias pessoais e da inquietação de compreender como a espacialidade influencia na qualidade de ensino infantil ofertada. Para tal compreensão, buscou-se o entendimento do tema através de análises referenciais teóricas procurando embasar através de teses, livros e artigos além da utilização de mapas e imagens obtidos de diversos canais de informações referentes à temática escolhida.

Após o entendimento sobre o tema, bus cou-se por meio de pesquisa exploratória, levan tar possibilidades de áreas de intervenção. Tendo como direcionamento, regiões de alta vulnerabili dade social com grande déficit na oferta de vagas do ensino pré-escolar. Diante disto, foi escolhido o distrito do Jardim ngela, onde tornou-se possível a busca pelo mapeamento em CAD (desenho assis

tido por computador) da área, no qual a dificuldade encontrada foi a atualização da mesma através da utilização de imagens articuladas de alta resolução cedidas no portal Geosampa.

Com base em tais levantamentos, come çam as investigações a fim de compreender os pro blemas e dificuldades projetuais do equipamento para que integrasse com a comunidade. Para essa etapa o uso de bases impressas, escrever sobre as premissas, compreensão do entorno croquis sobre manteiga, diagramas de relações programáticas, foram fundamentais para os primeiros partidos em busca de aplicar, da melhor forma possível, o conhecimento adquirido nas pesquisas apresenta das e durante o decorrer da graduação.

9 centro de educação infantil centro de educação infantil 10
| Objetivo específico || Objetivo geral | | Metodologia |
{O AMBIENTE ESCOLAR CONTEMPORÂNEO E A EDUCAÇÃO} 01 “Comecemos pelas escolas, se alguma coisa deve ser feita para 'reformar' os homens, a primeira coisa é 'formá-los'.” (Lina Bo Bardi em Primeiro: escolas, Habitat, no 4, 1951) VENTILASUSTENTABILIDADE ÇÃO ACOLHIMENTOFORMAS EXPERIMENTAÇÃO CONTATO IDENTIDADE APRENDIZADO ILUMINAÇÃONATURAL CORES CORESHORTAS VÍNCULOS SOCIALIZAÇÃO VARIAÇÃOESPACIAL PÁTIOS FLEXIBILIDADEMOBILIÁRIONAESCALADACRIANÇA ÁREASLIVRES IMAGINAÇÃO ACESSIBILIDADE BRINQUEDOSATELIÊS CORREDOR DE APRENDIZAGEM CONSTRUÇÃO CRIATIVIDADE DESENVOLVIMMENTOCOMUNIDADE LIBERDADE COMUNICAÇÃO AUTONOMIA NATUREZA LUDICISMO ARTEMOVIMENTO EXPRESSÃO SENSAÇÕES INTEGRAÇÃO ESTÍMULOSINETRATIVIDADEMATERIALIDADE PÁTIOS

Os conceitos sobre educação decorrem de di ferentes períodos da história, sendo hoje, um acu mulado das diversas experiências pedagógicas e arquitetônicas associadas ao desenvolvimento cultural, político e social. Na atualidade, a educa ção vivencia uma visão mais liberal, afastando gradativamente a idealização do professor como o único detentor do conhecimento, assim como os alunos sendo apenas agentes passivos do proces so de aprendizagem e o ensino meramente como memorização.

um ambiente escolar. Sendo assim, é indiscutível dizer que o espaço a qual se destina a transmissão de conhecimento, não possui impactos na quali dade da aprendizagem. Para isso, é imprescindível que a comunidade escolar possua a certeza que o espaço físico pode auxiliar uma produção acadê mica significativa quando oferece estímulos para tal ação.

Figura 01 |

Fonte:https://enciclope dia.itaucultural.org.br/ obra21518/escola-mo delo-da-luzg-e-pruden te-de-moraes Acesso 02/04/2021 às 19:07

“A origem etimológica da palavra educação - “trazer à luz a ideia”, “conduzir para fora” -, ou seja, dar a possibilidade de expressão de conteúdos internos individual e socialmente construídos, desmistificando o caráter impositivo e unilateral que pos sa dar ao processo educativo.” (KOWAL TOWSKI,2011, pg 13)

A edificação escolar nesse contexto torna-se a materialização do aprender, no qual, auxilia a pe dagogia na construção da formação crítica e cons ciente da criança, promovendo o desenvolvimento interpessoal.

De acordo com Kowaltowski (2011), um quinto da população passa grande parte de suas vidas em

[...] a arquitetura deve ser facilmente compreensível para as pessoas, por estar relacionada à vida cotidiana do homem. O arquiteto deve buscar formas e elementos que estimulem a relação homem/ambien te. O espaço projetado pode trazer a sen sação de conforto, segurança, ou imprimir uma característica de ambiente social e coletivo ou individual e íntimo. Pela vivên cia com os diversos espaços construídos, o homem soma suas experiências individu ais e aprende a conviver com o que a arqui tetura lhe oferece. (KOWALTOWSKI,2011, pg 40)

Figura 02 |

Fonte:https://biblio teca.univap.br/da dos/000038/00003848.

pdf modificada pelo autor, Acesso 02/04/2021 às 19:07 Acesso 02/04/2021 às 19:10

Estilo predominante neoclássico francês com grande ornamentação e monumentalidade. O méto do construtivo em tijolos não permitia vãos grandes, por isso as janelas eram altas e estreitas para favore cer a iluminação natural.

Simplificação do padrão construtivo adotando formas geométricas, malha estrutural e ambientes regulares, utilização de componentes pré fabricados.

Figura 03 |

Fonte:https://univa tes.br/bdu/bitstre am/10737/2254/1/2017E duardoMarroniTCC1.pdf modificada pelo autor, Acesso 02/04/2021 às 19:17

De modo a compreender espaço educacional contemporâneo é necessário abordar brevemente a evolução do mesmo ao longo do tempo, a fim de estabelecer os melhores parâmetros para a im plantação de uma edificação escolar pública mais qualificada ao ensino infantil.

Figura 04 |

Fonte:https://www.iau. usp.br/shcu2016/anais/ wp-content/uploads/pd fs/11.p modificada pelo autor, Acesso 02/04/2021 às 19:20

Introdução do modernismo lecorbusiano nas instituições escolares, novo método construtivo atra vés do conceito, eixos sem rigidez simétrica, aumen to na circulação horizontal, salas de aulas distribuí das ao longo e corredores

Resgate da escola focada na criança e integrada à o entorno. Projeto básico, padrão, modular consti tuído de elementos pré moldados. Espaços livres de lazer integradores (escola/comunidade). Ambientes escolares aberto ao público.

métricasUsodeformasgeo regulares

13 | centro de educação infantil centro de educação infantil 14 2003 - 20211930 a 1950 1990 a 20211889 a 1930
Térreo Pavimento tipo Pavimento tipo Pavimento tipo Janelas em fita Sala de aula somente de um lado do corredor Pilotis Circulacão Vertical
Espaçodelazer integradoaoentorno
Salas especiais Salas especiais/adm Circulação Sala de aula Pátio de socialização Circulação Sala de aula Pátio de socialização Térreo TérreoFem. Masc. Salas especiais/adm Circulação Sala de aula Acesos Salas especiais/adm Circulação Sala de aula Pátio de socialização Salas especiais/adm Térreo 3º Pavimento 2º Pavimento
Estrutura
pré-moldada
Vãos regulares | Figura 01 | Escola modelo da Luz (1905)
Figura 03 Centro Municipal de Educa ção Infantil (CEMEI) - Chácara Jockey. Figura 04 Centro Educacional Unifica do (CEU)- Butantã. Figura 02 | Grupo Escolar Visconde Congonhas (1936). | Síntese evolutiva das instituções de ensino paulista
|

| A padronização e suas deficiências |

A arquitetura escolar padronizada surgiu como resposta à grande demanda e à falta de ver ba. Na teoria, a justificativa para esse processo é a diminuição do gasto na produção em massa, a facilidade de correção de problemas patológicos e de aprimoramento do programa em detrimento das obras não padronizadas. Em complemento, a reprodução de um modelo específico está atrelada ao simbolismo de determinado período político, no qual, essa construção pode ser identificada facil mente, como uma assinatura de seu governo.

devido à ausência de avaliações de pós-ocupação, fator que permitiria a evolução das implantações futuras e consequentemente o aumento na quali dade das instituições.

“Os prédios escolares atuais são criticados porque suas salas de aula de padrão usual não passam de um monte de cadeiras voltadas para um quadro negro e uma mesa de professor bem imponente em cima de um tablado” (KOWALTOWSKI, 2011, p. 161)

“Muitas edificações escolares se guem um projeto padrão. Entretanto, a padronização nem sempre leva em conta situações locais específicas, resultando em ambientes escolares desfavoráveis, com problemas de conforto ambiental. O proje to tem a necessidade de flexibilidade para permitir ajustes a condições peculiares de implantação”. (KOWALTOWSKI, 2011, p. 101)

De acordo com Kowalski (2011), através de dados, o resultado desta posição indica que tal ação gera um aumento na quantidade de falhas

“A repartição das salas e dos corre dores, a localização e o formato de janelas e portas, a distribuição de alunos e alunas na sala de aula e nos demais espaços da escola dos nossos atuais prédios apon tam para a construção de lugares conce bidos como cientificamente equacionados, em função do número de pessoas, tipo de iluminação e cubagem de ar. Frias, as pa redes e as salas conformam a imagem de ensino como racional, neutro e asséptico. Implicitamente se afastam do ambiente es colar características afetivas. Mentes, mais do que corpos, estão em trabalho. E, nesse esforço, a escola abandona a criança para constituir o aluno.” (FARIA FILHO e VIDAL, 2000, p. 14)

Figura 05

Fonte:goole maps, 2019 03/04/2021 às 19:25

Os autores citados evidenciam que a atual configuração ocasiona a desmotivação dos alunos e acentua a valorização do autoritarismo e não o da liberdade. A espacialidade tradicional não per mite o contato visual direto, o silêncio é preferido em vez da roda de conversa.

Segundo Kowaltowski (2011), Sanoff, ar quiteto e estudioso sobre arquitetura social e esco lar, defende diversos princípios para a construção de um bom ambiente escolar, destacando a res ponsabilidade do arquiteto na sensibilidade de se produzir um ambiente adequado aliado às práticas pedagógicas.

tetônico padrão, e sim sobre a reflexão do espaço como direito fundamental da criança estabeleci dos em lei, proporcionando ambientes qualificados ao aprendizado, partindo do desenho arquitetônico até a cor e mobiliário que vão compor o ambiente.

“ambientes estimulante, lugar para ensino em grupo, conectar interior com exterior, áreas públicas incorporadas ao espaço escolar, seguranca, variedade es pacial, interação com o ambiente externo, flexibilidade, riqueza de recursos, ambien tes ativos e passivos, espaços personaliza dos e comunitários” (KOWALTOWSKI, 2011, p. 163)

Figura 05

Figura 06

Figura 06

Fonte:https://educacao. sme.prefeitura.sp.gov. br/cemei-e-emei-sao-i naugurados-na-regiao -do-jardim-angela/1001/ 03/04/2021 às 19:25

Assim, entende-se que a arquitetura escolar não se resume meramente entre a relação metra gem quadrada e a quantidade máxima de alunos que ela permite, nem tão pouco o programa arqui

Esta relação pode ser compreendida atra vés das grandes correntes pedagógicas tais como Waldorf, Piaget, Montessori e Reggio Emilia, os quais serão apresentados em seguida.

15 | centro de educação infantil centro de educação infantil 16
Centro de Edu cação Infantil (CEI) - Jradim Maria AliceJardim Âgela, SP Escola Muni cipal de Edu cação Infantil (EMEI) - Jardim Kagohara IJardim Âgela, SP Figura 05 e 06 Exemplos de escolas infantis na cidade de São Paulo

| Pedagogias alternativas e o espaço construído |

De acordo com Kowaltowski (2011) sua principal contribuição foi a criação do primei ro jardim de infância, em 1837, no qual tinha por base a atividade e a liberdade. Além dis so, introduziu a importância do brinquedo no estímulo ao ensino, pois enquanto os brin quedos físicos desenvolviam a coordenação motora, o desafio que eles proporcionam desenvolvem a parte cognitiva.

Friedrich Forbel (1782-1852)

Brasil - Revolução educacional com a 3ª re forma do ensino, creche reivindicada pela classe trabalhadora e defendida pelos sanitaristas. Houve uma melhora, porém a educação ainda perma nece elitista.

Possui o ideal interacionista, onde o indivíduo desen volve habilidades através da assimilação das circunstân cias, para adaptar-se às situações impostas pelo meio, criando instrumentos (inteligência) para superar as ad versidades encontradas durante o seu desenvolvimento. Tal entendimento, resultou em uma metodologia em que a criança é entendida como um ser dinâmico, onde sozinha, constrói seu conhecimento através das constantes experi mentações realizadas por meio da interação com os am bientes e indivíduos.

Brasil - O Ministé

rio da Educação criou o Programa Nacional de Educação Pré-Escolar, no qual firmava um compro misso com as crianças de 4 a 6 anos, principal mente para atender as classes mais baixas.

A pedagogia montessoriana surgiu através de um ques tionamento de maria montessori acerca da inexistência de materiais sobre inclusão da criança com deficiência em am bientes escolares. nesse contexto, a proposta educacional visa a autonomia da criança tendo como princípios segundo kowaltowski (2011) a atividade, individualidade e liberdade, ou seja, a partir de uma educação sobre as vontades e atenções do indivíduo, onde ela possui o direito para escolha dos objetos a serem utilizados, nos ofertados no local, além da possibilida de de explorar os ambientes de acordo com sua criatividade.

Brasil - Criação da Lei de Diretrizes e Bases da Educação (LDB)- Lei nº 9.394 de 26 de de zembro de 1996. Onde estabelece que as crian ças de 0 a 6 anos pos suem direito à educação infantil, tendo o estado como provedor.

1981 1996 1900 - 1930

Jean Piaget (1896-1980)

Maria Montessori (1861-1925)

1824

Brasil - Criação da Constituição de 1824, assegurando o direito à educação primária a todos os cidadãos bra sileiros, entretanto o ato somente ficou no papel e pouco coisa foi feita, e a educação ainda continua com caráter elitista

John Dewey (1859-1952)

Um dos principais educadores estaduniden ses, no qual contribuiu com a difusão do conceito da “Escola Nova”, através da educação progres siva, princípios que tiveram grande influência na construção da educação infantil brasileira. Este Modelo pedagógico parte da concepção da co operação, comunidade, liberdade e autonomia, através da teoria aliada à prática. Com isso, a divi são de tarefas e o incentivo a atividades manuais e artísticas ganham destaque, permitindo assim que a criança desperte um espírito social e adqui risse autonomia crítica e motora.

1964 - 1965

Brasil - Regime mili tar (1964 - 1965) - Demo cracia cada vez mais dis tante, Educação infantil popular somente básica para os mais pobres.

Prioridade para os cursos técnicos a fim de formar mais mão de obra.

Rudolf Steiner (1861-1925) Loris Malaguzzi (1920 -1994)

Criou a metodologia waldorf, baseada nas ideias antro pofágicas de rudolf steiner, no qual defende que o aprendizado infantil deve ser feito através das habilidades cognitivas, emo cionais e motora. o ensino teórico é sempre acompanhado pela prática, com grande foco nas atividades corporais artísticas e artesanais, como a costura, crochê, instrumentos musicais, jardinagem, teatro, entre outros. Sendo assim, a proposta visa educar através de atividades de cunho artístico, estético e lú dico por meio do estímulo da criatividade, sensações e do agir, priorizando tanto o movimento corporal quanto o da imagina ção através do ambiente aliado à natureza.

Reggio Emilia, a linha pedagógica criada por Malaguzzi é ba seada na exploração e descoberta através do desenvolvimento criativo da criança, com ampla participação da comunidade. A pro posta possui a cultura da escuta, onde qualquer modelo de comu nicação deve ser registrada e documentada tanto para possibilitar o aprimoramento pedagógico, quanto para estimular a criatividade e expressão do pensamento. Para Malaguzzi, o espaço é elemento fundamental no ensino, pois as crianças absorvem o conhecimento através do meio, com isso criam-se espaços acolhedores e alegres que expõem a criança a diversas experiências sensoriais estimu lando o desenvolvimento, comunicação e interação.

Linha do Tempo: Histórico evolutivo das correntes pedagógicas e datas importantes na educação Brasileira Fonte: Elaborado pelo autor

17 | centro de educação infantil centro de educação infantil 18

Waldorf

Figura 07 e 08 |

Fonte: https://www.min dfulhealthylife.com/poto mac-crescent-waldorf-s chool-northern-virginia/ acesso em 28/03/2021

Figura 13 onte: http://www.jeanpia get.g12.br/infraestrutura/ acesso em 28/03/2021 às 14:45

Figura 09 |

Fonte: https://www.arch daily.com.br/br/786149/ creche-em-guastalla-ma rio-cucinella-architects acesso em 28/03/2021 às 15:32

Figura 14 e 15

Fonte: https://www.arch daily.com.br/br/900627/ projeto-de-escolas-a-ar quitetura-como-ferramen ta-educacional acesso em 28/03/2021 às 14:15

13

14

Jean Piaget

Experimentação ativa através de experiência física com objetos geométri cos, ludicidade do espaço, materiais e objetos que despertem curiosidade.

15

Figura 10 e 11 |

Fonte: https://www.arch daily.com.br/br/759921/ escola-montessoriana-wa alsdorp-de-zwarte-hond acesso em 28/03/2021

Figura 12 |

Fonte: https://www.arch daily.com.br/br/900876/ escola-infantil-montes sori-meius-arquitetura -plus-raquel-cheib-arqui tetura?ad_medium=gallery acesso em 28/03/2021

Figura 16

Fonte: https://www.arch daily.com.br/br/786149/ creche-em-guastalla-ma rio-cucinella-architects acesso em 28/03/2021 às 15:00

Figura 17 e 18

Fonte: https://www. archdaily.com.br/ br/943136/a-importancia -do-ambiente-na-aborda gem-reggio-emilia acesso em 28/03/2021 às 14:52

Reggio

19 | centro de educação infantil centro de educação infantil 20
às 14:07
às 14:00
às 14:12
Figura
Figura
Figura
Figura 07 Figura 09Figura 08 Ausência de objetos tecnológicos, estímulos ao movimento corporal, artísticos e artesanais, teorias sempre acompanhada a pratica, aliadas a natureza.
Emilia Figura 16 Figura 18Figura 17 Conhecimento através da interação com o meio, ateliês com abundância de objetos para estímular a exploração e descoberta. Montessori Figura 10 Figura 11 Figura 12 Planta livre, sem excesso de brinquedos, cores suaves, mobiliário na es cala da criança, estímulo a curiosidade através dos objetos disponíveis. | Pedagogias alternativas e suas pricipais características |

A educação de qualquer indivíduo é baseada no contexto em que se insere, deste modo, o ato de aprender pode ocorrer de distintas maneiras. É possível, aprender em casa, na rua, no parque, no transporte público etc. entretanto não significa que não seja necessário um ambiente específico para tal finalidade, haja visto que quanto mais qualifi cado o espaço melhor, maior será a possibilidade de absorção do conhecimento. Correntes como Waldorf, Piaget, Montessori e Reggio Emilia, con trariam não somente o modo de transmissão de ensino tradicional, mas também sua espacialida de.

Segundo análises realizadas por Alvares (2010) as escolas Waldorf dedica-se a envolver e desenvolver a criança por completo através da or ganização funcional de suas instituições de ensino. A autora estabeleceu três parâmetros para definir a linguagem arquitetônica Waldorf, que possuem grande importância nos projetos das instituições.

A primeira diz respeito a integração é compre endida através de vários agrupamentos de sala de aula, unidas através de um espaço de referência, fazendo alusão a uma comunidade. A correlação é compreendida através de que a forma segue a

Elementos na fachada de modo a dar movi mento.

Uso de elementos curvos.

Espaço de vivência.

Figura 19 Fachada da escola Waldorf Marecollege onde ve rifica-se a sinuosidade da edificação, a utilização de materiais locais .

Uso de difenrentes materiais e texturas. Uso de difenrentes materiais e texturas.

| Figura 20 Corredor e acessos a salas da escola Waldorf Ma recollege, mostrando a diversidade de materiais, ludicidade pela cor e iluminação natural.

Figura 19 e 20 | https://i1.wp.com/ www10.aeccafe.com/ blogs/arch-showca se/files/2013/08/24h 154-24bzlr.jpg?fit=664% 2C1000&ssl=1 acesso em 28/03/2021 às 18:55

Figura 21 e 22 Fonte: https://www.arch daily.com.br/br/759921/ escola-montessoriana-wa alsdorp-de-zwarte-hond acesso em 28/03/2021 às 18:00

Espaço de vivência.

Figura 21 | Montessori Waalsdorp, a arquitetura externa des ta corrente em geral é minimalista que privilegia a iluminação natural dos ambientes

função, ou seja, dependendo da faixa etária as for mas e cores se alteram. Por fim, a inspiração cor responde à utilização de elementos como a cor, texturas e iluminação natural a fim transportar a imaginação da criança para outros locais e outros tempos estimulando a imaginação. Unidos de to dos esses conceitos, obtêm como resultado uma arquitetura feita para as crianças respeitando suas escalas, com materiais básicos, coloridos, sem no vas tecnologias e formas monótonas.

| Figura 22 Utilização dos corredores de aprendizado através de objetos em todos os locais para incentivar a "busca" do co nhecimento de forma independente.

OO método Montessoriano está ligado ao princípio de autonomia da criança assim como seu desenvolvimento natural. Seus princípios não somente originaram novos objetos, mas também conceitos arquitetônicos importantes a respeito da organização espacial educacional. Segundo Migliani (2019), propõe-se um espaço com cores claras e luz natural além de elementos dimensio nados a escala infantil, sem abundância de obje tos de modo a permitir somente o necessário ao aprendizado. Os elementos e formas devem ser simples e bem localizados de modo a não dificultar a locomoção permitindo múltiplas atividades. Ob jetos educativos são colocados ao longo de toda a escola, inclusive nos corredores e pátios a fim de

21 | centro de educação infantil centro de educação infantil 22
Forma simples Corredor de aprendizagem Área com brinquedos Guarda volume

estimular a autonomia da criança.a.

A pedagogia Reggio Emilia, assim como a montessori, parte da premissa de que as crianças possuem a capacidade de construir seu próprio aprendizado, tendo como colaborador o professor e o espaço no processo, portanto é necessário a criação de ambientes adequados com a finalidade de permitir experimentos e exploração. A lingua gem arquitetônica do modelo pedagógico não pos sui parâmetros definidos, pois sempre considera o contexto local, porém pode-se destacar a flexibili dade espacial, ateliês temáticos com abundância de materiais e recurso a todas as crianças, praças centrais com áreas verdes, espaço de exposição dos trabalhos desenvolvidos (BEYER 2019).

Tais correntes possibilitaram abrir novos caminhos aos projetos escolares. Hoje, tornou-se recorrente a construção de projetos inspirados nessas teorias, que através da concepção do es paço aliada ao ensino e integrada à comunidade, buscam produzir escolas de qualidade, projeta da ao seu principal usuário, ou seja, as crianças (BEYER 2019). Embora as teorias sejam pouco uti lizadas no ensino público, o seu conceito espacial está proporcionando, cada vez mais, a mudança projetual das edificações escolares brasileiras.

WALDORF

MONTESSORI

JEAN PIAGET

REGGIO EMILLIA

Figura 23, 24 e 25

| Figura 23, 24 e 25 |

Fachada e vista interna da Escola Infan til Beelieve, observa-se a utilização do pátio como articulador do programa com salas e ateliês em seu perímetro. Os ateliês possuem grande quantidade de materiais onde as crianças buscam o aprendizado tanto na parte interna quanto na exter na, interagindo entre si.

Fonte: https://www.arch daily.com.br/br/921834/ escola-infantil-beelieve -3arquitectura?ad_me dium=gallery acesso em 28/03/2021 às 18:07

Ala 02 Salas de aula

Salas de aula

Salas de aula Ala 01 Salas de aula

Formas que distanciam-se das arquitetura retilínea pa drão formando áreas de convivências;

Área comum

O espaço de vivência como principal articulador do edi fício;

Refeitório

Serviços Salas especiais

Sala de aulas agrupadas em alas de acordo com a idade escolar.

Presença de corredores de aprendizagem;

Refeitório

Corredor / pátioSalas de aula

Sala de aula Serviços

Salas de aula Ensino médio

Serviços Salas especiais

O espaço de vivência como principal articulador do edi fício;

Fluxo favorecendo a todo momento a aprendizagem, tan to na localização do programa quanto na utilização das áreas comuns com mobiliários e objetos para instigar a autonomia.

Salas de aula Salas de aula

Salas de aula

Área comum

Salas de aula

Salas especiais

Serviços

Ambientes flexíveis, espaço de vivência como principal articulador do edifício; Sala de aulas agrupadas de acordo com a idade escolar; Presença de corredores de aprendizagem.

A praça de vivência como principal articulador do edifício;

Sala de aulas distribuídas ao longo da área comum cen tral para estabelecer a via em comunidade.

23 | centro de educação infantil centro de educação infantil 24
Figura 23 Figura 25 | Tabela 01 | Teorias pedagógicas e seus principais conceitos de organização espacial e relações funcionais - Fonte: Alvares, 2016, modificado pelo autor.
Agrupamento
de serviçosConfiguração espacial Observação
Querer Querer Pensar Sentir Sentir
Salas especiais Sala de aula Sala de aula Sala de aula RefeitórioSalas de aula Área comum (Praça) Salas especiais Serviços Pátiocentral
Espaço de vivência. Sala de aula / Ateliês Iluminação natural
Figura 24

WALDORF

A fim de ofertar a melhor educação, é necessário que o aluno se sinta membro de uma comunidade, por isso é fun damental oferecer espaços de socialização desde a chegada através da utilização de pátios externos e internos, tornando -os mais coletivos e intimistas servindo como uma extensão da sala de aula. Além disso, a edificação deve também possi bilitar a diversidade de atividades pedagógicas como labora tórios, ateliês, anfiteatro, etc. através da variação espacial dos ambientes.

Como relação a integração, espaços de vivência da comuni dade - anfiteatros, pátios externos e internos - possuem loca lização central na edificação com dimensões condizentes a necessidade para fácil acesso de toda a comunidade local. Já referente a correlação, observou-se que as classes são orga nizadas em alas, formando agrupamentos de sala de aula. As alas de sala de aula são organizadas espacialmente ao longo de eixos retilíneos, curvos ou circulares, de modo a "Abraçar" as áreas de vivência estimulando a integração.

E1

Pátio

MONTESSORI

Ao ter como objetivo a auto educação, é fundamental que o espaço físico deve possibilitar a liberdade de ação e de movimento através de ambientes flexíveis. Os “corredores de aprendizagem”, normalmente são ampliados para servir tanto como passagem quanto para abrigar mobiliários e objetos que incentivem a autonomia da criança.

Na organização espacial do edifício escolar, as salas de aula são agrupadas, de acordo com a etapa do processo de ensino-aprendizagem e possuem uma área comum de a che gada à sala de aula além de possuírem também acesso a um pátio externo de convívio de modo a possibilitar a "extensão " da sala de aula em um ambiente aberto.

As salas coletivas como laboratórios, ateliês etc. são localizadas em um agrupamento próprio próximo a entrada e áreas de convívio possibilitando o fácil acesso.

Pátio

Laboratório

Ateliês

Pátio

Anfiteatro

Sala do professor

Administração

Cozinha

Refeitório

Pátio

JEAN PIAGET

Devido seu aspecto social e ter como princípio bási co a interação é importante que o espaço proporcione o con vívio entre as pessoas. Para tanto, o programa é distribuído ao longo de um pátio central, evitando-se corredores, de forma a ser o espaço de chegada e convivência de todos, distribuindo em seu perímetro todo o programa arquitetônico. Além dis so, destaca-se a utilização de transparência (vidro) e grandes aberturas (portas e janelas), com preferência a edifícios térre os.

Ala de salas de aulas

Ala de salas de aulas

Área Comun Área Comun

Ala de salas de aulas

Quadra

Teorias

Segundo Alvares (2016 pg 352), “os experimentos, muito comum no dia-a-dia dessa escola, traz a necessidade de ambientes como ateliês e workshops". Como o ensino é baseado no desenvolvimento de projetos, é importante que os espaços estejam preparados para dar suporte a várias ativida des. Para tanto, é fundamental que os espaços de aprendiza gem sejam flexíveis.

Auditório

Ateliês

Biblioteca

Corredor pátiointerno

Ala de salas de aulas

Refeitório

E2

Quadra Quadra

Laboratório

Anfiteatro

Localização única

Cozinha

Sala do professor

Administração

E1

Conjunto pedagógico especializado

Conjunto pedagógico: Conjunto Vivência Serviços

Localização possível

Conjunto Administrativo

Ateliês

Laboratório

Biblioteca

Corredor de aprendizagem

Localização

Localização

Sala de aula Sala de aula

Área comum Área comum

Corredor de aprendizagem

Pátio externo Pátio externo Pátio interno

Sala do professor

Refeitório

Sala do professor Administração Cozinha

QuadraQuadra Quadra E1

Conjunto

Conjunto

REGGIO EMILLIA

Devido seu aspecto social e ter como princípio bási co a interação é importante que o espaço proporcione o con vívio entre as pessoas. Para tanto, o programa é distribuído ao longo de um pátio central, evitando-se corredores, de forma a ser o espaço de chegada e convivência de todos, distribuindo em seu perímetro todo o programa arquitetônico. Além disso destaca-se a utilização de transparências (vidro) e grandes aberturas (portas e janelas), com preferência a edifícios térre os.

Segundo Alvares (2016 p. 352), "Os experimentos, muito comum no dia-a-dia dessa escola, traz a necessidade de ambientes como ateliês e workshops". Como o ensino é baseado no desenvolvimento de projetos, é importante que os espaços estejam preparados para dar suporte a várias de ati vidades. Para tanto, é fundamental que os espaços de apren dizagem sejam flexíveis.

Pátio externo Pátio externo Pátio externo

Salas de aula Salas de aula Salas de aula

Descanso

Lavabo

Brinquedoteca

Descanso Descanso

Lavabo Lavabo

Ateliês

Ludoteca

Auditório

Localização única

Pátio Administração Sala do professor

Refeitório E1

Cozinha

Conjunto pedagógico especializado

Conjunto pedagógico: Conjunto Vivência Serviços

Localização possível

Conjunto Administrativo

25 | centro de educação infantil centro de educação infantil 26 | Tabela 03 Teorias pedagógicas e seus conceitos de organização espacial e relações funcionais - Fonte: Alvares, 2016, modificado pelo autor.| Tabela 02
pedagógicas e seus conceitos de organização espacial e relações funcionais - Fonte: Alvares, 2016, modificado pelo autor.
Querer Querer Pensar Pensar Sentir Sentir
possível
pedagógico especializado
Administrativo
única Conjunto pedagógico: Conjunto Vivência Serviços
externo
interno
externo
externo
Localização possível Conjunto pedagógico especializado Conjunto Administrativo Localização única Conjunto pedagógico: Conjunto Vivência Serviços Ala de sala de aula Biblioteca Biblioteca E2

"Era uma vez uma cidade, que possuía uma comunidade, que possuía uma escola.

mas os muros dessa escola eram fechados a essa comunidade.

Diante deste poema e todos os conceitos apresentados podemos presumir que o ensino vai muito além dos muros escolares, o aprendizado por tanto se torna a assimilação das várias expe riências adquiridas durante a vida, possuindo na escola e na família os orientadores deste desen volvimento e a comunidade como o meio desta evolução, evidenciando a necessidade da integra ção entre ambos.

De repente, caíram-se os muros e não se sabia mais onde terminava a escola, onde começava a comunidade. E a cidade passou a ser uma grande aventura do conhecimento."

A relação família, escola, e comunidade é imprescindível no desenvolvimento infantil, pois colaboram e influenciam na formação do indiví duo. Tal interação, estimula o processo evolutivo, transformando-se em catalisadoras ou inibidoras do desenvolvimento intelectual, social e cultural.

(Texto extraído do DVD "O Di reito de Aprender", uma realização da Associação Cidade Escola Aprendiz, em parceria com a UNICEF.)

A família é considerada o primeiro ambiente de socialização do indivíduo, sendo responsável pela transmissão de valores, crenças, ideais, além de proporcionar proteção, desenvolvimento afetivo, cognitivo e bem-estar. A escola se constitui como uma instituição que visa efetivar o desenvolvimen to global através de atividades programadas que contribuem na evolução das funções psicológicas tais como: memória, criatividade, organização, in

dependência, consciência crítica (DESSEN; POLO

NIA, 2007). A comunidade, formada por diversos núcleos familiares, desempenha tanto o papel de apoio a essas instituições quanto a de auxiliada tornando interação complexa.

De modo a estabelecer uma participação fa miliar mais ativa e positiva no ambiente escolar, é necessária uma mudança de atitude mútua, pois em muitos casos é comum os pais considerarem ser responsabilidade da escola tomar a iniciativa de procurá-los e vice-versa. Ainda há dificuldades em romper essa barreira e criar uma relação posi tiva para a reaproximação de todos.

Conforme a Cidade Escola Aprendiz (2013), é necessário utilizar a escola como um local de mocrático, transformando-a em um ambiente de referência, onde indivíduos possam debater diver sos assuntos, favorecendo a interação social entre as partes e rompendo cada vez mais as adversi dades. A aproximação entre escola e comunidade pode existir através de medidas práticas, tanto na colaboração da gestão, como também na atuação no conselho, atividades e eventos escolares, ma nutenção das estruturas internas (Pintura, limpe za) entre outras (GREINE, 2015). Em complemento,

é necessário pensar também em espaços que per mitam essa proximidade, indo muito além do horá rio regular e que funcionem como extensão da sala de aula, fomentando a permeabilidade de acessos e encontros de modo a colaborar na compreensão do valor espacial enquanto ambiente pedagógico, contribuindo assim para o aumento do sentimen to de pertencimento e não se resumindo apenas a outra construção entre muros.

“Não só a criança deve tomar posse da cidade, mas a cidade tomar posse da escola. Elas devem estar abertas ao fim de semana, os pátios têm que ser usados para eventos da comunidade, e se não houver uma praça adequada, porque não usar a quadra? Não adianta nunca pensar no edi fício cercado por muros, porque isso diz do que a escola representa para a sociedade, e do que a sociedade representa para a esco la.” (AZEVEDO, 2018 )

“E aí eu já avanço para o espaço urba no, porque a escola não dá conta de educar sozinha. As aulas têm que se estender para as praças, parques e espaços públicos da cidade. Por que não ter uma aula de ciência e estudar a fauna e aflorar numa praça pró xima ao edifício escolar?” (AZEVEDO, 2018 )

27 | centro de educação infantil centro de educação infantil 28

| Relação escola, familia e comunidade |

A utilização de espaços públicos nas comuni dades como meio de integração social e educação, principalmente quando integrada à escola, é de suma importância haja visto que o ensino extra classe e a interação com o meio, possibilita tanto a potencialização da educação formal quanto o estí mulo a interações sociais através das conveniên cias que o ambiente proporciona.

Uma série de locais podem exercer tal função, tais como os teatros, bibliotecas, museus, praça, etc. sendo a última, o objeto de estudo escolhido, pois o intenso avanço da urbanização provoca a perda de espaços livres e arborizados para tal fi nalidade, principalmente em áreas com vulnerabi lidade alta. Segundo Enanpur (2019), a praça é um instrumento com diversidade de funções que está ligada a qualidade de vida ofertada aos seus usuá rios, tais como:

“Psicológica – quando os usuários em contato com os elementos naturais presentes na praça relaxam e usufruem de momentos de lazer e recreação. Ecológica - ligada à presença de vegetação, solo não impermeabilizado, fauna diversificada, o que promove melhorias no clima da cidade e na qualidade do ar, solo e água. Socialpossibilidade de lazer que a praça oferece à

população. Estética - diversificação da pai sagem construída e o embelezamento da cidade. Educativa - está relacionada com a possibilidade que essas áreas oferecem como ambiente para o desenvolvimento de atividades extraclasse e de programas de educação ambiental.” (ENANPUR, 2019 p. 03).

Deste modo, a relação escola e praça pos sibilita a integração entre áreas de lazer e ensino favorecendo programas educacionais como a Es cola na Praça, que visa estabelecer uma relação de proximidade com a realidade da criança através de atividades ao ar livre fora do ambiente de ensino além de estimular a educação ambiental e a Es cola Aberta, que proporciona atividades nos finais de semana de forma gratuita na estrutura escolar. Além disso, essa integração permite um local de chegada mais confortável aos alunos, pois segun do Hertzberger em seu livro “Lições de Arquite tura” a entrada escolar primária precisa ser mais que uma pequena abertura, deve possibilitar algum tipo confronto para as crianças que chegam cedo, e também para as que não querem ir embora pos terior às aulas, demonstrando a importância desta relação para o espaço urbano.

Figura 26

Fonte:https://www. educacao.sp.gov.br/ escola-promove-festa -da-familia-em-conso nancia-ao-dia-das-maes/ Acesso em 05/04/2021 às 18:31

Figura 27

Fonte:http://imprensaleste. blogspot.com/2014/09/es colas-da-regiao-leste-pro movem.html Acesso em 05/04/2021 às 18:35

| Figura 26 | EscolaBibliotecaria Maria Luisa Monteiro da Cunha promove a festa da família. Destaca-se a utilização da quadra como espaço de ensino e integração.

Figura 28

Fonte: https://www2. educacao.mg.gov.br/ component/gmg/story/ 7838-educacao-libera-r -7-milhoes-para-o-progra ma-escola-aberta Acesso em 05/04/2021 às 18:40

Figura 29

Fonte:https://vando valrodrigues.com/ pinheiro-aulas-ao -ar-livre-conectam-alu nos-e-professores-atra ves-da-literatura/ Acesso em 05/04/2021 às 18:47

| Figura 28 | Evento do programa Escola Aberta em escola mu nicipal de São Paulo. Observamos a utilização do pátio como local de integração.

Figura 27 Escolas da região Leste promovem integração en tre pais, alunos e comunidade em uma praça local na Semana Nacional da Educação Infantil.

|

Figura 29 O Jardim Poético da Escola Municipal Robson das Flores em Pinheiros - SP, é um exemplo das atividades ao ar livre em praças locais.

29 | centro de educação infantil centro de educação infantil 30
{ A CONSTRUÇÃO DE PARÂMETROS ARQUITETÔNICOS } 02 (Agustín Escolano; Antonio Viñao Frago) “O espaço nunca é neutro. Sempre educa.”

Pies Descalzos

ESCOLARIDADE: Pré-infância - Fundamental

LOCAL: Cartagena, Colômbia

ANO: 2014

PROJETO: Giancarlo Mazzanti

ÁREA CONSTRUÍDA: 11.200 M²

O projeto do Colégio Piez Descalzos é no tável tanto no âmbito arquitetônico como no urba nístico. Localizada em Cartagena, na Colômbia, a escola ocasionou impacto social tanto na escala local quanto municipal. O intuito do edifício é ser

um marco urbano capaz de gerar um sentimento de pertencimento à sociedade na qual ele atende, para isso, foi empregado conceitos primordiais no projeto, tal como a Integração espacial, Inclusão social através da aproximação com a comunida de, concepção de uma forte Imagem Urbana e a implementação de uma arquitetura bioclimática e ambientalmente sustentável.

O local de implantação no morro de Peye foi escolhido a fim de frear a expansão urbana sobre a área de preservação natural e tornar-se um ponto

Figura 30 |

Fonte:https://www.arch daily.com.br/br/734163/ colegio-pies-descalzos -giancarlo-mazzanti?ad_ medium=gallery Acesso em 11/04/2021 as 14:57

focal do bairro. A forma arquitetônica foi proposta através da conexão entre três hexágonos, onde a relação área construída e livre possui alta impor tância no projeto. Enquanto os contornos hexa gonais abrigam o programa arquitetônico, o vazio central desempenha tanto o papel de articulador do fluxo escolar, através de uma grande rampa que acompanha de forma harmônica o desenho do pe rímetro, quando o de ser um ponto de referência para a inclusão e interação social

A sobreposição dos hexágonos permi tiu uma flexibilidade de relações entre ambientes (Diagrama 01) e possíveis interdependências pos sibilitando diferentes ocupações das áreas progra máticas do projeto, proporcionando a abertura da escola para a comunidade aos finais de semana. (Figura 31).

Figura 31 e 32

Fonte: https://www.arch daily.com.br/br/734163/ colegio-pies-descalzos -giancarlo-mazzanti?ad_ medium=gallery Acesso em 11/04/2021 as 14:57

Outro fator importante a ser destacado é materialidade permeável empregada nas salas (Figuras 31 e Diagrama 02) através de elementos vazados em madeira, fator que permite a relação visual entre a área interna (sala de aula) e externa (corredor/pátio/comunidade) elevando ainda mais o conceito de integração social destoando-se das construções escolares tradicionais.

33 | centro de educação infantil centro

educação

de
infantil 34
| Figura 31 | Pátio central da escola onde pode-se observar a circulação perimetral, os elementos vazados em madeira e a relação área construída e livre. | Figura 32 Pátio central onde é possível notar a característica de integração entre as crianças e a relação visual provocada pelo elemento vazado. Figura 30 Pemeabilidade visual Circulacão perimetral Espaço de vivência. Elemeto vazado
| Colégio
|

ESCOLARIDADE: Pré-infância

LOCAL: Cajicá, Colômbia

ANO:

PROJETO:

CONSTRUÍDA:

O projeto da creche San José tem como prin cípio a ideia de comunidade observada princi palmente nas correntes Waldorf e Reggio Emilia. Localizada em Cajicá, ao norte de Bogotá, a edifi cação se insere em um contexto educacional peri

férico de uma zona rural, onde possuem a concep ção de que a integração educacional (arquitetura e pedagogia) é capaz de estimular diretamente a capacidade de aprendizagem da criança.

A forma arquitetônica consiste em um con junto de volumes educacionais unidos por uma circulação perimetral coberta, originando um pátio central integrador. Segundo Corradi (2019), os ar quitetos Bonilla e Albatroz, enfatizam que a junção destas características constitui uma “Aldeia do co nhecimento” onde esse tipo de configuração per

Figura 38 | Fonte:https://www.ar chdaily.com/901054/ san-jose-preschool-tal ler-de-arquitectura-de-bo gota?ad_medium=gallery Acesso dia: 16/04/2021 as 15:25

mite um desenvolvimento flexível, no qual o projeto pode ser construído em partes, levando em consi deração a demanda e orçamento disponível.

A harmonia entre a materialidade proposta de paredes com acabamento rústico e grandes aber turas envidraçadas, constitui-se de uma continua ção do edifício administrativo existente. Enquanto a textura áspera, monocromática e a representa ção de uma parede espessa transforma os blocos educacionais em algo robusto e brutalista, as gran des fachadas envidraçadas com aberturas volta das para o ambiente interno\externo e a vedação da circulação através de elementos vazados, pro porcionam uma leveza projetual e possibilita dife rentes relações visuais ao longo do trajeto.

Figura 39 e 40

Fonte:https://www.ar chdaily.com/901054/ san-jose-preschool-tal ler-de-arquitectura-de-bo gota?ad_medium=gallery Acesso dia: 16/04/2021 as 15:25

Tal harmonia possibilita às crianças o aprovei tamento máximo de sua relação com a natureza, tal como, a observação do ciclo das estações, as alterações climáticas etc. Além do mais, as gran des aberturas oferecem a ventilação e iluminação natural necessária à qualidade do ambiente e as grandes coberturas promovem o tratamento da luz direta para indireta, protegendo assim as salas de aula contra a luz solar e calor excessivo, tornando o ambiente agradável ao ensino.

centro de educação infantil 38

2016
Daniel Bonilla e Marcela Albornoz ÁREA
3.545 M²
| Pré-School San José |
| Figura 39 | Bloco educacional onde pode-se observar a har monia entre a materialidade e as relações visuais que as aber turas permitem. | Figura 40 | Iluminação natural indireta das salas de aula pro veniente da cobertura estendida e uso de mobiliários acopla dos na parede para dar harmonia ao ambiente. Integracão com entorno Grandes aberturas envidracadaElementos vazado nos corredores Janelas basculante para o auxílio da ventilação cruzada Mobiliário acoplado na parede
Figura 38

| Diagrama 04 Exemplo de evolução construtiva de acordo com a deman da e orçamento, através de um pátio coletivo central.

Diagrama 05 | Utilização de ele mentos vazados na circulação para aumentar a permeabilidade solar e visual entre diferentes pavimentos.

Diagrama 06 Método de tratamento da insolação através da laje estendida, e ventilação com as janelas basculan tes.

Diagrama 04, 05 e 06

Fonte: Elaborada pelo autor

2

1 3 4

Figura 41

| Materialidade |

Concreto + Acamento rústico.1

* Remete-se ao edificío já existente, a fim de dar continuidade no projeto.

Figura 41 |

1 |

Fonte:https://www.archiex po.com/pt/prod/stoneleaf/ product-140342-1883695.

Ripas de madeira.2

* Permeabilidade visual e ventilacão nas áreas de circulação.

Grandes Aberturas envidraçadas3

* Para aumentar a iluminação natural e possi bilitar a integração com o entorno.

Principal cor utilizada.4

* Tonalidade pastel para não constratar com a paisagem local.

html Acesso em 10/04/2021 ás 14:15

2 |

Fonte:Fonte:https://i.pi nimg.com/564x/10/85/ c0/1085c00aebacf0e87ed 8ffe32a3395e1.jpg Acesso em 17/04/2021 as 16:41

3 |

chdaily.com/901054/ san-jose-preschool-tal ler-de-arquitectura-de-bo gota?ad_medium=gallery

Figura 42 | Térreo

Administrativo

Salas especiais

especiais

Fonte:https://n9.cl/5v0iu Acesso em 10/04/2021 ás 14:15

Figura 44

Fonte: Elaborada pelo autor

Figura 43 | 1º Pavimento

centro

Depósitos

educação

Salas

de
infantil 40 11 1 2 5 7 8 10 10 10 10 10 10 10 10 9 9 9 9 Figura 42 e 43 Fonte:https://www.ar
Acesso em 10/04/2021 ás 14:15 Conjunto pedagógico especializado Conjunto Administrativo Conjunto pedagógico Circulação Conjunto Vivência Serviços Figura 44 | Fluxograma esquemático expondo as relações es paciais do Colégio Pies Descalzos 1. Administração 2. Sala dos professores 3. Biblioteca 4. Sanitários 5. CozinhA + Refeitório 9. Sala de aula 6. Sala de esportes 10. Depósito 7. Pátio multifuncional 8. Sala de jogos 11. Sala de música 12. Sala de artes 13. Terraço 4 11 12 4 4 10 10 10 10 13 10 10 10 9 9 9 9 EP Pátio coberto Salas de aula Salas de aula Salas de aula Salas de aula Salas de aula Salas de aula Salas de aula Salas de aula Salas de aula
de aula Salas de aula Salas de aula Espaço multifucional Espaço multifucional Salas especiais Salas de aula Salas especiais Salas de aula
+ Sala de professor Salas especiais Salas
Cozinha/Refeitório
Escadas Escadas Escadas Escadas Escadas Escadas Pátio Descoberto Pav 01 Térreo Pav 01 Térreo 50m2 35m2 75m2 370m2 30m2 8 -15m2 5 -10m2 30m2 75m2 65m2 65m2 55m2 40m2

ESCOLARIDADE: Pré-infância

LOCAL: Medellín, Colômbia.

ANO: 2009

PROJETO: Alejandro R. Montoya, Javier C. Acero ÁREA CONSTRUÍDA: 950 M²

Paulo. Localizado em Morávia, na ponta nordeste da cidade de Medellín, na Colômbia, o projeto vem com a necessidade de ampliar a oferta de vagas no ensino infantil, além de ser um espaço de encontro familiar integrado à comunidade local.

Figura 45

vel. A integração com o entorno vem a partir do re cuo da edificação, onde cria-se um respiro urbano denominado de "Praça das árvores". Embora pe quena, a praça é de grande importância, visto que é o local de chegada, acolhimento e encontro das famílias no qual é complementada pelos espaços livres internos à medida que possibilita eventos abertos ao público.

Para controle da iluminação, na fachada prin cipal, foi utilizado um sistema de brises pré-mol dado de concreto pigmentado (Figura 45) que faz o filtro da luz solar direta, permitindo assim uma incidência indireta e mais adequada nos espaços internos. Já as áreas externas a insolação é con trolada através das sobras da própria construção e das vegetações implantadas.

Figura 46 Pátio interno da escola, observa-se a relação visu al que o ambiente propõe e o uso de venezianas nas salas de aula para a ventilação cruzada

O Jardim de Infância Moravia está em um con texto urbano complexo, pois a região tem sido local de grande aumento populacional e também de di versos assentamentos não planejados, similar ao observado em diferentes regiões da cidade de São

O terreno de implantação é cercado por cons truções e possui uma inclinação alta, tornando o projeto complexo. A solução adotada pelos arqui tetos foi construir o programa ao redor de rampas e pátios centrais de forma a permitir um “caminho de descobertas” dos espaços ao longo de cada ní

Figura 45 |

Fonte:https://www. archdaily.com.br/ br/01-162819/jardim -de-infancia-moravia -slash-alejandro-restre po-montoya-plus-javier -castaneda-acero?ad_me dium=gallery Acesso em 11/03/2021 ás 13:15

Figura 46 e 47

Fonte:https://www.arch daily.com.br/br/734163/ colegio-pies-descalzos -giancarlo-mazzanti?ad_ medium=gallery Acesso em 10/04/2021 ás 14:15

O conforto térmico dos ambientes é garantido através de aberturas na parte superior, com vene zianas ou janelas basculantes vide Figura 46, de forma a permitir a troca de temperatura. A corre lação entre ambas soluções permite o controle do conforto ambiental de forma passiva e sustentável, gerando ambientes mais agradáveis.

|

Figura 47 | Exemplo da espacialidade das sala de aula, pode -se grandes aberturas para a iluminação natural e relações visuais.

| centro de educação infantil

41
centro de educação infantil 42
| Jardim
de infância moravia
|
Venezianas para o auxílio da ventilação cruzada Rampas e pátio como articulador do projeto Utilizacão de Diferentes cores e texturas

| Diagrama 07 | Diferentes perspecti vas visuais do projeto.

| Diagrama 08 Ventilação cruzada através da utilização de venezianas e a relação visual interna-externa através de grandes aberturas envidraçadas.

| Diagrama 09 A importância do pá tio para a iluminação dos ambientes e remoção do ar quente.

Diagrama 07, 08 e 09

Fonte: Elaborada pelo autor

1. Acesso

Materialidade |

Concreto aparente1

* Materal frequentemente utilizado nas con truções públicas locias e com alta inércia tér mica, ajudando o controle do calor interno

Brises horizontais coloridos2

* Para controle da insolação na fachada mais insolarada.

1 |

Fonte:https://www.archiex po.com/pt/prod/stoneleaf/ product-140342-1883695.

html, Acesso em

10/04/2021 ás 14:15

2 |

10. Sala de Aula (Maternal)

Sala de aula

Tijolo ecológico3

* Para produzir uma arquitetura mais susten tável e remete-se ao tijolos aparente das con truções do entorno.

Principal cor utilizada.4

Fonte:https://n9.cl/4ziv8 acesso 20/04/2021 as 16:38 3 |

Fonte:https://www.clasf. com.br/tijolo-ecol% C3%B3gico-de-qua lidade-em-sumar% C3%A9-11078462/acesso 20/04/2021 as 16:38

Figura

Fonte:https://www.arch daily.com.br/br/734163/ colegio-pies-descalzos -giancarlo-mazzanti?ad_ medium=gallery Acesso em

pedagógico especializado

Figura 52

Fonte: Elaborada pelo autor

43 | centro de educação infantil centro de educação infantil 44
49, 50 e 51 |
10/04/2021 ás 14:15 Conjunto
Conjunto Administrativo Conjunto pedagógico Circulação Conjunto Vivência Serviços 1 4 5 2 7 8 9 10 10 10 6 11 12 13 14 15 16 16 16 Figura 52 | Fluxograma esquemático expondo as relações es paciais do Colégio Pies Descalzos Figura 49 Térreo | Figura 50 | 1º Pavimento | Figura 51 | 2º Pavimento EP E1 Pátio das árvores Pátio Pátio Hall de entrada Rampa + Escadas Rampa + Escadas Rampa + Escadas Escadas Salas de aula Salas de aula Salas de aula Salas de aula Salas de aula Salas de aula Depósito Lanavaderia Vestiário Cozinha + Refeitório Administrativo / Sala dos professores Banheiros Salas especiais Area técnica Terraço Banheiros Pav 01 Térreo Pav 02 Pav 01 Térreo Pav 02
Figura 48 | 3 1 2 Figura 48 4
principal
7. Cozinha 2. Patio "das árvores" 16.
(Pré escola) 8. Refeitório 3. Sala de capacitação 11. Lactário 4. Hall de entrada coletiva 12. Sala de aula (Berçário) 5. Banheiros 13. Terraço 6. Área técnica 14. Sala para engatinhar 9. Cordenação 15. Lavatórios 17. Pátios 37m 35m 10m 15m 117m 38m 35m 26m 21m 70m 49m 12m 6m 35m 8m 30 - 40m 100m 17 17
|

“Se a educação sozinha não pode transformar a sociedade, tampouco sem ela a sociedade muda” (Paulo Freire)

{ JARDIM ÂNGELA E A CARÊNCIA EDUCACIONAL } 03

O distrito do Jardim ngela situa-se no ex tremo sul do município de São Paulo e faz parte da Subprefeitura do M'Boi Mirim.

região é marcada por um contexto geo gráfico complexo, em virtude das grandes tensões demográficas e ambientais impulsionada pelo alto crescimento populacional, no qual avança, cada vez mais, sobre áreas de preservação ambiental, princi palmente às margens da represa Guarapiranga.

Ocorreu o represamento do Rio Guarapiranga. Devido sua beleza natural, vasta área verde e águas calmas, imigran tes italianos e alemães começaram a se estabelecer no local, construindo diversas chácaras, com o intuito de ser um am biente de lazer e práticas esportivas como caça, pesca e esportes aquáticos.

As glebas onde ficavam os sítios começaram a ser parceladas, dando ori gem a diversas vilas operárias a fim de abrigar os imigrantes vindos de todo o Brasil, que se deslocavam para a região a fim de trabalhar nas fábricas instaladas em Santo Amaro.

Na década de 60, verificou-se um grande crescimento na ocupação da ci dade, devido a forte imigração e o grande salto no crescimento populacional. A ocu pação começou a acontecer de forma de sordenada avançando sobre áreas de pre servação, como na região dos mananciais.

A grande explosão demográfica gerou um alto crescimento das ocupa ções irregulares. Entre 2001 e 2010 se gundo o Censo do IBGE 2010 a população do Jardim ngela cresceu cerca de 1,65% chegando a 295.434 ha.

47 | centro de educação infantil centro de educação infantil 48
A
Represa Guarapiranga Comendador santana M'BoiMirim JardimÂngela Figura 53 Estrada M'Boi Mirim Extensãoaté2024da Linha5-LilásdoMETRÔ Áreadeinfluência | Jardim Ângela | Figura 53 | https://n9.cl/ax1l9, Acesso em 17/03/2021 ás 18:59 Figura 54 | Fonte: Elaborada pelo autor | Figura 54 | Mapa de localizacão do Jardim Ângela.
1908 1960 1950 2010 Histórico de ocupacão Marco Zero

Os dados demográficos apresentados expressam as características sociais do Jardim ngela, no qual percebe-se uma elevada taxa de vulnerabilidade social em comparação a regiões mais centrais. O índice de vulnerabilidade segundo Fundação Sistema Estadual de Análise de Dados - SEADE (2010) leva em consideração aspectos como a renda familiar, a escolaridade, tipo de resi dência (formal ou informal) e sua localização (área de risco ou não) a fim de identificar os segmentos populacionais mais vulneráveis à pobreza.

Tais fatores possuem reflexos direto na primeira infância, principalmente em um distrito com uma das maiores populações infantis da ci dade de São Paulo, onde segundo dados da Rede Nossa São Paulo (2020) o percentual de crianças atendidas pelas instituições infantis é menor que a demanda existente, cerca de 89,3%, ocasionando um aumento gradativo na fila de espera por vagas em escolas.

Portanto, os dados apresentados revelam a necessidade que o distrito possui por instituições de ensino primária, a fim de amenizar o déficit de vagas escolares no ensino infantil.

Índice Paulista de Vulnerabilidade

Social – IPVS Município de São Paulo -2010

Figura

Fonte: Fundação SEADE, Elaboração: Secretaria Municipal de Desenvolvimento Urbano –SMDU / Departamento de Produção e Análise de Informação – DEINFO

Figura 55 |

Fonte: https://www.pre feitura.sp.gov.br/cida de/secretarias/upload/ urbanismo/infocidade/ mapas/5_Indice_paulis ta_de_vulnerabilidade_so cia_2010_10616.pdf, mo dificado pelo autor, acesso em 27/04/2021 as 22:22

IBGE

Instituto Brasileiro de Geo grafia e Estatística

SEADE

Habitantes (Ha) 329.893 ha

02º distrito com maior populacão da cidade de São Paulo.

Fonte:IBGE/Seade,anobase2018-dadosretiradosdapesquisadesigual dade na Primeira infância 2020 da Rede Nossa São Paulo.

Renda média familiar mensal 0 a 2,5 salários minimos

Fonte: BGE/Seade, ano base 2017 - dados retirados da pesquisa desigual dade na Primeira infância 2020 da Rede Nossa São Paulo.

Fundação Sistema Estadu al de Análise de Dados

Dados

Fonte: https://www.nossa saopaulo.org.br/wp-con tent/uploads/2020/02/ Mapa_da_Desigualdade_ da_Primeira_Inf%C3%A2n cia_2020_embargo.pdf acesso em 18/04/2021 as 12:22

02º

Distrito com maior número de crianças em vulnerabilidade social da cidade de São Paulo.

ano base 2018 - dados retirados da pes quisa desigualdade na Primeira infância 2020 da Rede Nossa São Paulo, modificada pelo autor.

Fórmula: (Habitante total do distrito x Porcentagem de crian ças do distrito) ÷ 100

IPVS Índice Paulista de Vulnera bilidade Social

Online

Distrito com maior tempo médio - em dias

Criança em área vulnerável 3.795

em relacão a populacão total do distrito

Fonte: Seade/IPVS Base Setor Censitário, ano base 2010 - da dos retirados da pesquisa desigualdade na Primeira infância 2020 da Rede Nossa São Paulo, modificada pelo autor.

(Numero de crinças total do distrito x Porcentagem de crianças em vulnerabilidade social por distrito) ÷

Dados |

Fonte: https://www.nossa saopaulo.org.br/wp-con tent/uploads/2020/02/ Mapa_da_Desigualdade_ da_Primeira_Inf%C3%A2n cia_2020_embargo.pdf acesso em 18/04/2021 as 12:22

Jardim

Média da Cidade de São Paulo

Fonte: SME/EOL, ano base 2018 - dados retirados da pesquisa desigualdade na Primeira infância 2020 da Rede Nossa São Paulo.

49 | centro de educação infantil centro de educação infantil 50
EOL Escola
| Aspectos sociais e demográficos |
1 2 3 4 5 ...173 1 2 3 4 5 ...107 Distrito
Ângela
- para atendimento da demanda por vagas em creche. 11º 18,5 20,6 GuaianasesRepública 95º 96º174,7177,3 Jardim ÂngelaJabaquara 11º10º Distrito com a maior número de crianças (0 a 6 anos) da cidade de São Paulo. 02º 11,28% em relação a população total do distrito População infantil 37.212 ha Fonte: IBGE/Seade,
37.212 32.371 31.160 29.712 Jd. São LuizCapão RedondoJardim Ângela BrasilândiaGrajaú 1º 3º 4º 5º 2º 43.031
10,2%
3.795 3.204 2.991 2.801 Cidade AdemarCapão RedondoJardim Ângela BrasilândiaGrajaú 1º 3º 4º 5º 2º 4.217 Fórmula:
100
55

| A percepção espacial como diretrizes arquitetônicas |

Mapa 01. Densidade demográfica

Conforme censo do IBGE 2010 consultado no portal Geo sampa, observa-se no Mapa 01, que a densidade demográfica do raio de influência imediata é elevada, variando entre 147 a 351 hab/ha. A densa ocupação é um dos parâmetros bali zadores na localização de uma instituição de ensino infantil pública, pois deve atender ao máximo de famílias possíveis.

Mapa 01 Mapa de análise da densidade demográfica no perímetro do raio de influência direta.

Censo IBGE 2010

Mapeamento realizado, através de pesquisa em todos as regiões do Brasil a fim obter informações sobre as condições de vida população brasileira

PDE

Leis que orientam o cres cimento das cidades, orde nando os espaços urbanos, para que o desenvolvimen to da cidade seja feito de forma planejada e organi zada.

300m

Mapa 03. Zoneamento

O zoneamento da região indica que a área de interven ção pertence a uma ZEIS-1, no qual a Segundo Prefeitura de São Paulo (2014) é destinada principalmente para habitações de interesse social (HIS), entretanto apoiada no Art. 55, Inciso §1º do Plano Diretor Estratégico de São Paulo de 2014 (PDE), terrenos superiores a 1000m2 destinados a equipamentos so ciais de educação, saúde, cultura e esportes fica dispensada a porcentagem obrigatória destinada à construção de HIS.

Mapa 01

Fonte: Dados retirados do http://geosampa.prefei tura.sp.gov.br/, adapta do pelo autor. acesso em 17/03/2021 ás 19:31

Mapa 03

Fonte: Dados retirados do http://geosampa.prefei tura.sp.gov.br/, adapta do pelo autor. acesso em 17/03/2021 ás 19:10

Mapa 02. Uso do solo

Conforme Lei de Parcelamento, Uso e Ocupação do Solo (LPUOS), nº 16.402/2016 consultada no portal Geosampa, no ta-se, no Mapa 02, que a elevada ocupação indicada no Mapa 01 é constituída predominantemente por residências, uma premissa relevante para a implementação de uma instituição de ensino infantil.

LPUOS

Estabelece leis e parâme tros sobre as formas de uso do solo da cidade, a fim de normatizar as a ações pú blicas e privadas de acordo com as estratégias do PDE.

Mapa 02 Mapa de análise do uso do solo predominante no raio de influência direta.

Mapa 02

Fonte: Dados retirados do http://geosampa.prefei tura.sp.gov.br/ adapta do pelo autor. acesso em 17/03/2021 ás 19:24

Mapa 04

Fonte: Dados retirados do http://geosampa.prefei tura.sp.gov.br/, adapta do pelo autor. acesso em 17/03/2021 ás 19:47

|

Mapa 03 | Mapa de análise do zoneamento

Mapa 04. Infra-estrutura e espaços públicos

Nota-se no Mapa 04, a proximidade com o transporte pú blico onde possibilita a expansão do raio de atendimento aos municípios vizinhos, além disso conta com a presença de ou tras instituições, no raio de 300m, permitindo a articulação de um núcleo educacional no qual favorece o aprimoramento da rede de ensino infantil. Entretanto, observa-se que há poucas áreas públicas de lazer, como as praças, em comparação a quantidade de habitantes, evidenciando a deficiência da região no suporte a espaços de integração social.

Mapa 04 Mapa de análise das principais infraestruturas públicas do entorno.

51 | centro de educação infantil centro de educação infantil 52

500m 300m 500m 300m 500m 300m 500m

Figura

|

Fonte: http://geosampa. prefeitura.sp.gov.br/, adap tado pelo autor. acesso em 25/04/2021

19:24

RuaMagisterLeoninus

|

Rua Itaquaxiara, 750, Par que Santo Amaro - SP. Fonte: https://www.google. com.br/maps acesso em 27/04/2021

19:15

Rua Magister Leoninus, 172, Jardim Santa Marga rida - SP.

https://www.google. com.br/maps acesso em 27/04/2021

19:10

| Percepções espaciais do entorno |

Ao analisarmos em uma escala mais aproxi mada, vide figura 56, é notável em primeiro mo mento, a presença de uma grande área com baixa taxa de ocupação, no qual contrapõe-se nitidamen te à realidade encontrada em seu entorno imediato, onde é difícil encontrar espaços pouco edificados.

Observa-se que a área de intervenção sele cionada, localiza-se em uma quadra ampla, atu almente sem permeabilidade ou transposições, possuindo como característica a presença de mu ros elevados e extensos, Figuras 58, 59 e 60, onde cria-se uma barreira física e visual, aumentando a sensação de insegurança e repulso ao longo do percurso.

centro de educação infantil 54
56
ás
Figura 58 |
Fonte:
ás
Figura 59
ás
Figura 56 53 | centro de educação infantil Rua sem saídaAgrupamento educacional Margem do córrego não preservada Barreira física e visual ReciclagemDepósitoCórrego guavirutuba Estaciona mento E.E. Doutora Rosa Pavone Pimont Praça CEI Jardim Maria AliceCEI Parque Santa Margarida EMEF Profa. Carolina Renno Ribeiro de Oliveira 59 61 58 X
Rua Ribeirão Ponte Baixa
Depósito visto a partir da Rua Itaquaxiara Figura 57
Projeção do muro porterior visto através Rua Magister Leoninus Projecão do Córrego guavirutuba Área verde preservada Projeção das edifições nas marges do córrego Rua sem saída X Figura 58 60 57

Embora situada em uma ZEIS-1, nota-se que a área de projeto possui atualmente usos diferentes do estabelecido no PDE, Mapa 03, onde atualmente é composto por terrenos subutilizados, ocupados por um depósito, estacionamento e um espaço de reciclagem, Figuras 57, 59 e 60. As atuais ocupa ções negam a presença do Córrego Guavirutuba, localizado no perímetro sudoeste, ao realizar a construção de muros, retirando qualquer relação com o mesmo, bem como a não preservação dos 15 metros de margem do córrego estabelecida pela Lei 6.766/79 do Código Florestal Brasileiro.

Além disso, outro fator notável é a presença de instituições de ensino ao redor, onde possibilita a formação de um agrupamento de instituições de ensino, fortalecendo o ideal de um núcleo educa cional, no qual possibilita a integração entre as di ferentes instituições, permitindo assim, um desen volvimento infantil mais completo.

Logo, todos os fatores apresentados são in centivadores para a implantação de um equipa mento educacional integrado a uma área de lazer na região, uma vez que é possível constatar, atra vés dos levantamentos, que a área possui grandes necessidades para tal proposta.

Figura

|

Ribeirão Ponte Baixa,

Parque Santo Amaro - SP.

Fonte: https://www.google.

acesso

Figura

|

Rua Itaquaxiara,

- Par que Santo Amaro - SP. Fonte: https://www.google. com.br/maps acesso

55 | centro de educação infantil centro de educação infantil 56
59
Rua
500,
com.br/maps
em 27/04/2021 ás 19:24
61
725
em 27/04/2021 ás 19:27 Figura 59 Extenso muro do atual terreno observado através da Rua Ribeirão Ponte Baixa Empresa de reciclagem Figura 61 CEI Parque Santa Margarida Figura 60 Empresa de reciclagem vista a partir da Rua Piraporinha Figura 60 | Rua Piraporinha, 160, Par que Santo Amaro - SP. Fonte: https://www.google. com.br/maps acesso em 27/04/2021 ás 19:20 | Parâmetros de ocupação | Área de Interveção princial 3154m2 (Área total - App e Recuo) Área de intervenção secundária 2335m2 Recuo Obrigatório Àrea de preservacão Permanente (APP) Figura 62 Fonte: http://geosampa. prefeitura.sp.gov.br/, adap tado pelo autor. acesso em 25/04/2021 ás 19:30 Recuo Frontal Obrigatório (m) Altura máxima da edifição (m) Coeficiente de aproveitamento máximo Coeficiente de aproveitamento mínimo 0,3 2,0 20 5,0 Parâmetro Índice Legal Àrea de preservação dos leitos de córregos (m) Recuo Lateral e Fundo (Edificação > 10m) Taxa de ocupação máxima (Lotes > 500m²) Taxa de ocupação máxima (Lotes < 500m²) 0,85 0,7 3,0 15 Parâmetro Índice Legal Área de interveção princial 4.492 m2 Área de intervenção total 6.829 m2+ Rua Magister Leoninus Rua Ribeirão Ponte BaixaFigura 62

“A cidade somos nós e nós somos a cidade. E o tipo de cidade que desejamos depende do tipo de pessoas que queremos ser. E o tipo de pessoa que queremos ser depende das escolas que iremos construir e frequentar” (Paulo Freire)

57 | centro de educação infantil centro de educação infantil 58
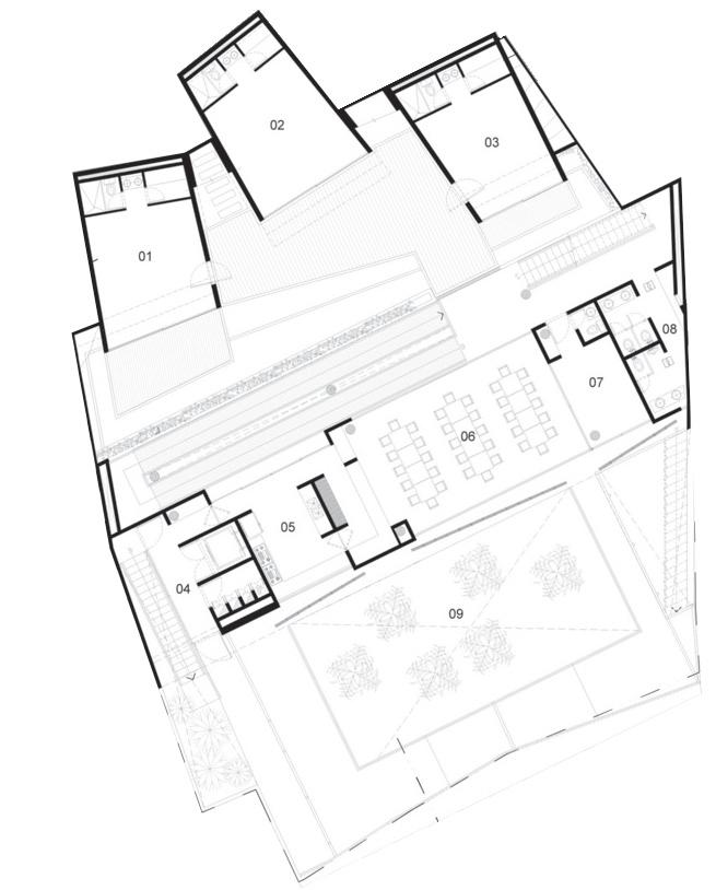
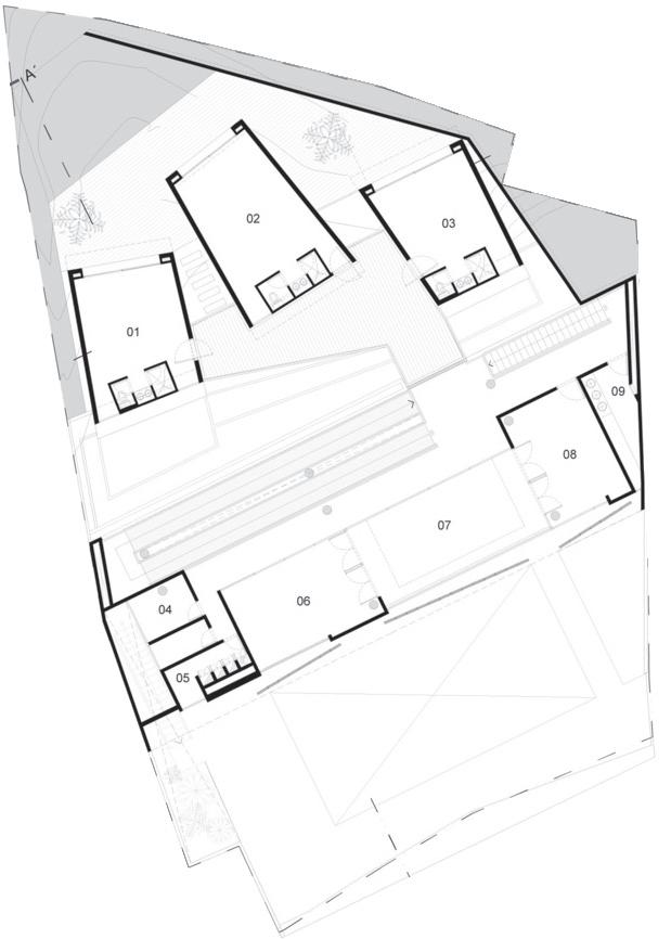
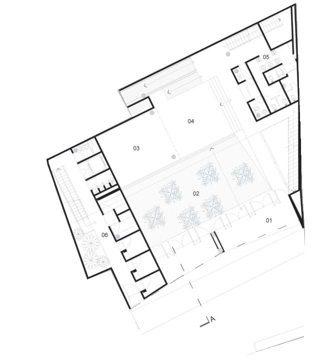
{ CENTRO EDUCACIONAL INFANTIL ZILDA MARIA } 04

Integração |

Propor espaços que incentivem e pro movam maior interação tanto entre seus usuários, como a comunidade.

Conforto Ambiental |

Propor soluções sustentáveis que pro piciam um ambiente agradável para aprendizagem.

Sensações |

Favorecer a aprendizagem através da da espacialidade dos ambientes, da natureza e de soluções arquitetônicas.

| Espacos lúdicos e alternativos |

Propor espaços que desperte a cria tividade e estimulem curiosidade das criança.

Figura

Elaborado pelo autor.

59 | centro de educação infantil centro de educação infantil 60 | Diretrizes de Projeto |
|
|
|
Figura 63
63 Fonte:
Figura 64 Fonte: Elaborado pelo autor. Figura 64
Figura
64 |
Relação entre escola proposta
e
as edificações vizinhas, onde nota-se o respeito e a integração ao gabarito local. Rua Ribeirão Ponte Baixa Rua Magister Leoninus

BERÇÁRIO I

meses a

ano

de necessidades

BERÇÁRIO II 1 ano a 02 anos

MATERNAL

anos a

anos

MATERNAL II 03 anos a 04 anos

PRÉ- ESOLA

anos a 05 anos

3º FASE 1º FASE 2º FASE

1º FASE 2º FASE

CRECHE (0 a 2 anos)

PRÉ- ESCOLA (3 a 5 anos)

Figura 65

Diante do numero total de alunos atendido, buscou-se elaborar o programa de necessidades a partir de referências, principalmente os documentos disponibilizados pelo Fun do nacional de desenvolvimento da educacao (FNDE) como o Manual de orientações técnicas, volume 02, elaboracao de projetos de edificações escolares infantis de (2017) e Parâme

PRÉ - ESCOLA

Figuras 65, 66

Fonte: Elaborado pelo autor.

CRECHE

10

13 20

ESCOLA

NÚMERO MÁXIMO DE ALUNOS POR TURMA NÚMERO ADOTADO DE ALUNOS POR TURMA NÚMERO TOTAL DE CRIANÇAS ATENDIDAS

Fonte: Resolução 8/2010 do Con selho Nacional de Educação (CNE)

Figura 66

tros Básicos de Infraestrutura para Instituições de Educação infantil (2006) com complemento das pesquisas realizadas ao decorrer do trabalho sobre o espacialidade das pedagogias alternativas para elaboração do melhor programa para o mo delo proposto.

61 | centro de educação infantil centro de educação infantil 62 | Programa
|
04
02
03
03
01
22
260
CRECHE
PRÉ-

Diante da indicação dos eixos visuais, possíveis cami nhos e pontos focais, foi implantado dois volumes um acom panhando o viário e outro a inclinação do terreno, respeitando a área de preservação. Entretanto verificou-se que a relação interna/externa tanto da rua quanto da praça, estava restrita somente a entrada, enfraquecendo o projeto.

Para estabelecer maior relação interna/externa foi al terada a implantação de modo a ampliar a área de entrada e consequentemente permitindo maior conexão entre público e semipúblico. Entretanto, a grande extensão dos dois volumes perpendiculares ao viário, manteve-se a sensação de uma grande parede, algo que já é realidade no local.

Para solucionar o problema anterior, estabeleceu-se aberturas verticais na volumetria de modo a criar uma perme abilidade visual entre a rua e a área interna, permitindo assim, uma melhor relação. Alé disso, foi estabelecido um eixo diago nal sentido encontro dos córregos a fim de levar maior cone xão e evidenciar sua importância, possibilitando uma possível área de permanência e contemplação.

Com o propósito de trazer maior relação com o córre go, foi levado para a implantação a lembrança da sinuosida de do mesmo antes da retificação através do deslocamento dos volumes centrais dos blocos. Tal modificação possibilita a criação de jardins, ajudando no escoamento da água pluvial e aumentando a arborização da região em conjunto com a recu peração do leito do córrego.

Figuras

e

63 | centro de educação infantil centro de educação infantil 64
01º
04º
03º
02º
67, 68, 69
70 Fonte: Elaborado pelo autor. Figura 71 | Fonte: Elaborado pelo autor. Figura 67 Figura 69 Figura 68 Figura 70 Figura 71 | Concepção volumétrica-espacial |
Rua Magister Leoninus Córregoguavirutuba LEGENDA 65 centro de educação infantil Rua Ribeirão Ponte Baixa 4 2 7 8 12 14 15 16 17 19 20 21 22 23 25 31 3 30 32 33 34 26 272829 24 18136 5 1110 10 11 1 2. Acesso principal 11. Vestiário Fem./ Masc 22. Refeitório 8. Secretaria + Diretoria 19. Despensa 3. Patio central 20. Despensa Fria 4. Recepção 12. Sala dos professores 23. Vestiário Aluno 5. Arquivo 13. Copa 24. Lavanderia 29. Biblioteca 6. Administração 14. Sala de descompressão 25. DML 30. PlayGround 7. Sala de Reuniões 18. Depósito geral 15. Psicólogo 26. Depósito Geral 31. Horta 10. Vestiário PNE Fem./ Masc 21. Cozinha 16. Nutricionista 27. Depósito Mat. Jardinagem 32. Estacionamento 17. Ambulatório 28. Brinquedoteca 33. 1. Praça de integração 33. Abrigo Gás e Lixo Vaga Carga e descarga e Ambulância 764,40 765,80 759,00 761,00 763,00 763,80 763,80 764,80 765,20 764,40 764,40 757,00 764,80 763,80 N C 03 C 03 A 01 A 01 B 02 B 02 | Térreo | Figura72 Figura73 Figura74

Córregoguavirutuba

Rua Magister Leoninus
67 centro de educação infantil Rua Ribeirão Ponte Baixa 34. Pátio de convivência 41. Lactário + Refeitorio 36. Banheiro + PNE 38. Banheiro + PNE 42. Fraldário 46. Caixa D'água 45. Solário 35. Sala de atividades Pré-Escola I (4 a 5 anos) 43. Sala de atividades Berçário II (1 a 2 anos) 40. Sala de Repouso Berçário I e II 44. Sala de atividades Berçário I (0 a 1 ano) 39. Sala de atividades Maternal II (2 a 3 anos) 37. Sala de atividades Maternal III (3 a 4 anos) LEGENDA 34 3837 35 353535 36 39 39 3937 39 40 42 43 45 44 41 3737 46 40 759,00 761,00 763,00 763,80 763,80 768,50 765,20 764,40 764,40 757,00 764,80 763,80 768,10 768,50 768,90 768,50 768,90 N C 03 C 03 A 01 A 01 B 02 B 02 | Primeiro Pavimento | Figura76 Figura 77

Durante da implantação foi verifi cado a insolação, no qual foi constata do que além do recuo da fachada será necessário prever brises nas facha das Noroeste e Sudeste para conter incidência solar direta na primavera e

verão no período das 12:00h as 16:00 conforme o diagrama 11. A fachada Nordeste, somente receberá sol das 06:00h as 12:30h durante o ano todo não sendo necessário prever quaisquer tipos de barreira além da estabelecida.

69 | centro de educação infantil centro de educação infantil 70 Corte CC 759,00 761,00 763,00 763,80 764,80 768,50 764,40 768,90 757,00 Corte BB 764,80 765,20 764,40763,80 763,00 768,50768,10 768,90 | Corte AA | 764,80 764,40 768,50 A solução encontrada para garan tir o conforto témico dos ambientes foi a utilização de venezianas reguláveis na fachada e na abertura superior conforme diagrama 10 para garantir a ventilação cruzada, além de janelas basculantes.Diagrama 10 - Solucão de ventilação e luz natural Diagrama 11 - Verificacão de necessidade de olucão de controle de insolação
Venezianas Sudoeste - SONoroeste - NO Nordeste - NE Sudoeste - SO NoroesteNO N 60 5 30 0 2030°40°50°80° 80°20° 30° 10°20°30°40°70°80° 80°20 60° 30° 470
71 | centro de educação infantil centro de educação infantil 72
| Figura 72 Perspectiva da fachada Nordeste no período da manhã e sua a relação visual com a rua Ribeirão Ponte Baixa | Figura 73 Perspectiva da fachada Sudoeste, onde pode ser visualizado o mirante proposto e sua relação com o córrego guavirutuba.
Figuras 73 Fonte: Elaborado pelo autor. Figura 72 Fonte: Elaborado pelo autor. | Representação eletrônica |
73 | centro de educação infantil centro de educação infantil 74 |
Figura
74
Perspectiva da entrada da escola e sua relação com a praça proposta.
Figura
75 Representação de uma modelo de sala de aula infantil, no pariodo da manhã, onde é possível observar a iluminação (Fachada Nordeste).
| Figuras 73 Fonte: Elaborado pelo autor. | Figura 74 Fonte: Elaborado pelo autor.

| Figura 76 | Perspectiva visual do pátio de convivência (Primei ro pavimento) e a comunidade.

| Figura 77 | Perspectiva visual do pátio central e a circulação perimetral.

Figuras 76 e 77

Fonte: Elaborado pelo autor.

ALVARES, Sandra leonora. Traduzindo em formas a pedagogia Waldorf Campinas - SP, p. 1-147, 27 mar. 2010. Disponível em: https://www.fec.unicamp.br/~laforma/art/Alvares_SandraLeonora_M.pdf. Acesso em: 23 mar. 2021.

ALVARES, Sandra leonora. Programando a Arquitetura Escolar: a relação entre Ambientes de Aprendi zagem, Comportamento Humano no Ambiente Construído e Teorias Pedagógicas, Campinas, SP. 1-372, 29 mar. 2016. Disponível em: http://repositorio.unicamp.br/jspui/handle/REPOSIP/321169 Acesso em: 03 Abr. 2021.

AZEVEDO, Giselle Arteiro. Transformar a cidade. Entrevista concedida a Cecília Garcia do Portal do Apren diz. A arquitetura escolar responsiva só é possível a partir da conversa entre os sujeitos que habitam esse espaço, Mai. de 2018 Dispinível em https://portal.aprendiz.uol.com.br/2018/05/23/arquitetura-es colar-responsiva-e-possivel-partir-da-conversa-entre-os-sujeitos-que-habitam-esse-espaco/ acesso em: 02/04/2021

BEYER, Sabine. Uma introdução à arquitetura nas pedagogias alternativas. [s. l.], 22 set. 2019. Disponí vel em: https://www.archdaily.com.br/br/774406/uma-introducao-a-arquitetura-nas-pedagogias-alter nativas. Acesso em: 26 mar. 2021.

CARVALHO, Telma Cristina Pichioli. Arquitetura escolar inclusiva: construindo espaços para educação

infantil. Orientador: Dr. Amir Basso. 2008. 342 p. Tese (Pós-Graduação em arquitetura e urbanismo)Universidade de São Paulo, São Carlos, 2008. Disponível em: https://www.teses.usp.br/teses/disponi veis/18/18141/tde-06022009-150902/publico/tese_telma_cristina_carvalho.pdf. Acesso em: 29 mar. 2021.

75 | centro de educação infantil centro de educação infantil 76
| Bibliografia |

CIDADE ESCOLA APRENDIZ, Aprendiz: 20 anos de história e reinvenção p.1-116, 02 jun. 2017. Disponí vel em: https://www.cidadeescolaaprendiz.org.br/wp-content/uploads/2017/11/aprendiz_20_anos_de_ historias_e_reinvencao.pdf Acesso em 05 maio 2021

CORRADI, Mara. Taller de Arquitectura de Bogotá: San José nursery school in Cajicá Castellarano, Itália, p. 1, 18 jan. 2019. Disponível em: https://www.floornature.com/taller-de-arquitectura-de-bogota -san-jose-nursery-school-caj-14361/. Acesso em: 5 maio 2021.

DESSEN, Maria Auxiliadora; POLONIA, Ana da Costa. A família e a escola como contextos de desenvolvimento humano. ., Brasília, v. 17, ed. 36, p. 1, 01/04/2007. Disponível em: https://www.scielo.br/scielo. php?script=sci_arttext&pid=S0103-863X2007000100003 Acesso em: 01 abr. 2021.

ENANPUR, XVII., 2019, Natal. A Praça E Suas Funções Para O Saneamento Ambiental [...]. Natal: [s. n.], 2019. 1-12 p. Disponível em: http://anpur.org.br/xviiienanpur/anaisadmin/capapdf.php?reqid=1345#:~: text=No%20contexto%20da%20qualidade%20de,meio%20natural%20e%20disp%C3%B5em%20de. Acesso em: 2 abr. 2021.

FARIA FILHO, Luciano Mendes; VIDAL; Diana Gonçalvez. Os tempos e os espaços escolares no processo de institucionalização da escola primária no Brasil. Revista Brasileira de Educação, n.14, Mai/Jun/Jul/ Ago 2000. Disponível em: <http://www.scielo.br/pdf/rbedu/n14/n14a03> Acesso em 22 abr. 2021

HERTZBERGER, Herman. Lições de arquitetura. 2. ed. São Paulo: Martins Fontes Editora Ltda, 1999. 272 p. v. 2. ISBN 85-336-1032-3.

centro de educação

KOWALTOWSKI, Doris C. .C K. Arquitetura escolar: O projeto do ambiente de ensino. [S. l.]: Editora Oficina de Textos, 2011. 247 p.

PREFEITURA DE SÃO PAULO. Plano Diretor Estratégico do Município de São Paulo, Lei no 16.050, Es tratégias ilustradas, de 31 de julho de 2014. Disponível em: https://gestaourbana.prefeitura.sp.gov.br/ marco-regulatorio/plano-diretor/. Acesso em: 24 abr. 2021.

REDE NOSSA SÃO PAULO Mapa da desigualdade da Primeira Infância., São Paulo, p. 1-77, 12 fev. 2020. Disponível em: https://www.nossasaopaulo.org.br/wp-content/uploads/2020/02/Mapa_da_Desi gualdade_da_Primeira_Inf%C3%A2ncia_2020_embargo.pdf. Acesso em: 22 abr. 2021.

REDE NOSSA SÃO PAULO , Mapa da desigualdade ., São Paulo, p. 1-77, 2 Out. 2020. Disponível em: https://www.nossasaopaulo.org.br/wp-content/uploads/2020/10/Mapa-da-Desigualdade-2020-TABE

LAS-1.pdf. Acesso em: 22 abr. 2021..

SEADE, Fundação sistema Estadual de Análise de Dados. Índice paulista de Vulnerabilidade social. ., São Palo, p. 1-20, 2 maio 2010. Disponível em: http://ipvs.seade.gov.br/view/pdf/ipvs/principais_resulta dos.pdf. Acesso em: 14 abr. 2021.

SECRETARIA DE EDUCAÇÃO BÁSICA, Parâmetros nacionais de qualidade da educação infantil., Brasília, p. 1-82, 2 fev. 2018. Disponível em: http://portal.mec.gov.br/docman/2020/141451-public-mec-web-is bn-2019-003/file. Acesso em: 2 maio 2021

centro de educação

77 |
infantil
infantil 78

Turn static files into dynamic content formats.

Create a flipbook
Issuu converts static files into: digital portfolios, online yearbooks, online catalogs, digital photo albums and more. Sign up and create your flipbook.