

Forest Grove C of E Primary School
MSc: Sustainable Architecture: Evaluation and Design
ARCH7071 Design & Simulation for a Changing Climate
19314299 Li-yuan Sen
Content
1. Site Analysis
- Location Map
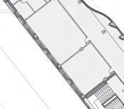
- 1 : 1000 Existing Site Plan
- Climate Analysis (Sun / Wind Analysis)
- Access / Social / Cultural / Economic Analysis
- Flooding Analysis
- Noise / Pollution Analysis
- Construction & Material Strategy
2. Brief Development
- Design Strategy 1 - 4
- Sketch Massing Model
3. Design Development
- Design Intergration
- Design Concept (Urban Forest)
4. Project Proposal
- Program Diagram
- Floor Plan & Visualisation
- Section & Elevation
- 3D Structure Model
- Detail Section
4. Design Builder Simulation
- TM52 Criteria
- Building Comfort Development
- Building Performance Analysis
- Daylighting Simulation
- Current & Future 2080 Building Comfort Analysis
Location Map

Project Brief

This project aims to relocate and design an one-form primary school (St Michael's C of E Primary School) in Oxford that meets the educational needs of the 21st century while responding to future climate challenges. The design proposal also needs to align with the UN Sustainable Development Goals: Goal 4, which targets Quality Education, and Goal 13, which focuses on Climate Action.


51°45'43.8"N 1°14'32.1"W Edgeway Rd, Headington, Oxford, UK
School Reloacte

Site Overview
The proposed site for St Michael’s C of E Primary School redevelopment project is a green space with residential areas to the north and east, and a brook with additional green space to the west and south. There are two main roads accessing the site: Edgeway Road and Ferry Road.
Site Analysis
Site Analysis - Sun / Wind
Site Analysis
Site Analysis - Access / Social / Cultural and Economic

Site Analysis
Site Analysis - Flood
Flood Risk Map
The site is located in a high-risk flood zone, so the project will require thoughtful flood mitigation strategies in the design to ensure the development's safety and resilience.

Flood Depth Map
The map above shows the water depth on-site during flooding event, revealing that some areas have depths exceeding over 900mm.

The map above shows the site within a historic flood outline, indicating areas affected by past flooding events. The map above illustrates danger levels during a flooding event. The Moderate Hazard areas pose risks to children, the Significant Hazard areas are dangerous for the general public, and the Extreme Hazard areas present risks even to emergency services.
Site Analysis

The map shows surrounding noise levels, with the highest from traffic in the southeast. The site itself has low noise levels, making it suitable for a calm learning environment.
The site is in a green zone with low NO2 levels, showing healthy air quality, though nearby zones to the south have higher pollution that may need consideration.
Construction & Material Strategy
Geological Map
Material Strategy
Facade :
-Fiber Cement / Virtical Timber cladding
-Timber Panel Grilles
Wall / Floor / Foundation :
-Crosslam timber (CLT)
-Reinforce Concrete (RC)
-Water Reducible Concentrate (WRC)
-Carbon Steel & Concrete Pylons Foundation
Roof :
-Timber Flat Roof (CLT) (Solar Green Roof)
-Spruce planks panel
Windows & Doors :
-Triple-Glazed Passive House Windows
-Airtight, Insulated Doors
-Flood Barriers ( Door Entrance)
Material Strategy (Examples)

Structure Column / Beam :
- Glued-Laminated Timber
Renewable Technology :
-Solar panel
-SuDS Ground Source Heat Pumps
Green Space :
-SuDS Permeable Paving
- SuDS Tree Pit
-SuDS Vertical Rain Garden Planter
-Geocellular system
-Green House Garden



Nanyang Technological University Year : 2017 / Location : Singapore / Architect : Toyo Ito
Timber Building Structure Details (CLT + Glulam)
Brief Development
Design Strategy 1 (Proposed Building Location)


Start with a solid rectangular mass as foundation to establish the base of the design


Building Placement
Orientation :
-Northwest side of site to maximize sunlight
-Classroom space face south/southeast for natural lighting
Ventilation
-Windows and vents face southwest to capture winds
-Windows on both south and north side of rooms for cross ventilation







Brief Development


Site Access & Movement Strategy
The main entrance is designed for students, families, and the community. The space will include drop-off and pick-up zones. Entrance 2 serves the same function as the main entrance but is primarily for Reception students. It also serves as a safety access point for emergency evacuation. The Back Entrance is designed for unloading and parking, keeping it separate from the other two access points.
Elderly Population : (20% Age 55+)
Christian Population : (44.3%)
+Building (Multi-use Hub)
Building use :
School student
-Flexible learning space
-After school clubs & workshop
Community use :
-Intergenerational learning programs
-Life long learning
-Share Workshop
-Christian gathering
By adding this building the school can provide the community an adaptable and inclusive space of learning, faith, and community connection.

Main Entrance
Back Entrance
Unloading area / Parking
Student / Family / Community
Entrance 2
Fire Exit / Reception Entrance

Raised Foundation :

-Levitate building support by Steel & Concrete column (Pylons Foundation)
-Ground floor to be green space with flood mitigation strategy (SuDS)
Examples of elevated building: Glendale


Flood mitigation Strategy (SuDS / Others)
Sustainable drainage systems
-Permeable Pavements
-Rain Gardens & Bioretention Systems
-Green Roofs
-Geocellular System
-Tree Pits & Urban Forests
-Rainwater Harvesting Systems









Yihuang 1st High School Complex
Leeko Studio
Brief Development

Green Wall & Sustainable Landscaping


Green Wall system

Green Wall / Green Space / Playground planning
A green wall will be placed on the north and east sides of the building to create a noise reduction effect by absorbing and diffusing sound waves, thereby reducing external noise pollution in the neighborhood. Additionally, it will benefit the area by improving air quality and enhancing biodiversity. The green space and playground will be centralized on the site, separate from the residential area.




Hydroponic Green Walls
A hydroponic green wall use a soilless system where plants grow in a nutrient-rich water system, making it lightweight, low-maintenance.



Nueva School Science and Environmental Center
: 2021 / Location : Hillsborough, US
: Architects: LMS Architects
Brief Development
Sketch Massing Model
A concept massing study to explore potential look for the St Michael’s C of E Primary School redesign project. Bottom right shows a sketch structure 3D drawing of the elevated floors near to flood zone.






Design Development
Design Integration
Educational Program
Values-Based EducationReligious EducationArts Intergrade EducationUK National Curriculum Subject
Health and Safety
Learning and Playing
Outdoor Environment
Forest Grove C of E Primary School
Green Space & Garden
Flood-Resilient Design

The school will be in partnership with the local elder nursery center. Through share activity in the workshops. Such as storytelling, art projects, gardening, and music sessions. These activities can provide the students and the older adults form genuine connections that enrich both generations.
Multi-function Classrooms
Library Resource Technology Resource
Obstruction Control
Share Use Facilities
Intergenerational Program
Sustainable Building Design
Comfort Space Design
Community Integration
Learning Environment

The workshop is available for renting out by local residents and community groups outside of school hours. Design as a flesable, creative space. This space aim to support the local community and make the school a shared space for learning, making, and connecting.

The school’s educational program is build on four key points: Values-Based Education, Religious Education, Arts-Integrated Learning, and the UK National Curriculum Subjects. These elements create a excellent academic experience for the students.

The school is surrounded by generous green space designed to support play, learning, and wellbeing. The grounds include a primary school–sized football court, a shaded garden area, and an open green field for outdoor activities. Younger children enjoy a dedicated Reception playground, while a community-use exercise space encourages physical activity for all ages.
Design Development
Design Concept ( Urban Forest )


The school’s landscape is inspired by the natural structure of a rainforest, creating an immersive Urban Forest environment. The site design mirrors the layers of a rainforest, from ground-level green spaces and gardens (the “Forest Floor”) to shaded learning areas and green roofs (the “Emergent Layer”). The layout also responds to a basin-like topography, forming a low-lying forest environment with rich planting zones, tall trees, and soft green spaces. Movement through the site mimics forest trails, connecting play areas, gardens, and school buildings with a sense of discovery, calm, and connection to nature.
Project Proposal
MULTI-USE BUILDING
MAIN BUILDING
Stairs / Lift
Typical Year 1 - 6 Classroom
Toilet & Changeing Room
Kitchen
Assemble Room / Canteen
Storage / Utilites
Computer Room
Reception / Kindergarten
Workshop 1 - 3
Building Reception Library


Project Proposal











MAIN ENTRANCE


PLAYGROUND
SIDE ENTRANCE


FITNESS PARK
Project Proposal

















































































LANDSCAPE VIEW
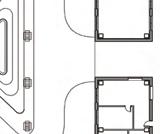
1 : 100 Staff Room and Medical Inspection Room























Project Proposal























The reception classroom provide a safe, flexible, and engaging environment for early years learning. It includes clear zones for group work, learm, play, and quiet time, with integrated toilet and direct access to a

KINDERGARTEN
1 : 100 Work Shop 1 - 3 Plan
Multi-use Building Ground Floor Key Plan












The work shops support both school activities and community use. Designed to host community and learning activity like (intergenerational programs in collaboration with the nearby elder nursery house), the rooms promote shared learning and social connection. Each space is adaptableand flexible that can be rearrange for activity need.
1 : 100 Library / Reception Plan
Multi-use Building Ground Floor Key Plan












The Library space provide flexible seating, reading zones, and some independent study, group activities rooms, the curved glazed window maximises natural lighting and connect the learing space to the central landscape.


GREEN TUNNEL
















































































1 : 100 Typical Year 1 - 6 Classroom Plan

























This layout shows the typical classrooms for Years 1–6, each with flexible furniture and dedicated teaching zones. A shared toilet block and changing area is centrally located between every two classrooms, supporting supervision, efficient circulation in line with Primary School Building Handbook recommendations.

TYPICAL CLASSROOM

CORRIDOR
Project Proposal
1 : 100 Assemble Room Plan

























The assembly room is a large, flexible space with semi-circular seating, used for school gatherings, performances, and it also serves as a prayer room, supporting the Church of England schedule and values-based education. Its central location and adjacent support rooms ensure accessibility and multi-functional use in line with DfE guidelines.
Building First Floor Key Plan

ASSEMBLE ROOM
1 : 100 Computer Room Plan


























COMPUTER ROOM

MAIN BUILDING OVERVIEW
Project Proposal

















Section A-A
Section B-B

















Elevation A-A
Elevation B-B
Elevation C-C












Elevation A-A
Elevation B-B
Project Proposal

Main Building Structure 3D View










The building's main structural use a sustainable timber framework system. Glulam (glued laminated timber) columns and beams form the primary structural skeleton.


Cross-laminated timber (CLT) panels are used for the flooring system, supported by secondary timber joists, ensuring efficient load distribution and ease of construction.
At the base, the structure is anchored by a reinforced concrete (RC) foundation slab, complemented by ground beams and a RC piling system to provide the necessary support and load transfer to the subsoil, especially in this project site with challenging ground conditions.







Glulam Column
CLT Slab
RC Foundation Slab
RC Ground Beam
RC Pile Foundation
Glulam Beam
Timber Joist System

Multi-use Building Structure 3D View







The multi-use building follows the same structural strategy, utilizing a glulam column and beam frame for the main structure. This system ensures consistency in material performance, aesthetic cohesion, and sustainable construction.
Further on, like the main building, it sits on a reinforced concrete (RC) foundation slab with ground beams and a piling system, providing a stable and durable base suited to the site conditions.







Timber Joist System
Glulam Beam
Glulam Column
RC Foundation Slab
RC Ground Beam
RC Pile Foundation





Project Proposal
Project Proposal




















Design Builder Simulation
Building Performance & TM52 Criteria
Design Builder Simulation Model

Final Building Performance Result
Main Building Area : 1523.22 m²
Total Energy Demand : 50.25 kWh/m²/year
Total CO2 Emission : 21.62 kg/m²
Multi-use Building Area : 489.14 m²
Total Energy Demand : 38.62 kWh/m²/year
Total CO2 Emission : 55 kg/m²
UN Sustainable Development Goal 13 Energy use <55 kWh/m²/year : PASS
TM52 overheating metrics criteria : PASS
Criterion 1 : Hours of occupancy during which temperature exceeds a threshold (should be <3%).
Criterion 2 : Weighted temperature excess in degree hours (should be <6 K·hr).
Criterion 3 : Severity of overheating on any single day (should not exceed 3 hours).
Result Analysis
The data shows all zone have pass the test. Although one area have exceeds Criterion 2, which is the Corridor space in the main building with 27.17 (k.hr). This value shows that there is a few potential overheating area or ventilation issue in this circulation space. To improve that, passive cooling strategy, solar control can provide better comfort and perdormance for the building.
Design Builder Simulation
Building Comfort Development











Shading Grille
Shading Grille
Design Builder Simulation
Building Performance Analysis
Main Building Simulation Data
JanFebMarAprMayJunJulAugSepOctNovDec
JanFebMarAprMayJunJulAugSepOctNovDec
JanFebMarAprMayJunJulAugSepOctNovDec
The simulation data shows that the building performs well across key benchmarks for UK primary schools:
Internal Gains + Solar :
The data shows a high heating demand in winter months (Jan–Mar and Oct–Dec) which matches expected seasonal patterns. Soalr gain remain consitent throughout the year, which shows the shading and glazing might need to be improve to prevent some unnecessay heat gain.
Latent Loads:
Higher in warmer months due to humidity and occupancy, but not excessive, which shows that the building have good ventilation and moisture control. The notable drops align with school holidays, shows great building control from occupants.
JanFebMarAprMayJunJulAugSepOctNovDec
Thermal Comfort:
Indoor air and operative temperatures stay mostly between 18–25°C, within BB101 guidelines. There are no signs of overheating in summer or underheating in winter, indicating good control of internal conditions.
Relative Humidity:
Humidity levels remain within the recommended 40–60% range throughout the year, supporting a healthy and comfortable indoor environment.
Overall the building did provide a comfortable and healthy environment, but a slight upgrade of heating controls and solar shading could enhance energy efficiency and thermal comfort.
Design Builder Simulation
Building Performance Analysis
Fuel Breakdown Analysis
The graph shows that the building relies heavily on gas heating during winter time (Jan–Mar and Oct–Dec).
Lighting and other equipment stay steady throughtout the year, with some drop during school holiday time.
Fabric and Ventilation Analysis
The data shows the heat loss through fabric elements like (walls, roofs, floors, glazing and such) are minor and stable, but there is a significant heat loss through air change, especially in colder month. A better controll of mechanical system is needed.
Zone Heating Analysis
A high energy demand shows in winter months, peaking in February reaching over 1,000 Wh/m²/day. The annual total zone heating demand is around 38.8 Wh/m²
CO2 Emissions Analysis
The CO2 Emissions output follow the heating demand chart, low in summer and high in winter. The annual total CO2 emissions is around 21.62 kg/m2
Overall the building use quite a lot of energy for heating in winter months. Some improvment on airtighness (Insulation) and ventilation control can reduce both energy use and emissions
Design Builder Simulation
Building Performance Analysis
Multi-use Building Simulation Data
JanFebMarAprMayJunJulAugSepOctNovDec
JanFebMarAprMayJunJulAugSepOctNovDec
JanFebMarAprMayJunJulAugSepOctNovDec
Data Analysis
The simulation data shows that the building performs well across key benchmarks for UK primary schools:
Internal Gains + Solar :
The data shows a high heating demand in winter months (Jan–Mar and Oct–Dec) which matches expected seasonal patterns. Soalr gain are quite low overthe year, have to reduce solar shading to improve natural lighting and soalr gain.
Latent Loads:
Higher in warmer months due to humidity and occupancy, but not excessive, which shows that the building have good ventilation and moisture control. The notable drops align with school holidays, shows great building control from occupants.
JanFebMarAprMayJunJulAugSepOctNovDec
Thermal Comfort:
Indoor air and operative temperatures stay mostly between 18–25°C, within BB101 guidelines. There are no signs of overheating in summer or underheating in winter, indicating good control of internal conditions.
Relative Humidity:
Humidity levels remain within the recommended 40–60% range throughout the year, with a few small peaks in winter time.
Overall the building did provide a comfortable and healthy environment with good thermal comfort, but a slight reduce of solar shading could enhance Solar gain.
Design Builder Simulation
Building Performance Analysis
Multi-use Building Simulation Data
JanFebMarAprMayJunJulAugSepOctNovDec
Fuel Breakdown Analysis
The graph shows that gas heating is used the most during winter time (Jan–Mar and Oct–Dec). Lighting and other equipment stay steady throughtout the year, with some drop during school holiday time.
JanFebMarAprMayJunJulAugSepOctNovDec
Fabric and Ventilation Analysis
The data shows that there is some heat loss through fabric elements like (walls, roofs, floors, glazing and such) especially through air change in colder month. Some thicker insulation and better controll of mechanical system is needed.
JanFebMarAprMayJunJulAugSepOctNovDec
Zone Heating Analysis
A heating demand is high in winter and low in summer as expected. The annual total zone heating demand is around 40 Wh/m²
JanFebMarAprMayJunJulAugSepOctNovDec
CO2 Emissions Analysis
The CO2 Emissions output follow the heating demand chart, low in summer and high in winter. The annual total CO2 emissions is around 55 kg/m2
Overall the building use quite a lot of energy for heating in winter months. Some improvment on airtighness (Insulation) and ventilation control can reduce both energy use and emissions
Design Builder Simulation
Daylighting Analysis


This daylighting analysis shows the distribution of natural light across key areas of the school. The Reception (Kindergarten), Staff Room, and Medical Inspection Room receive moderate to good daylight levels near windows, creating bright and welcoming zones. On the first floor, the Years 1 to 6 classrooms, assembly room, kitchen, and computer room have strong daylight passing from the glazed corridor, with deeper areas receiving less light. The ground floor spaces also benefit from generous daylight, particularly the library with its curved glazed elevation. Overall, the building demonstrates good daylighting performance, although some areas will still require artificial lighting.



Ground Floor Work Shop 1 - 3 / Library
Illuminance (lux)
First Floor Year 1 - 6 Classroom / Assemble Room / Kitchen / Computer Room
Ground Floor Staff Room / Medical Inspection Room
ground Floor Reception ( kindergarten )
Design Builder Simulation
Current & Furture (2080) Building Comfort Analysis
With the 2080 future climate data, we can see that all Zone still pass and meet the compliance thresholds. However, some zones like Assembly Room, Corridor 1, and Year 5 Classroom show much higher heat levels, especially in Criterion 2. A few toilets and other classrooms also come close to the limits. But in general the building is still furture proof that can sustain the furture climate.
The results with 2080 climate data are very similar to the current weather data analysis. The building still stays comfortable, and energy use doesn’t change much. Gas heating remains the biggest energy user and main source of CO2. But in General future climate still has some impact, but there’s still a chance to improve with better soalr shading and insulation.
Annual Building Performance Analysis with 2080 Climate Data
Design Builder Simulation
Current & Furture (2080) Building Comfort Analysis
TM52 overheating metrics criteria : PASS
With the 2080 future climate data, we can see that all Zone still pass and meet the compliance thresholds, which shows the building is furture proof that can sustain the furture climate.
Same as the main building, the results are very similar. The building still stays comfortable, and energy use doesn’t change much. Gas heating remains the biggest energy user that produce that most CO2
Overall, both buildings perform well under future climate conditions, passing all TM52 overheating criteria. Most spaces remain comfortable, with only a few zones (like the Assembly Room and some classrooms) nearing overheating limits. Energy use and CO₂ emissions stay similar to current levels, with gas heating still being the largest contributor. While future climate has little overall impact, there’s still room for improvement through better shading and insulation.
Annual Building Performance Analysis with 2080 Climate Data








YOU
THANK
Forest Grove C of E Primary School
Li-yuan Sen