

![]()



DEVELOPER | LICENSED BROKER PA & FLA
Born in Pittsburgh’s vibrant Hill District, Lena Michelle Gainer’s real estate journey is rooted in community and legacy. With a CPA and brokerage pioneer mother and a dedicated City of Pittsburgh Police Officer father, Lena combines business savvy with a deep commitment to neighborhoods.
Her career spans luxury real estate in South Florida, working with high-networth clients and top developers, and scouting LIHTC projects for SunTrust Bank across Florida, bridging financial expertise with community impact. Lena’s understanding that true urban transformation requires diverse income levels and a variety of housing products drives her approach to creating balanced, inclusive developments.
For The Hive, Lena has assembled a unique team of collaborators, blending diverse specialties and skills to ensure every facet of the project exceeds expectations. From financial analysts and urban planners to architects and community engagement specialists, the team’s combined expertise reflects a holistic approach to development. Together, they embody Lena’s vision of balancing fiscal responsibility with aspirational design, delivering a project that honors Pittsburgh’s history while shaping its future.
As a minority developer, Lena champions equity and inclusion, advocating for underserved communities and proposing incubator programs to empower women in real estate. Her leadership ensures that The Hive will set a new standard for transformative urban development, blending innovation with community values.
"REVIVING LARIMER REQUIRES CREATING A NEIGHBORHOOD WITH REAL DIVERSITY—NOT JUST IN PEOPLE, BUT IN OPPORTUNITY. THE HIVE @ LARIMER IS ABOUT BRINGING TOGETHER A MIX OF INCOMES, BUSINESSES, AND INNOVATION TO TRANSFORM COMMUNITY.
IT'S TIME TO BUILD THE FUTURE WITH PURPOSE, AND THAT STARTS WITH CREATING COMMUNITIES THAT WORK FOR EVERYONE."
--Lena Michelle

PROJECT TIMELINE
PROJECT CONCEPTS
LEASE COMPARABLES
Larimer, located in Pittsburgh's East End, presents a significant development opportunity due to its proximity to prominent areas like East Liberty and Bakery Square, both of which are hubs of economic and cultural activity.
Key Features of Proximity and Connectivity:
East Liberty: Directly adjacent to Larimer, this area is known for its revitalization, offering a range of amenities, including retail, dining, and cultural venues.
2.
1. Bakery Square: Less than a mile from Larimer, this mixed-use hub includes major employers like Google and serves as a focal point of Pittsburgh’s tech corridor, often referred to as "AI Avenue" due to its clustering of over 20 AI-focused companies.
Development Highlights in the Vicinity:
The Meridian at East Liberty: Under development at Shady and Penn Avenues, this project includes 231 residential units (10% affordable housing), a Giant Eagle Market District, and other retail spaces. It integrates green spaces and public parks, adding vibrancy to the area and enhancing Larimer’s appeal.
Larimer benefits from:
Flat, developable land suitable for modern construction. Strategic connectivity to major transportation corridors, facilitating accessibility.
A $30 million HUD Choice Neighborhoods grant aimed at creating mixed-income housing and sustainable urban infrastructure.


$500 Million | Bakery Square | 1 miles
$90 Million | The Meridian | 1.5 miles $6.5 million | Liberty Green Park | .5


Once home to Costa Deli and later the T.K.T. Industries Inc. building, 551 Larimer Avenue is a site steeped in history and ready to shape the future of Larimer. With its prominent location and rich legacy, this project will redefine the neighborhood’s potential, blending its storied past with a vision for modern urban living.
Historically, the property served as a dual-purpose structure, combining ground-floor retail with upper-level apartments an ideal example of residential and commercial harmony. Our plan is to honor this legacy while introducing contemporary, lifestyle-driven enhancements to create a destination where community and modern living converge.
To achieve this, the existing structure will be replaced by a thoughtfully designed four-story mixed-use building featuring unique loft-style apartments with modern finishes and high ceilings. Residents will enjoy exclusive rooftop amenities, including lounge areas and panoramic views of East Liberty, fostering a vibrant, connected lifestyle.
In addition, The Hive will offer access to outsourced amenities through included memberships at Pickleball Warehouse and Steel City Squash, enhancing recreational and wellness opportunities for residents.
Through innovative design, targeted marketing, and robust community partnerships, The Hive will attract businesses, residents, and visitors, transforming 551 Larimer into a beacon of revitalization and significant contributor to the cornerstone of Larimer’s renewed identity.

Project Projections

Our mixed-use development project is a forward-thinking, communitycentered initiative designed to deliver an exceptional living and commercial experience in the heart of a growing urban environment. The project embodies modern design, sustainable practices, and a commitment to revitalizing and enhancing the neighborhood's vibrancy. Here’s an in-depth look at the project, its components, financial framework, and its impact on the community.
This development is more than just a building; it’s an opportunity to reshape the neighborhood's landscape and create a space that integrates dynamic residential living with thriving commercial opportunities. Positioned as a cornerstone of a growing urban hub, the project serves as a bridge between contemporary lifestyle conveniences and community enrichment.
The residential component features 11 thoughtfully designed units that cater to various tenant preferences. This mix of studio, one-bedroom, two-bedroom, and penthouse apartments combines affordability, modern amenities, and comfort, making the property attractive to urban professionals, small families, and individuals seeking a vibrant, connected lifestyle.
Unit Breakdown:
Studios: 3 units
One-Bedroom Apartments: 3 units
Two-Bedroom Units: 4 units (2 configurations)
Penthouse: 1 unit
The development incorporates 6 commercial spaces, offering a range of retail and office opportunities. These spaces are meticulously designed to attract diverse tenants, from boutique retailers to dynamic office users, creating a thriving ecosystem of businesses. A lower-level restaurant adds culinary appeal, enhancing the project’s community draw
To create a superior tenant and visitor experience, the project includes:
Green spaces and outdoor gathering areas
Energy-efficient designs to minimize environmental impact
Modern interiors and high-quality finishes for both residential and commercial spaces
This transformative development is structured with a 75/25 debt-equity financing model, ensuring a balance of investor participation and leveraged funding
Total Development Cost: $6,673,000
Debt Financing (75%): $5,004,750
Equity Financing (25%): $1,668,250
Located in a thriving urban corridor, this project is positioned to benefit and enhance the local community by:
Boosting the Local Economy
Creating jobs during construction and post-completion through commercial activity and tenant engagement
Attracting new businesses and residents, generating economic momentum for the neighborhood.
Offering diverse residential options at competitive pricing, accommodating the needs of working professionals and families
The development aligns with community goals of transforming the area into a vibrant, sought-after destination
Encouraging sustainable urban living by incorporating green design and walkable access to nearby amenities
Thoughtfully designed gathering spaces foster interaction and connection between residents, visitors, and local business owners


Despite leveraging traditional debt and equity financing sources, the project currently faces a funding gap of approximately $3,598,000, representing 54% of total project costs. Creative financing solutions, such as interest rate buy-downs or additional grants, are essential to ensure feasibility while achieving a higher Debt Coverage Ratio (DCR) and Yield on Cost (YoC).
The HIVE @ Larimer offers a unique opportunity to revitalize the neighborhood by introducing vibrant residential and commercial spaces. With additional support from local, state, and federal funding, this project will unlock long-term value for investors, enhance the livelihoods of local businesses, and uplift the broader Larimer community.

Keyphasesandmilestonesforourmixed-usedevelopment,spanningfromJanuary2025toDecember2027.
Phase1:Predevelopment (Jan-Mar2025)

Initialprojectkickoffphasefocusing onsecuringfinancing,obtaining necessarypermits,andcompletingall predevelopmentdocumentationand planning.
Phase2:Construction(Apr 2025-Dec2026)

Majorconstructionphaseincluding structuralwork,exteriorfinishing,and interiorbuild-outs,culminatinginfinal inspectionsandcertifications.
Phase3:Leasingand Occupancy(Jan-Mar2027)

Activeleasingperiodforboth residentialandcommercialspaces, withtargetedmarketingcampaigns andtenantmove-ins.
Eachphaseiscarefullyplannedtoensuresmoothprogressandsuccessfulcompletionoftheproject.
Phase4:Post-Completion& Stabilization(Apr-Dec2027)

Finalphasefocusedonachieving stableoccupancyratesand optimizingbuildingoperationsfor long-termsuccess.
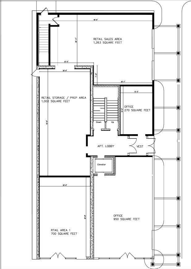
Space Narratives | Floor Plans


The Hive at Larimer Village aspires to be more than just a residential complex; it aims to become the beating heart of a revitalized Larimer. By offering a blend of luxury living spaces and community-focused amenities, the development seeks to attract a diverse range of residents who value both modern comforts and neighborhood engagement.
At its core, The Hive comprises 11 unique residences, ranging from executive studios to a luxurious penthouse. Each living space is designed with the modern urban dweller in mind, featuring gourmet kitchens, premium fixtures, and access to exclusive rooftop green spaces. The ground floor will buzz with activity, housing a sophisticated eatery, a gourmet café, and boutique retail spaces that cater to both residents and visitors.
Residential Offerings | 11 Residential Units
Three (3) Executive Studios
Three (3) One-Bedroom Apartments
Two (2) Two-Bedroom (A) Apartments
Two (2) Two-Bedroom (B) Apartments
One (1) Luxurious Two-Bedroom Two-Bath Penthouse
Site Amenities
Upscale Restaurant
Gourmet Café
Boutique Retail Spaces
Professional Services
Dog Wash
Private Storage
Exclusive Features
Rooftop Green Spaces
Private Off-Street Parking for residents
Elevator
Urban Loft Aesthetics
Open-Concept Layouts





The first floor of The Hive is designed to serve as a dynamic, neighborhood-scale commercial hub, fostering connections and supporting local businesses This thoughtfully planned space integrates retail and office opportunities that cater to the community’s needs while enhancing Larimer’s identity as a thriving urban destination.
The retail spaces invite a diverse mix of businesses to create a vibrant streetscape, including:
Retail Space 1 (700 SF): Perfect for a stylish clothing boutique showcasing trendy and timeless fashion, bringing a fresh shopping experience to the community
Retail Space 2 (1,002 SF): Envisioned as a unique gift shop offering carefully curated items, handmade goods, and specialty finds for locals and visitors alike.
Retail Space 3 (1,263 SF): Ideal for a cozy coffee café serving gourmet coffee, breakfast pastries, and wraps for a quick and satisfying lunch option, making it a neighborhood favorite.
The office spaces are tailored for small, local professionals seeking a central and modern workspace:
Office 1 (950 SF): A versatile space suited for a real estate office, offering a welcoming environment to serve clients while supporting the revitalization of Larimer.
Office 2 (270 SF): A compact, efficient workspace perfect for an interior design professional, providing a creative setting to meet clients and plan innovative projects.
The first floor of The Hive blends commerce, creativity, and community to create a bustling environment that supports local businesses, enriches the neighborhood, and attracts visitors to Larimer.






The second and third floors of The Hive are dedicated to thoughtfully designed residences, offering a mix of studio, one-bedroom, and two-bedroom units. These spaces prioritize modern living, functionality, and comfort, catering to a variety of lifestyles
Each residence is meticulously crafted with features that enhance convenience and style:
Walk-In Closets: Generous storage solutions in every unit, ensuring a clutterfree, organized living space.
Private Balconies: Outdoor retreats that allow residents to enjoy fresh air, scenic views, and a sense of connection to the neighborhood
Floating Kitchen Islands: Contemporary, multifunctional designs that maximize space and serve as focal points for dining, meal prep, or entertaining
Murphy Bed Option in Studios: Flexible layouts in studio apartments, providing adaptability for day-to-night transformations and optimal space usage.
To ensure ease of access and modern convenience, The Hive also features an elevator, seamlessly connecting all levels of the building and enhancing mobility for residents and visitors alike.
These residences strike the perfect balance between luxury and practicality, offering well-appointed spaces that invite residents to embrace a vibrant and connected lifestyle in the heart of Larimer.






The fourth floor of The Hive offers an elevated living experience, blending luxury, privacy, and community-focused amenities. This exclusive level features:
Penthouse Apartment: A spacious 2-bedroom, 2-bath unit designed with modern elegance and upscale finishes, perfect for those seeking premium urban living.
Executive Studio: A sleek, thoughtfully designed studio offering functionality and style, ideal for professionals or minimalist living.
One-Bedroom Apartment: A cozy yet refined space, blending comfort with contemporary design for a perfectly balanced lifestyle
All residents have access to a secure rooftop terrace a community amenity that offers breathtaking views and a serene retreat. By day, the terrace overlooks a tree-lined field, providing a peaceful, green backdrop By night, it offers an enchanting view of the beautifully illuminated Presbyterian Church, a standout feature of the neighborhood's skyline.
Accessible only via security key, the rooftop terrace provides a safe and tranquil space for relaxation, social gatherings, or simply enjoying the stunning surroundings. This unique combination of high-end residences and a signature amenity makes the fourth floor of The Hive an unparalleled living experience in Larimer






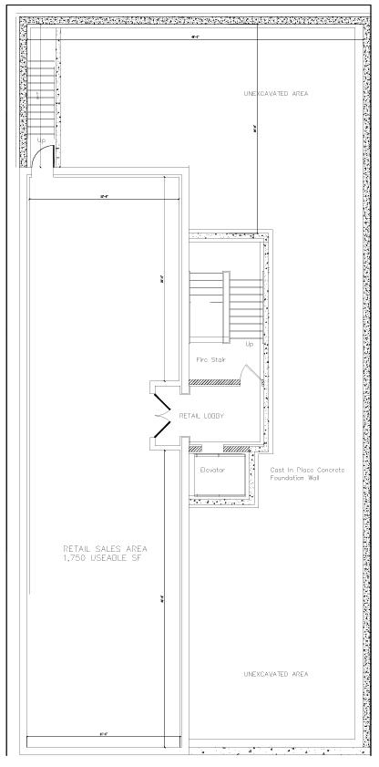
Nestled beneath the bustling energy of The Hive, our intimate speakeasy offers an exclusive escape into a world of sophistication, timeless charm, and unforgettable experiences. At just 1,750 square feet, this subterranean venue is designed to transport guests to the golden age of the 1920s while embracing the modern sensibilities of Larimer’s revitalized neighborhood
With a blend of vintage allure and contemporary elegance, the atmosphere features dim lighting, rich wood finishes, and plush seating, creating a cozy yet stylish environment Thoughtfully curated acoustics set the perfect stage for acoustic performances, welcoming local musicians to share their talents in an intimate setting. Whether it’s soulful jazz, acoustic blues, or classical guitar, each note resonates, offering a soothing backdrop to handcrafted cocktails and curated bites.
The speakeasy’s design evokes the spirit of the Prohibition era while adding modern comfort Guests enter through an unassuming door, greeted by a host who guides them into the warm ambiance, enveloped in the quiet hum of conversation and music.
The Hive Speakeasy is more than just a bar – it’s a destination for unforgettable nightlife, where memories are made, and the neighborhood's rich culture is celebrated. Whether unwinding after work, hosting a private event, or simply enjoying time with friends, it’s a place where both locals and visitors can gather for an experience that’s as unique as the community itself








