Architect Engineer Portfolio 2023, Leda Demetriadou

Page 1

PORT FOLIO

LEDA DEMETRIADOU

ARCHITE CT ENGINEER 2019-2023

Aristotle University of Thessaloniki

CONTACT

PHONE +30 6942618140/ +357 99207235

EMAIL Ledademetriadou@hotmail.com

LINKED IN Leda Demetriadou linkedin.com/in/leda-demetriadou-525a74217

TABLE OF CONTENTS

1| DISERTATION PROJECT: LETS GO CAMPING. REDESIGNING THE AUTH UNIVERSITY CAMPING SITE, POSEIDI, HALKIDIKI

2| SC138

3| THE GRID - ARCHITECTURE SCHOOL

4| MARKET RESTORATION

This portfolio contains work from muliple university projects that I participated of the study program i am currently enrolled at (Bachelor Studies of Integraded Master Degree of Architecture Engineering at Aristotle University of Thessaloniki. These projects are a result from different student groups, that I was a part of, for the major oblicatory laboratories of my Bachelor Degree.

1 +2 3+4 5+6 7+8

2023

Team: Demetriadou Leda | Malamoglou Evgenia

Teacher: Papadimitriou Spyridon(sip@arch.auth.gr)

DISERTATION PROJECT

Key words | Camping site, redesigning, forest-seaside, DIY, wooden structures Location | Halkidiki, Thessaloniki, Greece https://miro.com/app/board/uXjVPOIvZ94=/

This project combines the idea of self-construction (DIY) and ephemeral living. We chose this campsite, as it is the university camping, and it would be beneficial to have a more direct relationship with education.

The site is divided into two parts, by a main axis, the caravans’ area, and the tents’ area. On the central axis all shared functions are located, placed in geometric areas of a smaller scale. Different arrangements have been designed for the caravans’ and tents’ areas to suit each case. The design processes and the materials (trodden earth, metal grid, wood) are specified by nature itself.

MASTERPLAN

[Programs used: AutoCAD + Illustrator + Photoshop]

DIAGRAMS

[Scaned handwriten pen diagrams + Photoshop]

This was a challenging project since this camping site was not studied much, therefore the information that we were given was limited. We used as a base the masterplan from the city planning records of the state and combined them with our own observations and research. I was involved with every aspect of the design process, the idea, managing the team and the illustration of the plans and diagrams.

1 IDEA central axis division into 2 parts (A+B) A- Tents’ area B- Caravans’ area Sea Sea Sea road designed routes function during workshops Tents’ area caravans’ area 1. parking 2.reception 3.civilization 4.housing 7. leisure 5+6+8+9. sports activities shared functions shared functions axis AREA SEPARATION USES ROUTES OPERATION designed routes

2023

Team: Demetriadou Leda | Malamoglou Evgenia

Teacher: Papadimitriou Spyridon(sip@arch.auth.gr)

DISERTATION PROJECT

Key words | Camping site, redesigning, forest-seaside, DIY, wooden structures Location | Halkidiki, Thessaloniki, Greece https://miro.com/app/board/uXjVPOIvZ94=/

CARAVAN LAYOUTS - AXONOMETRICS

[Programs used: Rhinoceros 3D + Illustrator]

PERMANENT RESIDENCIAL STRUCTURE FOR TWO PEOPLE

[Programs used: Rhinoceros 3D + AutoCAD + Photoshop]

STRUCTURAL DETAILS

[Programs used: Rhinoceros 3D + AutoCAD + Photoshop]

PLAYGROUND RENDER

[Programs used: Rhinoceros 3D + Photoshop]

SECTION - COMMON FUNCTIONS - CARAVANS’ AREA [Programs used: Rhinoceros 3D + AutoCAD + Photoshop]

The desire to play led to the choice of geometries that are in parts excerpts from the classic games of our childhood memories. In addition to the above, a separate project could be the construction of the same site by architecture students, as the construction of all facilities is based on simple application of instructions with common materials.

2
Foundation column column glass pane pad beam plywood air silicone finishes metal corner Floor Window frame PLANS SECTIONS Ground level Second level

SC138

Key words | bridge, floating structures, flea market, workshops, housing Location | Cambodia https://www.facebook.com/BRO-The-Architecture-of-Transition-1885666571657893/photos/pcb.3890771387814058/3 890770601147470/

Our proposal aims to house artists who are evicted from their homes (as is the case in White Building). We proposed 20 houses of different sizes, with open plan design (divided with curtains) that are fully open on two sides. The houses do not contain bathrooms nor toilets, but there are two central buildings to support everyone on the bridge. There are five workshops, where artists work, and are open to the public regardless of age. The products that are produced in the workshops are being sold in the flea market that is an extension of the existing one.

MASTERPLAN

[Programs used: AutoCAD + Photoshop]

2022
3
Team: Demetriadou Leda | Katsouris Demosthenis | Kountouris Kyprianos Teacher: Ioannidis Konstantinos (kioannidis@arch.auth.gr)

2022

Team: Demetriadou Leda | Katsouris Demosthenis | Kountouris Kyprianos

Teacher: Ioannidis Konstantinos (kioannidis@arch.auth.gr)

SC138

Key words | bridge, floating structures, flea market, workshops, housing Location | Cambodia https://www.facebook.com/BRO-The-Architecture-of-Transition-1885666571657893/photos/pcb.3890771387814058/3 890770601147470/

I was responsible for the team organisation and the design concept. The project program was decided collaboratively with my team. I was responsible for the AutoCAD drawings, the Photoshop, the design concept and the selection of the represented drawings, the materials and the structure.

There were also two relaxation and amusement areas which were opposite to a «boat through» cinema and a dance studio. The movement of motorcycles, tuk-tuk and people coexist, coincidentally as it is something that happens in their daily life.

ZOOMED PLAN VIEW - RESIDENTIAL AREA

[Programs used: AutoCAD + Photoshop]

SECTION - RESIDENTIAL AREA

[Programs used: AutoCAD + Photoshop]

3D RENDER: CINEMA + DANCE STUDIO

[Programs used: Rhinoceros 3D + Twinmotion + Lightroom + Photoshop]

4

Team: Demetriadou Leda | Katsouris Demosthenis | Kountouris Kyprianos

Teacher: Ioannidis Konstantinos (kioannidis@arch.auth.gr)

THE GRID - ARCHITECTURE SCHOOL

Key words | play with light, liquid elements, grid, university Location | Thessaloniki, Greece

Through the initial recognition, we detected the main problems of the region, which are the lack of green spaces, liquid elements, and rest points with the element of nature. Our basic design tool was the combination of two grids, which were placed on the top view of the plot, we experimented, and we came up with various visual escapes towards the different points of interest.

MASTERPLAN

[Programs used: AutoCAD + Photoshop]

The composition consists of two buildings, separating the use of the auditorium from the rest of the facilities of the department. At the ground floor of the main building is the foyer, the cafeteria, the exhibition hall and a library facility, which are much more open in comparison to the upper levels. There are several places on the ground floor where rest points are created, emphasizing on the element of nature.

FIRST FLOOR PLAN

[Programs used: AutoCAD + Photoshop]

I was responsible for the team organisation and the design concept. The project program was decided collaboratively with my team. I was responsible for the AutoCAD drawings, the Photoshop, the design concept and the selection of the represented drawings, the materials and the structure.

2021
5

LANDSCAPE DESIGN

Key words | movement paths, stream, wooden structures, landscape design Location | Thessaloniki, Greece

The 1 st floor is used exclusively for the labs, the printing center, and the materials center. The 2 nd floor is used for lectures, and offices. The usages split was done in such a way that no uses interfere with each other, while the floor positioning was done based on ascending privacy level. Regarding the layout of the internal spaces, we chose an open plan logic, with large communal spaces, which offer comfort in the usability of the building. Moreover, a garden is placed on the roof of the exhibition hall, in order to increase the presence of the element of nature.

SECOND FLOOR PLAN

[Programs used: AutoCAD + Photoshop]

2021
Team: Demetriadou Leda | Katsouris Demosthenis | Kountouris Kyprianos Teacher: Ioannidis Konstantinos (kioannidis@arch.auth.gr) 3D RENDER [Programs used: Rhinoceros 3D + Twinmotion renderer + Lightroom] At the ground floor, there is a path with aromatic plants, which leads to a downgraded square.
6
CROSS SECTION A-A [Programs used: Rhinoceros 3D + Photoshop]

2020

Team: Demetriadou Leda | Katsouris Demosthenis | Kountouris Kyprianos

Teacher: Kotsopoulos Sofoklis (skotsopo@arch.auth.gr)

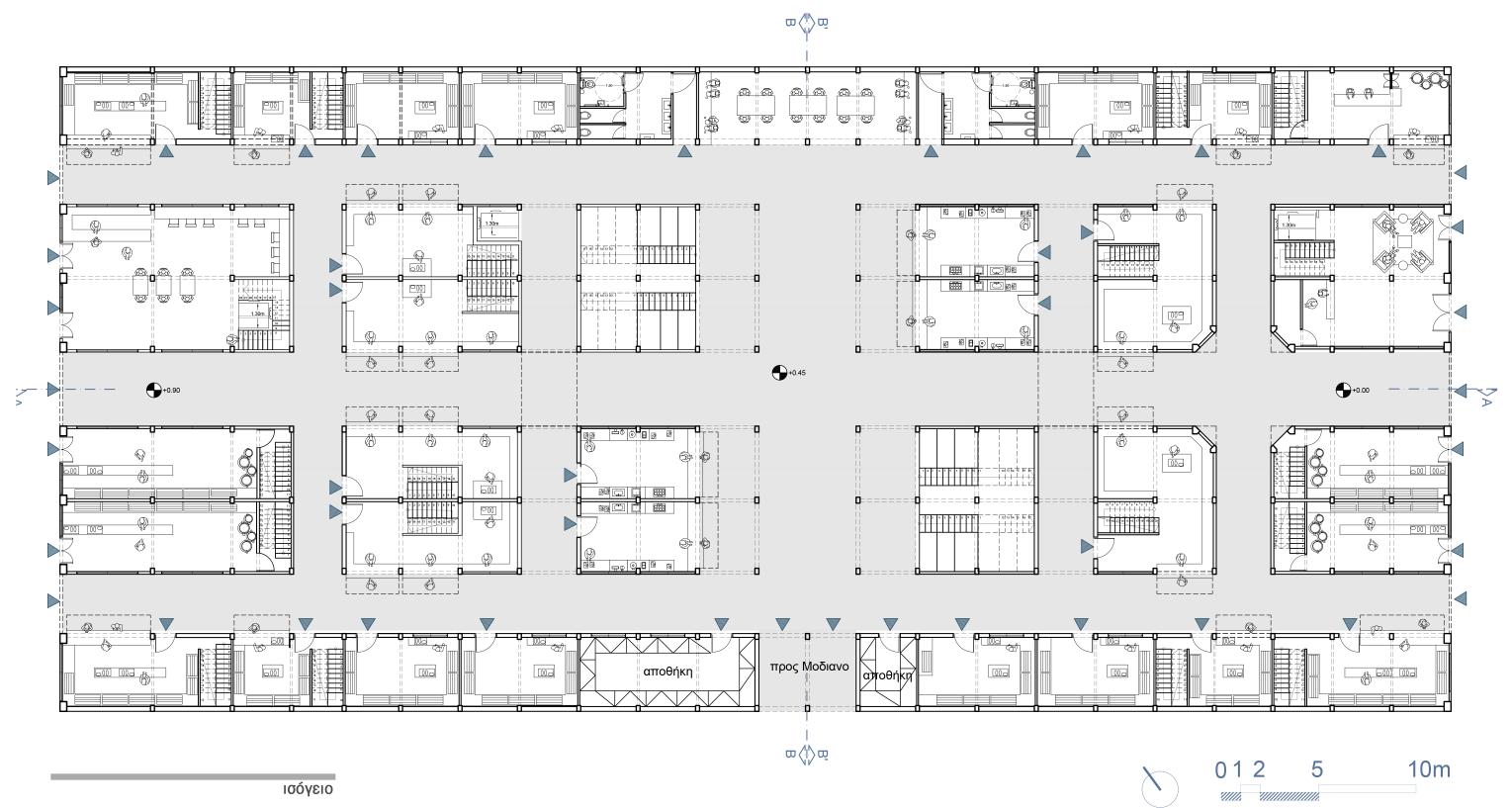
MARKET RESTORATION

Key words | food market, hotel, library, restoration, listed building Location | Market in Ermou, Thessaloniki, Greece

The concept was based on the area’s need of some uses. Thus, the utility program, includes a hotel unit in the building by the Vasileos Irakleiou Street and a library-reading room in the listed building, by the Ermou Street. Our goal was the smallest possible intervention on the existing building, but also maintained and highlighted its important character. Moreover, an important element was the maintenance of the existing drive axles, their expansion, and the opening of new ones. The aim was to create a central core of stopping and entertainment and free movement in the side corridors.

Memo

GROUND FLOOR PLAN: three types of stores with multiple services

Right side: Hotel reception | Middle: common area + food court [progragm used: AutoCAD]

This was a very interesting project with many challenges in terms of the regulations and limitations of the building. I was involved in every aspect of the design process, the concept, managing the team and the presentation of the plans and diagrams, zoomed plans and the design of the final presentation issue and posters.

1 st and 2 nd FLOOR PLAN - Hotel arangment [scale 1.50] [programs used: AutoCAD + Photoshop] 7

Teacher:

MARKET RESTORATION

Key words | food market, hotel, library, restoration, listed building Location | Market in Ermou, Thessaloniki, Greece

THE THREE TYPES OF STORES - GROUND FLOOR

We propose three different store types for the middle part of the market.

AXONOMETRIC VIEW

[programs used: Rhinoceros 3D + Twinmotion + Lightroom + Photoshop]

1 st + 3 rd type: Are consisted by a ground floor and a loft.

1 st type: Is only on the ground floor, has an open plan design with windows but the only interaction with the corridors are the views from the closed windows, as the access is only from inside.

3 rd type: Has opening windows and allows internal and external interaction.

1 st + 3 rd type: Allow access to the loft by stairs located in the middle of the market.

2 nd type: Has opening windows only, the accessibility is only external and there is no access loft.

GROUND FLOOR RENDER

Left side: store type three Right side: stairs leading to the loft

[programs used: Rhinoceros 3D + Twinmotion + Lightroom + Photoshop]

My duties in this part were the 3D making and the decision of the three types of stores as well as the materials used and the views captured from the 3D Render made by my classmates.

2020
Team: Demetriadou Leda | Katsouris Demosthenis | Kountouris Kyprianos
8
Kotsopoulos Sofoklis (skotsopo@arch.auth.gr)

Turn static files into dynamic content formats.

Create a flipbook
Issuu converts static files into: digital portfolios, online yearbooks, online catalogs, digital photo albums and more. Sign up and create your flipbook.