Architectural Portfolio 2022-2024

Page 1


(Academic Work)

Black Matter : Reconnect with the Darkness

Master Course - Professional Project

Swanson Extension-Wing

Master Course - Integrated Studio

Connecting the Dis-connected

Master Course - Urban Studio

Vunidogoloa : The Forgotten Village

Master Course - The Global Studio

The Integrated Plaform : Food & Market

Master Course - The Global Studio

(Professional Work)

Osmani International Airport’s

Heerim Architects & Planner

Bata International Airport

Heerim Architects & Planner

Narakieoum Accommodation Mixed-Use Building

Heerim Architects & Planner

BLACK MATTER : RECONNECT WITH THE DARKNESS

q PROJECT DESCRIPTION

In today’s bustling world, artificial light has not only transformed our natural environment but has also sparked a unique form of modern anxiety. The loss of our connection to the night sky fosters a sense of isolation in an increasingly artificial environment.

In response, I envision an astronomical observatory paired with an immersive space. This design aims to evoke the interplay of light and shadow, rekindling a sense of wonder for the celestial expanse and the natural radiance of the sun.

q SITE SELECTION

“ For my part, I know nothing about certainty, but the sight of stars makes me dream” Vicent van Gogh

q DESIGN PROCESS

1. Light pollution map (world)
2. Light pollution map in Tasmania
3. Eaglehawk Neck, the location of project
4. Prirate Bay
2. Fosil Island 3. Eaglehawk

q SITE PLAN

Tasmania is home to several dark sky locations, with Eaglehawk being one of the most notable. Rich in identity and history, this place connects people from generation to generation. Eaglehawk is renowned not only as a popular tourist spot near Hobart but also as one of the best places to view the aurora and the Milky Way.

At the heart of the design are three distinctive architectural forms: “The Observatory of Light,” “The Black Room,” and “The Gate to Infinity.” These buildings are intentionally faceless, symbolizing continuity with no beginning and no end. The circulation within these spaces is unrestricted, allowing visitors to explore and experience them based on their feelings and their connection to the ocean and the sky.

(FLOOR PLAN)

1. The Observatory of light

2. Water Garden

3. The Black room

4. The Gate of infinity 5. Stone Garden

Led Garden

Car park

Summer Solstice Sunrise Entrance to the Tasman Sea
Greeting the Milky way Capturing the Full Moon
Greeting Winter Solstice Sunrise
Experiencing the light particles in the dark
Greeting Winter Solstice Sunset The interplay of light and shadow
Toward The Milky Way / Summer Sunset / Pirate Bay / Fosil Island
Toward Winter Sunrise / Tasman sea / Nortern Star
Fire pit under the sky r
Eyes to the sky r
Eye to the Tasman Sea Sunrise r
Dark sky encounter in the jungle of brass bar r
Concrete w
Corten Steel w
Perforated Corten Steel w

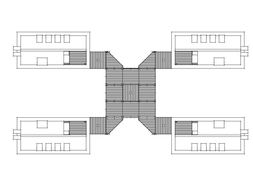
O2. SWANSON EXTENSION-WING

This new extension wing for Swanson Building will embody the Australian Meritime College's (AMC) vision for University of Tasmania as the heart of the Newnham Campus. This 3,400m2 project is designed to be one of the most sustainable and carbon positive building in Launceston. It will house office spaces, collaborative labs, a cafe, and postgradaute offices - key components of a modern work and study environment. These facilities are essential to AMC's mission of enhancing maritime training, education and research on a national and international scale.

The three-stories building, centrally located on the Newnham Campus, will take advantage of its unique topographical setting, offering key views of its facade along Meritime Way. The design considers not only the visual character and form of the facade in its context but also the relationship of the building's massing as viewed from the street. A ground-level connection is incorporated ot maintain a smooth flow between the road and the existing building, enhanced by a new garden courtyard. This landscape element will bridge the existing and proposed buildings, complementing the existing courtyard at the rear.

New Paradigm For Office

The project focused on a reduction in carbon emissions. The existing Swanson building serves as a testament to the history and legacy of the AMC. In contract, the new extension will stand in front, utilizing mass timber construction - a modern timber structure juxtaposed against the retained concrete structure of the original building, symbolizing a blend of innovation and tradition.

Connell Building

(RIGHT) Open-plan office designed for communication and collaboration.

(LEFT) A cafe, enclosed by curtain wall, seamlessly connects the indoor and outdoor landscape together.

(SECTION PLAN)

1. Welcome Hall 2. Post graduate office 3. Main Staircase
Breakout room 5. Student Kitchenette
EPS

CONNECTING THE DIS-CONNECTED

q SITE STUDY

Queenstown’s location at the foot of the West Coast Range, determined by rich mineral deposits, made it a central mining hub. The town, strategically situated near rivers and connected by railway to Strahan, provided essential services for miners. Surrounding mountains like Mount Owen, Mount Lyell, and Mount Jukes supplied minerals, while river valleys offered water resources and recreational opportunities.

This project aims to connect one side of Queenstown to the other. Utilizing the first and third prudences as entry points from each side, and the second prudence as a bridge linking the town, we envision creating a cohesive and accessible community space. Each prudence will have unique characteristics and functions, allowing residents to engage in a variety of activities, from indoor to outdoor experiences, enhancing the town’s connectivity and livability.

MT Lyell
QUEENTOWN MAP r
Site Queen River MT Lyell
HISTORY q DEMOGRAPHIC
“Queenstown was isolated from other parts of TASMANIA until the 1930s. In 1932 the first gravel road was officially opened at the King River bridge. In 1937 direct road from Launceston. In 1973 from Queenstown to Strahan and 1941 From Queentowns to Zeehan.”
q SITE LOCATION

BUILDING O2

To maintain the Rustic and Simplicity image of the town.

Queen River Queen town Stone
Black Zinc = Resilient + Eye catching

VUNIDOGOLOA : THE FORGOTTEN VILLAGE

q SITE LOCATION

Tcommunity of Vunidogolao, located on the coastline of Natawa Bay on Vanua Levu, Fiji’s second largest island, faced relocation due to severe sea level rise. The entire village moved to a new site called Kenani, situated 1 km away from the original village.

In response to this issue, we proposed a floating village, which allows villagers to move vertically within the same area, staying close to their original location.

The village is divided into two distinct zones: public and private. Public spaces welcome other villagers to visit, engage in activities, and share knowledge. The village consists of five different types of spaces: Residential, Religious, Educational, Food, and the Village Square.

Vunidogoloa
Proposed Site
Natewa Bay, Vanua Levu, Fiji
Kenani Nabua
Koronatoga

THE INTEGRATED PLATFORMS : FOOD & MARKET

Moving from the master plan project, We are focusing on the Food and Market Platform, which serves as a vital source of food for the entire village and supports business activities. The primary goal of this project is to create a multifunctional platform where people can gather for entertainment, events, business, and education. This platform is intended not only for villagers but also for visitors from outside the village.

Key considerations for this project include wind resistance structures and the incorporation of renewable energy solutions. The platform acts as the main entrance, welcoming people into the village and providing an open and inviting space for all.

Wind Direction :

Sunlight Direction : _ Longest month : Dec - Mar _ Shortest month : Jun - Sep

1.Polycarbonate Roof
2.Fijian Kauri (Wall)
3.Fijian Mahogany (Structure)
Connection between Timber and Concrete
Roof water collection

Osmani International Airport’s Accommodation

Project Name : Airport Staff’s Accommodation

Location : Osmani International Airport

Typology : Residential

Structure : Reinforced concrete

Floor(F) : 3

Design : 2018 - 2019

The project consists of four types of accomodation buildings, all designed for one family. In each building type, the living room and bedroom face south, while the kitchen and restroom face north.

Principle Architect

Director Manager

Assistant Manager

Team Leader

Assistant Team Leader Staff

Responsibilities

+ Stage : SD

+ Collaboration : Working closely with Principle Architect to conduct case studies of ex isting residential design and standards in Bangladesh, ensuring best prac tices for local and innovative solutions were integrated.

+ Technical Drawing : Produced essential drawings included :

_ Floor plan : Detailed layouts of the project’s floor levels.

_ Partial Section : Specific sections focusing on critical areas of the design.

_ Enlargement Plans : Enlarged views of particular zones for detailed examination.

+ Meeting Preparation : Assisted in preparing agendas and materials for meetings with the Director and clients, ensuring clear communication and alignment on project objec tives.

MY ROLE
Type D
Type C
Type B
Type A

CADRef:

Bata International Airport

q PROJECT INFORMATION

Project Name : Bata Int’I Airport - New Passenger Terminal

Location : Bata, Equatorial Guinea

Typology : Airport Passenger Terminal

Building Area : 31,807m2

Structure : Reinforced Concrete , Steel Structure

Floor : 3F/B1

Buidling Height : 31.5M

Director

Principle Architect

Manager

Assistant Manager

Team Leader

Assistant Team Leader Staff

Responsibilities

+ Stage : SD

+ Collaboration : Working closely with Assistant Manager to conduct case studies of ex isting aviation design, ensuring best practices and innovative solutions were integrated.

+ Technical Drawing : Produced essential drawings including : _ Floor plan : Detailed layouts of the project’s floor levels.

_ Partial Section : Specific sections focusing on critical areas of the design.

_ Enlargement Plans : Enlarged views of particular zones for detailed examination.

+ Design involvement :

_ Baggage Handling System (BHS) Design : Contributed to efficient design of the BHS, optimizing the flow and handling of baggage.

_ Departure Zone Design : Designed functional and aesthetically pleasing spaces within the departure zone, enhancing passenger experience.

+ Meeting Preparation : Assisted in preparing agendas and materials for meetings with the director and clients, ensuring clear communication and alignment on project objectives.

v Perspective View, by Heerim CG Team
q MY ROLE

Narakieoum Mixed-use Buidling

Project Name : Narakieoum Mixed-Use Building

Client : KAMCO (Korea Asset Management Corporation

Location : 38-1 Daeyeondong, Nam Gu, Busan

Typology : Mixed-Use Building

Building Area : 15,202m2

Structure : Reinforce Concrete , Steel Structure

Floor : 12F/B2

Period : 2020.03.09 ~ 2024.07.08 (Design 12 months)

Director Principle Architect Manager

Assistant Manager

Team Leader

Assistant Team Leader Staff

Responsibilities

+ Stage : DD, CD

+ Collaboration : Worked closely with Manager to conduct case studies of existing mixeduse building (residential, office, and commercial, ensuring best practices and inno vative solutions.

+ Technical Drawing :

_ Floor Plan : Created Detailed Layout of the barrier free space of the project. _ Partial Section : Developed specific sections focusing on critical design areas. _ Enlargement Plans : Produced enlarged views of particular zones for detailed ex amination.

+ Coordination : Collaborated extensively with interior designer, structure engineer, mechan ical engineer, electric engineer, and barrier free consulatants to ensure best prac tice and consistency in technical drawing for the construction stage.

+ Meeting Preparation : Assisted in preparing agendas and materials for meetings with the director and clients, ensuring clear communication and alignment on project objec tives.

+ Submission : Assisted the Assistant Manager in preparing and submitting reqired documents for construction permit.

v Perspective View, by Heerim CG Team
q MY ROLE

Turn static files into dynamic content formats.

Create a flipbook
Issuu converts static files into: digital portfolios, online yearbooks, online catalogs, digital photo albums and more. Sign up and create your flipbook.