Bitácora Prácticas

Page 1

Bitácora de Práctica Empresarial

Laura Daniela Arevalo Rivera

Cod. 1106448

T A B L A D E C O N T R O L

T A B L A D E C O N T R O L

Diseño Fachada Local El mayorista Soacha

Serealizaeldiseñodelasfachadasparaellocal,teniendoencuentala parte ya existente, al igual que se realizan los detalles correspondientesdelaperfileriadelasventanas

Competencias Aplicadas:

1. Capacidadpararepresentar,mediantematerialtridimensionaly bidimensional

2. Capacidaddeorganizaciónbásicadecomponentesdediseño.

Fachadas

S E M A N A 2
DEL 16 AL 2 0 DE A G O S T O

Detalles Unión Vidrio

S E M A N A 2
DEL 16 AL 2 0 DE A G O S T O

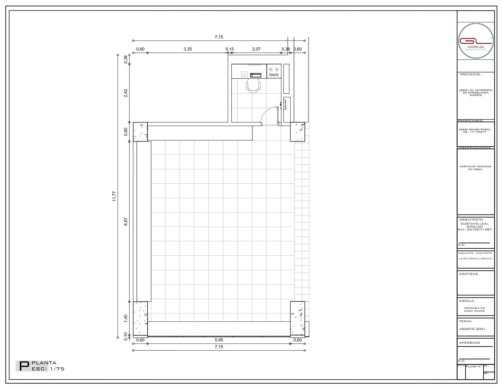
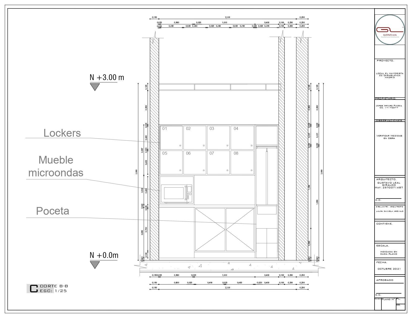
Desarrollo planimetría Local Casablanca

Sedigitalizaelproyecto,yserealizanpropuestasparalaubicaciónde la nueva oficina, la renovación de las fachadas y sus respectivos renders.

Competencias Aplicadas:

1. Capacidadpararepresentar,mediantematerialtridimensionaly bidimensional

2. Capacidaddeorganizaciónbásicadecomponentesdediseño.

Planimetría

S E M A N A 3
DEL 23 AL 27 DE AG O S T O
S E M A N A 3 DEL 23 AL 27 DE AG O S T O

Propuestas oficinas

S E M A N A 3
Planimetría
DEL 23 AL 27 DE AG O S T O

Renders

S E M A N A 3
DEL 23 AL 27 DE AG O S T O

Diseño Mobiliario para diferentes Zonas de un Apartamento

Se realiza el diseño de mobiliario para la sala, el estudio, la alcoba principal y la alcoba secundaria, estos a partir de solicitudes del clienteylasfuncionesrequeridas.

Ladificultadfuealtaporlasposibilidadesdereferentesquesetenían peroalfinalsegeneran102propuestasdecadamueble.

Competencias Aplicadas:

1. Capacidadpararepresentar,mediantematerialtridimensionaly bidimensional

2. Capacidaddeorganizaciónbásicadecomponentesdediseño.

3. Capacidad para determinar la conformación de un proyecto a partirdelosrequerimientosdefinidosenelbrief.

S E M A N A 4
DEL 30 DE AGO. AL 03 DE S E P T I E M B R E
S E M A N A 4
DEL 30 DE AGO. AL 03 DE S E P T I E M B R E
Mueble Sala - Propuesta 1
S E M A N A 4
2 DEL 30 DE AGO. AL 03 DE S E P T I E M B R E
Mueble Sala - Propuesta

Mueble Estudio

S E M A N A 4
DEL 30 DE AGO. AL 03 DE S E P T I E M B R E

Mueble Alcoba principal

S E M A N A 4
DEL 30 DE AGO. AL 03 DE S E P T I E M B R E

Mueble Alcoba Niña - Propuesta 1

S E M A N A 4
DEL 30 DE AGO. AL 03 DE S E P T I E M B R E

Mueble Alcoba Niña - Propuesta 1

S E M A N A 4
DEL 30 DE AGO. AL 03 DE S E P T I E M B R E

Mueble Alcoba Niña - Propuesta 2

S E M A N A 4
DEL 30 DE AGO. AL 03 DE S E P T I E M B R E

Mueble Alcoba Niña - Propuesta 2

S E M A N A 4
DEL 30 DE AGO. AL 03 DE S E P T I E M B R E

Mueble Alcoba Niña - Propuesta 3

S E M A N A 4
DEL 30 DE AGO. AL 03 DE S E P T I E M B R E

Mueble Alcoba Niña - Propuesta 3

S E M A N A 4
DEL 30 DE AGO. AL 03 DE S E P T I E M B R E

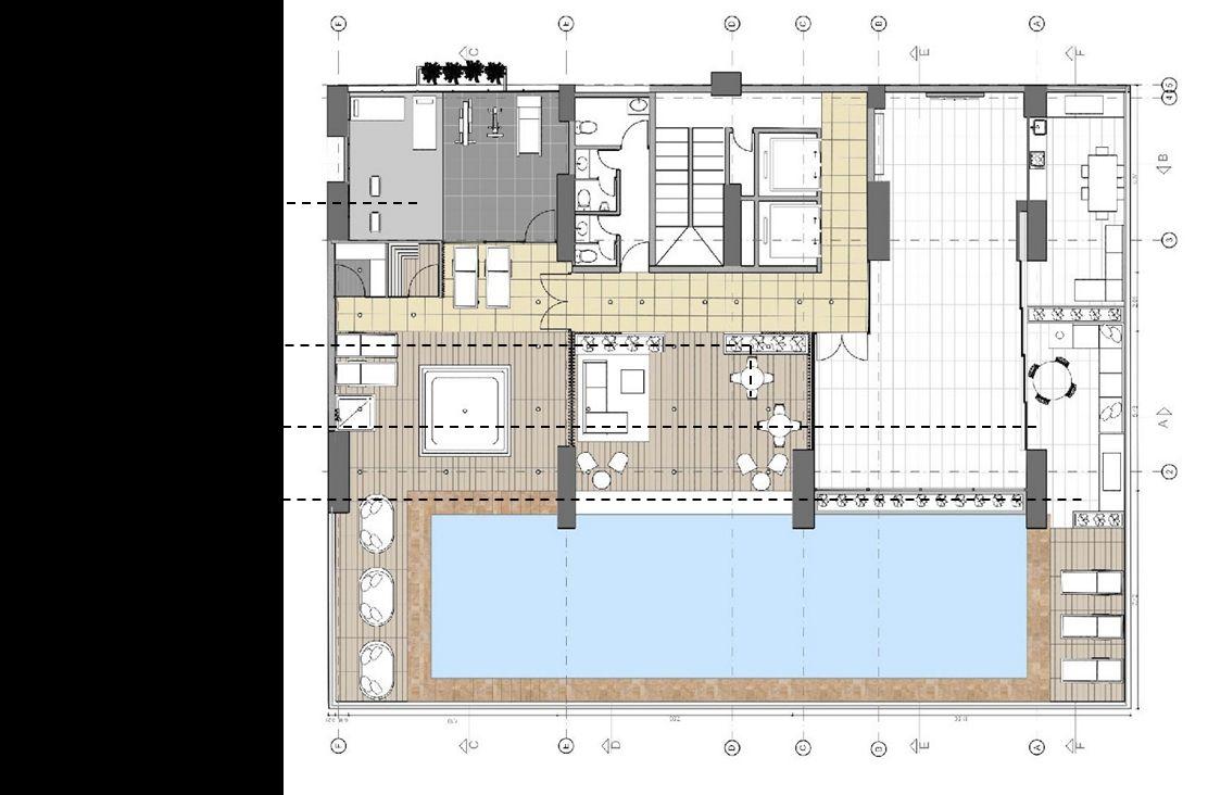
Diseño Final Zona Social

Esta propuesta de diseño se centra principalmente en mantener la distribución deespaciosexistentesy potencializar los espacios interiores con nuevos acabados, materiales , pintura , mobiliario y Vegetación. Se plantea en la zona posterior al jacuzzi que actualmente no se usa colocarunGimnasioyla zona húmeda con cabinas para turco y sauna, integrando así laszonasyconformando una zona de Spa integral. También se proponen crear una batería de baños para Hombres , mujeres, niñosyminusválidos.

● Corte
S E M A N A 1 2 D E L 2 5 A L 29 DE O C T U B R E
Longitudinal

● Modificaciones Según Solicitudes

1.CerramientoentrepiscinayZonaBBQsedaatravésdeunapuertacorrediza

2. Se realiza acceso desde la zona BBQ a la piscina

S E M A N A 1 2 D E L 2 5 A L 29 DE O C T U B R E

3. Cerramiento mediante puerta para el acceso a los baños

4.Elsalóncomunalseencuentratotalmentecerradomedianteventaneriaenvidrio parala instalacióndeaireacondicionado

S E M A N A 1 2 D E L 2 5 A L 29 DE O C T U B R E
S E M A N A 1 2 D E L 2 5 A L 29 DE O C T U B R E ●
Salón Social

● Zona Piscina y Baños

S E M A N A 1 2 D E L 2 5 A L 29 DE O C T U B R E

Diseño segunda Propuesta Terraza BBQ

Se realiza otra propuesta de diseño para el BBQ donde se propone una estructura más extensa para las pérgolas sostenidaporpequeñospilares.

La dificultad fue alta ya que esta requiere más conocimiento de los procesos constructivos y las dimensiones de los elementosqueserequierenparauncorrectofuncionamiento.

Competencias Aplicadas:

1. Capacidadpararepresentar,

2. mediantematerialtridimensionalybidimensional.

3. Capacidaddeorganizaciónbásicadecomponentesde diseño.

4. Capacidadparadeterminarlaconformacióndeun proyectoapartirdelosrequerimientosdefinidosenel brief.

S E M A N A 1 3
D E L 1 A L 5 DE N O V I E M B R E

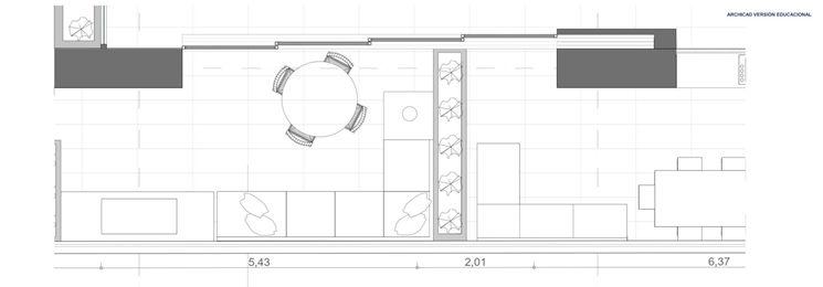
Esta propuesta de diseño se centra principalmente en la generaciónde2 zonas, la primera social compuesta por el BBQ con un amplio comedor y una salatipolounge conchimeneay la otra más privada compuesta por un gimnasio y un área para charlar

S E M A N A 1 3 D E L 1 A L 5 DE N O V I E M B R E
● Axonometrias BBQ ● 3D Zona BBQ
S E M A N A 1 3 D E L 1 A L 5 DE N O V I E M B R E
● 3D Gym
● 3D Sala de Estar ● 3d permanencia 1 S E M A N A 1 3 D E L 1 A L 5 DE N O V I E M B R E

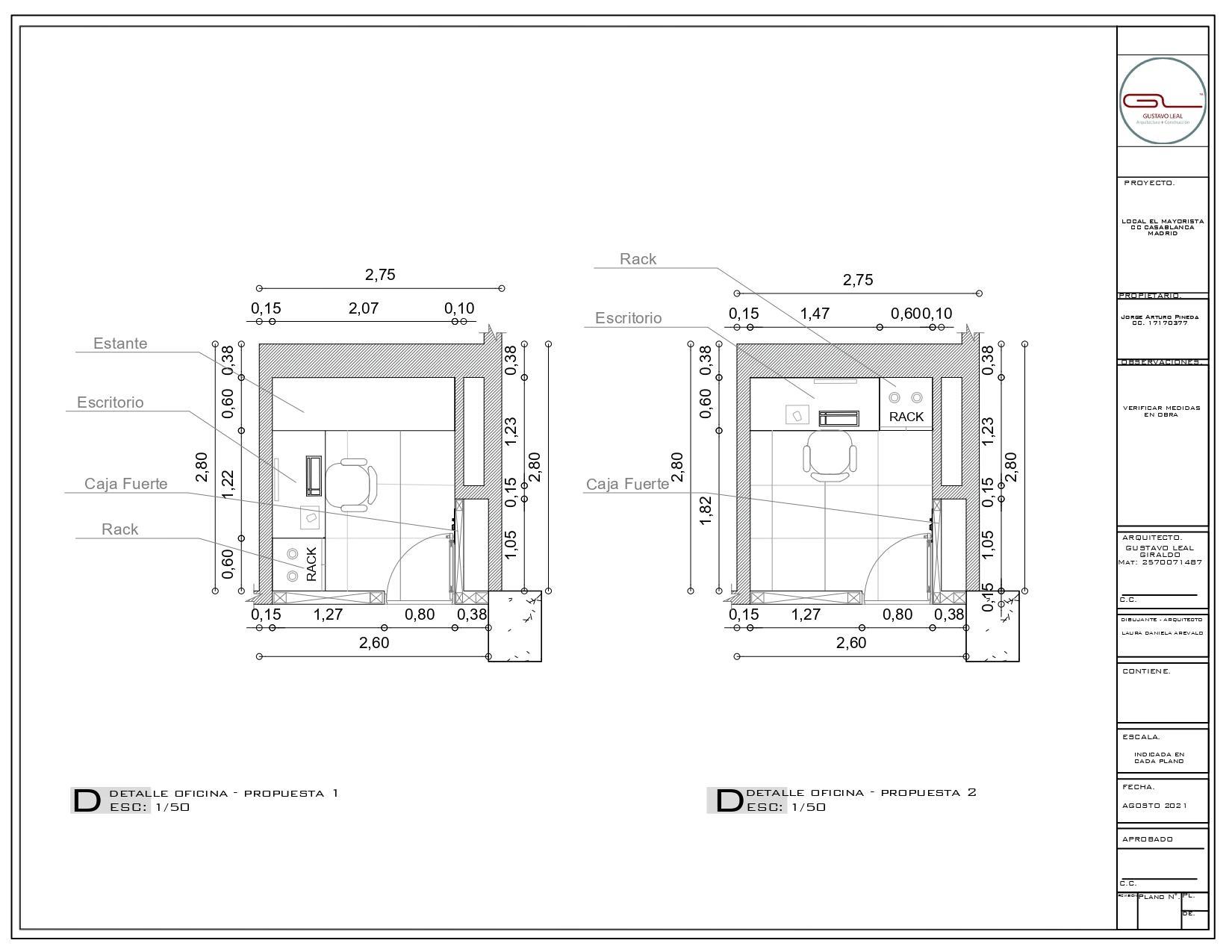
Elaboración Presupuesto El Mayorista - Casablanca

Se realiza el presupuesto para la Obra de remodelación ubicada en Madrid Cundinamarca que se empezó a ejecutar lasegundasemanadeestemismomes.

La dificultad del desarrollo de un presupuesto disminuyó a media ya que ya se tenían algunos conocimientos de como elaborarlo al igual de precios que se necesitaban, y la parte a remodelaresunapequeñaporcióndellote.

Competencias Aplicadas:

1. Destrezaparacuantificarypresupuestar

S E M A N A 1 3
D E L 1 A L 5 DE N O V I E M B R E
S E M A N A 1 3 D E L 1 A L 5 DE N O V I E M B R E
S E M A N A 1 3 D E L 1 A L 5 DE N O V I E M B R E

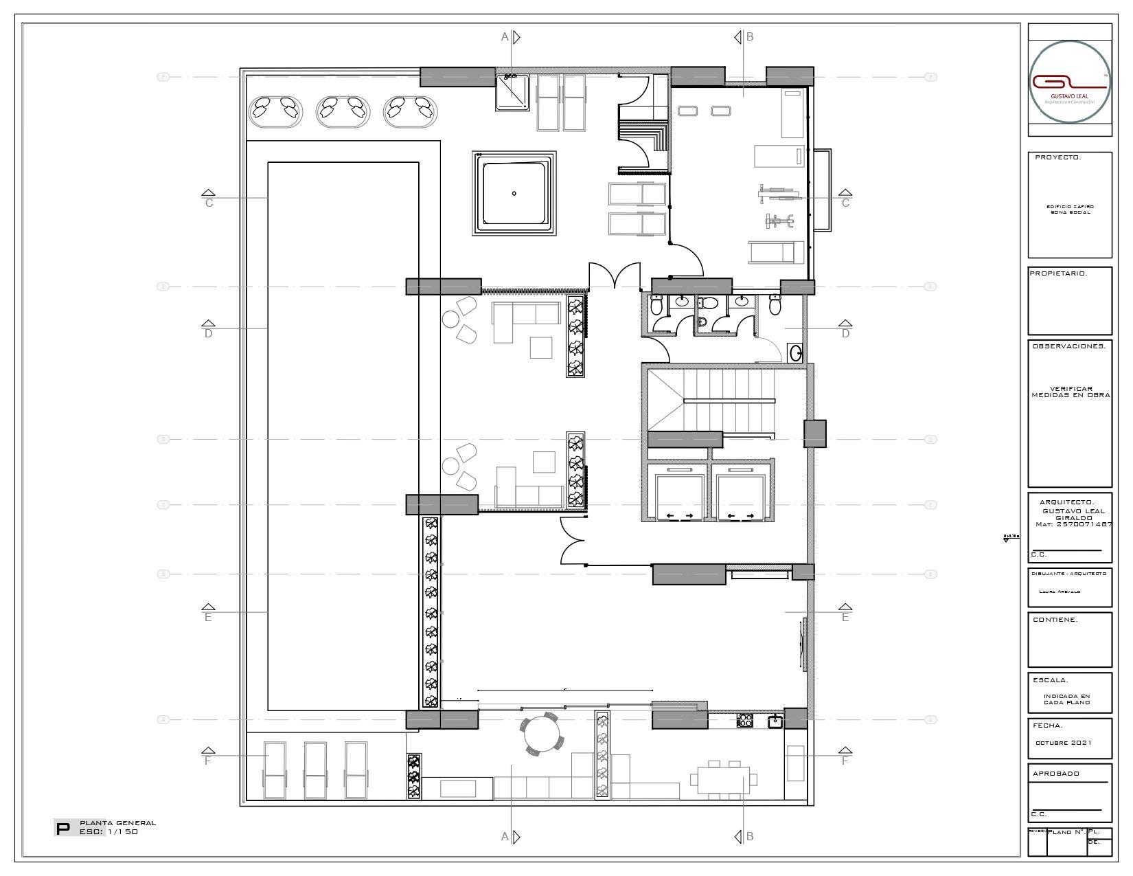
Elaboración planimetría en DWG Zona Social - Edificio Zafir0

Ya teniendo el diseño aprobado de el diseño a realizar se empiezan a generar las planimetrías en DWG para su respectivaentregayprocesoparaeliniciodelaobra.

La dificultad de dibujo en DWG fue baja ya que como se tenían ya en un programa de diseño solo se exportaron y mejoraronsurepresentación.

Competencias Aplicadas:

1. Capacidad para definir técnicamente procesos constructivos y materiales de acuerdo con las necesidadesdelproyecto.

2. Capacidad para determinar la conformación de un proyecto a partir de los requerimientos definidos en el brief.

S E M A N A 1 4
D E L 8 A L 1 2 DE N O V I E M B R E

● Planta General

● Fachada Longitudinal

S E M A N A 1 4 D E L 8 A L 1 2 DE N O V I E M B R E
S E M A N A 1 4 D E L 8 A L 1 2 DE N O V I E M B R E
● Corte A - A ● Corte B - B
S E M A N A 1 4 D E L 8 A L 1 2 DE N O V I E M B R E
● Corte C - C ● Corte D - D
S E M A N A 1 5 D E L 1 5 A L 1 9 DE N O V I E M B R E ● Propuesta
1
S E M A N A 1 5 D E L 1 5 A L 1 9 DE N O V I E M B R E ● Propuesta
2
S E M A N A 1 5 D E L 1 5 A L 1 9 DE N O V I E M B R E ● Propuesta
Final

Corte A - A

S E M A N A 1 5 D E L 1 5 A L 1 9 DE N O V I E M B R E

● Corte B - B

S E M A N A 1 5 D E L 1 5 A L 1 9 DE N O V I E M B R E

● Planimetría en Planta y 3d Cubierta

S E M A N A 1 6 D E L 2 2 A L 2 6 DE N O V I E M B R E

● Planta

En esta propuesta de diseño se propone el cubrimiento del acceso posterior con ventaneria metálica formandoungran cubo, esto para demarcar el acceso.

● Propuesta 1
● Modelo 3d

En esta propuesta de diseño se propone el cubrimiento del acceso posterior deunaformamas sencilla cerrando con ventanería metálica el perímetro ya cubiertoformando esto para demarcar el acceso.

Turn static files into dynamic content formats.

Create a flipbook
Issuu converts static files into: digital portfolios, online yearbooks, online catalogs, digital photo albums and more. Sign up and create your flipbook.