Lauren Schmidt Portfolio

Page 1


Multi-Use Shopping Center

The goal of this project was to reimagine the shopping industry and take meaningful steps toward a more sustainable model that prioritizes environmental responsibility To accomplish this, my partner and I researched the impact of shopping addiction and the fast fashion industry. We found that overconsumption creates significant pollution and waste.

All work for this project was collaborative. I focused on space planning, axons, renderings, and diagrams.

ENTRY ART INSTALLATION RENDERING

SUSTAINABILITY DIAGRAMS

Our research revealed that overconsumption is a major contributor to waste. To counter this, we created a space that supports the circular economy by allowing people to donate items they no longer need. A dedicated repair area extends each object’s lifecycle, preparing it for a new home.

We organized the flow and layout of the space to encourage slower-paced browsing and mindful decision-making. By placing non-retail spaces, such as cafés and repair centers, as the first touchpoint upon entering, visitors are not immediately exposed to retail environments. This reinforces the idea of a slower, more thoughtful experience.

OUTDOOR CAFE RENDERING

Combines vibrant colors with natural textures to create an uplifting yet calming atmosphere that feels both energizing and grounding.

Each floor introduced sustainable alternatives to traditional shopping Floor One’s repair and donation center emphasized reuse over waste, while Floor Four’s second-hand stores and rental runway promoted slow fashion. An art installation highlighted the environmental cost of fast fashion, reminding visitors of the industry’s impact.

LOOK & FEEL

The space was designed with wide, clear pathways and intuitive navigation that guided visitors through the building without overwhelming them with product displays. By avoiding dead-end layouts, which often create frustration and encourage hasty purchases, we sought to reduce impulsive shopping behavior. Recognizing environmental and psychological triggers helped us inform the layout and display design.

By guiding users through intentional spaces and encouraging reflection, the center provided a refreshing alternative to the traditional shopping experience. It helped visitors reshape their relationship with consumption for a healthier and more sustainable future.

ROOFTOP TERRACE RENDERING

2

NOOK

Campus Reimagined

The purpose of this project was to reimagine how Washington State University interacts with downtown Pullman, creating spaces that strengthen the relationship between campus and community. Working in a team with Architecture and Landscape Architecture students, I was able to see design from new perspectives and expand my approach to problem-solving.

KITCHEN RENDERING

*All work for this project was collaborative. I focused on the floor plan, axon, and the collage.

COMMUNAL

LEVEL ONE FLOOR PLAN SCALE: NTS

We noticed “nooks” scattered around campus, small spaces inviting them to linger. This concept inspired our design for Pullman, emphasizing comfort, connection, and belonging. We chose to redesign a building located between downtown and campus, creating a natural bridge between the two.

Inside the building, we focused on creating spaces where users could both connect and recharge. Seating clusters, small gathering zones, and layered pathways provided flexibility, while private niches offered moments of quiet within a larger, connected environment.

LEVEL TWO FLOOR PLAN SCALE: NTS

The existing structure had a unique floor plan with every level set at a different height, perfectly aligning with our theme of layered, tucked-away nooks. We embraced this feature by creating a series of interconnected spaces that offered both intimacy and openness. These variations in elevation created moments of discovery as users moved through the building, encouraging exploration and a sense of curiosity. By celebrating the building’s natural character rather than concealing it, we transformed its irregular floor plan into one of its greatest strengths.

LOOK & FEEL
GRAB-AND-GO MARKET RENDERING BUILDING

COMMUNAL SPACE RENDERING

This project highlighted the importance of designing spaces that balance seclusion with community. By embracing Pullman’s natural character, we created environments that invited both connection and reflection. The integration of layered gathering zones and private nooks allowed students and community members to engage socially while still finding moments of solitude. By celebrating these qualities, our design reinforced the relationship between campus and downtown.

BUILDING SECTION TWO

3

HIVE

Office space

This project involved designing an office space in Tokyo that responded to the city’s unique work-life culture. Understanding that workers often spend long hours in the office, our team focused on creating an environment that supported both productivity and well-being. Dividing the building into public and private zones became a key strategy for achieving comfort and efficiency.

*All work for this project was collaborative. I mainly focused on space planning and materials.

STAIRWAY RENDERING

RECEPTION RENDERING

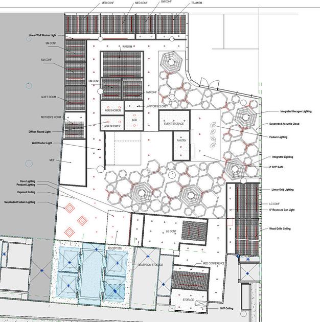
The first floor was designated as a public space, allowing guests to easily access conference rooms while minimizing interruptions in the work environment. This layout reduced traffic flow through employee areas, ensuring that daily operations remained focused and calm.

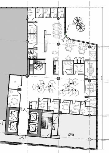
LEVEL ONE FLOOR PLAN

SCALE: NTS

SECTION ONE
PUBLIC LOOK & FEEL

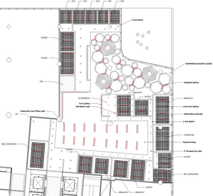
LEVEL ONE CEILING PLAN

this idea of collective p the workspace, symboli individual contribution a larger, harmonious w cultural research with planning, the design pr and inspiring environm Tokyo’s work ethic whil worker comfort and we

LEVEL ONE AXONOMETRIC

KITCHEN RENDERING

On the second floor, we created two distinct work zones. One was designed for quiet, focused tasks, while the other encouraged collaboration and group interaction. This balance gave employees autonomy to choose their environment depending on their needs, promoting both creativity and efficiency.

LEVEL TWO FLOOR PLAN SCALE: NTS

PRIVATE LOOK & FEEL
TEAM ROOM RENDERING
SECTION TWO

LEVEL TWO CEILING PLAN

This project emphasized how thoughtful spatial planning can transform the workplace into a setting that supports both focus and collaboration. By blending cultural research with flexible design, we created an office environment that aligned with Tokyo’s work ethic while prioritizing the comfort, creativity, and well-being of its employees.

TWO AXONOMETRIC OPEN OFFICE

LEVEL

NURTURE

1 -3 Grade Classroom

The goal of this project was to apply Maslow’s Hierarchy of Needs to the design of a school environment, ensuring that educational spaces support every aspect of a student’s well-being. From safety and belonging to achievement and growth. By approaching design through this psychological framework, I created an environment that fostered inclusivity, adaptability, and holistic learning.

CLASSROOM RENDERING

SCALE: NTS

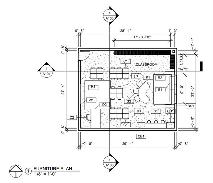
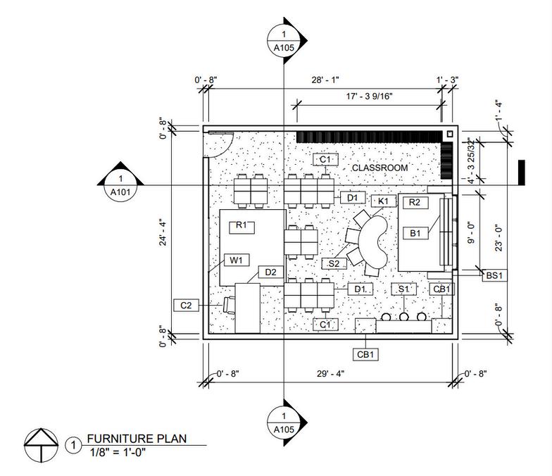
Classroom design further emphasized inclusivity by addressing a wide range of learning styles. I incorporated distinct areas for focused lessons, small group collaboration, and quieter retreat zones for students who may feel overstimulated This variety allowed children to find spaces where they could thrive while still feeling part of the larger classroom environment.

Each design decision was guided by Maslow’s hierarchy, reinforcing the idea that when basic needs are met, students can move toward higher levels of creativity, confidence, and selfactualization, ultimately shaping an environment that supports both personal growth and academic success.

SECTION TWO

SCALE: NTS

FURNITURE PLAN

SCALE:

NTS

The library was a central focus of the design. Recognizing it as a dynamic space that accommodates diverse classes and activities throughout the day, I designed a layout that balanced flexibility with functionality. Whether students needed quiet areas for independent study, collaborative zones for group projects, or multipurpose spaces for specialized classes, the library adapted to meet those needs.

By thoughtfully integrating psychological principles into spatial design, this project demonstrated how education can be enhanced through environments that nurture the whole student.

CUSTOM LIBRARIAN DESK

5

SPECTRA

Dorm

The objective of this project was to design a dormitory lobby that seamlessly integrated an art installation into the overall space. Working with VR technology, we created mirrored cubes arranged throughout the lobby. Their placement allowed every student, no matter where they stood, to see themselves reflected in the installation, reinforcing themes of identity and belonging.

*All work for this project was collaborative. I focused on the floor plan, axon, and VR.

A major consideration in the design was the dual nature of the lobby. We structured the space to support both public and private activities. Open areas encouraged social interaction and collaboration, while more private niches allowed students to focus on studying or personal reflection without distraction. The mirrored installation not only functioned as art but also created a sense of connection between students and their environment. By reflecting each individual within the larger context of the lobby, the design emphasized inclusivity, shared experience, and community.

DINING AREA VIEW
EXPLODED AXONOMETRIC

Using Oculus VR headsets was a highlight of this project. Designing in a fully immersive, 360° environment allowed me to experiment with form, placement, and perspective in ways that traditional design methods could not This technology brought the project to life, providing a deeper understanding of how users would experience the space.

This project stood out as one of the most exciting experiences of my academic career, showcasing how innovative technology and creative design can merge to create meaningful spaces. It showed how art and technology can merge to enrich everyday environments. By combining mirrored installations with immersive VR design, we created a lobby that was not only functional and adaptable but also expressive celebrating identity, connection, and community within the student experience.

Turn static files into dynamic content formats.

Create a flipbook
Issuu converts static files into: digital portfolios, online yearbooks, online catalogs, digital photo albums and more. Sign up and create your flipbook.
Lauren Schmidt Portfolio by Lauren Schmidt - Issuu