2023 Architectural Portfolio

Page 1

ARCHITECTURAL PORTFOLIO LAUREN ELLIOT

Masters of Architecture

Kansas State University College of Architecture Planning and Design

Expected Graduation: May 2024

Italian Study Abroad

Orvierto, Italy

Spring 2023 Semester

Women in Design Board Representative

January 2022-December 2022

Solar Decathlon Team

January 2022-May 2022

Intercultural Collaborative Committee

January 2022-Present

Adobe Creative Suite

Illustrator, Photoshop, InDesign

3D Modeling

Rhino 7, Revit, 3DS Max

Physical Modeling and Hand Drafting

Laser Cutting

Digital Rendering

Lumion, V-ray, Twinmotion

Microsoft Suite

Teams, PowerPoint, Excel, Word

EDUCATION

INVOLVEMENT

TECHNICAL SKILLS

2

page 4

Wamego, Kansas

Fall 2021

Professor Jongwan Kwon

Bowman Design Competition

page 10

Kansas City, Missouri

Spring 2021

Professor Torgeir Norheim

Studio Design Project

BEND FOOD TRUCK HUB

Manhattan, Kansas

Fall 2021

Professor Jongwan Kwon

Studio Design Project

MUSEUM OF EMOTIONS

Manhattan, Kansas Fall 2022

Professor Cameron Tross

Studio Design Project

page 16

page 18

CREATIVITY COMMUNITY CENTER

Wichita, Kansas

Spring 2022

Professor Wendy Ornelas

Studio Design Project

page 26

1 2
BANK OF THE FUTURE TABLE OF CONTENTS NEXUS FIRE STATION
3 5 4
3

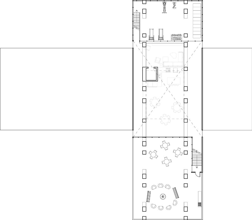
The town of Wamego needed a functional fire station that doubles as a place for the community to come together. This fire station is two program blocks interlocking on top of one another. The lower volume consists of the operational spaces for the firefighters to work and be prepared in case of emergency, as well as the public spaces that serve the citizens of Wamego, KS. The upper volume acts as the residential spaces that serve the firefighters during their “off duty hours”. This includes a kitchen, living room, bedrooms, bathrooms, laundry, workout space, and outdoor relaxation space. The central space of this volume is the double-height, semi-private general living space for the firefighters. The place where the two masses intersect are exposed with glass openings to emphasize this connection. These spaces create visual connections between the varying programs of different levels as well as to the outside. A central skylight also emphasizes this central connection, as well.

NEXUS FIRE STATION FALL

2021

The upper volume is held up by four large columns that also define the central meeting room and extend to the upper floors. The cantilevers are then supported by a large truss system that occupies the upper volume. This structure is exposed on the exterior facades in the spaces where the two masses interlock. The glass of the lower volume allows the upper volume to appear to be floating above the site. It also creates the feeling of being open to the community. The lower public volume houses the meeting room which can be used by the firefighters for training purposes or for other gatherings for the people of Wamego. There is also outdoor space on the north side of the site that could hold another kind of community gathering. The raising of half the program also creates space for the firetrucks to drive through the apparatus bay on this small site.

4
FIRST FLOOR 5’ 5’ 0’ 0’ 10’ 10’ 20’ 20’ 30’ 30’ SECOND FLOOR THIRD FLOOR 5

WOOD CLAD ROOF PLANE WITH CENTRAL SKYLIGHT

DOUBLE CANTILEVER WIDE FLANGE STEEL TRUSS

WOOD CLAD UPPER ENCLOSURE

PROGRAM ORGANIZATION

WIDE FLANGE STEEL COLUMNS

CONCRETE PANEL LOWER ENCLOSURE

CIRCULATION

CONCRETE FOOTINGS

BUILDING ASSEMBLY
6
7 5’ 0’ 10’ 20’ 30’
NORTH-SOUTH SECTION OBLIQUE
8
SECTION MODEL EXTERIOR STRUCTURAL MODEL
SITE MODEL SECTION MODEL INTERIOR 9

SPRING 2021

BANK OF THE FUTURE

While banks may seem increasingly less popular in today’s society, this project allows the building to serve both as a functional bank and a public cafe space. Located in Kansas City, Missouri, at the intersection of two semi-urban streets, this building has a clear representation of the design ideas happening within from the exterior street view. A curved glass enclosure system around the entire building exposes the structure of the building. Curved capital columns hold up the large waffle slab that covers the entirety of the interior spaces as well as the drive through, for users who wish to simply do their banking here from their car. Varied skylights permeate the skylight to allow additional light and connection to the exterior.

The upper offices and spaces of more private program appear to be floating as they are supported only by the columns on the interior. Partition walls on the south of the interior also define service program in this exposed building for the more private spaces. Clear vehicular circulation is defined by landscape and exterior walls also serve to separate man from machines on this site. Gaps appear between the enclosure and roof slab as well as between the enclosure and the ground to highlight and expose the different systems at work. Orthogonal air lock doors emphasize the entrances along the glass as well as concrete walls following the movement of the glass enclosure and extending it into the site.

Ample seating on the interior and exterior allow for this space to act as more than a place to do banking. The unique shape and transparency of the site allows this building to be a destination rather than simply an errand.

5’ 0’ 10’ 20’ 30’ 10
11
ELEVATION
12
EAST
NORTH ELEVATION
SECTION 5’ 0’ 10’ 20’ 30’ 13
EAST-WEST SECTION NORTH-SOUTH
FIRST FLOOR PLAN SECOND FLOOR PLAN 5’ 0’ 10’ 20’ 30’ 14
VARYING ENCLOSURE SYSTEMS 15

FALL 2021

BEND FOOD TRUCK HUB

This site provides Manhattan, Kansas’s Aggieville with outdoor space for enjoying good food from local food trucks, watching live performances by local artists, or simply taking a break, relaxing, and chatting friends. The Bend has a unique form that provides an overhead plane at this food truck hub, shapes, defines, and merges the spaces on this site, and reaches out to the streets that this structure sits at the corner of. This roof canopy also provides shade over much of the site and it’s seating. The Bend provides a break in the urban landscape with its unique geometry and dynamic site. With four sunken grassy performance spaces on site, visitors can enjoy food from the food trucks while enjoying some music, or simply sitting under the canopy in the shade. This site can host up to six food trucks at a time and has ample space to walk around and plenty of movable benches and tables. When not occupied with the food trucks, however, this site can be a nice place to just relax in a busy downtown setting.

FLOOR PLAN 0’ 5’ 10’ 20’ 30’
16
0’ 0’ 5’ 5’ 10’ 10’ 20’ 20’ 30’ 30’ EAST-WEST SECTION AXONOMETRIC 17

In this museum, the architecture becomes the art. Located in Manhattan, Kansas, at the intersection of the highway that leads visitors into town, this site is comprised of three seperate buidlings, a positive emotion hall, a negative emotion hall, and the main lobby building for the museum. The formation and placement of these seperate spaces onto the site is intended to bring people into it in order to experience this large site as a whole and encourage engagement from the community. These designated paths of engagement are defined by the hardscape versus softscape of the site and the reflecting pools. The concrete Y-columns of the main building, inspired by Tadao Ando’s museum in Fort Worth, Texas, hold up a thin concrete cantilevering roof. The curtain wall facade of this main building is also broken up by a wood panel spandrel system that connects the three buildings together of the site. This main building houses a cafe, office spaces, service program, the museum lobby, and transitional spaces to prepare the visitor for the museum experience of different emotions, as well as an additional gallery space and exterior seating upstairs. The clear progression of spaces prepares the visitor from the upstairs transitional space to descending down a long bridge into the first hall, the negative hall. This building is intended to express harshness, stress, and disorientation. Cast-inplace concrete loadbearing walls are angular and random, and varied small skylights cast down harsh light from above. The visitor is then lead outside down a path defined by reflecting pools to the second hall, the positive hall. This space is intended to feel organic, enveloping, and flowing. A curving wood system of horizontal panels defines the space, with curved partion walls to allow for art installations. The gaps in the horizontal wood panels and the clerestories above bring soft natural light into this space, giving a more positive emotion for the visitors. The user is than released out onto the site, an open grassy area that can be utilized as a sculpture gallery or gathering space for the community.

FALL 2022
MUSEUM OF EMOTIONS
18

BASE BUILDING

BEND TO ENGAGE SITE

CARVE FOR ENTRY CIRCULATION

BREAK OFF OF ANGLED FORM TO CREATE OPPOSITE HALLS

DEVELOPMENT

FORMAL
SITE ENGAGEMENT
19
20
21
FIRST FLOOR PLAN 0’ 5’ 10’ 20’ 30’ 22
TRANSVERSE SECTION 0’ 5’ 10’ 20’ 30’ 23
WEST ELEVATION EAST ELEVATION 0’ 5’ 10’ 20’ 30’ 24

WOOD PANELS

SPANDREL PANELS

STEEL CONNECTION BRACKETS

ALUMINUM MULLIONS

RECESSED LIGHTING

WOOD PANEL DROP CEILING

CURVED WOOD PANEL PARTITION WALLS

HORIZONTAL WOOD PANELS

REFLECTING POOL TILES

SEALANT MEMBRANE

6in COMPACT GRAVEL

EXPANSION JOINT COMPACT SOIL

8mm VAPOR BARRIER

DRAINAGE PIPE

CANT STRIP

2in RIGID INSULATION

CONCRETE FOOTING WITH REINFORCING STEEL

CONCRETE FLOOR SLAB WITH REINFORCING STEEL

TERMINATION BAR

8mm VAPOR BARRIER

2in RIGID INSULATION

TAPERED CONCRETE ROOF SLAB WITH REINFORCING STEEL

GLULAM COLUMNS

STEEL STRUCTURAL CONNECTION PIECES

GLULAM BEAMS

HVAC DUCTWORK

AREA OF INQUIRY IN POSITIVE HALL

0’ 1’ 2’ 4’ 6’ 25

CREATIVITY COMMUNITY CENTER

In the heart of Wichita, this site offers a place for youth to feel safe in collaborating with other members of the community, in learning, and even in being able to record their own music. Representing the various groups of people this building is meant to serve, two contrasting forms merge together. A bending, free-form volume reaches and expands to represent the creativity and youth of citizens of Wichita. A solid, supportive element expresses the intelligence and strength of the mentors that have and will continue to help foster the potential of the city and the people within it. Where these two forms overlap creates the open entrance space of the interior. This void space changes shape as it moves vertically through the building and permeates the roof, bringing in light and offering connections between spaces. Stairs along the edge of this free-form volume are exposed through exterior apertures to express the program’s circulation. The lower volume houses a cafe, which extends to the exterior along the street, as well as the office and service spaces. An exterior concert space lives above this volume, and the upper floors allow the resulting sounds to be kept within this space and provide better acoustical qualities. The curvilinear volume houses learning and collaboration spaces with the recording studios on the top level highlighting this program as the epitome of the program and the center of creativity. This community center reaches out and invites people in to come together and be creative within the urban city of Wichita.

SPRING 2022
26
EAST-WEST SECTION PERSPECTIVE PARTI AND CONCEPTUALIZATION 5’ 0’ 10’ 20’ 30’ 27
FIRST FLOOR 5’ 0’ 10’ 20’ 30’ 28
SECOND FLOOR THIRD FLOOR 29
30

ABOUT ME

As an architecture student at Kansas State University, I have learned that my passion for architecture extends beyond the classroom. The design skills, both creative and technical, that I have gained through various classes and other involvements has led me to see a true purpose in designing as having a positive affect on the societies of today. Pushing the bounds of what is creatively conceivable is my goal as a future architect. I am detail-oriented and hard working, and I enjoy experimenting through the design process to uncover new architectural forms that posses both unique personality and simple practicality.

lelliot@ksu.edu

www.linkedin.com/in/laurenelliot

31

Turn static files into dynamic content formats.

Create a flipbook
Issuu converts static files into: digital portfolios, online yearbooks, online catalogs, digital photo albums and more. Sign up and create your flipbook.