2024 Portfolio

Page 1

lelliot@ksu.edu

(402)-686-9686

www.linkedin.com/in/laurenelliot

ARCHITECTURAL PORTFOLIO LAUREN ELLIOT

TABLE OF CONTENTS

NEXUS FIRE STATION BROAD CHANNEL

INNOVATION CAMPUS 2 3

Wamego, Kansas Fall 2021

Professor Jongwan Kwon Bowman Design Competition Jamaica Bay, New York

Spring 2024

Professor Zhan Chen

Partner Thesis Project Proposal

Studio Design Project page 22 page 14 page 4

HART ISLAND COLUMBRARIUM

Hart Island, New York City, New York Fall 2023

Professor Genevieve Baudoin

2
1

Kansas City, Missouri

Spring 2021

MUSEUM OF EMOTIONS

BANK OF THE FUTURE ADDITIONAL EXPERIENCES

Professor Torgeir Norheim

Studio Design Project

Fabrication Exploration, Study Abroad, and Internship Experience page 36 page 30 page 44

Manhattan, Kansas Fall 2022

Professor Cameron Tross

Studio Design Project

4 6 3
5

BROAD CHANNEL INNOVATION CAMPUS

SPRING 2024 4

The proposed Innovation Campus within Jamaica Bay, New York is located on the southern tip of Broad Channel, a community in the central part of the bay. The design ambition, in the vulnerable coastal climate, is to prepare for future flooding conditions due to storm surges and sea level rise while integrating the building and site programs with the natural landscape . Design strategies include utilizing the typical methods of elevating structures with stilts and berms to protect them from flooding, and manipulating these typologies to better fit the site and programmatic needs. By combining the typical strategies of stilts and berms and integrating them with thin plans, terracing, and exterior ramps , this campus becomes protected from flooding while creating a cohesive and engaging user experience .

The buildings on the site are massed based on two elevated paths that align with the grid of Broad Channel and the skyline of Manhattan. These masses are broken to connect spaces on the ground plane and divide program. Each building utilizes the same design strategies as they terrace away from the primary circulation paths, allowing light to better reach them, and creating more exterior spaces. This creates a canyon-like effect where the buildings become extensions of the path and all circulation is exterior. The campus includes two buildings for public education, four for research, and two for residential units. The proposal also upgrades and adds to the recreational facilities currently existing on the site.

5

+ OCCUPIABLE ROOFS

BERMS UP TO BUILDINGS BUILDINGS ON STILTS

THIN PLANS

OVERHANGS CREATING COVERED WALKWAYS

BERMS UP TO BUILDINGS BUILDINGS ON STILTS OVERHANGS COVERED

THIN PLANS FOR DAYLIGHTING

THIN PLANS FOR DAYLIGHTING

DAYLIGHTING AND CROSS VENTILATION

THIN PLANS FOR DAYLIGHTING

TERRACED BUILDINGS FOR GREEN + OCCUPIABLE ROOFS

TERRACING MORE OCCUPIABLE ROOFS AN D ABILITY FOR LIGHT TO REACH THE PATHS

TERRACED BUILDINGS FOR GREEN + OCCUPIABLE ROOFS

TERRACED BUILDINGS FOR GREEN + OCCUPIABLE ROOFS

EXTERIOR RAMPS CONNECTION BETWEEN LEVELS OF BUILDING AND SITE

EXTERIOR RAMPS L-SHAPED BUILDINGS ON PATH

EXTERIOR RAMPS L-SHAPED ON PATH

EXTERIOR RAMPS L-SHAPED BUILDINGS ON PATH

OVERHANGS CREATING COVERED WALKWAYS

OVERHANGS CREATING COVERED WALKWAYS

OVERHANGS CREATING COVERED WALKWAYS

DAYLIGHTING TERRACED
FOR GREEN
EXTERIOR RAMPS
BUILDINGS
STILTS BERMS
DAYLIGHTING TERRACED BUILDINGS FOR GREEN + OCCUPIABLE ROOFS EXTERIOR RAMPS ON PATH ANGLES
COMBINE MANIPULATE AND + + +
DESIGN STRATEGIES 6
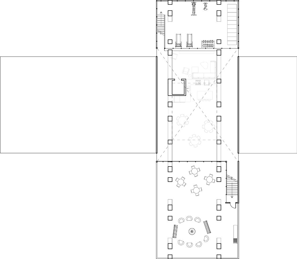
SITE MASSING 7 EDUCATION SECTION PERSPECTIVE 5’ 0’ 10’ 20’ 30’

FRAGMENT MODEL

8
SITE MODEL

BREEZEWAYS OFFICES

9
5’ 0’ 10’ 20’ 30’
CLASSROOMS SERVICES CAFES / WORKSPACES
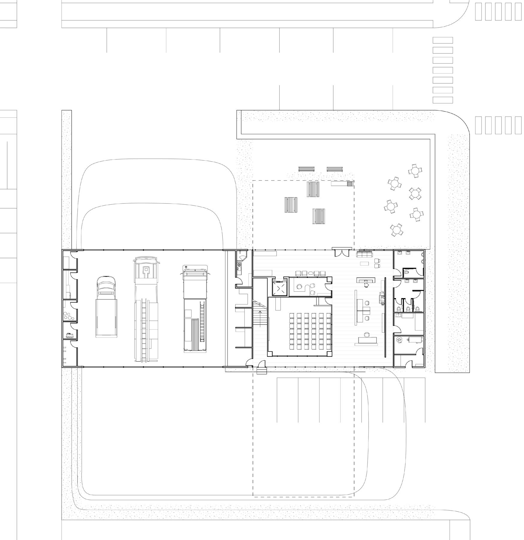
TYPICAL EDUCATION BUILDING FLOOR PLAN
10 SITE
PLAN
11
PERSPECTIVE RENDER
AERIAL

DETAIL AXONOMETRIC

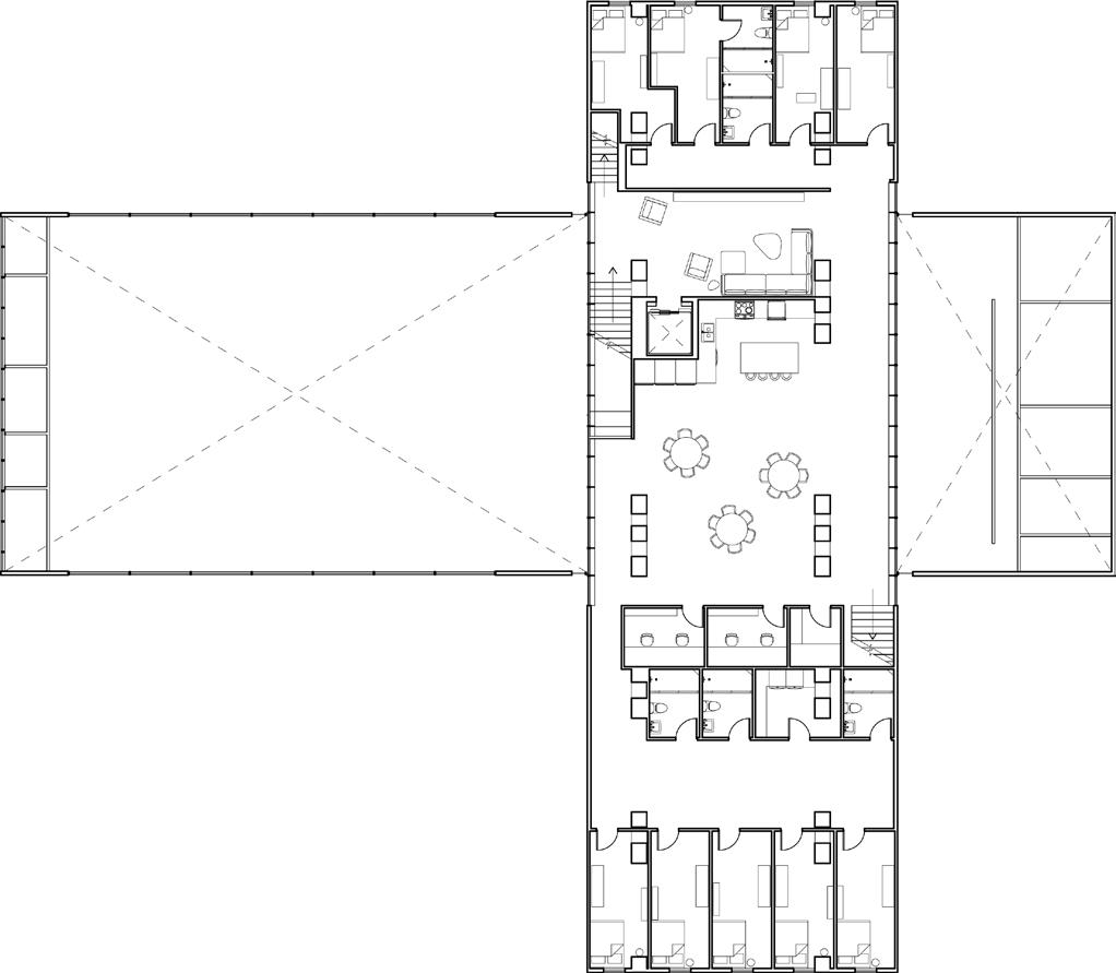
LEVEL 5: STUDIO

LEVEL 4: 2 BED

LEVEL 3: 1 BED

LEVEL 2: 2 BED

12
UNIT PLANS WALL

HOUSING SECTION PERSPECTIVE

13

NEXUS FIRE STATION

FALL 2021 14

The town of Wamego needed a functional fire station that doubles as a place for the community to come together. This fire station is two program blocks interlocking on top of one another . The lower volume consists of the operational spaces for the firefighters to work and be prepared in case of emergency, as well as the public spaces that serve the citizens of Wamego, KS. The upper volume acts as the residential spaces that serve the firefighters during their “off duty hours”. This includes a kitchen, living room, bedrooms, bathrooms, laundry, workout space, and outdoor relaxation space. The central space of this volume is the double-height, semi-private general living space for the firefighters. The place where the two masses intersect are exposed with glass openings to emphasize this connection. These spaces create visual connections between the varying programs of different levels as well as to the outside. A central skylight also emphasizes this central connection, as well.

The upper volume is held up by four large columns that also define the central meeting room and extend to the upper floors. The cantilevers are then supported by a large truss system that occupies the upper volume . This structure is exposed on the exterior facades in the spaces where the two masses interlock. The glass of the lower volume allows the upper volume to appear to be floating above the site . It also creates the feeling of being open to the community. The lower public volume houses the meeting room which can be used by the firefighters for training purposes or for other gatherings for the people of Wamego. There is also outdoor space on the north side of the site that could hold another kind of community gathering. The raising of half the program also creates space for the firetrucks to drive through the apparatus bay on this small site.

15

FIRST FLOOR

THIRD FLOOR

5’ 5 ’ 0’ 0’ 10’ 10’ 20’ 20’ 30’ 30’
SECOND FLOOR
16

NORTH-SOUTH SECTION OBLIQUE

17
5’ 0’ 10’ 20’ 30’
SECTION MODEL EXTERIOR STRUCTURAL MODEL 18

SECTION MODEL INTERIOR

SITE
MODEL
19

PROGRAM ORGANIZATION

CIRCULATION

WOOD CLAD ROOF PLANE WITH CENTRAL SKYLIGHT

DOUBLE CANTILEVER WIDE FLANGE STEEL TRUSS

WOOD CLAD UPPER ENCLOSURE

WIDE FLANGE STEEL COLUMNS

CONCRETE PANEL LOWER ENCLOSURE

CONCRETE FOOTINGS

ASSEMBLY
BUILDING
20
21

FALL 2023

HART ISLAND COLUMBRARIUM

Hart Island, New York has a dark history as a burial ground for over 75 thousand individuals. This project is intended to be relective of that experience as a home for the remains of thousands more . Starting from a series of wall fabrications and iterations, this project exists as a series of wall systems that creates spaces for the living to experience and niches for the ashes of the deceased . Visitors access the site by ferry and come up onto the island from the dock. Also on the dock is a building that acts as a pavilion for information on the island and archives of the burials. The visitor then enters their experience of interacting and engaging with the system of walls . An interval wall defines the end and entrance of these spaces alongside the one shorter and the one longer wall which holds the remains of the deceased. The walls containing these niches consist of wood boxes with removable caps that rest on brackets on steel structural elements allowing the boxes to overlap and be open in between. These spaces are broken up by reflecting pools and terraced seating as the land slopes up from the surrounding water.

Varied across the site are overhead canopies, as well, that help define spaces and provide overhead protection while engaging sunlight. Together, these elements provide the visitor with a sense of place that feels like an engaging journey for them to take while being refelctive and somber in nature . Additionally, this system of walls and interval spaces could be easily expanded in the future if necessary to accomodate more remains.

22
SITE PLAN 23 0’ 10’ 20’ 40’ 60’
WALL ITERATION PROCESS 24
PLAN 25 0’ 10’ 5’ 20’ 30’
26
27
PAVILION ELEVATION 0’ 2’ 4’ 8’ 12’
SOUTHEAST

NICHE WALL ASSEMBLY DETAIL

CANOPY CONNECTION DETAIL

28
SITE SECTION
0’ 0’ 1’ 2’ 4’ 6’ 6” 1’ 2’ 3’ 0’ 2’ 4’ 8’ 12’
29
30
OF THE FUTURE
2021
BANK
SPRING

While banks may seem increasingly less popular in today’s society, this project allows the building to serve both as a functional bank and a public cafe space . Located in Kansas City, Missouri, at the intersection of two semi-urban streets, this building has a clear representation of the design ideas happening within from the exterior street view. A curved glass enclosure system around the entire building exposes the structure of the building . Curved capital columns hold up the large waffle slab that covers the entirety of the interior spaces as well as the drive through, for users who wish to simply do their banking from their car. Varied skylights permeate the skylight to allow additional light and connection to the exterior.

The upper offices and spaces of more private program appear to be floating as they are supported only by the columns on the interior. Partition walls on the south of the interior also define service program in this exposed building for the more private spaces. Clear vehicular circulation is defined by landscape and exterior walls also serve to separate man from machines on this site. Gaps appear between the roof and glas curtain walls as well as between the glass curtain walls and the ground to highlight and expose the different systems at work Orthogonal air lock doors emphasize the entrances along the glass as well as concrete walls following the movement of the glass enclosure and extending it into the site.

Ample seating on the interior and exterior allow for this space to act as more than a place to do banking. The unique shape and transparency of the site allows this building to be a destination of a community rather than simply an errand

5’ 0’ 10’ 20’ 30’ 31
22

EAST ELEVATION

EAST-WEST SECTION

NORTH-SOUTH SECTION

NORTH ELEVATION
5’ 0’ 10’ 20’ 30’ 33
FIRST FLOOR PLAN SECOND FLOOR PLAN 5’ 0’ 10’ 20’ 30’ 34
VARYING ENCLOSURE SYSTEMS 35
36

In this museum, the architecture becomes the art . Located in Manhattan, Kansas, at the intersection of the highway that leads visitors into town, this site is comprised of three seperate buidlings, a positive emotion hall, a negative emotion hall, and the main lobby building for the museum . The formation and placement of these seperate spaces onto the site is intended to bring people into it in order to experience this large site as a whole and encourage engagement from the community. These designated paths of engagement are defined by the hardscape versus softscape of the site and the reflecting pools.

The concrete Y-columns of the main building, inspired by Tadao Ando’s museum in Fort Worth, Texas, hold up a thin concrete cantilevering roof. The curtain wall facade of this main building is also broken up by a wood panel spandrel system that connects the three buildings together of the site. This main building houses a cafe, office spaces, service program, the museum lobby, and transitional spaces to prepare the visitor for the museum experience of different emotions, as well as an additional gallery space and exterior seating upstairs. The clear progression of spaces prepares the visitor from the upstairs transitional space to descending down a long bridge into the first hall, the negative hall.

This building is intended to express harshness, stress, and disorientation . Cast-in-place concrete loadbearing walls are angular and random, and varied small skylights cast down harsh light from above. The visitor is then lead outside down a path defined by reflecting pools to the second hall, the positive hall. This space is intended to feel organic, enveloping, and flowing . A curving wood system of horizontal panels defines the space, with curved partion walls to allow for art installations. The gaps in the horizontal wood panels and the clerestories above bring soft natural light into this space, giving a more positive emotion for the visitors. The user is than released out onto the site, an open grassy area that can be utilized as a sculpture gallery or gathering space for the community.

37
38

BASE BUILDING

BEND TO ENGAGE SITE

CARVE FOR ENTRY CIRCULATION

BREAK OFF OF ANGLED FORM TO CREATE OPPOSITE HALLS

TRANSVERSE SECTION 0’ 5’ 10’ 20’ 30’ 39
FIRST FLOOR PLAN 0’ 5’ 10’ 20’ 30’ 40

WOOD PANELS

SPANDREL PANELS

STEEL CONNECTION BRACKETS

ALUMINUM MULLIONS

RECESSED LIGHTING

WOOD PANEL DROP CEILING CURVED WOOD PANEL PARTITION WALLS HORIZONTAL WOOD PANELS

REFLECTING POOL TILES

SEALANT MEMBRANE

6in COMPACT GRAVEL

EXPANSION JOINT

COMPACT SOIL

8mm VAPOR BARRIER

DRAINAGE PIPE

CANT STRIP

2in RIGID INSULATION

CONCRETE FOOTING WITH REINFORCING STEEL

CONCRETE FLOOR SLAB WITH REINFORCING STEEL

TERMINATION BAR

8mm VAPOR BARRIER

2in RIGID INSULATION

TAPERED CONCRETE ROOF SLAB WITH REINFORCING STEEL

GLULAM COLUMNS

STEEL STRUCTURAL CONNECTION PIECES

GLULAM BEAMS HVAC DUCTWORK

AREA OF INQUIRY IN POSITIVE HALL

0’ 1’ 2’ 4’ 6’ 41

SITE ENGAGEMENT

42
43
WEST ELEVATION

METAL SHEET PLASMA CUTTING AND BENDING

THIN METAL ROD WELDING AND BENDING

44

FALL 2023

FABRICATION EXPERIMENTATION

WOOD CNC AND SANDING
45
PLASTER CAST MOLDING

SPRING 2023

ITALIAN STUDY ABROAD PROGRAM

I had the amazing opportunity of being able to study abroad in Orvieto, Italy in my fourth year as an architecture student. Through this experience I was able to learn about different cultures and cities, as well, as art, architecture, and history, and how these are all connected. Through traveling and being emersed in other ways of life I was able to really broaden my knowledge of archutecture and urban planning. This experience was also an opportunity to enhance my hand-drawing skills and be able to portray architecture and design without the use of computer programming. The things I have learned, people I met, and the influential architecture and settings I was able to experience first hand while living in Italy will remain relevant in my thoughts and designs going forward in my architecture career.

46

SUMMER 2023

INTERNSHIP EXPERIENCE

The summer after my fourth year at Kansas State I had an oppoortunity to intern at BCDM Architects in Omaha, Nebraska. In this summer, I learned so much about architecture with a real world perspective. I was able to attend many site visits throughout various parts of the design project. I also got to sit in on, and be a part of, different kinds of meetings at different phases of design with clients, contractors, consultants, and other members of the firm. I was on a variety of different projects throughout those few months with a wide range of responsibilties. From costestimating, creating and editting revit models and drawings, photographing and analyzing sites and projects, create presentations and documents on projects, and much more. I am grateful to have had this first hand learning and working experience, and it made me eager to do it on a more permenant and serious basis in my future after graduation.

47

ABOUT ME

As an architecture student at Kansas State University, I have learned that my passion for architecture extends beyond the classroom. The design skills, both creative and technical, that I have gained through various classes and other involvements has led me to see a true purpose in designing as having a positive affect on the societies of today. Pushing the bounds of what is creatively conceivable is my goal as a future architect. I am detail-oriented and hard working, and I enjoy experimenting through the design process to uncover new architectural forms that posses both unique personality and simple practicality.

48
(402)-686-9686
CONTACT
lelliot@ksu.edu
www.linkedin.com/in/laurenelliot

Turn static files into dynamic content formats.

Create a flipbook
Issuu converts static files into: digital portfolios, online yearbooks, online catalogs, digital photo albums and more. Sign up and create your flipbook.