Portfolio Spring 2023

Page 1

Arch 2552

Spring 2023

Laura Pastor
House of Free Feeling

House of Free Feeling

Project Objective:

To create a single family residence that embodies the chose music in plan, section, and elevation

Project Description:

Architecture has been termed “frozen music” due to the parallel art of harmonic and rhythmic order. Music and architecture draw different expressions yet are bonded by the dynamics of rhythm, texture, layering, proportion and harmony. The creation of both architecture and music evoke holistic emotion and bond the end user to the composition.

Project Requirements:

The residence will not exceed 3,000 sq.ft. and include a recording studio and two large spaces for entertaining. Instrument

Study Models (1/16”=1’-0”)

Final Model (1/8”=1’-0”)

Final Model (1/8”=1’-0”)
Site Plan

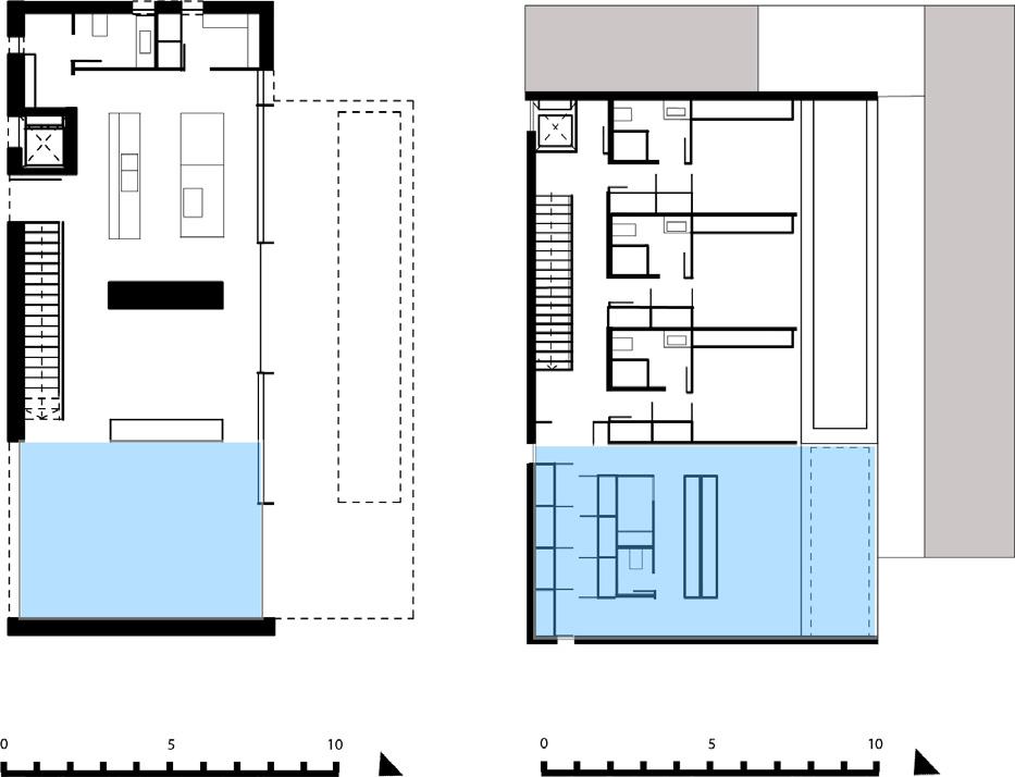
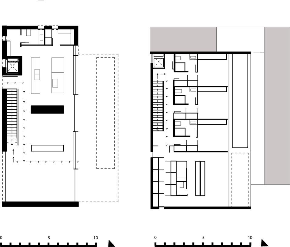
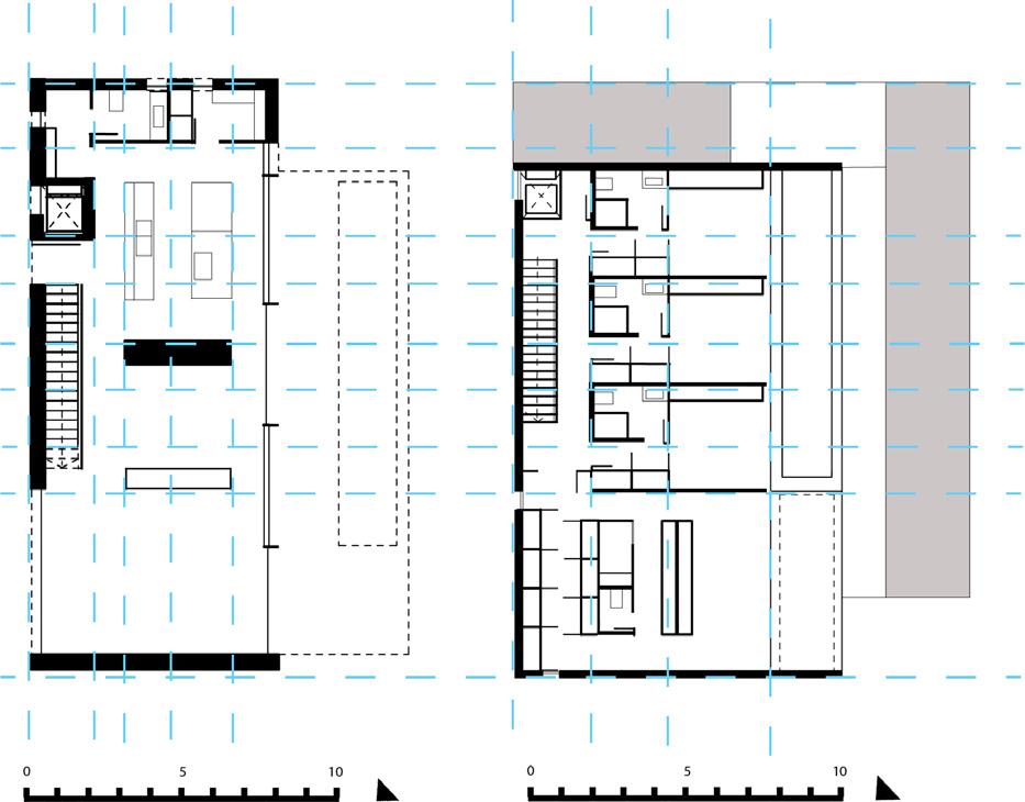
First and second floor plan

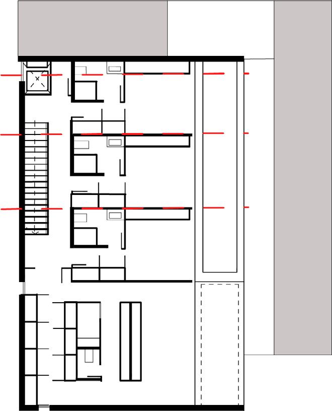
Sections
Historical Precedent
Historical Precedent Olso House Ramon Esteve 2018 Analysis - Diagrams Parti Entry Private v.s Public Symmetry Private Public
Circulation Proportion Grid Hierarchy Analysis - Diagrams
Final 3D Model

Cubism Reflection

Project I: Cubism Reflection

Project Objective:

To create a art gallery and separate studio with focus on the exhibition of the selected cubist painting.

Project Description:

On the given site, you will create a figure ground study to develop 3 fields that represent a primary, secondary and tertiary grid on the landscape. The 3 fields should have a strong reflection of the cubist painting. This mapping will establish the given requirements and reinforce any existing conditions. All site requirements should define the space with the help of edge conditions, landscape elevation changes, the Fibonacci sequence, and the defined relationship from the cubist painting to the site.

Project Requirements:

Site requirements include: courtyard, sculpture garden, sculpture wall, promenade, pavilion and plaza. The required site elements integrate the gallery and studio to the site.

Site Models (1/16”=1’-0”)

Facade Study Models (1/8”=1’-0”) Final Model (1/8”=1’-0”) Final Model (1/8”=1’-0”) Section Model (1/4”=1’-0”) Painting + Collage

Cubism Analysis

Grid
Figure Ground
Site Plan + Floor Plan

Elevations - North and South

Elevations - East and West

Sections
Historical Precedent
Historical Precedent Rudolph Schindler Lovell Beach House 1926 Analysis - Diagrams Parti Entry Proportion Symmetry
Structure
Grid
Symmetry & Balance
Hierarchy Analysis - Diagrams

Final Model (1/16”=1’-0”)

Sketches

Turn static files into dynamic content formats.

Create a flipbook
Issuu converts static files into: digital portfolios, online yearbooks, online catalogs, digital photo albums and more. Sign up and create your flipbook.
Portfolio Spring 2023 by Laura Pastor - Issuu