Laura Bockwoldt Portfolio

Page 1

Laura Bockwoldt Architecture Portfolio

Green House

Heart of Stone

Defying Gravity

1-3 8-11
4-7

Green House

Vertical Light Apartment Shift in Structure Apartment Shift Super-Structure
NOHO, New York City
Section A-A Community Space 1 Community Space 2 Community Space 3 Community Space 4
2
Roof Top

Studio

One Bedroom

Ground Floor

Two Bedroom

One Bedroom

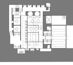
The intention of this project was to create an affordable, mid-rise apartment building in NOHO, New York City. It was important to me to create spaces where both residents and guests to the building can interact with each other. This led to the creation of 5 different community spaces littered sectionally throughout the building, all connected by an interior vertcal garden. The step back of the apartments allowed for more overhead sunlight to penetrate into the lower-level spaces.

Something that I learned was a better understanding of how people interact with each other, and how to better create experiences to facilitate those interactions. Also, how to design spaces that can act as intermediate spaces between the busy city, and a relaxing living space. +

4
Section A-A

Theatre View

Heart of Stone

Topeka Cultrual Center and Consulate

I learned throughout this project how to create multiple separate circulation series, that can intertwine within the same spaces. This was very difficult due to the necessity to keep the governmental areas separate from the public areas. This led me to think more about how people go about their day to day activities, both at work, and at places like museums which existed within the cultural center. Having so many different program types created a lot of scenarios within the circulation pathes that needed to be thought about.

My project concept consists of a combination of interlacing culture throughout the building and using the building as a form of sanctuary. The interlacing circulation is located within the main gathering spaces that contribute the most to the spread of culture, the theatre, library, and exterior rooftop garden. All these spaces allow for people of different cultures to interact together and learn new things or form new ideas. The circulation between these spaces also has viewpoints looking into both the cultural experience spaces as well as the cultural support spaces like the artists’ studio.

Studio View

South Elevation

Aerial View

West Elevation

6
B-B Main Floor Plan
Section

Site Analysis Model

Defying Gravity

Alma, KS Public Library

This project started by creating a diagrammatic model of circulation through and around the site. From forms that existed within this model, I created a basis for the section and came up with the idea to have the “poche” spaces that wrap the main spaces become integral to the design of the library. These “poche” spaces pushed and pulled at the building walls to create service spaces within the public realm.

Diagramming became and important way to integrate light and circulation into the sectional qualities pulled from the site model. The separation of the library from the theatre helped to create experiential circulation both within the public realm and private realm. One of the goals of this project was to create connection between the street in front and the park behind, which was completed by repeating that experential circulation throughout the building. This project started my understanding of how people interact with each other and also with a building. The idea of how light interacts with different types of program allowed me to start thinking about how to categorize program in ways that allow for more interesting interactions between people.

Section B-B First Floor Plan Circulation and Light
Library Theatre Operational Extraction Enclosure + Light Shop Stage Auditorium Service Dock Wings Crossover Dimmer Room Dressing Room Storage Check Cleaning Bathroom Program + Light Circulation + Structure Shop Stage Auditorium Service Dock Wings Crossover Dimmer Room Dressing Room Storage Utilities Check Out Cleaning Stairs Elevator Bathroom Gaming Technology Center Study Spaces Lounge Conference and Business Center Staff Lounge Support Technology Support Service Desk and Book Drop 10
Circulation + Structure Program + Site Shop Stage Auditorium Service Dock Wings Crossover Dimmer Room Dressing Room Storage Utilities Check Out Cleaning Stairs Elevator Bathroom Gaming Technology Center Study Spaces Lounge Conference and Business Center Staff Lounge Support Technology Support Service Desk and Book Drop P og am C cul tion Technology and Person Suppo Spaces Library Theatre Operational Extraction Enclosure + Light Shop Stage Auditorium Service Dock Wings Crossover Dimmer Room Dressing Room Storage Utilities Check Out Cleaning Stairs Elevator Bathroom Gaming Technology Center Study Spaces Lounge Conference and Business Center Staff Lounge Technology Support Service and Program + Light
8
Section A-A

Turn static files into dynamic content formats.

Create a flipbook
Issuu converts static files into: digital portfolios, online yearbooks, online catalogs, digital photo albums and more. Sign up and create your flipbook.