Work progress 2016-2018

Page 1

A R Q U I T E T U R A E U R B A N I S M O P A R A A S U S T E N T A B I L I D A D E
STO JOSÉ MARCOLINO BRASILEIRO
RUA
BAIRRO JARDIM GONZAGA, 454
JUAZEIRO DO NORTE - CE larissaurb@gmail.com
(85) 9 9790 3434 larissagalvaoarq

ARQUITETURA E URBANISMO SUSTENTÁVEL

O projeto ideal não existe, a cada projeto existe a oportunidade de realizar uma aproximação.

Paulo Mendes da Rocha

SERVIÇOS

PROJETO URBANISTICO SUSTENTÁVEL

A complexidade de um projeto urbanístico se encontra nas pequenas decisões. O uso do piso intertravado para uma melhor manutenção da temperatura nas vias e no entorno; saneamento no nível do lote ou da quadra, diminuindo a exigência sobre a infraestrutura municipal; iluminação pública autônoma, selecionando postes com placas fotovoltaicas e revegetação com paisagismo produtivo são alguns exemplos de um como pensamos um planejamento sustentável.

PROJETO DE PAISAGISMO PRODUTIVO

Os grandes centros urbanos produzem quase nenhum alimento, e são os maiores consumidores mundiais, causando um desequilíbrio e uma consequente necessidade de deslocamentos constantes. A adoção do paisagismo produtivo dentro e no entorno das grandes cidades é uma forma sustentável de produção agrícola, uma vez que não exige grandes deslocamentos além melhora consideravelmente a qualidade de vida da população, contribuindo para uma maior qualidade do ambiente urbano.

PROJETO ARQUITETÔNICO SUSTENTÁVEL

Trabalhamos com um desenvolvimento de projetos participativos que trazem a sustentabilidade da forma que melhor se adequar as necessidades e sonhos dos clientes. A qualificação da mão de obra local, com a utilização de materiais construtivos ecológicos, técnicas de reciclagem de águas e saneamento verde e a autonomia energética proporcionam um projeto com baixo impacto ambiental em todas as etapas.

SERVIÇOS

PROJETO ARQUITETURA DE INTERIORES SUSTENTÁVEL

O uso de materiais de rápida execução e que não geram residuos como o dry wall e uma compatibilização de projetos eficiente resultam em uma obra mais sustentável, limpa e economica.

GERENCIAMENTO DE OBRAS

O gerenciamento especializado da obra garante ao cliente uma execução do projeto sem supresas e com um cronograma planejado e organizado pelo escritório.

EQUIPE

ELIS RIGONI

Consultora de Bioconstrução

OUTROS COLABORADORES

Renan Teixeira (out 2017 - jan 2018)

LARISSA GALVÃO

Arquiteta e Urbanista, especialista em Docência do Ensino Superior, estudante do curso de especialização e m Reabilitação Ambiental Sustentável Arquitetônica e Urbanística pela UnB (REABILITA 8).

Participa de encontros sobre conforto no ambiente construído (ENCAC) desde 2001; orienta alunos em atividades de extensão servindo à população do Cariri através de projetos urbanísticos e arquitetônicos que sirvam seu propósito em harmonia com a natureza. Iniciou sua vivência com a arquitetura como auxiliar de renomados arquitetos, desenvolvendo desenhos técnicos, orçamentos e acompanhamento de obras de arquitetura de interiores em São Paulo.

Em 2014 mudou-se para São Carlos, interior de São Paulo, onde iniciou sua atuação profissional exclusivamente voltada para a sustentabilidade.

Cooperou rapidamente como lobista da Associação Veracidade - A Casa Ecológica na Cidade - e iniciou projetos de arquitetura e de reforma para adequação da construção sustentável.

Hoje tem um escritório de projetos arquitetônicos e gerenciamento de obras, totalmente voltado para a construção sustentável na região do Cariri Cearense empregando métodos de construções com terra, tratamento verde de esgotos dentre outras soluções.

Artista visual formada pela UDESC/SC, sente a urgência em recriar paisagens sustentáveis. Especialista em Permacultura pela UFCA/CE e técnica em Agroecologia pelo SERTA /PE; trabalhou na construção CidadeEscola Ayni em Guaporé/RS em 2016; participou de quatro PDCs e mobilizadora dos Quintais de Floripa, coletivo de agricultura urbana, entre 2015/16. Atualmente professora na URCA/CE, desenvolvendo projetos pelo sertão do Brasil e facilitando cursos e oficinas com o Instituto de Permacultura Ná’Lu’Um na região.

CIÇÓ DE BOZÓ

Consultor de Bioconstrução

Autodidata e artesão em serviços de carpintaria, construção civil e instalação elétrica. Graduado em História – Licenciatura pela Universidade Regional do Cariri em 2005. Hoje desenvolve projetos voltados para a sustentabilidade, permacultura e acompanhamento de entidades comunitárias que visam a convivência com o semiárido.

Evyla Pinheiro (fev 2018 - jun 2018)

Paloma Cavalcante (fev 2018 - jun 2018)

Lohanne Figueiredo (mai 2018 - jun 2018)

Vitoria Galdino (mai 2018 - jun 2018)

MATEUS S. PINHEIRO B.

Arquitetura e Urbanismo FJN - 9° semestre

Apresentou ambientes durante a Mostra Cariri 2015. Ministrou minicursos de maquetes eletronicas na FJN. Participa de eventos de Arquitetura e Urbanismo no nordeste do Brasil desde 2017. Trabalha com o escritório Larissa Galvão Arquitetos Associados, que presta serviços de arquitetura e urbanismo voltados para a sustentabilidade na região do Cariri Cearense, onde desenvolve maquetes eletronicas, desenhos técnicos, orçamento e acompanhamento de obras de arquitetura.

CICERO FELIPE ALVES

Arquitetura e Urbanismo FJN - 10° semestre

Trabalhou na loja especializada em revestimentos Porto Belo, onde atuava como projetista; fez parte do escritório do arquiteto Bruno Camarotti durante um ano, onde desenvolvia maquetes eletronicas, desenhos técnicos e acompanhamento de obras de arquitetura. Hoje trabalha com o escritório Larissa Galvão Arquitetos Associados, que presta serviços de arquitetura e urbanismo voltados para a sustentabilidade na região do Cariri Cearense, onde desenvolve maquetes eletronicas, desenhos técnicos, orçamento e acompanhamento de obras de arquitetura.

LEVI XAVIER

Engenharia Civil FAP - 7° semestre

Curso na área de engenharia civil, construção, especialização em tecnicas contruitivas, sustentabilidade e computação. Trabalha com o escritório Larissa Galvão Arquitetos Associados, que presta serviços de arquitetura e urbanismo voltados para a sustentabilidade na região do Cariri Cearense, onde desenvolve orçamento e acompanhamento de obras de arquitetura.

HANNA CECILIA F. S.

Arquitetura e Urbanismo FJN - 10° semestre

Participa de eventos de Arquitetura e Urbanismo no nordeste do Brasil desde 2014 e de encontros e debates sobre a Região Metropolitana do Cariri e seus dilemas urbanos desde 2017; apresentou ambientes durante a Mostra Cariri 2015 e sempre busca novas oportunidades de desenvolver estudos a cerca de sustentabilidade e mobilidade urbana. Participou de concursos de arquitetura com foco em representação gráfica e artística, desenvolvimento regional, eficiência energética e sustentabilidade: Observatório (2017), organizado pela VBO Valorização Gráfica; Bienal Jose Aroztegui (2017), organizado pelo Grupo de Conforto e Eficiência Energética da ANTAC e Race to Zero (2017-18), organizado pelo Departamento de Energia Renovável dos Estados Unidos. Iniciou sua vivência na arquitetura no escritório Lins Arquitetos Associados e trabalhou brevemente com a arquiteta Ailana Mouta, desenvolvendo desenhos técnicos e acompanhamento de obras de arquitetura na região do Cariri Cearense. Atualmente trabalha com o escritório Lins Arquitetos Associados, renomado escritório de arquitetura da região e com o escritório Larissa Galvão Arquitetos Associados, que presta serviços de arquitetura e urbanismo voltados para a sustentabilidade na região do Cariri Cearense.

JOSÉ GUSTAVO A. DA SILVA Bacharelado em Ciências Contábeis FJN - 4° semestre

Trabalhou no financeiro de empresa de material de construção; fez parte do NAF ( núcleo de apoio contábil e fiscal) programa desenvolvido pela a receita federal do Brasil em parceria com a FJN dando apoio a empresários do MEI (micro empreendedor individual); apresentou mini curso sobre Educação Financeira: gestão de finanças pessoais, na semana de iniciação científica da FJN, faz parte do núcleo de gestão do CEI ( centro de empreendedorismo e inovação) o pioneiro do Cariri. Atualmente trabalha com o escritório Larissa Galvão Arquitetos Associados.

COLEGIO VITORINO

Crato - CE

Área: 5 327,80m²

junho, 2017

2017.2

CASA JHP

Crato - CE

Área: 380,00m²

junho, 2017

CASA MB

Barbalha - CE

Área: 154,00m²

outubro, 2017

CASA MG

Barbalha - CE

Área: 176,00m²

outubro, 2017

DECK RG

Crato - CE

Área: 218,30m²

dezembro, 2017

CLINICA WV

Juazeiro do Norte - CE

Área: 120,00m²

fevereiro, 2018

2018.1

CASA MW

Crato - CE

Área: 630,00m²

março, 2018

Roda Semear

Barbalha - CE

Área: 706,94m²

abril, 2018

Fazenda Zena

Barbalha - CE

Área: 88 091,00m²

abril, 2018

Vila Visgueiro

Crato - CE

Área: 63 078,00m²

abril, 2018

COLEGIO VITORINO

CRATO, CEARÁ, B R A S I L, 2017

Área Construída = 5 327,80 m²

PROJETO ENTREGUE

OBRA NÃO INICIADA

Mais de 5.000 m² projetados para a expansão do Colégio Vitorino. Todo o complexo foi pensado para expressar a pedagogia e o cuidado que a escola dedica a seus alunos. Materiais que não emitem compostos voláteis foram empregados nas estruturas mistas de concreto e tijolo de solo cimento, todas as áreas de playground implantadas com brinquedos de madeira, executados com material e mão de obra local. O projeto da escola contempla reciclagem de águas e o tratamento local das águas negras, geração de energia através de placas fotovoltaicas oferecendo mais autonomia para a escola.

Captação de água da chuva
PLANTA PAVIMENTO TERREO PLANTA SEGUNDO PAVIMENTO
taicas
Placas fotovol01 Sala de Dança 02 Vestiários 03 Preparador Físico 04 Equipamentos Esp. 05 Cantina 06 Ambulatório
Telhas termoacústicas Hortas Biodigestortratamento de residuos 07 DML 08 Tesouraria 09 Refeitório 10 Salas do Infantil 11 Banheiros 12 Circ. Verticais Tijolo solo cimento 13 Coord. Infantil 14 Coord. Fundamen. I 15 Coord. Fundamen. II 16 Psicologia 17 Direção Geral 18 Sala de Informática 19 Biblioteca 20 Sala de Artes 21 Refeitório Infant. 22 Biblioteca Infant. 23 Soninho 24 Pátio Infantil

A casa é setorizada por uma grande parede de pedra onde paredes de taipa de pilão autoportantes partem em sentido perpendicular ao longo da extensão de pedra formando a malha das divisões dos ambientes. A função é em pedra e recebeu um radier espesso para que suportasse o peso das paredes equilibrando a construção ao solo evitando possíveis patologias na taipa. Uma cinta de pedra acompanha o perímetro externo evitando o excesso de imidade nas fundações e garantindo o escoamento das águas pluviais para o local correto: uma cisterna que acumula as águas da chuva mantém hortas e pomares. O sanemeante foi projetado para não lançar nenhum resíduo ao meio público.

CRATO, CEARÁ, B R A S I L, 2017

Área Construída = 380,00 m² PROJETO ENTREGUE OBRA EM ANDAMENTO

Tai
CASA JHP
PLANTA PAVIMENTO TERREO Captação e armazenamento de agua Placas fotovoltaicas Telhas termoacústicas BET de bananeiras Taipa de Pilão Cinta de contenção de umidade com pedras
PLANTA SEGUNDO PAVIMENTO 01 Hall de entrada 02 Garagem 03 Estar 04 Galeria 05 Cozinha 06 Dormitório Hóspede 07 Wc Reversível 08 Varanda Social 09 Chuveirão 10 Despensa 11 Área de serviço 12 Mezanino/ Escritório 13 Dormitório Filho 14 Wc Filho 15 Dormitório Casal 16 Closet Casal 17 Wc Casal 18 Varanda
Horta Biodigestortratamento de residuos

CASA MB

BARBALHA, CEARÁ, B R A S I L, 2017

Área Construída = 154,00 m²

PROJETO ENTREGUE

OBRA NÃO INICIADA

Casa térrea prevendo o uso de materiais que contribuam com o conforto térmico interno, como pedra e tijolos de solocimento. Apresenta aberturas na coberta, para captação e exaustão de ar, promovenod resfriamento interno. A edificação conta com diferenciais como um pátio interno criando uma área de lazer central ligando os setores íntimo, social e de serviço, além do benefício térmico e apelo estético.

PLANTA PAVIMENTO TERREO

Reaproveitamento de águas Placas fotovoltaicas Telhas termoacústicas Pedra Bruta Talhada Biodigestortratamento de residuos Tijolo solo cimento
01 Garagem 02 Banheiro social 03 Estar 04 Escritório 05 Jantar 06 Cozinha 07 Área de serviço 08 Banheiro 09 Jardim Interno 10 Banheiro 11 Quarto 12 Quarto

A casa foi distribuida em dois pavimentos, com um jardim de inverno integra os pavimentos e as área internas e externas. Uma parede de pedra bruta unifica os pavimentos enquato as demais são em tijolo solo cimento. Para a cobeta foi ultilizada telha termoacústica e na garagem pergolado em aço e madeira.

BARBALHA, CEARÁ, B R A S I L, 2017 Área Construída = 176,00 m² PROJETO ENTREGUE OBRA NÃO INICIADA
CASA MG
Captação e armazenamento de agua Placas fotovoltaicas Telhas termoacústicas Pedra Bruta Talhada Biodigestortratamento de residuos PLANTA PAVIMENTO TERREO PLANTA SEGUNDO PAVIMENTO 01 Garagem 02 Estar 03 jardim interno 04 Banheiro social 05 Cozinha 06 Jantar 07 Área de lazer 08 Área de serviço 09 Banheiro 10 Dormitório 01 11 Dormitório 02 12 Wc Casal 13 Dormitório Casal

DECK RG

CRATO, CEARÁ, B R A S I L, 2017

Área Construída = 154,00 m²

PROJETO ENTREGUE

OBRA EM ANDAMENTO

Área de lazer projetada para uma familía que prioriza o convívio com a natureza e ama celebrar uns com os outros. A mistura de materiais locais, como pedra e madeira, mimetizam o ambiente com a natureza que o cerca, proporcionando uma experiencia unica unindo rusticidade e conforto. O programa de necessidades conta com área gourmet, piscina, campo de futebol, banheiros, deposito e um palco para pequenos shows. Tudo foi pensado a partir do deck existente e acompanhando as sinuosas e íngremes curvas de niveis.

PLANTA IMPLANTAÇÃO

01 Piscina 02 Comtemplário 03 Área Gourmet 04 Banheiro Social

O desafio do projeto da clínica Wiviane Campos foi o de criar uma fachada que se destacasse do fechamento de vidro dos demais pontos do shopping além de proteger a recepção da forte incidência solar já que o acesso é voltado para o sol forte da tarde. Nos interiores prevaleceu os tons de nude e o amadeirado, que são lavados por iluminação indireta embutida nos forros para maior conforto do cliente proporcionado uma experiência de relaxamento durante o tratamento

JUAZEIRO DO NORTE, CEARÁ, B R A S I L, 2017

Área Construída = 120,00 m² PROJETO ENTREGUE

Tai
CLINICA WC
OBRA FINALIZADA
01. Recepção 02. Sala 01 03. Sala 02 04. Sala 03 05. Sala 04 06. Serviço 07. Circulação
PLANTA BAIXA

CASA MW

CRATO, CEARÁ, B R A S I L, 2017

Área Construída = 630,00 m²

PROJETO ENTREGUE

OBRA NÃO INICIADA

Uma casa de final de semana para receber amigos e ser a futura residênci da família. Um pavilhão abriga a área íntima e outro a área dos hóspedes, ambos são conectados pelo pavilhão social onde estão as áreas de serviço, social e de lazer. A casa é suspensa e possui um extenso lago acompanhando todo o perímetro do alicerce. Foram utilizadas pedras locais, aço nas estruturas e telhas termoacústicas acompanhadas de placas fotovoltaicas. Paredes de vedação feitas com taipa de pilão, biodigestores para tratar águas cinzas e uma cisterna para armazenar águas pluviais. No paisagismo flores, hortas, pomar e mata nativa compõem harmoniosamente a área externa que é circundada por uma pista de corrida.

Pedra
Talhada Hortas Biodigestortratamento de residuos 01 Garagem 02 Hall 03 Acesso Social 04 Circulação 05 Quarto Hóspede 06 Banheiro 07 Espaço Gourmet 08 Piscina de Pedra 09 Deck de Madeira 10 Cozinha 11 Sala esta/jantar 12 Área de Serviços 13 Lavabo 14 Despensa 15 Quarto de Serviço 16 Circulação envidraçada 17 Quanto Filho 01 18 Quanto Filho 02 19 Escritório 20 Quarto Casal 21 Varanda Casal 23 Área Intime 24 Closet Casal PLANTA BAIXA
Reuso de águ Placas fotovoltaicas Telhas termoacústicas BET de bananeiras Taipa
de Pilão
Bruta
JUAZEIRO DO NORTE, CEARÁ, B R A S I L, 2017 Área Construída = 706,94 m² PROJETO ENTREGUE OBRA NÃO INICIADA
de
de
Biodigestortratamento de residuos
BAIXA 01 Espaço Roda 02 Suporte a Roda 03 Apoio da Oficina 04 Oficina 05 Restaurante Empório 06 Cozinha 07 Serviço 08 Lavabo 09 Recepção 10 Banheiro 11 Banheiro PCD 12 Chuveirão 13 Roda de Gestantes 14 Salas de Atendimento 15 Lavabo 16 Sala de Dança 17 Sala de Yoga 18 Sala 01 19 Sala 02 20 Sala 03 21 Reservatório 22 Solário
RODA SEMEAR
Bamboo Captação e armazenamento
agua Placas
fotovoltaicas Telhas termoacústicas
Taipa
Pilão Horta
PLANTA

FAZENDA ZENA

CRATO, CEARÁ, B R A S I L, 2017 Área Construída = 88 091,00 m² PROJETO ENTREGUE OBRA NÃO EXECUTADA Captação de água da chuva Placas fotovoltaicas Telhas termoacústicas Hortas Biodigestortratamento de residuos Tijolo solo cimento 01 Varanda 02 Serviço 03 Cozinha 04 Circulação 05 Estar 06 Circulação 07 Varanda 08 Quarto 09 Banheiro Social 10 Banheiro Quarto 11 Quarto 01 Varanda 02 Sala Cláudia 03 Recepção e Pesagem 04 Armazenagem 01 05 Armazenagem 02 06 Lavagem 07 Suporte á Horta 08 Produção de Queijo 09 Cozinha Variados 10 Salas de Reunião 11 Lavabo 12 Hospedaria 13 Banheiro PLANTA CASA DO ZÉ ARMAZÉM
Pedra Bruta Talhada
CRATO, CEARÁ, B R A S I L, 2017 Área Construída = 63 078,00 m² PROJETO ENTREGUE OBRA EM ANDAMENTO
VILA VISGUEIRO
Captação e armazenamento de agua Placas fotovoltaicas Telhas termoacústicas BET de bananeiras Pedra Bruta Talhada
PAISAGISMO PRODUTIVO DAS LEVAS
Horta Biodigestortratamento de residuos
PLANTA IMPLANTAÇÃO DAS LEVAS

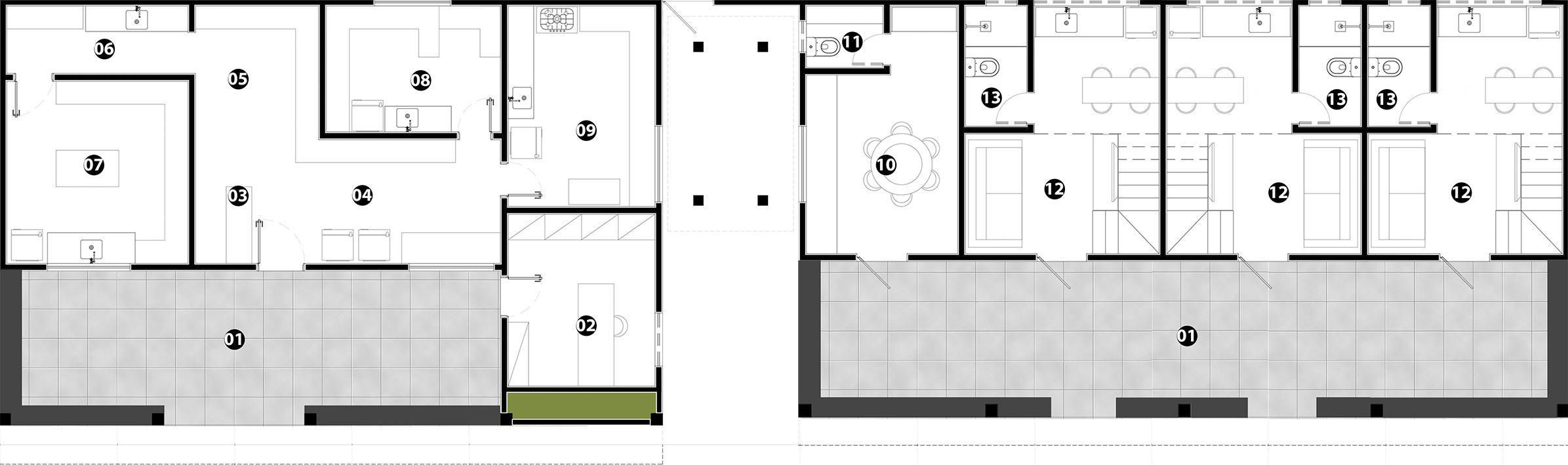
SEDE DO ESCRITÓRIO

JUAZEIRO DO NORTE, CEARÁ,
S I L, 2017 PLANTA DE LAYOUT 01 Acesso Carros 02 Acesso Pedestre 03 Lounge 04 Sala de Imagem 05 Sala Executivo 06 Sala de Reuniões 07 Circulação 08 Reprografia/Arquivo 09 Sala de Administração / Contabilidade 10 Banheiro Social 11 Sala Gerenciamento de Obras 12 Banheiro 13 Deposito 14 Banheiro de Serviço 15 Cozinha 16 Copa 17 Despensa 18 Jantar 19 Espaço Geodésica 20 Horta 21 Aquaponia 22 Galinheiro Movel 23 Área de Compostagem 24 Área de Convivencia 25 Jardim 26 Churrasqueira
B R A
VILA VISGUEIRO CRATO, CEARÁ, B R A S I L, 2017 Área Construída = 63 078,00 m² PROJETO ENTREGUE OBRA EM ANDAMENTO PLANTA CASA LG PLANTA CASA DA FLORESTA PLANTA CASA ME 01 Deck 02 Jantar 03 Estar 04 Suite 05 Cozinha 06 Serviço 07 Banheiro Social 08 Banheiro Suite 01 Varanda 02 Estar 03 Cozinha/Jantar 04 Serviços 05 Quarto 06 Banheiro Social 07 Quarto 01 Cozinha/Jantar 02 Estar 03 Área de Meditação 04 Deposito 05 Banheiro Suite 07 Serviço 08 Ateliê 09 Suite 10 Varanda
A R Q U I T E T U R A E U R B A N I S M O P A R A A S U S T E N T A B I L I D A D E RUA STO JOSÉ MARCOLINO BRASILEIRO BAIRRO JARDIM GONZAGA, 454 JUAZEIRO DO NORTE - CE larissaurb@gmail.com (85) 9 9790 3434 larissagalvaoarq

Turn static files into dynamic content formats.

Create a flipbook
Issuu converts static files into: digital portfolios, online yearbooks, online catalogs, digital photo albums and more. Sign up and create your flipbook.