PORTFÓLIO 2022.2

Page 1

Lara L. Filgueiras . IAU/USP 4º semestre . ago - dez/2022

PORTFÓLIO

tel. +55 16 99610.9787 email. laralessafilgueiras@usp.br

LARA LESSA FILGUEIRAS

FORMAÇÃO

CURRICULUM VITTAE

2016 - 2018

IAU/USP - Instituto de Arquitetura e Urbanismo Universidade de São Paulo, campus São Carlos

Média 8.9/10

Colégio Liceu Albert Sabin Escola de Ensino Médio

EXPERIÊNCIA PROFISSIONAL

jan/ago. 2022 set/2022 - hoje

COMPUTER SKILLS

Adobe CC Modelagem Renderização

IDIOMAS

2021 - 2025 MS Office Português Inglês Espanhol Italiano

Arquitetura Italiana no Estado de São Paulo

Bacharelado em arquitetura e urbanismo. Bolsista pesquisa CAU/SP.

YBY - Grupo de Estudos Fundiários, Políticas Urbanas, Produção do Espaço e da Paisagem

Pesquisa sobre a influência da pandemia no mercado imobiliário em Ribeirão Preto/SP.

Orientador: Miguel A. Buzzar. Orientador: Tomás A. Moreira.

Word . Powerpoint . Exel . Publisher Illustrator . Photoshop . InDesign Revit . AutoCad . Sketchup

Lumion Língua materna B2 + A2 A1

CONTEÚDO

dez/2022 out/2022 out/2022 dez/2022 out/2022

Bloco Administrativo da Escola de Construção Galpão da Escola de Construção

Projeto Arquitetônico Banheiro

Mobiliário Urbano Equipamento de Saúde Integrado

EM COLABORAÇÃO

Fernanda A. H. Oey Gabriela L. Hartung.

CATEGORIA

Trabalho apresentado à disciplina Sistemas Construtivos.

O anteprojeto do Bloco Administrativo da Escola de Construção nasceu olhando para os requisitos mínimos do programa e da disciplina propostos: a obrigatoriedade do emprego de paredes estruturais, autoportantes, área construída máxima de 100m² e os ambientes necessários. Sempre buscando integrar ao máximo os ensinamentos dados em aula sobre as tecnologias dos materiais e os sistemas construtivos de modo geral.

PROFESSORAS

Prof. Akemi Ino Prof. Lúcia Shimbo. PROGRAMA Anteprojeto do Bloco Administrativo da Escola de Construção.

Com isso, o Bloco Administrativo conta com paredes estrutuais de taipa de pilão e a estrutura de cobertura foi solucionada com uso de MLC e telha termoacústica. A planta desenvolve-se de forma a priorizar a cominicação do bloco ao galpão de aulas com os ambientes compartilhados - banheiros, copa, almoxarifado - e certa privacidade daqueles mais restritos, como a administração.

Isométrica
BLOCO ADMINISTRATIVO DA ESCOLA DE CONSTRUÇÃO
BLOCO ADMINISTRATIVO DA ESCOLA DE CONSTRUÇÃO . 4º período . 2022
bloco administrativo 0 5 10 25 Implantação 2022 . 4º período. BLOCO ADMINISTRATIVO DA ESCOLA DE CONSTRUÇÃO
15
C B
BLOCO ADMINISTRATIVO DA ESCOLA DE CONSTRUÇÃO . 4º período . 2022
Planta pavimento único 5 0 10 25 1 2 3 4 5 6 7 8 9 10 11 12 13 A B C D E F G H I J 14
K L M N O 0,24 0,22 1 5 , 0 0 1 , 5 0 9 , 0 0 A
B C A 4 , 5 0 7,50 6,00 4,50 Sala de Reuniões Administração WC PNE WC F WC M Copa e vivência Almoxarifado

telhatermoacústica(600x320x5,08cm)

forro madeira terça(6x12cm)vigaprincipal(14x42cm) proteção viga de berço (16x6cm)

pilarete(10x10cm)

2022 . 4º período. BLOCO ADMINISTRATIVO DA ESCOLA DE CONSTRUÇÃO
Detalhe cobertura

Corte AA

Corte BB

3,00 3,30

0,00

4,85 0 5 10 25

3,00 3,30

0,00

4,85 0 5 10 25

4,85

3,00 3,30 BLOCO ADMINISTRATIVO DA ESCOLA DE CONSTRUÇÃO . 4º período . 2022

0,00

Corte CC 0 5 10 25

2022 . 4º período. BLOCO ADMINISTRATIVO

Parede Estrutural de Taipa - Canto Parede Estrutural de Taipa - Extremidade Parede Estrutural de Taipa - Central

Chanfro Encaixe Macho - Fêmea

1 , 5 0 3 00 4 0

40 1,90

Desenhos parede de Taipa de Pilão

Painel de Extremidade - Macho - Fêmea

Painel de Extremidade - Liso

Isométrica - Forma de Parede Estrutural de Taipa - Extremidade - F1

Formas para molde da parede de Taipa de Pilão

Painel de Extremidade - Macho - Fêmea

3 00 4 0

Painel de Extremidade - Macho - Fêmea

Isométrica - Forma de Parede Estrutural de Taipa - Canto - F2

Compensado Naval - 20mm - 2,20x0,60m DA ESCOLA DE CONSTRUÇÃO
1 2 3 4 5 6 7 8 9 10 11 12 13 A B C D E F G H I J 14 15 k F1 F1 F1 F1 F1 F1 F1 F1 F1 F1 F1 F1 F2 F1 F1 F1 F1 F1 F1 F1 F1 F1 0 5 10 25 Parede de Planta de formas Vedação em Wood Frame BLOCO ADMINISTRATIVO DA ESCOLA DE CONSTRUÇÃO . 4º período . 2022

Pintura Interna Gesso Acartonado Painel OSB Montante de Madeira

Painel OSB Manta Hidrófuga Placa Cimentícia Textura Acrílica 2022 . 4º período. BLOCO ADMINISTRATIVO DA ESCOLA DE CONSTRUÇÃO

Argamassa

Detalhe - Wood Frame
BLOCO ADMINISTRATIVO DA ESCOLA DE CONSTRUÇÃO . 4º período . 2022
2022 . 4º período. BLOCO ADMINISTRATIVO DA ESCOLA DE CONSTRUÇÃO
BLOCO ADMINISTRATIVO DA ESCOLA DE CONSTRUÇÃO . 4º período . 2022
2022 . 4º período. BLOCO ADMINISTRATIVO DA ESCOLA DE CONSTRUÇÃO

EM COLABORAÇÃO

Fernanda A. H. Oey Gabriela L. Hartung.

CATEGORIA

Trabalho apresentado à disciplina Sistemas Construtivos.

Assim como o Bloco Administrativo, o Galpão da Escola de Construção desde o ínico do desenvolvimento projetual levou em consideração os requisitos mínimos: um vão principal de no mínimo 15m, área máxima de 500m², bancadas de trabalho e pias. Dessa maneira escolhemos trabalhar com MLC - madeira lamelada colada - que consegue suprir as dimensões demandadas pelo grande vão. Sempre considerando as tecnologias e as informações de aula.

Prof. Lúcia Shimbo.

Anteprojeto do Galpão da Escola

Por se tratar de um galpão pres supõe-se as faces laterais livres e, portanto, a necessidade de contraventamento tanto nelas quanto na cobertura - estrutura de MLC e telha termoacústica. No momento de concepção optamos pelo uso de pilares em V, por questões estéticas que acabam por suprir essa necessidade, por outro lado, o contraventamento do telhado borboleta foi realizado com uso de cabos de aço.

GALPÃO DA ESCOLA DE CONSTRUÇÃO
GALPÃO DA ESCOLA DE CONSTRUÇÃO . 4º período . 2022
Isométrica
bloco administrativo 0 Implantação 5 10 25 galpão 2022 . 4º período. GALPÃO DA ESCOLA DE CONSTRUÇÃO
10 GALPÃO DA ESCOLA DE CONSTRUÇÃO . 4º período . 2022
18.44 15 3 3 27 30,43 A 1 2 3 4 5 6 7 8 9 10 B C D E F 0 Planta pavimento único 2 4

TELHA TERMOACÚSTICA (600x320x5,08cm)

FORRO DE MADEIRA

TERÇA (17x4cm) COM CONTRAVENTAMENTO DE CABO DE AÇO (1’’)

VIGA PRINCIPAL (22x88cm) VIGA SANDUÍCHE (17x4cm)

PILAR MLC (22x22cm)

FUNDAÇÃO

Axonométrica explodida estrutura

2022 . 4º período. GALPÃO DA ESCOLA DE CONSTRUÇÃO
GALPÃO DA ESCOLA DE CONSTRUÇÃO . 4º período . 2022
1,85 15 Nível 2 Nível 1 4,18 0,00 19 Corte AA 0 2 4 10 6,47 4,96 6,18 Nível 2 Nível 1 4,18 0,00 Corte BB 0 2 4 10

PILAR MLC (22x22CM)

HASTE AUTOPERFURANTE) (aço galvanizado)comprimento variado x 3/4’’

CHAPA DE AÇO

CHUMBADOR

SAPATA ISOLADA PIRAMIDAL

2022 . 4º período. GALPÃO

Detalhe Fundação-Pilar

VIGA PRINCIPAL ( 88x22cm)

VIGA SANDUÍCHE (17x4cm)

PILAR MLC (22x22cm)

Detalhe Pilar-Viga

Detalhe Fundação-Pilar 1 1:10

1:10

Detalha Fundação-Pilar 1:10

Detalhe Fundação-Pilar 2 1:10

HASTE ROSCADA (3/4’’x44cm)

HASTE ROSCADA (3/4’’x30cm)

HASTE ROSCADA (3/4’’ x 30 cm)

PILAR MLC 922x22cm)

DIMENSIONAMENTO: PILARES 22x22cm

VIGA PRINCIPAL (88x22cm)

Detalhe Pilar-Viga Central

HASTE ROSCADA (3/4’’x22cm)

VIGA SANDUÍCHE (17x4cm)

FERRAGEM METÁLICA COM APOIO DE CHAPA DE APOIO 1:10 1:10 DA ESCOLA DE CONSTRUÇÃO
GALPÃO DA ESCOLA DE CONSTRUÇÃO . 4º período . 2022

TERÇA (17x4cm)

FERRAGEM METÁLICA COM CHAPA DE APOIO

PILAR MLC (22x22)

2022 . 4º período.

GALPÃO

HASTE ROSCADA

VIGA PRINCIPAL (22x88cm)

Detalhe - Ferragem de coneção viga-terça Detalhe Viga-Terça

VIGA SANDUÍCHE (17x4cm)

1:10
PILAR MLC (22x22) DA ESCOLA DE CONSTRUÇÃO
GALPÃO DA ESCOLA DE CONSTRUÇÃO . 4º período . 2022
2022 . 4º período. GALPÃO DA ESCOLA DE CONSTRUÇÃO

CALHA (0,52x0,17x20m)

0,52

Detalhe Calha

0, 1 7

0,52

TERÇA ^(17x4cm)

MÃO FRANCESA

VIGA PRINCIPAL (22x88cm)

VIGA SANDUÍCHE (17x4cm)

CALHA (0,52x0,17x20m)

FORRO DE MADEIRA

TERÇA ^(17x4cm)

FORRO DE MADEIRA 0,1 7

MÃO FRANCESA

VIGA PRINCIPAL (22x88cm)

VIGA SANDUÍCHE (17x4cm)

Detalhe Calha e Mão Francesa

GALPÃO DA ESCOLA DE CONSTRUÇÃO . 4º período . 2022
2022 . 4º período. GALPÃO DA ESCOLA DE CONSTRUÇÃO

Projeto Arquitetônico Banheiro Esmeralda

Isométrica

EM COLABORAÇÃO

Fernanda A. H. Oey

CATEGORIA

Trabalho apresentado à disciplina Instalações Prediais.

Esse projeto tinha como programa mínimo os elementos sanitários básicos e obrigatoriamente uma banheira independente do chuveiro. Dessa maneira, partindo do programa e dos conhecimentos acerca da melhor forma de distribuição dos elementos com base nas instalações hidráulicas, desenvolvemos a planta arquitetônica que conta com dois lavatórios, um vaso sanitário, uma ducha higiênica, um chuveiro e a banheira.

PROFESSOR

Prof. Benedito A. S. Rodrigues PROGRAMA

Para os acabamentos, utilizamos os catálogos da Docol e Portobello Revestimentos. E a escolha do revestimento das paredes é o que dá nome ao projeto: a pedra verde que assemelha-se com uma esmeralda foi empregada em pouco mais de meia parede em todo o contorno do banheiro e parede inteira na porção correspondente ao box. Além disso, também executamos o projeto de instalações hidráulicas: esgoto e águas quente e fria.

Projeto Arquitetônico Banheiro e Instalações hidráulicas. BANHEIRO ESMERALDA . 4º período . 2022
6 . 3 2
0.5 0.5 0.08 0.55 0.5
3 0 9 1 1:20 Planta pavimento único 2022 . 4º período. BANHEIRO ESMERALDA
3.8
1 7 0 0.48 0.96 0.48 0.64
2 4 0 8 2 . 0

Nível 1 0

Nível 2 3
1 . 2 0. 1 5 0. 5 9 1 0.1 5 1:25 Corte 1
BANHEIRO ESMERALDA . 4º período . 2022
Nivel 1 0 Nível 2 3 1. 2 0.1 1 0.6 9 2 0.5 5 1:25 Corte 2
2022 . 4º período. BANHEIRO ESMERALDA

1:25 Planta água fria 1:25

Planta água quente Planta esgoto 1:25

BANHEIRO ESMERALDA . 4º período . 2022

Isométrica - água quente e fria

Isométrica - esgoto

2022 . 4º período. BANHEIRO ESMERALDA
BANHEIRO ESMERALDA . 4º período . 2022
2022 . 4º período. BANHEIRO ESMERALDA

rendimentos apontam a precariza ção do trabalho dos entregadores que, ao longo da pandemia, presenciou um crescimento considerável. Olhando para esse cenário crítico nos propusemos a elaboração de um projeto-piloto que mescla centros de apoio e mobiliários urbano voltados a esses trabalhadores com caráter sistêmico e que formam uma rede codependência, visto suas ações pontuais, entre si.

parklets e postos completos. Os parklets são implantados em nível com as guias, evitando interrupção do tráfego nas vias, são equipados com tomadas, bebedouro e lugar de repouso. Já os postos completos, implantados em bordas de estacionamentos, terrenos vazios ou calçadas largas, caracterizam-se pelo acréscimo de um módulo ao parklet, equipando-o também com sanitário e uma copa.

MOBILIÁRIO URBANO . 4º período . 2022
2022 . 4º período. MOBILIÁRIO URBANO
MOBILIÁRIO URBANO . 4º período . 2022

Elevação parklet

2022 . 4º período. MOBILIÁRIO URBANO
MOBILIÁRIO URBANO . 4º período . 2022
2022 . 4º período. MOBILIÁRIO URBANO
MOBILIÁRIO URBANO . 4º período . 2022
Planta posto completo
2022 . 4º período. MOBILIÁRIO URBANO
MOBILIÁRIO URBANO . 4º período . 2022
2022 . 4º período. MOBILIÁRIO URBANO

EM COLABORAÇÃO

Ana J. X. Scopel

Júlia B. Estevan Lívia M. Tomasovic Virgínia A. O. Ranzeiro.

CATEGORIA

Trabalho apresentado à disciplina Projeto IV.

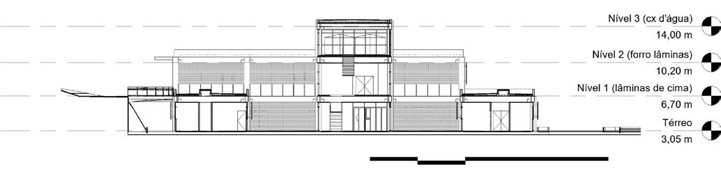
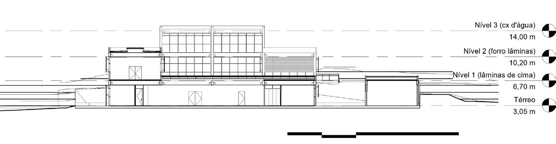
O Equipamento Integrado de Saúde surge do requisito da elaboração de um projeto que comporte uma Unidade de Pronto Atendimento (UPA) e uma Unidade Básica de Saúde (UBS) no mesmo terreno. Além das diretrizes e normas do SUS a serem seguidas, foi de extrema importância a análise do terreno e do entorno, visto que trata-se de um espaço real no centro da cidade

PROFESSORES

Prof. Givaldo Medeiros Prof. Luis Espallargas Gimenez Prof. Márcio Minto Fabrício

PROGRAMA

Projeto de um Equipamento Integrado de Saúde - UPA + UBS.

de São Carlos. Assim, usando a topografia a nosso favor e pesquisas sobre os benefícios da recuperação dos pacientes quando em contato contato com a natureza, nasce um projeto com dois níveis e cinco blocos nos quais se distribuem os devidos programas, visando a integração com a natureza e permeabilidade visual, quando possível.

EQUIPAMENTO
DE SAÚDE
Isométrica EQUIPAMENTO DE SAÚDE . 4º período . 2022
0 Implantação 5 10 25 2022 . 4º período. EQUIPAMENTO DE SAÚDE
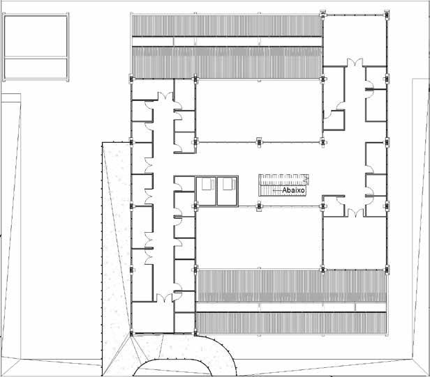
UPA 0 Setores nível 1 5 10 25 UBS REGIÃO COMUM EQUIPAMENTO DE SAÚDE . 4º período . 2022

Sala administ.

Sala direção Arquivo médico Refeitório funcionários

Quarto de plantão Vestiário funcionários Sala adm UBS Expurgo

Consultório
Sala
Sala coleta material Sala aplicação de medicamento Sala de
Sala de higienização Sala de curativos Sala de inalação coletiva Sala de utilidades Pronto Atendimento Apoio Diagnóstico e Terapêutico Apoio Técnico/logístico e administração Procedimentos Recepção
indiferenciado Sala de exames odontológicos Triagem
atendimento social
gesso
Sala de reuniões
Sala de curativos Consultório 04 Consultório 03 Sala de procedimentos Sala de nebulização Farmácia Odontologia Sanit. masc. Sanit. fem. Consultório 01 Sala de vacinas Consultório 02 Almoxarifado Sanitário DML Sala estar funcionários Sanitário funcionários Sanitário
Sala utilidades
Sala escura arquivo vestiário Consultório indiferenciado 0 Ambientes nível 1 5 10 25 2022 . 4º período. EQUIPAMENTO DE SAÚDE
Estocagem
funcionários
Sala atv. coletiva
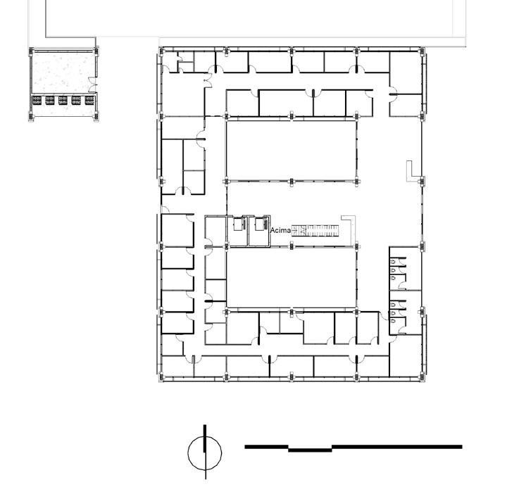
UPA 0 Setor nível 2 5 10 25 EQUIPAMENTO DE SAÚDE . 4º período . 2022
Copa, distribuição e armazenamento carrinhos Armazenamento limpo Armazenamento sujo Esterilização Guarda e preparo de material Guarda temporária de cadáveres Sala de curativos Sala de atendimento Sala de atendimento Sala de estabilização Sala de observação coletiva 02 Sanit. masc. Sanit. fem. Sala de serviços Sala de ECG Sanitário Quarto obs. individial Sanitário Sala obs. coletiva 01 Guarda-maca Área higienização Sala de ECG Posto de enfermagem e serviços Farmácia CAF Sanitário Almoxarifado Emergência 0 Ambientes nível 2 5 10 25 Apoio técnico e logístico Observação Circulação 2022 . 4º período. EQUIPAMENTO DE SAÚDE
EQUIPAMENTO DE SAÚDE . 4º período . 2022
2022 . 4º período. EQUIPAMENTO DE SAÚDE
Corte 1 0 5 10 25 Corte 2 0 5 10 25 Corte 3 0 5 10 25
EQUIPAMENTO DE SAÚDE . 4º período . 2022
2022 . 4º período. EQUIPAMENTO DE SAÚDE

Lara L. Filgueiras . IAU/USP 4º semestre . ago - dez/2022

Turn static files into dynamic content formats.

Create a flipbook
Issuu converts static files into: digital portfolios, online yearbooks, online catalogs, digital photo albums and more. Sign up and create your flipbook.
PORTFÓLIO 2022.2 by laralessa - Issuu