

![]()


Lanxin Yang, first year Master in architecture, interested in studying architecture in extreme climates which includes:
• Advanced technology to decrease the resources from various aspects;
• The built environment for future needs;
• Materials and constructions to provide long-term security for human in extreme environments.
01/ Affordable Housing
Grow Individually Together
02/ Civic Community Centre
Smooth Rock Falls
03/
Tuned Mass Damper Model
Taipei 101 Skyscraper
04/ Longhouse Model
Wendat Mantle Site
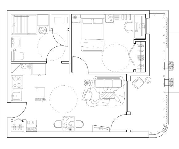
This project is called Grow Individually Together, designing an affordable apartment in downtown sudbury.
This project aims to establish affordable house that encourages individual growth of its residents as they improve their socioeconimic standing while encouraging community growth.
This concept is carried out through the choices of the commercial and co-working spaces, as well as design decisions of the building and urban environment.
A thrift store is designed as the commertial space that sell a variety of affordable items, ranging from clothing to kitchen appliances and tools, contributing not only to the needs of residents but also to the surrounding area.
The co-working spaces are greenhouses spread across the project for the residents to cultivate their own food all year long, reducing grocery expenses while being part of the wider Sudbury Community Garden network.
In addition, a market is located beneath the smaller residential building, which provides an area for the residents and/ or members of the Sudbury Garden network to sell and exchange food that they have grow.







Different urban conditions around the site allowing people to access the site from different directions.


The paths provide the shortest distence from one point to another. The seating options are tailored to the site, the build up seating and the movable chairs are found along the paths.


Each unit has bedroom, washroom and an open concept living, dining and kitchen area.
Almost all apartments have a balcony except the ones by the green wall.
The operable screens on the balconies are designed for the residents to operate depending on the weather and season.
The residential units have a compact water to water heat pump. The heat pump is connected to a boiler which is then connected to the radiant floors and domestic hot water equipment while ventilation is carried out using decentralized ERV units.
Dropped ceiling are designed in the residential units that goes through the apartment but stops at the living room, giving the living room a higher ceiling.



7-ply clt is used as the shear walls.
5-ply clt is used as the loeadbeaing walls, floor panels, and the greenhouse column. Glulam beam is used to build the commercial waffle structure.
Concrete is used to make the underground parking waffle structure.


The waffle structure is used in dealing with the slope of the site by creating levels in the thrift store.
The loadbeaing walls sit on top of the floor panels, and the floor panels are connected to the shear wall.
The waffle structure and the sawtooth structure are also supported by posts.


Liner lighting and condtuits run along the higher beam so that the conduits and fixtures are hidden by the deeper beam.
For the parts of the commercial spaces that have a dropped ceiling such as the lobbies and the boardroom in the market, flush recessed light are installed as well as hanging lights.
The lightings in the commercial spaces have a cooler temperature than the residential units.
The commercial spaces have a water to air heat pump connected to a fan blower. All the vents, inlets and outlets are passed through the raised access floor.










Smooth Rock Falls is a town that is surrounded by boreal forest which has very diverse vegetation. Despite the small population, the people who live here have enthusiasm for life.
This project is aimed to incorporate the garden theory into the design, and use the vegetation to help improving the comfort of the spaces, and enhance the connection between the building and the landscape.
This concept is carried out through the choices of different vegetation and their plant area.
An artificial pond is created for outdoor activities, and make the scenery more interesting.


The paths create the indoor-outdoor relationship which encourages people to have more connection to the environment.
The large amount of vegetation around the buildings and the pond brings in other living creatures to merge the civic centre with nature.
The different levels of roofs bring in sunlight to help the vegetation grow and provide shadows for the outdoor spaces.



Taipei 101 Skyscraper
“In architecture, the function of the TMD is to counteract the natural swaying motion of a building by installing, near its top, a large mass that can move independently of the structure. The mass is connected to the structure with springs or hydraulic devices that are tuned (adjusted) so it tends to move out of phase (in the opposite direction) of the structure. It thereby reduces the extent of the movement by absorbing, converting and dissipating the kinetic energy of the moving building.
One of the world’s largest and heaviest TMDs is in the Taipei 101 skyscraper in Taiwan.
We gratefully acknowledge the assistance provided by Motioneering that enabled the CMA to construct a scale model of the Taipei 101 TMD. Using the original drawings a plan of the model was drafted in Rhinoceros. After division into suitable components printable files were created at a scale of 1:40.
After printing, the plastic model was assembled and finished in the colours of the actual damper.” (Lanxin Yang, “In Perspective, Volume 2, No. 3, Summer 2023”, the Canadian Museum of Architecture’s digital newsletter.)


The longhouse was the predominant form of building for Iroquoian-speaking people. House 53 is the selected building on the Wendat Mantle site (Toronto) to show the form and structure of the longhouses as well as the daily life of the Indigenous community.
House 53
• 23.1 m long and 7.3 m wide and high covering an area of 152.3 m².

Materials and Structure
• This model is on a 1: 50 scale
• Underlying frame: wire mesh, plaster of Paris, and black matte paint
• Exterior: cedar barks (1.2 cm * 2 cm)
• Palisades: thicker sticks (3 mm in diameter)
Site
• 24 * 24 inch plywood
Placing the model at a 45 degrees angle facing Southeast.
Three rows of palisades are anchored on the right side of the model. The surface is covered with sand and grass.
